Андрей727272 Опубліковано: 2 липня 2010 Поділитись Опубліковано: 2 липня 2010 Доброе время суток всем. Часто заглядывал на форум как посетитель и читал истории о стойках, а теперь хочу рассказать историю про МОЮ стройку. Надоело нам с женой жить в хрущебе. Примерно полгода сидел в нете и выбирал технологию строительства дома, благо теща подарила жене 6 соток в Осокорках. Рассчитывал построится быстро и не дорого (на сумму за проданный 2-х комнатный хрущ + небольшие сбережения), земля можно сказать уже была. Не буду описывать все мои трудности выбора, т.к. хотел строить дом своими руками, перебрал кучу проектов и технологий, побывал в офисах ну не меньше 10 фирм, но выбрал я технологию ЛСТК - легкий стальной тонкостенный каркас. Заказал проект в одной киевской фирме ( о том как это было отдельная история). В сентябре 2008 года начал поиск подрядчика на заливку ленточного малозаглубленного фундамента. Народу приходило много, ужас, но цену валили такую, что я уже думал отказаться от затеи. Сплош и рядом народ строил "депутатам, прокурорам," и т.д., только я ж не депутат. Случай свел с одним человечком и за 2 месяца с октября по середину декабря я получил, то, что хотел и за те деньги, что имел. Фундамент отстоял зиму и чуть-чуть весны и 18.04.2009 я купил профиль и приступил к сборке дома с еще тремя моими технически грамотными друзьями. Через 4 месяца мы с женой, сыном и друзяками отпраздновали новоселье. Не все было оконченно по отделочным работам, не было газа, но самое главное некуда было отступать - квартира была уже продана, а деньги практически израсходованы. Из отопительных приборов в наличии была только топка на дровах купленная в Эпицентре мощностью 14 Кв. На сегодня могу сказать только одно - я оч доволен, что рискнул. Зиму мы пережили без особых проблем, на улице -25 в доме +20, 22. Не все сложилось как хотел, есть огромное влияние человеческого фактора, были траблы с отделкой по фасаду и др проблемы, но в целом по стоимости м2, а он обошелся мне в 2380 грн, я доволен. S дома 158 м2, два этажа, два санузла. На все про все с узаканливанием дома, подводкой газа, привелением в порядок участка я потратил, да еще и не потратил 100 кг.американских. Если будет интересно выложу фотки, все снималось поэтапно, расскажу о тех кто справился со своей работой на 5 и тех кто реально нарсал и не только на объекте. Короче, прошел я все этапы, чем смогу, тем помогу, тем кто только начинает путь под названием СТРОЙКА. 20 Посилання на коментар Поділитися на інших сайтах More sharing options...
МЭН Опубліковано: 2 липня 2010 Поділитись Опубліковано: 2 липня 2010 Так выкладывай фото,посмотрим ,обсудем.Приятно видеть то что люди сделали своими руками.Молодцы. 1 Посилання на коментар Поділитися на інших сайтах More sharing options...
kxigiki_pasha Опубліковано: 2 липня 2010 Поділитись Опубліковано: 2 липня 2010 Хороша у вас історія :good: Теж давно думав про каркас з ЛСТК, і зразу хочу спитати, як живеться в доміку? на скільки тепло в такому? і чи ніде не промерз? Посилання на коментар Поділитися на інших сайтах More sharing options...
sko73 Опубліковано: 2 липня 2010 Поділитись Опубліковано: 2 липня 2010 Технология достойная, в северной Европе ее называют "пассивный дом", по срокам стройки конкуренты только канадцы, а вот конкурентов по соотношению цена\энергосбережение\срок эксплуатации у нее нет. 2 Посилання на коментар Поділитися на інших сайтах More sharing options...
Александр2008 Опубліковано: 2 липня 2010 Поділитись Опубліковано: 2 липня 2010 Расскажите какое перекрытие делали и какую нагрузку выдерживает перекрытие, есть желание собрать гараж двухэтажный, второй этаж планируется использовать под склад-мастерскую Посилання на коментар Поділитися на інших сайтах More sharing options...
Андрей727272 Опубліковано: 3 липня 2010 Автор Поділитись Опубліковано: 3 липня 2010 Вот фотки, какой дом сейчас выложу чуть позже. 29 Посилання на коментар Поділитися на інших сайтах More sharing options...
Андрей727272 Опубліковано: 3 липня 2010 Автор Поділитись Опубліковано: 3 липня 2010 Тнеперь по тех характеристикам. Перекрытие сделано так же из профилей, только профиль чуть помощнее, чем тот который пошел на стены. Стойки сделаны из профиля 1.5 мм толщиной шириной 150, длина 3000. Перекрытие 2х200х7000 и стропила 2х200х9000. Технология позволяет делать безопорное перекрытие 18м, но тогда делается ферма. Т.к. у меня перекрытие опирается на стены и перестенки сделали просто балочное, расчетная нагрузка 450кг/м2. Есть два способа перешить балки, у меня они перешиты 22 ОСБ, можно перешить профнастилом и залить пенобетонную стяжку. Т.к. это жилое помещение - хотелось поменьше дышать цементом и химией, поэтому применил ОСБ. У крыши расчетная нагрузка 180 кг/м2. Расчетная ветроснего нагрузка 80 кг/м2, так, что запас есть . На крышу я положил полимерпесчаную черепицу, вес которой 22 кг/м2. В доме было тепло, ведь всю зиму провели в нем, а какая была зима, я думаю все помнят По сопротивлению теплопередачи стенового пирога у меня вышло при просчете 6,8. Норма по Украине пока 2.8, в Норвегии самый высокий показатель в мире 8. 8 Посилання на коментар Поділитися на інших сайтах More sharing options...
sadovnik 5 Опубліковано: 3 липня 2010 Поділитись Опубліковано: 3 липня 2010 Молодцы, уважение тем кто строит своими руками. А где ВЫ живете в Осокорках? 2 Посилання на коментар Поділитися на інших сайтах More sharing options...
adim20 Опубліковано: 3 липня 2010 Поділитись Опубліковано: 3 липня 2010 Здравствуйте Андрей. Давно присматриваюсь к такой технологии. На сколько я понял по расчитаному проекту Вы сами собирали дом из стандартного профиля и обшивали ОСБ. Расскажите про профиль, чье производство, есть ли термонасечка, сколько стоит, поставка. Если можно поподробнее процесс сборки каркаса, в часности диогональные стяжки из чего, постоянные они или временные, чем крепили, На сколько тяжелый каркас стены (я понимаю, что его собирали на полу, а потом поднимали. Возможно ли построить самому, или всетаки нужна бригада. Спасибо. Посилання на коментар Поділитися на інших сайтах More sharing options...
Андрей727272 Опубліковано: 3 липня 2010 Автор Поділитись Опубліковано: 3 липня 2010 (змінено) Молодцы, уважение тем кто строит своими руками. А где ВЫ живете в Осокорках? Спасибо Sadovnik. … Змінено 15 жовтня 2013 користувачем AndyAntonov по просьбе автора Посилання на коментар Поділитися на інших сайтах More sharing options...
Андрей727272 Опубліковано: 3 липня 2010 Автор Поділитись Опубліковано: 3 липня 2010 Здравствуйте. Профиль брал у диллера ЦентростальДомсталь, просечку на момент покупки металла не делали, в принципе я о ней не жалею . В просеченном профиле есть конечно же преимущества перед непросеченным, но они не критичны. Цену могу назвать прошлогоднюю 11500 грн/тонна. Если необходимо могу подсказать фирму у которой конкурентная цена на сегодня, это около 13400 за тонну. Практически все производители профиля на Украине берут металл в бухтах у Ильича (Ильичевский мет комбинат) там не жалеют цинка. Доставка по месту стройки без проблем. Извините, но писать о сборке каркаса не буду, просто получится книга. Вкратце - все крепиться на саморезы по металлу сгласно спецификации по проекту. Стяжки ставятся для того, что бы ведерживать диагональ при подьеме стеновой панели, они постоянные. Вес стеновой панели проектанты должны рассчитать таким образом, что бы вес одной не превышал 300 кг, для монтажа без применения подьемной техники. Сами, если не обладаете опытом монтажа и тех. грамотой не соберете, я в предидущем сообщении писал, что пригласил на сборку друзей, с тех образованием и опытом монажных работ, иначе, честно скажу, (сам умею держать в руках и молоток и болгарку, сам занимаюсь сварочными работами), но с моими (ПРОШЛОГОДНИМИ) знаниями каркас бы не собрал. Оч много технологических моментов, которые в проекте не обозначены, они подразумеваются ка бы сами собой. Но как говорится дорогу осилит идущий. 2 Посилання на коментар Поділитися на інших сайтах More sharing options...
Eduart Опубліковано: 4 липня 2010 Поділитись Опубліковано: 4 липня 2010 А можно немножко подробнее, какой стеновой пирог - по звукоизоляции какое получилось строение и сколько тон металла на ваше строентие - хочется иметь представление. Иможет фотографий поболе. Заранее сенкс. Посилання на коментар Поділитися на інших сайтах More sharing options...
ЮРА С Опубліковано: 4 липня 2010 Поділитись Опубліковано: 4 липня 2010 Молодцы!:good:Пиши,ждем подробностей. Посилання на коментар Поділитися на інших сайтах More sharing options...
Андрей727272 Опубліковано: 5 липня 2010 Автор Поділитись Опубліковано: 5 липня 2010 Доброе время суток. Немного о стеновом пироге. В целом стеновой пирог дома, который строил я состоит, идем от улицы: 1. структурная краска 2. штукатурка на стеклосетке 3. экструдированный полистирол 50мм 4. ОСБ 12 мм 5. Базальтовая вата ROCKWOOL 150 мм (возможно применение эковаты и наполнителя на основе полиуретана) 6. Паробаръер 7. Воздушная прослойка 25 мм (образуется при применении омега профиля). Омега профиль ОБЯЗАТЕЛЕН! 8. Гипсокартон Knauf стеновой 12 мм Вид в разрезе постарался показать картинкой. Напомню, что коэффициент теплопередачи данного пирога 6,8. 4 Посилання на коментар Поділитися на інших сайтах More sharing options...
Андрей727272 Опубліковано: 5 липня 2010 Автор Поділитись Опубліковано: 5 липня 2010 А можно немножко подробнее, какой стеновой пирог - по звукоизоляции какое получилось строение и сколько тон металла на ваше строентие - хочется иметь представление. Иможет фотографий поболе. Заранее сенкс. Eduart, какие фотографии Вам было бы интересно увидеть, их много, а возможности и скорсть Пиплнета, к сожалению не позволяют выложить все . Стеновой пирог у моего дома такой, идем от улицы: 1. Структурная краска, грунтовка 2. Штукатурка на стеклосетке 3. Экструдированный полистирол 50 мм (25 + 25 в перевязку пропененный на стыках монтажной пеной) 4. ОСБ 12 мм 5. Базальтовые маты Rockwool стеновой 150 мм 6. Паробарьер 7. Воздушная прослойка 25 мм (возникает при использовании омега профиля, он должен быть заложен в конструктиве обязательно!) В этом пространстве укладывается инжененрия. 8. Гипсокартон Knauf 12 мм По звукопроводности не помню коэффициент, можно глянуть на сайте роквула. Но могу сказать, в гараже стоит генератор, у нас в кООпЭротиве часто отключают свет, так при его работе в доме практически ничего не слышно. Аналогичная ситуация у соседа, но дом в 1 силикитный кирпич, в итоге сосед вынес генератор в летнюю кухню, в доме не мог спать. Металла на дом пошло 12500 кг, докупал еще потом кил 500 т.к. немного отступил от проекта и немного подукрепил (страшновато было когда смотрел на один скелет каркаса, но это оказалось лишним ) 1 Посилання на коментар Поділитися на інших сайтах More sharing options...
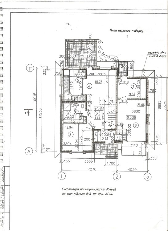
Андрей727272 Опубліковано: 5 липня 2010 Автор Поділитись Опубліковано: 5 липня 2010 Вот так выглядит поэтажка и фасады. Дом "рисовали" с женой сами, наружную архитектуру взяли в каком то журнале и под нее начертили внутреннюю планировку. Посилання на коментар Поділитися на інших сайтах More sharing options...
sadovnik 5 Опубліковано: 8 липня 2010 Поділитись Опубліковано: 8 липня 2010 В России даже компании есть которые все собирает и доставляют, остается только собрать дом, как конструктор. Вот более подробно www.newshouse.ru/page-id-3606.html интересно, а в Украине кто то подобным занимается. Посилання на коментар Поділитися на інших сайтах More sharing options...
Белая Рысь Опубліковано: 8 липня 2010 Поділитись Опубліковано: 8 липня 2010 А Вы далеко от Днепра? Мы на 41 Садовой возле Днепра. Заходите! 1 Посилання на коментар Поділитися на інших сайтах More sharing options...
sadovnik 5 Опубліковано: 8 липня 2010 Поділитись Опубліковано: 8 липня 2010 Да кстати где ВЫ на Осокорках обитаете ? Посилання на коментар Поділитися на інших сайтах More sharing options...
Андрей727272 Опубліковано: 17 липня 2010 Автор Поділитись Опубліковано: 17 липня 2010 А Вы далеко от Днепра? Мы на 41 Садовой возле Днепра. Заходите! Спасибо за приглашение, как нибудь зайду. От днепра далековато, я в другую сторону ближе к озеру (в сторону Эпицентра). До озера от дома минут 20 пешком. Посилання на коментар Поділитися на інших сайтах More sharing options...
Андрей727272 Опубліковано: 17 липня 2010 Автор Поділитись Опубліковано: 17 липня 2010 (змінено) Да кстати где ВЫ на Осокорках обитаете ? .......... Змінено 15 жовтня 2013 користувачем AndyAntonov по просьбе автора Посилання на коментар Поділитися на інших сайтах More sharing options...
IrinaN Опубліковано: 17 липня 2010 Поділитись Опубліковано: 17 липня 2010 (змінено) .......... Мы там же - 53-я Садовая! Змінено 15 жовтня 2013 користувачем AndyAntonov Посилання на коментар Поділитися на інших сайтах More sharing options...
Андрей727272 Опубліковано: 19 липня 2010 Автор Поділитись Опубліковано: 19 липня 2010 (змінено) Мы там же - 53-я Садовая! .......... Змінено 15 жовтня 2013 користувачем AndyAntonov по просьбе автора Посилання на коментар Поділитися на інших сайтах More sharing options...
IrinaN Опубліковано: 19 липня 2010 Поділитись Опубліковано: 19 липня 2010 (змінено) .......... мы тоже на короткой, тока вроде коор-в "солнечный", если по коллектору, второй поворот направо, наша улица бу слева Змінено 15 жовтня 2013 користувачем AndyAntonov Посилання на коментар Поділитися на інших сайтах More sharing options...
Андрей727272 Опубліковано: 19 липня 2010 Автор Поділитись Опубліковано: 19 липня 2010 (змінено) мы тоже на короткой, тока вроде коор-в "солнечный", если по коллектору, второй поворот направо, наша улица бу слева .......... Змінено 15 жовтня 2013 користувачем AndyAntonov по просьбе автора Посилання на коментар Поділитися на інших сайтах More sharing options...
Рекомендовані повідомлення