guivan Опубліковано: 4 березня 2014 Поділитись Опубліковано: 4 березня 2014 В мене ворота з квадрат труби з елементами ковки, які зашиті потім повністю перфорованою бляхою Посилання на коментар Поділитися на інших сайтах More sharing options...
mont Опубліковано: 4 березня 2014 Поділитись Опубліковано: 4 березня 2014 В мене ворота з квадрат труби з елементами ковки, які зашиті потім повністю перфорованою бляхою Если сможете разместить фотографию, тогда будет значительно проще. Это ускорит процесс определения подходящей автоматики и мне будет спокойней. Посилання на коментар Поділитися на інших сайтах More sharing options...
Newal Опубліковано: 4 березня 2014 Поділитись Опубліковано: 4 березня 2014 дякую за відповіді, підкажіть будь-ласка а якщо я переміщу ворота на край (6см від краю) і закріплю їх на хімічні дюбеля(цегла повнотільна червона),для того щоб поставити іншу автоматику, наприклад АТІ(вона акуратніше виглядає), не буде проблем, не вирве ворота з цього кріплення? Дякую Якщо дуже хочеться АТІ то візьміть АТІ-5000 вони трохи дорожче ніж АТІ 3000 зате беруть відстань від воріт до колони в 210 мм. При їх використанні опора посередині буде не потрібна. Посилання на коментар Поділитися на інших сайтах More sharing options...
s-vorota_com Опубліковано: 4 березня 2014 Поділитись Опубліковано: 4 березня 2014 Аналог АTI - Дoрхан Swing, есть также 3000 и 5000. Ничем не уступает. А цена приятная. Посилання на коментар Поділитися на інших сайтах More sharing options...
muvic Опубліковано: 4 березня 2014 Поділитись Опубліковано: 4 березня 2014 Аналог АTI - Дoрхан Swing, есть также 3000 и 5000. Ничем не уступает. А цена приятная. де можна глянути двигуни, які пропрацювали 6-8 років? Посилання на коментар Поділитися на інших сайтах More sharing options...
s-vorota_com Опубліковано: 5 березня 2014 Поділитись Опубліковано: 5 березня 2014 де можна глянути двигуни, які пропрацювали 6-8 років? Я понял. по моему, именно свинги, выпускаются где то, я точно не помню, лет 5. Ну а те установки что я помню, за последние пару лет, то никто не звонил. Есть конечно вопросы, но по вине автоматики, не было. А то что Дoрхан начал сначала выпускать, откатные, то пожалуйста приезжайте, к нам, в Светловодске, у человека и на предприятии и дома стоят, все работает. Недавно звонил, лампа сгорела, и все... Посилання на коментар Поділитися на інших сайтах More sharing options...
Ворота-ua Опубліковано: 7 березня 2014 Поділитись Опубліковано: 7 березня 2014 Аналог АTI - Дoрхан Swing, есть также 3000 и 5000. Ничем не уступает. А цена приятная. По курсу 25.50 грн? это бойкот Украине? или это наш бойкот России? 1 Посилання на коментар Поділитися на інших сайтах More sharing options...
muvic Опубліковано: 7 березня 2014 Поділитись Опубліковано: 7 березня 2014 чудова нагода бойкотувати виробника з рассєйської пєдєрації 5 Посилання на коментар Поділитися на інших сайтах More sharing options...
MegaMaks Опубліковано: 14 березня 2014 Поділитись Опубліковано: 14 березня 2014 Доброго дня. Дійшли руки і підійшов час ставити ворота та хвіртку. Все вже є у наявності (вже давно чекає свого часу). Раніше не замислювався про встановлення автоматики, але випадково потрапив у цей розділ і зараз ця ідея дуже зацікавила. Через обмеження у просторі доводиться встановлювати на сталеві труби (діаметр 133 мм, стінка 4 мм), хвіртка встановлюється поруч з воротами. Довжина стулки - 155 см, висота - 180 см, точну вагу не скажу, приблизно 100 кг. За задумом ворота повинні відчинятися на вулицю, хоча не дуже заперечую щоб вони відкривалися у двір. Частота відкриття воріт - 2-4 рази на день. Вважаючи на обмеження у просторі встановлення автоматики можливе тільки лінійного типу, виправте мене якщо я помиляюсь. У мене виникло декілька запитань: 1) Чи можливо встанови лінійну автоматику так щоб ворота відкривалися на вулицю (бажано щоб відкривалися більше 90 градусів)? 2) Як краще встановлювати ворота, де приварювати петлі (винести більше на вулицю, посередині чи встановити більше у двір)? 3) Яких, скільки та де потрібно закласти ел. проводів при встановленні воріт? Посилання на коментар Поділитися на інших сайтах More sharing options...
VOROTOK Опубліковано: 14 березня 2014 Поділитись Опубліковано: 14 березня 2014 1) Чи можливо встанови лінійну автоматику так щоб ворота відкривалися на вулицю (бажано щоб відкривалися більше 90 градусів)? 2) Як краще встановлювати ворота, де приварювати петлі (винести більше на вулицю, посередині чи встановити більше у двір)? Обратите внимание на чертеж. Но для начала надо определиться с автоматикой. Посилання на коментар Поділитися на інших сайтах More sharing options...
MegaMaks Опубліковано: 14 березня 2014 Поділитись Опубліковано: 14 березня 2014 Остаточно ще не вирішив, але око чіпляється за Came KRONO-2. Хоча обгрунтовані поради вітаються. Посилання на коментар Поділитися на інших сайтах More sharing options...
Tob77 Опубліковано: 14 березня 2014 Поділитись Опубліковано: 14 березня 2014 Остаточно ще не вирішив, але око чіпляється за Came KRONO-2. Хоча обгрунтовані поради вітаються. Наиболее оптимальный выбор! Посилання на коментар Поділитися на інших сайтах More sharing options...
muvic Опубліковано: 14 березня 2014 Поділитись Опубліковано: 14 березня 2014 Остаточно ще не вирішив, але око чіпляється за Came KRONO-2. Хоча обгрунтовані поради вітаються. Я б радив кроно1. Краще без вимикачів кінцевих положень. Якщо ворота будуть відчинятися у двір, то бажано змістити петлі по стовпу максимально у двір. Якщо ворота будуть відчинятися на вулицю, то байдуже де будуть петлі. Посилання на коментар Поділитися на інших сайтах More sharing options...
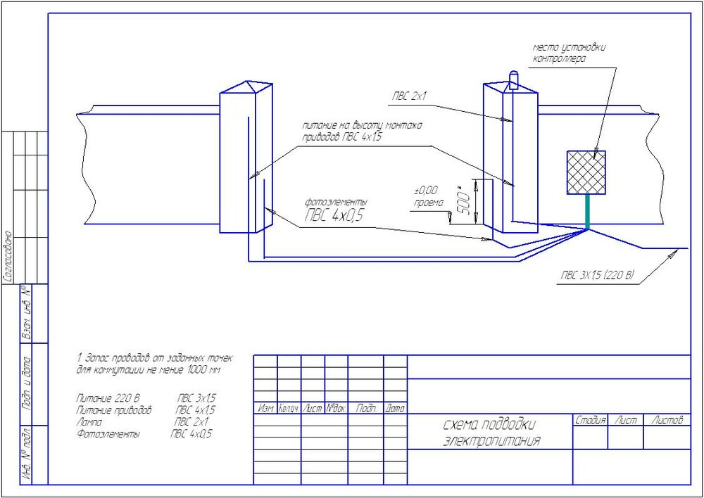
Вратарь Опубліковано: 14 березня 2014 Поділитись Опубліковано: 14 березня 2014 (змінено) MegaMaks, если распашные ворота открываются наружу линейные привода монтируются в проем и заужают его на 350 мм. Есть возможность закрепить привода в верхнюю трубу каркаса ворот и "проскакивать" машиной под ними, но при высоте створки 1800 мм. внедорожник не проскочит. Если речь идет о открытии створки на 130-140 градусов, то рассматривайте подземную автоматику Frog Саме, но это очень дорогое удовольствие - к стоимости автоматики необходимо добавить обустройство дренажа, заливку корпусов для двигателей и переделку ворот под подземные привода. С помощью дополнительного набора шестерен подземные привода могут открыть створку на 180 градусов. Расположение ворот за проемом как на фотографии. Принципиальную схему прокладки кабелей приложил, не обязательно укладывать ПВС, можно заменить на любой по вкусу электрика, главное использовать многожильный кабель и не превышать сечение кабеля, указанное в схеме. Змінено 14 березня 2014 користувачем Вратарь добавил фотографии Посилання на коментар Поділитися на інших сайтах More sharing options...
Вратарь Опубліковано: 14 березня 2014 Поділитись Опубліковано: 14 березня 2014 Героям слава! Посилання на коментар Поділитися на інших сайтах More sharing options...
Plushkin Опубліковано: 16 березня 2014 Поділитись Опубліковано: 16 березня 2014 и не превышать сечение кабеля, указанное в схеме Я сколько у себя в Чернигове не спрашиваю 0,5 провод - вечно его нет. Приходится на 0,75 фотики тулить. Добавлено через 4 минуты Я б радив кроно1. Краще без вимикачів кінцевих положень. Нещодавно пошкодував, ща теж так порадив своєму клієнту - не врахував, що в нього двір ще не готовий. Змонтував автоматику, а упори стирчать із землі сантиметрів на 40 - отаке горе. Аби була з кінцевиками можна було попрацювати на них, а вже в майбутньому налаштувати їх так, щоб упор спрацьовував раніше кінцевиків. Чи можливо, Ви маєте на увазі, що Кроно2 навіть з викрученими (чи відключеними) кінцевиками, щоб вони не встигали спрацювати - все одно гірше Кроно1 ? Посилання на коментар Поділитися на інших сайтах More sharing options...
Вратарь Опубліковано: 16 березня 2014 Поділитись Опубліковано: 16 березня 2014 Я сколько у себя в Чернигове не спрашиваю 0,5 провод - вечно его нет. Приходится на 0,75 фотики тулить. Для фотоэелементов можно использовать кабель 4х0,75 мм., но это секрет, иначе питание будут подводить монолитом 3х2,5 мм.))) Посилання на коментар Поділитися на інших сайтах More sharing options...
Plushkin Опубліковано: 16 березня 2014 Поділитись Опубліковано: 16 березня 2014 Что значит "будут" :D, я в прошлом году уже дважды мучился с таким "у нас везде такой лежит". С тех пор вожу с собой соединители, чтоб переходить с кабеля на кабель. Посилання на коментар Поділитися на інших сайтах More sharing options...
muvic Опубліковано: 16 березня 2014 Поділитись Опубліковано: 16 березня 2014 Plushkin, у таких випадках знімає проблему відрізок труби чи арматури, який приварюється до стулки знизу. І тимчасовий упор з відрізку труби у землі. Як готовий нуль двору - просто відрізається зайве. Посилання на коментар Поділитися на інших сайтах More sharing options...
Stroite Опубліковано: 18 березня 2014 Поділитись Опубліковано: 18 березня 2014 могу рассказать про каме и найс. для распашки каме кроно1 - сейчас самый оптимум по цене, но это линейный привод, значит, надо смотреть на то, как установлены ворота. если они посредине кирпичного столба - то линейный привол не подойдет - надо ставить рычажку. далее - каме кроно1 - комплект без концевиков, т.е. надо будет делать упоры - вопрос решаемый и не особо заметен. если брать комплект с концевиками - то уже совсем другой прайс. итак, далее - есть распашка фирмы найс, но она нервно курит в сторонке по сравнению с каме. при работе слышны технологические шумы и имеет место быть неравномерная работа приводов - с подергиванием. такая же хрень наблюдается на автоматике типа каме - домустар, прмостар и лайнстар - тоже шумит. но типа "каме", хотя вот мы ставили примостар - были траблы с платой управления. в-общем, автор, дайте фото ворот ваших и места крепления к столбам. можно будет предметнее обсудить Что же это за советы безграмотные? Есть море видео в инете с реальными инструкциями производителей. Может лучше их изучать? Зачем так шарлатанить? Однозначно ставить надо Свинги ДОрхана, просты, надежны, испытаны временем и выгодны по себестоимости и монтажу. Цена+качество = лучший выбор. Посилання на коментар Поділитися на інших сайтах More sharing options...
muvic Опубліковано: 18 березня 2014 Поділитись Опубліковано: 18 березня 2014 Что же это за советы безграмотные? Есть море видео в инете с реальными инструкциями производителей. Может лучше их изучать? Зачем так шарлатанить? Однозначно ставить надо Свинги ДОрхана, просты, надежны, испытаны временем и выгодны по себестоимости и монтажу. Цена+качество = лучший выбор. значить так, чудо у реп'яхах. вкажіть чітко, де саме "советы безграмотные". вимагаю. інакше - буду вимушений усіма способами "попусткати" не тільки дурьханівську продукцію, але й спам-ботів з цієї напівдебільної компанії. повірте, це мені під силу. я дуже багато консультую людей, і на питання про дурьхан дипломатично переводжу розмову на інше. тепер буду вимушений розповідати про них усю правду. 1 Посилання на коментар Поділитися на інших сайтах More sharing options...
Вратарь Опубліковано: 18 березня 2014 Поділитись Опубліковано: 18 березня 2014 я дуже багато консультую людей, і на питання про дурьхан дипломатично переводжу розмову на інше. тепер буду вимушений розповідати про них усю правду. Я сразу говорю, что российские ворота дерьмового качества, к чему эта дипломатия? Посилання на коментар Поділитися на інших сайтах More sharing options...
muvic Опубліковано: 18 березня 2014 Поділитись Опубліковано: 18 березня 2014 Я сразу говорю, что российские ворота дерьмового качества, к чему эта дипломатия? Ну я дуже добра людина, характер у мене м'який та покладистий, погляд дуже доброзичливий. Тому не можу сказати слово "дерьмового"... Можу тільки так:" уся без виключення продукція торговельної марки дурьхан - гівно. Персонал, який там працює - некомпетентний, за винятком прибиральниць, вони ж менеджери клінінгових послуг.". Хоча, мушу визнати, є у димерці один товар, на який слід звернути увагу - відходи та браковані панелі. З них місцеві мешканці будують сарайчики. Відходи та брак на дурьхані - чудової якості, саме такі, які й повинні бути відходи. А от решта продукції - паРаша. 2 Посилання на коментар Поділитися на інших сайтах More sharing options...
sah79 Опубліковано: 20 березня 2014 Поділитись Опубліковано: 20 березня 2014 Можу тільки так:" уся без виключення продукція торговельної марки дурьхан - гівно. Персонал, який там працює - некомпетентний, за винятком прибиральниць, вони ж менеджери клінінгових послуг.". Я б перефразував би: Єдині нормальні менеджери на "дурьхані"-менеджери з клінінгових послуг. П.С- я не воротчик ,але досвід спілкування з тими космонавтами маю. 3 Посилання на коментар Поділитися на інших сайтах More sharing options...
guivan Опубліковано: 20 березня 2014 Поділитись Опубліковано: 20 березня 2014 Добрий день підкажіть будь-ласка де можна скачати повну інструкцію по установці Krono - 2? Збираю відомості для установки Дякую Посилання на коментар Поділитися на інших сайтах More sharing options...
Рекомендовані повідомлення
Створіть акаунт або увійдіть у нього для коментування
Ви маєте бути користувачем, щоб залишити коментар
Створити акаунт
Зареєструйтеся для отримання акаунта. Це просто!
Зареєструвати акаунтУвійти
Вже зареєстровані? Увійдіть тут.
Увійти зараз