pr@ktik Опубліковано: 24 травня 2012 Поділитись Опубліковано: 24 травня 2012 Можно. Но тогда надо делать 3 двери, не очень нравится. Хотя если это все влияет на надежность конструкции, буду делать 3 или 4. двери можно и две, вопрос - удобен ли будет доступ к полкам (средняя часть будет закрыта на половину )? Посилання на коментар Поділитися на інших сайтах More sharing options...
ddd3 Опубліковано: 29 травня 2012 Поділитись Опубліковано: 29 травня 2012 Подскажите сколько будут стоить двери раздвижная система на этот шкаф купе размер 2440 на 1117мм с фото печатью на стекле 4мм Посилання на коментар Поділитися на інших сайтах More sharing options...
ddd3 Опубліковано: 30 травня 2012 Поділитись Опубліковано: 30 травня 2012 Ответил в личку. Ребята а куда в киеве можно обратиться чтоб собрали две двери для моего шкафа купе с полноцветной печатью сами напечатали на стеклах дали направляющие верхнюю и нижнию комплект роликов пыльники и так далее чистый размер проема шкафа 2440*1117мм где эти кабинеты специализирующиеся на данном виде деятельности Посилання на коментар Поділитися на інших сайтах More sharing options...
glumanes Опубліковано: 31 травня 2012 Поділитись Опубліковано: 31 травня 2012 Ребята а куда в киеве можно обратиться чтоб собрали две двери для моего шкафа купе с полноцветной печатью сами напечатали на стеклах дали направляющие верхнюю и нижнию комплект роликов пыльники и так далее чистый размер проема шкафа 2440*1117мм где эти кабинеты специализирующиеся на данном виде деятельности Так а Вы сами соберите, там ничего сложного нет) Одеваете уплотнитель на стекло, профиль на уплотнитель и все) Посилання на коментар Поділитися на інших сайтах More sharing options...
Мышка Опубліковано: 1 червня 2012 Поділитись Опубліковано: 1 червня 2012 Мне в квартиру нужен угловой шкаф-купе, еще не решили - как поступить - покупать готовый, или делать на заказ. Что посоветуете, кто у нас продает в Киеве недорогие (оносительно) такие шкафы? Или таки лучше заказать? Посилання на коментар Поділитися на інших сайтах More sharing options...
mebli-land Опубліковано: 1 червня 2012 Поділитись Опубліковано: 1 червня 2012 Угловой шкаф-купе трудно найти готовый таких размеров как вам бы захотелось. Но поискать стоит (может и есть где). Если найдете, узнайте цену и сравните ее с заказным шкафом-купе. Для просчета скиньте размеры и пожелания и все будет ясно. Посилання на коментар Поділитися на інших сайтах More sharing options...
Smelyy Опубліковано: 3 червня 2012 Поділитись Опубліковано: 3 червня 2012 Вот и у меня появился замечательный шкаф. Шкаф очень красивый, ожидания мои оправданы, сделано всё хорошо, за что спасибо Роме Fly Wind и его персоналу Фасады крашенный МДФ, система направляющих Top line от Hettich. а крашенный мдф местный или привозной? какая ширина шкафа? Посилання на коментар Поділитися на інших сайтах More sharing options...
pavme Опубліковано: 5 червня 2012 Поділитись Опубліковано: 5 червня 2012 планируем самостоятельно сделать шкаф-купе размером 2400*1700*600, хотелось услышать мнения профессионалов по поводу размещения полок и крепежа выдвижных ящиков... Посилання на коментар Поділитися на інших сайтах More sharing options...
mebli-land Опубліковано: 5 червня 2012 Поділитись Опубліковано: 5 червня 2012 1. Я так понимаю это полноценный шкаф-купе. Где цоколь шкафа или он дном будет лежать просто на полу? 2. Радиусные полки вы будете крепить одной стороной к стойки а второй? К стене? Эстетичней зделать заднюю стенку из ДСП и добавить козырек. 3. Левую секцию (там где ящики, сделайте меньше шириной чем правую. Иначе когда поставите раздвижную систему, ящики не откроются. 4. Ну и крепеж ящиков. Ставте телескопические направляющие и будет гуд! Удачи 1 Посилання на коментар Поділитися на інших сайтах More sharing options...
Fly Wind Опубліковано: 5 червня 2012 Поділитись Опубліковано: 5 червня 2012 добавьте цоколь (и ноги регулируемые). по полкам - делайте как удобно. по ящикам - при такой ширине не экономьте на направляющих + часть с ящиками должна быть меньше по ширине, иначе ящики не откроются (в дверь ударятся) Посилання на коментар Поділитися на інших сайтах More sharing options...
Гася Опубліковано: 6 червня 2012 Поділитись Опубліковано: 6 червня 2012 Я хочу заказать шкаф встроенный с зеркальными дверями в прихожую. Внутри наверное только полочки, потому что вешалка не поместится как мне сказали. Размеры: высота 265, ширина 130, глубина 48. После этого сообщения поступило несколько предложений по цене от 3 до почти 6 тыс. грн. Выбрали оптимальное по цене и отзывам на форуме. Вот что получилось: Я раньше не заказывала шкафов и тем более встроенных, но представление было немного другое. Как минимум мне не хватает полосок по бокам, там где двери примыкают к стене. Или может я много хочу за эти деньги? Посилання на коментар Поділитися на інших сайтах More sharing options...
mebli-land Опубліковано: 6 червня 2012 Поділитись Опубліковано: 6 червня 2012 Фальши по контуру желательны и для эстетического вида, да и от щеток остаются полоски (щетки пыль собирают и отбивают на обои). Тем более что по количеству материала, затраченного на полки....там оставался остаток на эти фальши. 1 Посилання на коментар Поділитися на інших сайтах More sharing options...
Гася Опубліковано: 15 червня 2012 Поділитись Опубліковано: 15 червня 2012 Фальши по контуру желательны и для эстетического вида, да и от щеток остаются полоски (щетки пыль собирают и отбивают на обои). Тем более что по количеству материала, затраченного на полки....там оставался остаток на эти фальши. В общем как всегда исполнители экономят везде где можно. Шкаф делал glumanes и рекомендовать его я не могу (в стиле О.Фреймут)) А подойти к делу более ответственно, получил бы еще пару заказов от меня и рекомендации всем моим друзьям и знакомым. Может это мне так везет или на самом деле все так работают? Если сравнить, например с Израилем, так там если исполнитель араб - дело дрянь - сделает все что вы хотите но лишь бы как, главное чтоб деньги получить, а после хоть потоп. А если еврей, то прежде всего думает о своей репутации, сделает все как самому себе, чтоб его еще раз позвали в случае чего и рассказали о нем всем кому можно. Там весь подобный бизнес строится исключительно на рекомендациях. У нас есть такие? Или "это фантастика, сынок"! Мне подобные не попадались, а жаль. Посилання на коментар Поділитися на інших сайтах More sharing options...
Мебляр Опубліковано: 15 червня 2012 Поділитись Опубліковано: 15 червня 2012 Если сравнить, например с Израилем, так там если исполнитель араб - дело дрянь - сделает все что вы хотите но лишь бы как, главное чтоб деньги получить, а после хоть потоп. А если еврей, то прежде всего думает о своей репутации, сделает все как самому себе, чтоб его еще раз позвали в случае чего и рассказали о нем всем кому можно. Там весь подобный бизнес строится исключительно на рекомендациях. Ну с евреями понятно, заказы есть, живут хорошо, а как же арабы??? Если весь подобный бизнес (а точнее ремесло) строится исключительно на рекомендациях. Делают плохо, рекомендаций нет, а откуда заказы??? Посилання на коментар Поділитися на інших сайтах More sharing options...
glumanes Опубліковано: 15 червня 2012 Поділитись Опубліковано: 15 червня 2012 В общем как всегда исполнители экономят везде где можно. Шкаф делал glumanes и рекомендовать его я не могу (в стиле О.Фреймут)) А подойти к делу более ответственно, получил бы еще пару заказов от меня и рекомендации всем моим друзьям и знакомым. Может это мне так везет или на самом деле все так работают? Если сравнить, например с Израилем, так там если исполнитель араб - дело дрянь - сделает все что вы хотите но лишь бы как, главное чтоб деньги получить, а после хоть потоп. А если еврей, то прежде всего думает о своей репутации, сделает все как самому себе, чтоб его еще раз позвали в случае чего и рассказали о нем всем кому можно. Там весь подобный бизнес строится исключительно на рекомендациях. У нас есть такие? Или "это фантастика, сынок"! Мне подобные не попадались, а жаль. Вы делаете поспешные выводы Мне не жаль лишних планок, но они там лишние и лишними будут зазоры и щели между стеной и планками, а эстетикой там и не пахнет Если Вы конечно настаиваите, можно их установить, от Вас требуется только позвонить мне и сказать об этом. Мы экономим исключительно Ваши деньги Встроенный шкаф влечет значительно больше трудозатрат, при меньшем денежном обороте. Достаточно много фирм, которые вообще не делают встроенных шкафов по 3тыс.,а делают исключительно корпусные по 6 тыс. Такие ребята не занимаются экономикой) Посилання на коментар Поділитися на інших сайтах More sharing options...
AlSkil Опубліковано: 18 червня 2012 Поділитись Опубліковано: 18 червня 2012 планируем самостоятельно сделать шкаф-купе размером 2400*1700*600, хотелось услышать мнения профессионалов по поводу размещения полок и крепежа выдвижных ящиков... ЛОгично еще опустить выдвижные ящики на пол. Для чего там внизу открытое пространство? Сдержимое выдвижных ящиков легче обозревать. Добавлено через 5 минут Я раньше не заказывала шкафов и тем более встроенных, но представление было немного другое. Как минимум мне не хватает полосок по бокам, там где двери примыкают к стене. Или может я много хочу за эти деньги? Тщательнее надо подходить к формулировке заказа, тем более если ранее не заказывали. Денег эти планки мало стоят, если материала не было впритык. Да и работы их поставить не много. Просто Вы не учли и Вам не подсказали. А вот вешалки для плечиков вероятно все же можно было сделать , выдвижные такие, как в офисной мебели встречается при малой глубине, они бывают разной глубины. А цена похоже, что гуманная. Добавлено через 15 минут , так там если исполнитель араб - дело дрянь - сделает все что вы хотите но лишь бы как, главное чтоб деньги получить, а после хоть потоп. А если еврей, то прежде всего думает о своей репутации, сделает все как самому себе, чтоб его еще раз позвали в случае чего и рассказали о нем всем кому можно. Слышал байку, что в аэропорту Бенгурион есть большой плакат с афоризмом (без претензии на точность цитаты) - "ты, вновь прибывший еврей, не надейся на шару, здесь все такие же как ты" Это о бракоделах арабах и умелых евреях. Философ учил нас - "бытие определяет сознание". А цепочки рекомендаций "из рук в руки" рвутся частенько, может кризис сказывается на участниках отдельной цепочки негативно, а может естественные окончания. Не зря же есть реклама. А планки Вы можете попросить доустановить, там ведь нет выдвижных ящиков в шкафу, правда? Небольшой ущерб дизайну, но это пустяк как по мне. Можно даже сделать эти планки из другого материала , потоньше чем ЛДСП (что именно не соображу сразу), если Вас беспокоит возможное замусоливание обоев в процессе... В общем , это житейская философия - правильно формулировать желания, как скаазл герой Гарри Олдмана в фильме "Трасса 66" после того как другой герой попал под колеса фуры, досадуя, что минутой раньше столкнулся на своем авто с велосипедом (на велосипеде ехал" волшебник" Гарри Олдман) и высказав в досаде пожелание - "Как бы я хотел чтобы этого не случилось" , ну волшебник и откатил машину времени на 5 минут назад, столкновение с великом не произошло, а вот фура... Посилання на коментар Поділитися на інших сайтах More sharing options...
Гася Опубліковано: 18 червня 2012 Поділитись Опубліковано: 18 червня 2012 Вы делаете поспешные выводы Мне не жаль лишних планок, но они там лишние и лишними будут зазоры и щели между стеной и планками, а эстетикой там и не пахнет Если Вы конечно настаиваите, можно их установить, от Вас требуется только позвонить мне и сказать об этом. Мы экономим исключительно Ваши деньги Встроенный шкаф влечет значительно больше трудозатрат, при меньшем денежном обороте. Достаточно много фирм, которые вообще не делают встроенных шкафов по 3тыс.,а делают исключительно корпусные по 6 тыс. Такие ребята не занимаются экономикой) Я не специалист по производству мебели. Вы же даже не спросили нужны эти планки или нет. Двери ж как-то примыкают без зазоров. И шкаф стоил все же не 3 тыс, а 3700. Вопрос ко всем специалистам: действительно ли встроенный шкаф стоит дороже при одинаковых условиях - размеры, материалы? Там же дсп раза в 3 больше используется. Добавлено через 13 минут Тщательнее надо подходить к формулировке заказа, тем более если ранее не заказывали. То есть мне перед заказом нужно изучить все нюансы производства мебели? Тогда зачем у кого-то заказывать, если я сама смогу потом все сделать. А планки Вы можете попросить доустановить, там ведь нет выдвижных ящиков в шкафу, правда? Небольшой ущерб дизайну, но это пустяк как по мне. Ящички должны были быть для обуви, но потом оказалось что глубины не хватает и привезли обычную полочку, которая на пол ставится вместо их, при чем погнутую, но я заметила позже. Опять же вопрос: как при приеме заказа было можно установить ящики, а потом стало не можно? Да и чтоб доустановить, там надо все переделывать. В общем , это житейская философия - правильно формулировать желания, как скаазл герой Гарри Олдмана в фильме "Трасса 66" после того как другой герой попал под колеса фуры, досадуя, что минутой раньше столкнулся на своем авто с велосипедом (на велосипеде ехал" волшебник" Гарри Олдман) и высказав в досаде пожелание - "Как бы я хотел чтобы этого не случилось" , ну волшебник и откатил машину времени на 5 минут назад, столкновение с великом не произошло, а вот фура... Я видела это кино, но это крайний вариант. Посилання на коментар Поділитися на інших сайтах More sharing options...
Curly Опубліковано: 18 червня 2012 Поділитись Опубліковано: 18 червня 2012 а крашенный мдф местный или привозной? какая ширина шкафа? если ещё актуален вопрос, отвечаю - мдф местный,ширина 2,5 м. Посилання на коментар Поділитися на інших сайтах More sharing options...
Мышка Опубліковано: 24 червня 2012 Поділитись Опубліковано: 24 червня 2012 Более менее определились с формой шкафа. Хотелось бы примерно оценить размер затрат Расстояние от угла до проема двери 180 см, эти полочки можно сделать и поуже. С другой стороны 220 - и эти непонятно торчащие ящички можно просто сделать дверцей шкафа с консолью. Материал - МДФ, честно говоря, я только начала интересоваться, из чего делаются такие шкафы, поэтому немного "плаваю" в материалах. Кто может предложить что толковое? Посилання на коментар Поділитися на інших сайтах More sharing options...
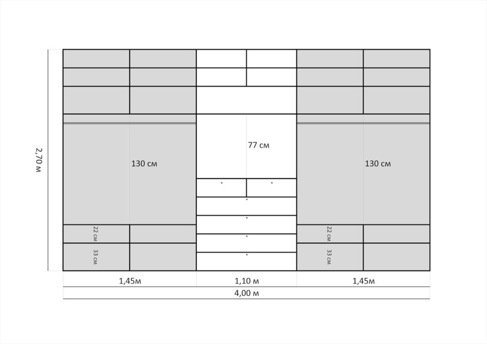
Shuriko Опубліковано: 24 червня 2012 Поділитись Опубліковано: 24 червня 2012 Доброго всем дня! Не могли бы уважаемые производители сориентировать меня по цене по такому варианту шкафа. П.С. Залитое серым - раздвижные двери, центральная часть в дверях не нуждается. П.П.С. Советы по улучшению и испралению багов приветствуются. Посилання на коментар Поділитися на інших сайтах More sharing options...
Borisg Опубліковано: 24 червня 2012 Поділитись Опубліковано: 24 червня 2012 Под полкам, которые над трубой(вешалом), и над серединой тоже, надо будет ребра жесткости делать. А глубина какая планируется? Посилання на коментар Поділитися на інших сайтах More sharing options...
Игорь&Ира Опубліковано: 24 червня 2012 Поділитись Опубліковано: 24 червня 2012 Доброго всем дня! Не могли бы уважаемые производители сориентировать меня по цене по такому варианту шкафа. П.С. Залитое серым - раздвижные двери, центральная часть в дверях не нуждается. П.П.С. Советы по улучшению и испралению багов приветствуются. Мой шкаф-купе в гостинной. Посилання на коментар Поділитися на інших сайтах More sharing options...
Shuriko Опубліковано: 24 червня 2012 Поділитись Опубліковано: 24 червня 2012 Под полкам, которые над трубой(вешалом), и над серединой тоже, надо будет ребра жесткости делать. А глубина какая планируется? Глубина около 60 см Добавлено через 17 минут Мой шкаф-купе в гостинной. А можно увидеть фото и стоимость? П.С. Дополнительная информация производителям: 1. Зеркало нужно только на одной из 4-х дверей. 2. Можно не делать заднюю стенку. П.П.С. Спасибо откликнувшимся! Посилання на коментар Поділитися на інших сайтах More sharing options...
mebli-land Опубліковано: 25 червня 2012 Поділитись Опубліковано: 25 червня 2012 А остальные 3 двери что будет? От этого сильно зависит стоимость. Посилання на коментар Поділитися на інших сайтах More sharing options...
Shuriko Опубліковано: 25 червня 2012 Поділитись Опубліковано: 25 червня 2012 А остальные 3 двери что будет? От этого сильно зависит стоимость. Остальные три двери глухие, без ничего. По поводу рёбер жёсткости: там где вешалки они не будут проблемой (спасибо за подсказки), а вот что делать там, где будет телевизор? Поставит посередине хромированную трубку? Посилання на коментар Поділитися на інших сайтах More sharing options...
Рекомендовані повідомлення
Створіть акаунт або увійдіть у нього для коментування
Ви маєте бути користувачем, щоб залишити коментар
Створити акаунт
Зареєструйтеся для отримання акаунта. Це просто!
Зареєструвати акаунтУвійти
Вже зареєстровані? Увійдіть тут.
Увійти зараз