Черепашко Опубліковано: 24 жовтня 2010 Поділитись Опубліковано: 24 жовтня 2010 Всем привет Мы - молодая семья, папа-мама и дитё 10лет, вконец устали от городской суеты и приняли решение бежать 8-), благо участок имеется, в +\-15 км от Киева, на границе с. Бобрица, ближе к Белогородке. Понятное дело что школа/работа/магазины не дадут сильно убежать от мегаполиса, но перспектива не наблюдать каждое утро снятые дворники с машины в компании шприцов и "желтого снега" воодушевляют на постройку домишки ;) бюджет - как у всех, "студенческий"(шутка), энтузиазма - полные штаны. С прошлой зимы на семейном совете начали обсуждать проекты, материалы и концепции счастья, на данный момент вырисовывается следующий набор: -Дом 8х9м, 2 полноценных этажа(сначала думали над мансардным...но об этом позже) -Материал стен - газобетон+клей(по рекомендации лучших собаководов форума:D) -Крыша - как в армии,в смысле чем проще и дешевле - тем лучше... т.к. проводили исследования(об этом тоже немного позже...)2х скатная, материал - ондулин(предположительно) -Отопление либо классика(котел+газ), либо электроконвекторы по стенам, на момент вселения, а там посмотрим. -Вода от скважины дружественного(стопудово) соседа. Для рисования использовали програмку roomarrenger. Вот что получилось(не судите строго, т.к. проф. строителей и архитекторов у нас в семье пока нет) 1 - тамбур, "раздевалка" 2 - кухня 3 - гостинная 4 - коридор 5 - лесница 6 - ванная 7 - туалет 8 - "гостевая" спальня/кабинет для папы 9 - запасная комната 10 - спальня взрослых 11 - коридор 12 - спальня ребенки 13 - туалет 14 - пока будет кладовая, но сразу заложена возможность переделки под душ/ванную. принимается здоровая(и не очень) критика проекта, материалов и предложения от исполнителей, так как все вакансии пока открыты. 5 Посилання на коментар Поділитися на інших сайтах More sharing options...
СТРОИМ ВСЕ Опубліковано: 24 жовтня 2010 Поділитись Опубліковано: 24 жовтня 2010 Начинаете правильно, не переживайте все у Вас выйдет! Посилання на коментар Поділитися на інших сайтах More sharing options...
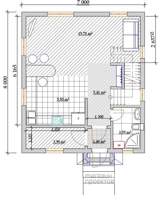
Черепашко Опубліковано: 25 жовтня 2010 Автор Поділитись Опубліковано: 25 жовтня 2010 ...ночью не спалось - все смотрел на лесницу. Не мало ли места под нее оставляем? Каких размеров должна быть, что б была удобной? Подскажите кто соображает в данном вопросе Посилання на коментар Поділитися на інших сайтах More sharing options...
Vasiliev Опубліковано: 25 жовтня 2010 Поділитись Опубліковано: 25 жовтня 2010 ...ночью не спалось - все смотрел на лесницу. Не мало ли места под нее оставляем? Каких размеров должна быть, что б была удобной? Подскажите кто соображает в данном вопросе Ширина пролета хорошая, а поскольку дом с полноценным вторым этажом, то двухмаршевая нормально станет - кровля ее подпирать не будет. Вам проще было бы снести проект в ветку "Обсуждаем проекты домов", там вам архитекторы все по полочкам разложат. Да, еще - рекомендация архитекторов, чтобы лестницу на второй этаж сразу было видно из входа, в идеале, чтоб и направление движение по ней было без поворотов, как вошли. Но это такое... У нас очень похожая семейная история. Только мы менее оптимистичны в плане затрат на строительство, поэтому делаем жилым пока только первый этаж, консервируя второй. Удачи вам и вдохновения! Фундамент до морозов зальем? Посилання на коментар Поділитися на інших сайтах More sharing options...
Черепашко Опубліковано: 25 жовтня 2010 Автор Поділитись Опубліковано: 25 жовтня 2010 Ширина пролета хорошая, а поскольку дом с полноценным вторым этажом, то двухмаршевая нормально станет - кровля ее подпирать не будет. Вам проще было бы снести проект в ветку "Обсуждаем проекты домов", там вам архитекторы все по полочкам разложат. Да, еще - рекомендация архитекторов, чтобы лестницу на второй этаж сразу было видно из входа, в идеале, чтоб и направление движение по ней было без поворотов, как вошли. Но это такое... У нас очень похожая семейная история. Только мы менее оптимистичны в плане затрат на строительство, поэтому делаем жилым пока только первый этаж, консервируя второй. Удачи вам и вдохновения! Фундамент до морозов зальем? С интересом следим за Вашей стройкой, а оптимизма у нас в меру - тоже рассматриваем вариант вселится на 1 этаж. Да, это не совсем правильно и работяги потом могут подубить ремонт первого этажа,делая второй...но сейчас мы живем в 1к квартире, где на троих 18м.кв комнаты..так что даже один этаж нам покажется дворцом Фундамент залить, думаю, получится. Еще вопрос смогут ли строители зимой строить из газоблока+"зимний"клей. По теории клей работает до -10С...короче тут тоже вопрос открыт Посилання на коментар Поділитися на інших сайтах More sharing options...
Vasiliev Опубліковано: 25 жовтня 2010 Поділитись Опубліковано: 25 жовтня 2010 С интересом следим за Вашей стройкой, а оптимизма у нас в меру - тоже рассматриваем вариант вселится на 1 этаж. Да, это не совсем правильно и работяги потом могут подубить ремонт первого этажа,делая второй...но сейчас мы живем в 1к квартире, где на троих 18м.кв комнаты..так что даже один этаж нам покажется дворцом Фундамент залить, думаю, получится. Еще вопрос смогут ли строители зимой строить из газоблока+"зимний"клей. По теории клей работает до -10С...короче тут тоже вопрос открыт Думаю, вам фундамента хватит. Пока проект, пока разметка, копка и заливка... За ноябрь дай Бог чтоб успели. А декабрь-февраль я б лучше подождал бы. Коробка делается очень быстро - имхо больше нервов и денег потратите на зимнее строительство. Фундамента у вас кубов 30 фундамента выйдет где-то, так что работы на Ноябрь достаточно. Какое перекрытие собираетесь делать? Неясно какие внутренние стены несущие, если есть таковые. И где-то обещали размышления по поводу мансарды vs полноценный второй этаж. Посилання на коментар Поділитися на інших сайтах More sharing options...
Черепашко Опубліковано: 25 жовтня 2010 Автор Поділитись Опубліковано: 25 жовтня 2010 Vasiliev несущая стена - та, которая справа от входной двери в дом. Она и на втором этаже так же проходит. По поводу мансардный vs полноценный свои соображения выскажу чуть позже, на работе по понедельникам тяжело А сколько примерно может стоить фундамент, если там 30кубов? Посилання на коментар Поділитися на інших сайтах More sharing options...
Телесистемы Опубліковано: 25 жовтня 2010 Поділитись Опубліковано: 25 жовтня 2010 Планировка совершенно некомфортная: коридор узкий. Лестница с полезной шириной пролета 40 см вообще ужасна. Кладовая на втором этаже - бред. Нет котельной или какого либо подсобного помещения на первом этаже.. ванная хозяйская на втором этаже должна быть, чтобы не бегать голым по дому из ванной в спальню это так, замечания с первого взгляда. зы: насчет скважины дружественного соседа: сегодня сосед дружественный, завтра продал, переехал, завещал и появился сосед вражественный, перекрыл вашу трубу и денег требует, что делать - бить свою скважину или идти к нему на поклон? зачем вам такие неожиданности? ззы: если вы еще не начали строится, то логичнее перенести тему в "обсуждения проектов" Посилання на коментар Поділитися на інших сайтах More sharing options...
Damiani Опубліковано: 25 жовтня 2010 Поділитись Опубліковано: 25 жовтня 2010 Черепашко, и у нас похожая на вашу ситуация Только кроме 10-летнего ре у нас еще в придачу двойняшки двухгодовалые. Присоединяюсь к вышесказанному - не спешите, обсудите проект в соседнем разделе. Дом - это очень серьезно;) Мы только фундамент залили, а сам дом начнем строить уже с весны. Посилання на коментар Поділитися на інших сайтах More sharing options...
Черепашко Опубліковано: 25 жовтня 2010 Автор Поділитись Опубліковано: 25 жовтня 2010 Планировка совершенно некомфортная: коридор узкий. Лестница с полезной шириной пролета 40 см вообще ужасна. Кладовая на втором этаже - бред. Нет котельной или какого либо подсобного помещения на первом этаже.. ванная хозяйская на втором этаже должна быть, чтобы не бегать голым по дому из ванной в спальню это так, замечания с первого взгляда. зы: насчет скважины дружественного соседа: сегодня сосед дружественный, завтра продал, переехал, завещал и появился сосед вражественный, перекрыл вашу трубу и денег требует, что делать - бить свою скважину или идти к нему на поклон? зачем вам такие неожиданности? ззы: если вы еще не начали строится, то логичнее перенести тему в "обсуждения проектов" Попробую по порядку: коридор в 1.5метра нас устраивает, оставляем. Лесница с пролетами - пока вопрос открыт, откуда получилась цифра 40см? Кладовая на втором этаже - в перспективе ванная(хозяйская, не переживайте)) ) пока, как я и писал, рассматривается вариант переезжать на 1 этаж. Кладовая на 1 этаже будет под лесницой,вход из кухни(просто не отобразил на рисунке) По поводу замечаний типа "бред". Что то мне подсказывает, что при разговоре в реале Вы бы были осторожнее в выражениях. Постарайтесь и в форуме сдерживатся,ок? Посилання на коментар Поділитися на інших сайтах More sharing options...
Татьяна5 Опубліковано: 25 жовтня 2010 Поділитись Опубліковано: 25 жовтня 2010 Лесница с пролетами - пока вопрос открыт, откуда получилась цифра 40см? если общая ширина 119 см - как Вы планируете туда площадку вписать? двухмаршевая точно не встанет, а если встранет - то у нее ширина ступени будет 40 см, как Телесистемы написал. ИМХО, лестница - вообще никуда не годиться Посилання на коментар Поділитися на інших сайтах More sharing options...
gambrina Опубліковано: 25 жовтня 2010 Поділитись Опубліковано: 25 жовтня 2010 Удачного строительства! Уверена, у Вас все получиться! По поводу проекта могу однозначно посоветовать, что котельня (хоз помещение) просто необходимо в доме! Можно совместить ванную и туалет, уменьшить гостевую, но выделить место для котельной. И еще лестница должна быть удобной (насколько это возможно), для удобной лестницы минимальный проем должен быть 1,8*2,2м. По собственному опыту (уже год живем в доме и доделываем внутрянку) могу сказать, что лучше вначале заселяться на второй этаж, а на первом только кухня. Потом меньше уборки и испорченого ремонта Особенно с санузлами, если нет возможности делать сразу 2, то вначале делайте на 2 этаже! 2 Посилання на коментар Поділитися на інших сайтах More sharing options...
K2 Опубліковано: 25 жовтня 2010 Поділитись Опубліковано: 25 жовтня 2010 1. непонятно как двухмаршевая лестница влезет в проем шириной 1190. 2. кухня очень маленькая, как я понял вы там еще и кушать собираетесь. 3. коридор узкий и темный раздвигайте наружные стены, будет тесно. на телесистемы не обижайтесь, он просто хотел высказаться коротко и по сути. объяснять почему бред - некогда всем. Посилання на коментар Поділитися на інших сайтах More sharing options...
kamin_2006 Опубліковано: 25 жовтня 2010 Поділитись Опубліковано: 25 жовтня 2010 ХОЧУ ПРЕДЛОЖИТЬ ТАКОЙ ПРОЕКТ, когда кухня совмещена с гостиной, создается больше пространства в доме (ссылка устарела) 1 Посилання на коментар Поділитися на інших сайтах More sharing options...
Dex-paketa Опубліковано: 25 жовтня 2010 Поділитись Опубліковано: 25 жовтня 2010 По поводу замечаний типа "бред". Что то мне подсказывает, что при разговоре в реале Вы бы были осторожнее в выражениях. Постарайтесь и в форуме сдерживатся,ок? С таким подходом Вам будет сложновато общаться на форуме. Для истинного форумчанина слово "бред" не вызывает негативные чувства. Будьте проще, это ж интернет ;) Посилання на коментар Поділитися на інших сайтах More sharing options...
Vasiliev Опубліковано: 25 жовтня 2010 Поділитись Опубліковано: 25 жовтня 2010 (змінено) Vasiliev несущая стена - та, которая справа от входной двери в дом. Она и на втором этаже так же проходит. По поводу мансардный vs полноценный свои соображения выскажу чуть позже, на работе по понедельникам тяжело А сколько примерно может стоить фундамент, если там 30кубов? C фундаментом все просто - все зависит от того, насколько вы собираетесь участвовать собственными ресурсами. Если грунты нормальные (т.е. мы не рассматриваем фундаментные подушки, сваи и т.д.) и фундамент мы будем делать ленточный монолитный с пятой и копать, сбивать опалубку, вязать каркас будем сами, то весь фундамент вам выйдет в тонну арматуры, 30-33 кубов бетона, пару кубов обрезной доски (тут зависит как лить будем) Грубо берем 8000+33*600+2*850 = 29 500 грн. В зависимости от основания, может понадобится машинка щебня фракции 5-20 за 1400 грн. Для подсыпки расходуем, естественно не всю машину, так что 1400 распределится как на стоимость фундамента, так и на стоимость, например, армопояса или отмостки. Если нанимаем людей, то они возьмут за куб работы из миксера 250-300 грн за куб (без земляных работ - установка опалубки, вязка, заливка, демонтаж опалубки). Итого имеем 29500 + 1400 + 30(платим по проекту а не по факту)*300= 39 900. Это как бы считал я. Свой фундамент я залил за 42 500. Строительная фирма средней руки вам это же сделает тыщ за 60 вообще без вашего участия. а вообще - делайте полноценный проект вначале, ибо все что выше, просто мои рассуждения, отталкиваясь от вашей планировки. Можете, конечно, на месте бетон делать - но очень не советую. Змінено 25 жовтня 2010 користувачем Vasiliev 2 Посилання на коментар Поділитися на інших сайтах More sharing options...
Потрошитель Опубліковано: 25 жовтня 2010 Поділитись Опубліковано: 25 жовтня 2010 Планировка совершенно некомфортная: коридор узкий. Лестница с полезной шириной пролета 40 см вообще ужасна. Кладовая на втором этаже - бред. Нет котельной или какого либо подсобного помещения на первом этаже.. ванная хозяйская на втором этаже должна быть, чтобы не бегать голым по дому из ванной в спальню это так, замечания с первого взгляда. Кроме этих замечаний добавил бы, что в небольшом доме не стоит делать много маленьких комнат, особенно на первом этаже. Мне понравилась планировка небольшого дома у Оптималиста. И дом у него не 8х9 как вы планируете, а 7х8(слегка аскетично). www.stroimdom.com.ua/forum/attachment.php?attachmentid=30595&d=1256727791 П.С. Илья, раздвигать наружные стены - раздвигать бюджет. П.П.С. Может ну его, этот газобетон с ондулином? Посилання на коментар Поділитися на інших сайтах More sharing options...
Hover Опубліковано: 25 жовтня 2010 Поділитись Опубліковано: 25 жовтня 2010 В попытках прогулке по 3D модели выяснилось следующие, при возведении данного сооружения руководствуясь эскизами приведенными в данной ветке форума можно сказать следующие, сразуже купить кувалду, для сноса, и расширение дверных проемов, и не только. С лестницей в обще пока непонятна, как ее вместить или как подойти с решением вопроса впихнуть лестницу в такие вот размеры представлены на эскизе, для меня остается загадкой. ps... Модель делалась из размеров представленных в эскизах как можно выразится 1:1. Второй этаж можно было б и не моделить все становится ясным глядя на первую модель. (простите за высказывание но это не дом с такими вот размерами). Посилання на коментар Поділитися на інших сайтах More sharing options...
Татьяна5 Опубліковано: 25 жовтня 2010 Поділитись Опубліковано: 25 жовтня 2010 о, придумала! 72 м2 площадь первого этажа с лестницей берете Авизо, ищите "продам 3К серии БПС", они по как раз по 72 м2 и зеркальной планировки, идете на просмотр = анализируете ощущения имхо, нельзя столько стен в таком метраже Посилання на коментар Поділитися на інших сайтах More sharing options...
K2 Опубліковано: 25 жовтня 2010 Поділитись Опубліковано: 25 жовтня 2010 П.П.С. Может ну его, этот газобетон с ондулином? нутышо, ведущий собаковод не простит тебе этого. Посилання на коментар Поділитися на інших сайтах More sharing options...
vickov Опубліковано: 25 жовтня 2010 Поділитись Опубліковано: 25 жовтня 2010 Под лестницу действительно мало места оставили. Если взять стандартную ступень хрущевки или высотки 150*300*110, то получается следующая картина. При высоте потолка 3 метра нужно 20 ступеней высотой 150мм. Можно, конечно и повыше, чем 150 но тогда лестница будет круче и ходить по ней не очень комфортно. Глубина ступени около 300 мм. Если площадка между маршами просто горизонтальная, то Вам нужно 3 метра на марш плюс ширина площадки. Ширина площадки желательна ширине ступени. Итого для лестницы нужно 4м*2м. Если на промежуточной площадке делать ступени, то в длину можно сократиться где-то до 2,8 метра. Но прямая площадка все равно комфортнее. Так что нужно думать над увеличением размеров по лестницу. Еще я бы кухню поменял местами с гостевой (в этом случае канализация станет компактней-все точки рядом) и объединил кухню с гостиной или оставил только часть перегородки, и то не во всю высоту. 1 Посилання на коментар Поділитися на інших сайтах More sharing options...
Черепашко Опубліковано: 25 жовтня 2010 Автор Поділитись Опубліковано: 25 жовтня 2010 1. непонятно как двухмаршевая лестница влезет в проем шириной 1190. 2. кухня очень маленькая, как я понял вы там еще и кушать собираетесь. 3. коридор узкий и темный раздвигайте наружные стены, будет тесно. на телесистемы не обижайтесь, он просто хотел высказаться коротко и по сути. объяснять почему бред - некогда всем. Да я и не обижаюсь, просто привык с пониманием ставится к "заскокам" окружающих, и надеюсь что к моим "заскокам" окружающие будут относится тоже лояльно;) 1.С лесницей есть одна хитрость на примете...сейчас попробую нарисовать. 2.Кухни в 9м.кв лично нашей семье достаточно, мы так думаем За последний год мы с рулеткой перемеряли все кухни/коридоры/комнаты у всех наших родственников и знакомых. У родителей,например, на кухне в 8.5м.кв. спокойно размещается мебель+посудомойка+плита, стол и 5 человек за ним. Раздвигать наружные стены крайне не хочется...на это свои причины(и финансовые в том числе) gambrina большое спасибо за идею с вселением на 2 этаж...как то не додумывались, а теперь, как минимум, обговорим на семейном совете kamin_2006 мы всячески стараемся уйти от варианта гостинная-кухня. Т.к. в гостинной оно все равно пахнет,гремит кастрюлями и тд. Это по опыту знакомых с такой планировкой квартир/домов Dex-paketa замечание принято Vasiliev спасибо за расклад по фундаменту, это уже что-то Я в план заложил +\-5тыс.уе...наверное не сильно и ошибся. Время покажет. Грунт у нас почти идиальный - 20см чернозема, дальше песок(опушка леса)...на глубине метр-полтора начинается плотная глина. Все соседние дома и домики строились, в основном, в 80-90х годах прошлого века, технологии и материалы те еще, и при этом ни один нигде не покосился, не сел. Так уверенно говорю потому что в этом дачном поселке провел почти все свое детство - в 20метрах от нашего участка дом моих родителей что дает дополнительные бонусы в виде сложить лопаты, протянуть электрику для строителей, воду и тд. Hover спасибо за 3д модель - прикольно Немного риторики: НУ ПОЧЕМУ 3комнатная ПБС в 74квадрата, с бонусами типа "пианино сверху/перфоратор снизу", с тараканами, неработающим лифтом, маразматическими бабушками у подьезда и бомжами в подвале - это ВЕСЧ, а аналогичный(примерно) по квадратуре даже одного этажа дом - сразу "не дом"(с) Я бывал и часто бываю в новеньком доме(150+метров), где и гостинная под 30, и кухня около 20м.кв. Мне там не так както...не мое. Красивое, прострное...но не мое(читай не нашесемейное). Через пару лет, когда достроим наш домик, ради хохмы выложу сюда планировку дома, в котором выросли много близких мне людей...это был сруб в Сибири, одноэтажный и площадью около 50м.кв. И буду с попкорном читать каменты "этонедом" 1 Посилання на коментар Поділитися на інших сайтах More sharing options...
Татьяна5 Опубліковано: 25 жовтня 2010 Поділитись Опубліковано: 25 жовтня 2010 Немного риторики: НУ ПОЧЕМУ 3комнатная ПБС в 74квадрата, с бонусами типа "пианино сверху/перфоратор снизу", с тараканами, неработающим лифтом, маразматическими бабушками у подьезда и бомжами в подвале - это ВЕСЧ, а аналогичный(примерно) по квадратуре даже одного этажа дом - сразу "не дом"(с) не знаю, значить я "Галя балувана", у меня тяжелейшее впечатление именно от планировки БПС, 3К, она такая же как на Вашем плане, только у Вас еще минимум 6м2 уйдет на лестницу и тамбур 1 Посилання на коментар Поділитися на інших сайтах More sharing options...
Телесистемы Опубліковано: 25 жовтня 2010 Поділитись Опубліковано: 25 жовтня 2010 По поводу замечаний типа "бред". Что то мне подсказывает, что при разговоре в реале Вы бы были осторожнее в выражениях. Постарайтесь и в форуме сдерживатся,ок? В ответ на ваш негатив, я все же предлагаю вам быть не столь поспешным, а еще сто раз взвесить все "за" и "против" и двести раз перелопатить проект и планировки.. На сегодня у вас кроме как вы выразились "энтузиазма" особо больше ничего нет - ни плотных знаний, ни финансов , а знаете сколько таких энтузиастов за четыре года прошло в разделе "как мы строимся" ??? процентов тридцать пропали на этапе фундамента, процентов десять пытаются продать свои корОбки (или коробкИ) , еще процентов десять - немного более успешны заселились и живут в недостроях, дышат бетонной пылью и ходят в уличный сортир. Теперь, что касается планировок: как говорила Надежда, и с ней я полностью согласен: виртуально походите, поживите виртуально хотя бы день в "своем" доме, войдите разденьтесь, вещи отнесите в гардероб, руки вымойте (ремарка: когда работаешь в саду или на участке - а это обязательный вариант даже если у вас есть прислуга и садовники - обязательно испачкаешься "от и до" и идти в рабочей одежде мыться через полдома весьма неудобно) сходите на кухню, стирку поставьте, белье на просушку достаньте, примите душ, спать уложите детей итд итп. ну и касательно шприцов и желтого снега.. у вас участок в закрытом котеджном городке? если нет, то желтый снег, пустые бутылки, мусор и алкаши под забором никуда не исчезнут, или вы думаете, что в селах проживает богема..? Высокий забор, ворота с автоматикой и выезд со своего участка практически всегда только на автомобилях - лично я остановился на таком варианте, хотя имею участок в Киеве и далеко не в самом плохом районе. 3 Посилання на коментар Поділитися на інших сайтах More sharing options...
Черепашко Опубліковано: 25 жовтня 2010 Автор Поділитись Опубліковано: 25 жовтня 2010 Телесистемы понимаю Ваше скептическое отношение к "еще одним энтузиастам". Ну не стану я рвать рубаху на груди и рассказывать сколько имеется знаний, а сколько бюджета. Время покажет кто из нас прав ;) По поводу шприцов,наполеннных желтым снегом;) - читайте выше, я этот дачный поселок(не село) знаю с самого его начала, от разбивки участков "колышками с веревочками" и до сегодня. Слава богу, пока ни наркоманов, ни алкашей в округе не наблюдалось. Самое большое ЧП на моей памяти - влезли зимой в нежилой дом, утащили бытовые вещи. Это за +\- 15 лет что помню. Все соседи давно знакомые, многие адекватные:D, некоторые - уже почти родственники. Так что с "желтыми шприцами", надеюсь, знакомы не будем Посилання на коментар Поділитися на інших сайтах More sharing options...
Рекомендовані повідомлення
Створіть акаунт або увійдіть у нього для коментування
Ви маєте бути користувачем, щоб залишити коментар
Створити акаунт
Зареєструйтеся для отримання акаунта. Це просто!
Зареєструвати акаунтУвійти
Вже зареєстровані? Увійдіть тут.
Увійти зараз