vickov Опубліковано: 28 серпня 2012 Поділитись Опубліковано: 28 серпня 2012 Вот очень неплохой проект с российского форума с теми же перечисленными помещениями.Но он гораздо компактней.и самое главное что все коммуникации находятся в одном месте.По моему Вирона его уже выкладывала. У меня еще компактнее планировка 1 Посилання на коментар Поділитися на інших сайтах More sharing options...
eam Опубліковано: 28 серпня 2012 Поділитись Опубліковано: 28 серпня 2012 У меня еще компактнее планировка компактнее, но что-то второго санузла и кладовок/гардеробных не наблюдается ;) Да и комната в 8 квадратов маловата. Или это гардеробная, тогда нету 3-ей спальни. При этом по общей площади дом такой же. Вобщем Федорович и lady Fenix скинули на мой взгляд очень неплохие проекты - сохранил себе. Посилання на коментар Поділитися на інших сайтах More sharing options...
vickov Опубліковано: 28 серпня 2012 Поділитись Опубліковано: 28 серпня 2012 компактнее, но что-то второго санузла и кладовок/гардеробных не наблюдается ;) Да и комната в 8 квадратов маловата. Или это гардеробная, тогда нету 3-ей спальни. При этом по общей площади дом такой же. Вобщем Федорович и lady Fenix скинули на мой взгляд очень неплохие проекты - сохранил себе. У меня в большой спальне будет шкаф-купе на всю стену. Сан-узел (2-й горшок) будет в котельной. Посилання на коментар Поділитися на інших сайтах More sharing options...
-enjoy- Опубліковано: 28 серпня 2012 Поділитись Опубліковано: 28 серпня 2012 У меня в большой спальне будет шкаф-купе на всю стену. Сан-узел (2-й горшок) будет в котельной. Все хорошо, но походы на кухню через весь дом...не ахти. имхо Ежели с кухни окно с дверью,то как-то разгладит неудобства. Посилання на коментар Поділитися на інших сайтах More sharing options...
vickov Опубліковано: 28 серпня 2012 Поділитись Опубліковано: 28 серпня 2012 Все хорошо, но походы на кухню через весь дом...не ахти. имхо Ежели с кухни окно с дверью,то как-то разгладит неудобства. Будет выход на терассу на границе кухни с гостинной. Я соглсен, что кухня должна быть поближе. Но, пусть она будет чуть подальше в своем доме, чем поближе на верхних этажах без лифта. 1 Посилання на коментар Поділитися на інших сайтах More sharing options...
Федорович Опубліковано: 29 серпня 2012 Поділитись Опубліковано: 29 серпня 2012 Да-да, я его там и нашла потом, чуть позже. А вот www.forumhouse.ru/threads/92337/#post-3700519 - источник, который Митридат "подрихтовала". Разница в санузле. У Митридат он поделен на 2 части - кусочек на кладовую, а остаток на туалет гостевой. Обратите внимание на размеры.это другой проект. Добавлено через 1 минуту У меня еще компактнее планировка Нет предела совершенству.В принципе известен случай когда даже из одной шкурки было пошито 7 шапок. Посилання на коментар Поділитися на інших сайтах More sharing options...
Lady Fenix Опубліковано: 29 серпня 2012 Поділитись Опубліковано: 29 серпня 2012 В принципе известен случай когда даже из одной шкурки было пошито 7 шапок. Больших семь шапок из овцы - не выкроишь никак!:D Посилання на коментар Поділитися на інших сайтах More sharing options...
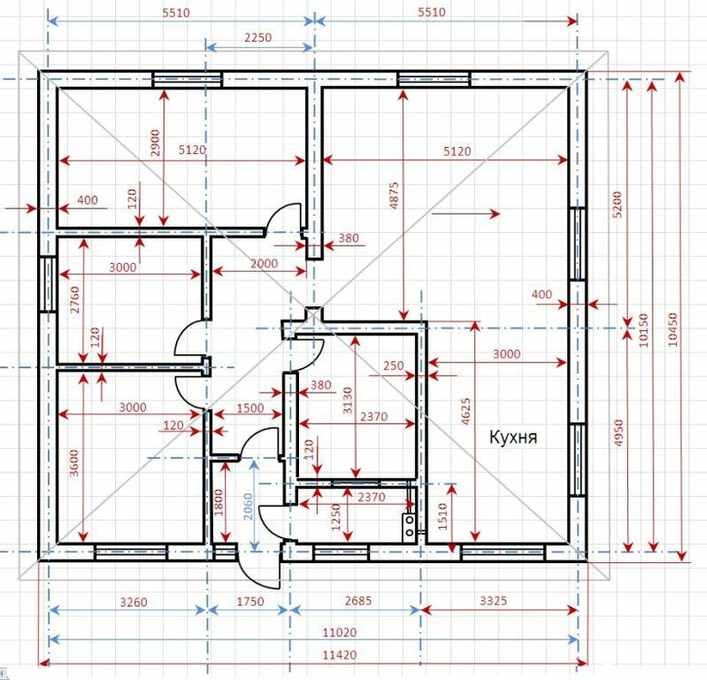
-ЭкоДом- Опубліковано: 1 вересня 2012 Поділитись Опубліковано: 1 вересня 2012 www.stroimdom.com.ua/forum/showthread.php?t=101331&page=11 хочу критики Посилання на коментар Поділитися на інших сайтах More sharing options...
ksenik Опубліковано: 25 листопада 2012 Поділитись Опубліковано: 25 листопада 2012 Пересмотрела несметное количество одноэтажников, очень приглянулся вот этот www.extradom.pl/projekt-domu-as-2-BSA1662?lustro=0 . Скорее всего на нем и остановлюсь, только немного переработаю под себя, добавлю санузел возле спален, немного уменьшу размеры, возможно поменяю кухню и гостиную местами, и выход на террасу будет сбоку, т.к. у меня фасад строго южный. И в спальнях соответсвенно окна будут не на север, а по бокам - на запад и восток. Наверно еще уберу одну колонну и угол, который выходит на двор будет глухим. Проект подкупил полным разделением проходной и приватной зон, т.к. во многих проектах заходишь из тамбура и сразу сбоку комната, мне неуютно. Вообще сложно было найти одноэтажник с южным фасадом и удобным расположением комнат. Добавлено через 2 минуты Ух ты, только сейчас увидела, что этот проект обсуждали на прошлой странице, не зря я его нашла.... Добавлено через 32 минуты А после 3д тура я вообще в ауте.... Посилання на коментар Поділитися на інших сайтах More sharing options...
GekaOn Опубліковано: 26 листопада 2012 Поділитись Опубліковано: 26 листопада 2012 Всем привет! Может, кому то попадался на глаза проект дома следующего типа : одноэтажный, но с мансардой под свободную планировку. Т.е., допустим, первый этаж - 3 комнаты, кухня, ванная, котельная... А мансарда чисто на будущее, под свободную планировку . Буду очень благодарен за ответы, т.к. на том же сайте "Архона" такого не встречал. Посилання на коментар Поділитися на інших сайтах More sharing options...
Lady Fenix Опубліковано: 26 листопада 2012 Поділитись Опубліковано: 26 листопада 2012 Всем привет! Может, кому то попадался на глаза проект дома следующего типа : одноэтажный, но с мансардой под свободную планировку. Т.е., допустим, первый этаж - 3 комнаты, кухня, ванная, котельная... А мансарда чисто на будущее, под свободную планировку . Буду очень благодарен за ответы, т.к. на том же сайте "Архона" такого не встречал. Ищите польские сайты, где в выборке проектов есть формулировка "Под адаптацию" Сейчас пример покажу proekty.muratordom.com.ua/proekt_usadebnyi-dom,367,0,0.htm?c=53&page=4 смотрите, там есть фраза "Возможность индивидуальной адаптации чердака площадью около....." вот примерно по таким запросам и ищите Мне, допустим, очень нравится вот такой (ссылка устарела) там под проектом посмотрите варианты проекта, они по высоте, наклону крыши совершенно идентичны - 30 градусов, но в одном варианте чердак холодный, а в другом жилой. 1 Посилання на коментар Поділитися на інших сайтах More sharing options...
vladimir_arch Опубліковано: 26 листопада 2012 Поділитись Опубліковано: 26 листопада 2012 Каркасный одноэтажный дом. Общая - 105, жилая - 73 - неплохое соотношение. Посилання на коментар Поділитися на інших сайтах More sharing options...
ДОКС Опубліковано: 26 листопада 2012 Поділитись Опубліковано: 26 листопада 2012 Каркасный одноэтажный дом. Общая - 105, жилая - 73 - неплохое соотношение. Тяжеловато будет - на три спальные комнаты один сан.узел... Посилання на коментар Поділитися на інших сайтах More sharing options...
Hover Опубліковано: 26 листопада 2012 Поділитись Опубліковано: 26 листопада 2012 А как вам такой домик. ps.... домик не мой, проектом не владею. Посилання на коментар Поділитися на інших сайтах More sharing options...
Lady Fenix Опубліковано: 26 листопада 2012 Поділитись Опубліковано: 26 листопада 2012 Тяжеловато будет - на три спальные комнаты один сан.узел... Таки-да. У нас в трешке сейчас, естественно, один. На пять человек. Слава Богу туалет отдельно. Так очередь. А тут... Ну, если человека три живет и жизненный график разный, то можно еще как-то разминуться. To Hover А как вам такой домик. ps.... домик не мой, проектом не владею Красиво. Но - это не одноэтажка, а тема про них. Второе - люкарны. Я, конечно, не спец, но их обустройство требует затрат и мастерства. Возможно, даже бОльшего, чем обычное мансардное окно. Хотя ну очень гламурно. Сама на такие домики заглядываюсь. Вот, просто классика: Посилання на коментар Поділитися на інших сайтах More sharing options...
Studio Z500 Опубліковано: 26 листопада 2012 Поділитись Опубліковано: 26 листопада 2012 (змінено) Всем привет! Может, кому то попадался на глаза проект дома следующего типа : одноэтажный, но с мансардой под свободную планировку. Т.е., допустим, первый этаж - 3 комнаты, кухня, ванная, котельная... А мансарда чисто на будущее, под свободную планировку . Буду очень благодарен за ответы, т.к. на том же сайте "Архона" такого не встречал. посмотрите z10 - много мансардны подвариантов z500.com.ua/ru/project/z10 Если из Киева, то можем свозить показать один такой дом, он как раз строиться под Киевом, с. Счастливое а также - внимание на подварианты: 8 Удачного выбора! Змінено 18 липня 2013 користувачем Оз 8 1 Посилання на коментар Поділитися на інших сайтах More sharing options...
Lady Fenix Опубліковано: 26 листопада 2012 Поділитись Опубліковано: 26 листопада 2012 посмотрите z10 - много мансардны подвариантов z500.com.ua/ru/project/z10 Если из Киева, то можем свозить показать один такой дом, он как раз строиться под Киевом, с. Счастливое А вот если бы у вас были вот такие варианты www.galeriadomow.pl/projekty-domow/projekt-dom-przy-zamkowej.html - этот меня больше интересует, так как 4ре комнаты www.galeriadomow.pl/projekty-domow/projekt-dom-przy-jesionowej.html Симметричные, с отдельной кухней.... Посилання на коментар Поділитися на інших сайтах More sharing options...
AndyAntonov Опубліковано: 27 листопада 2012 Поділитись Опубліковано: 27 листопада 2012 Общая - 105, жилая - 73 - неплохое соотношение. Дефицит нежилой площади — не есть хорошо. Тут даже шкаф с верхней одеждой негде прислонить. Авангардизм с полностью изолированной топочной мне тоже не понятен. Про один с/у, да ещё и совмещённый, до меня написали. Есличё, у меня есть опыт проживания в квартире с «неплохим соотношением»: 74 общей при 55 жилых. Посилання на коментар Поділитися на інших сайтах More sharing options...
GekaOn Опубліковано: 27 листопада 2012 Поділитись Опубліковано: 27 листопада 2012 посмотрите z10 - много мансардны подвариантов z500.com.ua/ru/project/z10 Если из Киева, то можем свозить показать один такой дом, он как раз строиться под Киевом, с. Счастливое а также - внимание на подварианты: z500.com.ua/ru/project/z51 z500.com.ua/ru/project/z23 z500.com.ua/ru/project/z8 z500.com.ua/ru/project/z106 z500.com.ua/ru/project/z140 z500.com.ua/ru/project/z169 z500.com.ua/ru/project/z98 z500.com.ua/ru/project/z5 z500.com.ua/ru/project/z2 Удачного выбора! z500.com.ua/ru/project/z106 Этот понравился , но хотелось бы немного просторнее хотя бы одну спальню. Там максимум 13,3, я хочу около 20. Аттиковую стенку тоже поднял бы сантиметров на 80-100 ЗЫ Я из Одессы, а так, с удовольствием съездил бы Посилання на коментар Поділитися на інших сайтах More sharing options...
Studio Z500 Опубліковано: 27 листопада 2012 Поділитись Опубліковано: 27 листопада 2012 z500.com.ua/ru/project/z106 Аттиковую стенку тоже поднял бы сантиметров на 80-100 ЗЫ Я из Одессы, а так, с удовольствием съездил бы мин. высота аттиковой стены у нас - 1м, многие клиенты поднимают её до 1,2 Добавлено через 7 минут А вот если бы у вас были вот такие варианты www.galeriadomow.pl/projekty-domow/projekt-dom-przy-zamkowej.html - этот меня больше интересует, так как 4ре комнаты www.galeriadomow.pl/projekty-domow/projekt-dom-przy-jesionowej.html Симметричные, с отдельной кухней.... как Вам такой вариант z500.com.ua/ru/project/z2 Посилання на коментар Поділитися на інших сайтах More sharing options...
Lady Fenix Опубліковано: 27 листопада 2012 Поділитись Опубліковано: 27 листопада 2012 как Вам такой вариант z500.com.ua/ru/project/z2 Я ж и говорю - симметрия в основе всего z500.com.ua/ru/project/z9 вот этот будет получше, только мансардный он Посилання на коментар Поділитися на інших сайтах More sharing options...
Kox4 Опубліковано: 28 листопада 2012 Поділитись Опубліковано: 28 листопада 2012 Всем привет! Может, кому то попадался на глаза проект дома следующего типа : одноэтажный, но с мансардой под свободную планировку. Т.е., допустим, первый этаж - 3 комнаты, кухня, ванная, котельная... А мансарда чисто на будущее, под свободную планировку . Буду очень благодарен за ответы, т.к. на том же сайте "Архона" такого не встречал. У меня сосед так строится. Просто крышу делает с высокими скатами и потолок первого этажа с расчетом на высокие нагрузки в перспективе. Ну и еще в планировке первого этажа предусмотрел, где потом лестницу ставить. И все. Когда денежки появятся, в мансарде сделает каркасные стены и пирог крыши, где необходимо. 1 Посилання на коментар Поділитися на інших сайтах More sharing options...
Gonchik Опубліковано: 28 листопада 2012 Поділитись Опубліковано: 28 листопада 2012 У меня сосед так строится. Просто крышу делает с высокими скатами и потолок первого этажа с расчетом на высокие нагрузки в перспективе. Ну и еще в планировке первого этажа предусмотрел, где потом лестницу ставить. И все. Когда денежки появятся, в мансарде сделает каркасные стены и пирог крыши, где необходимо. Я строился с такими вводными - 2 спальни+гост+кух.+кладовка+с/у на первом. Правда потом убедили в том, что адаптацию лучше сделать сразу, чтобы не жить в сраче. деньги позволяли. А так тоже изначально планировал мансарду на потом. Проект - (ссылка устарела) Посилання на коментар Поділитися на інших сайтах More sharing options...
Деревянщик Опубліковано: 3 грудня 2012 Поділитись Опубліковано: 3 грудня 2012 Каркасный одноэтажный дом. Общая - 105, жилая - 73 - неплохое соотношение. О качестве таких "проектов" говорит хотя бы такой момент, как то из чего сделано перекрытие в каркаснике. Перекрытие из деревянных балок красивое в интерьере, но не дешевое и не практичное удовольствие. На фото примеры решения перекрытий с помощью джойстов и балок. Понятно, теоретически можно и железобетон на перекрытие уложить, но будет ли это рационально и экономично - большой вопрос. Посилання на коментар Поділитися на інших сайтах More sharing options...
Lady Fenix Опубліковано: 8 грудня 2012 Поділитись Опубліковано: 8 грудня 2012 Сегодня наткнулась на просто неимоверный проект. Возможно, в нем нет ничего сверхъестественного, но, на мой взгляд, он объединил в себе футуристические устремления к круглым формам молодых архитекторов и тягу к классике творцов старой закалки. Выкладываю все фото, среди них под номером 3 - уже реальный дом, построенный в Подмосковье. Ссылка на описание проекта ml-dom.ru/projects/flat/23716/ Мне интересно, а наши архитекторы могут изобразить нечто подобное и насколько сложно это сделать, какие нюансы есть в подобных нестандартных проектах? Надеюсь на ответ архитекторов, присутствующих на этом форуме и их критику конструктивную и эстетическую. 2 Посилання на коментар Поділитися на інших сайтах More sharing options...
Рекомендовані повідомлення
Створіть акаунт або увійдіть у нього для коментування
Ви маєте бути користувачем, щоб залишити коментар
Створити акаунт
Зареєструйтеся для отримання акаунта. Це просто!
Зареєструвати акаунтУвійти
Вже зареєстровані? Увійдіть тут.
Увійти зараз