Юлия_дизайнер Опубліковано: 14 березня 2013 Поділитись Опубліковано: 14 березня 2013 Предлагаю вспомнить как называется тема,сюда вообще то люди заходят по другому поводу. Федорович, а есть планировка с размерами или ссылка на этот проект? Спасибо! Посилання на коментар Поділитися на інших сайтах More sharing options...
Vikki Опубліковано: 14 березня 2013 Поділитись Опубліковано: 14 березня 2013 нетривиальный латвийский проект - нас вдохновлял, когда мы планировали внешний вид дома www.ivd.ru/document.xgi?id=5684 страничка арх-ра и картинки в лучшем качестве тут archiprofi.ru/portfolio/31317/44714/?TYPE=32418&ID=221874 1 Посилання на коментар Поділитися на інших сайтах More sharing options...
Федорович Опубліковано: 14 березня 2013 Поділитись Опубліковано: 14 березня 2013 Федорович, а есть планировка с размерами или ссылка на этот проект? Спасибо! на каком то из этих сайтов,точно не помню www.gussek-haus.de/ www.fertighaus-weiss.de/ www.keitel-haus.de/ www.schwoerer.de/ (ссылка устарела) www.baufritz.de/ www.fingerhaus.de/ 2 Посилання на коментар Поділитися на інших сайтах More sharing options...
SkydanceR Опубліковано: 18 березня 2013 Поділитись Опубліковано: 18 березня 2013 Понравился вот этот проект (очень специфическая планировка участка, идеально подходит): www.budnik.ua/catalog/proekti_domov/odnoetazhnyie_doma/proekt_doma_h-216/ Не подскажете, кто автор? Маловероятно, что это самостоятельная разработка конторы, на чьем сайте я его нашел. Я уже для себя много правок внёс, но хотелось бы услышать краткую (если в этой теме нельзя, создам отдельную) критику откровенно слабых мест. www.namoprojektas.lt/lt/namu-projektai/?id=121&pav=&plotas_nuo=&plotas_iki=&floors[]=1&search=Ie%C5%A1koti 1 Посилання на коментар Поділитися на інших сайтах More sharing options...
grushabrat Опубліковано: 18 березня 2013 Поділитись Опубліковано: 18 березня 2013 (змінено) Значит на кухне-студии в частном доме можно? Например в таком. akvilonpro.com.ua/ua/docs/proektu-domov/150-200-m2/proekt-kotedzha-bliznecu-175-m2.html Я имею ввиду, устанавливать газовое оборудование. Про кухню в запрете не сказано. А раз не запрещено, значит можно? Добавлено через 8 минут Drosselbeere, Здравствуйте! По поводу размещения газового оборудования. Например, кухня-студия под запрет не попадает. А значит - разрешено. Правильно? В таком доме, я могу разместить газовый котел на кухне? Там дверей и окон, хоть отбавляй.akvilonpro.com.ua/ua/docs/proektu-domov/150-200-m2/proekt-kotedzha-bliznecu-175-m2.html Змінено 18 березня 2013 користувачем grushabrat Дополнение. Посилання на коментар Поділитися на інших сайтах More sharing options...
Drosselbeere Опубліковано: 18 березня 2013 Поділитись Опубліковано: 18 березня 2013 grushabrat, можно на кухне расположить газовый котел 1 Посилання на коментар Поділитися на інших сайтах More sharing options...
akvilonpro Опубліковано: 25 березня 2013 Поділитись Опубліковано: 25 березня 2013 Газовый котел без проблем размещается газовщиками в кухне при наличии вытяжного вентиляционного канала. В данном проекте он есть. Посилання на коментар Поділитися на інших сайтах More sharing options...
ZIZU Опубліковано: 25 березня 2013 Поділитись Опубліковано: 25 березня 2013 Понравился вот этот проект (очень специфическая планировка участка, идеально подходит): www.budnik.ua/catalog/proekti_domov/odnoetazhnyie_doma/proekt_doma_h-216/ Не подскажете, кто автор? Маловероятно, что это самостоятельная разработка конторы, на чьем сайте я его нашел. Я уже для себя много правок внёс, но хотелось бы услышать краткую (если в этой теме нельзя, создам отдельную) критику откровенно слабых мест. прикольный, если бы было соток 30ть ? был бы для меня актуальный... Посилання на коментар Поділитися на інших сайтах More sharing options...
Игорь Андреев Опубліковано: 28 березня 2013 Поділитись Опубліковано: 28 березня 2013 (ссылка устарела) тут смешанный тип Посилання на коментар Поділитися на інших сайтах More sharing options...
vladimir_arch Опубліковано: 19 квітня 2013 Поділитись Опубліковано: 19 квітня 2013 проект одноэтажного дома с плоской крышей Площадь 100 метров, предназначен скорей для жизни молодой пары, не обременённой детьми и устоявшимся бытом. Не прагматичен. Посилання на коментар Поділитися на інших сайтах More sharing options...
OlegArh Опубліковано: 19 квітня 2013 Поділитись Опубліковано: 19 квітня 2013 (ссылка устарела) тут смешанный типПустышка! Только картинки... А как можно выбрать по картинке, даже без планировки? Посилання на коментар Поділитися на інших сайтах More sharing options...
-ЭкоДом- Опубліковано: 20 квітня 2013 Поділитись Опубліковано: 20 квітня 2013 прикольный, если бы было соток 30ть ? был бы для меня актуальный... Не совсем так. И на 12-15 можно спокойно разместить Посилання на коментар Поділитися на інших сайтах More sharing options...
ZIZU Опубліковано: 22 квітня 2013 Поділитись Опубліковано: 22 квітня 2013 Не совсем так. И на 12-15 можно спокойно разместить разместить то можно, только как оно будет выглядеть в живую ? хочется и сад посадить и, что бы дворик был... Посилання на коментар Поділитися на інших сайтах More sharing options...
-ЭкоДом- Опубліковано: 22 квітня 2013 Поділитись Опубліковано: 22 квітня 2013 разместить то можно, только как оно будет выглядеть в живую ? хочется и сад посадить и, что бы дворик был... Так в чем проблема- 12 соток это 1200 м кв. Пятно застройки дома- 250 кв м максимум. Еще метров 100 займет отступ от границ участка. На 750 оставшихся метрах можно посадить десяток деревьев, 2 сотки газона( маловато- зато без проблем содержать в идеальном состоянии) и на дворик метров 200-300 останется Добавлено через 2 минуты Вот пример ekodom.net.ua/index.php?page=innergallery&id=363 . Был у меня такой домик- на 6 сотках Посилання на коментар Поділитися на інших сайтах More sharing options...
ZIZU Опубліковано: 22 квітня 2013 Поділитись Опубліковано: 22 квітня 2013 Добавлено через 2 минуты Вот пример ekodom.net.ua/index.php?page=innergallery&id=363 . Был у меня такой домик- на 6 сотках а можно увидеть планировку и габариты ? Посилання на коментар Поділитися на інших сайтах More sharing options...
-ЭкоДом- Опубліковано: 22 квітня 2013 Поділитись Опубліковано: 22 квітня 2013 Поищу копию техпаспорта. Проекта не было Примерные габариты- длина 26 ( с бассейном) ширина 12. Участок - длина 46 м ширина- в узкой части( бассейн и парковка ) 12 м. Широкая сторона( сад и газон) 32 м. Форма участка- неровный параллелипипед 1 Посилання на коментар Поділитися на інших сайтах More sharing options...
vickov Опубліковано: 26 липня 2013 Поділитись Опубліковано: 26 липня 2013 Что-то тема затихла... Посилання на коментар Поділитися на інших сайтах More sharing options...
ZIZU Опубліковано: 26 липня 2013 Поділитись Опубліковано: 26 липня 2013 Что-то тема затихла... угу, все кости прогревают на пляжах перед сезоном... ))) Посилання на коментар Поділитися на інших сайтах More sharing options...
Darkdwarf Опубліковано: 26 липня 2013 Поділитись Опубліковано: 26 липня 2013 Что-то тема затихла... не сезон трепа в сети))) все строят))))) Посилання на коментар Поділитися на інших сайтах More sharing options...
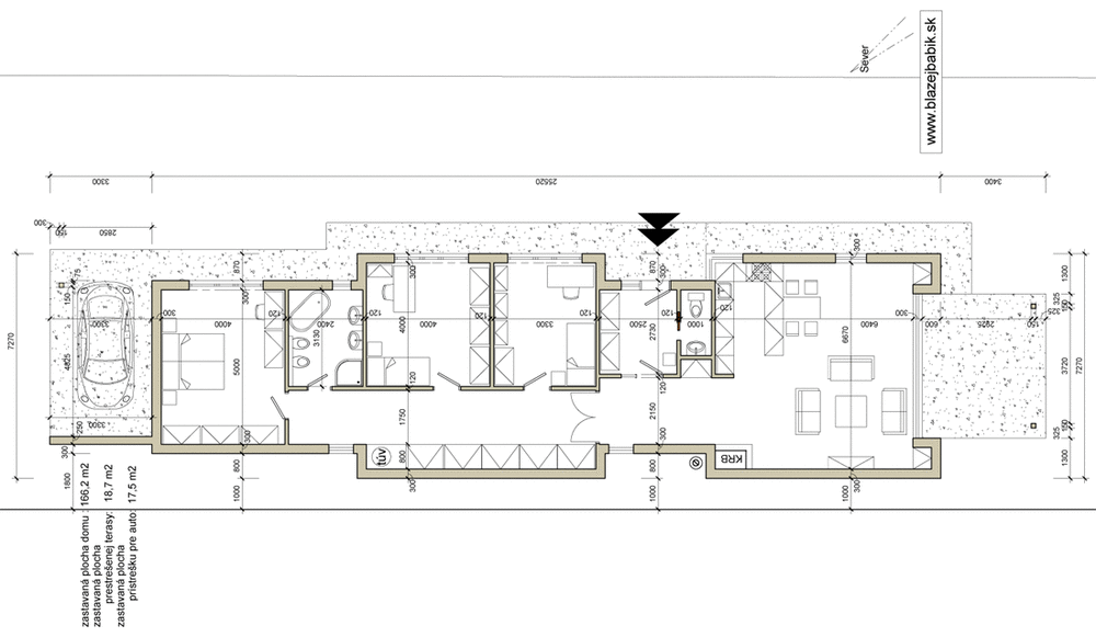
Lady Fenix Опубліковано: 4 серпня 2013 Поділитись Опубліковано: 4 серпня 2013 Кто строит, а кто еще в процессе накопления капитала:D Исходя из последних "веяний" в наших семейных обстоятельствах и прицеле на узкий и длинный участок, у меня организовалась подборка домов-"сосулек". Буду выкладывать постепенно, чтобы "тема не заглохла". Одноэтажка EPSILON На 4 человека Площадь: 166m2 (дом) + 18m2 (для авто) + 19m2 (на террасу) Высота : +3,24 m 3 Посилання на коментар Поділитися на інших сайтах More sharing options...
Федорович Опубліковано: 4 серпня 2013 Поділитись Опубліковано: 4 серпня 2013 очень симпатичный проект,особенно под узкий участок. 1 Посилання на коментар Поділитися на інших сайтах More sharing options...
Игорь 2009 Опубліковано: 4 серпня 2013 Поділитись Опубліковано: 4 серпня 2013 Вот еще вариант. Задача - небольшой, современный энергоэффективный деревянный дом на 6 сотках. Ширина - макс 9 м (согласно нормам ДБН относительно противопожарных разрывов). Посилання на коментар Поділитися на інших сайтах More sharing options...
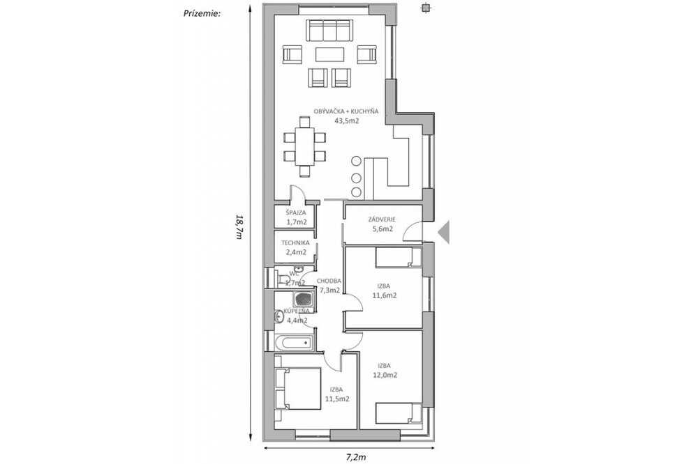
Lady Fenix Опубліковано: 4 серпня 2013 Поділитись Опубліковано: 4 серпня 2013 Вот еще один узенький. Хорош для участков, вытянутых по северной и южной сторонам. С южным фасадом. С севера только 2 окошка. Аля энергоэффективный дом. Человек - 4 жилая площадь 102 m2 застройка 129 m2 высота 4 m крыша 22 градуса Нравится, что проектное бюро разработало сразу варианты современного оформления. 4 Посилання на коментар Поділитися на інших сайтах More sharing options...
Darkdwarf Опубліковано: 5 серпня 2013 Поділитись Опубліковано: 5 серпня 2013 18 квадратов для авто - мало... площадка 3 на 6 - или в таких пледелах - полностью впритык получается, ни двери не раскрыть, не обойти машину нолрмально Посилання на коментар Поділитися на інших сайтах More sharing options...
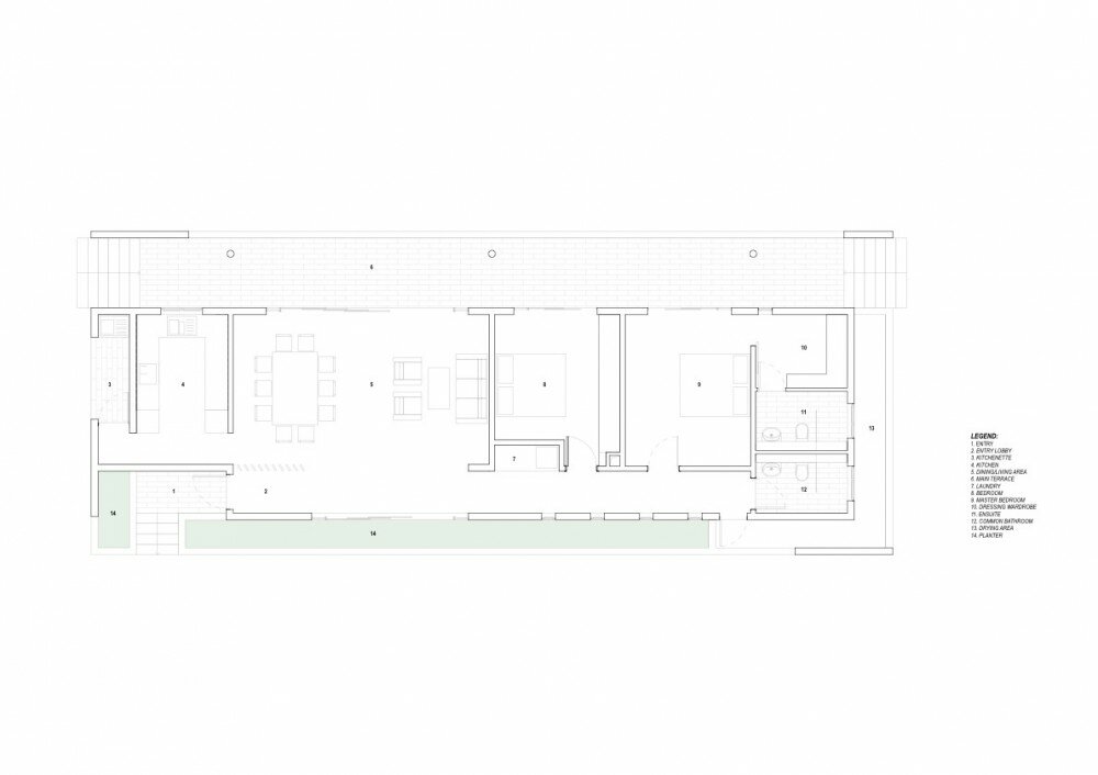
Darkdwarf Опубліковано: 5 серпня 2013 Поділитись Опубліковано: 5 серпня 2013 так, может баян, и уже выкладывали - но мне такой проект понравился... Посилання на коментар Поділитися на інших сайтах More sharing options...
Рекомендовані повідомлення
Створіть акаунт або увійдіть у нього для коментування
Ви маєте бути користувачем, щоб залишити коментар
Створити акаунт
Зареєструйтеся для отримання акаунта. Це просто!
Зареєструвати акаунтУвійти
Вже зареєстровані? Увійдіть тут.
Увійти зараз