iamHelga Опубліковано: 4 березня 2011 Автор Поділитись Опубліковано: 4 березня 2011 При проектировании нашего домика нам сразу было ясно как лучше сориентировать дом, потому что мы много лет летом жили на этом самом месте и уже знали, где и когда бывает солнце, куда нам удобно выходить в сад, смотреть в окна, прямо из которых можно собирать абрикосы. Посилання на коментар Поділитися на інших сайтах More sharing options...
iamHelga Опубліковано: 4 березня 2011 Автор Поділитись Опубліковано: 4 березня 2011 (змінено) Первоначально предполагалось сделать мансардный (третий) этаж над всем пятном дома, но мы отказались от этой мысли. Когда проектируешь в трехмерной программе, и синхронно с планами строишь обьем, сразу видны соотношения обьемов и масштаб. Зато мы получили на мансардном этаже террасу, с которой потрясающий вид на Днепр. Змінено 4 березня 2011 користувачем iamHelga 1 Посилання на коментар Поділитися на інших сайтах More sharing options...
архітектор Опубліковано: 4 березня 2011 Поділитись Опубліковано: 4 березня 2011 У нас обуховский газобетон толщиной 300мм, марки М600, морозостойкость 25 циклов. То есть, если за одну нашу зиму и капризное межсезонье случится, например, 5 циклов замораживания-размораживания, то лет на пять его незащищенного хватит. 300мм газобетона на обычном растворе без утепления недостаточно для обеспечения нормативного коеффициента сопротивления теплопередаче. Кроме того, в незащищенной стене из газобетона швы являются мостиками холода. В течении 45 дней с декабря по начало февраля вел наблюдения за расходом газа и наружной температурой в своем доме из газобетона. (На Осокорках, газобетон Н+Н Экстра марки 400, толщиной 365 мм, на клей, без утепления). В течении этого времени было 5 (!) переходов через "0". Когда температура воздуха на улице поднималась и опускалась через 0 градусов Цельсия. Но (!) - это не означает, что было 5 циклов замораживания-размораживания. Это вода могла замерзнуть-размерзнуться. А стройматериал, любой, хоть кирпич, хоть Поротерм, хоть газобетон - не может иметь 100% водонасыщенность. В зависимости от количества влаги в материале, в атмосфере, дельты температуры и длительности воздействия может произойти или не произойти цикл морозоустойчивости. 1 Посилання на коментар Поділитися на інших сайтах More sharing options...
iamHelga Опубліковано: 4 березня 2011 Автор Поділитись Опубліковано: 4 березня 2011 В течении 45 дней с декабря по начало февраля вел наблюдения за расходом газа и наружной температурой в своем доме из газобетона. (На Осокорках, газобетон Н+Н Экстра марки 400, толщиной 365 мм, на клей, без утепления). В течении этого времени было 5 (!) переходов через "0". Когда температура воздуха на улице поднималась и опускалась через 0 градусов Цельсия. Но (!) - это не означает, что было 5 циклов замораживания-размораживания. Это вода могла замерзнуть-размерзнуться. А стройматериал, любой, хоть кирпич, хоть Поротерм, хоть газобетон - не может иметь 100% водонасыщенность. В зависимости от количества влаги в материале, в атмосфере, дельты температуры и длительности воздействия может произойти или не произойти цикл морозоустойчивости. Здравствуйте, коллега. Я думаю, что переходов через ноль градусов за 45 суток на самом деле было гораздо больше, особенно сейчас, когда днем уже выше нуля, а ночью еще мороз. Кроме того, газобетон обладает предельно высоким коэффициентом гигроскопичности для материалов наружних стен-14 процентов (для них она допустима до 15 процентов). При замораживании-размораживании ухудшаются не только прочностные, но теплотехнические показатели газобетона, чего можно избежать, защитив его. А паропроницаемость толстых стен даже из соответствующих материалов невелика, так что эффективней просто чаще проветривать. Посилання на коментар Поділитися на інших сайтах More sharing options...
архітектор Опубліковано: 4 березня 2011 Поділитись Опубліковано: 4 березня 2011 Здравствуйте, коллега. Я думаю, что переходов через ноль градусов за 45 суток на самом деле было гораздо больше, особенно сейчас, когда днем уже выше нуля, а ночью еще мороз. Кроме того, газобетон обладает предельно высоким коэффициентом гигроскопичности для материалов наружних стен-14 процентов (для них она допустима до 15 процентов). При замораживании-размораживании ухудшаются не только прочностные, но теплотехнические показатели газобетона, чего можно избежать, защитив его. А паропроницаемость толстых стен даже из соответствующих материалов невелика, так что эффективней просто чаще проветривать. Не совсем понял что Вы имели ввиду? Вы хотите сказать, что за эту зиму газобетон, лежащий даже не в стене, не прогрунтованый сразу же после укладки снаружи в 2 слоя, не пошпаклеваный, просто блок - он пережил большое количество заморозок-разморозок? Сомневаюсь. Если же говорить про конкретно мою стену, то и так понятно, согласно инструкции производителя, что газобетон надо грунтовать после возведения стен. Причем грунтовкой, специально для ячеистых бетонов. Потом еще раз грунтовать и шпатлевать, специальной шпатлевкой, можно СТ-24. Или Вы считаете, что нужно обклеить газобетон, положенный не на клей, а на цементно-песчаный раствор пенопластом? И таким образом защитить его от влаги? 1 Посилання на коментар Поділитися на інших сайтах More sharing options...
Белая Рысь Опубліковано: 4 березня 2011 Поділитись Опубліковано: 4 березня 2011 Мне приходилось за 5 лет пребывания на этом форуме много раз ссылаться на авторитет Силаенкова, признанного гуру газобетонного строительства еще несколько десятилетий назад, в советские времена. Без ссылок на этот авторитет не обходилась ни одна защита диссертаций, связанных с пористыми бетонами, которые даже в Украине появились не вчера и даже не позавчера. Физика пористого тела, в частности, газобетона, имеет свою особенность, которая сводит все разговоры о замерзании паров внутри стены и разрывании конструкции к детским разговорам. Эта особенность заключается в том, что замерзающие пары заполняют не полностью весь объем одной пОры, а только какую-то часть. А часть остается свободной для осуществления воздухообмена даже при морозе. И чем более одинаковы по размеру пОры пористого бетона, тем равномернее протекает этот процесс. Современные виброударные технологии позволяют получать пористую массу с одинаковыми по размеру порами. Это, например, новые линии Хебель Маса Хенке, которые работают по немецким технологиям в Беларуси, и другие. Естественно, старый Обуховский газобетон лишен не только точной геометрии, но и равномерного распределения пор, поскольку производился не по виброударной технологии, а на устаревшем оборудовании, которое было модернизировано только два года назад. Никто никогда не говорил, что дом проветривает себя сам, и поэтому не следует открывать форточки и двери. Это обычная демагогия. Но естественный воздухообмен, который осуществляется в таком доме, создает особую атмосферу здорового дома, который приближается по своим харатеристикам к деревянному дому, а ведь дерево признано наиболее подходящим для здоровья стеновым материалом. То есть те, кто закрывает газобетон пенопластом, сам себя лишает здорового образа жизни в здоровом доме. Зачем же тогда, мне непонятно, выбирать именно газобетон? Берите любой материал и закупоривайте его пенопластом! Какая тогда разница? Или еще лучше -- стройте термодом -- идеал любителя пенопласта. Если бы это еще был хотя бы Стиродур, о чем-то можно было бы говорить, но ведь это дешевый упаковочный пенопласт, который используется в качестве коробок для перевозки холодильников и ителевизоров. Вот его истинное назначение! А вовсе не утеплитель. Я, честно говоря, была портясена тем, что прфессиональные архитекторы избрали такой вариант. Обычно так строят люди,очень далекие от профессионализма в современном строительстве. Извините, не сдержалась, хотя и не хотела. Просто Вы не интересовались, пришли сюда недавно, а за 5 лет существования этого форума тут такие баталии по этому поводу происходили! Все это уже пройденный этап! Вы не отвечаете на вопрос о том, как ведет себя Ваша штукатурка поверх пенопласта? Не трескается ли она? Посилання на коментар Поділитися на інших сайтах More sharing options...
Белая Рысь Опубліковано: 4 березня 2011 Поділитись Опубліковано: 4 березня 2011 Архитектор, ужас какой, лучше давайте удалимся, а то сейчас наговорим такого, что получим предупреждение Я-то точно! Посилання на коментар Поділитися на інших сайтах More sharing options...
iamHelga Опубліковано: 4 березня 2011 Автор Поділитись Опубліковано: 4 березня 2011 Физика пористого тела и обуховский газобетон-это немного разные вещи, у нас в стране сплошь и рядом не выдерживаются технологии производства материалов. Штукатурка наша ведет себя вполне пристойно-трещин нет. Думаю, что фанатичное обсуждение материала стен уведет нас в сторону от темы и вряд ли интересно всем. У Вас толерантная подпись под Вашими сообщениями, но почему-то Вы не всегда ей следуете. 1 Посилання на коментар Поділитися на інших сайтах More sharing options...
iamHelga Опубліковано: 4 березня 2011 Автор Поділитись Опубліковано: 4 березня 2011 Не совсем понял что Вы имели ввиду? Вы хотите сказать, что за эту зиму газобетон, лежащий даже не в стене, не прогрунтованый сразу же после укладки снаружи в 2 слоя, не пошпаклеваный, просто блок - он пережил большое количество заморозок-разморозок? Сомневаюсь. Если же говорить про конкретно мою стену, то и так понятно, согласно инструкции производителя, что газобетон надо грунтовать после возведения стен. Причем грунтовкой, специально для ячеистых бетонов. Потом еще раз грунтовать и шпатлевать, специальной шпатлевкой, можно СТ-24. Или Вы считаете, что нужно обклеить газобетон, положенный не на клей, а на цементно-песчаный раствор пенопластом? И таким образом защитить его от влаги? Как раз то, о чем вы пишете-защите газобетона согласно инструкции производителя, а про пенопласт вы у Белой Рыси прочли или у меня? Посилання на коментар Поділитися на інших сайтах More sharing options...
архітектор Опубліковано: 4 березня 2011 Поділитись Опубліковано: 4 березня 2011 (змінено) Кроме того, в незащищенной стене из газобетона швы являются мостиками холода.[/size][/font] и Фактура покрупнее и Физика пористого тела и обуховский газобетон-это немного разные вещи, у нас в стране сплошь и рядом не выдерживаются технологии производства материалов. я так понял исходя из написанного Вами выше, прямо не написано, но выпуклости на фасаде, под окнами (под Райта), да и сам фасад - таки пенопластом обклеен. Так делали еще лет 5 назад повсеместно. Также на плане, показанном выше, есть две монолитные колонны прямо на фасаде - очевидно они утеплялись? И согласно фразе - "сплощь и рядом не выдерживаются..." - как Вы считаете, что делать архитекторам в такой ситуации? Тоже не соблюдать технологию? Змінено 4 березня 2011 користувачем архитектор Посилання на коментар Поділитися на інших сайтах More sharing options...
Белая Рысь Опубліковано: 4 березня 2011 Поділитись Опубліковано: 4 березня 2011 Архитектор, Вы неправы: пенопластом газобетон не 5 лет назад обклеивали, а и сейчас повсеместно обклеивают. Напротив меня возвели только что очень дорогой дом 30 см Броварского газа и пенопласт, наклеенный прямо на стену. Работы осуществляются по проекту Сельхозстроя очень дорогой архитектурно-строительной фирмой. Стоимость этого дома раз в пять превышает мой. На мои вопли руководитель этой фирмы и архитектор, осуществляющий надзор, отвечают, что польские и немецкие проекты сплошь и рядом таким вот образом предлагаются. Сейчас в ветке о Пассивных церквях и прочем флуде возник точно такой же разговор, зайдите. Что Вы скажете на то, что в Европе сейчас так строят? Вы же ездили туда на проверку, ну и как? Посилання на коментар Поділитися на інших сайтах More sharing options...
Белая Рысь Опубліковано: 4 березня 2011 Поділитись Опубліковано: 4 березня 2011 iamHelga, у Вас на первом этаже терраса без навеса? Какое расстояние у Вас от фундамента до соседей? Не возражают ли они, что Вы с большой террасы смотрите на их участок? Сколько у Вас домов до Днепра? Или вы первые? Посилання на коментар Поділитися на інших сайтах More sharing options...
Optimalist Опубліковано: 4 березня 2011 Поділитись Опубліковано: 4 березня 2011 Мне приходилось за 5 лет пребывания на этом форуме много раз ссылаться на авторитет Силаенкова, признанного гуру газобетонного строительства еще несколько десятилетий назад, в советские времена. Стоит ли напоминать, что стоимость энергоносителей в советские времена была несколько иной и об утеплении домов думали только на Крайнем Севере? Впрочем, я бывал в Якутске, особой разницы между нашими хрущобами и ихними, - не заметил, единственно - дома на сваях с полутораметровым зазором под домом, чтобы вечная мерзлота на перестала быть вечной. Никто никогда не говорил, что дом проветривает себя сам, и поэтому не следует открывать форточки и двери. Это обычная демагогия. Но естественный воздухообмен, который осуществляется в таком доме, создает особую атмосферу здорового дома, который приближается по своим харатеристикам к деревянному дому, а ведь дерево признано наиболее подходящим для здоровья стеновым материалом. То есть воздух как бы проходит, и как бы и нет? Не напоминает ли Вам понятие воздухопроницаемости газобетона в Вашем представлении осетрину второй свежести ? А то, что Вы себя чувствуете со стенами из газобетона приятнее, - типичный эффект плацебо. Я жил и в деревянном доме, и в кирпичном, и железобетонном. Должен сказать, что на мое чувство комфорта материал стен влияет слабо. Для меня гораздо более важны геометрия помещений, отопление и окна. То есть те, кто закрывает газобетон пенопластом, сам себя лишает здорового образа жизни в здоровом доме. Зачем же тогда, мне непонятно, выбирать именно газобетон? Берите любой материал и закупоривайте его пенопластом! Какая тогда разница? Татьяна, неудобно напоминать, но насчет вкуса устриц стоит спорить с теми, кто их ел. Вы пока только теоретик здорового образа жизни в здоровом доме. Впрочем, как и хозяйка этой ветки. А из газобетона просто строить удобнее, - большие и легкие блоки. Поэтому и строители сейчас его везде рекламируют, - получить те же деньги за коробку, но быстрее и с меньшими усилиями, - кто откажется? Или еще лучше -- стройте термодом -- идеал любителя пенопласта. Если бы это еще был хотя бы Стиродур, о чем-то можно было бы говорить, но ведь это дешевый упаковочный пенопласт, который используется в качестве коробок для перевозки холодильников и ителевизоров. Вот его истинное назначение! А вовсе не утеплитель. Татьяна, Вам напомнить, что мы с Вами утепляем перекрытия наших домов юнизолом, то есть переработанной газетной бумагой ? Вы комплексуете по этому поводу? Я нет. Полистирол и пенопласт сейчас буквально пропитали наш мир, поэтому мне смешно читать некоторых "борцунов" (речь здесь не о Вас) с ним. При этом я вовсе не его фанат. Но поскольку у него из всех материалов минимальная теплопроводность и вес, - то его назначение в домостроении именно утепление. Кстати, почему Вам больше по душе Стиродур от БАСФа? Только потому, что он значительно дороже? Ведь по Вашей теории он совсем не подходит для стен, поскольку вообще не влаговоздухопроницаем, в отличие от обычного пенопласта. Тогда уж лучше Неопор , если "мы за ценой не постоим". Я, честно говоря, была портясена тем, что прфессиональные архитекторы избрали такой вариант. Обычно так строят люди,очень далекие от профессионализма в современном строительстве. Извините, не сдержалась, хотя и не хотела. Просто Вы не интересовались, пришли сюда недавно, а за 5 лет существования этого форума тут такие баталии по этому поводу происходили! Все это уже пройденный этап! Татьяна, вот именно, баталии происходили. И уже не надо никому доказывать, что из газобетона строить можно. Скорее, уже надо доказывать, что можно не только из газобетона или если из газобетона, то по-разному. А Вы все еще на той войне, как партизан из анекдота, который до сих пор пускает поезда под откос . Даже "опучаток" наделали в азарте! Прочитайте еще раз свою подпись и возвращайтесь с войны! 1 Посилання на коментар Поділитися на інших сайтах More sharing options...
Optimalist Опубліковано: 4 березня 2011 Поділитись Опубліковано: 4 березня 2011 Или вы первые? Догадка верная. Посилання на коментар Поділитися на інших сайтах More sharing options...
архітектор Опубліковано: 4 березня 2011 Поділитись Опубліковано: 4 березня 2011 Что Вы скажете на то, что в Европе сейчас так строят? Вы же ездили туда на проверку, ну и как? Я не эксперт в том, как строят в Европе, я там не работал. Видел - да, но только со стороны. В Австрии видел дома из Поротерма 250 мм шириной, под утепление чем-то, не знаю была ли это базальтовая вата или пенопласт. В Чехии видел два дома - один чисто из Поротерма, второй - из газобетона. В Испании утепления не видел. Но я так догадываюсь - что в Испании, Чехии, Польше, Венгрии - не застройщики без специального образования в строительстве выбирают себе из чего и как строить дом. Есть нормы, есть требования органов надзора, правила строительсва, требования по энергосбережению, пожарной безопасности. У нас же часто просто некому принять компетентное решение, а согласование проекта - это больше очковтирательство санстанции, пожарникам и архитектуре - и чихать они хотели на ваш здоровый климат, на время горения стены и выделение в процессе токсичных веществ, на расход газа. Продавцам - главное продать. Покупатели в панике быть разведенными на фигню - образно говоря - одевают валянки будучи до пояса нагими. Иными словами - есть переутепленные стены - но великое множество других утечек тепла, которые не компенсируют это утепление. Например - плохоутепленные откосы окон, недостаточные по теплосопротивлению окна, неэкономичную систему отопления, плохо утепленный чердак, монолитные пояса, примыкания, пол и т.п. Посилання на коментар Поділитися на інших сайтах More sharing options...
iamHelga Опубліковано: 4 березня 2011 Автор Поділитись Опубліковано: 4 березня 2011 От фундамента дома до границы участка с соседями 3м. Терраса у нас действительно планируется без навеса (возможно локтевая маркиза на перспективу), солнце на террасе бывает только в утренние и вечерние часы. С соседями мы смотрим друг на друга уже лет двадцать и ничего Возможно посадим живую изгородь Посилання на коментар Поділитися на інших сайтах More sharing options...
Белая Рысь Опубліковано: 5 березня 2011 Поділитись Опубліковано: 5 березня 2011 И до улицы у Вас тоже три метра? Гараж выходит к забору прямо. Не знаю, как у вас, у нас все время захватывают береговую линию. Все новые и новые дома тулят. Мы когда начинали стройку, был отлично виден Днепр (мы вторые), а за 5 лет понастроили коровников перед окнами, хотя мы специально поставили в углу дом, а не общей линии домов, чтобы был обзор. У Вас на втором этаже детская и спальня смежные? Почему? Это детская спальня? Домик планировался для постоянного или сезонного проживания как дача? Не пойму, это вы с Оптималистом на берегу за Высоковольтной или уже за Нижними Садами 1? Там мыс и залив в конце, вы далеко от него? Я знаю, на берегу три дома интересных называются Беверли Хиллз, посольские американские, Вы от них далеко? Мы возле пристани Осокорки, приходите в гости! Посилання на коментар Поділитися на інших сайтах More sharing options...
Белая Рысь Опубліковано: 5 березня 2011 Поділитись Опубліковано: 5 березня 2011 Оптималист, я Вам не отвечаю, потому что не хочу с Вами ссориться.:D:D:D Посилання на коментар Поділитися на інших сайтах More sharing options...
Optimalist Опубліковано: 5 березня 2011 Поділитись Опубліковано: 5 березня 2011 Оптималист, я Вам не отвечаю, потому что не хочу с Вами ссориться.:D:D:D Из-за такой мелочи как газобетон ?. Как-нибудь соберусь, и напишу в своей ветке "Как мне удалось противостоять моде на газобетон?". Вы же знаете, что всякая идея проходит три этапа: 1. Этого не может быть; 2. В этом что-то есть; 3. Кто же этого не знает? Газобетон сейчас уже на третьей, так что ссориться не стоит. А живем мы как раз на Нижних первых. Здесь у Днепра оригинальная береговая линия, из-за которой так и не был построен стационарный причал, в отличие от тех же Осокорков или Нижних вторых. От обрыва и до воды идет широкая метров 100 полоса заросшая кустарником, а посередине пересыхающий канал. То есть домик с одной стороны на краю, - никто уже не сможет вклиниться, а с другой - вполне далеко от воды. В общем, красивый вид с этого частного домика гарантирован. 1 Посилання на коментар Поділитися на інших сайтах More sharing options...
Белая Рысь Опубліковано: 6 березня 2011 Поділитись Опубліковано: 6 березня 2011 Оптималист, газобетон сейчас стал самым распространенным стеновым материалом, в отличие от термодома, который продолжает оставаться изделием на любителя. Бровары дымятся от заказов. Мы немного поспешили, надо было дождаться отечественных модификаций немецких линий. Если Вас интересует современное сотояние дел в этой отрасли, почитайте материалы круглого стола Харьковского института газобетонного строительства, где всеми выступавшими подчеркивалось одно: газобетон нельзя утеплять, тем более, пенопластом. Это приводит к разрушению стены. Познакомьтесь с Сергеем Ружинским, он тоже из Харькова. Вы пришли на форум уже после всех партизанских войн, поэтому можете этого не знать. Я же тут с самого начала, и мой дом был одним из первых домов в Осоокорках, построенных из газобетона с точной геометрией и по виброударной технологии. Так что мне немного лучше известно, что такое газобетон. Вполне вероятно, что о термодомах Вы знаете больше, я не спорю. Но тут, в газобетоне, Вы выглядите с научной точки зрения некорректно Думаю, Вы это понимаете Что же касается того, что война давно окончилась, то это не так. По-прежнему далекие от строительства люди, не интересующиеся новыми технологиями, отдают на откуп невежественным прорабам решение вопроса об утеплении пенопластом, и пенопласт, как Вы видите, рулит. Как и кладка не на клей, а на раствор. И соответствующие мостики холода. Впрочем, пенопластовые войны имели на меня несомненное влияние: Я решила летний душ на участке, сбитый из шалевки, утеплять пенопластом, получив деревянный каркас, а внутри на рубероиде снаружи и пленке изнутри -- дешевый пенопласт. Так что, как видите, я далека от фанатизма Подскажите, какой толщины для этих целей нужно брать пенопласт? Я прекрасно помню ваш пересыхающий канал, много раз там ходила со своими собаками в былые времена, когда еще на Нижние курсировали катера. А Вы тоже недалеко от этого места? Посилання на коментар Поділитися на інших сайтах More sharing options...
Белая Рысь Опубліковано: 6 березня 2011 Поділитись Опубліковано: 6 березня 2011 iamHelga, Вы нас с Оптималистом простите, в Вашей ветке общаемся Да, мы дальние соседи, получается. С какого года семья Ваша в Осоокорках? А когда был построен дом? Я так поняла, что дом уже эксплуатируется? Уже полностью готов? Или еще какие-то работы ведутся? Архитектура у Вас интересная, мне нравится своей нестандартностью, только я хочу спросить, верхний этаж получается прямо под двускатной крышей. Не жарко ли там? Сейчас в ветке Надежды утверждается необходимость холодного вентилируемого чердака, а как у Вас? 1 Посилання на коментар Поділитися на інших сайтах More sharing options...
iamHelga Опубліковано: 6 березня 2011 Автор Поділитись Опубліковано: 6 березня 2011 Да, наш дом именно там и находится-на первых Нижних Садах, только канал здесь был не всегда-он появился после одного из сильнейших наводнений-в начале 70-ых, до этого была широкая песчаная коса. Наша семья обитает здесь с возникновения садоводческого общества- 1966г, первую нашу дачу-на столбиках, второй этаж-деревянный, с верандой строили сами еще мой дедушка с папой. На этом же месте в 2007 году мы построили коробку дома, о котором я рассказываю. Он расположен на расстоянии 3м от улицы, зато второй этаж нависает, что позволило увеличить его площадь и затенить окно первого этажа, выходящее на юг. Гараж по нормам допускается располагать по красной линии (то есть вплотную к улице). Вообще, застройка в условиях дефицита места приводит подчас к интересным результатам при творческом подходе и знании строительных норм. Например, на юге Болгарии нам не встречались массивные дома-сундуки, они умеют строить как-то непринужденно и живописно, как на этих фото. Некоторые архитектурные приемы нашего дома, в том числе серые выступающие элементы фасада под окнами скорее оттуда (а не под Райта). Кстати, на последнем снимке интересный белый особняк а-ля Корбюзье там же. 1 Посилання на коментар Поділитися на інших сайтах More sharing options...
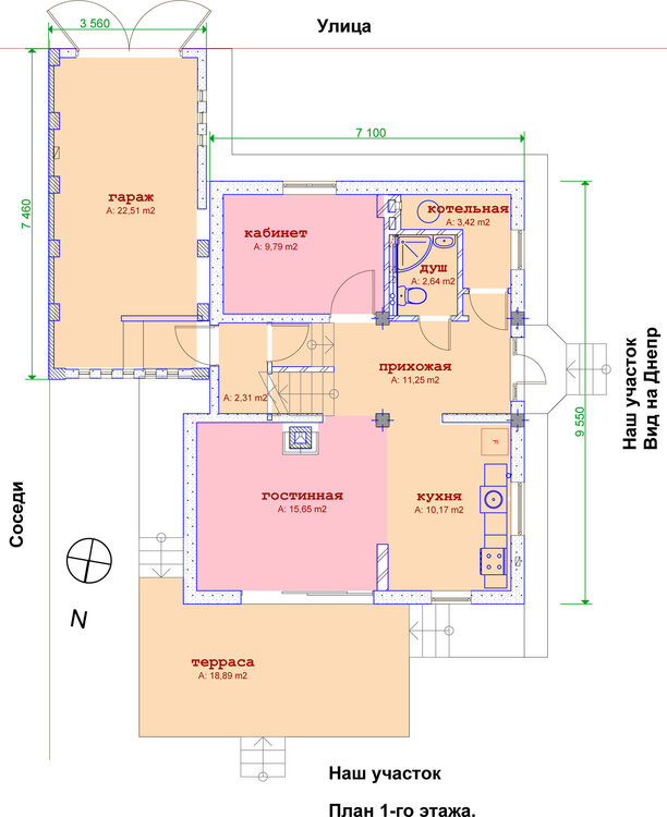
iamHelga Опубліковано: 6 березня 2011 Автор Поділитись Опубліковано: 6 березня 2011 По планировке нашего дома- на первом этаже кроме обычной входной двери предусмотрен вход из гаража в дом через тамбур. Общее пространство гостиной и кухни будет продолжено летней террасой, выходящей в сад. В гостинной построена печь-голландка. На втором этаже-это не смежные спальня и детская-это просто одна зонированная комната, которую можно при желании разделить трансформирующейся перегородкой. Для отдельного входа во вторую часть комнаты мы оставили дверной проем в стене из зоны отдыха, который пока зашит гипсокартоном. Рядом большая ванная комната с высоким окном. Дом планируется для круглогодичного проживания, но внутри готов еще не полностью, об этом немного позже В каждой комнате мансардного этажа, кроме обычных окон есть и мансардные, можно устраивать сквозное проветривание, достаточная толщина утеплителя, ориентация скатов кровли на восток и запад позволяет чувствовать на такой мансарде без чердака над ней комфортно. Кроме того, мансарда находится под одним скатом (то есть над ней нет конька кровли), который вентилируется через подшивку двух свесов. А вот это вид с террасы 3-го этажа на Днепр и из мансардного окна на окрестности. Посилання на коментар Поділитися на інших сайтах More sharing options...
Белая Рысь Опубліковано: 7 березня 2011 Поділитись Опубліковано: 7 березня 2011 Да, наш дом именно там и находится-на первых Нижних Садах, только канал здесь был не всегда-он появился после одного из сильнейших наводнений-в начале 70-ых, до этого была широкая песчаная коса. Наша семья обитает здесь с возникновения садоводческого общества- 1966г, первую нашу дачу-на столбиках, второй этаж-деревянный, с верандой строили сами еще мой дедушка с папой. На этом же месте в 2007 году мы построили коробку дома, о котором я рассказываю. Он расположен на расстоянии 3м от улицы, зато второй этаж нависает, что позволило увеличить его площадь и затенить окно первого этажа, выходящее на юг. Гараж по нормам допускается располагать по красной линии (то есть вплотную к улице). Вообще, застройка в условиях дефицита места приводит подчас к интересным результатам при творческом подходе и знании строительных норм. Например, на юге Болгарии нам не встречались массивные дома-сундуки, они умеют строить как-то непринужденно и живописно, как на этих фото. Некоторые архитектурные приемы нашего дома, в том числе серые выступающие элементы фасада под окнами скорее оттуда (а не под Райта). Кстати, на последнем снимке интересный белый особняк а-ля Корбюзье там же. Прекрасно помню и Вашу широкую косу -- отмель с чистейшим песком, и само наводнение, когда по Днепру плыли домики, а мой покойный отец подплывал на лодке к нашему дому и рубил топором деревянный пол, чтобы не снесло. Потом я никак не могла найти эту косу, на которой много раз загорала и купалась, и водорослей в воде тогда еще не было вдоль всегопобережья. Вместо косы появился старик-залив... А там, где я загорала и купалась -- свалки старых пластиковых бутылок и кульков...Все помню... Мы в Осокорках с 1965 года. А где Вы купаетесь? Нависающий второй этаж затеняет летом окна первого, а зимой? Тоже затеняет? А с улицы прямо в окна смотрят? Там терраса с юга? Да, южное солнце у нас с вами отменное, мы специально ориентировали дом на юг и запад, чтобы словить все, что можно. У Вас на запад, конечно, вид получше,чем у нас должен быть -- нет новых безвкусных особняков между вами и Днепром. Вид на Днепр у Вас отменный -- нет ничего,кроме воды и кустарника. От вас виден остров Водников? Мы выигрываем в расстоянии до метро, но проигрываем в виде на Днепр -- от нас только индустриальный пейзаж на другом берегу. Посилання на коментар Поділитися на інших сайтах More sharing options...
Белая Рысь Опубліковано: 7 березня 2011 Поділитись Опубліковано: 7 березня 2011 Домики в Варне очень понравились, спасибо. Но мне кажется, это архитектура средиземноморского (черноморского?) юга, именно юга, там все рассчитывается в зависимости от очень сильного солнца и зимой, и летом. Кстати, какие зимы бывают в Варне? Потеплее, наверное, чем у нас? Даже на снимках видно, что дома просто обернуты очень жарким солнцем -- отсюда обилие террас и балконов. Дом под Корбюзье не понравился. Мне кажется, он нарушает гармонию тех домиков, которые на предыдущих снимках. Посилання на коментар Поділитися на інших сайтах More sharing options...
Рекомендовані повідомлення
Створіть акаунт або увійдіть у нього для коментування
Ви маєте бути користувачем, щоб залишити коментар
Створити акаунт
Зареєструйтеся для отримання акаунта. Це просто!
Зареєструвати акаунтУвійти
Вже зареєстровані? Увійдіть тут.
Увійти зараз