4qa Опубліковано: 30 травня 2011 Поділитись Опубліковано: 30 травня 2011 На сегодняшний день заканчиваю проектирование дома. Как то видел в одной умной статье что было бы идеально выводить разными каналами фекальные (от унитазов) и светлые (душ, раковины, мойка) воды. Первые в первую камеру септика, вторые сразу во второй отсек. Имеет ли смысл и стоит ли так делать, что это дает на практике? Поделитесь опытом.... Посилання на коментар Поділитися на інших сайтах More sharing options...
B.S.V. Опубліковано: 30 травня 2011 Поділитись Опубліковано: 30 травня 2011 Некоторые так делают, но мойка в первый отсек. Делают в основном вообще разные колодцы. 1 Посилання на коментар Поділитися на інших сайтах More sharing options...
Вадим (spb) Опубліковано: 30 травня 2011 Поділитись Опубліковано: 30 травня 2011 Бестолковое занятие, оправданное в очень редких случаях. Нормальный септик сделать и ничего делить не надо. 1 Посилання на коментар Поділитися на інших сайтах More sharing options...
B.S.V. Опубліковано: 30 травня 2011 Поділитись Опубліковано: 30 травня 2011 Бестолковое занятие, оправданное в очень редких случаях. Нормальный септик сделать и ничего делить не надо. Если взять затратную часть по дополнительным стоякам, лежакам и колодцам, то действительно, при нормальном грунте и УГВ, нет смысла этим заниматься. Посилання на коментар Поділитися на інших сайтах More sharing options...
Вадим (spb) Опубліковано: 30 травня 2011 Поділитись Опубліковано: 30 травня 2011 Если взять затратную часть по дополнительным стоякам, лежакам и колодцам, то действительно, при нормальном грунте и УГВ, нет смысла этим заниматься. Вот и я о том же. Срок жизни фильтрационных элементов это не продляет - не доказано, да и по логике (биохимии) не срастается. Посилання на коментар Поділитися на інших сайтах More sharing options...
InSAn Опубліковано: 31 травня 2011 Поділитись Опубліковано: 31 травня 2011 Кроме всего прочего, при двух-трубной системе возможен вариант засорения фекальной трубы, т.к. вся вода, помогащая смывать твердые отходы, будет идти по светлой трубе. 1 Посилання на коментар Поділитися на інших сайтах More sharing options...
4qa Опубліковано: 31 травня 2011 Автор Поділитись Опубліковано: 31 травня 2011 Всем спасибо кто отлкикнулся, для себя - решил. Буду делать проверенным методом. Посилання на коментар Поділитися на інших сайтах More sharing options...
mazurito Опубліковано: 3 червня 2011 Поділитись Опубліковано: 3 червня 2011 Кроме всего прочего, при двух-трубной системе возможен вариант засорения фекальной трубы, т.к. вся вода, помогащая смывать твердые отходы, будет идти по светлой трубе. Так для нормального смыва и делается малый уклон фекальной трубы (1-1.5 см. на п/м), чтоб уровнять скорость текущей воды и плывущей по ней "твердой фракции". Я делал раздельно серые и фекальные. 6 лет -проблем ненаблюдаю. А делал раздельно для уменьшения обьема гипотетически вывозимого "продукта жизнедеятельности". Но как оказалось и вывозить нечего не надо, несмешанный с жирами и прочей химией продукт быстренько разлагается и уходит! (к емкости для сбора добавил дренажный колодец из покрышек). Серые, естественно в другой, дренажный колодец через простейший жироуловитель и септик. От, такая вот, структура момента Посилання на коментар Поділитися на інших сайтах More sharing options...
4qa Опубліковано: 3 червня 2011 Автор Поділитись Опубліковано: 3 червня 2011 Так для нормального смыва и делается малый уклон фекальной трубы (1-1.5 см. на п/м), чтоб уровнять скорость текущей воды и плывущей по ней "твердой фракции". Я делал раздельно серые и фекальные. 6 лет -проблем ненаблюдаю. А делал раздельно для уменьшения обьема гипотетически вывозимого "продукта жизнедеятельности". Но как оказалось и вывозить нечего не надо, несмешанный с жирами и прочей химией продукт быстренько разлагается и уходит! (к емкости для сбора добавил дренажный колодец из покрышек). Серые, естественно в другой, дренажный колодец через простейший жироуловитель и септик. От, такая вот, структура момента Можете поделиться технической частью проекта? Тем более есть опыт эксплуатации... Кол-во проживающих объемы и устройство септика и дренажного колодца. Посилання на коментар Поділитися на інших сайтах More sharing options...
mazurito Опубліковано: 3 червня 2011 Поділитись Опубліковано: 3 червня 2011 Ну, я сам потомственый стоитель, а мы "профессионалы" во всяких там проектах не нуждаемся (шутка). Постоянно (уже 4 года) проживает 2 человека, один женского пола на - него основной расход воды, при расчетах умножайте на 2:lol:. По выходным нашествия бездачных родственников. Сделал так: Серые - два душа, два умывальника, кухонная мойка, стиралка. Труба 50, жироуловитель самодельнай с двумя камерами, септик 1.5 - метровых кольца, дренажный колодец - покрышки - в низу самые большие выше поменьше и еще поменьше "пирамида". Естественно геоткань пробивная, щебень - вобщем стандарт. Фекальные - 2 горшка, труба 110, аэратор, резервуар 2.8 м3 первоначально предназначался для выкачки золотарем по мере наполнения. Но как показала суровая действительность и применение всякой "биодряни" золотарь вывозит практически чистую воду! По сему резервуар автоматически превратился в септик с добавлением к нему дренажного колодца аналогичный вышеописанной конструкции. З.Ы. Химией пользуемся разной, но в основном Амвеем, он вроде биологически чистый. Стиралка только на Амвее - в этом году по требованию жены вывел доп. слив наружу в 60 литровую, бочку для полива и обрызгивания растений от болячек и вредителей. И вроде, блин, помагает З.Ы.Ы. Да, чуть не забыл, в фек. резервуаре на дне стоит погружной фекальный насос (хороший, с "мясорубкой") я его ставил чтоб до "чиста" все выкачивать прямо в золотарскую машину. Так от я его включаю иногда, и все содержимое перемешивается и дробится и аэрируется, может изза этого так все эффективно?%) Удачи! Посилання на коментар Поділитися на інших сайтах More sharing options...
4qa Опубліковано: 3 червня 2011 Автор Поділитись Опубліковано: 3 червня 2011 Ну, я сам потомственый стоитель, а мы "профессионалы" во всяких там проектах не нуждаемся (шутка). Постоянно (уже 4 года) проживает 2 человека, один женского пола на - него основной расход воды, при расчетах умножайте на 2:lol:. По выходным нашествия бездачных родственников. Удачи! Хорошо быть строителем! - не шутка :D. Потому как нам обычным смертным нужно все разжевывать . Т.е. если я правильно понял, то устройство где то такое, 3 дренажных, герметичных кольца - туда горшки из них перелив самотеком в емкость принимающую светлые воды (???сколько герметичных бетонных кольца) в них сразу сбрасываем "светлые" воды и из них уже перелив дренажный колодец? В первом длительный отстой и переработка "горшков", второй также работает как доп переработка и в третий уже непосредственно сброс из второго. Плюс дополнительно в первом фекальный насос для переодической переброски переработанных масс во второй приемник (второй нужно время от времени чистить золотарем, тогда зачем перебрасываем, может просто эпизодически вычищать первый?) Соответственно вопрос по объемам емкостей. Исходя из стандартного рассчета насколько я помню нужно порядка 280л умножить на ко-во проживающих и умноженного на и на 3 т.к. процесс переработки длиться около 3-х дней. Для септика 2 со "светлыми" водами понятно, что он нужен где то такого объема, а для 1-го какой должен быть объем? p.s. Что такое самодельный жироулавливатель и как он работает, куда его нужно устанавливать, как часто его нужно чистить и как? Посилання на коментар Поділитися на інших сайтах More sharing options...
Propeller Опубліковано: 4 червня 2011 Поділитись Опубліковано: 4 червня 2011 К примеру, семья из 4 человек посещает туалет 12 раз в день. Объем бачка унитаза, где-то 6 л. Получается через унитаз в день уходит 72 л воды. Про 2 кнопки пока не будем. Получается в месяц 2 с лишним куба воды. Может есть смысл для слива использовать воду из ванной, душа и умывальника ? Технически это организовать не сложно. Упростить работу септика. Хотя.... посмотрел в квитанцию по квартплате. Оказывается я в месяц один (по каким-то ИХ расчетам) потребляю 14 кубов холодной и горячей воды. Если в частном доме получается такой же расклад, то 2 куба на фоне 56 кубов, конечно, не экономия. Посилання на коментар Поділитися на інших сайтах More sharing options...
Интелсити Опубліковано: 4 червня 2011 Поділитись Опубліковано: 4 червня 2011 Терзаюсь теми же сомнениями. По квитанции по счетчикам расход воды на 1 человека в месяц - 10 кубов. Из них 2 куба - "горшок". Проживание двух человек без ущемления себя в праве принимать душ когда захочется - 16 кубов. Из быт.химии - только органика (Амвей и прочие). Может в самом деле организовать отдельный септик от душа и кух.мойки (после жироуловителя) с дренажом и вывести "рукава" в зону сада-огорода? А на слив "горшка" подсоединить стиралку? Посилання на коментар Поділитися на інших сайтах More sharing options...
ASTe-X Опубліковано: 4 червня 2011 Поділитись Опубліковано: 4 червня 2011 Ну, я сам потомственый стоитель, а мы "профессионалы" во всяких там проектах не нуждаемся (шутка). Постоянно (уже 4 года) проживает 2 человека, один женского пола на - него основной расход воды, при расчетах умножайте на 2:lol:. По выходным нашествия бездачных родственников. Сделал так: Серые - два душа, два умывальника, кухонная мойка, стиралка. Труба 50, жироуловитель самодельнай с двумя камерами, септик 1.5 - метровых кольца, дренажный колодец - покрышки - в низу самые большие выше поменьше и еще поменьше "пирамида". Естественно геоткань пробивная, щебень - вобщем стандарт. Фекальные - 2 горшка, труба 110, аэратор, резервуар 2.8 м3 первоначально предназначался для выкачки золотарем по мере наполнения. Но как показала суровая действительность и применение всякой "биодряни" золотарь вывозит практически чистую воду! По сему резервуар автоматически превратился в септик с добавлением к нему дренажного колодца аналогичный вышеописанной конструкции. З.Ы. Химией пользуемся разной, но в основном Амвеем, он вроде биологически чистый. Стиралка только на Амвее - в этом году по требованию жены вывел доп. слив наружу в 60 литровую, бочку для полива и обрызгивания растений от болячек и вредителей. И вроде, блин, помагает З.Ы.Ы. Да, чуть не забыл, в фек. резервуаре на дне стоит погружной фекальный насос (хороший, с "мясорубкой") я его ставил чтоб до "чиста" все выкачивать прямо в золотарскую машину. Так от я его включаю иногда, и все содержимое перемешивается и дробится и аэрируется, может изза этого так все эффективно?%) Удачи! Ошибочко! 20-30 % ила не стоит удалять из септика, дабы поступающая свежая фекальная вода заражалась гнилостными бактериями. Посилання на коментар Поділитися на інших сайтах More sharing options...
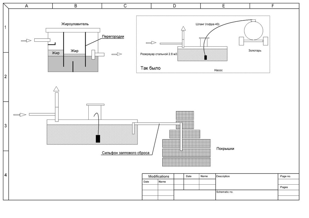
mazurito Опубліковано: 8 червня 2011 Поділитись Опубліковано: 8 червня 2011 Ошибочко! 20-30 % ила не стоит удалять из септика, дабы поступающая свежая фекальная вода заражалась гнилостными бактериями. Ошибочко нет! Читаем невнимательно:-x. Первоначально планировалось ВСЕ (фекальное) вывозить. И расчеты по обьемам слива все в постах выше чисто "теоритические" а на самом деле...(смотри мою подпись). Набросал как у меня фекалка сделана. Все работает. Критика (нездоровая) не принимается. Так как переделывать ничего не буду и не хочу! Никому ничего не навязываю!!! Это мой выбор!8-) Посилання на коментар Поділитися на інших сайтах More sharing options...
Рекомендовані повідомлення
Створіть акаунт або увійдіть у нього для коментування
Ви маєте бути користувачем, щоб залишити коментар
Створити акаунт
Зареєструйтеся для отримання акаунта. Це просто!
Зареєструвати акаунтУвійти
Вже зареєстровані? Увійдіть тут.
Увійти зараз