Ruslan R Опубліковано: 16 червня 2012 Поділитись Опубліковано: 16 червня 2012 Простите, а что значит 8 Зак? Сколько денег тянет такое окно? К чему готовиться? "8 Зак" - это наружное стекло в стеклопакете толщиной 8мм, закаленное. Если у вас одно такое окно, то готовиться нужно к худшему, я в том смысле что адекватный исполнитель будет забивать процент риска, а если у вас будет только одна конструкция - это как минимум 2 стоимости такого стеклопакета, чтобы в случае случайного его разбития при монтаже не остаться еще и в минусе. Добавлено через 7 минут Окна от пола до потолка, на сколько практичны? Практичны или нет, а желание заказчика - закон. Вот и делаем такие конструкции. Применяли стеклопакет с 8 Зак. Огромный минус такой конструкции, что в случае разбития стеклопакета в процессе эксплуатации, его замена будет с демонтажом самой рамы (соответственно и наружных откосов, наличников или что там). Почему не использовали фасадную систему? Там стеклопакеты устанавливаются снаружи. 1 Посилання на коментар Поділитися на інших сайтах More sharing options...
makarenok Опубліковано: 16 червня 2012 Поділитись Опубліковано: 16 червня 2012 Добрый день, уважаемые! Заранее прошу прощение у модераторов, сейчас начинаю 2 этаж. В прожекте тоже очень немаленькие окошки Подскажите, что такие могут стоить? СпасибоОкна.pdf Посилання на коментар Поділитися на інших сайтах More sharing options...
Алік Опубліковано: 16 червня 2012 Поділитись Опубліковано: 16 червня 2012 Стоить могут по разному. Одно могу сказать точно: при таких размерах окон нужно правильно рассчитать статику и при такой площади остекления нужны очень тёплые стеклопакеты. Посилання на коментар Поділитися на інших сайтах More sharing options...
makarenok Опубліковано: 16 червня 2012 Поділитись Опубліковано: 16 червня 2012 Стоить могут по разному. Одно могу сказать точно: при таких размерах окон нужно правильно рассчитать статику и при такой площади остекления нужны очень тёплые стеклопакеты. Ну в принципе оно понятно, что дешево эти окна стоить не могут, но хоть бы вилку дали Посилання на коментар Поділитися на інших сайтах More sharing options...
Алік Опубліковано: 16 червня 2012 Поділитись Опубліковано: 16 червня 2012 У Вас не простые окошки, над ними надо посидеть, тут с потолка цифру не возьмёшь. Мне вот другое стало интересно, это писал "архитектор"? :D 1 Посилання на коментар Поділитися на інших сайтах More sharing options...
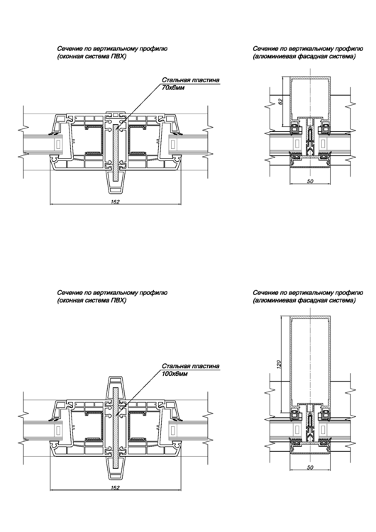
Ruslan R Опубліковано: 16 червня 2012 Поділитись Опубліковано: 16 червня 2012 Ну в принципе оно понятно, что дешево эти окна стоить не могут, но хоть бы вилку дали Вы сначала определитесь из чего будете делать конструкции? Предоставляю вам сечения вертикального профиля конструкций в оконной системе ПВХ (видимая ширина профиля 162мм, конструкции будут состоять из отдельных рам соединенных между собой стальной пластиной) и алюминиевой фасадной системе (видимая ширина профиля 50мм). Вариант со стальной пластиной 70х6мм (или алюминиевая стойка 62мм) - это для высоты конструкций 2700-2900мм, с стальной пластиной 100х6мм (или алюминиевая стойка 120мм) - для высоты 4270мм. Также нужно учесть рекомендуемые максимальные размеры ПВХ конструкций: - для белых профилей 4000мм - для цветных и ламинированных профилей 2500мм Свыше этих размеров должен быть выполнен компенсаторный шов. Если все таки остановитесь на ПВХ, покажу как должен выглядеть этот шов. В алюминиевой фасадной системе таких проблем нет. Посилання на коментар Поділитися на інших сайтах More sharing options...
makarenok Опубліковано: 16 червня 2012 Поділитись Опубліковано: 16 червня 2012 У Вас не простые окошки, над ними надо посидеть, тут с потолка цифру не возьмёшь. Мне вот другое стало интересно, это писал "архитектор"? :D Не, ну я рад, что вас веселит, то что написал архитектор Может объясните что не так? Добавлено через 1 час 50 минут Вы сначала определитесь из чего будете делать конструкции? Предоставляю вам сечения вертикального профиля конструкций в оконной системе ПВХ (видимая ширина профиля 162мм, конструкции будут состоять из отдельных рам соединенных между собой стальной пластиной) и алюминиевой фасадной системе (видимая ширина профиля 50мм). Вариант со стальной пластиной 70х6мм (или алюминиевая стойка 62мм) - это для высоты конструкций 2700-2900мм, с стальной пластиной 100х6мм (или алюминиевая стойка 120мм) - для высоты 4270мм. Также нужно учесть рекомендуемые максимальные размеры ПВХ конструкций: - для белых профилей 4000мм - для цветных и ламинированных профилей 2500мм Свыше этих размеров должен быть выполнен компенсаторный шов. Если все таки остановитесь на ПВХ, покажу как должен выглядеть этот шов. В алюминиевой фасадной системе таких проблем нет. Из всего вышеперечисленного понял, что 1.у меня скорее всего будут Толстые наружные профили, правильно? 2.Алюминий- хорошо, но дорого А что, разве комбинация метало-пласты и стальные платины как-то особенно портят внешний вид? И что, придется везде оставлять белые профиля? Почему? Ну и дайте хоть какие- то цифры пожалуйста Посилання на коментар Поділитися на інших сайтах More sharing options...
Алік Опубліковано: 16 червня 2012 Поділитись Опубліковано: 16 червня 2012 Что не так написано я выделил. В ПВХ есть пилястровые усилители импостов, так что излишнего деления конструкций можно избежать. С ограничением 2500 мм для цветных профилей немного сложнее, но можно что-нибудь придумать. 1 Посилання на коментар Поділитися на інших сайтах More sharing options...
wow4yk Опубліковано: 16 червня 2012 Поділитись Опубліковано: 16 червня 2012 - для цветных и ламинированных профилей 2500мм А чим кольорові чи ламіновані профілі так відрізняються від білих з точки зору міцності ? Посилання на коментар Поділитися на інших сайтах More sharing options...
Ruslan R Опубліковано: 16 червня 2012 Поділитись Опубліковано: 16 червня 2012 ...C ограничением 2500 мм для цветных профилей немного сложнее, но можно что-нибудь придумать. Если все делать правильно, то только так. Но внешний вид будет испорчен конкретно (ширина профиля горизонтального соединения будет около 270мм). Вес верхних конструкций примет соединитель (80х80х5мм), закрепленный в проеме с обеих сторон. Посилання на коментар Поділитися на інших сайтах More sharing options...
Ruslan R Опубліковано: 16 червня 2012 Поділитись Опубліковано: 16 червня 2012 А чим кольорові чи ламіновані профілі так відрізняються від білих з точки зору міцності ? С точки зрения прочности - ни чем. Отличается линейным температурным расширением. ПВХ профиль белого цвета расширяется меньше чем профиль цветной. Т.е. при прямых солнечных лучах цветной профиль нагревается сильнее - соответственно и линейное расширение больше. Это вы про свой витраж вспомнили? У вас там высота 4000мм и профиль цветной Вот еще одно грубое нарушение в вашем витраже. Посилання на коментар Поділитися на інших сайтах More sharing options...
wow4yk Опубліковано: 16 червня 2012 Поділитись Опубліковано: 16 червня 2012 Это вы про свой витраж вспомнили? У вас там высота 4000мм и профиль цветной Вот еще одно грубое нарушение в вашем витраже. Ну в мене там дивжина коремих частин 2100, ширина 700, більших суцільних частин нема Посилання на коментар Поділитися на інших сайтах More sharing options...
Ruslan R Опубліковано: 16 червня 2012 Поділитись Опубліковано: 16 червня 2012 Ну в мене там дивжина коремих частин 2100, ширина 700, більших суцільних частин нема Но так делать нельзя (вес верхних конструкций давит на нижние). Смотрите пост #110 данной темы, там показано как должно быть. Посилання на коментар Поділитися на інших сайтах More sharing options...
wow4yk Опубліковано: 16 червня 2012 Поділитись Опубліковано: 16 червня 2012 Но так делать нельзя (вес верхних конструкций давит на нижние). Смотрите пост #110 данной темы, там показано как должно быть. Ну в мене і верхні і нижні половинки прикріплені до зєднувального профілю ,а верхні щей прикріплені зверху до перекриття (дошки, лаги), може якось компенсує тиск на нижні половинки. Сонце в мене падає тільки літом, коли заходить і під гострим кутом - хоть трохи псолаблює ефетк тепловго розширення... А як збудують поряд висотки, то і того не буде. Посилання на коментар Поділитися на інших сайтах More sharing options...
ko&ko Опубліковано: 17 червня 2012 Поділитись Опубліковано: 17 червня 2012 Може не зовсім вікна, але зате від підлоги до стелі [ATTACH]193624[/ATTACH] [ATTACH]193625[/ATTACH] Вид, просто суперский! Впечатлило. Добавлено через 2 минуты Добрый день, уважаемые! Заранее прошу прощение у модераторов, сейчас начинаю 2 этаж. В прожекте тоже очень немаленькие окошки Подскажите, что такие могут стоить? Спасибо Киньте проект в тему для просчета, и получите предложения от Киевских коллег. Если будет, что не понятно то выносите вопрос на обсуждение проекта остекления. Имхо)Как то так правильней и понятней будет. Посилання на коментар Поділитися на інших сайтах More sharing options...
Ruslan R Опубліковано: 17 червня 2012 Поділитись Опубліковано: 17 червня 2012 Ну в мене і верхні і нижні половинки прикріплені до зєднувального профілю Статический соединительный профиль работает только на ветровую нагрузку, вес конструкций он не несет. Ну например возьмите 4м стальную пластину или ту армировку которая у вас в соединителе и надавите на нее сверху, что произойдет? Правильно она согнется (в плоскости конструкции). Т.е. вес конструкции она не должна нести. У такого соединителя другое назначение. Если бы в качестве соединителя была стальная труба 80х80х5мм, то другой разговор. ...а верхні щей прикріплені зверху до перекриття (дошки, лаги) Ну это ж вам не алюминий, где углы жестко фиксируются и дополнительно склеиваются спецклеем (даже и здесь так делать нельзя). Это ПВХ, нагрузка на углы вообще не допускается. Добавлено через 3 минуты 2.Алюминий- хорошо, но дорого Если это ПРАВИЛЬНО сделать из ПВХ, то стоимость особо отличаться не будет. Добавлено через 13 минут Киньте проект в тему для просчета, и получите предложения от Киевских коллег. Если будет, что не понятно то выносите вопрос на обсуждение проекта остекления. Имхо)Как то так правильней и понятней будет. Только нужно приготовиться к тому что 90% просчетов будет неправильных. Хотя все рекомендации, как нужно сделать, я уже предоставил. Вариант с пилястрами можно рассмотреть, но там есть конструкции 3м ширины, а допускается 2.5м (для цветного профиля). Т.е. нужно будет их делить на 2 отдельные конструкции. Соответственно поменяется внешний вид (видимая ширина профиля) по сравнению с другими конструкциями. Если будет цветной профиль, то из ПВХ можно конечно сделать, но внешний вид будет не такой как на картинке. Перед тем как заказывать конструкции, пусть архитектор нарисует реальный внешний вид. Все предлагаемые варианты с сечениями профилей вылаживайте сюда. Посилання на коментар Поділитися на інших сайтах More sharing options...
ko&ko Опубліковано: 17 червня 2012 Поділитись Опубліковано: 17 червня 2012 Добавлено через 1 час 50 минут 2.Алюминий- хорошо, но дорого Алюминий хорошо и правильно для таких конструкций! Разбейте разницу в стоимости между ПВХ и Алюминием, хотя бы на 10лет, получите бутылку пива в один день. На другой чаще весов стоит безопасность, долговечность, комфорт и удовольствие. Поверьте, оно того стоит. Посилання на коментар Поділитися на інших сайтах More sharing options...
Ruslan R Опубліковано: 17 червня 2012 Поділитись Опубліковано: 17 червня 2012 И если из алюминия делать, то шаг вертикальных профилей можно смело делать 1000мм, а не 670-750мм как в спецификации, света будет еще больше. И все конструкции сделать из фасадной системы, чтобы смотрелось все в одном стиле. Архитектора обычно к такому стремятся. Посилання на коментар Поділитися на інших сайтах More sharing options...
wow4yk Опубліковано: 17 червня 2012 Поділитись Опубліковано: 17 червня 2012 (змінено) Если это ПРАВИЛЬНО сделать из ПВХ, то стоимость особо отличаться не будет. +1 Після того як Ви розписали всі прорахунки в моїй конструкці, то щоб зробити правильно точно ціна алюмінію вийде..., і щей вигляд явно буде не найкращий. Добавлено через 3 минуты Як мені розказали, металопластикові вікна були винайдені німцями після другої свтіової як тимчасове рішення проблем великих обємів будівництва... незнаю наскільки правда. Добавлено через 3 минуты Вид, просто суперский! Впечатлило. Вигляд дійсно непоганий, а вот конструктив, як тут мені розписали, бажає кращого... Зате краще(міцніше) ніж у сусіда ... , знизу, при його висоті 2.7 Добавлено через 23 минуты Спробував згадати вікна від підлоги до стелі в одній з квартир в якій довелось пожити пару тижнів, в Амстердамі. Там і розсувка "тепла" на терасу була, всюди склопакети. Правда там так холодно як у нас не буває. Але пробую згадати коснтурктив, і помню що це точно не був ПВХ, кажись це було поєднання дерева і металу, пілястри кажись були металеві, а вот рами деревяні... може й помиляюсь. Щось таке існує ? Змінено 17 червня 2012 користувачем wow4yk Посилання на коментар Поділитися на інших сайтах More sharing options...
Ruslan R Опубліковано: 17 червня 2012 Поділитись Опубліковано: 17 червня 2012 Спробував згадати вікна від підлоги до стелі в одній з квартир в якій довелось пожити пару тижнів, в Амстердамі. Там і розсувка "тепла" на терасу була, всюди склопакети. Правда там так холодно як у нас не буває. Але пробую згадати коснтурктив, і помню що це точно не був ПВХ, кажись це було поєднання дерева і металу, пілястри кажись були металеві, а вот рами деревяні... може й помиляюсь. Щось таке існує ? Может такое. Посилання на коментар Поділитися на інших сайтах More sharing options...
makarenok Опубліковано: 17 червня 2012 Поділитись Опубліковано: 17 червня 2012 Алюминий хорошо и правильно для таких конструкций! Разбейте разницу в стоимости между ПВХ и Алюминием, хотя бы на 10лет, получите бутылку пива в один день. На другой чаще весов стоит безопасность, долговечность, комфорт и удовольствие. Поверьте, оно того стоит. Однако размах у Вас, уважаемый! При средней стоимости пива сейчас около 1$*365*10=3650$ и это только разница? Какая же у них стоимость ? Дайте цену Добавлено через 1 минуту Если все делать правильно, то только так. Но внешний вид будет испорчен конкретно (ширина профиля горизонтального соединения будет около 270мм). Вес верхних конструкций примет соединитель (80х80х5мм), закрепленный в проеме с обеих сторон. Ну и Аллах с ним, подумаешь 8 см, а фото нет? Посилання на коментар Поділитися на інших сайтах More sharing options...
wow4yk Опубліковано: 17 червня 2012 Поділитись Опубліковано: 17 червня 2012 Может такое. Може і така частина була. Але там точно була деревяна рама вдікривної стулки... Просто чітко запамятав, що на дотик було дерево, що мене вразило і згадалась Україна з поголовний встановленням металопластикових вікон ... Посилання на коментар Поділитися на інших сайтах More sharing options...
Ruslan R Опубліковано: 17 червня 2012 Поділитись Опубліковано: 17 червня 2012 Може і така частина була. Але там точно була деревяна рама вдікривної стулки... Просто чітко запамятав, що на дотик було дерево, що мене вразило і згадалась Україна з поголовний встановленням металопластикових вікон ... Открывающиеся элементы наверно были алюминиево-деревянная оконная система. Алюминиевый профиль с деревянными накладками внутри. Посилання на коментар Поділитися на інших сайтах More sharing options...
Ruslan R Опубліковано: 17 червня 2012 Поділитись Опубліковано: 17 червня 2012 Ну и Аллах с ним, подумаешь 8 см, а фото нет? Не 8см, а 27см (см. разрез в посте #110). Несущий армирующий профиль 8см + сам пластиковый короб = 12см + рама верхняя и нижняя (7.5см + 7.5см) = 27см Посилання на коментар Поділитися на інших сайтах More sharing options...
wow4yk Опубліковано: 17 червня 2012 Поділитись Опубліковано: 17 червня 2012 Але там точно була деревяна рама вдікривної стулки... Соррі відсувної на всю висоту, і вікна практично на всю висоту. Посилання на коментар Поділитися на інших сайтах More sharing options...
Рекомендовані повідомлення
Створіть акаунт або увійдіть у нього для коментування
Ви маєте бути користувачем, щоб залишити коментар
Створити акаунт
Зареєструйтеся для отримання акаунта. Це просто!
Зареєструвати акаунтУвійти
Вже зареєстровані? Увійдіть тут.
Увійти зараз