mishaa Опубліковано: 31 січня 2017 Поділитись Опубліковано: 31 січня 2017 Т.е. штатная температуры допустим установлена 60С, подбираем резистор, чтобы при его подключении температура котла показывалась 70С. Дальше все просто - подключили релюхой резистор - потушили котел, подключили штатный датчик, и он будет работать в штатном режиме - разожжется, если был остывший. Я тоже об думал, либо смоделировать релюшкой нажатие кнопки, но для меня это сложновато, тем более это все еще нужно и к вайфаю подключить. Готовую схемку может и спаял бы. Я вот сейчас озаботился более актуальной проблемой - повышением КПД котла. Хочу сделать турбулизаторы и кирпич на горелку другой формы чтобы улучшить горение на малой мощностиВ этом я тоже крайне заинтересован, буду следить за темой. Посилання на коментар Поділитися на інших сайтах More sharing options...
sov1178 Опубліковано: 1 лютого 2017 Автор Поділитись Опубліковано: 1 лютого 2017 Интересные результаты у меня по затратам на отопление за январь. Эл-ва 668кВт*ч и пеллет 238кг. Так вот средняя температура января была -4.1С, внутри +21С. Если бы топился эл-вом, то потратил бы 31*24*(21- -4)*0.092 = 1711кВт*ч. Убираем эл-во, получается 238кг пеллет дали 1711-668 = 1043кВт*ч, или 4.38кВт*ч/кг - цифра нереальная, ибо получается средний КПД был 88..97% в зависимости от качества пеллет . Думаю причин несколько: 1. Я в январе уделил внимание тщательным настройкам горелки - выяснил, что воздуха был перебор. В этом плане есть еще над чем поработать на минимальной мощности. 2. Трубы в котельной убрал в утеплитель. В котельной температура упала (была 23.5..24С, сейчас где-то 21..22С). 3. Котел в этом месяце работает на бОльшей мощности, а в таком режиме у него лучше горение и выше КПД. 4. Солнце добавило тепла. 5. Возможно положительное влияние оказали кирпичи и перевод котла в двухступенчатый режим (хотя этот режим по идее менее эффективен, но у меня работает лучше). По "ночному" расходу сейчас с 1кг получается порядка 3.8..4кВт*ч, т.е. КПД 76..88% в зависимости от качества пеллет. 8 Посилання на коментар Поділитися на інших сайтах More sharing options...
-electron- Опубліковано: 1 лютого 2017 Поділитись Опубліковано: 1 лютого 2017 2. Трубы в котельной убрал в утеплитель. В котельной температура упала (была 23.5..24С, сейчас где-то 21..22С). В котельні є батареї? Чи достатньо того тепла, що йде від котла і труб через утеплювач? Запитую тому що мені запроектували в котельній батарею, от сиджу і думаю а чи потрібна вона там взагалі? З одного боку котел твердотоп сам дасть температуру, плюс акумулююча ємність, плюс бойлер, плюс гребінки, гідрострілки. А з іншого якщо в котельні буде +13-15, то я абсолютно не ображуть:D, я ж там сидіти не буду, зайшов обслужив котел і вийшов. Зберегти Посилання на коментар Поділитися на інших сайтах More sharing options...
Dmode Опубліковано: 1 лютого 2017 Поділитись Опубліковано: 1 лютого 2017 4. Солнце добавило тепла. Также ставлю на солнце. В моем случае при прочих равных, при пересчете затрат на м2 на 1С дельты, январь оказался на 9% менее суровым месяцем чем декабрь, не смотря на то что дельта увеличилась на 17%. 3 Посилання на коментар Поділитися на інших сайтах More sharing options...
semengv Опубліковано: 1 лютого 2017 Поділитись Опубліковано: 1 лютого 2017 В котельні є батареї? Чи достатньо того тепла, що йде від котла і труб через утеплювач? Я не автор ветки, но отвечу.. У меня тоже по проекту такое предполагалось. Только ТТ нет - электрокотел и бойлер. Планирую отдельную розетку для эл.конвектора - на сильные холода. Нужно будет - куплю и повешаю. 2 Посилання на коментар Поділитися на інших сайтах More sharing options...
-electron- Опубліковано: 1 лютого 2017 Поділитись Опубліковано: 1 лютого 2017 Я не автор ветки, но отвечу.. У меня тоже по проекту такое предполагалось. Только ТТ нет - электрокотел и бойлер. Планирую отдельную розетку для эл.конвектора - на сильные холода. Нужно будет - куплю и повешаю. Дякую за відповідь. Я собі десь те саме хочу зробити. Або просто зробити трасу, заглушити її, а батарею не вішати. Якщо з часом побачу що не вистачає, то довішу. Посилання на коментар Поділитися на інших сайтах More sharing options...
sov1178 Опубліковано: 1 лютого 2017 Автор Поділитись Опубліковано: 1 лютого 2017 В котельні є батареї? Чи достатньо того тепла, що йде від котла і труб через утеплювач? Якщо працює електричний котел, то трохи замало. Якщо працює пелетний, то з неутепленими трубами було забагато, з утепленими нормально. Також вра***те, з пелетним котлом котельну обігрівають додатково чотири..п'ять метрів труби. Запитую тому що мені запроектували в котельній батарею, от сиджу і думаю а чи потрібна вона там взагалі? В мене котельна це ще й невеличка майстерня, тобто мова про температуру десь 19..21С. Якщо ж це була б тільки котельна, то у радіаторі потреби не було б. Планирую отдельную розетку для эл.конвектора - на сильные холода. Нужно будет - куплю и повешаю. Хорошее решение! Полезно еще и тем, что вдруг потребуется ремонт в котельной будет комфортно даже при отключенном оборудовании. 3 Посилання на коментар Поділитися на інших сайтах More sharing options...
semengv Опубліковано: 1 лютого 2017 Поділитись Опубліковано: 1 лютого 2017 В мене котельна це ще й невеличка майстерня, тобто мова про температуру десь 19..21С. Ну Вы балованные. У меня сейчас в пристройке квартиры (там мастерская)-+ 5. И то работать можно - если не в шортах. А так при темп. на улице около 0 - в пристройке +10. для меня нормально. Насколько помню - для котельной +10 - нормально. 1 Посилання на коментар Поділитися на інших сайтах More sharing options...
smartdom Опубліковано: 2 лютого 2017 Поділитись Опубліковано: 2 лютого 2017 А как Вы видите равномерную выработку, если один ТЭН у меня в котле на 1.5кВт, а второй на 3кВт ? А главное, как этому поможет ПИД регулятор? да. возможно. ПИД+ШИМ+ твердотельное реле мощное на радиаторе типа фотек = плавное регулирование тенами 0-100% (тены включить параллельно) Посилання на коментар Поділитися на інших сайтах More sharing options...
jenkins Опубліковано: 2 лютого 2017 Поділитись Опубліковано: 2 лютого 2017 да. возможно. ПИД+ШИМ+ твердотельное реле мощное на радиаторе типа фотек = плавное регулирование тенами 0-100% (тены включить параллельно) ШИМ на пару киловат создаст такие помехи всему оборудованию дома что мало не покажется. Посилання на коментар Поділитися на інших сайтах More sharing options...
smartdom Опубліковано: 2 лютого 2017 Поділитись Опубліковано: 2 лютого 2017 ШИМ на пару киловат с переходом через 0???? и какой частоты? Добавлено через 1 минуту давно придумано....я лишь предложил бюджетный вариант баксов на 20 www.regin.ua/electriccontroller Посилання на коментар Поділитися на інших сайтах More sharing options...
jenkins Опубліковано: 2 лютого 2017 Поділитись Опубліковано: 2 лютого 2017 с переходом через 0???? и какой частоты? Добавлено через 1 минуту давно придумано....я лишь предложил бюджетный вариант баксов на 20 www.regin.ua/electriccontroller причем тут ШИМ к переходу через ноль? Переход через ноль это фазо-импульсное управление, и оно по помехам не особо уступает Посилання на коментар Поділитися на інших сайтах More sharing options...
smartdom Опубліковано: 2 лютого 2017 Поділитись Опубліковано: 2 лютого 2017 и оно по помехам не особо уступает откуда помехи? я правильно понимаю что вы просто не сталкивались с тем о чем я пишу? Добавлено через 3 минуты такое применяют в бюджетных щитах управление приточной вентиляции с эл нагревателями...где нужно гораздо быстрее шим чем с водой... Добавлено через 5 минут Переход через ноль это фазо-импульсное управление это решает твердотельное реле само...а пид и шим это контроллер. Добавлено через 2 минуты global.wago.com/appnoteadmin/libraries23/Libraries_BA/public/Building_HVAC_03_en.pdf стр 189 Посилання на коментар Поділитися на інших сайтах More sharing options...
jenkins Опубліковано: 3 лютого 2017 Поділитись Опубліковано: 3 лютого 2017 минимум 60секунд в одном состоянии... это сверх низкочастотный "ШИМ". Ну тогда ладно. Помехи при включении и выключании нагрузки. При переходе через ноль конечно их меньше. Думал, идет речь про классический "среднечастотный" ШИМ, уточняйте Посилання на коментар Поділитися на інших сайтах More sharing options...
Tamburello Опубліковано: 3 лютого 2017 Поділитись Опубліковано: 3 лютого 2017 в сети с переменным током ШИМ без датчика перехода нуля бесполезен. потому что в разное время будет разное напряжение, и без повторяемости открытия ключа в нужном месте фазы получается вот такое вот. но и я вот тоже не понимаю, откуда помехи? нагрузка подключается 50 раз в секунду. Посилання на коментар Поділитися на інших сайтах More sharing options...
sov1178 Опубліковано: 6 лютого 2017 Автор Поділитись Опубліковано: 6 лютого 2017 да. возможно. ПИД+ШИМ+ твердотельное реле мощное на радиаторе типа фотек = плавное регулирование тенами 0-100% (тены включить параллельно) Оно то возможно, но нужно ли? Вот пара запросов к БД, которая в принципе дает ответ на вопрос (первая строка возвращает кол-во минут которые проработал 1.5кВт ТЭН, вторая - 3кВт ТЭН): Твердотельное реле это конечно хорошо, но дорого и греется. Посилання на коментар Поділитися на інших сайтах More sharing options...
smartdom Опубліковано: 6 лютого 2017 Поділитись Опубліковано: 6 лютого 2017 Твердотельное реле это конечно хорошо, но дорого на али 7 уе ru.aliexpress.com/item/FOTEK-Yang-Ming-Single-phase-DC-control-AC-solid-state-relays-SSR-75DA/1672938787.html?spm=2114.13010608.0.0.Skfxa7 но нужно ли? это дело хозяйское... Посилання на коментар Поділитися на інших сайтах More sharing options...
sov1178 Опубліковано: 6 лютого 2017 Автор Поділитись Опубліковано: 6 лютого 2017 на али 7 уе Может быть потом. Нынче для 7ye я могу найти более полезное применение ;) 1 Посилання на коментар Поділитися на інших сайтах More sharing options...
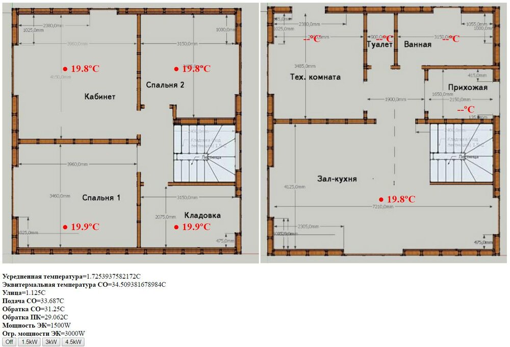
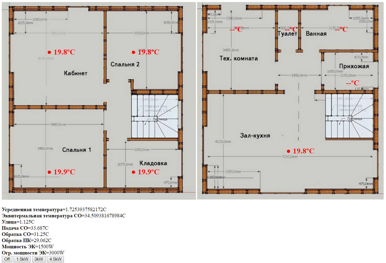
sov1178 Опубліковано: 27 лютого 2017 Автор Поділитись Опубліковано: 27 лютого 2017 Приветствую всех! Добавил в скрипт управления отоплением управление по наружной температуре и эквитермальной кривой. Пока результат нравится : Днем два часа отопления не было. Переходной процесс мне понравился. Учитывается тепловая инерция здания и есть коррекция на внутреннюю температуру. Наверное еще добавлю режим ускоренного разогрева, но в этом сезоне испытать скорее всего уже не выйдет. Что интересно, температура на подаче стала стабильной и более низкой (точнее соответствующей потребностям), и о чудо, система стала практически идеально отбалансирована (установки на балансировочных кранах расчетные), что видно и по графикам управления актуаторами и по температурам в комнатах: По всему прихожу к почти классическому варианту 6 Посилання на коментар Поділитися на інших сайтах More sharing options...
sov1178 Опубліковано: 8 березня 2017 Автор Поділитись Опубліковано: 8 березня 2017 Поздравляю женскую половину форума с 8 марта! Желаю любви, здоровья, радости и весеннего настроения! И конечно всем мира и добра! :Rose: 3 Посилання на коментар Поділитися на інших сайтах More sharing options...
sov1178 Опубліковано: 8 березня 2017 Автор Поділитись Опубліковано: 8 березня 2017 Немного модернизировал систему отопления www.stroimdom.com.ua/forum/showthread.php?p=4213232#post4213232 . Пока правда получил частично результат, а частично опыт 2 Посилання на коментар Поділитися на інших сайтах More sharing options...
AMG72 Опубліковано: 14 березня 2017 Поділитись Опубліковано: 14 березня 2017 Классная тема, слежу с самого начала, вот только на каком языке последние пару страниц? 2 Посилання на коментар Поділитися на інших сайтах More sharing options...
Tamburello Опубліковано: 14 березня 2017 Поділитись Опубліковано: 14 березня 2017 Классная тема, слежу с самого начала, вот только на каком языке последние пару страниц? My native language is с plus plus Посилання на коментар Поділитися на інших сайтах More sharing options...
sov1178 Опубліковано: 14 березня 2017 Автор Поділитись Опубліковано: 14 березня 2017 Классная тема, слежу с самого начала, вот только на каком языке последние пару страниц? Ну немного в сторону IT отклонился, все же это намного ближе мне, чем стройка ... На стройке особого прогресса нет, т.к.: 1. Не очень активно занимался ею 2. В основном занимался доделыванием разных мелочей, на них уходит много времени, а показывать особенно нечего 3. Был смысл позаниматься отоплением пока погода позволяла "обкатать" изменения 4. Сейчас заболел, неделя уже выпала, следующая наверное тоже Так что, как будет что показать по строительной тематике обязательно покажу. Из интересных дел, которые предстоит сделать и где должно быть "на что посмотреть" - короб дымохода и его отделка на втором этаже, плитка на кухне. Остальное не очень интересно - унылое доделывание вагонки, ее покраска и установка разных отделочных элементов (уголки/штапики и т.п.), и всякая мелочь, которую совсем не видно. Очень много работы предстоит сделать на улице, но на это дело что-то нет сил, да и финансов, потому еще не решил, что сделаю и буду ли делать сейчас. Хотелось бы доделать отмостку, решить вопрос с двумя кучами земли/глины после выкапывания септика, сделать более-менее нормальный фасадный забор+ворота (а то сейчас просто старая сетка) и убрать накопившийся строительный мусор. Боюсь, что из всего этого более-менее реально только последнее ...но как оно будет посмотрим. 8 Посилання на коментар Поділитися на інших сайтах More sharing options...
AMG72 Опубліковано: 15 березня 2017 Поділитись Опубліковано: 15 березня 2017 установка разных отделочных элементов (уголки/штапики и т.п.), и всякая мелочь, которую совсем не видно. Вот этот момент можно было бы и раскрыть. У вас все так оригинально выходит. 1 Посилання на коментар Поділитися на інших сайтах More sharing options...
Рекомендовані повідомлення
Створіть акаунт або увійдіть у нього для коментування
Ви маєте бути користувачем, щоб залишити коментар
Створити акаунт
Зареєструйтеся для отримання акаунта. Це просто!
Зареєструвати акаунтУвійти
Вже зареєстровані? Увійдіть тут.
Увійти зараз