jursens Опубліковано: 15 лютого 2021 Поділитись Опубліковано: 15 лютого 2021 Всем добрый... Кто сталкивался с получением стройпаспорта в Киеве? У нас требуют 1:500, без нее не выдают. В отказе пишут про "рекомендацию сделать 1:500". Так же пишут про требование дать "эскиз намерения застройки", хотя от давался вместе с пакетом документов на 10 страницах! с размерами, отступами, этажностью, фасадами и т.д. Может кто судился с "Департамент містобудування та архітектури КМДА"? Посилання на коментар Поділитися на інших сайтах More sharing options...
Vent69 Опубліковано: 15 лютого 2021 Поділитись Опубліковано: 15 лютого 2021 Может кто судился с "Департамент містобудування та архітектури КМДА"? разницы нет это киев, одесса... Добавлено через 2 минуты первый раз когда отказали, мне косвенно намекнули, на то что эти все бумажки (эскизный проект) может делать только сертифицированный инженер.. (как я понимаю, им просто легче с 500ками работать) Посилання на коментар Поділитися на інших сайтах More sharing options...
jursens Опубліковано: 15 лютого 2021 Поділитись Опубліковано: 15 лютого 2021 разницы нет это киев, одесса.. На сколько я слышал не везде требуют 1:500. И мне не понятно, если 1:500 так необходима то почему ее не прописали в "порядку видачі будівельного паспорта забудови земельної ділянки". Посилання на коментар Поділитися на інших сайтах More sharing options...
chelsea Опубліковано: 15 лютого 2021 Поділитись Опубліковано: 15 лютого 2021 Всем добрый... Кто сталкивался с получением стройпаспорта в Киеве? У нас требуют 1:500, без нее не выдают. В отказе пишут про "рекомендацию сделать 1:500". Так же пишут про требование дать "эскиз намерения застройки", хотя от давался вместе с пакетом документов на 10 страницах! с размерами, отступами, этажностью, фасадами и т.д. Может кто судился с "Департамент містобудування та архітектури КМДА"? Куда и когда Вы подавили? Как быстро Вам дали ответ? Посилання на коментар Поділитися на інших сайтах More sharing options...
jursens Опубліковано: 15 лютого 2021 Поділитись Опубліковано: 15 лютого 2021 Куда и когда Вы подавили? Как быстро Вам дали ответ? Подавал через цнап, в конце 2020. Первый ответ дали на 12 рабочий день, второй раз подавал в январе этого года и ответ дали на 15 рабочий день. Посилання на коментар Поділитися на інших сайтах More sharing options...
Dendnepr Опубліковано: 15 лютого 2021 Поділитись Опубліковано: 15 лютого 2021 Просто посадка дома на 500-ке позволяет при помощи банальной линейки проверить все отступы Посилання на коментар Поділитися на інших сайтах More sharing options...
jursens Опубліковано: 15 лютого 2021 Поділитись Опубліковано: 15 лютого 2021 Просто посадка дома на 500-ке позволяет при помощи банальной линейки проверить все отступы А если дома еще нет а только планируется (собственно говоря его и не должно быть), что линейкой мерять? Правильней мерять (устанавливать) на месности, как должен дом стоять. Посилання на коментар Поділитися на інших сайтах More sharing options...
Dendnepr Опубліковано: 15 лютого 2021 Поділитись Опубліковано: 15 лютого 2021 А если дома еще нет а только планируется (собственно говоря его и не должно быть), что линейкой мерять? Правильней мерять (устанавливать) на месности, как должен дом стоять. Все верно. На 500 показываете ПЛАНИРУЕМУЮ посадку дома на местность. А они уже смотрят - можно ли так или нельзя. Мало ли какие объекты УЖЕ есть рядом с Вашим участком. Посилання на коментар Поділитися на інших сайтах More sharing options...
Dendnepr Опубліковано: 15 лютого 2021 Поділитись Опубліковано: 15 лютого 2021 Посилання на коментар Поділитися на інших сайтах More sharing options...
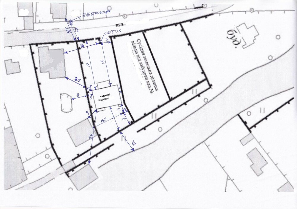
air bus Опубліковано: 15 лютого 2021 Поділитись Опубліковано: 15 лютого 2021 [ATTACH]712385[/ATTACH] Що з того, що зображено на аплікації потребує 500-ки? Всі ці розміри дуже легко вказуються на звичайному ескізі намірів забудови? Посилання на коментар Поділитися на інших сайтах More sharing options...
jursens Опубліковано: 15 лютого 2021 Поділитись Опубліковано: 15 лютого 2021 Все верно. На 500 показываете ПЛАНИРУЕМУЮ посадку дома на местность. А они уже смотрят - можно ли так или нельзя. Мало ли какие объекты УЖЕ есть рядом с Вашим участком. Мне непонятно одно, если 500 так необходима, то почему ее нет в перечне для получения стойпаспорта? Застройщик при подаче документов дает эскиз намерений, где в том числе указывает растояния до ближащих обьектов. Какие обьекты могут быть возле моего участка Департамент может увидеть по карте, по которой можно проверить документы на строящиеся и уже построеные обьекты. Доступ к карте свободный. Пока в законе не будет требования о 500, я считаю что требовать ее незаконно . 1 Посилання на коментар Поділитися на інших сайтах More sharing options...
air bus Опубліковано: 15 лютого 2021 Поділитись Опубліковано: 15 лютого 2021 (змінено) Мало ли какие объекты УЖЕ есть рядом с Вашим участком. Якщо не помиляюсь, то якщо об'єкт відсутній в документах відділу містобудування та архітектури, але є на ділянці - вважається самобудом (самостроем). Хоча в такій ситуації про гарні відносини з сусідами можна забути, через те, що їх можуть змусити знести таку будівлю Змінено 15 лютого 2021 користувачем air bus Посилання на коментар Поділитися на інших сайтах More sharing options...
Dendnepr Опубліковано: 16 лютого 2021 Поділитись Опубліковано: 16 лютого 2021 Да не подавайте. Если Вам так хочется. Судитесь. Но 500 это привязка к местности и без нее могут быть сюрпризы- кабель какой подземный, труба водопроводная, газовая. Их видно на 500. И есть охранные, санитарные нормы отступов и расстояний от надземных и подземных объектов. И в первую очередь это нужно знать Вам. Есть один родственник, очень дальний. построился на магистральной газовой трубе. Посилання на коментар Поділитися на інших сайтах More sharing options...
jursens Опубліковано: 16 лютого 2021 Поділитись Опубліковано: 16 лютого 2021 Да не подавайте. Если Вам так хочется. Судитесь. Я сам разберусь что мне делать. Я спрашивал у тех, кто оспаривал требование 500. Но 500 это привязка к местности и без нее могут быть сюрпризы- кабель какой подземный, труба водопроводная, газовая. Их видно на 500. И есть охранные, санитарные нормы отступов и расстояний от надземных и подземных объектов. И в первую очередь это нужно знать Вам. Есть один родственник, очень дальний. построился на магистральной газовой трубе. Есть Генеральный, детальный, ситуационный план застройки. Все это (или что-то из этого) должно быть в архитектуре. Должны быть какие-то архивы и т.п. Откуда на 500 появится кабель? Его сканируют на местности? Как я понимаю, всю информацию наносят на 500 из дополнительных источников. Если бы 500 была законодательно закреплена, вопросов бы не было к ней. И еще, если Вы старожил форума, твердите о необходимости 500, то скажите пожалуйста, как пример, если бы при оплате в магазине карточкой от Вас потребовали пройти идентификацию (пойти в банк, взять свежую справку что карточка Ваша), Вы как бы отреагировали? Логика в действиях Вашей идентификации есть, вдруг Вы украли карточку. Мне кажется, что объяснить почему кто-то что-то требует можно во всем, по этому и издаются нормативно-правовые акты, в которых указывается как нужно делать. А все остальное это самоуправство, превышение служебных полномочий и т.д. 1 Посилання на коментар Поділитися на інших сайтах More sharing options...
Dendnepr Опубліковано: 16 лютого 2021 Поділитись Опубліковано: 16 лютого 2021 Посилання на коментар Поділитися на інших сайтах More sharing options...
jursens Опубліковано: 16 лютого 2021 Поділитись Опубліковано: 16 лютого 2021 Посилання на коментар Поділитися на інших сайтах More sharing options...
jursens Опубліковано: 16 лютого 2021 Поділитись Опубліковано: 16 лютого 2021 (змінено) Информация с свободного доступа. В Архитектуре есть более детальная информация. Так в чем смысл 1:500? Змінено 16 лютого 2021 користувачем jursens Посилання на коментар Поділитися на інших сайтах More sharing options...
Vent69 Опубліковано: 16 лютого 2021 Поділитись Опубліковано: 16 лютого 2021 На сколько я слышал не везде требуют 1:500. И мне не понятно, если 1:500 так необходима то почему ее не прописали в "порядку видачі будівельного паспорта забудови земельної ділянки". потому как она не требуется, это как к примеру вы жарите картошку, у вас два пути: 1 пойти и картоху купить самому, 2 заставить кого- то принести картоху вас могут попросить дать 500-у, вы можете сами ее приложить, но отказать в получении паспорта вам не могут по причине того что нет 500-ки. Добавлено через 1 минуту [ATTACH]712398[/ATTACH] Так в чем смысл 1:500? смысл в деньгах по информации которая есть у меня, главный архитектор района 3 года назад получал 8 тыщ грн.. сейчас не знаю.. Добавлено через 56 секунд [ATTACH]712398[/ATTACH] Так в чем смысл 1:500? это как примерно в свидетельстве права собственности - есть реестр, хош смотри... но бумажка важнее.. Посилання на коментар Поділитися на інших сайтах More sharing options...
air bus Опубліковано: 16 лютого 2021 Поділитись Опубліковано: 16 лютого 2021 Знайшов сайт, на якому був приклад запиту на отримання викопіювання з топографо-геодезичного плану. dostup.pravda.com.ua/request/vikopiiuvannia_z_topoghrafo_ghie_2 Добавлено через 25 минут Спробую, за такою ж схемою отримати викопіювання Посилання на коментар Поділитися на інших сайтах More sharing options...
jursens Опубліковано: 16 лютого 2021 Поділитись Опубліковано: 16 лютого 2021 Спробую, за такою ж схемою отримати викопіювання Там 1:2000. Я у меня требуют 1:500. Посилання на коментар Поділитися на інших сайтах More sharing options...
air bus Опубліковано: 16 лютого 2021 Поділитись Опубліковано: 16 лютого 2021 Там 1:2000. Я у меня требуют 1:500. а що заважає в запиті написати, щоб вони надали у необхідному масштабі? Посилання на коментар Поділитися на інших сайтах More sharing options...
jursens Опубліковано: 16 лютого 2021 Поділитись Опубліковано: 16 лютого 2021 а що заважає в запиті написати, щоб вони надали у необхідному масштабі? Да в принципе ничего не мешает. Сегодня попробую подать. Посилання на коментар Поділитися на інших сайтах More sharing options...
air bus Опубліковано: 16 лютого 2021 Поділитись Опубліковано: 16 лютого 2021 відразу в запиті вказуйте свої данні: ПІБ, місце реєстрації, контактний телефон... бо можуть не зареєструвати запит, як такий, що не містить повної інформації Посилання на коментар Поділитися на інших сайтах More sharing options...
jursens Опубліковано: 16 лютого 2021 Поділитись Опубліковано: 16 лютого 2021 відразу в запиті вказуйте свої данні: ПІБ, місце реєстрації, контактний телефон... бо можуть не зареєструвати запит, як такий, що не містить повної інформації Отправил. Теперь ждем 5 рабочих дней. Посилання на коментар Поділитися на інших сайтах More sharing options...
Dendnepr Опубліковано: 16 лютого 2021 Поділитись Опубліковано: 16 лютого 2021 Зачем? В перечне на стройпаспорт нет 500? Ребята. 5сть моменты, когда нужна принципиальность при общении с госорганами, но в этом случае (500) - совсем принципиальность не нужна. Абсолютно. Самим на ней удобно дом садить, заодно посмотреть перепады, где коммуникации какие. Кстати, когда брал 500 (со штампиком "придатно") мне ещё дали 1000 и 2000. Они потом пригодились при подключении электричества. Не сердитесь. Посилання на коментар Поділитися на інших сайтах More sharing options...
Рекомендовані повідомлення
Створіть акаунт або увійдіть у нього для коментування
Ви маєте бути користувачем, щоб залишити коментар
Створити акаунт
Зареєструйтеся для отримання акаунта. Це просто!
Зареєструвати акаунтУвійти
Вже зареєстровані? Увійдіть тут.
Увійти зараз