B.S.V. Опубліковано: 29 серпня 2012 Автор Поділитись Опубліковано: 29 серпня 2012 А радиаторы какие ? На картинках Посилання на коментар Поділитися на інших сайтах More sharing options...
S_S_S Опубліковано: 30 серпня 2012 Поділитись Опубліковано: 30 серпня 2012 Можно увеличить и увидеть, но специально для Вас отметил красненьким Спасибо! Я увеличивала, но все трубы серые и похожие А на первой фотографии трубы канализации высоко на стене - это зачем? Посилання на коментар Поділитися на інших сайтах More sharing options...
Vadim V. Опубліковано: 30 серпня 2012 Поділитись Опубліковано: 30 серпня 2012 Выводы на радиаторы были зафиксированы раствором, радиаторы сняты, запечатаны и сложены до окончания ремонтных работ. А радиаторы какие ? На картинках Я чего спросил ,на инструкции к радиаторам, что у меня (стальные Пурмо), так не рекомендуют делать.... , хотя и я сделал как вы, переживаю не проржавеют ли,ведь внутри они влажные, может феном посушить? или не стоит париться? Посилання на коментар Поділитися на інших сайтах More sharing options...
S_S_S Опубліковано: 30 серпня 2012 Поділитись Опубліковано: 30 серпня 2012 ведь внутри они влажные почему? система же заполнялась только после слов "Мы вселяемся" 1 Посилання на коментар Поділитися на інших сайтах More sharing options...
Vadim V. Опубліковано: 30 серпня 2012 Поділитись Опубліковано: 30 серпня 2012 почему? система же заполнялась только после слов "Мы вселяемся" Вы пробного пуска- испытания системы отопления не делали, перед тем как снять радиаторы? Посилання на коментар Поділитися на інших сайтах More sharing options...
S_S_S Опубліковано: 30 серпня 2012 Поділитись Опубліковано: 30 серпня 2012 Вы пробного пуска- испытания системы отопления не делали, перед тем как снять радиаторы? нет, у меня не делали Посилання на коментар Поділитися на інших сайтах More sharing options...
B.S.V. Опубліковано: 30 серпня 2012 Автор Поділитись Опубліковано: 30 серпня 2012 Спасибо! Я увеличивала, но все трубы серые и похожие А на первой фотографии трубы канализации высоко на стене - это зачем? В нормальной ситуации, когда известно, какой котел, можно даже котельню сделать красиво. Здесь котел был известен, поэтому сразу была подведена канализация на слив конденсата с конденсационного котла и слив с предохранительного клапана котла. 1 Посилання на коментар Поділитися на інших сайтах More sharing options...
B.S.V. Опубліковано: 30 серпня 2012 Автор Поділитись Опубліковано: 30 серпня 2012 Вы пробного пуска- испытания системы отопления не делали, перед тем как снять радиаторы? Если Вы полностью запускали систему до реальной необходимости ее запуска, я Вам сочувствую. Причины 2: Ваше недоверие к подрядчику или неуверенность подрядчика в своей работе. Проверка системы осуществляется: 1. водой, если есть стопроцентная уверенность в запуске до холодов. 2.воздухом если такой гарантии нет. При этом радиаторы, водой никогда не заполняются. Посилання на коментар Поділитися на інших сайтах More sharing options...
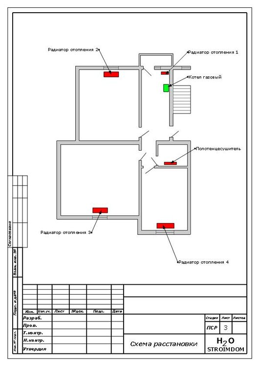
B.S.V. Опубліковано: 30 серпня 2012 Автор Поділитись Опубліковано: 30 серпня 2012 По просьбе одного коллеги,"признанного специалиста" ,была сделана квартира его друзей (самому видно было некогда). С зимы записался в график и ежемесячно напоминал об этом Запорная арматура "Bugatti", трубопроводы- медь, канализация "Ostendorf" 1 Посилання на коментар Поділитися на інших сайтах More sharing options...
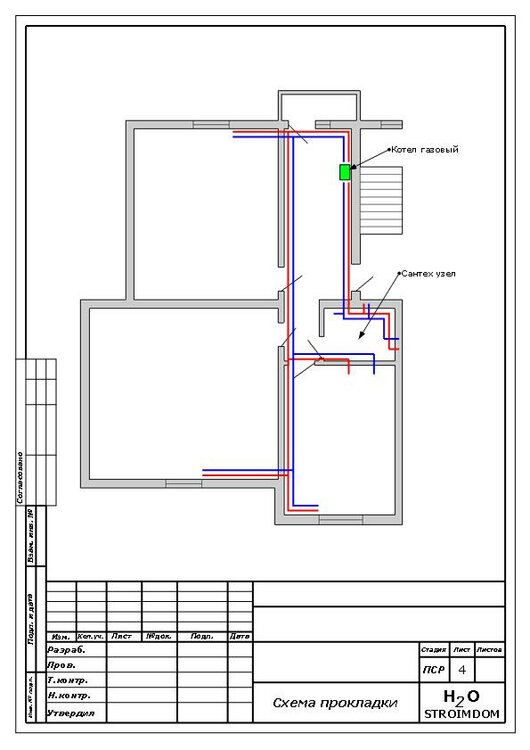
B.S.V. Опубліковано: 30 серпня 2012 Автор Поділитись Опубліковано: 30 серпня 2012 Вчера была закончена установка сантехники (кроме кухни, мебельщики, как всегда, в своем репертуаре) Посилання на коментар Поділитися на інших сайтах More sharing options...
B.S.V. Опубліковано: 30 серпня 2012 Автор Поділитись Опубліковано: 30 серпня 2012 Прошу обратить внимание заказчиков, при планировке раскладки плитки, чтобы выпуклые фризы не попадали на: смесители, кнопки унитазов, выводы полотенцесушителей, места примыкания умывальников. В данной ситуации выкрутились, благо бормашинка давно уже прописалась в комплекте установочного инструмента, но не у всех она есть и не каждому нравиться работа стоматолога. 1 Посилання на коментар Поділитися на інших сайтах More sharing options...
Hover Опубліковано: 30 серпня 2012 Поділитись Опубліковано: 30 серпня 2012 Без комментариев... . 5 Посилання на коментар Поділитися на інших сайтах More sharing options...
Korni Опубліковано: 30 серпня 2012 Поділитись Опубліковано: 30 серпня 2012 Без комментариев... . Ну, всё-таки это не профи-ветка. Гражданские не поймут и подумают, что так и надо. Посилання на коментар Поділитися на інших сайтах More sharing options...
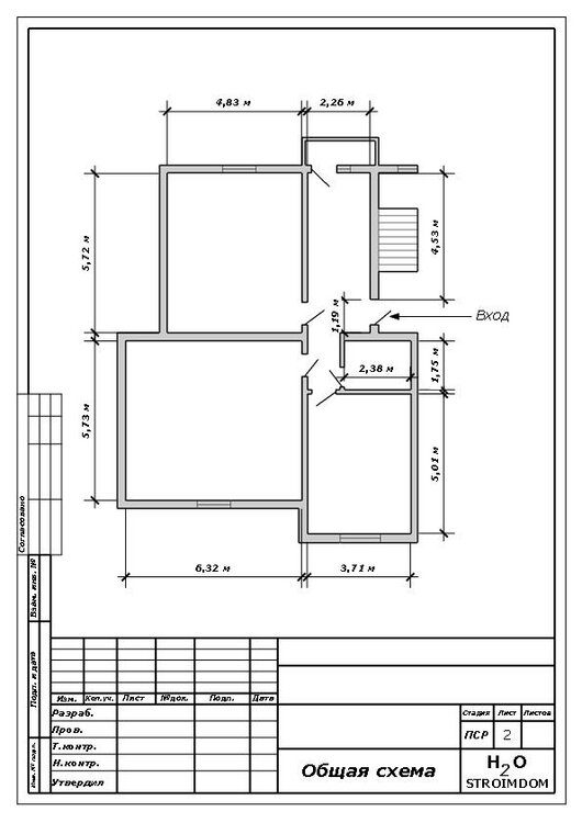
Hover Опубліковано: 31 серпня 2012 Поділитись Опубліковано: 31 серпня 2012 Ну, всё-таки это не профи-ветка. Гражданские не поймут и подумают, что так и надо. Ну как сказать.... читая данный раздел порой думаешь и что мешало людям потребовать проект, а потом носом тыкать.... пословицу знают все... но жадность куда без нее. :D Наверно этот порок унаследовали от СССР когда качество услуг частных умельцев неставился под сомнение, да и не носил такой массовый размах. А потом пишем "Что не сантехник то пуп земли" а что мы ему можем предъявить.... что, нет бумажки нет и нарушений в монтаже. Эти сканы лишь малая часть всего проекта на отопление 4х этажного многоквартирного дома, показал-бы еще да нельзя..... . А сам проект денег небольших стоит есть от 2000грн 15000, 27000, 60000. Все зависит от заказчика большой дом требуй проект, вы должны знать что как и где будут монтировать. И если "гуру" со стажем пусть 15-45 лет если он неможет выразить свои знания и понимание на бумаге то грош ему цена. На моей практике так сталкиваюсь ежедневно. Особенно нравится выражение типа в таком духе "Диаметр маленький чуток увеличить надо и все заработает" или такой "вопрос: почему первый радиатор горячее остальных, да и последний совсем холодный"ответ: Так он-же первый берет на себя температуру так как стоит первым от котла, а последниму что останется" вопрос: "и что нужно сделать чтоб работало" ответ:"увеличить диаметр трубы подачи" вопрос: а про балансировку системы что небуть знаешь" ответ: "ЧЕГО" "больше вопросов не имею". Посилання на коментар Поділитися на інших сайтах More sharing options...
Korni Опубліковано: 31 серпня 2012 Поділитись Опубліковано: 31 серпня 2012 ...."ЧЕГО".... Проект на частных домах может быть и упрощённый, согласитесь. ИМХО, для качественного монтажа достаточно стадии "эскиз/монтажная схема". И эта стадия проектирования также подходит для самостоятельного монтажа. [spoiler=Её состав:]1. Производятся инженерные расчеты (с помощью программного обеспечения (ссылка устарела), учитывает материал труб - Pex Rehau): (ссылка устарела) (определение теплопотерь здания); расчет мощности отопительных приборов; гидравлический расчет магистралей отопления и их элементов; гидравлический расчет магистралей водоснабжения и канализации 2. подготавливаются чертежи/схемы: (ссылка устарела) размещение оконечного оборудования (отопительных приборов и (ссылка устарела)); размещение отопительных (ссылка устарела) и их элементов (т.н. трассировка). 3. На основе расчётов и чертежей готовится спецификация материалов. стоит ли отдельно заказывать проект 5 Посилання на коментар Поділитися на інших сайтах More sharing options...
REYDER Опубліковано: 31 серпня 2012 Поділитись Опубліковано: 31 серпня 2012 Проект на частных домах может быть и упрощённый, согласитесь. 100% поддержу! Проги Рехау и подобные выдают все что надо и для монтажа. И расчет и спецификации и гидравлику и привязки. Посилання на коментар Поділитися на інших сайтах More sharing options...
B.S.V. Опубліковано: 31 серпня 2012 Автор Поділитись Опубліковано: 31 серпня 2012 Без комментариев... . Извините, но немного прокомментирую последнее фото. При выполнении работ по Вашему чертежу получиться следующее. То есть представьте себе ширину штроб, которую Вы рекомендуете Посилання на коментар Поділитися на інших сайтах More sharing options...
B.S.V. Опубліковано: 31 серпня 2012 Автор Поділитись Опубліковано: 31 серпня 2012 95% монтажников смонтируют это- так. Поэтому дружеский совет проектантам, хотя бы иногда бывать на объектах, чтобы быть ближе к реалиям. Инженер, который проектирует для меня, уже давно не пишет спецификаций (кроме длины труб), так как реалии немного другие. Посилання на коментар Поділитися на інших сайтах More sharing options...
irina1969 Опубліковано: 31 серпня 2012 Поділитись Опубліковано: 31 серпня 2012 а что это за красота ? смотрится 1 Посилання на коментар Поділитися на інших сайтах More sharing options...
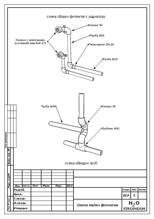
murava Опубліковано: 31 серпня 2012 Поділитись Опубліковано: 31 серпня 2012 Все, что там нарисовано в выложенном проекте имеет исключительно академический смысл и к монтажу привязано чуть более чем никак. Как минимум зачем городить тупиковые переходы с 25 на 20, когда в мире полно монтажных колен на 1/2" с 25го диаметра. Не надо эти рисунки никому. Это действует только на умы неискушенных заказчиков. 7 Посилання на коментар Поділитися на інших сайтах More sharing options...
B.S.V. Опубліковано: 31 серпня 2012 Автор Поділитись Опубліковано: 31 серпня 2012 а что это за красота ? смотрится Внутрипольный конвектор с вентилятором, приспособленный в подоконник. 1 Посилання на коментар Поділитися на інших сайтах More sharing options...
Hover Опубліковано: 31 серпня 2012 Поділитись Опубліковано: 31 серпня 2012 95% монтажников смонтируют это- так. Поэтому дружеский совет проектантам, хотя бы иногда бывать на объектах, чтобы быть ближе к реалиям. Инженер, который проектирует для меня, уже давно не пишет спецификаций (кроме длины труб), так как реалии немного другие. Не знаю какой ПП вы берете и у какова производителя раз у вас такие штробы получаются тут нечего сказать.... . А по поводу дружеского совета проектантам скажу вы когда впервые взяли в руки ПП или тому подобное. Ну про себя скажу лет так 25 назад, сначала как монтажник а потом как инженер проектант, так что не делайте поспешных выводов и прежде чем бросать камень в огород хорошенько подумайте ;). Добавлено через 3 минуты Все, что там нарисовано в выложенном проекте имеет исключительно академический смысл и к монтажу привязано чуть более чем никак. Как минимум зачем городить тупиковые переходы с 25 на 20, когда в мире полно монтажных колен на 1/2" с 25го диаметра. Не надо эти рисунки никому. Это действует только на умы неискушенных заказчиков. Не зная особенностей данного объекта а уже такие выводы даете а являетесь Признанный специалист форума "Строимдом" ай-я-яй Посилання на коментар Поділитися на інших сайтах More sharing options...
murava Опубліковано: 31 серпня 2012 Поділитись Опубліковано: 31 серпня 2012 .... Не зная особенностей данного объекта а уже такие выводы даете а являетесь Признанный специалист форума "Строимдом" ай-я-яй Без обид, любой просёр полимеров в сантехнике можно оправдать особенностью объекта или свалить на смежников - "папередников" и чаще всего "послидовников". Какая особенность мешает использовать тупиково 25ю трубу? Ширина штробы - ересь, 2 см ничего не решают. Отсутствие такого ассортимента? Наврядли. Цена? Ой ли? В ППР разводке оно стоит по весу материала. У хирургов есть такое понятие как "операция по социальным показаниям" - это когда бабла вагон, а все органы здоровы. Вот тут проект как раз оттуда. Для монтажника его ценность почти нулевая, разве что отмазки придумывать А вот многие проектанты за такое ***дожество руками просят по 1,5К полновесных долларов за проект... Преценденты есть. И платют, ибо красиво и листиков много Правда потом в котельной на 40 кВт по 8 насосов нарисовано - но красиво висят, чертяки - засмотришься..... 5 Посилання на коментар Поділитися на інших сайтах More sharing options...
Hover Опубліковано: 31 серпня 2012 Поділитись Опубліковано: 31 серпня 2012 Согласен с вами.... но все ровно он нужен и мы к этому придем рано или поздно. ну а это так для общего развития мысли людей далеки от H2O :D. Посилання на коментар Поділитися на інших сайтах More sharing options...
irina1969 Опубліковано: 31 серпня 2012 Поділитись Опубліковано: 31 серпня 2012 Внутрипольный конвектор с вентилятором, приспособленный в подоконник. очень и очень, а такие конверторы монтируются в деревянных домах ? материал пола - дубовая доска.. и еще как они по цене ? сильно кусаются Посилання на коментар Поділитися на інших сайтах More sharing options...
Рекомендовані повідомлення
Створіть акаунт або увійдіть у нього для коментування
Ви маєте бути користувачем, щоб залишити коментар
Створити акаунт
Зареєструйтеся для отримання акаунта. Це просто!
Зареєструвати акаунтУвійти
Вже зареєстровані? Увійдіть тут.
Увійти зараз