turbik78 Опубліковано: 24 березня 2013 Поділитись Опубліковано: 24 березня 2013 расчеты и "в реальности" оказывается не совсем одно и тоже - фурнитура не держит заявленную массу, профиль более хрупкий т.к. его уже штампуют в Украине, ну и как всегда производитель съэкономил на армировке - поэтому и выходит на бумаге красиво, а в реале створка трет, провисает и ее нужно постоянно регулировать (ну или открывать/закрывать на весу уменьшив нагрузку держа за ручку) - но это тоже до поры т.к. предел регулировки не вечен. а если там стоит еще замок-защелка и двери закрываются "с лёта"... многие не хотят фрамуг/импостов/ребер жесткости, но в реале окна оказываются как по ссылке выше у архитектра, ну или владелец очень часто общается с регулировщиками и в итоге иногда даже готовые окна подвергаются модернизации, причем на месте, т.к. ремонт давно закончен и выламывать откосы не хотят, что по финансам влетает даже дороже чем заказать новые окна. и многие отказываются не из-за того что выполнить не возможно, а из-за гембеля в обслуге, выполнить и продать "без гарантии" проблем не составляет, хоть 2.50 целиком и 6-ми стеклами. Посилання на коментар Поділитися на інших сайтах More sharing options...
Dmode Опубліковано: 24 березня 2013 Автор Поділитись Опубліковано: 24 березня 2013 расчеты и "в реальности" оказывается не совсем одно и тоже - фурнитура не держит заявленную массу, профиль более хрупкий т.к. его уже штампуют в Украине, ну и как всегда производитель съэкономил на армировке как я говорил смотрел в живую на аналогичное окно, результат меня удовлетворил. По заявлению Рехау, профиль Geneo ламинированый в массе не производиться в Украние. Контроль армирования производитель предлагает сделать путем моего личного присутствия при процессе производства, может и воспользуюсь такой возможностью Посилання на коментар Поділитися на інших сайтах More sharing options...
lndigo Опубліковано: 24 березня 2013 Поділитись Опубліковано: 24 березня 2013 как я говорил смотрел в живую на аналогичное окно, результат меня удовлетворил. По заявлению Рехау, профиль Geneo ламинированый в массе не производиться в Украние. Контроль армирования производитель предлагает сделать путем моего личного присутствия при процессе производства, может и воспользуюсь такой возможностью Рехау вообще не имеет производства в Украине. Генео же изготавливается только на заводе в г. Виттмунд, Германия. 1 Посилання на коментар Поділитися на інших сайтах More sharing options...
Dmode Опубліковано: 24 березня 2013 Автор Поділитись Опубліковано: 24 березня 2013 объясните пожалуйста почему в 175 сообщении пропали все вложения (фото в спойлерах)? Как это исправить? хотя у себя на компе я их вижу, видимо в кеше остались, на других устройствах нет вложений... Посилання на коментар Поділитися на інших сайтах More sharing options...
Luko Опубліковано: 26 березня 2013 Поділитись Опубліковано: 26 березня 2013 объясните пожалуйста почему в 175 сообщении пропали все вложения (фото в спойлерах)? Как это исправить? хотя у себя на компе я их вижу, видимо в кеше остались, на других устройствах нет вложений... Вы не заходили в свой кабинет и не удаляли вложения из профиля? Посилання на коментар Поділитися на інших сайтах More sharing options...
Dmode Опубліковано: 26 березня 2013 Автор Поділитись Опубліковано: 26 березня 2013 Вы не заходили в свой кабинет и не удаляли вложения из профиля? нет, они там и не появились почему-то, наверное из за того, что долго писал сообщение. Модератор обещал отредактировать сообщение Посилання на коментар Поділитися на інших сайтах More sharing options...
Luko Опубліковано: 26 березня 2013 Поділитись Опубліковано: 26 березня 2013 нет, они там и не появились почему-то, наверное из за того, что долго писал сообщение. Модератор обещал отредактировать сообщение я их видела, когда читала сообщение так что они потом пропали... Посилання на коментар Поділитися на інших сайтах More sharing options...
Dmode Опубліковано: 26 березня 2013 Автор Поділитись Опубліковано: 26 березня 2013 я их видела, когда читала сообщение так что они потом пропали... ну значит не все отлажено работает на форуме Посилання на коментар Поділитися на інших сайтах More sharing options...
Dmode Опубліковано: 7 квітня 2013 Автор Поділитись Опубліковано: 7 квітня 2013 снег начал таять, земля превратилась в болото. Проверил дренаж - работает, течет. Натекло на 2 кольца уже в дренажном колодце. 7 Посилання на коментар Поділитися на інших сайтах More sharing options...
Александр. Киев Опубліковано: 7 квітня 2013 Поділитись Опубліковано: 7 квітня 2013 Очень интересно и качественно. С удовольствием подпишусь. 1 Посилання на коментар Поділитися на інших сайтах More sharing options...
КОРН Опубліковано: 10 квітня 2013 Поділитись Опубліковано: 10 квітня 2013 Снимаю шляпу Самостоятельно разобраться в большинстве вопросов еще до начала стройки, освоить софт, учесть детали - вы что, бэтмен?!! Подписываюсь, чтобы не упустить тему из виду. Планирую в ближайшие годы небольшую стройку, рассматриваю УШП как основной вариант фундамента. Беспокоит очень сильно ее цена. Так что посмотрим. У вас все качественно и с запасом, только несколько моментов с прогонами, но вам уже написали. И интересно было бы больше деталей по крыше. 4 Посилання на коментар Поділитися на інших сайтах More sharing options...
Dmode Опубліковано: 10 квітня 2013 Автор Поділитись Опубліковано: 10 квітня 2013 только несколько моментов с прогонами, но вам уже написали. И интересно было бы больше деталей по крыше. напомните что за моменты с прогонами, и какие детали по крыше интересуют Посилання на коментар Поділитися на інших сайтах More sharing options...
КОРН Опубліковано: 10 квітня 2013 Поділитись Опубліковано: 10 квітня 2013 напомните что за моменты с прогонами, и какие детали по крыше интересуют На этой фотографии сразу все моменты: вполдерева не там запил, таким образом половина прогона висит на двух шпильках, опирание на ГБ - спорный момент. По крыше. Вы ее накрывали в спешке и не уделили описанию деталей внимания. Может там все отлично, но мы же этого не видели. Как организован фронтонный свес (консоль)? Как выглядит узел "мембрана-обрешетка-лобовая (ветровая) поланка - капельник"? Там люди часто делают ошибки. Посилання на коментар Поділитися на інших сайтах More sharing options...
Игореха Опубліковано: 10 квітня 2013 Поділитись Опубліковано: 10 квітня 2013 начинаем укладку гиробарьера и контррейки и обрешетки внутри становилось более уютно, снег переставал сыпать внутрь Супер тема! Как то я тоже раньше не заходил, а зря Красиво и качественно! Вот только по этим фотографиям не совсем понял, как вы Евробарьер стелили.. Вижу сплошную контррейку, но под ней еще нет Евробарьера. Поделитесь секретом ;) 1 Посилання на коментар Поділитися на інших сайтах More sharing options...
КОРН Опубліковано: 11 квітня 2013 Поділитись Опубліковано: 11 квітня 2013 Контррейка не прибита, значит протягивали под нее. Это мои догадки В одни руки такое не сделать. А есть ли смысл? Посилання на коментар Поділитися на інших сайтах More sharing options...
Dmode Опубліковано: 11 квітня 2013 Автор Поділитись Опубліковано: 11 квітня 2013 Контррейка не прибита, значит протягивали под нее. Это мои догадки именно так и делали. Как организован фронтонный свес (консоль)? Как выглядит узел "мембрана-обрешетка-лобовая (ветровая) поланка - капельник"? Там люди часто делают ошибки. этого еще нет. Собираюсь опускать плоскость крыши вдоль стен второго этажа (гляньте на фасады с 1-го сообщения) с одновременным утеплением стен и устройством скрытого водостока (как сдесь или в прикреплении). Сейчас понял что это авантюра - но буду придерживаться ранее намеченного плана. Водосток буду формировать из цельной полоски жести на всю его длину, которая будет лежать между досок, все будет держаться на сварных элементах которые будут крепиться к стропилам и стенам. Вот эскизы. 5 Посилання на коментар Поділитися на інших сайтах More sharing options...
Игореха Опубліковано: 12 квітня 2013 Поділитись Опубліковано: 12 квітня 2013 именно так и делали. А ЗАЧЕМ?! Это же редкостное извращение Если бы я сам не собирал кровлю, то решил бы что это легкая задача. Но даже на "чистые" стропила расстелить мембрану КАЧЕСТВЕННО это не простая задача. А продевая мембрану под контррейками, которые еще и прижаты с одной стороны, очень велик риск повредить ее. Если не тянуть со всей дури, она не конечно не порвется, но царапины будут гарантированы. Вы проверяли поверхность мембраны после морнтажа на предмет царапин и проколов? Кстати, глядя на третью фотографию, можно увидеть КАК смонтирован Евробарьер. ;) Добавлено через 13 минут есть такие трубы и с отверстиями сверху, и с отверстиями снизу, вот они в сравнении со стандартными перфорированными, но у нас в продаже таких не видел А теперь немного поразмыслите, и поймете, что именно это видео - фуфло "чистой воды";):D Это постановочное видео. Просто приток воды для каждой трубы отрегулирован ;) Ну или нам просто "забыли" показать, куда же все-таки уходит "лишняя" вода, которая не вытекает через дренажные трубы:D Добавлено через 23 минуты Если хотите уберечься от жары летом предусматривайте карнизы, или их мобильный эквиваленты, которые при летнем угле падения солнца будет его ограничивать, а при зимнем угле будет попадать в дом. . Я тка понимаю, у вас будет мобильный вариант? Ибо свесов у вас на южной стороне нет в принципе. Посилання на коментар Поділитися на інших сайтах More sharing options...
Dmode Опубліковано: 12 квітня 2013 Автор Поділитись Опубліковано: 12 квітня 2013 А ЗАЧЕМ?! Это же редкостное извращение не знаю, так видимо им было проще. рабочие к тому времени работали в мороз и снег, у меня не было уже желания следить за каждым их шагом, и так им очень благодарен что накрыли, и в дом всю зиму не лилась вода Добавлено через 2 минуты Вы проверяли поверхность мембраны после морнтажа на предмет царапин и проколов? специально не проверял, но если бы были уже бы обратил внимание. На контррейку была приклеена полиуритановая лента 3 или 2мм (видно белую на фото). Может она и не дала поцарапаться. Добавлено через 3 минуты Я тка понимаю, у вас будет мобильный вариант? Ибо свесов у вас на южной стороне нет в принципе. будут, если глянете на южный фасад с первой страницы - поймете 1 Посилання на коментар Поділитися на інших сайтах More sharing options...
КОРН Опубліковано: 12 квітня 2013 Поділитись Опубліковано: 12 квітня 2013 Собираюсь опускать плоскость крыши вдоль стен второго этажа с одновременным утеплением стен и устройством скрытого водостока (как сдесь или в прикреплении). Сейчас понял что это авантюра - но буду придерживаться ранее намеченного плана. Водосток буду формировать из цельной полоски жести на всю его длину, которая будет лежать между досок, все будет держаться на сварных элементах которые будут крепиться к стропилам и стенам. Вот эскизы. Оригинально Смотрится интересно Но, как и все нестандартное, это риск. Тем интереснее будет понаблюдать за вашей стройкой. Отчетов о стандартных реешниях на форуме уже хватает, главное не заблудиться. 1 Посилання на коментар Поділитися на інших сайтах More sharing options...
Vikctor Опубліковано: 17 квітня 2013 Поділитись Опубліковано: 17 квітня 2013 Dmode,подскажите пожалуйста, чем делали художественные резы и(или) отверстия в ЭППСе и ПСБ-Се для проходов коммуникаций? Посилання на коментар Поділитися на інших сайтах More sharing options...
Игореха Опубліковано: 17 квітня 2013 Поділитись Опубліковано: 17 квітня 2013 Dmode,подскажите пожалуйста, чем делали художественные резы и(или) отверстия в ЭППСе и ПСБ-Се для проходов коммуникаций? Не знаю как автор, а я сложные фигуры вырезал электролобзиком А круглые выбирал бы коронкой для гипса Посилання на коментар Поділитися на інших сайтах More sharing options...
Dmode Опубліковано: 17 квітня 2013 Автор Поділитись Опубліковано: 17 квітня 2013 Dmode,подскажите пожалуйста, чем делали художественные резы и(или) отверстия в ЭППСе и ПСБ-Се для проходов коммуникаций? К сожалению не нашел чистого и удобного решения, большие отверстия резал обычным ножом, ножом с зубцами, ножовочным полотном для металла. Отверствия до 100мм коронкой для гипсокартона, борозды прорезал ножом. Минусом всех этих способов - много пенопластового мусора. Немцы режут пенопласт неким луком с натянутой горячей струной, также можно бы было приспособить некий нагревательный инструмент которым делать отверстия и борозды, но не было времени экспериментировать 3 Посилання на коментар Поділитися на інших сайтах More sharing options...
~EJ~ Опубліковано: 18 квітня 2013 Поділитись Опубліковано: 18 квітня 2013 именно так и делали. этого еще нет. Собираюсь опускать плоскость крыши вдоль стен второго этажа (гляньте на фасады с 1-го сообщения) с одновременным утеплением стен и устройством скрытого водостока (как сдесь или в прикреплении). Сейчас понял что это авантюра - но буду придерживаться ранее намеченного плана. Водосток буду формировать из цельной полоски жести на всю его длину, которая будет лежать между досок, все будет держаться на сварных элементах которые будут крепиться к стропилам и стенам. Вот эскизы. При просмотре эскизов обнаружил желания нажать на колесико мыши и повертеть картинку... Не тут то было... Все классно получается!!! 1 Посилання на коментар Поділитися на інших сайтах More sharing options...
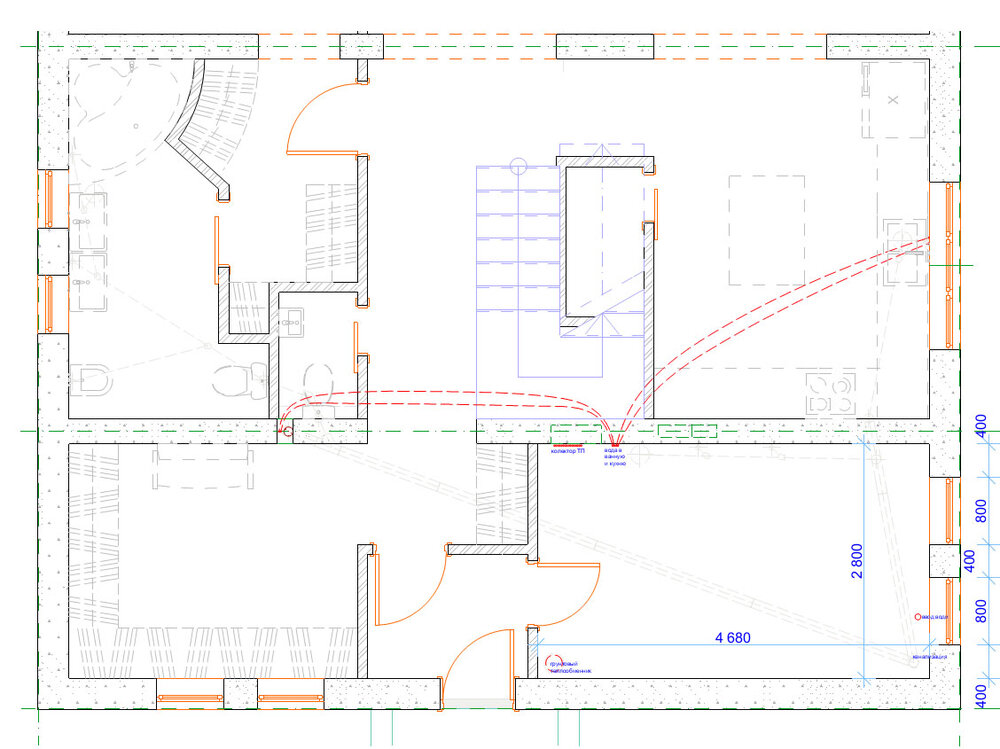
Dmode Опубліковано: 21 квітня 2013 Автор Поділитись Опубліковано: 21 квітня 2013 (змінено) Несколько человек откликнулись на просьбу помощи с проектом котельной, отоплением и водоснабжением в соответствующем разделе. Выкладываю планы, котельной, санузлов и кухни, в pdf и dwg. 1-й этаж: 2-й этаж: коротко по конструкциям: стены газоблок 500кг/м3 - 375мм (возможно буду утеплять 100мм) чердачное перекрытие - 300мм каменной ваты пол - ушп 300мм ПСБ-С под плитой, 100мм ЕППС под ребрами окна - стеклопакеты - 4i-16Ar-4-16Ar-4i профиль Rehau Geneo по пирогам стен: параметры теплопроводности, U-value, теплопотери ДЕТАЛЬНО можно взять здесь: (ссылка устарела)1pk.pdf2pk.pdfotoplenie.zipproekt _ 1. 1-й этаж-ТП.pdf Змінено 21 квітня 2013 користувачем Dmode Посилання на коментар Поділитися на інших сайтах More sharing options...
~EJ~ Опубліковано: 22 квітня 2013 Поділитись Опубліковано: 22 квітня 2013 Какие планы на грунтовый теплообменник? Как планировали делать вент. разводку ? Посилання на коментар Поділитися на інших сайтах More sharing options...
Рекомендовані повідомлення
Створіть акаунт або увійдіть у нього для коментування
Ви маєте бути користувачем, щоб залишити коментар
Створити акаунт
Зареєструйтеся для отримання акаунта. Це просто!
Зареєструвати акаунтУвійти
Вже зареєстровані? Увійдіть тут.
Увійти зараз