Dmode Опубліковано: 22 лютого 2013 Поділитись Опубліковано: 22 лютого 2013 подскажите пожалуйста, как проложить в доме силовую и слаботочную разводку с тем чтобы для начала все скомутировать без системы умный дом, но чтобы в будущем можно было перекомутировать вставив в нее мозги умного дома. из прочитанного в сети, понял что от каждого потребителя (розетки, группы света) тянется отдельный силовой кабель. Под каждый выключатель тянется витая пара. Все это комутируется через импульсные реле и кнопочные выключатели. видеонаблюдение и интернет - витая пара. сигнализация и датчики - спец. кабель для сигнализации Правально ли понял? Нужно ли все тянуть в один шкаф, или разделять силовую и слаботочную? Посилання на коментар Поділитися на інших сайтах More sharing options...
Diver Опубліковано: 22 лютого 2013 Поділитись Опубліковано: 22 лютого 2013 шкаф.. и поболш..побольше.. я бы отдельно кладовку предусмотрел даже. Посилання на коментар Поділитися на інших сайтах More sharing options...
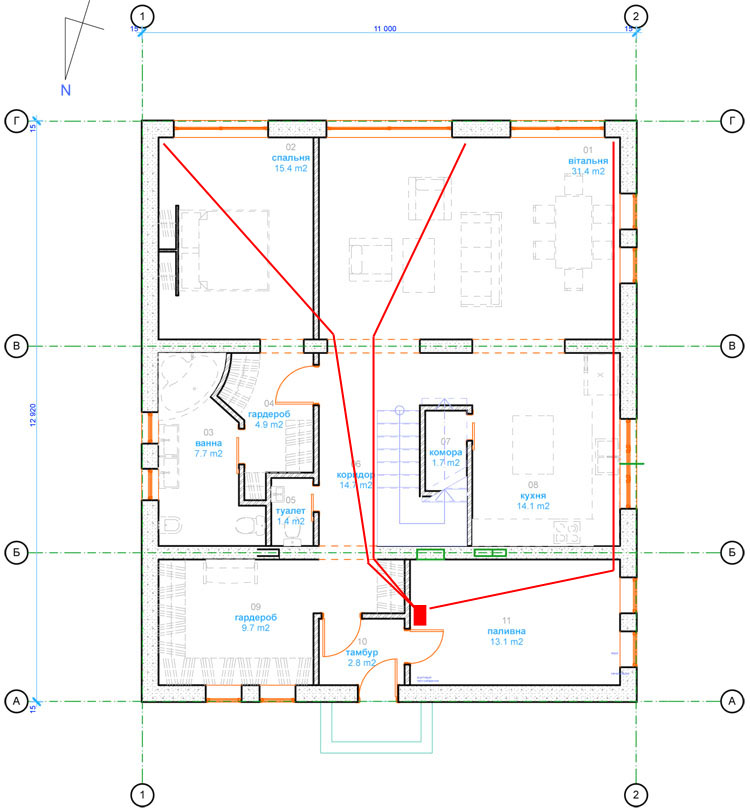
Dmode Опубліковано: 22 лютого 2013 Автор Поділитись Опубліковано: 22 лютого 2013 шкаф.. и поболш..побольше.. я бы отдельно кладовку предусмотрел даже. то есть правильно рассуждаю? комутировать все планирую в котельной, она около 13м2. Должно хватить места для большого шкафа. Также вопрос по шкафу: не универсальней ли и дешевле будет поприкручивать дин рейки нужной длины на стену, навесить оборудование и когда сформируется картина ширины и высоты шкафа, обшить это дело чем-то, то есть сделать вокруг шкаф? Посилання на коментар Поділитися на інших сайтах More sharing options...
Diver Опубліковано: 22 лютого 2013 Поділитись Опубліковано: 22 лютого 2013 "дешевле" не всегда себя правдывает в цене.. для начала нужно всеравно делат план, максимально приближенный к реалиями выяснится скольок чего будет. Посилання на коментар Поділитися на інших сайтах More sharing options...
Olenevod Опубліковано: 22 лютого 2013 Поділитись Опубліковано: 22 лютого 2013 Тут как в анекдоте про Сару: как Вы не ляжете, вас все равно... ну, поимеют короче. Все все равно не предусмотреть, технологии имеют нездоровую тенденцию меняться, возможности и хотелки расти. Провода конечно лучше всего сводить в одну точку, звездой. Но точек этих может быть несколько. Все зависит от этажности и размеров помещения. Лучше, чтобы провода были не больше 10-15 метров. Получается длинней - делаем еще одну точку. Контроллер, связывающий эти точки будет дешевле лишних 100 метров провода, набегающих от десятка потребителей. Между ключевыми точками лучше закладывать хорошую гильзу, которая обеспечит сменяемость провода в будущем, а уже лучи к конечным потребителям можно и похоронить в стене. 1 Посилання на коментар Поділитися на інших сайтах More sharing options...
Dmode Опубліковано: 22 лютого 2013 Автор Поділитись Опубліковано: 22 лютого 2013 Лучше, чтобы провода были не больше 10-15 метров. Получается длинней - делаем еще одну точку. Контроллер, связывающий эти точки будет дешевле лишних 100 метров провода, набегающих от десятка потребителей. \ размер дома 13*11. Провод из одного диагонального угла в другой будет более 24м. Если на данный момент не ставить контроллеров, значит и при 24м все равно все тянуть в одну точку? Правильно понял? Посилання на коментар Поділитися на інших сайтах More sharing options...
Olenevod Опубліковано: 22 лютого 2013 Поділитись Опубліковано: 22 лютого 2013 Просто угол дома - не самое оптимальное место для щитка. Щиток это не серверная, ему много места не нужно. Пара-тройка дин устройств. Двигайте его к центру дома. Посилання на коментар Поділитися на інших сайтах More sharing options...
Dmode Опубліковано: 22 лютого 2013 Автор Поділитись Опубліковано: 22 лютого 2013 (змінено) Просто угол дома - не самое оптимальное место для щитка. Щиток это не серверная, ему много места не нужно. Пара-тройка дин устройств. Двигайте его к центру дома. не очень понимаю почему Вы говорите что много места не нужно, Diver говорит шкаф по больше, в сети видел шкафы людей с системой УД, так они довольно много места занимают, и такое хозяйство мне бы хотелось скорее в котельной разместить (указал на плане) в принципе если не тянуть под прямыми углами, то наверное уложусь в 15м Змінено 22 лютого 2013 користувачем Dmode Посилання на коментар Поділитися на інших сайтах More sharing options...
Olenevod Опубліковано: 22 лютого 2013 Поділитись Опубліковано: 22 лютого 2013 Большой шкаф впечатляет. Это как наше государство - один пытается командовать всеми, в итоге ничего не делается. Умная сеть должна быть распределенной. В частности в щитке только исполнительные реле и силовые транзисторы. Хотя конечно все зависит от технологии. Это самый больной вопрос. Посилання на коментар Поділитися на інших сайтах More sharing options...
Diver Опубліковано: 22 лютого 2013 Поділитись Опубліковано: 22 лютого 2013 Большой шкаф впечатляет. Это как наше государство - один пытается командовать всеми, в итоге ничего не делается. Умная сеть должна быть распределенной. В частности в щитке только исполнительные реле и силовые транзисторы. Хотя конечно все зависит от технологии. Это самый больной вопрос.это смотря как дом строить. видел когда была отдельная но небольшая комнатка -и это решало сразу кучу проблем! Посилання на коментар Поділитися на інших сайтах More sharing options...
Olenevod Опубліковано: 22 лютого 2013 Поділитись Опубліковано: 22 лютого 2013 это смотря как дом строить. видел когда была отдельная но небольшая комнатка -и это решало сразу кучу проблем! У богатых свои причуды. Я не так давно отказался от должности... зарплата 1.5куе, режим работы сутки через трое, т.е. работают 3 таких человека посменно, а всего то нужно следить за умным домом одного депутата. Вот там уж точно все проблемы решены. Только за немного меньшую зарплату специально обученный человек может сам бегать по комнатам и кнопки нажимать. 1 Посилання на коментар Поділитися на інших сайтах More sharing options...
ProTV Опубліковано: 22 лютого 2013 Поділитись Опубліковано: 22 лютого 2013 У богатых свои причуды. Я не так давно отказался от должности... зарплата 1.5куе, режим работы сутки через трое, т.е. работают 3 таких человека посменно, а всего то нужно следить за умным домом одного депутата. Вот там уж точно все проблемы решены. Только за немного меньшую зарплату специально обученный человек может сам бегать по комнатам и кнопки нажимать. Не плохо , я с двух работ штуку вытгягиваю. Делитесь . Посилання на коментар Поділитися на інших сайтах More sharing options...
Diver Опубліковано: 22 лютого 2013 Поділитись Опубліковано: 22 лютого 2013 Только за немного меньшую зарплату специально обученный человек может сам бегать по комнатам и кнопки нажимать немного не так, благодаря 4,5 шт в мес - депутат сам может ходить и иногда давить на кнопочки... "кнопкодавы" млин... Посилання на коментар Поділитися на інших сайтах More sharing options...
Olenevod Опубліковано: 22 лютого 2013 Поділитись Опубліковано: 22 лютого 2013 я с двух работ штуку вытгягиваю. Делитесь Я отказался. Человек любит распускать руки, да и вообще относится к людям своеобразно. Но парень работает уже почти год, недавно звонил, спрашивал как дела. Посилання на коментар Поділитися на інших сайтах More sharing options...
Diver Опубліковано: 24 лютого 2013 Поділитись Опубліковано: 24 лютого 2013 cs-cs.net/slabotochnyj-shhitok-rr-sks и это только небольшая часть необходимого. вряд ли захочется спутниковое и т.д. разбрасывать все тюнера и усилители по дому в отдельности, удобно иметь усилители, модулятор(для домофона видеокамеры например) в одном месте или большом щитке, тогда и голову ломать после отделочных работ не придется - как соединить одно с другим, как реализовать мысль которая пришла в голову "опосля". 2 Посилання на коментар Поділитися на інших сайтах More sharing options...
bms-group Опубліковано: 25 лютого 2013 Поділитись Опубліковано: 25 лютого 2013 из прочитанного в сети, понял что от каждого потребителя (розетки, группы света) тянется отдельный силовой кабель. Под каждый выключатель тянется витая пара. Все это комутируется через импульсные реле и кнопочные выключатели. видеонаблюдение и интернет - витая пара. сигнализация и датчики - спец. кабель для сигнализации Правально ли понял? Нужно ли все тянуть в один шкаф, или разделять силовую и слаботочную? Для начала хорошо бы определиться на чем (на каком протоколе или технологии) будет строиться в будущем Умный дом. Это даст понимание топологии шины автоматики. Это Вам сильно съэкономит нервы и средства в будущем. Например для KNX или Lonworks не нужно тянуть в щит витую пару от каждого датчика и выключателя. Если решитесь на эти технологии, в первом приближении нужно делать так: 1. Спец. кабель (J-Y(St)-Y 2x2x0,8 - в просторечии "зеленка" или такой-же красный кабель, который используется в адресных пожарных шлейфах) выходит из щита управления и методично проходит по всем точкам, где планируются сенсоры (кнопочные панели управления, датчики движения, присутствия и т.д.). 2. Если планируете сначала временное решение, то с каждого выключателя ведете кабель в щит. Если временное решение это импульсные реле, то количество жил = количество клавиш в точке + 1. 3. Если этажей больше чем 1, я бы рекомендовал устанавливать щит на каждом этаже, примерно в геометрическом центре этажа. Если площадь этажа очень большая (у нас были объекты, с площадью этажа в 1 500 кв. м.) - то делите этаж на несколько логически объединенных зон (спальный блок, гостевой блок, блок развлечений и т.д.) и в центре каждого из них ставите свой щит. Желательно уже на этапе проектирования решить как Вы будете управлять каждой группой света (только вкл./выкл. или диммировать, а может и цвет свечения изменять) - исходя из этого подбирается коммутационное оборудование и проводка от него к источнику освещения. Для ламп накаливания, галогенок и т.д. которые вкл/выкл достаточно ВВГ 3х1,5 (заземлять корпус светильника - хороший тон, а еще иногда это спасает от ударов током (строители любят вкрутить шуруп в кабель электрику, чего уж там). Если недиммируемые люминесцентные лампы - то-же ВВГ 3х1,5. Если люминесцентные лампы нужно диммировать, то бросаем ВВГ 3х1,5 для питания и 2х0,8 на управление (1-10В или DALI). Со светодиодами отдельная кухня - нужно смотреть в комплексе светильник + балласт. Да, насчет топологии цифровой шины: KNX не допускает закольцевания шины, Lonworks допускает одно кольцо на сегмент. Если общая длина шины меньше 330 м. при использовании спец кабеля - шину Лон можно закольцевать для надежности. 2 Посилання на коментар Поділитися на інших сайтах More sharing options...
Diver Опубліковано: 26 лютого 2013 Поділитись Опубліковано: 26 лютого 2013 3. Если этажей больше чем 1, я бы рекомендовал устанавливать щит на каждом этаже, примерно в геометрическом центре этажа. Е я бы рекомендовал между этажами кабель-каналы пустые заложить... 1 Посилання на коментар Поділитися на інших сайтах More sharing options...
bms-group Опубліковано: 26 лютого 2013 Поділитись Опубліковано: 26 лютого 2013 я бы рекомендовал между этажами кабель-каналы пустые заложить... Это никогда не будет лишним. 1 Посилання на коментар Поділитися на інших сайтах More sharing options...
Dmode Опубліковано: 26 лютого 2013 Автор Поділитись Опубліковано: 26 лютого 2013 спасибо за профессиональные ответы, пытаюсь разобраться, буду задавать возможно глупые вопросы, заранее благодарен за труд и терпение при ответах Для начала хорошо бы определиться на чем (на каком протоколе или технологии) будет строиться в будущем Умный дом. Это даст понимание топологии шины автоматики. Это Вам сильно съэкономит нервы и средства в будущем. думаю на чем-то относительно дешевом типа русского ОВЕН, на форумхаусе есть реальный пример бюджетного решения Например для KNX или Lonworks не нужно тянуть в щит витую пару от каждого датчика и выключателя. а какое для них должно быть универсальное решение (чтоб сначала без контролера, потом с ним) 1. Спец. кабель (J-Y(St)-Y 2x2x0,8 - в просторечии "зеленка" или такой-же красный кабель, который используется в адресных пожарных шлейфах) выходит из щита управления и методично проходит по всем точкам, где планируются сенсоры (кнопочные панели управления, датчики движения, присутствия и т.д.). проходит последовательно, или от каждого выключателя в щит? чем кабель зеленка лучше/хуже витой пары, взаимозаменяемы ли они в данном случае? зеленка дороже или дешевле витой пары? 2. Если планируете сначала временное решение, то с каждого выключателя ведете кабель в щит. Если временное решение это импульсные реле, то количество жил = количество клавиш в точке + 1. витую пару, или другой? на витой паре получается можно включить 4 клавиши, или 7.. 3. Если этажей больше чем 1, я бы рекомендовал устанавливать щит на каждом этаже, примерно в геометрическом центре этажа. этажей два, площадь каждого этажа около 100м2 (план выше). Пока планирую щит в котельной как на плане выше, один на два этажа. В чем преимущество дополнительного щита на втором этаже (кроме экономии проводов)? Не нивелирует ли эту экономию цена устройств соединяющих эти два щита? Со светодиодами отдельная кухня - нужно смотреть в комплексе светильник + балласт. объясните пожалуйста что такое балласт в отношении светодиодов? Так понимаю они требуют отдельного питания, это решается централизованно, или локально при каждой световой группе? И На какие еще нюансы стоит обратить внимание в отношении светодиодов? Да, насчет топологии цифровой шины: KNX не допускает закольцовывания шины, Lonworks допускает одно кольцо на сегмент. Если общая длина шины меньше 330 м. при использовании спец кабеля - шину Лон можно закольцевать для надежности. объясните пожалуйста, что значит "шина" (не понимаю термина), и что значит закольцовывание? Посилання на коментар Поділитися на інших сайтах More sharing options...
bms-group Опубліковано: 26 лютого 2013 Поділитись Опубліковано: 26 лютого 2013 думаю на чем-то относительно дешевом типа русского ОВЕН, на форумхаусе есть реальный пример бюджетного решения С Овном сам не работал но слышал нарекания от коллег. а какое для них должно быть универсальное решение (чтоб сначала без контролера, потом с ним) Некоторые сначала ставят импульсные реле, а потом меняют на автоматику. При таком варианте я бы посоветовал посчитать сумму, в которую обойдутся импульсные реле и на эти деньги взять минимальный необходимый набор той автоматики, которую Вы в итоге планируете ставить - не будет потери в деньгах. Например, у Вас 20 групп и каждое импульсное реле стоит 200 Грн., то есть Вы потратите 4 000 Грн. на импульсные реле. Вместо них лучше взять (пример буду приводить на KNX оборудовании) Блок питания шины, актуатор реле (4-8 каналов) и пару 8-и кнопочных панелей управления - этим Вы закроете большинство комнат по одной группе света. И запрограммируете с нашей помощью за 2 часа. Это даст следующие преимущества: 1. Вы не тратите деньги на оборудование, которое потом просто снимите. 2. Вы сразу разбираетесь в выбранной технологии. 3. Вы в процессе эксплуатации этого половинного решения начинаете понимать, чего Вы хотите от всей системы в целом, что нужно сразу добавить, а что можно и убрать. проходит последовательно, или от каждого выключателя в щит? чем кабель зеленка лучше/хуже витой пары, взаимозаменяемы ли они в данном случае? зеленка дороже или дешевле витой пары? Проходит цепочкой из щита по всем точкам с сенсорами (выключателями) и возвращается в щит. Лучше тем, что: 1. Он предназначен для этой полевой шины, а значит, все длины и ограничения, накладываемые на шину производителем будут справедливы. 2. У витой пары диаметр жилы 0,5 мм, если не ошибаюсь, у "зеленки" 0,8, все клеммные колодки устройств рассчитаны на этот диаметр, то есть витую пару Вы вставите в разъем с помощью пинцета и "чьей-то матери", но вынуть уже может не получиться - она сломается. 3. Но витая пара вполне рабочий вариант для небольших расстояний, если есть большое желание сэкономить. Чем хуже "зеленка"? Тем что она дороже - около 0,6 - 0,8 Евро за метр. витую пару, или другой? на витой паре получается можно включить 4 клавиши, или 7.. Это смотря какой сигнал Вы будете коммутировать, если 12-24 В с небольшим током - витая пара годится, 220 на витую пару я бы поостерегся подавать. 8 жил пропустит 7 дискретных сигналов (кнопок) + общий провод. этажей два, площадь каждого этажа около 100м2 (план выше). Пока планирую щит в котельной как на плане выше, один на два этажа. В чем преимущество дополнительного щита на втором этаже (кроме экономии проводов)? Не нивелирует ли эту экономию цена устройств соединяющих эти два щита? Преимущество в экономии проводов, при правильном проектировании автоматика будет стоить одинаково. На остальные вопросы отвечу позже, нужно убегать. Добавлено через 1 час 41 минуту объясните пожалуйста что такое балласт в отношении светодиодов? Так понимаю они требуют отдельного питания, это решается централизованно, или локально при каждой световой группе? И На какие еще нюансы стоит обратить внимание в отношении светодиодов? В отношении светодиодов есть понятие драйвер, или балласт. По сути модуль, который обеспечивает необходимый ток или напряжение для группы светодиодов. Централизованно можно установить источник напряжения на несколько групп светодиодов и после него реле, которое будет включать нужную группу. Это работает если у Вас группы управляются по пинципу вкл./выкл. Если светодиоды нужно диммировать (изменять яркость) или изменять цвет (для RGB источников) необходимо использовать специализированный драйвер или балласт (термин, пришедший из темы люминисцентных светильников) - грубо говоря коробочка, на которую подается питание и управляющий сигнал, а с ее выхода запитывается светодиодный источник света. Есть разные типы балластов (мне этот термин привычнее) по интерфейсу управления: 1. С управляющим сигналом 1-10 В. Они могут только диммировать группу. Ставится максимально близко от группы т.к. использует ШИМ высокой частоты (десятки-сотни килогерц) для управления яркостью источника. Цвет как правило не меняют, хотя есть "месье, которые знают толк в извращениях" 2. С управляющей шиной. К балласту подходит своя шина (DALI, DMX, Univerce и т.д.) которая в цифровом виде доносит до балласта комманду включиться на 15% яркости, например, или включиться на зеленом цвете с 50% яркости. Если управляемых светодиодных групп мало - выгоднее использовать первый тип балласта, если много - спец контроллер и второй тип балласта. объясните пожалуйста, что значит "шина" (не понимаю термина), и что значит закольцовывание? Есть несколько толкований термина "шина" что иногда приводит к путангице. 1. Шина это транспортный уровень для какого-либо протокола автоматизации. Например для KNX и Lon шина - это кабель J-Y(St)-Y 2x2x0,8 в котором по красной и черной жиле передается протокол и тем самым обеспечивается информационная связь всех устройств. 2. Шина это один из вариантов топологии сети - физической и геометрической реализации пункта 1. Для рассматриваемых протоколов топология шины (извините за тавторогию) может быть: - шина - кабель выходит из щита управления и по очереди проходит по всем устройствам нигде не разветвляясь (вернее есть допуски на ответвление, но для простоты понимания будем считать что вервлений нет). - свободная топология (дерево, звезда, кольцо - в KNX недопустимо) - понятно из названия, что шинный кабель может ветвиться по принципу дерева, звезды или представлять собой кольцо. В соседней теме я давал ссылку на KNX Silver Bible - очень рекомендую к изучению, там методично рассказывается что и как делать и что делать не нужно 3 Посилання на коментар Поділитися на інших сайтах More sharing options...
templar Опубліковано: 27 березня 2013 Поділитись Опубліковано: 27 березня 2013 я что-то так и не понял. на сколько метров максимально можно тянуть от централи провод под видеонаблюдение и сигнализацию без использования соединительных устройств? Посилання на коментар Поділитися на інших сайтах More sharing options...
gnom_slava Опубліковано: 29 березня 2013 Поділитись Опубліковано: 29 березня 2013 я что-то так и не понял. на сколько метров максимально можно тянуть от централи провод под видеонаблюдение и сигнализацию без использования соединительных устройств? а какое конкретно оборудование планируете ставить? просто разные модели разные параметры имеют; а со всевозможными усилителями, кодерами-декодерами можно вообще до 2,5 км. непрерывную линию делать. только питание желательно на обоих концах обеспечить. Посилання на коментар Поділитися на інших сайтах More sharing options...
templar Опубліковано: 30 березня 2013 Поділитись Опубліковано: 30 березня 2013 ну ничего сверхъестественного. gsm сигнализацию датчиков на 4-6 (детекторы движения, герконы, ревунчик). ну и блок видеонаблюдения камеры на 4 (может больше. пока не определился) Посилання на коментар Поділитися на інших сайтах More sharing options...
templar Опубліковано: 30 березня 2013 Поділитись Опубліковано: 30 березня 2013 кстати какие все-таки провода брать тоже было бы полезно услышать, а то в профильных темах развели холивары с упором в высшую математику. ни хрена не понятно. Посилання на коментар Поділитися на інших сайтах More sharing options...
smartdom Опубліковано: 30 березня 2013 Поділитись Опубліковано: 30 березня 2013 кстати какие все-таки провода брать тоже было бы полезно услышать, а то в профильных темах развели холивары с упором в высшую математику. ни хрена не понятно. под сигналку провод Аларм или W, как по мне так с экраном. Ну как писалось - заземление. 1 Посилання на коментар Поділитися на інших сайтах More sharing options...
Рекомендовані повідомлення
Створіть акаунт або увійдіть у нього для коментування
Ви маєте бути користувачем, щоб залишити коментар
Створити акаунт
Зареєструйтеся для отримання акаунта. Це просто!
Зареєструвати акаунтУвійти
Вже зареєстровані? Увійдіть тут.
Увійти зараз