Яло Опубліковано: 11 березня 2015 Поділитись Опубліковано: 11 березня 2015 А почему все кричат что рехау это немецкий профиль? Это же вранье! Льют в днепре, иногда поляки привозят Тот кто "кричит", что его весь везут из Германии - просто профан или обманщик. Нормальные оконщики так никогда не скажут. И в Днепре его не льют - это уже перебор. Вот собственно и вся суть: кто изначально врет о происхождении профиля или других комплектующих, тому вообще не стоит доверять (ИМХО). Маленькая ложь - порождает большое недоверие. P.S. я Rehau никогда не продавала. Посилання на коментар Поділитися на інших сайтах More sharing options...
Ruslan R Опубліковано: 11 березня 2015 Поділитись Опубліковано: 11 березня 2015 ... деформировать образец я не смог Какие Вы смешные Дело в том, что даже с 2мм стенками обычный ПВХ профиль 1м (длины) Вы не сможете руками/ногами деформировать Так что отказываемся от армировки? Добавлено через 3 минуты Вот если бы Вам дали 3-х метровую палку обычного ПВХ профиля и вот этого "иновационного", положили бы на 2 стола и Вы сели на эти профиля, по очереди, тогда бы увидели реальные преимущества, если бы они конечно были Добавлено через 28 минут Кстате отсутствие арма исключает обман продавца! Это факт. Остается на фурнитуре тока жарить клиента)))) Кстати согласно ДСТУ Б В.2.6-15-99 (см. пункт 4.2.26) [4.2.26 Вироби, розмірами за висотою та шириною 0,6 м і більше, повинні виготовлятися із профілів ПВХ, підсилених елементами жорсткості.] Еще больше скажу, из-за большой разницы жёсткостей ПВХ и стали, при расчётах на ветровые нагрузки жёсткостью ПВХ пренебрегают. Так, что Вас вжарили на профиле P.S. А то, что там добавили какие-то "деревянные волокна пропитанные клеем" и смешали с ПВХ еще не значит, что профиль стал жестче. Возможно он стал еще хуже по жесткости, чем обычный ПВХ Официальные документы (сертификаты, характеристики профиля и т.д.), что профиль можно не армировать предоставили? Маркетинг (по народному - тупой развод заказчиков) это все и не более. 1 Посилання на коментар Поділитися на інших сайтах More sharing options...
климаттехник Опубліковано: 11 березня 2015 Поділитись Опубліковано: 11 березня 2015 Какие Вы смешные Дело в том, что даже с 2мм стенками обычный ПВХ профиль 1м (длины) Вы не сможете руками/ногами деформировать Так что отказываемся от армировки? Добавлено через 3 минуты Вот если бы Вам дали 3-х метровую палку обычного ПВХ профиля и вот этого "иновационного", положили бы на 2 стола и Вы сели на эти профиля, по очереди, тогда бы увидели реальные преимущества, если бы они конечно были Добавлено через 28 минут Кстати согласно ДСТУ Б В.2.6-15-99 (см. пункт 4.2.26) [4.2.26 Вироби, розмірами за висотою та шириною 0,6 м і більше, повинні виготовлятися із профілів ПВХ, підсилених елементами жорсткості.] Еще больше скажу, из-за большой разницы жёсткостей ПВХ и стали, при расчётах на ветровые нагрузки жёсткостью ПВХ пренебрегают. Так, что Вас вжарили на профиле P.S. А то, что там добавили какие-то "деревянные волокна пропитанные клеем" и смешали с ПВХ еще не значит, что профиль стал жестче. Возможно он стал еще хуже по жесткости, чем обычный ПВХ Официальные документы (сертификаты, характеристики профиля и т.д.), что профиль можно не армировать предоставили? Маркетинг (по народному - тупой развод заказчиков) это все и не более. Расстрою вас любезный! А то смотрю вы аж брызжече злобой))) Данный профиль имеет сертификат качества ДСТУ и пригоден для установки в жилых помещениях. Я посмотрел немецкие сайты и форумы и скажу вам любезный, что такой профиль используется уже 5-6 лет в европе. Так что облом! Посилання на коментар Поділитися на інших сайтах More sharing options...
климаттехник Опубліковано: 11 березня 2015 Поділитись Опубліковано: 11 березня 2015 Какие Вы смешные Дело в том, что даже с 2мм стенками обычный ПВХ профиль 1м (длины) Вы не сможете руками/ногами деформировать Так что отказываемся от армировки? Добавлено через 3 минуты Вот если бы Вам дали 3-х метровую палку обычного ПВХ профиля и вот этого "иновационного", положили бы на 2 стола и Вы сели на эти профиля, по очереди, тогда бы увидели реальные преимущества, если бы они конечно были Добавлено через 28 минут Кстати согласно ДСТУ Б В.2.6-15-99 (см. пункт 4.2.26) [4.2.26 Вироби, розмірами за висотою та шириною 0,6 м і більше, повинні виготовлятися із профілів ПВХ, підсилених елементами жорсткості.] Еще больше скажу, из-за большой разницы жёсткостей ПВХ и стали, при расчётах на ветровые нагрузки жёсткостью ПВХ пренебрегают. Так, что Вас вжарили на профиле P.S. А то, что там добавили какие-то "деревянные волокна пропитанные клеем" и смешали с ПВХ еще не значит, что профиль стал жестче. Возможно он стал еще хуже по жесткости, чем обычный ПВХ Официальные документы (сертификаты, характеристики профиля и т.д.), что профиль можно не армировать предоставили? Маркетинг (по народному - тупой развод заказчиков) это все и не более. А по поводу требования дсту, которое вы процытировали, как вы сами ответили на свой вопрос! "Использованы элементы жосткости" в данном случае за счет увеличения толщины перегородок . В стандартном профиле перегородки просто смешные Посилання на коментар Поділитися на інших сайтах More sharing options...
климаттехник Опубліковано: 11 березня 2015 Поділитись Опубліковано: 11 березня 2015 Какие Вы смешные Дело в том, что даже с 2мм стенками обычный ПВХ профиль 1м (длины) Вы не сможете руками/ногами деформировать Так что отказываемся от армировки? Добавлено через 3 минуты Вот если бы Вам дали 3-х метровую палку обычного ПВХ профиля и вот этого "иновационного", положили бы на 2 стола и Вы сели на эти профиля, по очереди, тогда бы увидели реальные преимущества, если бы они конечно были Добавлено через 28 минут Кстати согласно ДСТУ Б В.2.6-15-99 (см. пункт 4.2.26) [4.2.26 Вироби, розмірами за висотою та шириною 0,6 м і більше, повинні виготовлятися із профілів ПВХ, підсилених елементами жорсткості.] Еще больше скажу, из-за большой разницы жёсткостей ПВХ и стали, при расчётах на ветровые нагрузки жёсткостью ПВХ пренебрегают. Так, что Вас вжарили на профиле P.S. А то, что там добавили какие-то "деревянные волокна пропитанные клеем" и смешали с ПВХ еще не значит, что профиль стал жестче. Возможно он стал еще хуже по жесткости, чем обычный ПВХ Официальные документы (сертификаты, характеристики профиля и т.д.), что профиль можно не армировать предоставили? Маркетинг (по народному - тупой развод заказчиков) это все и не более. И последнее на закуску! По поводу ветровой нагрузки. У меня 4 францкзских окна 2100 на 2100 и два с балконной дверью! Полет о личный! Жестко и тепло))) и не болит голова, по поводу армирования ( оно там есть или нет, или вместо 1.5 всунули 1мм) Посилання на коментар Поділитися на інших сайтах More sharing options...
Ruslan R Опубліковано: 11 березня 2015 Поділитись Опубліковано: 11 березня 2015 Расстрою вас любезный! А то смотрю вы аж брызжече злобой))) Данный профиль имеет сертификат качества ДСТУ и пригоден для установки в жилых помещениях. Я посмотрел немецкие сайты и форумы и скажу вам любезный, что такой профиль используется уже 5-6 лет в европе. Так что облом! А по поводу требования дсту, которое вы процытировали, как вы сами ответили на свой вопрос! "Использованы элементы жосткости" в данном случае за счет увеличения толщины перегородок . В стандартном профиле перегородки просто смешные Да мне лично вообще как-то фиолетово. Я ПВХ окнами не занимаюсь вообще Так просто констатировал факт обмана потребителей. Попробую по другому объяснить. Сталь модуль упругости 210000Па Алюминий модуль упругости 70000Па Дерево модуль упругости 10000Па ПВХ модуль упругости 2700Па Соответственно следующие профиля (см. ниже) будут иметь одинаковую жесткость при разных сечениях профиля: - профиль квадратного сечения 50х50х3мм (сталь) - профиль квадратного сечения 70х70х3мм (алюминий) - профиль квадратного сечения 132х132х3мм (дерево) - профиль квадратного сечения 204х204х3мм (ПВХ) Так понятнее? Поэтому в ПВХ окнах и используют стальное армирование, а не алюминиевое или деревянное, т.е. при не большом сечении армирования (сталь) можно достичь максимальной жесткости. Я к чему клоню. Если бы эти как Вы их называете "перегородки жесткости" были из стали, я б лишних вопросов не задавал, а так... 1 Посилання на коментар Поділитися на інших сайтах More sharing options...
климаттехник Опубліковано: 11 березня 2015 Поділитись Опубліковано: 11 березня 2015 Да мне лично вообще как-то фиолетово. Я ПВХ окнами не занимаюсь вообще Так просто констатировал факт обмана потребителей. Попробую по другому объяснить. Сталь модуль упругости 210000Па Алюминий модуль упругости 70000Па Дерево модуль упругости 10000Па ПВХ модуль упругости 2700Па Соответственно следующие профиля (см. ниже) будут иметь одинаковую жесткость при разных сечениях профиля: - профиль квадратного сечения 50х50х3мм (сталь) - профиль квадратного сечения 70х70х3мм (алюминий) - профиль квадратного сечения 132х132х3мм (дерево) - профиль квадратного сечения 204х204х3мм (ПВХ) Так понятнее? Поэтому в ПВХ окнах и используют стальное армирование, а не алюминиевое или деревянное, т.е. при не большом сечении армирования (сталь) можно достичь максимальной жесткости. Я к чему клоню. Если бы эти как Вы их называете "перегородки жесткости" были из стали, я б лишних вопросов не задавал, а так... Да я не собираюсь опровергать ,что сталь крепче дерева. По вашему люди без истытаний и разработки технологии взяли и запустили в производство этот профиль? Разработка экструдера и всего остального достаточно дорогое удовольствие и на абум его делать это глупо. И к вопросу жесткости! В окна из дерева и алюминия мет. Армирование не добавляют ведь, и потому, что разработана технология ( в алюм профиле ребра жесткости и так далее) Посилання на коментар Поділитися на інших сайтах More sharing options...
Алік Опубліковано: 11 березня 2015 Поділитись Опубліковано: 11 березня 2015 В общем, нашёл я некое подобие технического каталога сей инновации. Родом Пенвуд, действительно из Турции - продукт ВинТеч-Адопен. www.adopen.com/pvc-windows-and-door-systems/penwood-750.html Поставляется в РБ - plitmar.com/продукция/профильные-системы-win-open-co-ex-и-penwood/профиль-пвх-penwood/ Позиционируется, всё-таки как класс Б, немного напрягает "устойчивость к ветровой нагрузке класс C по PN-EN 12210". Думаю, что большие конструкции из него делать рискованно.Penwood каталог-малый.pdf 2 Посилання на коментар Поділитися на інших сайтах More sharing options...
климаттехник Опубліковано: 11 березня 2015 Поділитись Опубліковано: 11 березня 2015 В общем, нашёл я некое подобие технического каталога сей инновации. Родом Пенвуд, действительно из Турции - продукт ВинТеч-Адопен. www.adopen.com/pvc-windows-and-door-systems/penwood-750.html Поставляется в РБ - plitmar.com/продукция/профильные-системы-win-open-co-ex-и-penwood/профиль-пвх-penwood/ Позиционируется, всё-таки как класс Б, немного напрягает "устойчивость к ветровой нагрузке класс C по PN-EN 12210". Думаю, что большие конструкции из него делать рискованно. О спс , познавательно, но стеко как я вижу другой немного профиль использует. В их профиль ставится только пакет 32мм, это минус конечно, но технология та же. Интересно почему класс б? При таком сопротивлении? Посилання на коментар Поділитися на інших сайтах More sharing options...
Алік Опубліковано: 11 березня 2015 Поділитись Опубліковано: 11 березня 2015 А и Б - это по толщине стенки. Почему - сам не знаю, так у белорусов на сайте написано. 1 Посилання на коментар Поділитися на інших сайтах More sharing options...
star_a Опубліковано: 11 березня 2015 Поділитись Опубліковано: 11 березня 2015 Винтеч по такой технологии делал "типа армир". ПВХ как ПВХ, а в место армира "наполнитель" . Переработчикам вначале понравилось, но потом турецкие братья начали фелонить и покупая хлыст 6 метров выяснялось, что чудо "наполнитель" по полтора-два метра по сторонам есть , а посредине пустышка и у переработчиков рекламации не принимались от продавца((((. А что за сие чудо проще всего спросить у самого стека (наднях набиру поинтересуюсь). Хотя судя по риторике г-н климатехник никакой не климо ,а стеко техник. Ну то такое продукт новый и интерсный, но пока больше вопросов чем ответов. PS Я б без металла точно бы не ставил бы и никому б не рекомендовал бы! 1 Посилання на коментар Поділитися на інших сайтах More sharing options...
климаттехник Опубліковано: 11 березня 2015 Поділитись Опубліковано: 11 березня 2015 Винтеч по такой технологии делал "типа армир". ПВХ как ПВХ, а в место армира "наполнитель" . Переработчикам вначале понравилось, но потом турецкие братья начали фелонить и покупая хлыст 6 метров выяснялось, что чудо "наполнитель" по полтора-два метра по сторонам есть , а посредине пустышка и у переработчиков рекламации не принимались от продавца((((. А что за сие чудо проще всего спросить у самого стека (наднях набиру поинтересуюсь). Хотя судя по риторике г-н климатехник никакой не климо ,а стеко техник. Ну то такое продукт новый и интерсный, но пока больше вопросов чем ответов. PS Я б без металла точно бы не ставил бы и никому б не рекомендовал бы! О! Я теперь стеко техник)))) улыбнуло. я ж могу и антирекламу сделать если нужно)))) если чесно, то укр профилем был напуган, страшненький, а болгарский хорош. Не саламандра или кемерлинг, выбор был сделан осознано . Для сравнения, разница с рехау 5 камер была порядка 10-15 процентов всего. Теплосопротивление сделало свое! Т.к. строил каркасник и теплосбережению уделялось особое внимание. Если будете им звонить, черкните пару слов, как специалист, можно вличку. Спс Посилання на коментар Поділитися на інших сайтах More sharing options...
Ruslan R Опубліковано: 11 березня 2015 Поділитись Опубліковано: 11 березня 2015 И к вопросу жесткости! В окна из дерева и алюминия мет. Армирование не добавляют ведь, и потому, что разработана технология ( в алюм профиле ребра жесткости и так далее) В алюминиевые профиля иногда добавляют алюминиевый усилитель (см. вложение). Еще раз говорю, что сталь жестче алюминия в 3 раза, дерева в 21 раз, ПВХ в 78 раз. А профиля из дерева идут цельные, т.е. без пустот. Например, стандартная армировка 35х28х1,5 прямоугольного сечения из стали, равнозначна по жесткости деревянному брусу 50х50мм. "Перегородки жесткости из деревянных опилков" это вообще как-то смешно звучит. Посилання на коментар Поділитися на інших сайтах More sharing options...
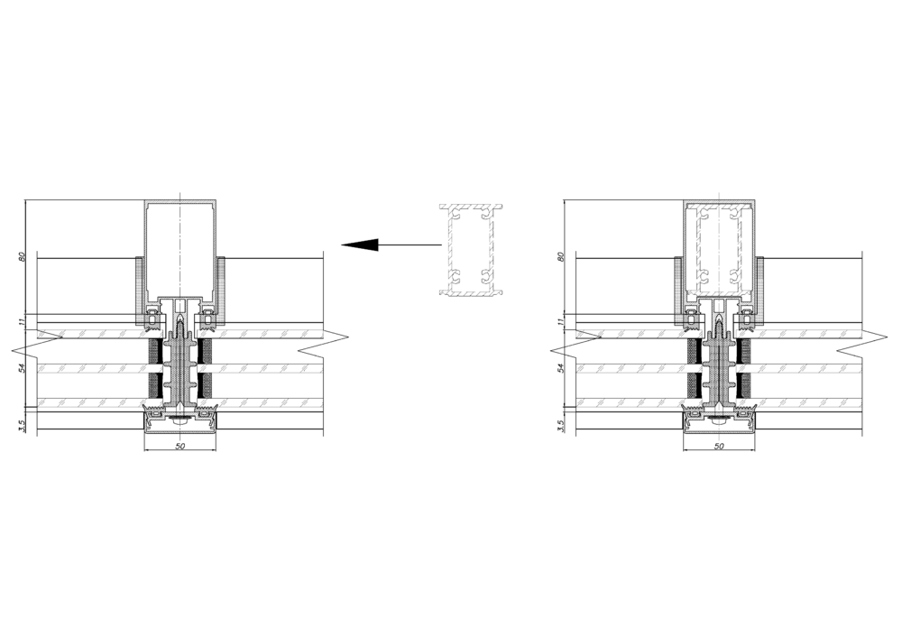
Ruslan R Опубліковано: 11 березня 2015 Поділитись Опубліковано: 11 березня 2015 И последнее на закуску! По поводу ветровой нагрузки. У меня 4 францкзских окна 2100 на 2100 и два с балконной дверью! Полет о личный! Жестко и тепло))) Смотрите чтобы полет в реальность не превратился :D Улететь конечно не улетит, но конструкция явно жидковата. Вам просто забыли поставить вот этот соединительный профиль со стальной армировкой Посилання на коментар Поділитися на інших сайтах More sharing options...
климаттехник Опубліковано: 11 березня 2015 Поділитись Опубліковано: 11 березня 2015 Смотрите чтобы полет в реальность не превратился :D Улететь конечно не улетит, но конструкция явно жидковата. Вам просто забыли поставить вот этот соединительный профиль со стальной армировкой Очень похоже на то, что у меня стоит. Окно поделено на 3 створки вертикальных по 68см помое у и соединены какой хренью))) Посилання на коментар Поділитися на інших сайтах More sharing options...
star_a Опубліковано: 13 березня 2015 Поділитись Опубліковано: 13 березня 2015 Прикольно, почему не укого из профильшиков (дажа на тубе) уголки не зачищают и не показывают и не показали как произошёл разрыв шва))) Посилання на коментар Поділитися на інших сайтах More sharing options...
климаттехник Опубліковано: 14 березня 2015 Поділитись Опубліковано: 14 березня 2015 Прикольно, почему не укого из профильшиков (дажа на тубе) уголки не зачищают и не показывают и не показали как произошёл разрыв шва))) Плохо искали вы. Видел ролик с завода в киеве, так там зачиают, а тест профиля на разрыв делают при сертификации, да и думаю каждая уважающая себя контора имее тестовые лаборатории на заводах. Посилання на коментар Поділитися на інших сайтах More sharing options...
Яло Опубліковано: 14 березня 2015 Поділитись Опубліковано: 14 березня 2015 Плохо искали вы. Видел ролик с завода в киеве, так там зачиают, а тест профиля на разрыв делают при сертификации, да и думаю каждая уважающая себя контора имее тестовые лаборатории на заводах. С какого перепугу на производстве нужна тестовая лаборатория? Для этого есть УкрМетрТестСтандарт. Или Вы думаете, что они так посетителей развлекают? Посилання на коментар Поділитися на інших сайтах More sharing options...
климаттехник Опубліковано: 14 березня 2015 Поділитись Опубліковано: 14 березня 2015 С какого перепугу на производстве нужна тестовая лаборатория? Для этого есть УкрМетрТестСтандарт. Или Вы думаете, что они так посетителей развлекают? Ну мое мнение, что производители профилей не стоят на месте и стараются улучшать свой профиль, придумываютновые, следовательно я не думаю, что они бегают в тест стандарт со своими палками чтобы их протестировать, тем более что этот станок стоит не более 3-5 штук зеленых. Посилання на коментар Поділитися на інших сайтах More sharing options...
Яло Опубліковано: 14 березня 2015 Поділитись Опубліковано: 14 березня 2015 Ну мое мнение, что производители профилей не стоят на месте и стараются улучшать свой профиль, придумываютновые, следовательно я не думаю, что они бегают в тест стандарт со своими палками чтобы их протестировать, тем более что этот станок стоит не более 3-5 штук зеленых. При чем тут производители профилей к производителю окон? У производителей профилей конечно же есть лаборатории, т.к. каждую партию нужно проверить, а производители окон уже тестируют готовый продукт, а так же станки, измерительные приборы и прочую лабуду, связанную с конечным продуктом. Не смешивайте все до кучи. 1 Посилання на коментар Поділитися на інших сайтах More sharing options...
климаттехник Опубліковано: 14 березня 2015 Поділитись Опубліковано: 14 березня 2015 При чем тут производители профилей к производителю окон? У производителей профилей конечно же есть лаборатории, т.к. каждую партию нужно проверить, а производители окон уже тестируют готовый продукт, а так же станки, измерительные приборы и прочую лабуду, связанную с конечным продуктом. Не смешивайте все до кучи. Окей больше не буду смешивать!)))) Посилання на коментар Поділитися на інших сайтах More sharing options...
ProTV Опубліковано: 12 червня 2015 Поділитись Опубліковано: 12 червня 2015 Заметил интересную штуку, в импортных каталогах на представленых образцах выполненных по композитной технологии, использован однокамерный стеклопакет (как в самых дешовых толщина стеклопакета до 32 мм.). Наш производитель предлагает двухкамерный. Всё ли там правильно? PS: и по поводу сварки углов, в классической технологии если правильно понял, вся конструкция держится только за счёт сварки ПВХ, металлический несущий профильный элемент друг с другом не как не связан? Посилання на коментар Поділитися на інших сайтах More sharing options...
joer Опубліковано: 18 червня 2015 Поділитись Опубліковано: 18 червня 2015 Какие Вы смешные Дело в том, что даже с 2мм стенками обычный ПВХ профиль 1м (длины) Вы не сможете руками/ногами деформировать Так что отказываемся от армировки? Добавлено через 3 минуты Вот если бы Вам дали 3-х метровую палку обычного ПВХ профиля и вот этого "иновационного", положили бы на 2 стола и Вы сели на эти профиля, по очереди, тогда бы увидели реальные преимущества, если бы они конечно были Добавлено через 28 минут Кстати согласно ДСТУ Б В.2.6-15-99 (см. пункт 4.2.26) [4.2.26 Вироби, розмірами за висотою та шириною 0,6 м і більше, повинні виготовлятися із профілів ПВХ, підсилених елементами жорсткості.] Еще больше скажу, из-за большой разницы жёсткостей ПВХ и стали, при расчётах на ветровые нагрузки жёсткостью ПВХ пренебрегают. Так, что Вас вжарили на профиле P.S. А то, что там добавили какие-то "деревянные волокна пропитанные клеем" и смешали с ПВХ еще не значит, что профиль стал жестче. Возможно он стал еще хуже по жесткости, чем обычный ПВХ Официальные документы (сертификаты, характеристики профиля и т.д.), что профиль можно не армировать предоставили? Маркетинг (по народному - тупой развод заказчиков) это все и не более. Кстати, случайно наткнулся, что Rehau Geneo в 90% случаев тоже можно не армировать. Так ли это? Инфа с оф. сайта www.rehau.com/ua-uk/fenster--fassadensysteme/fenstersysteme/geneo Посилання на коментар Поділитися на інших сайтах More sharing options...
Алік Опубліковано: 18 червня 2015 Поділитись Опубліковано: 18 червня 2015 Если считать, что 90% - это окна многоквартирных многоэтажек размерами +/- 1300х1400 или 2100х1400, то таки да. Другой вопрос, что этот профиль сегодня имеют возможность заказать в основном только более-менее обеспеченные частные застройщики, окна в домах которых чаще имеют существенно бОльшие размеры. Посилання на коментар Поділитися на інших сайтах More sharing options...
scorpion0893 Опубліковано: 16 вересня 2015 Поділитись Опубліковано: 16 вересня 2015 Всем доброго времени суток, Хочу поделится мнениям о компании СТЕКО , так как очень доволен и не хочется выслушивать негативные отзывы. Вот уже как 1 год поставил окна даной фирмы и очень доволен . Ребят подскажу всем не пожалейте 50 грн на окне и закажите с энергосбережением, окна не потеют когда большой перепад температур. Что касается уплотнителей на резинках то у меня все ОК! все ровно и аккуратно подрезано негде не свозит. Ребят советую Окна СТЕКО !!!! Посилання на коментар Поділитися на інших сайтах More sharing options...
Рекомендовані повідомлення
Створіть акаунт або увійдіть у нього для коментування
Ви маєте бути користувачем, щоб залишити коментар
Створити акаунт
Зареєструйтеся для отримання акаунта. Це просто!
Зареєструвати акаунтУвійти
Вже зареєстровані? Увійдіть тут.
Увійти зараз