mastervovik Опубліковано: 24 жовтня 2017 Поділитись Опубліковано: 24 жовтня 2017 Силикатный зря туда втулил. Посилання на коментар Поділитися на інших сайтах More sharing options...
VIP13 Опубліковано: 24 жовтня 2017 Автор Поділитись Опубліковано: 24 жовтня 2017 Пожалуй, главной неожиданностью в этом строительном сезоне для меня стаали проблемы с канализационными трубами, которые были проложены по всему дому. Более всего удивляет и радует то, как неожиданно была обнаружена проблема. Привлекаемому для работ работнику была дана задача прокопать небольшую трашейку для укладки трубы от грутового теплобменника. работник несколько увлекся с глубиной траншейки и докопался до проложенной в прошлом году кнализационноой трубы. Когда я пришел на возглас работника " тут какая-то труба", моему разочарованию не было границ, т.к. я обнаружил повреждение канализационной трубы, как я посчитал сразу лопатой работником. Когда начали раскапывать трубу для замены, то была обнаружена очень печальна картинка(см фото). В итоге пришлось раскапывать всю проложенную в прошлом году сисетму и заменят трубы на рыжие. Причину такого явления вижу в особенной хрупкости пластика и нарушении технологии укладки. Т.к. засыпали сразу груном без просыпки песком и возможно трамбовка была слишком интенсивной. В результате в очередной раз прочувствовал мудрость народной поговорки - "нет худа без добра". 10 Посилання на коментар Поділитися на інших сайтах More sharing options...
VIP13 Опубліковано: 24 жовтня 2017 Автор Поділитись Опубліковано: 24 жовтня 2017 С ужасом представляю себе, чтобы было, если бы работник был не столь непонятливый и не углублялся при копке траншейки..... Посилання на коментар Поділитися на інших сайтах More sharing options...
mastervovik Опубліковано: 24 жовтня 2017 Поділитись Опубліковано: 24 жовтня 2017 Причину такого явления вижу в особенной хрупкости пластика и нарушении технологии укладки. Т.к. засыпали сразу груном без просыпки песком и возможно трамбовка была слишком интенсивной. 100% "к бабке не ходить". Посилання на коментар Поділитися на інших сайтах More sharing options...
VIP13 Опубліковано: 24 жовтня 2017 Автор Поділитись Опубліковано: 24 жовтня 2017 Силикатный зря туда втулил.Что, есть негативный опыт? Посилання на коментар Поділитися на інших сайтах More sharing options...
mastervovik Опубліковано: 24 жовтня 2017 Поділитись Опубліковано: 24 жовтня 2017 Что есть негативный опыт? Мог бы быть, если бы так сделал :D Вот степень вероятности не могу предсказать Посилання на коментар Поділитися на інших сайтах More sharing options...
digor_ua Опубліковано: 24 жовтня 2017 Поділитись Опубліковано: 24 жовтня 2017 Пожалуй, главной неожиданностью в этом строительном сезоне для меня стаали проблемы с канализационными трубами, которые были проложены по всему дому. Более всего удивляет и радует то, как неожиданно была обнаружена проблема. Привлекаемому для работ работнику была дана задача прокопать небольшую трашейку для укладки трубы от грутового теплобменника. работник несколько увлекся с глубиной траншейки и докопался до проложенной в прошлом году кнализационноой трубы. Когда я пришел на возглас работника " тут какая-то труба", моему разочарованию не было границ, т.к. я обнаружил повреждение канализационной трубы, как я посчитал сразу лопатой работником. Когда начали раскапывать трубу для замены, то была обнаружена очень печальна картинка(см фото). В итоге пришлось раскапывать всю проложенную в прошлом году сисетму и заменят трубы на рыжие. Причину такого явления вижу в особенной хрупкости пластика и нарушении технологии укладки. Т.к. засыпали сразу груном без просыпки песком и возможно трамбовка была слишком интенсивной. В результате в очередной раз прочувствовал мудрость народной поговорки - "нет худа без добра". производитель не IVCI Plast случайно? 1 Посилання на коментар Поділитися на інших сайтах More sharing options...
mikhailoff71 Опубліковано: 24 жовтня 2017 Поділитись Опубліковано: 24 жовтня 2017 (змінено) С ужасом представляю себе, чтобы было, если бы работник был не столь непонятливый и не углублялся при копке траншейки..... Та да. Хорошо, что у меня одна рыжая и на глубине больше метра... Змінено 24 жовтня 2017 користувачем mikhailoff71 1 Посилання на коментар Поділитися на інших сайтах More sharing options...
VIP13 Опубліковано: 24 жовтня 2017 Автор Поділитись Опубліковано: 24 жовтня 2017 Мог бы быть, если бы так сделал Вот степень вероятности не могу предсказать Ну тогда я буду испытуемым на степень вероятности. У меня все оголовки и приямок возле колодца выложены силикатником. Добавлено через 4 минуты производитель не IVCI Plast случайно? Да вообще по трубам была целая эпопея, сначала взял рыжие в Украинке в Анжио, оказались бракованными, соединить без продавливания во внутрь резинки уплотнения вообще был не реально. Сдал. Время поджимало, в итоге по дороге на участок взял серые самые прочные на ощупь и самые дорогие в Эпицентре. 1 Посилання на коментар Поділитися на інших сайтах More sharing options...
Gitan Опубліковано: 24 жовтня 2017 Поділитись Опубліковано: 24 жовтня 2017 Труба бы выдержала, если б засыпали песком. Ну и трамбовали без фанатизма. 2 Посилання на коментар Поділитися на інших сайтах More sharing options...
VIP13 Опубліковано: 26 жовтня 2017 Автор Поділитись Опубліковано: 26 жовтня 2017 Труба бы выдержала, если б засыпали песком. Ну и трамбовали без фанатизма. Рыжую, которая пошла взамен серой, засыпал песком и пролил водой, только потом грунт. Посилання на коментар Поділитися на інших сайтах More sharing options...
VIP13 Опубліковано: 26 жовтня 2017 Автор Поділитись Опубліковано: 26 жовтня 2017 (змінено) В этот строительный сезон бетонирование было основным занятием. В результате были обустроены черновые варианты дорожек и отмостки вокруг дома. Дорожки 5 см крупного щебня - 5-7см бетона. Отмостка - 5 см песка, ЭППС 5 см, 5 см щебня, 5 см бетона. В последствии буду на это основание ложить ФЭМ. Змінено 26 жовтня 2017 користувачем VIP13 5 Посилання на коментар Поділитися на інших сайтах More sharing options...
VIP13 Опубліковано: 26 жовтня 2017 Автор Поділитись Опубліковано: 26 жовтня 2017 Отдельным куском работы было бетонирование пола в мастерской и гараже. Толщина бетона 10см с усилением сеткой по проекции проезда колес авто. 3 Посилання на коментар Поділитися на інших сайтах More sharing options...
VIP13 Опубліковано: 26 жовтня 2017 Автор Поділитись Опубліковано: 26 жовтня 2017 В этом сезоне, в очередной раз порадовали ранние сорта яблонь Белый налив и Мантет. Деревца пока небольшие, но яблочки отменные. 2 Посилання на коментар Поділитися на інших сайтах More sharing options...
VIP13 Опубліковано: 26 жовтня 2017 Автор Поділитись Опубліковано: 26 жовтня 2017 Также, несмотря на весенний жесткий приморозок, удалось попробовать сигналки винограда. 4 Посилання на коментар Поділитися на інших сайтах More sharing options...
VIP13 Опубліковано: 26 жовтня 2017 Автор Поділитись Опубліковано: 26 жовтня 2017 И еще яблочки и не только. 4 Посилання на коментар Поділитися на інших сайтах More sharing options...
mikhailoff71 Опубліковано: 26 жовтня 2017 Поділитись Опубліковано: 26 жовтня 2017 ... Деревца пока небольшие, но яблочки отменные. Игорь, приветствую. А сколько лет яблоням? У меня в этом году яблоне Айдаред и черешне Сказка по 4 года. Они еще ни разу не цвели и не плодоносили, в отличие от сливы, которая уже второй год плодоносит. 1 Посилання на коментар Поділитися на інших сайтах More sharing options...
alyak Опубліковано: 26 жовтня 2017 Поділитись Опубліковано: 26 жовтня 2017 Рыжую, которая пошла взамен серой, засыпал песком и пролил водой, только потом грунт. ну вы уже узнали что для наружной канализации идет другая труба ... Посилання на коментар Поділитися на інших сайтах More sharing options...
VIP13 Опубліковано: 27 жовтня 2017 Автор Поділитись Опубліковано: 27 жовтня 2017 А сколько лет яблоням? Сережа, здравствуй! Основная высадка была в апреле 2013, затем вторая часть весной 2014. Садил, в основном, однолетки часть двухлеток. Двухлетки практически все цвели. Более того один сорт яблок- Пинова, даже дал на гора несколько яблок. Вообще из всех яблоно больше всего доволен сортами Пинова(поздние, обильно цветет и вяжуться яблоки, надо подвязывать), Деличия - осенние, брал как альтернативу Славе победителям, тоже урожайный с прекрасными вкусовыми качествами как и Пинова. Самые ранние я уже упоменал, Белый налив это известный всем ранний сорт, но он кисловат и не всем нравиться его кашеобразная мякоть в перезрелом состоянии. Отличная альтернатива ему -это сорт Мантет, до кондиции сьедобности доходит раньше чем белый налив, а по вкусу кисло-сладкий. По всем яблоням и грушам рассчтывал в этом году на первый достойный урожай, но весенний морозец несколько подкорретировал ожидания. Надеюсь на следующий год. Основная формировка уже практически закончена, буду давать возможность показывать деревьям себя в урожайнности. 2 Посилання на коментар Поділитися на інших сайтах More sharing options...
VIP13 Опубліковано: 27 жовтня 2017 Автор Поділитись Опубліковано: 27 жовтня 2017 А это из серии - "Найди 10 отличий" 6 Посилання на коментар Поділитися на інших сайтах More sharing options...
VIP13 Опубліковано: 27 жовтня 2017 Автор Поділитись Опубліковано: 27 жовтня 2017 (змінено) Цветы в этом году были настоящим украшением участка. Змінено 27 жовтня 2017 користувачем VIP13 3 Посилання на коментар Поділитися на інших сайтах More sharing options...
mikhailoff71 Опубліковано: 27 жовтня 2017 Поділитись Опубліковано: 27 жовтня 2017 А это из серии - "Найди 10 отличий" Да у тебя прям сад и огород для промышленных объемов!!! Добавлено через 23 минуты Основная высадка была в апреле 2013... Вот и мы тоже весной 2013-го высадили однолетки... Но что-то пошло не так... 1 Посилання на коментар Поділитися на інших сайтах More sharing options...
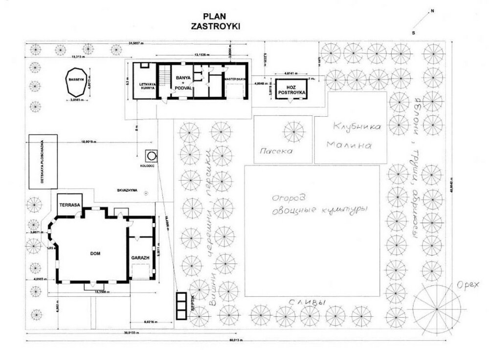
VIP13 Опубліковано: 27 жовтня 2017 Автор Поділитись Опубліковано: 27 жовтня 2017 Да у тебя прям сад и огород для промышленных объемов!!!Да, вопрос возможности беспроблемного выращивания чего пожелаю, был одним из приоритетных при выборе участка. Вот мой план, который был обнародован еще в начеле пути реализации задуманного. Продвигаюсь не так уж быстро, но практически без отклонений от задуманного. Весной уже будет пасека. Буду готовить место. До холодов планирую развести чернозем(он у меня был снять с пятна застройки) по всем облагораживаемым частям вокруг дома. 3 Посилання на коментар Поділитися на інших сайтах More sharing options...
mastervovik Опубліковано: 27 жовтня 2017 Поділитись Опубліковано: 27 жовтня 2017 Да, вопрос возможности беспроблемного выращивания чего пожелаю, был одним из приоритетных при выборе участка. Вот мой план, который был обнародован еще в начеле пути реализации задуманного. Продвигаюсь не так уж быстро, но практически без отклонений от задуманного. Весной уже будет пасека. Буду готовить место. До холодов планирую развести чернозем(он у меня был снять с пятна застройки) по всем облагораживаемым частям вокруг дома. А зачем деревья с юга, или скрыть от взоров огород? Посилання на коментар Поділитися на інших сайтах More sharing options...
VIP13 Опубліковано: 27 жовтня 2017 Автор Поділитись Опубліковано: 27 жовтня 2017 А зачем деревья с юга, или скрыть от взоров огород?Первая причина втом, что когда я написал список тех деревьев и кустов, которые я хочу посадить, то мой участок оказался мал для воплощения всех желаний. Вторая, это разделение зон участка на ландшафтно-окультуренную и садово-огородную. Добавлено через 11 минут Вот и мы тоже весной 2013-го высадили однолетки... Но что-то пошло не так... Большое значение имеет источник саженцев. Очень часто продают совсем не то, что пишут на бирках. Яблонька должна была дать уже признаки цветения. Конечно еще один важный момент с тем как ты ее обрезал. Если увлекался формировкой и не давал возможности формироваться плодушек. От методики обрезки тоже многое зависит. А черешня, она вообще очень медленная во входе в период плодоношения, после 4 лет могут появляться только первые пизнаки, но конечно многое зависит от сорта. Вот еще пишут умные люди: "Если черешня плохо плодоносит, то велика вероятность, что у вас на участке кислая почва. Вообще черешня – растение южное, а там преобладают карбонатные, то есть щелочные почвы. Поэтому в Средней полосе почву перед посадкой черешни полезно произвестковать." Источник: 7dach.ru/pobivanceva/ne-plodonosit-chereshnya-v-chem-mozhet-byt-prichina-48419.html 8 Посилання на коментар Поділитися на інших сайтах More sharing options...
Рекомендовані повідомлення
Створіть акаунт або увійдіть у нього для коментування
Ви маєте бути користувачем, щоб залишити коментар
Створити акаунт
Зареєструйтеся для отримання акаунта. Це просто!
Зареєструвати акаунтУвійти
Вже зареєстровані? Увійдіть тут.
Увійти зараз