Игореха Опубліковано: 24 січня 2014 Поділитись Опубліковано: 24 січня 2014 Ну да, а + перекрытие? Киньте ссылкой. Где? Посилання на коментар Поділитися на інших сайтах More sharing options...
Drosselbeere Опубліковано: 24 січня 2014 Поділитись Опубліковано: 24 січня 2014 О не ужели прониклись kastor666,вы нагрузки уменьшили до минимума, а несущую способность основания увеличили до не могу и при этом не распределили равномерно нагрузку. 2 Посилання на коментар Поділитися на інших сайтах More sharing options...
kastor666 Опубліковано: 24 січня 2014 Поділитись Опубліковано: 24 січня 2014 Не было там такого. Он взял полезную нагрузку на перекрытие, а не его вес. А что это? Откуда +20т? Взял по самым стандартным скромным нормам - 200кг/м2. ;) Ну не знаю, скромные или не скромные - по нашему региону для всех проверенных мной источноков цифра составила 160кг. Вы так все подробно объясняете, не пойму чего сам афтор строк, закипешовал - "не хочешь, не надо!"? Добавлено через 1 минуту О не ужели прониклись kastor666,вы нагрузки уменьшили до минимума, а несущую способность увеличили до не могу и при этом не распределили равномерно нагрузку. Так какую вы ленту бы взяли? 30см 40см пята 50/30+стена 30/120 Это чтобы из 2000уе чисто по бетону не вылазить... Посилання на коментар Поділитися на інших сайтах More sharing options...
Игореха Опубліковано: 24 січня 2014 Поділитись Опубліковано: 24 січня 2014 (змінено) Так что скажете, если принять 2кг/см гунт, хватит 30см сплошную ленту? Вы же сами понимаете, что теоретически хватит при идеальных распределениях нагрузок. А если УГВ подойдет? Будет 1кг. В реалиях - это игра на грани фола. Вам нужен такой риск, чтобы доказать нам, что дом не треснет? Или может "ну нас нафиг", и сделать себе же, гарантированно нормальный фундамент? Хотя, гарантированных фундаментов в природе наверное не существует вообще. Природа может элементарно посмеяться над нашими потугами. Добавлено через 4 минуты А что это? Откуда +20т? Ну не знаю, скромные или не скромные - по нашему региону для всех проверенных мной источноков цифра составила 160кг. Мы вообще сейчас об чем? Там речь шла (19+ тонн?) о полезной нагрузке. Это как раз все ваши ковры, унитазы, шкафы, кровати, стулья, котлы, плиты, ванны, люди и т.п. Их не считают поединично. А закладывают нормативную эксплуатационную (полезную) нагрузку на перекрытие. 160 - это про снег? Напомните, какой регион, и какое кровельное покрытие? Змінено 24 січня 2014 користувачем Игореха Посилання на коментар Поділитися на інших сайтах More sharing options...
kastor666 Опубліковано: 24 січня 2014 Поділитись Опубліковано: 24 січня 2014 Так что же-50/30 лучше будет? Участок Боярка-Тарасовка. Кровля-профнастил/металлочерепица. Посилання на коментар Поділитися на інших сайтах More sharing options...
kastor666 Опубліковано: 25 січня 2014 Поділитись Опубліковано: 25 січня 2014 Да все верно. Только со снеговой немного не понял. Если говорить о реалиях - то да. Но человек хочет сухую нормативку ))) Вам довелось лично измерять реальнон количество снега на м.кв.? Или откуда данные, что "реалии" больше 160кг? Мне не обязательна сухая нормативка, но цифр хочется обоснованных.. Посилання на коментар Поділитися на інших сайтах More sharing options...
serg6112 Опубліковано: 25 січня 2014 Поділитись Опубліковано: 25 січня 2014 Кстати, не забудьте к весу ГБ добавить вес арматуры и армопоясов. расчет как правило делается хрестом по периметру всего дома- т е не выкидываються дверные и оконные проемы но при этом и не высчитываются вес дверей и окон и арматуры в стене!!! зачем новичку терять день в этих расчетах? Посилання на коментар Поділитися на інших сайтах More sharing options...
Игореха Опубліковано: 26 січня 2014 Поділитись Опубліковано: 26 січня 2014 расчет как правило делается хрестом по периметру всего дома- т е не выкидываються дверные и оконные проемы но при этом и не высчитываются вес дверей и окон и арматуры в стене!!! зачем новичку терять день в этих расчетах? Не орите!!! Я хорошо слышу!!! :D Правильнее (а не как правило) выкидывать проемы, но считать арматуру. Это когда штукатуры считают объем работ, то не выкидывают проемы. )) Вас никто не заставляет терять время в расчетах. Чего вы так переживаете? Добавлено через 6 минут Вам довелось лично измерять реальнон количество снега на м.кв.? Или откуда данные, что "реалии" больше 160кг? Мне не обязательна сухая нормативка, но цифр хочется обоснованных.. Снеговая нагрузка в моем регионе - 180кг по нормам. В прошлом году я замерял толщину льда и толщину снега на своей кровле. Поверьте, зрелище не для слабонервных - видеть на крыше под тонким слоем слежалого снега (10-15см) ледяную глыбу до 25см толщиной Я оставил леса на зиму под одним из свесов. Чтобы не разбирать их и не собирать весною заново, и чтобы была возможность проверить, как чувствует себя водосточка. Посилання на коментар Поділитися на інших сайтах More sharing options...
serg6112 Опубліковано: 26 січня 2014 Поділитись Опубліковано: 26 січня 2014 Это когда штукатуры считают объем работ, то не выкидывают проемы. )) штукатуры так же идут на уступки (лично у нас в Одессе), они или считают квадратуру без проемов и отдельно погонаж по углам(откосы), или не отбрасывая проемы но без откосов!!! таким образом прошлое лето работали большая половина строительных бригад!!! Не орите!!! Я хорошо слышу!!! кстати я не орал! или у вас утро бурное, как в анекдоте .... История времен эпохи застоя. Пять минут до открытия винно-водочного магазина: народ стоит группами, идут оживленные разговоры. Две минуты до открытия: начинает выстраиваться очередь, разговоры затихают. Одна минута до открытия: очередь вытянута как струна, мертвая тишина, все в напряжении. Вдоль очереди чинно идет кот. Один мужик не выдерживает - хватает кота за шкирку и швыряет: - Все коты как коты, а этот - "топ-топ, топ-топ"! Посилання на коментар Поділитися на інших сайтах More sharing options...
Игореха Опубліковано: 26 січня 2014 Поділитись Опубліковано: 26 січня 2014 Три восклицательных знака, это чтобы лучше видеть? Так я и вижу тоже хорошо, особенно в линзах :D Посилання на коментар Поділитися на інших сайтах More sharing options...
romalex4 Опубліковано: 27 січня 2014 Поділитись Опубліковано: 27 січня 2014 Так какую вы ленту бы взяли? 30см 40см пята 50/30+стена 30/120 Это чтобы из 2000уе чисто по бетону не вылазить... я так же как и вы пытаюсь просчитать минимально необходимый фундамент, только подход у меня другой (насколько верно - не знаю, может кто и подскажет). Где-то на форумах повстречалось, что нагрузку на фундамент рассчитывают в т/м.п. Получается, что действительно, давление здания через фундамент на грунт неоднородно, и эта неоднородность не полностью убирается монолитным армированным фундаментом, при решении этой проблемы производят конструктивное армирование. Так вот по бору нагрузок, думаю, что правильно будет сбор произвести по самой нагруженной стене, которая опирается на фундамент. Как пример - мои расчеты говорят - 10,5 т/м.п самы загруженный фундамент, остальные поменьше - есть 7,5, и даже 5,5. это здание : ГБ300+120кирпич, размер 11*11 м, один полный и один мансардный этаж, перекрытия - деревянные балки с утеплителем, деревянными полами, стропильная система + шифер, учтена полезная нагрузка 0,2 т/м2, снеговая 0,2т/м2, грунт при этом плотная слабовлажная глина. Так вот при расчете на 10,5 т/м.п получил ширину подошвы 0,6 м при 35% запаса. В цело получилось на дом две ширины подошвы фундамента 0,6 и 0,4 м. Посилання на коментар Поділитися на інших сайтах More sharing options...
Drosselbeere Опубліковано: 27 січня 2014 Поділитись Опубліковано: 27 січня 2014 Так вот при расчете на 10,5 т/м.п получил ширину подошвы 0,6 м при 35% запаса. как вы определили расчетное сопротивление, почему приняли 1,75 кг/см2, относительно чего у вас запас 35%. если дом из ГБ и деревянное перекрытие, откуда у вас 10,5 т/м.п. Посилання на коментар Поділитися на інших сайтах More sharing options...
Игореха Опубліковано: 27 січня 2014 Поділитись Опубліковано: 27 січня 2014 как вы определили расчетное сопротивление, почему приняли 1,75 кг/см2, относительно чего у вас запас 35%. если дом из ГБ и деревянное перекрытие, откуда у вас 10,5 т/м.п. Да уж... крайности ))) То у людей 120 тонн, то 350 при примерно одинаковых коробках Моя хатынка из кирпича и бетона, в 3 этажа со всеми нагрузками тянет на 550+. Так что где-то тут просчетец Посилання на коментар Поділитися на інших сайтах More sharing options...
romalex4 Опубліковано: 27 січня 2014 Поділитись Опубліковано: 27 січня 2014 первое, хоть внешние стены из ГБ300+120кирпич, но внутренняя несущая стена из кирпича 380, на эту стену опираются перекрытия с двух сторон плюс частично крыша (в расчете я взял весь вес крыши); сопротивление грунта сперва взято из таблицы, но еще и рассчитано в небольшой программе Расчет оснований и фундаментов; а запас имеется ввиду, что при нагрузке в 10,5 т/мп, площадь опирания 0,6*0,67. Посилання на коментар Поділитися на інших сайтах More sharing options...
Drosselbeere Опубліковано: 27 січня 2014 Поділитись Опубліковано: 27 січня 2014 но внутренняя несущая стена из кирпича 380, так вы так и пишите сопротивление грунта сперва взято из таблицы, но еще и рассчитано в небольшой программе Расчет оснований и фундаментов; у вас есть геология? что за чудо программа? запас имеется ввиду, что при нагрузке в 10,5 т/мп, площадь опирания 0,6*0,67. вот тут я совсем не понял Посилання на коментар Поділитися на інших сайтах More sharing options...
romalex4 Опубліковано: 27 січня 2014 Поділитись Опубліковано: 27 січня 2014 - была бы геология - вопросов бы не возникало, данные брал по таблицам, брал примерно средние характеристика глины, УГВ ниже 8 метров, увлажнение возможно только при дожде, очень тугая, тяжело копается лопатой, ну и наблюдения за стройками других. Возникал вопрос по пучинистости, но местные строители его не учитывают, грунт сухой. -10,5 т/м.п опирается не на метр погонный а на 0,67 м, при ширине подошвы 0,6м, отсюда и запас. - а программка rezultat.ucoz.net/ Посилання на коментар Поділитися на інших сайтах More sharing options...
Drosselbeere Опубліковано: 27 січня 2014 Поділитись Опубліковано: 27 січня 2014 -10,5 т/м.п опирается не на метр погонный а на 0,67 м, при ширине подошвы 0,6м, отсюда и запас. то есть на простенок длиной 670 мм приходит нагрузка 7 т Посилання на коментар Поділитися на інших сайтах More sharing options...
romalex4 Опубліковано: 27 січня 2014 Поділитись Опубліковано: 27 січня 2014 то-есть на подошву фундамента шириной 0,6 м приходится нагрузка 10,5/0,67=15,67 т/м.п Добавлено через 2 минуты сам запутался, расчетное сопротивление грунта при ширине подошвы в 0,6 м позволяет нести нагрузку в 15,67 т/м.п, вот так наверное будет верно Посилання на коментар Поділитися на інших сайтах More sharing options...
Drosselbeere Опубліковано: 27 січня 2014 Поділитись Опубліковано: 27 січня 2014 то-есть на подошву фундамента шириной 0,6 м приходится нагрузка 10,5/0,67=15,67 т/м.п вы точно не путаете??? Посилання на коментар Поділитися на інших сайтах More sharing options...
Игореха Опубліковано: 27 січня 2014 Поділитись Опубліковано: 27 січня 2014 сам запутался, расчетное сопротивление грунта при ширине подошвы в 0,6 м позволяет нести нагрузку в 15,67 т/м.п, вот так наверное будет верно Сейчас вы написали, что несущая грунта - 2,6кг/см2. Или снова запутались? Посилання на коментар Поділитися на інших сайтах More sharing options...
romalex4 Опубліковано: 27 січня 2014 Поділитись Опубліковано: 27 січня 2014 я сейчас говорил не о несущей грунта, а о запасе при выборе ширины подошвы в 0,6 м, можно выбрать ширину грунта меньше, так и запас будет другим, например при ширине подошвы 0,4 м - 1/0,92=1,09 , запас около 9 %. Посилання на коментар Поділитися на інших сайтах More sharing options...
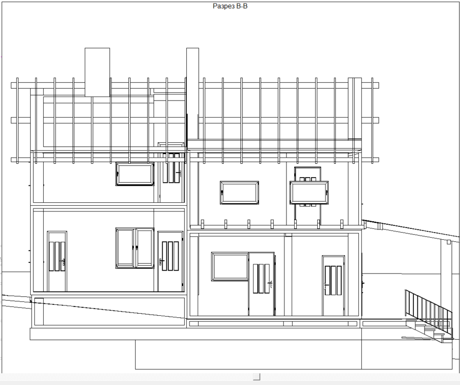
romalex4 Опубліковано: 27 січня 2014 Поділитись Опубліковано: 27 січня 2014 да, кстати вот мои картинки, может что посоветуете Посилання на коментар Поділитися на інших сайтах More sharing options...
Игореха Опубліковано: 27 січня 2014 Поділитись Опубліковано: 27 січня 2014 я сейчас говорил не о несущей грунта, а о запасе при выборе ширины подошвы в 0,6 м, можно выбрать ширину грунта меньше, так и запас будет другим, например при ширине подошвы 0,4 м - 1/0,92=1,09 , запас около 9 %. Я здаюсь! Посилання на коментар Поділитися на інших сайтах More sharing options...
Drosselbeere Опубліковано: 27 січня 2014 Поділитись Опубліковано: 27 січня 2014 я сейчас говорил не о несущей грунта, а о запасе при выборе ширины подошвы в 0,6 м, можно выбрать ширину грунта меньше, так и запас будет другим, например при ширине подошвы 0,4 м - 1/0,92=1,09 , запас около 9 %. да, кстати вот мои картинки, может что посоветуете Я здаюсь! я то же, даже не наю чем помочь. PS. картинки порадовали Посилання на коментар Поділитися на інших сайтах More sharing options...
romalex4 Опубліковано: 27 січня 2014 Поділитись Опубліковано: 27 січня 2014 говорят, если непонятно объяснение, то виноват объясняющий, согласен, видимо я не те слова применял и не в том порядке, сам сдаюсь, но не "бейте" сильно, я же не проектировщик, но суть не в том, ветка называется про правильный ленточный фундамент, так вот хотелось бы выработать алгоритм решения данной задачи, набрать или справочного материала для адекватного расчета, или какие нибудь , опять же, адекватные, готовые расчеты, расчетные программы, разобраться, как ими пользоваться и в конце-концов рассчитать ленточный фундамент, и что бы все надбавки и коэфициенты были логично обоснованны и понятны. 1 Посилання на коментар Поділитися на інших сайтах More sharing options...
Рекомендовані повідомлення
Створіть акаунт або увійдіть у нього для коментування
Ви маєте бути користувачем, щоб залишити коментар
Створити акаунт
Зареєструйтеся для отримання акаунта. Це просто!
Зареєструвати акаунтУвійти
Вже зареєстровані? Увійдіть тут.
Увійти зараз