Billi Опубліковано: 30 вересня 2015 Поділитись Опубліковано: 30 вересня 2015 так ступеньки ниже нет- то это и есть бюджетная серия Подозреваю, что самый бюджетный Mersedes A-class дороже Жигулей будет 1 Посилання на коментар Поділитися на інших сайтах More sharing options...
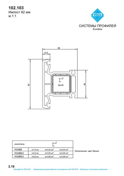
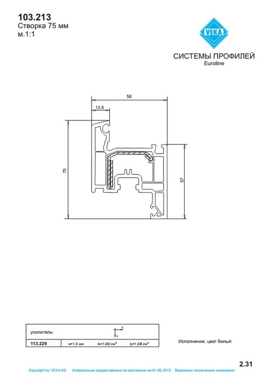
Алік Опубліковано: 1 жовтня 2015 Поділитись Опубліковано: 1 жовтня 2015 У Veka есть 3-камерный профиль Veka Euroline который относится к классу А и имеет лицевую стенку 3 мм. + армирование в раме и импосте квадрат и среди 3-камерных профилей, это далеко не бюджетный вариант!Ага, "квадрат" в раме импосте, а в створке - "г"?:D Посилання на коментар Поділитися на інших сайтах More sharing options...
ViknaStar Опубліковано: 1 жовтня 2015 Поділитись Опубліковано: 1 жовтня 2015 Ага, "квадрат" в раме импосте, а в створке - "г"?:D Да именно квадрат, а если есть сомнения, очень просто проверить, покупайте окно и …. пилите Шура, пилите…:D Посилання на коментар Поділитися на інших сайтах More sharing options...
Алік Опубліковано: 1 жовтня 2015 Поділитись Опубліковано: 1 жовтня 2015 Это замечательно, в створке что? П.С. Взял "квадрат" в кавычки не потому, что не верю, а потому, что на самом деле это "профильная труба".;) Посилання на коментар Поділитися на інших сайтах More sharing options...
ViknaStar Опубліковано: 1 жовтня 2015 Поділитись Опубліковано: 1 жовтня 2015 Это замечательно, в створке что? В створку устанавливается г-образный с одним загибом. Посилання на коментар Поділитися на інших сайтах More sharing options...
Алік Опубліковано: 1 жовтня 2015 Поділитись Опубліковано: 1 жовтня 2015 Правда, "Г-образное" армирование не так гордо звучит, как "квадрат"? Посилання на коментар Поділитися на інших сайтах More sharing options...
ViknaStar Опубліковано: 1 жовтня 2015 Поділитись Опубліковано: 1 жовтня 2015 Правда, "Г-образное" армирование не так гордо звучит, как "квадрат"? А Вы встречали в створках армирование сечением квадрат? Посилання на коментар Поділитися на інших сайтах More sharing options...
Алік Опубліковано: 1 жовтня 2015 Поділитись Опубліковано: 1 жовтня 2015 Да, 40х50, например . Посилання на коментар Поділитися на інших сайтах More sharing options...
ViknaStar Опубліковано: 1 жовтня 2015 Поділитись Опубліковано: 1 жовтня 2015 Да, 40х50, например . Что-то у вас с геометрией не то:D, 40х50 это квадрат или прямоугольник?! Посилання на коментар Поділитися на інших сайтах More sharing options...
Алік Опубліковано: 1 жовтня 2015 Поділитись Опубліковано: 1 жовтня 2015 Профильная труба, скажем так.:D Посилання на коментар Поділитися на інших сайтах More sharing options...
ViknaStar Опубліковано: 1 жовтня 2015 Поділитись Опубліковано: 1 жовтня 2015 Я скажу по-другому армирование в раме и в импосте сечением квадрат/прямоугольник имеет больше плюсов, чем п-образное! Посилання на коментар Поділитися на інших сайтах More sharing options...
Алік Опубліковано: 1 жовтня 2015 Поділитись Опубліковано: 1 жовтня 2015 А тем более, чем Г-образное.:D Ладно, это всё шутки-прибаутки, Века - отличная профильная система, единственное, что хотел донести, так это то, что значение имеет не "Г", "П" или "квадрат", значение имеют lₓ и lᵧ из таблички в каталоге, ну и, конечно, степень соответствия армирвания каталожному. 1 Посилання на коментар Поділитися на інших сайтах More sharing options...
-Naum- Опубліковано: 1 жовтня 2015 Поділитись Опубліковано: 1 жовтня 2015 ................единственное, что хотел донести, так это то, что значение имеет не "Г", "П" или "квадрат", значение имеют lₓ и lᵧ из таблички в каталоге, ну и, конечно, степень соответствия армирвания каталожному. во как прямо в яблочко Посилання на коментар Поділитися на інших сайтах More sharing options...
Billi Опубліковано: 1 жовтня 2015 Поділитись Опубліковано: 1 жовтня 2015 Исключительно в целях образованности, подскажите: Зачем нужны четверти в оконных проемах и так ли они важны?...А потом когда идет утепление фасада - профиля почти не видно))) Посилання на коментар Поділитися на інших сайтах More sharing options...
Алік Опубліковано: 2 жовтня 2015 Поділитись Опубліковано: 2 жовтня 2015 Они защищают зону монтажного шва и в целом повышают теплотехнические характеристики. Чтобы профиль полностью не прятался за них нужно правильно расчитать размеры конструкций, возможно понадобятся расширители. Четверти могут быть выполнены и из материала утеплителя. 1 Посилання на коментар Поділитися на інших сайтах More sharing options...
litovetz Опубліковано: 5 жовтня 2015 Поділитись Опубліковано: 5 жовтня 2015 Выбор окон на финишной прямой, но теперь появился другой вопрос - моя входная дверь должна появится в Киеве 31.10.2015. Планирую установку двери и окон одновременно, т.е. в первых числах ноября. Есть ли какие-то ограничения по температуре при которой должны монтироваться окна? Посилання на коментар Поділитися на інших сайтах More sharing options...
ViknaStar Опубліковано: 5 жовтня 2015 Поділитись Опубліковано: 5 жовтня 2015 Выбор окон на финишной прямой, но теперь появился другой вопрос - моя входная дверь должна появится в Киеве 31.10.2015. Планирую установку двери и окон одновременно, т.е. в первых числах ноября. Есть ли какие-то ограничения по температуре при которой должны монтироваться окна? Каждая фирма сама определяет температуру, при которой приостанавливает монтажи (некоторые вообще монтируют при любой температуре). Согласно ДСТУ Б В.2 6-15-2011, п. 11.2 монтаж виробів не повинен проводитись при температурі зовнішнього повітря нижче мінус 15°С. 2 Посилання на коментар Поділитися на інших сайтах More sharing options...
star_a Опубліковано: 6 жовтня 2015 Поділитись Опубліковано: 6 жовтня 2015 мінус 15°С. Не ниже - 15 , но если будут ещё какие-то работы (пожмазать, доложить. приклеить) то большинство строй химии требует 5 градусов. Ну и пена в ноябре уже зима должна быть. 1 Посилання на коментар Поділитися на інших сайтах More sharing options...
Ruslan R Опубліковано: 8 жовтня 2015 Поділитись Опубліковано: 8 жовтня 2015 Согласно ДСТУ Б В.2 6-15-2011, п. 11.2 монтаж виробів не повинен проводитись при температурі зовнішнього повітря нижче мінус 15°С. А вот системодатель рекомендует не ниже чем +5°С P.S. Но это все к ПВХ относится, алюминия это не касается Посилання на коментар Поділитися на інших сайтах More sharing options...
star_a Опубліковано: 8 жовтня 2015 Поділитись Опубліковано: 8 жовтня 2015 Просто при ниже +5 резко ухудшается адегезия между поверхностями и узлы примыкания не гермитичны. 90% (могу ошибаться) строй химии расчитаны на +5. Вот откуда +5 . Для алюминия или ПВХ пофиг, а вот силиконам, герметикам (и некоторым пенам) - смерти подобно. Посилання на коментар Поділитися на інших сайтах More sharing options...
vovarpd Опубліковано: 9 жовтня 2015 Поділитись Опубліковано: 9 жовтня 2015 Планується склити лоджію. Маю кілька пропозицій від фірм. Профіль Rehau Ecosol 70. Підкажіть який склопакет кращий, а то тяжко в цих цифрах розібратися: Склопакет глибиною 32 мм. двокамерний з одним енергозберігаючими склом. Камери заповненні інертним газом - аргон. Фурнітура німецького виробництва GU unijet 4 x 4-12Ar-4-8Ar-4IGlas чи Двох/кам с/п 32 мм з енер/зберіг склом + аргон 4-8-4-12-4Low E+ arg Посилання на коментар Поділитися на інших сайтах More sharing options...
Алік Опубліковано: 9 жовтня 2015 Поділитись Опубліковано: 9 жовтня 2015 Аргон у двох камерах краще, але не набагато. Він ефективний тільки у парі з ЛоуІ(І) склом. 1 Посилання на коментар Поділитися на інших сайтах More sharing options...
Billi Опубліковано: 11 жовтня 2015 Поділитись Опубліковано: 11 жовтня 2015 А что, 8мм дистанции это уже норма для нашего климата?... Вам предложили не кращий, а видимо мы так ставим - ник-то не жалуется:D... Посилання на коментар Поділитися на інших сайтах More sharing options...
Алік Опубліковано: 11 жовтня 2015 Поділитись Опубліковано: 11 жовтня 2015 Для газонаполненных пакетов вполне. 12 мм для аргона и 9 мм для криптона, плюс/минус пара мм. П.С. Нет норм по ширине дистанции, только по сопротивлению теплопередаче. 1 Посилання на коментар Поділитися на інших сайтах More sharing options...
Billi Опубліковано: 12 жовтня 2015 Поділитись Опубліковано: 12 жовтня 2015 Для газонаполненных пакетов вполне. 12 мм для аргона и 9 мм для криптона, плюс/минус пара мм. П.С. Нет норм по ширине дистанции, только по сопротивлению теплопередаче. Согласен. Только хитрость в том, что нормам не соответствуют даже газонаполненные пакеты с дистанциями до 12мм. Могу ошибаться, но надеюсь приведенный вами, как специалистом, нормативы расставят точки над "і":) Классический подставочный профиль.... Меня не устраивает мостик холода. Или этот профиль утеплен лучше чем основной? Почему окно нельзя опереть на сам основной профиль если не нужен подоконник, а монтажный шов закрыть наличником? Отлив к профилю на герметик... Спрашиваю не из-за экономии, а именно из-за мостика холода. Или под отливом/подоконником вагон пены нужно наваливать??? При частичной установке из разного профиля (сегодня дверь, а через пару мес балкон, соединение 90) стыковка возможна или нужно делать только из подобного профиля? Например KBE и Kommerling...или Veka и KBE..?? (ссылка на изображение устарела) Посилання на коментар Поділитися на інших сайтах More sharing options...
Рекомендовані повідомлення
Створіть акаунт або увійдіть у нього для коментування
Ви маєте бути користувачем, щоб залишити коментар
Створити акаунт
Зареєструйтеся для отримання акаунта. Це просто!
Зареєструвати акаунтУвійти
Вже зареєстровані? Увійдіть тут.
Увійти зараз