W1nneR Опубліковано: 24 грудня 2015 Автор Поділитись Опубліковано: 24 грудня 2015 Имхо очень хорошо получилось. Отмостку сделаете весной? Да, тогда не успели, обпокопали вокруг, положили рубероид, песок, щебень, весной зальем бетон. Спасибо главное теперь что б трещены не пошли дальше Посилання на коментар Поділитися на інших сайтах More sharing options...
W1nneR Опубліковано: 26 грудня 2015 Автор Поділитись Опубліковано: 26 грудня 2015 Идея такая появилась, но правда не знаю будет ли она эффективна) когда буду делать отмостку вокруг сделать некий армопояс фундамента снаружи) всверлиться по кругу фундамента арматурой, на эту арматуру еще по кругу еще пару нитей арматур и залить бетоном отмсотку. На фото попробую показать что имею ввиду. Додаст ли такая конструкция прочности или пустая трата денег? Посилання на коментар Поділитися на інших сайтах More sharing options...
Andrei constructor Опубліковано: 26 грудня 2015 Поділитись Опубліковано: 26 грудня 2015 Додаст ли такая конструкция прочности или пустая трата денег? Пустая трата времени и денег. Между отмосткой и домом всегда будет деформационный шов (трещина), сколько не старайтесь. У вас все с домом после усиления будет нормально. Сейчас происходит стабилизация деформаций основания. Спокойно занимайтесь внутренними работами - разводкой коммуникаций, перекрытием и отмосткой. Немного позже оштукатурите изнутри. 2 Посилання на коментар Поділитися на інших сайтах More sharing options...
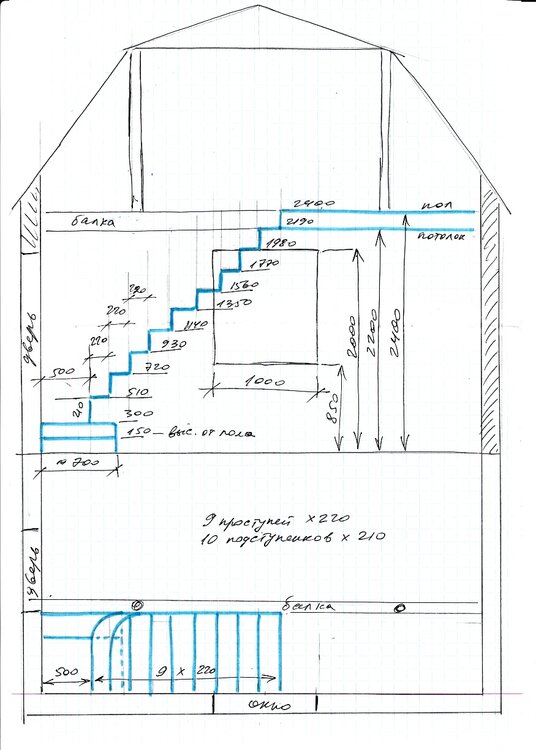
W1nneR Опубліковано: 26 грудня 2015 Автор Поділитись Опубліковано: 26 грудня 2015 по поводу внутренних работ и перекрытия, хочу лестницу сразу при входе справа, но там где должен быть проем для лестницы проходит балка, на фото вроде понятно показал. Подскажите как в этом случае поступить? Посилання на коментар Поділитися на інших сайтах More sharing options...
sov1178 Опубліковано: 26 грудня 2015 Поділитись Опубліковано: 26 грудня 2015 по поводу внутренних работ и перекрытия, хочу лестницу сразу при входе справа, но там где должен быть проем для лестницы проходит балка В смысле Вам нужно частично убрать одну балку? Усиливаете соседние и вырезаете часть. 1 Посилання на коментар Поділитися на інших сайтах More sharing options...
W1nneR Опубліковано: 26 грудня 2015 Автор Поділитись Опубліковано: 26 грудня 2015 В смысле Вам нужно частично убрать одну балку? Усиливаете соседние и вырезаете часть. спасибо, знач то не проблема ближе к делу более глубоку вникну Посилання на коментар Поділитися на інших сайтах More sharing options...
W1nneR Опубліковано: 26 грудня 2015 Автор Поділитись Опубліковано: 26 грудня 2015 выложу нормальные фото, а то перевернутые ужас Следующий раз как буду сделаю подробные фото, покажу туалет и летний душ в готовности правда еще не на 100%, а на 80% Следующие этапы это отмсотка, бетонный пол в доме, крыша, перекрытие и начнем внутренние работы Посилання на коментар Поділитися на інших сайтах More sharing options...
lug Опубліковано: 26 грудня 2015 Поділитись Опубліковано: 26 грудня 2015 хочу лестницу сразу при входе справа Та лестница, что я вам рисовала, не требует перепланировки балок перекрытия. Или есть новые идеи? Посилання на коментар Поділитися на інших сайтах More sharing options...
W1nneR Опубліковано: 26 грудня 2015 Автор Поділитись Опубліковано: 26 грудня 2015 Здравствуйте от Вашего рисунка лестницы и отталкиваюсь, мне просто кажется что она там не пролезит) но это так на глаз, нужно мерять. Из нового то хочу поставить еще небольшую печь камин или буллерьян, что б можно было зимой приезжать. Посилання на коментар Поділитися на інших сайтах More sharing options...
lug Опубліковано: 26 грудня 2015 Поділитись Опубліковано: 26 грудня 2015 кажется что она там не пролезит Перепроверьте все те размеры, что я "на глазок" проставила. И будет всё ясно. А также - чистый просвет между балками. Для отопления сделайте не камин, а легкую кирпичную печь с ходами в четверть кирпича, чтоб быстро нагревалась. Печь - в перегородке - топкой в кухню, изнанкой - в комнату. Ну или буллерьян, аналогично... 3 Посилання на коментар Поділитися на інших сайтах More sharing options...
W1nneR Опубліковано: 11 січня 2016 Автор Поділитись Опубліковано: 11 січня 2016 у нас зима, природа, красота... 2 Посилання на коментар Поділитися на інших сайтах More sharing options...
Andrei constructor Опубліковано: 11 січня 2016 Поділитись Опубліковано: 11 січня 2016 Для отопления сделайте не камин, а легкую кирпичную печь с ходами в четверть кирпича, чтоб быстро нагревалась. Печь - в перегородке - топкой в кухню, изнанкой - в комнату. Ну или буллерьян, аналогично... Я бы для дачи поставил каминофен. Посилання на коментар Поділитися на інших сайтах More sharing options...
W1nneR Опубліковано: 12 січня 2016 Автор Поділитись Опубліковано: 12 січня 2016 Я бы для дачи поставил каминофен. подскажие пожалуйста в чем отличие от обычных буллерьянов и печей каминов? Посилання на коментар Поділитися на інших сайтах More sharing options...
Andrei constructor Опубліковано: 12 січня 2016 Поділитись Опубліковано: 12 січня 2016 подскажие пожалуйста в чем отличие от обычных буллерьянов и печей каминов? Посмотрите эту статью: gidproekt.com/kaminofen-dlya-obogreva-vashego-zhilya-princip-raboty-ustanovka-xarakteristika.html 1 Посилання на коментар Поділитися на інших сайтах More sharing options...
W1nneR Опубліковано: 12 січня 2016 Автор Поділитись Опубліковано: 12 січня 2016 Посмотрите эту статью: gidproekt.com/kaminofen-dlya-obogreva-vashego-zhilya-princip-raboty-ustanovka-xarakteristika.html спасибо, такое я и хочу, только я его по другому называл, камино-печь в интернете смотрел, есть недорогие от 4000-5000 грн 1 Посилання на коментар Поділитися на інших сайтах More sharing options...
Caridi Опубліковано: 12 січня 2016 Поділитись Опубліковано: 12 січня 2016 У Вас снег под крышу намело? У меня тоже шифер без пленки положен - так в конек наметает... При дождях - все нормально Посилання на коментар Поділитися на інших сайтах More sharing options...
W1nneR Опубліковано: 18 січня 2016 Автор Поділитись Опубліковано: 18 січня 2016 У Вас снег под крышу намело? У меня тоже шифер без пленки положен - так в конек наметает... При дождях - все нормально даже не знаю, не обращал внимания, по случаю посмотрю. А как с этим боротся? Посилання на коментар Поділитися на інших сайтах More sharing options...
W1nneR Опубліковано: 19 січня 2016 Автор Поділитись Опубліковано: 19 січня 2016 Был в Польше, увидел веранду, хочу себе такую сделать с этой стороны на всю длину. Посилання на коментар Поділитися на інших сайтах More sharing options...
Andrei constructor Опубліковано: 19 січня 2016 Поділитись Опубліковано: 19 січня 2016 Был в Польше, увидел веранду, хочу себе такую сделать с этой стороны на всю длину. Вам подойдет такая, но с малым уклоном кровли 1,5...2%. Можно сделать кровлю из еврорубероида в этом случае (имхо самое то). 1 Посилання на коментар Поділитися на інших сайтах More sharing options...
lug Опубліковано: 19 січня 2016 Поділитись Опубліковано: 19 січня 2016 увидел веранду, хочу себе такую сделать Сделайте вдоль всей длинной стороны, чтоб и дверь входная была под крышей 1 Посилання на коментар Поділитися на інших сайтах More sharing options...
W1nneR Опубліковано: 19 січня 2016 Автор Поділитись Опубліковано: 19 січня 2016 Сделайте вдоль всей длинной стороны, чтоб и дверь входная была под крышей с длинной стороны хочу сделать тамбур-прихожую Посилання на коментар Поділитися на інших сайтах More sharing options...
lug Опубліковано: 20 січня 2016 Поділитись Опубліковано: 20 січня 2016 с длинной стороны хочу сделать тамбур-прихожую Это же летний дом - зачем ему тамбур? Навес параллельно фронтону закроет вам свет в окне. А вдоль длинной стороны нет окон, насколько я поняла, а только дверь. Вся летняя жизнь на даче происходит на улице, поэтому сделала бы навес максимальной площади. Еще один момент. Самый комфортный навес - с северной стороны от дома, но не с южной. А у вас как? 1 Посилання на коментар Поділитися на інших сайтах More sharing options...
Andrei constructor Опубліковано: 20 січня 2016 Поділитись Опубліковано: 20 січня 2016 Вся летняя жизнь на даче происходит на улице, поэтому сделала бы навес максимальной площади. Еще один момент. Самый комфортный навес - с северной стороны от дома, но не с южной. А у вас как? Полностью согласен с вами. Писал статью на эту тему: gidproekt.com/chem-dachnyj-dom-otlichaetsya-ot-doma-dlya-postoyannogo-prozhivaniya.html 2 Посилання на коментар Поділитися на інших сайтах More sharing options...
lug Опубліковано: 20 січня 2016 Поділитись Опубліковано: 20 січня 2016 Писал статью на эту тему Я "на эту тему" распинаюсь тут с первой страницы: ТС обустраивает ДАЧУ, но не дом, и незачем капитально вкладываться в это здание. Абсолютно необходимо для дачи: 1) Максимальной площади навес, - оптимально - имеет 2 стены, чтоб не было сквозняков, и открыт с двух сторон. -Там желательно сделать достаточно мест, чтоб посидеть- поваляться, -телевизор, чтоб вечером не скучать, - мангал\барбекю под настроение -Навес - с северной стороны от дома, чтоб не жарко было, - с утепленным или хотя бы проветриваемым чердачком - просто однослойная кровля раскаляется так, что там выжить невозможно 2) Достаточно спальных мест в домике 3) гостиная с ТВ - если сыро и прохладно 4) кухонька с холодильником 5) легкая печь или каминофен, или буржуйка накрайняк - для комфорта на раннюю весну или позднюю осень, когда массовый отдых закончился, но хозработы остались 6) обязательно утеплить кровлю - для изоляции от жары и звукоизоляции 7) где-то в конце участка - туалет, душ, хозблок 8) площадка для авто Всё остальное для дачи - излишество 3 Посилання на коментар Поділитися на інших сайтах More sharing options...
Andrei constructor Опубліковано: 20 січня 2016 Поділитись Опубліковано: 20 січня 2016 -телевизор, чтоб вечером не скучать, максимум в доме, на случай непогоды Добавлено через 1 минуту -Там желательно сделать достаточно мест, чтоб посидеть- поваляться, Можно сделать восточный достархан или простенький диван (например из европалет). 1 Посилання на коментар Поділитися на інших сайтах More sharing options...
Рекомендовані повідомлення
Створіть акаунт або увійдіть у нього для коментування
Ви маєте бути користувачем, щоб залишити коментар
Створити акаунт
Зареєструйтеся для отримання акаунта. Це просто!
Зареєструвати акаунтУвійти
Вже зареєстровані? Увійдіть тут.
Увійти зараз