Dmitry Grishchenko Опубліковано: 4 серпня 2015 Поділитись Опубліковано: 4 серпня 2015 В общем все нормально. Особых проблем не увидел с поверхностной оценки. Добавлено через 14 минут Дмитрий, спасибо. Посилання на коментар Поділитися на інших сайтах More sharing options...
Dandik Опубліковано: 4 серпня 2015 Поділитись Опубліковано: 4 серпня 2015 Учитывая, то, что у Вас стоят стены на перекрытии, я бы рекомендовал перестраховаться. Простой вариант- стянуть перемычки между собой, чтоб они работали совместно, как одна балка. Стянуть можно шпильками повышенной прочности с шагом 0,6-0,7м через металлические распределительные пластины. Диаметр шпилек 12мм. Толщина пластин 10мм 100х100мм. Шпильки устанавливать в разбежку по высоте сечения балок. Опять лезу не в свою песочницу, но ладно) Не встречал в практике, чтоб бетонные армированные перемычки стягивали шпильками друг с другом. При сверлении можно и в арматуру попасть, но это меньшее, что может случиться и использовать пластины 10мм явный перебор (к тому же цена пластин сопоставима с ценой перемычки). Есть такое понятие "составная балка на податливых связях" (его можно встретить в составных деревянных балках). При использовании шпилек меняется характер распределения сдвигающих усилий, которые надо учитывать в расчете. Кроме этого если например брать участок, где шпильку использовали снизу балки, усилие на срез будет только в этой зоне и полезное сечение будет равно ширине балки на высоту этого участка. ИМХО. При таких вмешательствах в перемычки которым уже по 7 лет, будет больше вреда, чем пользы. Есть более гуманные способы усиления ж/б конструкций. 2 Посилання на коментар Поділитися на інших сайтах More sharing options...
-ЭкоДом- Опубліковано: 4 серпня 2015 Поділитись Опубліковано: 4 серпня 2015 Есть такое понятие "составная балка на податливых связях" (его можно встретить в составных деревянных балках). Очень интересно,можете в двух(условно конечно) словах объяснить суть? Посилання на коментар Поділитися на інших сайтах More sharing options...
Dandik Опубліковано: 5 серпня 2015 Поділитись Опубліковано: 5 серпня 2015 Очень интересно,можете в двух(условно конечно) словах объяснить суть? Не буду много умничать, лучше сброшу Вам фрагмент статьи для прочтения. ;) В ней рассматриваются составные балки соединенные пластинами МЗП Составные балки дерев.pdf 1 Посилання на коментар Поділитися на інших сайтах More sharing options...
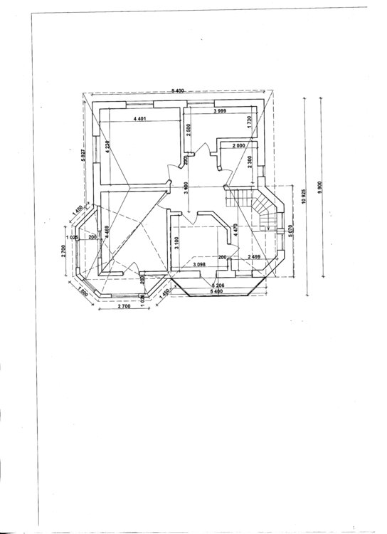
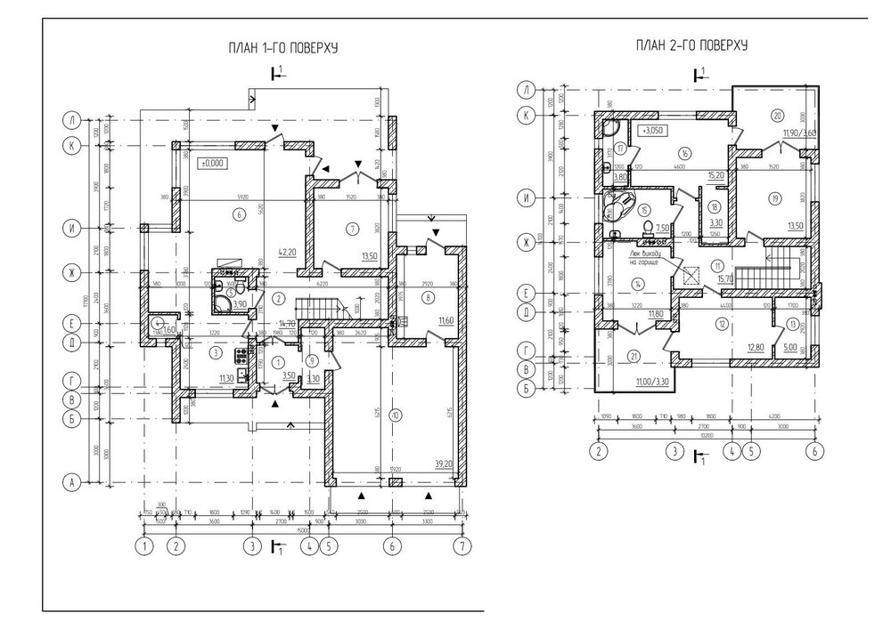
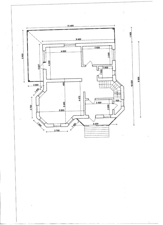
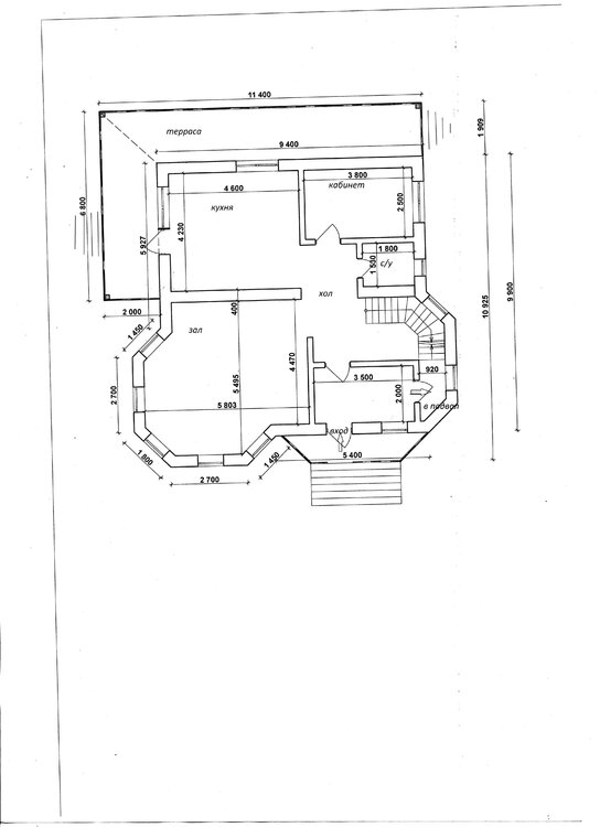
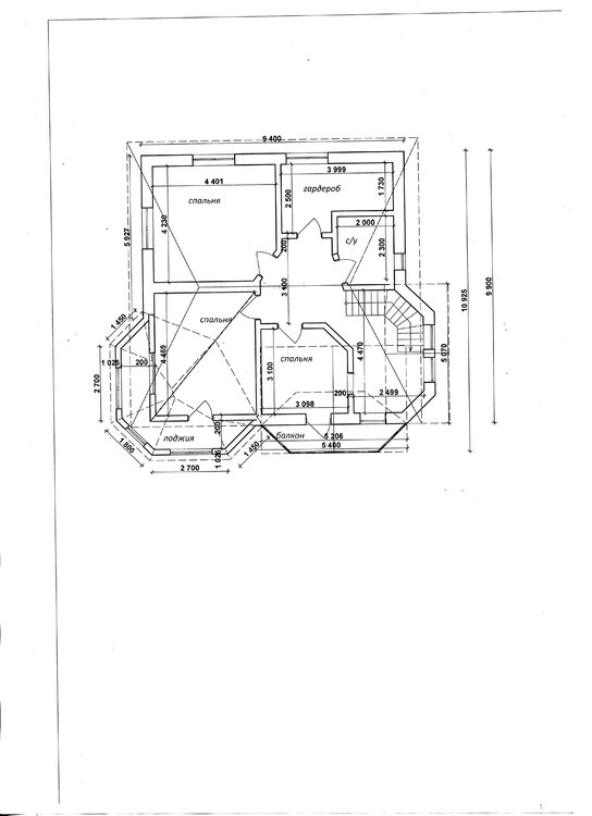
nek2007 Опубліковано: 8 серпня 2015 Поділитись Опубліковано: 8 серпня 2015 Добрый день Оцените компановку и практичночность дома спасибо Посилання на коментар Поділитися на інших сайтах More sharing options...
t-projekt Опубліковано: 9 серпня 2015 Автор Поділитись Опубліковано: 9 серпня 2015 Добрый день Оцените компановку и практичночность дома спасибо Не понимаю смысл эркерного пространства на втором этаже (балкон или что?). Очень много площади отведено на коридоры, что влечет за собой увеличение затрат на содержание дома, но может для Вас это не критично - мне не известно. Также тяжело оценить планировку без назначений помещений, самому додумывать не сильно правильно будет, так что прошу выложить планировки с экспликациями помещений. Посилання на коментар Поділитися на інших сайтах More sharing options...
nek2007 Опубліковано: 12 серпня 2015 Поділитись Опубліковано: 12 серпня 2015 назначение комнат дорисовал, лоджия на втором этаже - хотелка второй половины, если не затруднит подскажите как связана площадь коридоров и затраты на содержание (уборка?) на мой взгляд коридоры не очень большие спасибо Посилання на коментар Поділитися на інших сайтах More sharing options...
Nikobees Опубліковано: 13 серпня 2015 Поділитись Опубліковано: 13 серпня 2015 Специалисты помогите принять верное решение!! Есть часть кирпичного дома (на плане БТИ кв2) хочу провести реконструкцию под жилой дом с мансардою. Планирую сделать пристройку и новую крышу. На первом этаже в планах: кухня, гостиничная, с/у, котельная и возможно в пристройку получится комната. Ширина пристройки где-то 3,5м. Посоветуйте исходя из того что есть по факту какую планировку лучше сделать. и какую крышу сделать, ломаную или двускатною при этом поднять стены стены на 1,5м Посилання на коментар Поділитися на інших сайтах More sharing options...
Passat18 Опубліковано: 2 вересня 2015 Поділитись Опубліковано: 2 вересня 2015 Добрый день, Дмитрий! В проекте заложена лестница П-образная с поворотом на 180 градусов рис. 1. Для уменьшения площади лестницы решил заменить на Г-образную с поворотом на 90 градусов рис.2. Подскажите, имеет ли смысл вносить изменения в проект или может может посоветуете другой варианты перепланировки. Посилання на коментар Поділитися на інших сайтах More sharing options...
sergeykalina Опубліковано: 7 вересня 2015 Поділитись Опубліковано: 7 вересня 2015 Добрий день! В мене будинок 9*10 з газобетону 30см. З ломаною кришою. Хотів би добудувати мансардний поверх з двоскатною кришою. Яку інформацію вам потрібно для внесення змін. Посилання на коментар Поділитися на інших сайтах More sharing options...
S.Andrey Опубліковано: 12 вересня 2015 Поділитись Опубліковано: 12 вересня 2015 Добрый день Дмитрий. Не могли бы вы помочь мне рассчитать какое количество керамического блока нужно для моего дома? Дело в том что по проекту у меня стены из газобетона и другой толщины, а я хотел бы строить из обычного керамблока (толщина стены 38см) Если необходимы еще какие то данные, напишите! Заранее Благодарный !!! Посилання на коментар Поділитися на інших сайтах More sharing options...
zews_70 Опубліковано: 20 вересня 2015 Поділитись Опубліковано: 20 вересня 2015 Планируется постройка 2-х этажного дома площадью 155 м.кв из газоблока, в с. Осещина Будут изменения по высоте потолков 1 этажа до 3-х метров, увеличена котельная в гараже до 9,6 м.кв. В проекте предусмотрен ленточный монолитный фундамент, с пятками. Общая высота фундамента по проекту1,53 м. По геологии которая делалась предыдущим владельцем участка 0,3-0,4 м растительный слой песка темно серого до 4,7 м песок желтовато-бурый, желтовато-серый, средней плотности, неоднородный 4,8 -5,0 м толщиной до 3 м песок мелкий,средней плотности, неоднородный. Участок относится к 2 категории сложности, природной основой фундаментов будут служить пылеватые пески и мелкие пески. Грунтовые воды на глубине 1-1,1 м, поднятие в паводок до 0,5 м, участок относится к подтопляемым территориям. Рекомендована подсыпка участка на 0,5-1м Исходя из этого глубина заложения фундамента 1 м, над уровнем земли 53 см. Планировалось увеличение высоты фундамента мин. на 20 см из-за возможного подтопления. Однако во время обустройства скважины и копки ямы под кольца колодца колодца, на глубине 1,2-1,4 м обнаружен слой глины темного цвета, как сказали копачи болотной. По стенкам скважины визуально идет до статики воды на глубине 4м. Со слов соседей геология даже на одном участке может отличаться, место относится к бывшей пойме реки и многие на ленту дополнительно ложат плиту см на 20. Первоначальным предложением конструктора проекта, было увеличение глубины заложения фундамента ниже уровня глины, на 20 см, чтобы предотвратить попадание воды под фундамент. Тогда высота фундамента составит мин1,4м+подсыпка до 1м=2,4 м., что приведет к удорожанию. Что оптимально сделать в этой ситуации, насколько оправдано дополнительно ложить плиту? Посилання на коментар Поділитися на інших сайтах More sharing options...
Telurka Опубліковано: 30 вересня 2015 Поділитись Опубліковано: 30 вересня 2015 Доброго дня! прошу професійно поглянути на ескіз планування ділянки Площа ділянки 20 соток. На половині плануємо сад, на іншій будинок, баньку та інші будови. Як мають розташовуватися об'єкти виходячи з санітарних та пожежних норм? розташовували на ділянці просто за власним баченням, але якщо не виконані норми, підкоректуйте будь-ласка Баню та будинок плануємо робити з сіп-панелей Всі інші споруди не капітальні Якщо колодязь переносити до дороги, яка відстань має бути до септика? п.с. на дерева (зелені шестикутники) не звертайте увагу, їх там немає ) Посилання на коментар Поділитися на інших сайтах More sharing options...
vickov Опубліковано: 30 вересня 2015 Поділитись Опубліковано: 30 вересня 2015 Интересует решение по кровле. Есть примерное решение, но, пока, без размеров балок и стропил. Балки будут на одном уровне с мауэрлатом. Диагональные стропила - 2 срощенных (на схеме показано одно). Какие размеры для стропил и балок использовать при таких размерах? Угол наклона крыши 28-30 градусов.Дом 3 3D _ Все3.pdf Посилання на коментар Поділитися на інших сайтах More sharing options...
Технология Строительства Опубліковано: 2 жовтня 2015 Поділитись Опубліковано: 2 жовтня 2015 Интересует решение по кровле. Есть примерное решение, но, пока, без размеров балок и стропил. Балки будут на одном уровне с мауэрлатом. Диагональные стропила - 2 срощенных (на схеме показано одно). Какие размеры для стропил и балок использовать при таких размерах? Угол наклона крыши 28-30 градусов. При таком уклоне, можно брать стандартный размер стропил - 150х50 мм или 200х50 мм. В зависимости от толщины утеплителя, который монтируется между стропилами. Толщина утепления - 150 мм, стропила 150х50 мм, Толщина утепления 200 мм, стропила 200х50 мм. Если чердак будет холодным, сечения стропил 150х50 мм достаточно по несущей способности. С балками все сложнее. Пролет у Вас больше 6м, это много для деревянного перекрытия. 1. Либо делаем дополнительную несущую стену и фундамент для нее, тогда деревянное перекрытия подойдет; 2. Или переходите на ЖБ перекрытия: из круглопустотных плит или монолит. 3. Деревянные балки заменяются металлическими, профиль швеллер или двутавр. Какой номер именно не скажу, нужно считать. Маурлат 100х100 мм достаточно. 1 Посилання на коментар Поділитися на інших сайтах More sharing options...
vickov Опубліковано: 3 жовтня 2015 Поділитись Опубліковано: 3 жовтня 2015 При таком уклоне, можно брать стандартный размер стропил - 150х50 мм или 200х50 мм. В зависимости от толщины утеплителя, который монтируется между стропилами. Толщина утепления - 150 мм, стропила 150х50 мм, Толщина утепления 200 мм, стропила 200х50 мм. Если чердак будет холодным, сечения стропил 150х50 мм достаточно по несущей способности. С балками все сложнее. Пролет у Вас больше 6м, это много для деревянного перекрытия. 1. Либо делаем дополнительную несущую стену и фундамент для нее, тогда деревянное перекрытия подойдет; 2. Или переходите на ЖБ перекрытия: из круглопустотных плит или монолит. 3. Деревянные балки заменяются металлическими, профиль швеллер или двутавр. Какой номер именно не скажу, нужно считать. Маурлат 100х100 мм достаточно. Если поступить так: Делаю фундамент под дополнительную несущую стену, в кирпич. Но, в зоне кухни и гостиной фундамент будет сплошной, но на нем будет не сплошная стена. Не хочу стену между гостиной и кухней. В верхней части залью ж/б балку и на неё лягут деревянные балки перекрытия. При этом ширина пролета под балку максимум 3 м. Чтобы уменьшить пролет, можно продлить стену на 800 - 1000 или, как вариант, выложить стену высотой под барную стойку и на ней поставить колонну. Посилання на коментар Поділитися на інших сайтах More sharing options...
Технология Строительства Опубліковано: 3 жовтня 2015 Поділитись Опубліковано: 3 жовтня 2015 Если поступить так: Делаю фундамент под дополнительную несущую стену, в кирпич. Но, в зоне кухни и гостиной фундамент будет сплошной, но на нем будет не сплошная стена. Не хочу стену между гостиной и кухней. В верхней части залью ж/б балку и на неё лягут деревянные балки перекрытия. При этом ширина пролета под балку максимум 3 м. Чтобы уменьшить пролет, можно продлить стену на 800 - 1000 или, как вариант, выложить стену высотой под барную стойку и на ней поставить колонну. Вариант хороший, колона будет лишняя, под колону нужно отдельный фундамент лить, пускай даже не большой, не надо. С такой постановкой несущих стен, здания будет иметь хорошую жесткость. 2 ЖБ балки зальете на уровне монолитного пояса. Пролет балки 3 метра вообще отлично, можете даже 3.5-4.0 м брать спокойно, так как деревянное перекрытия легкая конструкция, будет нормально, рояли на 2 этаже ставить же не будете?=). Раскладка балок на 1 картинки отличная. Мне нравится. Можете приступать к строительству. Если есть еще какие то вопросы можете писать мне, помогу. Посилання на коментар Поділитися на інших сайтах More sharing options...
Skalsa Опубліковано: 6 жовтня 2015 Поділитись Опубліковано: 6 жовтня 2015 Здравствуйте!!! У вас так тут интересно и мне помогите. Решил сделать летнюю кухню возле дома дома(8/4 по фундаменту) Хочу туда вместить парилку и хоз/блок. и на весь потолок на верху комнату. а как это всё втулить не знаю . Буду очень благодарен. Посилання на коментар Поділитися на інших сайтах More sharing options...
vickov Опубліковано: 6 жовтня 2015 Поділитись Опубліковано: 6 жовтня 2015 Вариант хороший, колона будет лишняя, под колону нужно отдельный фундамент лить, пускай даже не большой, не надо. С такой постановкой несущих стен, здания будет иметь хорошую жесткость. 2 ЖБ балки зальете на уровне монолитного пояса. Пролет балки 3 метра вообще отлично, можете даже 3.5-4.0 м брать спокойно, так как деревянное перекрытия легкая конструкция, будет нормально, рояли на 2 этаже ставить же не будете?=). Раскладка балок на 1 картинки отличная. Мне нравится. Можете приступать к строительству. Если есть еще какие то вопросы можете писать мне, помогу. Дом 1 этаж. Чердак холодный, не эксплуатируемый. Возник еще один вопрос. Если я, фактически, добавляю фундамент, увеличивая его площадь, то, возможно, есть предпосылки к тому, чтобы уменьшить ширину фундамента по периметру с 600 до 400? Или, все-таки, сделать 600? Посилання на коментар Поділитися на інших сайтах More sharing options...
Технология Строительства Опубліковано: 7 жовтня 2015 Поділитись Опубліковано: 7 жовтня 2015 Если я, фактически, добавляю фундамент, увеличивая его площадь, то, возможно, есть предпосылки к тому, чтобы уменьшить ширину фундамента по периметру с 600 до 400? Или, все-таки, сделать 600? Нет, какие у Вас предпосылки на уменьшения нагрузки внешних стен? Давайте рассмотрим внешние стены: - высота стен осталась тот же; - собственный вес тот же остался; - добавились балки, которые опираются на внешние стены, которые являют собой сосредоточенную нагрузку на эту стену, потому советую сделать монолитный пояс; Другой вопрос, если рассмотреть в комплексе, тогда может чем то помогу: - я допускаю, что бывают такие ситуации, когда песок среднезернистый, дом из газоблока в один этаж, подземные воды глубоко находятся, тогда можно пересмотреть ширину подушки и сделать её не 600 мм. Привожу пример. Домик под Киевом. Геология песок, вода на уровни 3.2 м. Дом из газоблока 375 мм, перекрытия круглопустотные плиты, монолитный пояс. Высота в 1 этаж + мансарда. Ширина подушки 400 мм оказалось достаточно. Потому говорите Ваши данные, геологию в чат кидайте: нужно геологический разрезы 2 шт хватит и табл. физико-механических характеристик. Если геология отсутствует и у Вас не песок, 400 мм в моей практике по расчету не проходило ширина подушки от 600 мм. Добавлено через 4 минуты Здравствуйте!!! У вас так тут интересно и мне помогите. Решил сделать летнюю кухню возле дома дома(8/4 по фундаменту) Хочу туда вместить парилку и хоз/блок. и на весь потолок на верху комнату. а как это всё втулить не знаю . Буду очень благодарен. У Вас есть какие то эскизы Вашего дома без пристройки? Посилання на коментар Поділитися на інших сайтах More sharing options...
vickov Опубліковано: 7 жовтня 2015 Поділитись Опубліковано: 7 жовтня 2015 - я допускаю, что бывают такие ситуации, когда песок среднезернистый, дом из газоблока в один этаж, подземные воды глубоко находятся, тогда можно пересмотреть ширину подушки и сделать её не 600 мм. Привожу пример. Домик под Киевом. Геология песок, вода на уровни 3.2 м. Дом из газоблока 375 мм, перекрытия круглопустотные плиты, монолитный пояс. Высота в 1 этаж + мансарда. Ширина подушки 400 мм оказалось достаточно. Потому говорите Ваши данные, геологию в чат кидайте: нужно геологический разрезы 2 шт хватит и табл. физико-механических характеристик. Если геология отсутствует и у Вас не песок, 400 мм в моей практике по расчету не проходило ширина подушки от 600 мм. Геологии нет, грунт состоит на 80% из песка средней и мелкой зернистости и 20% глино-илистая составляющая. Характеризуется как суглинистый песок. Вода начинает проступать на глубине 2,5 м. Посилання на коментар Поділитися на інших сайтах More sharing options...
Drosselbeere Опубліковано: 7 жовтня 2015 Поділитись Опубліковано: 7 жовтня 2015 Геологии нет, грунт состоит на 80% из песка средней и мелкой зернистости и 20% глино-илистая составляющая. Характеризуется как суглинистый песок. Вода начинает проступать на глубине 2,5 м. а почему отказались от фунд плиты? Посилання на коментар Поділитися на інших сайтах More sharing options...
vickov Опубліковано: 8 жовтня 2015 Поділитись Опубліковано: 8 жовтня 2015 а почему отказались от фунд плиты? Я не отказывался, плиту никто не предлагал, поэтому её и не рассматривали. Посилання на коментар Поділитися на інших сайтах More sharing options...
Технология Строительства Опубліковано: 8 жовтня 2015 Поділитись Опубліковано: 8 жовтня 2015 Геологии нет, грунт состоит на 80% из песка средней и мелкой зернистости и 20% глино-илистая составляющая. Характеризуется как суглинистый песок. Вода начинает проступать на глубине 2,5 м. К сожалению без геологии нечего советовать не буду, что бы не навредить. Стоимость геологии отобьется от сэкономленных денег на подушки (пятки) фундамента, это как минимум, а если комплексно пересматривать тип фундамента, может еще намного больше. Посилання на коментар Поділитися на інших сайтах More sharing options...
Skalsa Опубліковано: 12 жовтня 2015 Поділитись Опубліковано: 12 жовтня 2015 Нет, какие у Вас предпосылки на уменьшения нагрузки внешних стен? Давайте рассмотрим внешние стены: - высота стен осталась тот же; - собственный вес тот же остался; - добавились балки, которые опираются на внешние стены, которые являют собой сосредоточенную нагрузку на эту стену, потому советую сделать монолитный пояс; Другой вопрос, если рассмотреть в комплексе, тогда может чем то помогу: - я допускаю, что бывают такие ситуации, когда песок среднезернистый, дом из газоблока в один этаж, подземные воды глубоко находятся, тогда можно пересмотреть ширину подушки и сделать её не 600 мм. Привожу пример. Домик под Киевом. Геология песок, вода на уровни 3.2 м. Дом из газоблока 375 мм, перекрытия круглопустотные плиты, монолитный пояс. Высота в 1 этаж + мансарда. Ширина подушки 400 мм оказалось достаточно. Потому говорите Ваши данные, геологию в чат кидайте: нужно геологический разрезы 2 шт хватит и табл. физико-механических характеристик. Если геология отсутствует и у Вас не песок, 400 мм в моей практике по расчету не проходило ширина подушки от 600 мм. Добавлено через 4 минуты У Вас есть какие то эскизы Вашего дома без пристройки? Только примерные нарисованные от руки. Буду очень благодарен за помощь. Извините за мой чертёж. Посилання на коментар Поділитися на інших сайтах More sharing options...
Рекомендовані повідомлення
Створіть акаунт або увійдіть у нього для коментування
Ви маєте бути користувачем, щоб залишити коментар
Створити акаунт
Зареєструйтеся для отримання акаунта. Це просто!
Зареєструвати акаунтУвійти
Вже зареєстровані? Увійдіть тут.
Увійти зараз