error1009 Опубліковано: 25 квітня 2017 Поділитись Опубліковано: 25 квітня 2017 ИМХО, тамбур маловат, санузел великоват, одно окно в спальне лишнее. Не вижу посередине несущей стены - как будет делаться крыша? Честно говоря, проект недовершённый, тут больше о планировке и размере помещений. Добавил ссылку в изначальное сообщение, чтоб легче было понять замысел. В санузле, думаю, есть смысл оборудование ставить типа бойлера, гидроаккумулятора, управления теплым полом или чего ещё, поэтому есть свободный угол. Тамбур маловат по абсолютным меркам, но это более 5% площади дома, есть куда повесить куртки, зеркало, электро-щиток, поставить обувь и скрыть это от глаз. Окно в спальне, которое на одной стене с ванной, имеет малую высоту и расположено высоковато, как у Андрюши здесь. Окно в ванной аналогичное по размещению и высоте. Стены посредине нет, с ней любой может Значит, крышу придётся опирать на фермы простую двускатную крышу. Посилання на коментар Поділитися на інших сайтах More sharing options...
vadimv Опубліковано: 25 квітня 2017 Поділитись Опубліковано: 25 квітня 2017 Тамбур маловат по абсолютным меркам, но это более 5% площади дома, есть куда повесить куртки, зеркало, электро-щиток, поставить обувь и скрыть это от глаз.ИМХО, тамбур меньше 2х2 лучше не делать. У меня в прихожей 2х3 частенько 4-5 человек толкутся - уже тесно. У родыча в тамбуре 1х2 помещается 1-2 человека. Окно в спальне, которое на одной стене с ванной, имеет малую высоту и расположено высоковато, как у АндрюшиНа северной стене? А в чем его смысл? Посилання на коментар Поділитися на інших сайтах More sharing options...
error1009 Опубліковано: 25 квітня 2017 Поділитись Опубліковано: 25 квітня 2017 ИМХО, тамбур меньше 2х2 лучше не делать. У меня в прихожей 2х3 частенько 4-5 человек толкутся - уже тесно. У родыча в тамбуре 1х2 помещается 1-2 человека. На северной стене? А в чем его смысл? Так тамбур же не для того, чтоб там находиться, а чтоб через него пройти. Мне пока кажется, что лучше такой мелкий тамбур, чем без него вообще. То западная сторона Если хотите критиковать окна, то лучше посоветуйте, где и какие бы ставили вы. Также буду рад услышать идеи, если у вас есть другое видение по ориентированию относительно сторон света. Посилання на коментар Поділитися на інших сайтах More sharing options...
vadimv Опубліковано: 25 квітня 2017 Поділитись Опубліковано: 25 квітня 2017 Так тамбур же не для того, чтоб там находиться, а чтоб через него пройти. Мне пока кажется, что лучше такой мелкий тамбур, чем без него вообще.Ну, я себе тоже планирую мелкий тамбур (1х2) на крыльце, но ни одежды, ни зеркала, ни обуви, ни щитка там не будет. Чисто чтоб через него пройти. А если нужно где-то раздеться, разбуться и все это повесить-поставить - то не меньше 2х2. То западная сторона Если западная - тогда бы я не делал окно напротив двери, на северной стороне. Если хотите критиковать окна, то лучше посоветуйте, где и какие бы ставили вы. Также буду рад услышать идеи, если у вас есть другое видение по ориентированию относительно сторон света.Не то, чтобы критиковать, но ИМХО в комнате площадью 12 кв.м одного окна - достаточно. А второе только мешает нормально поставить кровать. По сторонам света я бы лично делал так: 1) Терраса (с нее же вход в дом) - на восток. 2) Кухня-гостиная - на юг. 3) Спальни на запад. Или наоборот, если так удобнее, смотря по расположению участка и окружения. Чето мне кажется, что мы тут оффтопим и флудим. Не хотите отдельную тему себе организовать? 1 Посилання на коментар Поділитися на інших сайтах More sharing options...
error1009 Опубліковано: 25 квітня 2017 Поділитись Опубліковано: 25 квітня 2017 Чето мне кажется, что мы тут оффтопим и флудим. Не хотите отдельную тему себе организовать? Думаю, вопросы-уточнения, советы и мнения касательно плана дома не считаются флудом. Тему планирую создавать, когда задумаю что-то делать. А пока это просто фантазии и желание получить другие мнения, критику опытных людей Посилання на коментар Поділитися на інших сайтах More sharing options...
goga777 Опубліковано: 27 квітня 2017 Автор Поділитись Опубліковано: 27 квітня 2017 Рекомендации по сторонам света ___________________________ Функциональный домик 3 Посилання на коментар Поділитися на інших сайтах More sharing options...
Сергей НСТ Опубліковано: 27 квітня 2017 Поділитись Опубліковано: 27 квітня 2017 Поржал про умственный и физический труд 1 Посилання на коментар Поділитися на інших сайтах More sharing options...
Alex_san Опубліковано: 27 квітня 2017 Поділитись Опубліковано: 27 квітня 2017 Рекомендации по сторонам света ИМХО эти рекомендации никак не учитывают широту, на которой будет строиться дом, а ведь это важно. А домик, да, - функционален. По сторонам света я бы лично делал так: 1) Терраса (с нее же вход в дом) - на восток. 2) Кухня-гостиная - на юг. 3) Спальни на запад. Или наоборот, если так удобнее, смотря по расположению участка и окружения. 1) Полностью согласен с размещением, а вот входов в дом, ИМХО, должно быть два; основной с тамбуром и терраса на видовой участок. 2) Кухня и юг, - вещи мало совместимые. А вот с северной стороны кухня смотрелась бы логичнее. И разместить её таким образом согласно проекта выше - без проблем. 3) Спорный вопрос, мне вот нравится северо-восток, восток и юго-восток. 2 Посилання на коментар Поділитися на інших сайтах More sharing options...
vadimv Опубліковано: 27 квітня 2017 Поділитись Опубліковано: 27 квітня 2017 ИМХО эти рекомендации никак не учитывают широту, на которой будет строиться дом, а ведь это важно.Ну у нас разброс широт не так велик, не на экваторе живем. 1) Полностью согласен с размещением, а вот входов в дом, ИМХО, должно быть два; основной с тамбуром и терраса на видовой участок.Не всегда это получается сделать. 2) Кухня и юг, - вещи мало совместимые. А вот с северной стороны кухня смотрелась бы логичнее. И разместить её таким образом согласно проекта выше - без проблем. 3) Спорный вопрос, мне вот нравится северо-восток, восток и юго-восток.Посмотрите картинку ориентации по сторонам света в сообщении 712 чуть выше. Там кухню-столовую и гостиную рекомендуют делать на юго-восток и юг. А спальню на восток - для человека, занимающегося физическим трудом. Как человек, занимающийся в основном умственым трудом, могу полностью подтвердить, что просыпаться летом в 5 утра - не мое. В квартире были спальни на восток- везде висели шторы и даже жалюзи. Поэтому в доме сделал спальни на запад. Плюс в детских солнце светит весь вечер, когда нужно делать уроки. 1 Посилання на коментар Поділитися на інших сайтах More sharing options...
Alex_san Опубліковано: 27 квітня 2017 Поділитись Опубліковано: 27 квітня 2017 Посмотрите картинку ориентации по сторонам света в сообщении 712 чуть выше. Там кухню-столовую и гостиную рекомендуют делать на юго-восток и юг. Конечно же, если гостинная совмещена с кухней (как это сейчас модно), то интересы жильцов гостинной важнее интересов повара, потому, ориентируются на юг и/или восток. Но ведь это исключительно от бедности. Если проектировать дом по-уму, то кухню, де-факто самое жаркое (в любое время года) помещение в доме размещать на юге, - глупость и моветон. Потому, гостиная и терраса в моём доме смотрят на юго-восток (дабы солнце не надокучало весь день), а кухня на север-север-запад. А спальню на восток - для человека, занимающегося физическим трудом. Как человек, занимающийся в основном умственым трудом, могу полностью подтвердить, что просыпаться летом в 5 утра - не мое. Разделение труда на умственный и физический, ИМХО, немного некорректно. Правильней будет указать; "в зависимости от физиологических особенностей человека". Потому как я также работник умственного труда, но и, одновременно, "жаворонок". И просыпаться для меня с восходом солнца - милое дело (потому окна моей спальни смотрят на восток). 3 Посилання на коментар Поділитися на інших сайтах More sharing options...
Татьяна5 Опубліковано: 27 квітня 2017 Поділитись Опубліковано: 27 квітня 2017 (потому окна моей спальни смотрят на восток). север-запад-юг-восток - один фиг разницы, шторы блэкаут - и на востоке отлично спится до 12 дня )) ИМХО 3 Посилання на коментар Поділитися на інших сайтах More sharing options...
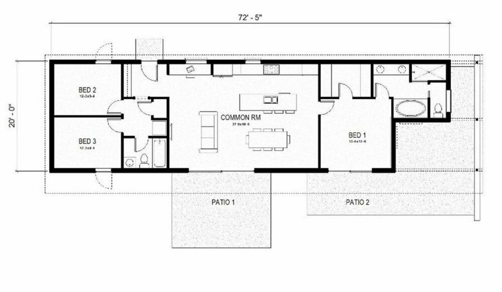
goga777 Опубліковано: 27 квітня 2017 Автор Поділитись Опубліковано: 27 квітня 2017 Американский сарайчик 2 Посилання на коментар Поділитися на інших сайтах More sharing options...
goga777 Опубліковано: 13 травня 2017 Автор Поділитись Опубліковано: 13 травня 2017 Привет из Канады 3 Посилання на коментар Поділитися на інших сайтах More sharing options...
Alex_san Опубліковано: 13 травня 2017 Поділитись Опубліковано: 13 травня 2017 Привет из Канады Хороший проект, но, сразу видно, что в Канаде люди питаются преимущественно в ресторанах. 1 Посилання на коментар Поділитися на інших сайтах More sharing options...
AndyAntonov Опубліковано: 15 травня 2017 Поділитись Опубліковано: 15 травня 2017 Привет из Канады Оффтопик! Там же английским по монитору: CORRIDOR! ;) Посилання на коментар Поділитися на інших сайтах More sharing options...
goga777 Опубліковано: 15 травня 2017 Автор Поділитись Опубліковано: 15 травня 2017 CORRIDOR пожалуйста прочтите первый пост 1 Посилання на коментар Поділитися на інших сайтах More sharing options...
Татьяна5 Опубліковано: 6 червня 2017 Поділитись Опубліковано: 6 червня 2017 Вроде без коридоров , спроектировала домик для свекрови, с кладовыми = 76 м2 + терраса 16 м2 Набор помещений - терраса (она же - крыльцо и вход в дом), тамбур, санузел, вход и сама теплая кладовка, гостиная-студио, две спальни, пристроенная холодная кладовка с входом с улицы. Все это дело под вальмовой крышей, проект сделан под реализацию в каркасном исполненииhouse-pryanik-finish.pdf 4 Посилання на коментар Поділитися на інших сайтах More sharing options...
Татьяна5 Опубліковано: 6 червня 2017 Поділитись Опубліковано: 6 червня 2017 В процессе проектирования был придуман другой, почти аналогичный, но красивее, дом, но на участок не сел из-за ширины - у меня терраса наехала на шикарную липу или спальня на шикарную сосну, пришлось переделать, но то, что было - мне оч нравилось. Стиль - пряничный домик, со сложной крышей из двухскаток и кукушек. Может кому пригодится моя заготовка.house-pryanik- драфт.pdf 4 Посилання на коментар Поділитися на інших сайтах More sharing options...
sergeydnepr Опубліковано: 6 червня 2017 Поділитись Опубліковано: 6 червня 2017 А можно к этому еще и виды выложить с минимальным описанием? Посилання на коментар Поділитися на інших сайтах More sharing options...
Татьяна5 Опубліковано: 6 червня 2017 Поділитись Опубліковано: 6 червня 2017 А можно к этому еще и виды выложить с минимальным описанием? виды, это визуалки? я такое для себя не делаю, у меня воображение шикарное :D 2 Посилання на коментар Поділитися на інших сайтах More sharing options...
apxitektop.s Опубліковано: 7 червня 2017 Поділитись Опубліковано: 7 червня 2017 делал когда то домик почти без коридоров, на большом участке по фасаду, планировка на любителя конечно, делалось под хотелки заказчика Посилання на коментар Поділитися на інших сайтах More sharing options...
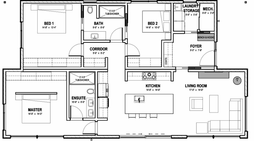
goga777 Опубліковано: 11 червня 2017 Автор Поділитись Опубліковано: 11 червня 2017 Вот такой вариант, ну можно чуть доработать входную часть 2 Посилання на коментар Поділитися на інших сайтах More sharing options...
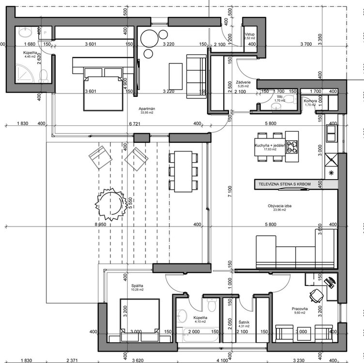
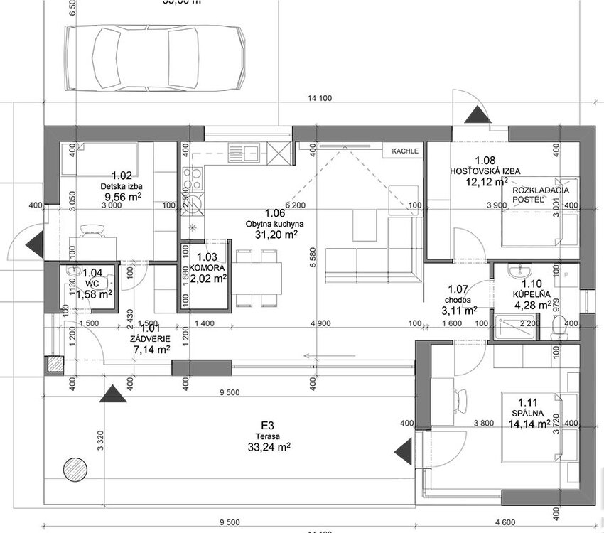
goga777 Опубліковано: 11 липня 2017 Автор Поділитись Опубліковано: 11 липня 2017 Парочка бунгало из Словении 4 Посилання на коментар Поділитися на інших сайтах More sharing options...
sergeydnepr Опубліковано: 11 липня 2017 Поділитись Опубліковано: 11 липня 2017 Можно по ним побольше информации? Посилання на коментар Поділитися на інших сайтах More sharing options...
goga777 Опубліковано: 11 липня 2017 Автор Поділитись Опубліковано: 11 липня 2017 Можно по ним побольше информации? фасады пож и подробное описание www.nedatelier.sk/katalog/projekty-domov-spa 1 Посилання на коментар Поділитися на інших сайтах More sharing options...
Рекомендовані повідомлення
Створіть акаунт або увійдіть у нього для коментування
Ви маєте бути користувачем, щоб залишити коментар
Створити акаунт
Зареєструйтеся для отримання акаунта. Це просто!
Зареєструвати акаунтУвійти
Вже зареєстровані? Увійдіть тут.
Увійти зараз