bambino Опубліковано: 4 вересня 2017 Поділитись Опубліковано: 4 вересня 2017 как архитектурное решение красота, с точки зрения теплопотерь неразумно. У нас 20 лет строили громоздко и неразумно. Теперь маятник качнулся в другую сторону. Площади упали, фасады стали плоские, утепляемся даже по облицовочному кирпичу. Дальше снова захочется не таких скучных форм, но в современном прочтении и из современных материалов с хорошим теплосопротивлением. Логично понимать, куда качнет дальше и быть к этому готовым. Таня, как обычно, голова! 1 Посилання на коментар Поділитися на інших сайтах More sharing options...
-enjoy- Опубліковано: 4 вересня 2017 Поділитись Опубліковано: 4 вересня 2017 Проектирую следующий дом для Жукина (в лесу), влюбилась в эту идею формы мабуть ж є ще фото фасадів (ссилочку будь-ласка) Посилання на коментар Поділитися на інших сайтах More sharing options...
AndyAntonov Опубліковано: 5 вересня 2017 Поділитись Опубліковано: 5 вересня 2017 идея разнесенных в разные здания комнат встречал, очень нравится У нас отопительный сезон — 7 месяцев. И снег/лёд — 2…4. Посилання на коментар Поділитися на інших сайтах More sharing options...
wins Опубліковано: 5 вересня 2017 Поділитись Опубліковано: 5 вересня 2017 На югах отопительный месяцев пять, ну шесть от силы. Посилання на коментар Поділитися на інших сайтах More sharing options...
vadimv Опубліковано: 5 вересня 2017 Поділитись Опубліковано: 5 вересня 2017 На югах отопительный месяцев пять, ну шесть от силы.Гараж шириной 3.00 - это жестко. Даже для жигуля при экономной экономике выделяли 3.30. Посилання на коментар Поділитися на інших сайтах More sharing options...
bambino Опубліковано: 5 вересня 2017 Поділитись Опубліковано: 5 вересня 2017 Гараж шириной 3.00 - это жестко. Даже для жигуля при экономной экономике выделяли 3.30. Нормально все 4 Посилання на коментар Поділитися на інших сайтах More sharing options...
goga777 Опубліковано: 5 вересня 2017 Автор Поділитись Опубліковано: 5 вересня 2017 На югах отопительный месяцев пять, ну шесть от силы. пожалуйста обратите внимание на название темы Посилання на коментар Поділитися на інших сайтах More sharing options...
wins Опубліковано: 6 вересня 2017 Поділитись Опубліковано: 6 вересня 2017 Гараж шириной 3.00 - это жестко. Даже для жигуля при экономной экономике выделяли 3.30. Да ладно, гараж там легко увеличивается, уменьшается, удаляется, превращается в навес, и т.д. Если бы вы сказали что там холл/коридор в спальни, то да. Посилання на коментар Поділитися на інших сайтах More sharing options...
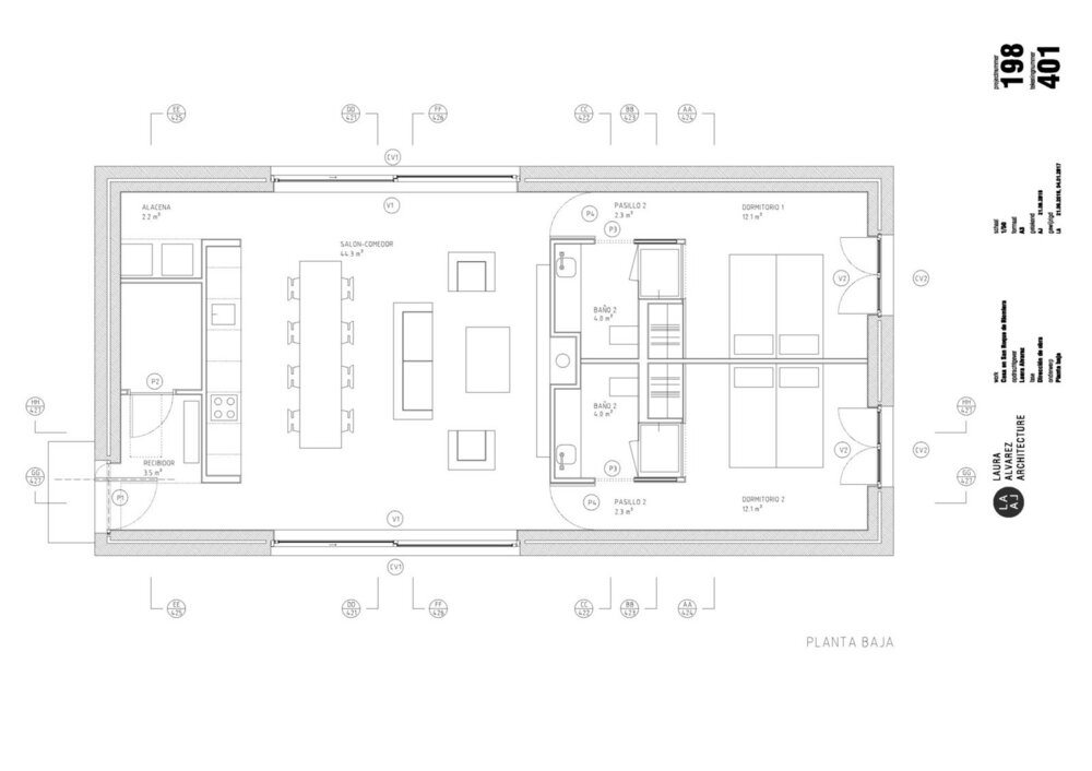
goga777 Опубліковано: 20 жовтня 2017 Автор Поділитись Опубліковано: 20 жовтня 2017 Просторно и светло 5 Посилання на коментар Поділитися на інших сайтах More sharing options...
tyrd Опубліковано: 20 жовтня 2017 Поділитись Опубліковано: 20 жовтня 2017 Просторно и светло А есть больше информации по проекту? Посилання на коментар Поділитися на інших сайтах More sharing options...
abelor Опубліковано: 20 жовтня 2017 Поділитись Опубліковано: 20 жовтня 2017 В наших широтах для застройщиков, ориентированных строиться по будпаспорту, эта картинка просто издевательство, извините. Просторно и светло Посилання на коментар Поділитися на інших сайтах More sharing options...
goga777 Опубліковано: 20 жовтня 2017 Автор Поділитись Опубліковано: 20 жовтня 2017 А есть больше информации по проекту? www.homify.com.ar/foto/1512340/planta-general пожалуйста 2 Посилання на коментар Поділитися на інших сайтах More sharing options...
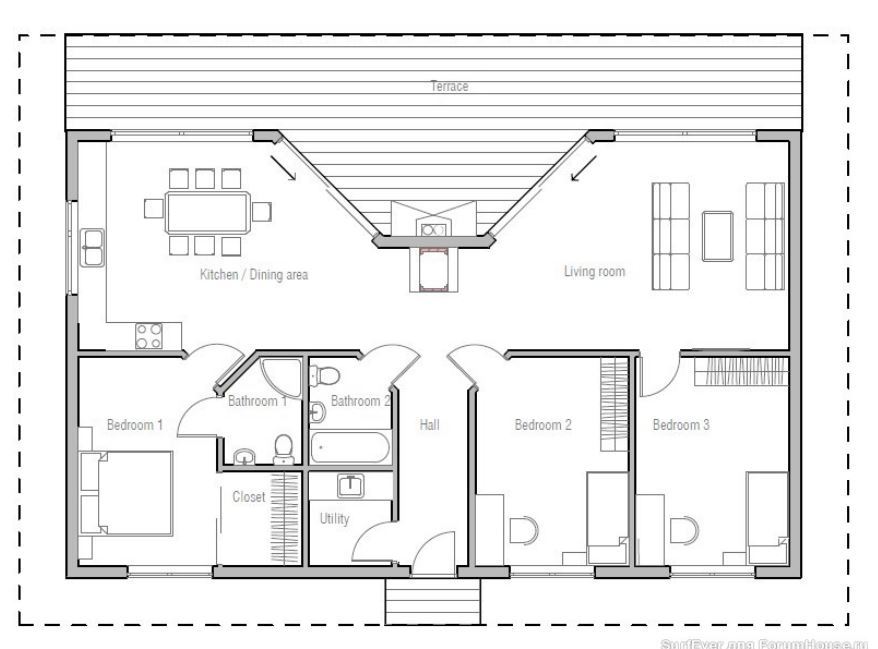
Uk Опубліковано: 24 жовтня 2017 Поділитись Опубліковано: 24 жовтня 2017 Вот такой сейчас строю. Коридоров - минимум-минимум. В доме - сауна. Но такое ставить надо только на видовом участке и на хорошем размере участка (дом 110 м2 и большие террасы), гостиная и две спальни с дверями (в моем случае вид на озеро и лес, ближайший сосед в окнах через 150 метров). Вот построю, покручу и себе лично такой повторю , пока все оч нравится в планировке. Татьяна, по опыту, в этом доме спальня которая рядом с гостиной и кухней комфортна? Не воняет едой например? Не мешает ли шум вытяжки (что б не воняло )с утра с кухни? А то сильно мне понравились планировки с кухнегостной посредине Посилання на коментар Поділитися на інших сайтах More sharing options...
Татьяна5 Опубліковано: 24 жовтня 2017 Поділитись Опубліковано: 24 жовтня 2017 Не воняет едой например? ну, если тухлую селедку жарить, то будет вонять Не мешает ли шум вытяжки я мало кого знаю, кто вообще вытяжку включает , такого неудобство не замечено А то сильно мне понравились планировки с кухнегостной посредине планировка объективно ну ооочень удачная 3 Посилання на коментар Поділитися на інших сайтах More sharing options...
yooj Опубліковано: 14 листопада 2017 Поділитись Опубліковано: 14 листопада 2017 Порахували фундамент та кришу? Тоді вартість вашоі внутрянки дорівнює вартості коробка-криша-стіни-вікна. Бог в поміч. П.с. Спеціально підпишусь на Вашу тему на особисту тему не вистачає ані часу ані натхнення (вікна від болени то взагалі окремий пекельний жах ("хочется убивать")), тому хай поки шо тут буде... (якщо модератори не проти) 1 Посилання на коментар Поділитися на інших сайтах More sharing options...
goga777 Опубліковано: 14 листопада 2017 Автор Поділитись Опубліковано: 14 листопада 2017 "хочется убивать" Чтото мне напоминает 1 Посилання на коментар Поділитися на інших сайтах More sharing options...
yooj Опубліковано: 14 листопада 2017 Поділитись Опубліковано: 14 листопада 2017 Чтото мне напоминает так я ж з нього й починав "хочется убивать" то стосовно не вікон та їх вартості, а стосовно співпраці з "боленою" та з їх "представником" - компанією "RoyalPlast" Посилання на коментар Поділитися на інших сайтах More sharing options...
goga777 Опубліковано: 14 листопада 2017 Автор Поділитись Опубліковано: 14 листопада 2017 так я ж з нього й починав я рад что был вам полезен.....хотя решение по оптимизации проекта неординарное Посилання на коментар Поділитися на інших сайтах More sharing options...
goga777 Опубліковано: 28 листопада 2017 Автор Поділитись Опубліковано: 28 листопада 2017 Немножко свеженького 4 Посилання на коментар Поділитися на інших сайтах More sharing options...
-enjoy- Опубліковано: 14 грудня 2017 Поділитись Опубліковано: 14 грудня 2017 (змінено) .................. п.с. для більш детального перегляду з інтер"єрами hqroom.ru/sovremennaia-vylla-v-yspanskoi-provyntsyy-kantabryia.html Змінено 14 грудня 2017 користувачем -enjoy- 3 Посилання на коментар Поділитися на інших сайтах More sharing options...
Sерджио Опубліковано: 15 грудня 2017 Поділитись Опубліковано: 15 грудня 2017 а вот еще Ну и фасады с крышей по ссылке: domocomplect.com.ua/img/Textimgs/Alex/second/142384bc72d038d5cccb95faba60492f.png 6 Посилання на коментар Поділитися на інших сайтах More sharing options...
goga777 Опубліковано: 21 грудня 2017 Автор Поділитись Опубліковано: 21 грудня 2017 немножко американщины нам в тему и не только 3 Посилання на коментар Поділитися на інших сайтах More sharing options...
goga777 Опубліковано: 22 грудня 2017 Автор Поділитись Опубліковано: 22 грудня 2017 немножко необычного 7 Посилання на коментар Поділитися на інших сайтах More sharing options...
Sumchanka Опубліковано: 23 грудня 2017 Поділитись Опубліковано: 23 грудня 2017 Чтото мне напоминает А,простите, фасадики такого где глянуть? Посилання на коментар Поділитися на інших сайтах More sharing options...
goga777 Опубліковано: 23 грудня 2017 Автор Поділитись Опубліковано: 23 грудня 2017 А,простите, фасадики такого где глянуть? у меня нет Посилання на коментар Поділитися на інших сайтах More sharing options...
Рекомендовані повідомлення
Створіть акаунт або увійдіть у нього для коментування
Ви маєте бути користувачем, щоб залишити коментар
Створити акаунт
Зареєструйтеся для отримання акаунта. Це просто!
Зареєструвати акаунтУвійти
Вже зареєстровані? Увійдіть тут.
Увійти зараз