Перейти до публікації
Пошук в
  • Додатково...
Шукати результати, які містять...
Шукати результати в...

Одноэтажник по мотивам Z230

f1up

Рекомендовані повідомлення

Знаете,господа,когда приступаешь к чему-то новому и неизведанному,о чем только слышал и не касался лично,то осознание того,чего ты хочешь в итоге,приходит постепенно,по мере накопления массива информации из множества источников,непосредственно или близко касающихся того самого нового и неизведанного.Вот я ,например.Полгода изучал концепцию двухэтажника,пришел вот к этому www.stroimdom.com.ua/forum/showthread.php?t=200325 ,а тут вот забрел случайно на ветку одноэтажников без коридоров,проштудировал,поразмыслил,и,таки да,это оно.И супруга как-то сразу восприняла эти изменения в предпочтениях и тот час же подобрала наш вариант.Это Z230 z500.com.ua/projekt/z230.html .Вот его-то и будем развивать.

Изменений в нем планируется немного.Уж больно под наше видение подходит.А участок планируется такой www.stroimdom.com.ua/forum/showthread.php?t=200386 .Итак:

1.Убираем терассу в левом верхнем углу,выровняв стену(это так и просилось изначально),тем самым увеличивая спальню до метров 15.Она планируется быть родительской,т.е. нашей.

2.Большой санузел делим вертикально пополам.Левая часть становится гардеробной со входом из спальни(в левой стене ставим небольшое окно,чтоб веселее было),а правая ,собственно,и продолжает выполнять возложенные на нее функции.И доступ туда будет только из нашей опочивальни.Нефиг шастать кому ни попадя;-)

3.Нижний санузел прекращает свое существование,объединяясь в единое целое с топочной.Последняя, при этом,становится полноценным помещением с размещением в нем стиральной машины и всего того чего мы еще не придумали(дверь в спальню,понятно уже,лишняя.Хотя...А вдруг среди ночи дровишек подбросить захочется?:)

4.Центральный недосанузел избавляется от некрасивой приставки путем разрушения стенки с лестничной,отправляя лестницу в историю.Выход на чердак для жизни и деятельности пока не планируется.А доступ туда будет осуществляться из коридора(подсмотрел в ветке у уважаемого goga777).И этот уже санузел и будет основным для всего остального населения дома и уважаемых гостей.

Ну вот,пожалуй, и все .Для начала.К сожалению это пока только в голове,а на экран перенести нет времени.Может супруга подсобит?:rolleyes:

P.S.А участок планируется такой www.stroimdom.com.ua/forum/showthread.php?t=200386

-FilesZ500-res-rzuty-Z230-Z230_rzut1_png.jpg.35c3adf20b6cad18178e0ed2b6015249.jpg

65465613216545.jpg.1e6bddadf67a7add7660ecb635e8f344.jpg

IMG_1124-1.jpg.400c58484eacac49ae4d4950a2a82b18.jpg

Посилання на коментар
Поділитися на інших сайтах

Если Вы таки выбрали такой проект, не стоит брать половину участка ... оставьте его весь себе.... этот дом не для микро-9 соток
Посилання на коментар
Поділитися на інших сайтах

2.Большой санузел делим вертикально пополам.Левая часть становится гардеробной со входом из спальни(в левой стене ставим небольшое окно,чтоб веселее было),а правая ,собственно,и продолжает выполнять возложенные на нее функции.
ИМХО, не стоит лишать санузел окна. Окно в санузле - это одно из существенных преимуществ частного дома по сравнению с квартирой, оно очень повышает комфорт (естественное освещение + свежий воздух).
Посилання на коментар
Поділитися на інших сайтах

Если Вы таки выбрали такой проект, не стоит брать половину участка ... оставьте его весь себе.... этот дом не для микро-9 соток

Да я и рад бы его оставить весь ,и огород соседский прикупить,но - бюджет,господа!Мне нужно вписаться в 50тыщ долл,чтобы хоть в две комнаты и в один туалет вселиться.Дом будет из СИП панелей,так что я с оптимизмом смотрю в будущее:flag1:

Посилання на коментар
Поділитися на інших сайтах

так что я с оптимизмом смотрю в будущее

ню-ню...реализм, увы, победит (кровля на этом доме мин 15К)

  • Лайк 2
Посилання на коментар
Поділитися на інших сайтах

ИМХО, не стоит лишать санузел окна. Окно в санузле - это одно из существенных преимуществ частного дома по сравнению с квартирой, оно очень повышает комфорт (естественное освещение + свежий воздух).

Тут вы на 100% правы, и решение только что пришло мне в голову - поменять туалет и гардероб местами.Санузел с окном,а гардеробная без.Так даже рациональнее будет использовано пространство последней.А второй санузел обойдется,он ведь общий:cool:

 

Добавлено через 3 минуты

ню-ню...реализм, увы, победит (кровля на этом доме мин 15К)

Кстати, если убрать одну треугольную конструкцию на крыше(или даже две), это сильно повлияет на крышный бюджет?Хотя с ними дом смотрится лучше,чем Z24

 

Добавлено через 29 минут

Друзья,поделитесь своим опытом по поводу расположения спальни по сторонам света.На нашем участке вход в дом будет с востока,гостинная сориентирована на север,а наша спальня на запад.Возможна зеркалка ,но наша спальня все равно будет смотреть на запад.Т.е. солнце будет у нас после обеда.Не жарковато ли придется?

  • Лайк 1
Посилання на коментар
Поділитися на інших сайтах

Друзья,поделитесь своим опытом по поводу расположения спальни по сторонам света.На нашем участке вход в дом будет с востока,гостинная сориентирована на север,а наша спальня на запад.Возможна зеркалка ,но наша спальня все равно будет смотреть на запад.Т.е. солнце будет у нас после обеда.Не жарковато ли придется?
У нас три спальни на запад. Пришлось на все окна ставить тканевые ролеты, т.к. летом солнце светит (и греет) очень интенсивно. Несмотря на деревья перед окнами (абрикос и вишню). Так что лучше все-таки спальня на восток, если есть такая возможность. Или ставьте ролеты/ставни/жалюзи/сажайте густые деревья. М.б. даже такой вариант, как терраса.
Посилання на коментар
Поділитися на інших сайтах

Я сейчас нахожусь в Испании(Коста Дорада),так тут на всех окнах ролеты,по-местному персьяны.Уходя на работу их опускают и,тем самым,не дают дому нагреваться.Но,блин,как же это напрягает.Опускать ,поднимать.Если с электроприводом,то еще ничего,а с механическим то...:o.

А если дернуть посильнее,то заскочит вверх.Конструкция простая до ужаса,а вот добраться до механизма тот еще кусок здоровья.К тому же они свет не пропускают,сумеречно как-то.В общем ,не хочу я городить этот огород.Поживем-увидим.Или участок другой подберем.Например, у участков на противоположной стороне улицы будет все как надо.

IMAG3269.thumb.jpg.fb7b6e3c2d64673fa6a333beb4bb1bde.jpg

Посилання на коментар
Поділитися на інших сайтах

Друзья,поделитесь своим опытом по поводу расположения спальни по сторонам света.На нашем участке вход в дом будет с востока,гостинная сориентирована на север,а наша спальня на запад.Возможна зеркалка ,но наша спальня все равно будет смотреть на запад.Т.е. солнце будет у нас после обеда.Не жарковато ли придется?

 

Хуже чем запад для спальни место сложно придумать - придется кондиционер вешать. Я бы даже кухню на западе б не делал - вечером готовить летом жарковато может быть

Гостиную - с террасой, ИМХО лучше на юг и навес сделать - расчитать так, чтобы летом навес затенял окна/стены (солнце высоко), а зимой попадал в окна (солнцце ж ниже). Если спальня на восток - нужно быть жаворонком :) или завешивать окна на ночь.

Посмотрите канал на ютубе, о котором я писал в прошлой ветке - там все расписано про восточный фасад

Посилання на коментар
Поділитися на інших сайтах

  • 1 місяць потому...
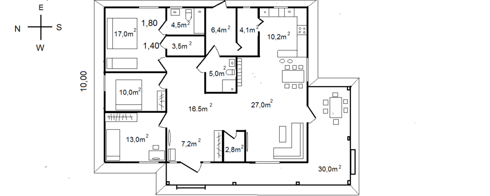
Вот посидел на досуге и прорисовал план дома в масштабе с мебелью, санфаянсом и с необходимыми нам изменениями от базового Z230.Учтены пожелания второй половины и отстояны в жарких дискуссиях некоторые планировочные решения,как-то наличие матового окна в глухом туалете,наружного открывания некоторых дверей или накрытой терассы с ограждением.Дом идеально адаптирован под участок с западным фасадом,поэтому,скорее всего первоначально планировавшийся к покупке участок с восточным фасадом куплен не будет.Будем искать другой.А еще мы решили отказаться от второго треугольника на крыше(тот,который с тыльной стороны дома) ради удешевления строительства.А может и от второго тоже,все будет зависеть от стоимости.Хотя с ним дом выглядит привлекательнее и,возможно,когда-нибудь,если понадобится и т.д.,будет готовое окно в дополнительной комнате.К сожаления я не знаю,как прорисовать дом в вертикальной плоскости с разных сторон,поэтому,включив воображение,можно представить как дом будет выглядеть снаружи после изменений и дополнений.В общем мне нравится :beer:,но готов выслушать критику.

675803489_-4.thumb.png.d95752feaa8d1a3718ba37c35f737569.png

1120017327_-1.thumb.jpg.3bd6656cd01f05d3f247e811bb54a674.jpg

766499239_.thumb.jpg.a2eecf55a11d0145e6009c2feb95ba07.jpg

Посилання на коментар
Поділитися на інших сайтах

  • 2 тижні потому...
У нас три спальни на запад. Пришлось на все окна ставить тканевые ролеты, т.к. летом солнце светит (и греет) очень интенсивно. Несмотря на деревья перед окнами (абрикос и вишню). Так что лучше все-таки спальня на восток, если есть такая возможность. Или ставьте ролеты/ставни/жалюзи/сажайте густые деревья. М.б. даже такой вариант, как терраса.

З практики: Стіна товщиною близько 55см. (основна в півтори цеглини = 12+25, але в даному випадку не з цегли, а з керамічного пустотілого блоку СБК + повітряний прошарок + керамічна пустотіла цегла = 12) + вікна пакет в три зміщених скла, і по три вікна на двох поверхах точно на захід. І сонце пече, і всередині як з кондиціонером. І без всяких ролетів. Така ж сама ситуція на південь, тільки по два вікна. Розмір вікон 1,6м.х 1,5м.

Посилання на коментар
Поділитися на інших сайтах

f1up,

В вашем проекте микро терраски спереди сзади дома выполняют только эстетическую функцию дизайна.

В реальности это 2 лишних угла и мостище холода по балке сверху,как не утепляй.

Терассу лучше сделать деревянную и внешнюю этак в 35-40м2 - гораздо удобней и функциональней, да и дешевле в итоге.

 

Комнатка в 11м2 при корридоре в 18м2 это странно, можно же и наоборот :-)

  • Лайк 2
Посилання на коментар
Поділитися на інших сайтах

f1up,

В вашем проекте микро терраски спереди сзади дома выполняют только эстетическую функцию дизайна.

В реальности это 2 лишних угла и мостище холода по балке сверху,как не утепляй.

Терассу лучше сделать деревянную и внешнюю этак в 35-40м2 - гораздо удобней и функциональней, да и дешевле в итоге.

Я с вами соглашусь и ,по мере получения информации,приходит переосмысление проекта.Я задался целью уменьшить размеры дома без уменьшения комфорта и сгруппировать помещения,использующих воду и канализацию,а также убрать техническое помещение подальше от нижней спальни.И вот что получилось.

2083694401_-5.2.thumb.png.3c560cb1742048ea57a4b94068b5f0a1.png

Посилання на коментар
Поділитися на інших сайтах

f1up,

Комнатка в 11м2 при корридоре в 18м2 это странно, можно же и наоборот :-)

А по поводу комнатки - так она же для гостей :beer:.А коридор-холл создает простор,т.е. комфорт.Ради этого мы строим то что нам нужно

 

Добавлено через 2 минуты

А в главной спальне вторая кровать это массажная Nuga Best.

Посилання на коментар
Поділитися на інших сайтах

А по поводу комнатки - так она же для гостей :beer:.А коридор-холл создает простор,т.е. комфорт.Ради этого мы строим то что нам нужно

 

Добавлено через 2 минуты

А в главной спальне вторая кровать это массажная Nuga Best.

 

Простор он и создает но не забывайте что по средине коридора Вы седеть не будете постоянно, а в студио-гостином пространстве будет проводить больше всего времени, как по мне то надо уменьшать коридор в пользу гостиной.

Посилання на коментар
Поділитися на інших сайтах

Я ,супруга и сын 18лет

 

Добавлено через 6 минут

Простор он и создает но не забывайте что по средине коридора Вы седеть не будете постоянно, а в студио-гостином пространстве будет проводить больше всего времени.

Согласен,в коридоре не сидим,но по нему ходим и весьма активно.А еще я руками машу,когда иду и все вокруг разлетается.:D.И от телевизора до спинки дивана по плану около 4х метров,по-моему достаточно.

Посилання на коментар
Поділитися на інших сайтах

вот что получилось.
Тамбура не будет? ИМХО, зря. Лучше эти 7,2 стеночкой отделить от остального дома.

 

Добавлено через 2 минуты

Я ,супруга и сын 18лет
Запланируйте и сыну двухспальную кровать, на всякий случай. Ж-)
  • Лайк 1
Посилання на коментар
Поділитися на інших сайтах

Тамбура не будет? ИМХО, зря. Лучше эти 7,2 стеночкой отделить от остального дома.

 

Добавлено через 2 минуты

Запланируйте и сыну двухспальную кровать, на всякий случай. Ж-)

 

Холодный тамбур все же рассмотрите да и ширина для размаха рук там тоже останется:D

Посилання на коментар
Поділитися на інших сайтах

Я ,супруга и сын 18лет

 

Добавлено через 6 минут

 

Согласен,в коридоре не сидим,но по нему ходим и весьма активно.А еще я руками машу,когда иду и все вокруг разлетается.:D.И от телевизора до спинки дивана по плану около 4х метров,по-моему достаточно.

 

Каждому свое, конечно, но если бюджет маленький и детей не предвидится больше (а сын уже на низком старте, и явно с вами жить не захочет в ближайшем будущем), то площади как-то много (даже с учетом приезда гостей-родственников, потенциальных внуков и т.д. и т.п.).

  • Лайк 1
Посилання на коментар
Поділитися на інших сайтах

В настоящий момент, занимаюсь тем же, что и Вы - думаю над проектом одноэтажного дома, денег - те же 50 тыс и нужно три спальни.

Я когда-то прикупил землю, провел свет, и решил строится. Семья под лозунгом "инфраструктура" подвела к покупке квартиры, что и было сделано. Теперь опять вернулся к вопросы, что делать с землей.

Мои текущие наблюдения...

 

1. Сначала смотрим на участок, смотрим где у нас север и где у нас юг. Думаем, где мы делаем скважину, а где мы делаем септик. Садим дом на участок так, чтобы септик был недалеко от дома и ближе к забору. Один из неплохих вариантов, когда дом находится между скважиной и септиком. И скважина и септик должны быть как можно ближе к забору, и желательно к воротам (или тех отверстие в заборе).

2. Расположение кухни и санузлов, внутри дома, желательно сделать так, чтобы слив к септику был кратчайшим.

3. Спальни и веранда, должны выходить на свободное пространство во дворе, плюс правильно расположены по сторонам света. Возможно захотите от соседей сделать одну стену в доме без окон.

4. Кухню, котельную, СУ, желательно сгруппировать так, чтобы они были вместе.

5. Нужно решить, чем Вы будете топить дом. От этого будет зависеть кубатура топочной.

6. Будет ли камин? Если планируете подтапливать камином, с водяной рубашкой, то сможете сэкономить немного, если топочная будет иметь общую стену с камином. Один дымоход - дешевле двух.

7. Если Вас будет только газовый котел, - то возможно от топочной отказаться.

8. Желательно, чтобы камин был на внутренней стене дома, а не на внешней. Меньше теплотери.

9. Если планируете ТТ котел, - то не стоит делать топочную в цетре дома. Нужен либо отдельный, либо кратчайший (через тамбур выход на улицу). Плюс дверь шириной 800 мм, плюс правильно подобрать размер окна в топочную, которое должно быть.

10. Санузлов должно быть два. Один только с горшком и умывальником, второй с ванной. Если будет еще один СУ родительский - что удобно, конечно, но это будет и дороже. Я ориентируюсь на бюджет в 50 к. Поэтому два СУ - и желательно, чтобы они имели одну общую стену, для удешевления. Плюс в санузле большом окно.

11. Спальни минимум 12 м2.

12. Зона кухни - желательно 10-12 квадратов.

13. Общая комната - 28 -30 квадратов.

14. Должна быть кладовка, от 4 квадратов.

15. Гардеробные против шкафов -купе. Еще тяжело сделать выбор, пока смотрю в сторону шкафов купе.

16. Чистую высоту потолка оставить не менее 2.75 м.

17. Как можно больше минимизировать площадь коридоров.

18. Максимум одно окно в пол в общей комнате. Остальные окна - стандартного размера.

19. Если хотите подвал - подумайте и откажитесь.

20. Ищите проект с двухскатной крышей. Это дешевле. Максимум - четырехскатная.

21. Бюджет в 50к считаю ограниченным, поэтому сразу делать гараж, или даже навес, наверное сразу делать не стоит. Лучше отложить на потом, но сразу внести в ген план участка.

22. Стоимость коробки, плюс подготовительные работы для начала строительства, копка септика, скважина или колодец, фундамент, стены, перекрытия, крыша, окна, входные двери, я бы планировал на уровне 400 долларов за м2. Это бюджет одноэтажного дома около 120 квадратов. Без учета подключения света и газа.

23. Начинайте экономить уже с проекта. Старайтесь найти типовой, с минимальными переделками (не касаясь несущих стен, вытяжек, расположения камина и дымохода, перемещения мокрых зон) или вовсе без них. С материалом из того, что планируете использовать, узнайте нужно ли Вам адаптировать фундамент, уже сейчас подумайте какой материал пойдет у Вас на крышу. Ищите готовый проект - ЭТО возможно. Для себя проект предварительно выбрал. Но еще не покупал, - продолжаю искать. Так как уже есть один купленный много лет назад, а теперь вижу, что с моим бюджетом не влезаю.

24. Перед покупкой проекта ,просмотрите все размеры, и прикиньте, размеры столешницы на кухне, размеры кроветей в спальнях, глубину шкафов-купе, размеры каминной топки, размеры котлов и прочего. Это тоже важно, иначе есть риск потом впихать невпи....емое...

 

Этими критериями я руководствуюсь, чтобы сказать - переработанный Вами проект, содержит крайне неэффективные решения, плюс огромную площадь под хол, он же по сути коридор. Изначальный проект, больше подходил под Ваши требования, и если в него вносить изменения, то на мой взгляд - это объединять родительский санузел с топочной, и менять дверь из спальни на окно. Крыша действительно сложная, потянет денег. Два дымохода - камин плюс топочная.

 

Не спешите - выбирайте.

  • Лайк 12
Посилання на коментар
Поділитися на інших сайтах

10. Санузлов должно быть два. Один только с горшком и умывальником, второй с ванной. Если будет еще один СУ родительский - что удобно, конечно, но это будет и дороже. Я ориентируюсь на бюджет в 50 к. Поэтому два СУ - и желательно, чтобы они имели одну общую стену, для удешевления. Плюс в санузле большом окно.

 

Учитывая лажи с водой у многих, да и отсутствие времени на ванны - душа более чем достаточно (у меня за последние лет 8 вода использовалась пока ребенок был маленький для заплывов; за последних 3 года - не более раза в год, наверное).

 

11. Спальни минимум 12 м2.

 

Минимум спальни взрослой, возможно. Для детской - можно еще меньше (у ребенка 2,7х3,8, у меня кабинет 2,8х3,2) - чтобы поставить большой шкаф, кровать, письменный стол и еще осталось место для игры - более чем достаточно.

 

13. Общая комната - 28 -30 квадратов.

 

5.5х4.5 - используется периодически (наверное потому, что для просмотра телепрограмм есть комната 3.8х4.5)...

 

14. Должна быть кладовка, от 4 квадратов.

 

Лучше сказать "желательно" - смотря что вам необходимо хранить и при условии, что нет дополнительных мест для хранения.

 

15. Гардеробные против шкафов -купе. Еще тяжело сделать выбор, пока смотрю в сторону шкафов купе.

 

Все шкафы-купе и гардеробные служат накопителями хлама. Чем больше их, тем больше хлама в доме. Знаю (ибо впору по многим позициям уже распродажи накопленного устраивать).

 

16. Чистую высоту потолка оставить не менее 2.75 м.

 

С такими рекомендациями сразу же прикладывайте обязательства по полному/частичному спонсированию оплаты отопления тому, кому рекомендуете. У меня сейчас в доме куча разных высот - 3 м, 2,8, 2,4, 2,3, на летней кухней в кабинете вообще 2. Если у вас рост не выше 2 метров, то 2,3-2,4 м (как у скандинавов горячо любимых, кстати), более чем достаточно.

 

18. Максимум одно окно в пол в общей комнате. Остальные окна - стандартного размера.

 

Лучшее окно - стена (по теплопотерям). Главное - чтобы света было достаточно.

 

19. Если хотите подвал - подумайте и откажитесь.

 

С одной стороны - да, с другой стороны, у меня, например, под половиной дома цоколь. Как место для хранения всего того, что боится морозов, продуктов и мастерской - то, что надо. А вот если строить еще одно здание таких размеров - попадем, наверное, больше (плюс ломать голову над хранением всего боящегося морозов). Потому следует исходить из того, что должно быть в доме/на участке и из особенностей рельефа (у меня перепад на 11 метрах до 2 метров).

 

 

=============================

 

Я крепко призадумался над вот таким вариантом.

 

Под мой текущий/планируемый состав семьи 2+1(2) человека и образ жизни подходит во многом, вот только некоторые вещи, все же, лучше перекрутить (планировка, неудобная лестница, используемые технологияи).

 

В остальном - компактно и оптимально. Хочется больше - на улицу. Там отапливать/охлаждать не нужно...

Змінено користувачем Ter
  • Лайк 1
Посилання на коментар
Поділитися на інших сайтах

На вашем плане спальные комнаты выходят на север , одна так вообще с окном тудаже. Это никуда не годится. Думаю не нужно рассказывать почему и какие помещения там стоит разместить?

Когда рисуете планировки сразу думайте о том какая будет крыша и на что ее опирать. А также лучше сразу учитывать длинну балок, так как лес у нас редко бывает больше 6м.

В общем подищите другую планировку лучше готовую!

  • Лайк 1
Посилання на коментар
Поділитися на інших сайтах

Учитывая лажи с водой у многих, да и отсутствие времени на ванны - душа более чем достаточно (у меня за последние лет 8 вода использовалась пока ребенок был маленький для заплывов; за последних 3 года - не более раза в год, наверное).

- маленькие дети, пенсионеры, душ можно организовать и принимать в ванной. Душевая кабинка - тоже хорошо. Если хватает места - можно сделать и то и другое.

 

Минимум спальни взрослой, возможно. Для детской - можно еще меньше (у ребенка 2,7х3,8, у меня кабинет 2,8х3,2) - чтобы поставить большой шкаф, кровать, письменный стол и еще осталось место для игры - более чем достаточно.

- можно и так. 12 метров считается комфортное площадью, которая позволяет не ходить боком между столом и кроватью.

 

 

Лучше сказать "желательно" - смотря что вам необходимо хранить и при условии, что нет дополнительных мест для хранения.

Можно и сказать желательно. Я вижу как обязательно, сужу по своим по потребностям. У меня в квартире есть кладовка 3 м2. В ней хранится, пылесос, сумка на колесиках сходить за овощами на базар, веник и совок, какие-то коробки с бытовой техникой, которая редко используется, ящик с шансовым инструментом, гладильная доска там живет, когда гости приходят и прочее.

 

С такими рекомендациями сразу же прикладывайте обязательства по полному/частичному спонсированию оплаты отопления тому, кому рекомендуете. У меня сейчас в доме куча разных высот - 3 м, 2,8, 2,4, 2,3, на летней кухней в кабинете вообще 2. Если у вас рост не выше 2 метров, то 2,3-2,4 м (как у скандинавов горячо любимых, кстати), более чем достаточно.

Поправьте меня если я ошибаюсь - 1. Мы говорим о строительстве нового дома, который будет энергоэффективным. Площадь у нас как по полу, так и потолку одинаковая. Изменяется кубатура, которую нам нужно отапливать. Протопить это дополнительный объем нужно, согласен. Я буду признателен, если поможете оценить разницу в затратах на отопление. А вот то, что в доме везде разная высота потолком, как по мне - это не есть хорошо. Чистовую высоту считаю нужно иметь в 2.70 м нужно иметь. Меньше не стоит, больше - личный выбор. Это мое мнение. И чтобы получить эту высоту, нужно понять, какой пол мы будем делать, будет ли ТП, а он съест часть высоты, и из чего мы будем делать потолки, как мы будем их подшивать, и сколько это съест пространства.

 

 

Лучшее окно - стена (по теплопотерям). Главное - чтобы света было достаточно.

По теплопотерям может быть, не знаю. По деньгам ожидаю, что будет дороже.

 

С одной стороны - да, с другой стороны, у меня, например, под половиной дома цоколь. Как место для хранения всего того, что боится морозов, продуктов и мастерской - то, что надо. А вот если строить еще одно здание таких размеров - попадем, наверное, больше (плюс ломать голову над хранением всего боящегося морозов). Потому следует исходить из того, что должно быть в доме/на участке и из особенностей рельефа (у меня перепад на 11 метрах до 2 метров).

 

Перепад на участке - дополнительные расходы при строительстве. Мы же говорим, как выбрать экономный в строительстве проект. ТС говорит, что у него участок ровный, это указано у него в другой теме. На мой вкус, - подвал - это дорого.

 

 

Я крепко призадумался над вот таким вариантом.

Под мой текущий/планируемый состав семьи 2+1(2) человека и образ жизни подходит во многом, вот только некоторые вещи, все же, лучше перекрутить (планировка, неудобная лестница, используемые технологияи).

В остальном - компактно и оптимально. Хочется больше - на улицу. Там отапливать/охлаждать не нужно...

планировку, лестницу, из чего строить - все нужно менять. Осмелюсь предположить, что это не Ваш проект. Вам нужно искать другой, или делать индивидуальный проект, а индивидуальный проект - это дороже. Можно же конечно, сказать, что в общей стоимости дома - цена за индивидуальный проект - это копейки. Я с таким утверждением не согласен, так как все строительство дома состоит из копеек, которые превращаются по результатам в 100 тыс долларов.

  • Лайк 1
Посилання на коментар
Поділитися на інших сайтах

Створіть акаунт або увійдіть у нього для коментування

Ви маєте бути користувачем, щоб залишити коментар

Створити акаунт

Зареєструйтеся для отримання акаунта. Це просто!

Зареєструвати акаунт

Увійти

Вже зареєстровані? Увійдіть тут.

Увійти зараз
×
×
  • Створити...