sylchenko Опубліковано: 28 жовтня 2011 Поділитись Опубліковано: 28 жовтня 2011 Можем предложить арболитовые блоки на Украине 200х300х500 и 200х400х500 М25-30 есть варианты со штукатуркой, есть без планируем сделать как у наших соседей в России 9 Посилання на коментар Поділитися на інших сайтах More sharing options...
sylchenko Опубліковано: 21 листопада 2011 Поділитись Опубліковано: 21 листопада 2011 Для производства арболита на Украине используем щепу изготовленную на роторной дробилке, фракция на фото. Данная щепа очень хорошо прессуется, возможно уплотнение почти на 80% от от первоначального объема. следовательно появляется возможность получения арболита плотностью почти как у дерева 750-800 кг/м.куб и прочностью камня с 95% шепы и лишь 5% цемента и воздушных пор Посилання на коментар Поділитися на інших сайтах More sharing options...
salix Опубліковано: 21 листопада 2011 Поділитись Опубліковано: 21 листопада 2011 Как конструктивно сделать перемычки над проемами такими блоками? Посилання на коментар Поділитися на інших сайтах More sharing options...
sylchenko Опубліковано: 21 листопада 2011 Поділитись Опубліковано: 21 листопада 2011 Как конструктивно сделать перемычки над проемами такими блоками? с помощью швеллера или уголка Посилання на коментар Поділитися на інших сайтах More sharing options...
salix Опубліковано: 21 листопада 2011 Поділитись Опубліковано: 21 листопада 2011 с помощью швеллера или уголка [ATTACH]147039[/ATTACH] [ATTACH]147041[/ATTACH] А как крепятся окна? Посилання на коментар Поділитися на інших сайтах More sharing options...
sylchenko Опубліковано: 22 листопада 2011 Поділитись Опубліковано: 22 листопада 2011 А как крепятся окна? ложиться ряд по высоте оконного проема, потом укладываются по уровню уголки желательно обработать грунтовкой, и на них продолжаем ряд кладки блока. Посилання на коментар Поділитися на інших сайтах More sharing options...
sylchenko Опубліковано: 23 листопада 2011 Поділитись Опубліковано: 23 листопада 2011 вот еще пару вариантов оформления перемычки над окном и дверным проемом Посилання на коментар Поділитися на інших сайтах More sharing options...
sylchenko Опубліковано: 23 листопада 2011 Поділитись Опубліковано: 23 листопада 2011 теперь хочу показать несколько домиком из арболита которые построили люди и остаются очень довольными а также очень теплая баня, которая сравнима только как деревянная русская баня фото взяты из форум хауза Посилання на коментар Поділитися на інших сайтах More sharing options...
salix Опубліковано: 23 листопада 2011 Поділитись Опубліковано: 23 листопада 2011 вот еще пару вариантов оформления перемычки над окном и дверным проемом [ATTACH]147519[/ATTACH] [ATTACH]147520[/ATTACH] Проемы всегда слабое место конструкций из блоков использование металла может привести к образованию мостика холода. похоже что в данном случае так и есть. я не критикую. я хочу найти правильное решение. Посилання на коментар Поділитися на інших сайтах More sharing options...
VeNick Опубліковано: 24 листопада 2011 Поділитись Опубліковано: 24 листопада 2011 У меня гараж из Арболита - 4х6 м. Поверху обязательно армопояс. Перемычки также заливал бетоном с арматурой. Уже 2 года - полет нормальный. Трещин по стенам нет, цементно-песчаная штукатурка и поверху короедом - без сетки! Был выбор между отсевоблоком и арболитовым - у нас (привет Sylchenko старшему!) он почти одинаков по цене. Остановился на арболите по причине того что он меньше натягивает влаги. И не ошибся! В гараже сухо и комфортно машине. 1 Посилання на коментар Поділитися на інших сайтах More sharing options...
sylchenko Опубліковано: 24 листопада 2011 Поділитись Опубліковано: 24 листопада 2011 Проемы всегда слабое место конструкций из блоков использование металла может привести к образованию мостика холода. похоже что в данном случае так и есть. я не критикую. я хочу найти правильное решение. именно в данном случае смотрите вниматерьно, они спрятаны в блок ;) Посилання на коментар Поділитися на інших сайтах More sharing options...
sylchenko Опубліковано: 24 листопада 2011 Поділитись Опубліковано: 24 листопада 2011 У меня гараж из Арболита - 4х6 м. Поверху обязательно армопояс. Перемычки также заливал бетоном с арматурой. Уже 2 года - полет нормальный. Трещин по стенам нет, цементно-песчаная штукатурка и поверху короедом - без сетки! Был выбор между отсевоблоком и арболитовым - у нас (привет Sylchenko старшему!) он почти одинаков по цене. Остановился на арболите по причине того что он меньше натягивает влаги. И не ошибся! В гараже сухо и комфортно машине. Высылайте фото своего гаража, бо судя из того что вы пишете о цене арболита и отсевоблока, боюсь у вас обычный прессованный тырсоблок - а это далеко не арболит, вы уж меня простите но вас надули. У настоящего арболита нету песка, а есть только цемент и щепа, фото которой я уже выкладывал выше. Арболит единственный блок который имеет сопротивление на изгиб. У него свойственный деревянному дому микроклимат. И соответственно наинизшая среди всех стеновых блоков (пенобетон, керамзитоблок, газоблок, кирпич,) теплопроводность!!! Так что смотрите внимательно что покупаете. На самом деле кроме нашего производства на Украине еще не встречал производителей, а если и есть то давайте знакомиться и делать наш материал лучше!!! Посилання на коментар Поділитися на інших сайтах More sharing options...
VeNick Опубліковано: 24 листопада 2011 Поділитись Опубліковано: 24 листопада 2011 судя из того что вы пишете о цене арболита и отсевоблока, боюсь у вас обычный прессованный тырсоблок - а это далеко не арболит, вы уж меня простите но вас надули. Александр, Вы абсолютно правы, и спасибо за совет, но я 2 года назад сознательно шел на тырсоблок, зная что он далек от арболитового. Вопрос был в бюджете. И, по-моему, тогда Вы арболит еще не делали. Тем не менее.... рушить созданное не буду. Посилання на коментар Поділитися на інших сайтах More sharing options...
AndyAntonov Опубліковано: 24 листопада 2011 Поділитись Опубліковано: 24 листопада 2011 использование металла может привести к образованию мостика холода. похоже что в данном случае так и есть. я не критикую. я хочу найти правильное решение. Окно само по себе всегда мостик холода, даже если сравнивать современное окно со стеной моей хаты (R=0.67-0.71). Посилання на коментар Поділитися на інших сайтах More sharing options...
sylchenko Опубліковано: 24 листопада 2011 Поділитись Опубліковано: 24 листопада 2011 Александр, Вы абсолютно правы, и спасибо за совет, но я 2 года назад сознательно шел на тырсоблок, зная что он далек от арболитового. Вопрос был в бюджете. И, по-моему, тогда Вы арболит еще не делали. Тем не менее.... рушить созданное не буду. 2 года мы созревали для этой темы, основной причиной почему небыло Арболита - это правилая щепа, от нее зависит 90% и 10% от качественного цемента :D. Поэтому решив все эти вопросы: купив дробилку которая бьет специальную "правильную щепу" мы решились на запуск производства. Заказали изготовление специального вибропресса для производства арболита. Также открыли форум нашей компании для обсуждения вопросов по поводу приемлемого размера Арбоблока, стоимости и др. И сразу нашли единомышленников и конечноже самое необходимое для любого бизнеса - заказчика, из Одессы, пока 2-го, уверен не последнего. Оказалось человек уже 3 года ждет когда появятся производители для того что бы воплотить свою мечту. На весну планируем участие в строительных выставках в Киеве и Харькове, если получится во Львове и Днепропетровске. В данный момент ведем переговоры с Российской компаний Арболитстрой по поводу преобретения лицензии на их патент производства арболита с облицовочной поверхностью и окраской под индивидуальный заказ. Также запускаем услуги по строительству пока что "РУССКИХ БАНЬ" из арболита, скорость строительства бани 3х5 составлает не больше 3-4 дня, не учитывая фундамент. Так что амбиций много, времни маловато что бы их воплотить, а времени как всем известно всегда не хватает. 2 Посилання на коментар Поділитися на інших сайтах More sharing options...
sylchenko Опубліковано: 24 листопада 2011 Поділитись Опубліковано: 24 листопада 2011 Окно само по себе всегда мостик холода, даже если сравнивать современное окно со стеной моей хаты (R=0.67-0.71). совершенно верно около 30% тепло потерь через окна но никуда не уйти можно ставить 4 камерный стекло пакет Посилання на коментар Поділитися на інших сайтах More sharing options...
sylchenko Опубліковано: 24 листопада 2011 Поділитись Опубліковано: 24 листопада 2011 Тем не менее.... рушить созданное не буду. но вы можете начать строить уже новое! ;) 2 Посилання на коментар Поділитися на інших сайтах More sharing options...
AndyAntonov Опубліковано: 25 листопада 2011 Поділитись Опубліковано: 25 листопада 2011 совершенно верно около 30% тепло потерь через окна но никуда не уйти можно ставить 4 камерный стекло пакет Это очень сильно от здания зависит. У двухкамерного стеклопакета R=0,55. 30% теплопотерь через окна получить сложно. Впрочем, мы отклонились от темы. В предложенной схеме уголки не являются мостиками холода, т.к. уложены продольно. А вот прогиб такой перемычки надо считать. Посилання на коментар Поділитися на інших сайтах More sharing options...
sylchenko Опубліковано: 25 листопада 2011 Поділитись Опубліковано: 25 листопада 2011 А вот прогиб такой перемычки надо считать. для этого есть специальные программы Посилання на коментар Поділитися на інших сайтах More sharing options...
VeNick Опубліковано: 25 листопада 2011 Поділитись Опубліковано: 25 листопада 2011 но вы можете начать строить уже новое! ;) Пока, к сожалению, перестраиваю старое . Посилання на коментар Поділитися на інших сайтах More sharing options...
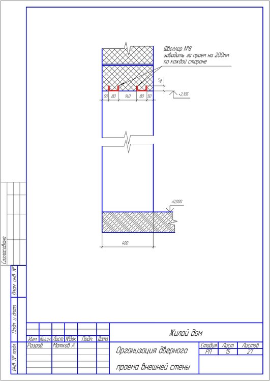
a991ru Опубліковано: 28 листопада 2011 Поділитись Опубліковано: 28 листопада 2011 Проемы всегда слабое место конструкций из блоков использование металла может привести к образованию мостика холода. похоже что в данном случае так и есть. я не критикую. я хочу найти правильное решение. У нас много построенных домов из арболита. Вот так выглядит этот узел в проектах. Мостика холода там никакого нет. Вместо швеллера можно использовать уголок, просто у нас по деньгам выходит, что швеллер дешевле. 3 Посилання на коментар Поділитися на інших сайтах More sharing options...
sylchenko Опубліковано: 28 листопада 2011 Поділитись Опубліковано: 28 листопада 2011 У нас много построенных домов из арболита. Вот так выглядит этот узел в проектах. Мостика холода там никакого нет. Вместо швеллера можно использовать уголок, просто у нас по деньгам выходит, что швеллер дешевле. Спасибо огромное Андрей за чертежи узлов, думаю они пригодятся многим не только начинающим строителям но и уже проффесионалам. 1 Посилання на коментар Поділитися на інших сайтах More sharing options...
salix Опубліковано: 29 листопада 2011 Поділитись Опубліковано: 29 листопада 2011 У нас много построенных домов из арболита. Вот так выглядит этот узел в проектах. Мостика холода там никакого нет. Вместо швеллера можно использовать уголок, просто у нас по деньгам выходит, что швеллер дешевле. Спасибо за чертежи Только не показано как крепятся в таком случае окна(коробки дверей) Посилання на коментар Поділитися на інших сайтах More sharing options...
a991ru Опубліковано: 30 листопада 2011 Поділитись Опубліковано: 30 листопада 2011 Спасибо за чертежи Только не показано как крепятся в таком случае окна(коробки дверей) А с креплением окон какие проблемы? Способов крепления окон много, но в данном случае крепление коробки окна к стене не имеет никакого отношения к перемычкам. Покажите эти картинки любому оконщику и он вам скажет, какие у вас есть варианты по креплению окон. Посилання на коментар Поділитися на інших сайтах More sharing options...
salix Опубліковано: 30 листопада 2011 Поділитись Опубліковано: 30 листопада 2011 А с креплением окон какие проблемы? Способов крепления окон много, но в данном случае крепление коробки окна к стене не имеет никакого отношения к перемычкам. Покажите эти картинки любому оконщику и он вам скажет, какие у вас есть варианты по креплению окон. Варианты "любых оконщиков" меня не интересуют. Я очень редко вижу чтобы окна у нас устанавливались по всем правилам. Меня интересует как правильно. Если внимательно взглянуть www.stroimdom.com.ua/forum/attachment.php?attachmentid=147519&d=1322076310 Здесь окно крепится как раз к швеллеру перемычки. Он с одной стороны смотрит наружу, а с другой внутрь. Как по вашему там есть мостик холода или нет? Посилання на коментар Поділитися на інших сайтах More sharing options...
Рекомендовані повідомлення
Створіть акаунт або увійдіть у нього для коментування
Ви маєте бути користувачем, щоб залишити коментар
Створити акаунт
Зареєструйтеся для отримання акаунта. Це просто!
Зареєструвати акаунтУвійти
Вже зареєстровані? Увійдіть тут.
Увійти зараз