shneider_vova Опубліковано: 27 грудня 2017 Поділитись Опубліковано: 27 грудня 2017 Пришло время и мне начать свою тему. Жилищный вопрос возник пару лет назад, с появлением сына – в двухкомнатной квартире с проходной гостиной стало тесно. Сначала хотели с братом строить на двоих дуплекс (таунхаус на 2 хозяев), но пришел к выводу, что юридические сложности перекроют возможную экономию на материалах, работах и 1 купленном участке вместо 2. Кроме того, оставался вопрос финансирования, так как часть денег была, а остальное предполагалось покрыть с продажи текущей недвижимости – но переходной период (с момента продажи своей квартиры до окончания строительства) был в тумане. Потом были безуспешные попытки купить сначала квартиру, а затем дом (оба раза продавец возвращал аванс после нотариально подписанного договора задатка) – и мы поняли, что судьба нас подталкивает к строительству. Весной 2017 года я начал поиски участка. Еще пару лет назад приняли решение, что жить будем только на правом берегу (мост еще тогда не начали ремонтировать), а вариантов тут не много – диевка, новоалександровка, мирный, 6 победа. Из всех вариантов больше нравилась Новоалександровка, с нее и начали поиски. Практически первый же просмотренный участок - и понимание «это оно». 12 соток, вытянутый вдоль дороги, соседи с двух боковых сторон, улица с хорошим асфальтом, непроездная. Через месяц в июне сделка состоялась. Теперь пути назад не было. За время оформления сделки был найден знакомый прораб, который пообещал стоимость строительства в 350 у.е за м2 под чистовую отделку. Предварительно сделанная самостоятельно на коленке смета показала реальность данной цифры (сейчас уже, конечно, в нее не вписываемся, но ориентир остается). Изучение форумов привело к появлению следующего технического задания (с выбором материалов и технологий): Документ1.pdf (Не понял, как вставить таблицу, поэтому вставляю как pdf) 8 Посилання на коментар Поділитися на інших сайтах More sharing options...
yurriy Опубліковано: 27 грудня 2017 Поділитись Опубліковано: 27 грудня 2017 Утеплять ЭППС газоблок категорически нельзя. Если уж пенопласт - то обычный и толщиной не менее 10 см, а лучше 15. Тогда и газоблок можно не Д300, а попрочнее, Д400 или даже Д500. 1 Посилання на коментар Поділитися на інших сайтах More sharing options...
shneider_vova Опубліковано: 27 грудня 2017 Автор Поділитись Опубліковано: 27 грудня 2017 Утеплять ЭППС газоблок категорически нельзя. Если уж пенопласт - то обычный и толщиной не менее 10 см, а лучше 15. Тогда и газоблок можно не Д300, а попрочнее, Д400 или даже Д500. В данном случае я имел в виду, что внутрь У-блока вкладывается утеплитель из ЭППС с внешней стороны. Больше нигде по фасаду утеплитель не применяется. Использование пароНепроницаемого утеплителя локально с НАРУЖНОЙ от бетона стороны - допускается рекомендациями 1 Посилання на коментар Поділитися на інших сайтах More sharing options...
shneider_vova Опубліковано: 27 грудня 2017 Автор Поділитись Опубліковано: 27 грудня 2017 Далее вопрос встал о проекте. Так как я сам проектировщик, то однозначно решил, что проект нужен, и чем он будет детальнее, тем лучше. Поскольку индивидуальный проект выходил за рамки бюджета, было принято решение покупать типовой проект и дальше при необходимости его допиливать. Из проектных контор больше понравились проекты Z500, с ними и решил работать. Прошерстив все их проекты по нужным критериям (120-150 м2, 1 этаж, 3 спальни – к этому моменту родилась уже дочка) – остановился на проекте Z98. Z98_pol_small.pdf Чем он понравился в отличии от Z10 - возможностью использования второго этажа (чердачного) с минимальным довложением средств. Фактически 80 м2 площади можно получить, утеплив кровлю, сделав стяжку по плитам и поставив гипсокартонные перегородки. По моим оценкам, на это потребовалось бы до 10 тыс.у.е., что дает стоимость допплощади в 120 у.е/м2 – такую возможность не хотелось упускать. Что можно сделать на втором этаже – кабинет, гостевую спальню, санузел (на первом этаже только 1 ванная), гардеробную. Этот проект и заказал в Z500 со следующими дополнениями: 1) Замена материала внутренних стен на кирпич, отделку фасада – на кирпич 2) Замена перекрытия на плиты 3) Пакет теплые полы+вентиляция 4) Инженерные сети 5) Слаботочные сети 6) Молниезащита 7) Смета Сразу скажу, что работать с Z500 не понравилось – до непосредственного исполнителя практически не пробиться, все через менеджеров, которые спокойно могут не передать ту или иную информацию, сроки затянули - проект получил за 2.5 месяца от момента оплаты, что для типового проекта – ну слишком много; в проекте достаточное количество ошибок, в том числе серьезных – и это только то, что я смог найти. Надеюсь, что ничего критического я не пропущу. 8 Посилання на коментар Поділитися на інших сайтах More sharing options...
DomiC Опубліковано: 27 грудня 2017 Поділитись Опубліковано: 27 грудня 2017 Практически первый же просмотренный участок - и понимание «это оно»- так и должно быть! Благожелательных вам богов строительства)). И может ну его этот второй этаж)? 2 Посилання на коментар Поділитися на інших сайтах More sharing options...
shneider_vova Опубліковано: 27 грудня 2017 Автор Поділитись Опубліковано: 27 грудня 2017 Практически первый же просмотренный участок - и понимание «это оно». Благожелательных вам богов строительства)). И может ну его этот второй этаж)? Спасибо. На сегодняшний день готов фундамент, наружные стены и перекрытие из плит, стройка заморожена на зиму. Так что со вторым этажом уже все точно определенно, но в бюджете его все равно пока нет, так что пока будет просто чердаком Посилання на коментар Поділитися на інших сайтах More sharing options...
digor_ua Опубліковано: 27 грудня 2017 Поділитись Опубліковано: 27 грудня 2017 В данном случае я имел в виду, что внутрь У-блока вкладывается утеплитель из ЭППС с внешней стороны. Больше нигде по фасаду утеплитель не применяется. Использование пароНепроницаемого утеплителя локально с НАРУЖНОЙ от бетона стороны - допускается рекомендациями не влезет туда утеплитель вот картинка с размером 375-го У блока если туда 50 мм ЭППСа запихнуть, то остается шото около 10 см перемычки. Не знаю как у кого, но уменя перемычки такой толщины вызывают сомнения да и Аэрок с УДК в своей литературе ничего про утепление У-блоков не говорят Добавлено через 2 минуты Спасибо. На сегодняшний день готов фундамент, наружные стены и перекрытие из плит, стройка заморожена на зиму. Так что со вторым этажом уже все точно определенно, но в бюджете его все равно пока нет, так что пока будет просто чердаком а не, сорри, если первый этаж уже сделали, то получается что я со своим постом не вовремя 2 Посилання на коментар Поділитися на інших сайтах More sharing options...
shneider_vova Опубліковано: 27 грудня 2017 Автор Поділитись Опубліковано: 27 грудня 2017 Я ставил 2 слоя по 20 мм, получалась тоненькая балка в 110-120 мм, но по моим и проектными расчетам ее достаточно. Дело в том, что на стены с проемами практически нет нагрузки + в уровне перекрытия выполнен ещё 1 монолитный пояс. Под мауэрлатом будет ещё свой пояс. То есть нагрузок от кровли на проемы - нет, от перекрытия нет , а от собственного веса нескольких рядов газоблока и узкой балки достаточно, тем более что она армирована как положено 2 стержня 12 снизу и 2 сверху 1 Посилання на коментар Поділитися на інших сайтах More sharing options...
omozhyn Опубліковано: 27 грудня 2017 Поділитись Опубліковано: 27 грудня 2017 Хороший проект, я что то подобное себе за основу взял) подскажите, на какую глубину делали ленту фундамента и какие внутренние стены несущие? По списку из первого поста - не совсем понял по кабелю для освещения. Почему одножильный и зачем уж 2,5 сечение? Добавлено через 4 минуты Перекрытие делали плитами только из за возможности оборудования второго этажа? Деревянное перекрытие не рассматривали? (Думаю, как себе лучше сделать) Посилання на коментар Поділитися на інших сайтах More sharing options...
shneider_vova Опубліковано: 27 грудня 2017 Автор Поділитись Опубліковано: 27 грудня 2017 В школе я всегда не любил сочинения, так как не мастер красиво излагать мысли, еще и на бумаге. Тему начал для того, чтобы, во-первых, "вернуть долг" тем, у кого подчерпнул на форуме много полезной информации, во-вторых (и в основном) - весной начнется второй этап стройки, с инженерными сетями - а там мне многое еще неясно, а задавать вопросы лучше, когда есть что показать. Поэтому постараюсь за новогодние праздники выложить всю историю своей стройки, с фотографиями, узлами с проекта, объяснением своих мотивов по выбору того или иного решения, а потом уже начну мучать всех своими вопросами. Постараюсь отвечать на все возникающие вопросы по ходу, но не обессудьте, если буду отсылать к будущих постам (чтобы не перебивать последовательность изложения и не повторяться). Добавлено через 7 минут Хороший проект, я что то подобное себе за основу взял) подскажите, на какую глубину делали ленту фундамента и какие внутренние стены несущие? По списку из первого поста - не совсем понял по кабелю для освещения. Почему одножильный и зачем уж 2,5 сечение? Глубина 1.4 метра, стены 2 внутренние несущие (дальше будет видно), с кабелем не знаю - наверное, не так записал, внутренняя проводка 3-х жильная, розетки 3*2.5 мм2, освещение 3*1.5 мм2. Добавлено через 4 минуты Перекрытие делали плитами только из за возможности оборудования второго этажа? Деревянное перекрытие не рассматривали? (Думаю, как себе лучше сделать) 1) я человек города, и дерево и в интерьере, и в конституциях люблю только в виде иммитации - не считаю достаточно надежным материалом 2) большие пролеты по 6.6 и 5.1 метра - вызвало бы необходимость сечения балок типа 250*150 - дорого и все равно неудобно 3) встречал неоднократные отрицательные комментарии по звукоизоляции деревянных перекрытий 4) в сравнении вариантов на сайте Z500 деревянное перекрытие стоит дороже 5) имею возможность со скидкой заказать жб панели (правда, как раз когда я заказывал панели, производство не работало, пришлось брать на Баловке дороже на 10 тыс) - но на момент проектирования я не знал, что будет такая засада 6 Посилання на коментар Поділитися на інших сайтах More sharing options...
shneider_vova Опубліковано: 27 грудня 2017 Автор Поділитись Опубліковано: 27 грудня 2017 После заказа проекта занялся геологией. Многие самостройщики ее не делают - считаю большой ошибкой. Мне изыскания стоили 7.5 тысяч и 2 недели, но, думаю, окупились многократно. Геологов выбрал по рекомендации знакомого конструктора КЖ. В связи с тем, что у меня участок разделен на 2 половины подпорной стенкой (высотой 60-70 см), и автомобильный заезд есть только на более высокую половину, то автомобильным буром делали 1 скважину на высокой половине участка, и ручным буром - 2 скважины на второй половине. Результаты меня не очень порадовали. С одной стороны, УГВ 6 метров - это плюс, песчаные грунты - тоже плюс, а со второй стороны, 1 метр чернозема как верхний слой и пылеватый ПРОСАДОЧНЫЙ песок как следующий слой. Отсюда выводы по геологии: 1) верхний слой чернозема - снимать, нельзя на него опираться 2) необходимо принять особые меры для избежания замокания грунта под фундаментом во избежания просадок - а это отмостка в 2 метра шириной. Мои надежды на экономию на полах (выполнить теплый пол без черновой стяжки) - растаяли. Для такого решения необходимо было бы вынуть грунт по всему котловану 150 м3 и засыпать с трамбовкой 150 м3 песка. В том, что мне качественно протрамбуют засыпку толщиной более 1 метра - я сильно сомневался, фактически проверить уплотнение - нереально, а потом всю жизнь гадать, когда просядут стены - не хотел. Мероприятия по устройству фундамента без замены грунта потом мне обойдутся еще в ту копеечку, но тогда я спешил начать строиелтсвто в текущем году и несколько месяцев на рассмотрение различных вариантов фундаментов, обсчету стоимости их реализации, поиску подрядчиков - у меня не было, поэтому пошел просто по перестраховочному пути (далее расскажу).Отчет инд. жилдом.docРазрез.xls 1 Посилання на коментар Поділитися на інших сайтах More sharing options...
shneider_vova Опубліковано: 27 грудня 2017 Автор Поділитись Опубліковано: 27 грудня 2017 С конца июня занялся подключением коммуникаций. Прораб дал свои контакты по людям, которые занимаются подключением. С водой было проще всего - человек брал деньги и делал все под ключ (проект, согласование, траншеи, закупка материалов, колодцы, врезка). По улице шел водопровод. так что технических вопросов не было. Для врезки в водопровод необходимо было получить разрешение в сельсовете на подключение к коммуникациям. Для этого переговорил с депутатом сельского совета от этой улицы - оказалось, что водопровод строили 10 лет назад за взносы жильцов улицы, и необходимо было получить их согласие - то есть уплатить паевой взнос за подключение. Это стоило мне 5.5 тыс. Работы по воде с материалами обошлись в 25 тыс + 2 люка я покупал сам - 1 тыс. грн. Работы были выполнены менее чем за месяц, так что к августу я уже был с водой. Выполнен колодец кирпичный на месте врезки в водопровод (на противоположной от меня стороне улицы), затем металлопластиковой трубой 32 мм под дорогой и забором подключение к второму колодцу уже на участке в 2 метрах от забора. [ATTACH]596364[/ATTACH] [ATTACH]596365[/ATTACH] Электричество - по улице в 250 метрах трансформатор 10/0.4, от него воздушная линия, идущая по другой стороне дороги. Посредник отказался браться за подключение - направил по официальному пути в РЭС (и хорошо, что так получилось). Пришлось ехать в Подгороднее. Там на удивление прошло все очень быстро - талончик, заявление. На все ушло 1.5 часа. Написал заявление на 20 кВт - получалось, что 15 кВт дороже, чем 20 кВт (до 15 кВт - один тариф, выше - дешевле за 1 кВт). Обещали в течении 10 дней выдать техусловия и договор на подключение, но вмешался Petya. Как раз была эпидемия компьютерного вируса, которая положила сети ДТЭК, и месяц они отказывались что-либо делать. Горячая линия не работала, и контакт был только через Facebook - рекомендую обращаться туда, ответ в течении получаса. С горем пополам к середине августа были получены техусловия (пришлось еще раз ехать в Подгороднее), оплачены 14.5 тыс за подключение, и к началу сентября возле участка уже стоял столб с узлом учета. Подключение на столбе - 4х проводным алюминиевым кабелем (наличие заземления на столбе, на соседних столбах - неизвестно, ответа от электрика РЭС добиться невозможно). Автомат 40А трехфазный - я так понимаю, что это больше 20 кВт, но возражать не стал От столба к дому решил вести кабель под землей, поэтому подключение щита отложил до момента прокладки кабеля внутрь дома. [ATTACH]596366[/ATTACH] [ATTACH]596367[/ATTACH] [ATTACH]596368[/ATTACH] Посилання на коментар Поділитися на інших сайтах More sharing options...
Dendnepr Опубліковано: 27 грудня 2017 Поділитись Опубліковано: 27 грудня 2017 Практически первый же просмотренный участок - и понимание «это оно»- так и должно быть! У нас так раза три было! И только заминка с документами позволила нейти "ещё более ОНО!!" Автору -удачи. Подпишусь. Заодно попрошу указывать поставщиков материалов. Днепрянам будет полезно. 1 Посилання на коментар Поділитися на інших сайтах More sharing options...
MAESTRO DNEPR Опубліковано: 27 грудня 2017 Поділитись Опубліковано: 27 грудня 2017 Для врезки в водопровод необходимо было получить разрешение в сельсовете на подключение к коммуникациям. Для этого переговорил с депутатом сельского совета от этой улицы - оказалось, что водопровод строили 10 лет назад за взносы жильцов улицы, и необходимо было получить их согласие - то есть уплатить паевой взнос за подключение. Если жильцы сдали трубу на баланс водоканала, что скорее всего, то Вы никому и ничего не должны, кроме оплаты услуг водоканала. Мы это уже не раз проходили. 1 Посилання на коментар Поділитися на інших сайтах More sharing options...
shneider_vova Опубліковано: 28 грудня 2017 Автор Поділитись Опубліковано: 28 грудня 2017 Если жильцы сдали трубу на баланс водоканала, что скорее всего, то Вы никому и ничего не должны, кроме оплаты услуг водоканала. Мы это уже не раз проходили. По утверждению моего водопроводчика, начинать работы он может, только имея на руках разрешение от сельсовета. а там отказались его дать без бумаги от жильцов о том, что у них нет ко мне претензий. По газу в сельсовете подписали без вопросов. Желания выяснять, кто на чьем балансе - не было, чуть позже расскажу эпопею с газом - там до сих пор не начались работы, хотя бумаги были запущены одновременно. Решил, что головомойка и ссора с соседями не стоит 5 тысяч 4 Посилання на коментар Поділитися на інших сайтах More sharing options...
shneider_vova Опубліковано: 6 січня 2018 Автор Поділитись Опубліковано: 6 січня 2018 Заметил, что почему-то не загрузились фотографии в последнем сообщении. Вот так выглядел котлован под водопроводный колодецц и траншея для прокладки трубы: а вот так установленный столб и узел учета: С газом оказалось все намного сложнее. Несмотря на то, что договаривался с посредником, документы надо было сдавать на Володарского в Днепрогаз. И там они аналогично подвисли из-за вируса. Но если ДТЭК через месяц все исправил, то тут и через 3 месяца было глухо. Посредник кормил сказками, достучаться через горячую линию невозможно, ехать ругаться лично не хотелось (документы на супругу, а она дома с 2 маленькими детьми - не лучшие спутники для выяснения отношений в общественных местах). Помогла (я так думаю) официальная жалоба - написал письмо на оф. e-mail и отправил копию в НКРЕ - оттуда на удивление пришел письменный ответ (правда, к тому времени Днепрогаз уже зашевелился). Нам подготовили техусловия и выписали счет в начале сентября (прошло 3 месяца с подачи заявки). Оплатив 14 тысяч и подписав договор на подключение (со сроком в 3 месяца), стал ждать работ. Напрасно. Сначала делали проект. Потом проект согласовывали - не согласовали - причина - реально газовой плиты не будет, а в техусловия я вписал ее - для увеличения мощности счетчика - на всякий случай. А оказалось, что теперь проекты согласовывают только при условии, что мощность счетчика точно равна мощности потребления реальных приборов. Якобы из-за того, что планирвоали ввести абонплату за установленную мощность, и многие возмущались, что мощность счетчика завышена. Пришлось переделывать техусловия, переделывать проект,ждать согласования по новой. В ноябре проект был согласован, и теперь ждем начала работ. Посредник сказал, что работы он сделает сам, но копать пусть будут днепрогазовцы. И узе 1.5 месяца ждем, пока эти 2 м3 земли будут выкопаны. Бред, конечно, но мне пока не к спеху. 1 Посилання на коментар Поділитися на інших сайтах More sharing options...
shneider_vova Опубліковано: 6 січня 2018 Автор Поділитись Опубліковано: 6 січня 2018 Теперь хочу расписать, почему были приняты те или иные решения по конструктиву дома, материалам, коммуникациям. Я выкладывал в первом сообщении темы составленное мной техзадание, теперь остановлюсь поподробнее на нем. Основной принцип, которым я руководствовался - все фундаментальные и основные моменты должны быть сделаны капитально, с максимально возможной с точки зрения бюджета основательностью. То, что можно поменять, отложить, доделать потом - откладывается. Внутренняя отделка - по остаточному принципу - во-первых, я не понимал (да и сейчас не понимаю), сколько на нее уйдет денег, во-вторых, она уже не очень вписывалась в бюджет. Было принято совместное решение, что лучше жить по бедному, но в доме, чем оставаться в своей маленькой квартире. Еще решил, что все должно соответствовать нормативным документам - то есть соблюдаем требования по теплозащите, ПУЭ, ДБН по канализации и т.п. 1) Фундамент - изначально отказался от подвала и цокольного этажа для удешевления строительства. Оптимальным виделся ленточный фундамент на глубину промерзания. Хотелось УШП (начитавшись Форумхаус), но я понимал, что найти в Днепре строителей, знающих эту технологию - невозможно, а сидеть круглосуточно ан площадке не было возможности. 2) Стены - решил делать из газобетона без утеплителя, поскольку а) дешевле б) срок службы любого утеплителя 15-20 лет. Выбрал D300 от Аэрока, посчитав, что его несущей способности мне хватает - в моем проекте внешние несущие стены глухие, без окон, а внешние ненесущие - можно делать и из менее прочных материалов. На внутренние стены выбрал кирпич а) увеличение звукоизоляции б) увеличение теплоемкости в) нет необходимости в том, чтобы эти стены были теплыми а значит, газобетон не будет тут дешевле. По рекомендациям - решил приводить все размеры проемов к размерам газобетона - кажется, это ошибочное решение - трудоемкости особо не добавляет, прораб не стал смотреть на это и выставил за работу ту же цену, что и обычно, поэтому если бы сам строил - может, и имело бы смысл, а так непонятно что сэкономил. Добавлено через 32 минуты 3) Кровля. Металл изначально не хотел, так как по работе связан с металлом, знаю качество оцинкованного проката на рынке и количество китайского листа - не хотел рисковать. Да и шум останавливал. Композитная черепица - почти то же самое + дорого. Керамика - дорого. Остановился на битумной черепице. Так как много сидел на ФХ, то остановился на Shinglas Jazz как оптимуме с точки зрения качества, эстетики и финансов (сейчас рассматриваю неожиданно другие варианты, но об этом чуть позже напишу). 4) Перекрытие. Не хотел деревянное перекрытие, так как почти все пишут, что звукоизоляцию обеспечить невозможно. Плиты не пугали, так как планировал заказать по знакомству, и можно было бы проконтролировать качество. По расчетам проектной фирмы z500.com.ua/projekt/z98.html#construction-price так было бы дешевле (хотя у них все цены какие-то не совсем адекватные, но я понаделялся, что хотя бы в процентном соотношении они правильно посчитали). 5) Окна - максимально теплые, но влазящие в бюджет. Отправил запросы на все фирмы, которые в Днепре занимаются окнами, составил таблицу и попытался найти оптимум. Пока больше всего подошел Stekloplast в профиле WDS8 и пакетом 4i-18-4-14-4i (такой выставили, буду добавлять аргон). Ближе к весне уже буду конкретно определятся. Нужен еще теплый монтаж (трехслойный), но кажется не все в Днепре его делают, да и как проконтролировать качество, мне пока непонятно. 6) Фасады. Штукатурные фасады изначально не хотел - недолговечно, пачкаются, приелись. Хотелось красивого лицевого кирпича. Посмотрев, что продается на рынке (импортный клинкер не смотрел по принципе цены), остановился на рустике от Керамейи, например, таком kerameya.com.ua/ru/product/granit-23. Фасады планировал делать по мере появления денег, уже после вселения. 7) Вентиляция. Супруга очень чувствительна к качеству воздуха - в квартире окна постоянно приоткрыты, даже зимой, что создает для меня неудобства. Поэтому решил, что обязательно нужна приточно-вытяжная вентиляция с подготовкой приточного воздуха (он должен быть нагрет до комфортной температуры). А тогда уже логичнее ставить рекуператор - он по цене +- с ценой приточно-вытяжной установки без рекуператора. Остановился на Вентсе - а) украинский б) давно на рынке в) приемлемые цены - установка в 300-600 м3 обойдется примерно в 50 т.грн. Опять таки сам рекуператор будет установлен "когда-то", но сделать проект, заложить все воздуховоды, решетки и т.п. - надо сразу. 7) Отопление - поскольку по улице идет газ, решил делать газовое отопление. Поскольку было принято решение о принудительной вентиляции, то котел надо выбирать турбированный. Решил брать одноконтурный, так как двухконтурный даже 24 кВт не совсем справляется с подогревом воды в проточном режиме. Горячую воду брать с бойлера косвенного нагрева - тогда можно сделать и рециркуляцию горячей воды (котельная расположена достаточно далеко от потребителей). Конденсационный котел решил не брать а) дорого б) проблема с утилизацией конденсата - в септик сливать нельзя, значит, придется тратиться еще и на нейтрализатор. Котел выбрал Baxi по совету газовщиков (да и отзывы тоже нормальные). 5 Посилання на коментар Поділитися на інших сайтах More sharing options...
omozhyn Опубліковано: 8 січня 2018 Поділитись Опубліковано: 8 січня 2018 Тоже думаю над вопросом отопления, общаюсь с людьми, которые уже живут в домах. Как то все очень нехорошо отзываются о газе, говорят, электричеством выгоднее, особенно с учетом возможности тарифа на эл.отопление. Кстати, даже если газ проходит вот прям рядом- не факт, что его завести в дом будет сильно дешево) Я себе пока что даже думаю не заводить, и чем больше читаю форум и общаюсь с жителями частных домов - тем больше укрепляю это решение 1 Посилання на коментар Поділитися на інших сайтах More sharing options...
shneider_vova Опубліковано: 8 січня 2018 Автор Поділитись Опубліковано: 8 січня 2018 8) Водоснабжение. Планировал использовать пластиковые трубы для разводки по дому в стяжке пола. Изначально остановился на полипропилене FV plast (после посещения Акватерм 2017 и просмотра отзывов по трубе) - бюджетно, но выбранный сантехник не рекомендовал делать систему на ППР из-за ненадежности, и выбирать натяжные соединение на полиэтилене. В проекте заложена труба KAN Pex-c, а сантехник вообще предлагает делать Rehau - боюсь, оно совсем по цене будет кусаться. С другой стороны, протяженность трасс небольшая, поэтому если разница выйдет до 10 тыс, наверное, соглашусь. Ввод в дом сделал 32 трубой (до колодца - металлопластик Valtec, от колодца - Rehau). Возможно, что придется ставить насосную станцию и/или бак-накопитель в связи с тем, что в период полива напор падает. Пока возможности проверить это не было, буду летом уже смотреть по факту, место и точки подключения под это надо предусмотреть в котельной. 9) Канализация. Начитавшись рекламы в интернете, хотел делать автономную станцию очистки ( с аэратором). Однако провентилировав цены (на том же Акватерм), пришел к выводу, что не потяну - станция + дренажное поле + монтаж + котлован - более 100 тыс грн. Посоветовавшись на ФХ у пользователя Ladomir, решил делать многокамерный септик из бетонных колец + дренажный колодец или дренажное поле. Планирую уложиться в 30-50 тыс (в зависимости от необходимости поля). УГВ у меня низко, грунты фильтрующие, поэтому почвенная очистка выглядит логично. Канализация в доме разведена под плитой пола, поэтому там нужна труба для наружных работ. Я решил перестраховаться и взять трубу с максимальной несущей способностью. Выбрал Ostendorf серии KG 2000 - разница в цене была не такая большая, а несущая способность в 2 раза больше. Кроме того, она специфического цвета - зеленая - подделок быть не должно. Сделано именно в Германии - хотя некоторые сантехники утверждали, что в Украине немецкого Остендорфа нет, только польский или чешский. Добавлено через 3 минуты Тоже думаю над вопросом отопления, общаюсь с людьми, которые уже живут в домах. Как то все очень нехорошо отзываются о газе, говорят, электричеством выгоднее, особенно с учетом возможности тарифа на эл.отопление. Кстати, даже если газ проходит вот прям рядом- не факт, что его завести в дом будет сильно дешево) Я себе пока что даже думаю не заводить, и чем больше читаю форум и общаюсь с жителями частных домов - тем больше укрепляю это решение У газа есть большой плюс - больше надежность. У меня кабельная линия, зимой возможен обрыв. Да и как поведут себя сети, когда я из пригружу на 15 кВт - я не знаю, какие могут быть просадки в моей конкретной сети. Мне озвучили изначально сумму подключения газа в 35-40 тыс, думаю, это приемлимо, но с учетом стоимости дымохода уже становится накладно. Скорее всего, на первое время ограничусь только счетчиком (уже оплачен), а там будет видно - но надо для себя решить, как сделать дымоход - чтобы потом не переделывать кровлю. Добавлено через 28 минут 10. Электроснабжение. Решил все делать по ПУЭ. Силовые линии ВВГнгд 3*2.5, освещение ВВГнгд 3*1.5. По отзывам планировал Одескабель, знакомые электрики советуют брать ЗЗЦМ - они якобы не занижают сечение. При задумке щита руководствовался вот этой статьей y-kharechko.livejournal.com/1323.html, очень грамотный мужик, все его мысли совпали с моим видением (если оно было ). По советам планирую автоматику брать Eaton. Заземление планировал делать штыревое, нержавеющее, тут на форуме кто-то продает. Дополнительно заказал проект молниезащиты - вроде надо делать, но цена... В проекте молниезащиты уже есть контур заземления - 8 штыревых заземлителей вокруг дома, связанные оцинкованной полосой. Это явно даст меньшее сопротивление заземления, но грунты песчаные, вода на 6 метров, и было бы наверное лучше сделать меньше заземлителей, но глубже. Буду думать еще. Разводку кабелей по дому планирую сделать по потолку - по плитам перекрытия и уже опускать их в штробах. Необходимость гофры так и не понял пока для себя, а ее нужно 1300 метров. Это минимум 4 тыс. 11. Увидев как то пару лет назад обсуждение центрального пылесоса, загорелся. Обсуждал с Buzon схему и смету - сами комплектующие, необходимые для монтажа трассы, обходились недорого в 4-6 тыс. Поэтому планирую заложить трассу, сделать выводы под розетки (смонтировать подрозетники), а когда то потом ставить пылесос. Особо понравилась идея с встроенным совком в прихожей - сметается пыль с песком в дырку в стене, и все. А чистить пол там приходится часто. 12. Полы - запланировал изначально 100 мм утеплителя. Хотел ЭППС, возможно, для удешевления возьму 50 мм ПСБ и 50 ЭППС - но не уверен, что это даст большУю экономию. Буду делать везде теплые полы, без радиаторов - по отзывам, для нормально утепленных домов это возможно. Немного беспокоить только террасная дверь (2700*2400h), но городить там внутрипольный конвектор не хочется - дорого. Скорее всего, на автоматику (покомнатное регулирование) денег не хватит - разведу проводку под терморегуляторы, а там будет видно. Видел мудрый, на мой взгляд, совет - что теплый пол особо ен требует регулирования, так как фактически это саморегулируемая система - при разнице в температурах между воздухом и полом в 7 градусов - потепление воздуха на несколько градусов сразу приводит к существенному снижению теплоотдачи пола, и наоборот - при остывании воздуха повышается теплоотдача. Плюс будет рекуператор с догревателем. 3 Посилання на коментар Поділитися на інших сайтах More sharing options...
shneider_vova Опубліковано: 8 січня 2018 Автор Поділитись Опубліковано: 8 січня 2018 Пользователи центрального пылесоса жалуются, что не предусмотрели то, что им придется куда-то совать на хранение 8-ми метровый хобот от него и таскать его за собой при уборке:D В прихожей подмести веником не получится, в дом тянется на обуви столько, что надо только пыликать. У меня в прихожей свободного места 0.9*1.9 (остальное шкаф + стенка), не думаю, что будет проблема с использование вот такого совка www.profieurope.com.ua/index.php?produkty/-i/-leovac-uno.html. Насчет места для хранения- у меня котельная 14 м2, думаю, найдем место. Более глубоко вникать в нюансы эксплуатации пока нет возможности - тут и так вопросов выше крыши, поэтому решил пока сделать разводку - в конце концов, похороню в полу пару тысяч. вон, Виктор 60 метров трубы 110 закопал, и ничего Посилання на коментар Поділитися на інших сайтах More sharing options...
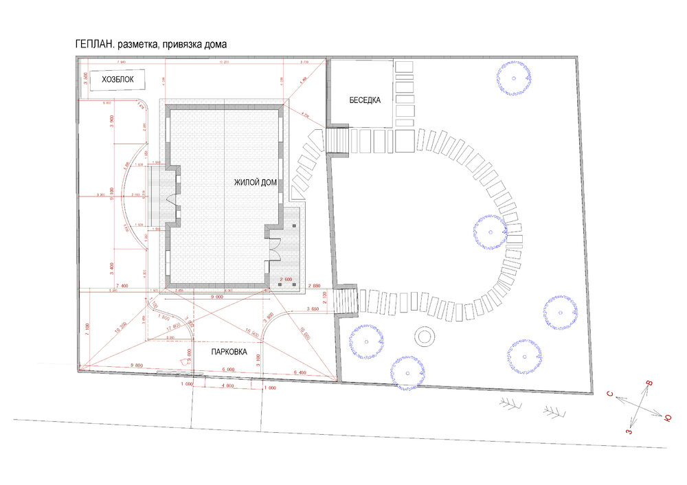
shneider_vova Опубліковано: 8 січня 2018 Автор Поділитись Опубліковано: 8 січня 2018 После заказа проекта необходимо было определиться с расположением дома на участке - для разработки строительного паспорта. Сначала была заказана геодезия участка: Как я уже писал, участок поделен на 2 части подпорной стеной высотой 600-700 мм, есть старый дом. Вокруг старого дома много деревьев, в частности, большой орех: а также 2 абрикосы, черешня. Решено было эту часть участка не трогать, оставить ее зеленой. В этом решении были и недостатки - эта часть участка была выше, дом лучше было бы расположить на ней, но с учетом низкого УГВ и песчаных грунтов решено было пренебречь низкой посадкой дома. По знакомству дизайнер сделал нам генплан участка: Она предлагала и другие варианты, но в итоге я заставил сделать так, как хотел с самого начала - уточнились только привязки к границам участка с учетом реальных размеров дорожек, отмостки и дома. Посилання на коментар Поділитися на інших сайтах More sharing options...
shneider_vova Опубліковано: 8 січня 2018 Автор Поділитись Опубліковано: 8 січня 2018 Дальше пришел черед строительного паспорта. При оплате проекта в Z500 была акция - стройпаспорт в подарок. Так что я стал ждать, пока фирма подготовит чертежи. Но они только кормили обещаниями.К началу августа я выбил у них в электронном виде то, что они считают строительным паспортом, и подал его через ЦНАП в электронном виде. Через 3 недели пришел отказ. Чтобы получить официальный ответ, пришлось ехать вживую в ЦНАП - в Юбилейное. В письме-отказе был телефон архитектора, который подготовил отказ, и удалось по телефону его уговорить прислать мне образец документов, которые его устроили бы. Основная проблема была в "эскизам намерений застройки". Их следовало нанести на согласованную геодезию - то есть на план участка, на котором стояла синяя печать "Согласовано" от отдела архитектуры. То есть чертить план дома, показывать расстояния до соседей - надо было вручную. Так и не понял, как делают другие - то ли делают чертет с планом дома и по новой его нести в архитектуру для получения штампа "Согласовано". Пришлось вспомнить курс черчения и карандашом наносить размеры. Расстояния от границ участка до соседних зданий пришлось выдумывать - взял из Google Maps, но они там в любом случае много больше требуемых по пожарным нормам, так что не страшно. Документы уже пришлось отвозить "очно", и через 3 недели паспорт был готов. Было это примерно в начале сентября. Пример моих документов прилагаю, может, кому то пригодится. merged.pdf 4 Посилання на коментар Поділитися на інших сайтах More sharing options...
shneider_vova Опубліковано: 10 січня 2018 Автор Поділитись Опубліковано: 10 січня 2018 Вчера написал жалобу на газовщиков - отправил на их электронную почту вопрос - когда же приступят к работам, ведь 90 дней по договору о подключении давно прошли. Пригрозил пожаловаться в НКРЕ. Сегодня приехали копать, завтра поставят счетчик 4 Посилання на коментар Поділитися на інших сайтах More sharing options...
shneider_vova Опубліковано: 10 січня 2018 Автор Поділитись Опубліковано: 10 січня 2018 После получения стройпаспорта (а это был уже сентябрь, работы уже начались) занялся получением разрешения на строительство. Сейчас это просто подача декларации о начале строительных работ. Решил подавать в электронном виде через e-dabi.gov.ua/. Схема простая- заполняешь форму, подписываешь электронной подписью (делал подпись через приват24), отправляешь. Срок рассмотрения на сайте указан 3 дня, но по факту было 3 недели. Сначала пришел отказ: За результатами розгляду вказаного документа повідомляємо, що для відповідного внесення даних щодо повідомлення до єдиного реєстру документів, що дають право на виконання підготовчих та будівельних робіт і засвідчують прийняття в експлуатацію закінчених будівництвом об’єктів, відомостей про повернення на доопрацювання, відмову у видачі, скасування та анулювання зазначених документів, інформація в поданому повідомленні підлягає впорядкуванню: 1. відомості про земельну ділянку вказано не в повному обсязі, а саме – не в повному обсязі вказано відомості стосовно державної реєстрації права власності в Державному реєстрі прав (назва документу, що підтверджує державну реєстрацію); Образца заполнения на сайте нет. Попробовал позвонить в ГАСК, который выписал отказ - не захотели общаться по телефону, сказали приезжать с документами к ним лично. Жалоба на ГАСК в Киев привела к тому же результату. Поэтому поискал в интернете образцы, отправил еще раз.Через 3 недели получил подтверждение принятие декларации, через пару дней она появилась и в электронном реестре. Был уже конец октября, но хоть так... Мой экземпляр декларации прилагаю: Повідомлення(4).pdf 7 Посилання на коментар Поділитися на інших сайтах More sharing options...
shneider_vova Опубліковано: 15 січня 2018 Автор Поділитись Опубліковано: 15 січня 2018 Проект фундамента получился сложным. Основная проблема была в выемке и замене плодородного слоя толщиной 1 метр. Помимо стоимости выемки, вывоза, песка, засыпки и трамбовки, я сильно опасался за качество трамбовки и невозможность проконтролировать работ. Поэтому проектировщиком (с моего одобрения) было принято такое решение по фундаменту: 1) выполняется ленточный фундамент - опорная монолитная подушка, 2 ряда ФБС 2) выполняется плита пола, опирающаяся на ленту. Полная замена грунта под плитой не выполняется. При этом плита должна быть, с одной стороны, рассчитана на то, что рано или поздно грунт под ней может просесть, и она будет работать просто как плита перекрытия, а с другой стороны - защитный слой арматуры должен быть как для конструкций, непосредственно контактирующих с грунтом. Это привело к увеличению плиты пола до 200 мм и экстраармированию - только на плиту 150 м2 ушло 3500 кг арматуры -2 сетки 200*200 из 12 арматуры с усилением пролетных участков. Наверное, можно было бы найти более экономичное и элегантное решение, но я не хотел терять времени - поиск другого решения, расчет его экономических показателей - занял бы еще месяц, и я рисковал остаться без коробки на зиму - в то время я планировал успеть выгнать коробку и запустить отопление для продолжения работ в доме зимой. В целом оцениваю перерасход в 2-3 т.уе. Работы по фундаменту начались в конце августа с расчисти площадки строительства - были срезаны и выкорчеваны деревья, снят слой 300 мм по площади котлована и выкопаны траншеи под ленту экскаватором. Залита бетонная подготовка шириной 800 мм толщиной 100 мм по пленке: Затем из доски выставлялась опалубка под ленту - высота 300 мм, ширина 600 мм, армирование по 4 нитки 12 арматуры снизу и вверху. Пытались арматуру выставить на кирпичи, пресек и заставил установить фиксаторы: Объем ленты 15 м3, поэтому заливалась бетононасосом - заезд на участок только с одной стороны. В процессе заливки бетон вибрировался: 8 Посилання на коментар Поділитися на інших сайтах More sharing options...
Рекомендовані повідомлення
Створіть акаунт або увійдіть у нього для коментування
Ви маєте бути користувачем, щоб залишити коментар
Створити акаунт
Зареєструйтеся для отримання акаунта. Це просто!
Зареєструвати акаунтУвійти
Вже зареєстровані? Увійдіть тут.
Увійти зараз