Dendnepr Опубліковано: 20 лютого 2018 Поділитись Опубліковано: 20 лютого 2018 Добрый день всем. В этой теме буду описывать Нашу стройку. Год назад твердо решили перебраться из трехкомнатной квартиры в дом. Всю весну и все лето провели в поисках участка, дома. Готовые дома, которые нас устраивали стоили дорого или очень далеко или совсем без участка или проблемы с документами. Пересмотрели много всего. Три раза было: ВООООТТТТ!! Вот это наш вариант! Но очередная проблема с документами и наконец в конце августа мы нашли именно то, что искали. Участок в Самарском районе города Днепра. В 12 км от центра города (два светофора ). В 7-ми км от работы. И всего в 700 метрах от родителей. Родители не молодеют, все чаще требуют внимания и помощи. Был вариант ближе. прям соседний участок, но уж сильно близко и опять же проблемы с документами у хозяина. Итак. Участок куплен. Назад дороги нет :D Строить будем сами, без привлечения фирм-подрядчиков. На каждый вид работ будет приглашаться та или иная бригада. Ну и отец у меня в прошлом строитель. И многоквартирные дома строил и дачи и усадьбы (много и в разных регионах бывшего СССР). И себе дом построил. Проект готовый решили не покупать, все равно переделывать. Заказали только эскизный проект. Уверен, что квалификации отца и доступность информации позволит построить Наш первый дом. Задача-дом нужен с тремя спальнями для семьи (родители, сын, дочь) и одна спальня для тестя. Который пока живет не с нами, но тоже не молодеет. 16 Посилання на коментар Поділитися на інших сайтах More sharing options...
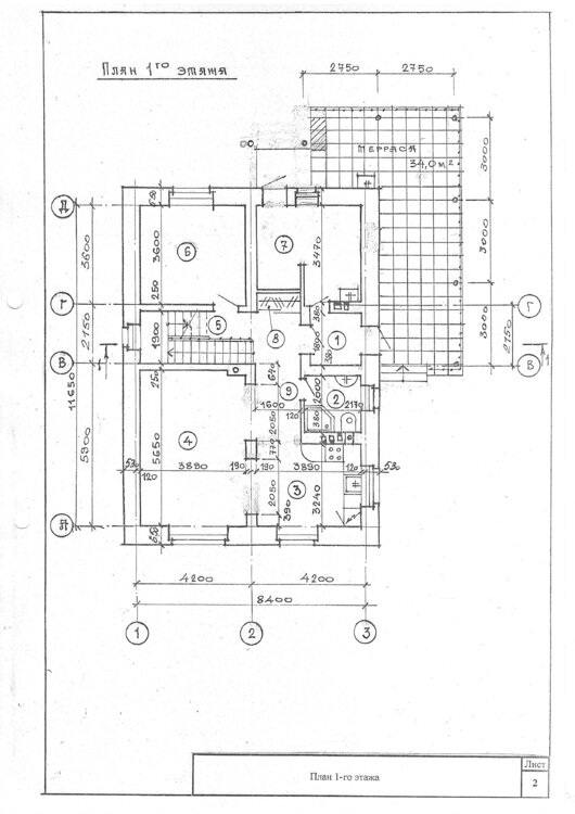
Dendnepr Опубліковано: 20 лютого 2018 Автор Поділитись Опубліковано: 20 лютого 2018 В силу разных причин и желаний пришли к таким планам этажей 5 Посилання на коментар Поділитися на інших сайтах More sharing options...
Dendnepr Опубліковано: 20 лютого 2018 Автор Поділитись Опубліковано: 20 лютого 2018 Фасады. Планируем светлый кирпич основной и темные кирпичные вставки Там где стена под терассой-обшить деревом до крыши 5 Посилання на коментар Поділитися на інших сайтах More sharing options...
Smotri Опубліковано: 20 лютого 2018 Поділитись Опубліковано: 20 лютого 2018 милейший проект очень хорошая внутренняя компоновка 1-го этажа 2-й тоже на уровне 1 Посилання на коментар Поділитися на інших сайтах More sharing options...
Gitan Опубліковано: 20 лютого 2018 Поділитись Опубліковано: 20 лютого 2018 Коридор на 2 эт узковат. Комната 12 это гардероб? Расширьте за его счет коридор. Посилання на коментар Поділитися на інших сайтах More sharing options...
Dendnepr Опубліковано: 20 лютого 2018 Автор Поділитись Опубліковано: 20 лютого 2018 Фундамент будет ленточный. Внизу армопояс (его посчитает конструктор), потом блоки ФБС (достались вместе с участком-как раз на один ряд хватает). Потом еще один армопояс/цоколь. Стены: Выбор пал на однослойную стену из газобетона Д400 500 мм. Вентзазор около 30-40 мм и кирпич облицовочный 120 мм. Изначально стоимость кирпичного фасада дороже, но эксплуатационные расходы потом нулевые. теплосопротивление 4,37 Плоскость максимального увлажнения-отсутсвует www.smartcalc.ru/thermocalc?&gp=599&rt=0&ct=0&os=0&ti=20&to=-10&hi=55&ho=85&ld0=150&le0=1<0=0&mm0=587&ld1=5000&le1=1<1=4&mm1=450&st1=600&em1=149&bw1=200&sw1=2&ld2=300&le2=1<2=0&mm2=425&ld3=1200&le3=1<3=4&mm3=174&st3=250&em3=149&bw3=65&sw3=10 Добавлено через 1 минуту Коридор на 2 эт узковат. Комната 12 это гардероб? Расширьте за его счет коридор. Это швейно/гладильная/гардеробная. Я забил себе техпомещение на первом этаже, жена на втором А по коридору-тоже кажется узковат. Но потом посмотрим-перегородки сразу городить не будем. Только несущие стены Посилання на коментар Поділитися на інших сайтах More sharing options...
Dendnepr Опубліковано: 20 лютого 2018 Автор Поділитись Опубліковано: 20 лютого 2018 Забыл добавить разрез и метраж комнат. В то сообщение вставить не могу Посилання на коментар Поділитися на інших сайтах More sharing options...
Dendnepr Опубліковано: 20 лютого 2018 Автор Поділитись Опубліковано: 20 лютого 2018 По наружному утеплению фундамента. Рекомендуют на 0,5 метра под землю. На всю глубину не нужно? или поглубже-заодно и гидроизоляция будет? Толщину тоже еще не выбрал наружного периметра 45 метров выходит. Посилання на коментар Поділитися на інших сайтах More sharing options...
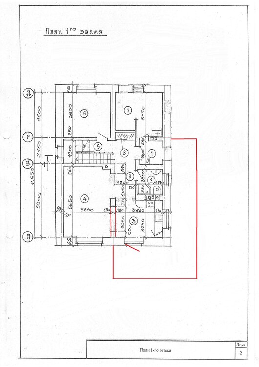
vadimv Опубліковано: 20 лютого 2018 Поділитись Опубліковано: 20 лютого 2018 перегородки сразу городить не будем. Только несущие стеныЯ бы центральную колонну между кухней и гостиной слегка расширил, чтобы на этой стенке поместился телевизор. 1 Посилання на коментар Поділитися на інших сайтах More sharing options...
shneider_vova Опубліковано: 20 лютого 2018 Поділитись Опубліковано: 20 лютого 2018 Утепление на 500 мм ниже отметки земли - норма дбн. Утепление всего фундамента - думаю, трата денег. Гидроизоляцией Эппс не будет - его ещё надо попробовать закрепить на фбс. По толщине утеплителя - на мой взгляд, оптимально 50. За коридор на 2 этаже согласен - напрашивается на увеличение. Ещё советую при возможности перерисовать проект в любом доступном 3д, чтобы увидеть возможные нестыковки. А то проекты на бумаге мне не нравятся 2 Посилання на коментар Поділитися на інших сайтах More sharing options...
Dendnepr Опубліковано: 20 лютого 2018 Автор Поділитись Опубліковано: 20 лютого 2018 Пытался и в скетчапе И в 5дпланере. Не получается Посилання на коментар Поділитися на інших сайтах More sharing options...
vadimv Опубліковано: 20 лютого 2018 Поділитись Опубліковано: 20 лютого 2018 Пытался и в скетчапе И в 5дпланере. Не получаетсяА в Архикаде? И лучше с мебелью. 1 Посилання на коментар Поділитися на інших сайтах More sharing options...
Dendnepr Опубліковано: 20 лютого 2018 Автор Поділитись Опубліковано: 20 лютого 2018 Архикад имеет бесплатную версию? Я принципиально не пользую ломаное. И музыку тоже пиратскую не слушаю 3 Посилання на коментар Поділитися на інших сайтах More sharing options...
shneider_vova Опубліковано: 20 лютого 2018 Поділитись Опубліковано: 20 лютого 2018 Архикад имеет бесплатную версию? Я принципиально не пользую ломаное. И музыку тоже пиратскую не слушаю Тяжело, Вам, батенька, придется.... :roll: Добавлено через 55 секунд Пытался и в скетчапе И в 5дпланере. Не получается Думаю, лучше помучаться в компьютере, чем в натуре потом в масштабе 1:1 строить модель 3 1 Посилання на коментар Поділитися на інших сайтах More sharing options...
vadimv Опубліковано: 20 лютого 2018 Поділитись Опубліковано: 20 лютого 2018 Архикад имеет бесплатную версию? Я принципиально не пользую ломаное. И музыку тоже пиратскую не слушаюТогда надо покупать. В нем все рисуется легко и просто. Посилання на коментар Поділитися на інших сайтах More sharing options...
AНДРЮША Опубліковано: 20 лютого 2018 Поділитись Опубліковано: 20 лютого 2018 Я принципиально не пользую ломаное. И музыку тоже пиратскую не слушаю Тогда из принципа вам надо нанимать официальную контору, которая работает по белому и платит своим работникам исключительно официальную зарплату, и закупает материалы так же и т.д. и т.п. Посилання на коментар Поділитися на інших сайтах More sharing options...
Dendnepr Опубліковано: 20 лютого 2018 Автор Поділитись Опубліковано: 20 лютого 2018 Тогда из принципа вам надо нанимать официальную контору, которая работает по белому и платит своим работникам исключительно официальную зарплату, и закупает материалы так же и т.д. и т.п. Почему? Каждый "шабашник" имеет право, вернее обязанность подать декларацию и уплатить налог с заработанных денег. Но вы тут путаете обязательство перед государством и обязательство перед правообладателем. Это разные вещи. 3 Посилання на коментар Поділитися на інших сайтах More sharing options...
Скромный прораб Опубліковано: 20 лютого 2018 Поділитись Опубліковано: 20 лютого 2018 Тогда надо покупать. В нем все рисуется легко и просто. Я бы перенес террасу, сделав выход на нее из кухни, что бы не идти на нее с чашкой кофе через парадный вход. Убрал бы колону, тем самым сделав гостиную чуть более изолированной, сохранив при этом концепцию открытого пространства. 1 Посилання на коментар Поділитися на інших сайтах More sharing options...
Dendnepr Опубліковано: 20 лютого 2018 Автор Поділитись Опубліковано: 20 лютого 2018 Кухня и зал выходят на сторону улицы. Терассы смещена вглубь двора. В сад. И категорически не хотим иметь дверь в дом мимо тамбура. Добавлено через 1 минуту А по колонне-сделаю ее чуть шире (1 метр) и повешу телек. Как раз 42 дюйма красиво влезет. 1 Посилання на коментар Поділитися на інших сайтах More sharing options...
Скромный прораб Опубліковано: 21 лютого 2018 Поділитись Опубліковано: 21 лютого 2018 И категорически не хотим иметь дверь в дом мимо тамбура. А по колонне-сделаю ее чуть шире (1 метр) и повешу телек. Как раз 42 дюйма красиво влезет. Хм... Для меня лично более чем странная и не понятно чем вызванная хотелка, опровергающая сам смысл наличия террасы в доме. Тогда уже лучше вообще от неё отказатся и смотреть в сторону беседки. А по колонне-сделаю ее чуть шире (1 метр) и повешу телек. Как раз 42 дюйма красиво влезет. Предложение отказаться от колонны было для того, что бы гостинная стала более уютной, а кухня более изолированной. Но ладно, это все Ваши хотелки и вкусы, и с ними нет смысла спорить. Еще, если позволите, лишь несколько советов из личного опыта: Фундамент будет ленточный. Внизу армопояс (его посчитает конструктор), потом блоки ФБС (достались вместе с участком-как раз на один ряд хватает). Потом еще один армопояс/цоколь. Стены: Выбор пал на однослойную стену из газобетона Д400 500 мм. Вентзазор около 30-40 мм и кирпич облицовочный 120 мм. Изначально стоимость кирпичного фасада дороже, но эксплуатационные расходы потом ниже. .................... Но потом посмотрим-перегородки сразу городить не будем. Только несущие стены Неплохой пирог, но что бы в будущем не посещать темы о трещинах на штукатурке или что бы не одолевали мысли типа (кстати не плохо почитать): Прочитал эту тему и похожие и выпал в осадок... ведь жена хочет стены покрасить...А от этих деформаций плитка не отвалится?. Трещины через обои не пролезут? Посоветовал бы немного изменить, а именно: внутренние стены - в кирпич, наружные - в пол кирпича, ГБ, облицовочный (возможна "половинка"). На бюджет критично не повлияет, а в будущем снимет очень много вопросов и возможных проблем. И последнее, не оставляйте на потом черновой пол. Не оставляйте на потом "подвигать" перегородки. Все комуникации, вводы и выводы, места под сантехнику закладываются и реализуются на этапе нулевого цикла - фундамент/цоколь/черновой пол, иначе в будущем ничего кроме проблем и головной боли. Проще говоря, приступая к строительству дома необходимо четко понимать где и что будет, начиная от установки унитаза, заканчивая местом для котла отопления. 3 Посилання на коментар Поділитися на інших сайтах More sharing options...
Dendnepr Опубліковано: 21 лютого 2018 Автор Поділитись Опубліковано: 21 лютого 2018 Хм... Для меня лично более чем странная и не понятно чем вызванная хотелка, опровергающая сам смысл наличия террасы в доме. Тогда уже лучше вообще от неё отказатся и смотреть в сторону беседки. Так это и есть Крыльцо/терраса/беседка. У знакомых подобная-оооочень понравилось Посилання на коментар Поділитися на інших сайтах More sharing options...
mastervovik Опубліковано: 21 лютого 2018 Поділитись Опубліковано: 21 лютого 2018 и наконец в конце августа мы нашли именно то, что искали. Участок в Самарском районе города Днепра. В 12 км от центра города (два светофора ). В 7-ми км от работы. И всего в 700 метрах от родителей. Родители не молодеют, все чаще требуют внимания и помощи. Был вариант ближе. прям соседний участок, но уж сильно близко и опять же проблемы с документами у хозяина. Итак. Участок куплен. Назад дороги нет :D Поздравляю вновь прибывших в самой интересной ветке! Днепр в последнее время судя по форуму прёт, это хороший знак! Самарский - почти земляк Где это 12км? Рыбальск, старая Игрень? Вроде ближе в Самарском ни чего нет Посилання на коментар Поділитися на інших сайтах More sharing options...
shneider_vova Опубліковано: 21 лютого 2018 Поділитись Опубліковано: 21 лютого 2018 Поздравляю вновь прибывших в самой интересной ветке! Днепр в последнее время судя по форуму прёт, это хороший знак! Самарский - почти земляк Где это 12км? Рыбальск, старая Игрень? Вроде ближе в Самарском ни чего нет Главное, чтобы не возле ЖД. Помню, когда еще хотел покупать, а не строить, смотрел там дом. Под 200 м2, ремонт частично был классный, и 60 тыс. Все супер, но ветка - в 20 метрах от дома. 1 1 Посилання на коментар Поділитися на інших сайтах More sharing options...
mastervovik Опубліковано: 21 лютого 2018 Поділитись Опубліковано: 21 лютого 2018 Главное, чтобы не возле ЖД. Помню, когда еще хотел покупать, а не строить, смотрел там дом. Под 200 м2, ремонт частично был классный, и 60 тыс. Все супер, но ветка - в 20 метрах от дома. Если в Рыбальске, то это подьезной путь ГРЭСа, там вагоны раз в пятилетку ходят, а если ксеньевка, то чуть ли не самое блатное и востребованное место в Самарском районе, центр жизни на Игрени (не считая сам Приднипровск) 1 Посилання на коментар Поділитися на інших сайтах More sharing options...
tansss Опубліковано: 21 лютого 2018 Поділитись Опубліковано: 21 лютого 2018 Днепр в последнее время судя по форуму прёт, это хороший знак! Та я вот тоже смотрю... Толи централизация в действии, толи Беню втихую раскулачили? Може пора переезжать? Подписался... 4 1 Посилання на коментар Поділитися на інших сайтах More sharing options...
Рекомендовані повідомлення
Створіть акаунт або увійдіть у нього для коментування
Ви маєте бути користувачем, щоб залишити коментар
Створити акаунт
Зареєструйтеся для отримання акаунта. Це просто!
Зареєструвати акаунтУвійти
Вже зареєстровані? Увійдіть тут.
Увійти зараз