Narval Опубліковано: 7 жовтня 2020 Поділитись Опубліковано: 7 жовтня 2020 Да. Смущают спальни (особенно гостевая) по 16-18 квадратов, гостинная на 54. Ванная комната на 8+ нам точно не нужна. На 3-х человек это кажется большим. вот тут я недопонял - у кого 100 и 140 квадратов? Добавлено через 1 минуту вот и пытаемся понять - хватит или нет. в квартире 1,9 коридор, но у него вдоль стены еще шкаф 0,6м глубиной - вроде дискомфорта не ощущаем за 7 лет жизни. Ваша основная ошибка, то что вы пытаетесь перенести ваши ощущения квартиры в дом. Сходите к друзьям у которых есть дом в гости с рулеткой . И померяйте. 7 метров ванна это маленькая ванна. 1.5 коридор - это узкий коридор. Спальня 16м - это нормальная спальня. Окно 1.8*1.5 - это нормальное окно, а не большое. Добавлено через 1 минуту Дом 2 комнаты, гостинная и кухня по наруже 100м Дом 3 комнаты и кухня по наруже 130-140м 2 Посилання на коментар Поділитися на інших сайтах More sharing options...
Astrolog_ua Опубліковано: 7 жовтня 2020 Автор Поділитись Опубліковано: 7 жовтня 2020 Дом 3 комнаты и кухня по наруже 130-140м по наружке у нас 13,6х10,2 = 139квадратов - вписываемся? Посилання на коментар Поділитися на інших сайтах More sharing options...
Narval Опубліковано: 7 жовтня 2020 Поділитись Опубліковано: 7 жовтня 2020 по наружке у нас 13,6х10,2 = 139квадратов - вписываемся? Да, норм. Посилання на коментар Поділитися на інших сайтах More sharing options...
ROS_SUMY Опубліковано: 7 жовтня 2020 Поділитись Опубліковано: 7 жовтня 2020 Да. Смущают спальни (особенно гостевая) по 16-18 квадратов, гостинная на 54. Ванная комната на 8+ нам точно не нужна. На 3-х человек это кажется большим. посмотрите в сторону Z273 1 Посилання на коментар Поділитися на інших сайтах More sharing options...
Astrolog_ua Опубліковано: 7 жовтня 2020 Автор Поділитись Опубліковано: 7 жовтня 2020 посмотрите в сторону Z273 смотрели в сторону 273а. фактически это все вариации вокруг z10. туда же можно добавить 24 проект... собственно наш набросок это и есть вариация всех этих проектов... меня больше волновали размеры\пропорции комнат, ширина коридора и туалет возле гостинной. может в каких-то мелочах можно реализовать оптимальнее. например развернуть туалет поперек или перенести его в дальний от гостинной угол спальни... Посилання на коментар Поділитися на інших сайтах More sharing options...
SergeyGM Опубліковано: 7 жовтня 2020 Поділитись Опубліковано: 7 жовтня 2020 Попробуйте слегка погрузиться в эргономику. Тогда многое станет на свои места и некоторые вопросы отпадут сами собой design001.ru/spravochnik/nachalo-dizajn-i-proektirovanie/101-ergonomika-nojfert 1 Посилання на коментар Поділитися на інших сайтах More sharing options...
Astrolog_ua Опубліковано: 7 жовтня 2020 Автор Поділитись Опубліковано: 7 жовтня 2020 слегка погрузиться :shock: Посилання на коментар Поділитися на інших сайтах More sharing options...
vadimv Опубліковано: 7 жовтня 2020 Поділитись Опубліковано: 7 жовтня 2020 :shock:А вы думали! Если сходу тяжело, есть краткий курс молодого бойца лекций по основам проектирования помещений: 1 Посилання на коментар Поділитися на інших сайтах More sharing options...
Astrolog_ua Опубліковано: 8 жовтня 2020 Автор Поділитись Опубліковано: 8 жовтня 2020 Давайте попробуем подойти с другой стороны. Из ключевого, что нам надо: 1) восточный вход, южная терраса 2) прямая кухня (не угловая) шириной 4,2-4,5м. 3) топочная/постирочная не менее 2х2 чтобы туда, помимо котла/бойлера/инженерки влезла стиралка и раскладная сушилка для белья. 4) 2 санузла (минимум раздельный санузел). 2) 2 комнаты нам и одна гостевая Какую бы планировку вы посоветовали? Посилання на коментар Поділитися на інших сайтах More sharing options...
Uk Опубліковано: 8 жовтня 2020 Поділитись Опубліковано: 8 жовтня 2020 Давайте попробуем подойти с другой стороны. Из ключевого, что нам надо: 1) восточный вход, южная терраса 2) прямая кухня (не угловая) шириной 4,2-4,5м. 3) топочная/постирочная не менее 2х2 чтобы туда, помимо котла/бойлера/инженерки влезла стиралка и раскладная сушилка для белья. 4) 2 санузла (минимум раздельный санузел). 2) 2 комнаты нам и одна гостевая Какую бы планировку вы посоветовали? Так это прямо мой дом 5 Посилання на коментар Поділитися на інших сайтах More sharing options...
aqva2020 Опубліковано: 8 жовтня 2020 Поділитись Опубліковано: 8 жовтня 2020 А точно-точно двоповерховий не хочете? Просто все що вам треба аж проситься на 2 поверхи) Мене ще в цих проектах смущає що санвузли ,кухня розкидані по різним кінцям будинку. А ще ж в котельню воду треба заводити.Не знаю чи враховуєте ви сантехніку, де у вас планується завід води в будинок, каналізація, як ви плануєте вести труби через весь будинок. Зважайте і на такий немаловажний нюанс. По площі, то спальня в 12 м.кв. це дууже невеличка кімната, ще пару квадратів взагалі лишніми не будуть. Коридор також меньше 2м.шириною робити не варто. Вітальня+кухня як на мене +/-40м.кв. в самий раз, понад 50 вже забагато для невеликої родини.Котельню хоча б метрів 6 кв. Всі ці котли, бойлери, фільтраційні системи, гідроакумулятори займають не так мало місця. Для пралки з сушкою місця може і не вистачити, а ще там часто зберігають пилососи, шкафчики з побут.хімією. По сан.вузлам якщо для одноповерхового будинку і трьох осіб я б робила просто роздільний. Ванна 6 квадратів це мінімум якщо плануєте і ванну і душову кабінку, і ще щоб умивальник нормальної ширини став. 2 Посилання на коментар Поділитися на інших сайтах More sharing options...
Astrolog_ua Опубліковано: 8 жовтня 2020 Автор Поділитись Опубліковано: 8 жовтня 2020 А точно-точно двоповерховий не хочете? вот прям вобще совсем-совсем не хотим Мене ще в цих проектах смущає що санвузли ,кухня розкидані по різним кінцям будинку. нас теж, але наче купа проєктів z10/273/67/7/24/69/307 мають +/- таку конфігурацію. Добавлено через 59 секунд Так это прямо мой дом прям интересно.... а можно размеры? Посилання на коментар Поділитися на інших сайтах More sharing options...
Uk Опубліковано: 8 жовтня 2020 Поділитись Опубліковано: 8 жовтня 2020 прям интересно.... а можно размеры? Вот картинка с размерами В моей теме есть больше деталей тема примерно так: "Одноэтажный 5 м до Одессы" 1 Посилання на коментар Поділитися на інших сайтах More sharing options...
Astrolog_ua Опубліковано: 8 жовтня 2020 Автор Поділитись Опубліковано: 8 жовтня 2020 Так это прямо мой дом Попытались взять за основу ваш дом. Попытались сделать котельную напротив входа и рядом санузел. А туалет между спален. Крутим-крутим - не выходит... тему вашу найду обязательно. Интересно посмотреть реализацию террасы + плюс ряд моментов внутри. Посилання на коментар Поділитися на інших сайтах More sharing options...
Narval Опубліковано: 9 жовтня 2020 Поділитись Опубліковано: 9 жовтня 2020 А это немного похоже на мой дом. Посилання на коментар Поділитися на інших сайтах More sharing options...
Astrolog_ua Опубліковано: 9 жовтня 2020 Автор Поділитись Опубліковано: 9 жовтня 2020 Вывели для себя ключевую проблему, т.к. кухню-студию хотим прямоугольную одинаковой ширины по всей длине, становится проблема разместить в жилом прямоугольнике 3 спальни+двойной санузел+ входную группу. Поэтому кроме Z10 ничего не лезет в голову. Есть мысль попробовать "перезагрузить голову" и жилую группу сделать не прямоугольнгой, а Г-образной. И за основу взять "Чарли". Основной вопрос, как грамотно спланировать вход в дом при восточной въездной группе. Посилання на коментар Поділитися на інших сайтах More sharing options...
Astrolog_ua Опубліковано: 10 жовтня 2020 Автор Поділитись Опубліковано: 10 жовтня 2020 Честно говоря - не айс. Дайте план с размерами всех стен - поясню почему Вроде бы ничего не забыл. Посилання на коментар Поділитися на інших сайтах More sharing options...
Татьяна5 Опубліковано: 10 жовтня 2020 Поділитись Опубліковано: 10 жовтня 2020 Забыли. Размеры всех заплечиков и проемов внутренних дверей. Посилання на коментар Поділитися на інших сайтах More sharing options...
Astrolog_ua Опубліковано: 10 жовтня 2020 Автор Поділитись Опубліковано: 10 жовтня 2020 Забыли. Размеры всех заплечиков и проемов внутренних дверей. в sweethome3d в сантиметрах: Наименование Ширина Глубина Высота Дверь, открытая 91,5 68 208,5 глубина дверной рамы 9,5 см размеры заплечиков не знаю Посилання на коментар Поділитися на інших сайтах More sharing options...
vadimv Опубліковано: 10 жовтня 2020 Поділитись Опубліковано: 10 жовтня 2020 Вроде бы ничего не забыл.ИМХО, с южной стороны три окна в гостиной - это многовато (тем более, там терраса). А с западной - ни одного. Посилання на коментар Поділитися на інших сайтах More sharing options...
Astrolog_ua Опубліковано: 10 жовтня 2020 Автор Поділитись Опубліковано: 10 жовтня 2020 ИМХО, с южной стороны три окна в гостиной - это многовато (тем более, там терраса). А с западной - ни одного. С западной 6 метров до 2-х этажного дома с чердаком - надо ли там окно? Посилання на коментар Поділитися на інших сайтах More sharing options...
vadimv Опубліковано: 10 жовтня 2020 Поділитись Опубліковано: 10 жовтня 2020 С западной 6 метров до 2-х этажного дома с чердаком - надо ли там окно?Не знаю, вам решать. Просто подскажу, что эти три окна под крышей террасы вам не дадут света в гостиной - там будет темно. Ну, чуть светлее со стороны восточного окна, не закрытого крышей. Т.е. смысла в тех трех онах - практически 0. У меня одно такое есть, на аватарке видно. 1 Посилання на коментар Поділитися на інших сайтах More sharing options...
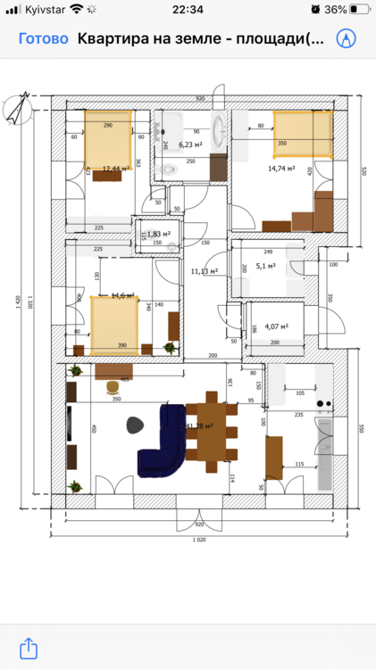
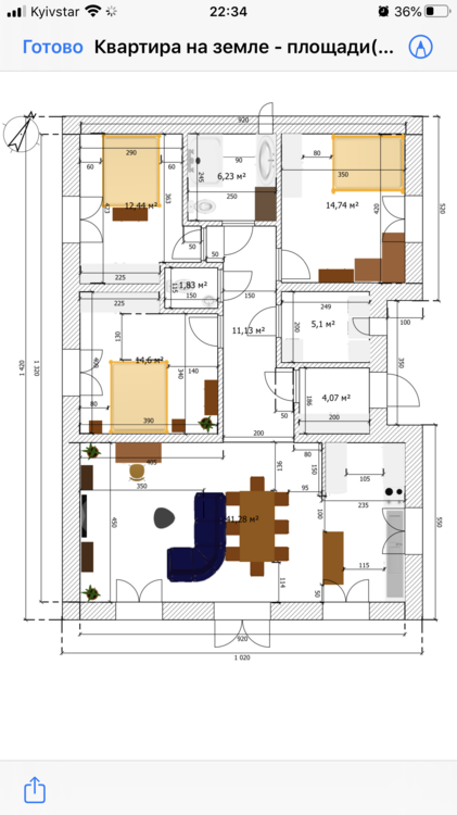
Astrolog_ua Опубліковано: 15 жовтня 2020 Автор Поділитись Опубліковано: 15 жовтня 2020 Продолжаем рисовать. Посилання на коментар Поділитися на інших сайтах More sharing options...
shneider_vova Опубліковано: 15 жовтня 2020 Поділитись Опубліковано: 15 жовтня 2020 Продолжаем рисовать. Почти Z10 получился , уменьшенный 1) под шкафы планируйте глубину 700 мм 2) ванны нет - точно? 3) обеденный стол вплотную к дивану - а как садится на эти стулья? 4) проход 50 см между островом и окном - маловато, имхо. 5) 105 см между противоположными шкафами - тоже маловато. также рассмотрите возможность сделать столешницу глубиной 700 мм. намного удобнее. Посилання на коментар Поділитися на інших сайтах More sharing options...
SergeyGM Опубліковано: 15 жовтня 2020 Поділитись Опубліковано: 15 жовтня 2020 А чего 700? Вроде ж стандарт шкафа 620 с дверями Посилання на коментар Поділитися на інших сайтах More sharing options...
Рекомендовані повідомлення
Створіть акаунт або увійдіть у нього для коментування
Ви маєте бути користувачем, щоб залишити коментар
Створити акаунт
Зареєструйтеся для отримання акаунта. Це просто!
Зареєструвати акаунтУвійти
Вже зареєстровані? Увійдіть тут.
Увійти зараз