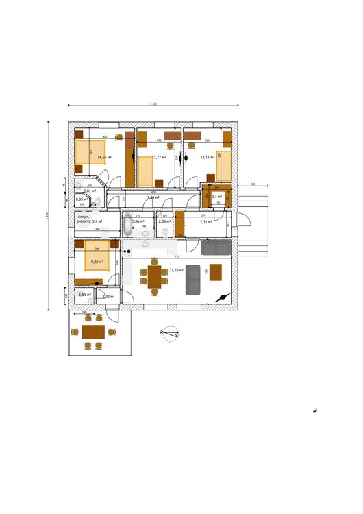
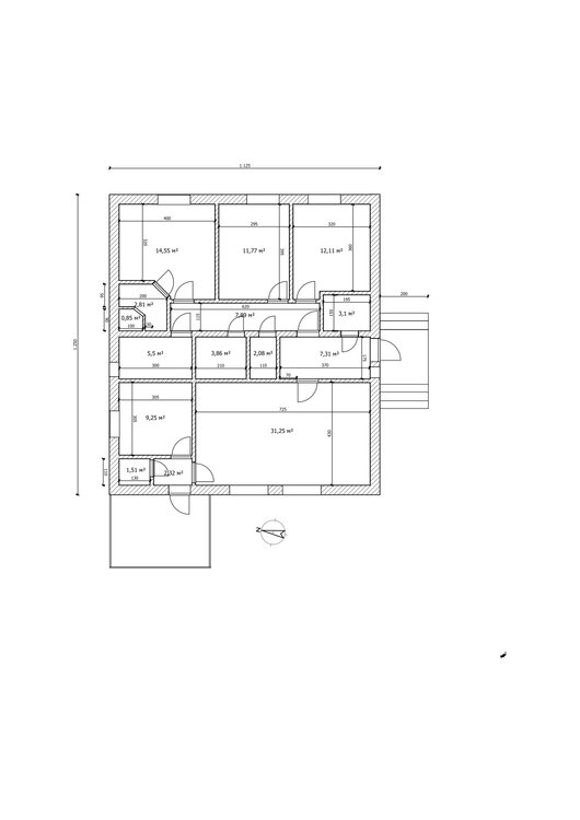
Ковал Опубліковано: 1 травня 2020 Поділитись Опубліковано: 1 травня 2020 (змінено) Добрый день. Планирую себе дом для постоянного проживания. Дано: я и жена + двое детей (3 и 6 лет отроду)... есть ещё пожилые родители, и, соответственно, перспектива необходимости их переселения лет так через пять к нам. Хочется: нам с женой отдельную комнату со своим санузлом, детям - комнату каждой... для родителей тоже комнату, но это потом ... ещё хочется котельную, в которую влезет тепловой аккумулятор + эл. котел + резервный ТТ котел... какую-то гардеробную... и всё это в 100 кв. м. ))) Получилось: 115 м.кв. и убогая гардеробная Посмотрите, плиз, может что-то подсоветуете по планировке... может я где-то ерунду сделал... в доме не жил, поэтому спрашиваю у бывалых Буду благодарен за конструктивную критику и советы... Змінено 1 травня 2020 користувачем Ковал Изменил вложенные файлы Посилання на коментар Поділитися на інших сайтах More sharing options...
vadimv Опубліковано: 2 травня 2020 Поділитись Опубліковано: 2 травня 2020 (змінено) Посмотрите, плиз, может что-то подсоветуете по планировке...Лично я бы убрал торчащий внутрь угол в детской 12.11 и добавил окно на южную сторону в гостиной. А так, в принципе, жить можно. Только лампочки вкрутить в темном коридоре. Змінено 2 травня 2020 користувачем vadimv 1 Посилання на коментар Поділитися на інших сайтах More sharing options...
Ковал Опубліковано: 2 травня 2020 Автор Поділитись Опубліковано: 2 травня 2020 (змінено) Да, коридор без окна - боль... но пока не нахожу другого варианта, видимо придется установить датчик движения и присутствия. Угол можно убрать двумя способами, передвинуть дверь или уменьшить гардеробную и передвинуть стену. Наверное, дверь... Про окно думал... думаю... но соседи говорят, что реально очень жарко Змінено 2 травня 2020 користувачем Ковал Посилання на коментар Поділитися на інших сайтах More sharing options...
vadimv Опубліковано: 2 травня 2020 Поділитись Опубліковано: 2 травня 2020 видимо придется установить датчик движения и присутствияНу не знаю, лично меня раздражает внезапно вспыхивающий свет и потом так же внезапно гаснущий. Лично я бы поставил пару светодиодных лент под потолком или по плинтусу, типа как аварийное освещение в проходе самолета. Оно мизер по стоимости электроэнергии будет тянуть и при этом будет не совсем темно. Или просто пару-тройку точечных светодиодных светильников. Посилання на коментар Поділитися на інших сайтах More sharing options...
Ковал Опубліковано: 2 травня 2020 Автор Поділитись Опубліковано: 2 травня 2020 Спасибо, тоже неплохая идея... Вот ещё мучаюсь с таким вопросом, достаточно ли места в котельной? Планируется аккум. ёмкость диаметром 1.1 м. (1000-1500 куб), эл. котел, резервный ТТ котел, думаю над целесообразностью рекуператора, т.е. возможно ещё рекуператор туда придется засунуть... дальше электрощит, и бойлер на 100 л. (а может больше) хочется туда впихнуть и конечно стиралку Бойлер и стиралку можно конечно перенести в туалет и ванную, соответственно, но хотелось бы не загромождать эти помещения. Из опыта можно сказать, запроектированной котельной достаточно? А, да... Высота помещения котельной - 3 м. Посилання на коментар Поділитися на інших сайтах More sharing options...
Ковал Опубліковано: 2 травня 2020 Автор Поділитись Опубліковано: 2 травня 2020 Ещё, что хотел сказать... я не держусь за этот проект, только потому, что сам его нарисовал... понимаю, что он явно не идеален... Из того, что мне не нравится в этом проекте: темный и длинный коридор 8 м.кв. и малая площадь мест хранения всякого хлама. Так что, если кто-то может что-то подсоветовать взамен, буду благодарен... Попытаюсь обобщить свои хотелки и то, от чего отказываться не хочу и чем могу поступиться. Поехали... Дано в задании: 1. дом для постоянного проживания, скорее всего из газоблока или др. кам. материалов 2. состав семьи: я, жена + двое детей (3 и 6 лет отроду) + перспектива забрать пожилых родителей (двое). 3. Авто пока одно, но с переездом из Киева в Хотяновку планируется приобретение авто для жены 4. Отопление, наверное радиаторы... про теплый пол пока в раздумьях. Рядом с домом проходит газ, но пока рассматриваю эл. котел с теплоаккумулятором + ТТ котел в резерве. 5. Вентиляция - пока не определился. 6. Канализация - септик. 7. Водопровод - скважина. 8. Участок. 10 сот, фасад - 20 м., глубина мин - 49 м, мак - 58 м. (см. рисунок) Хочется: 1. Комнаты: нам с женой отдельную комнату (13-15 м.кв) со своим санузлом (от сан узла не откажусь, такая вот у меня блаж ), детям - комнату каждой (10-12 м.кв). Для родителей тоже комнату (так что бы поместилось двое + какой-то шкаф) 2. Сан узлы. Про наш с женой уже написал, значит + общий сан узел, желательно отдельно туалет и ванная... девочек то двое, но с этим могу и подвинуться + гостевой туалет. 3. Котельная такая, что бы туда поместились тепловой аккумулятор + эл. котел + резервный ТТ котел... и всё это с обвязкой и желательно что бы в случае чего, можно было бы установить газовый котел в замен какого-то из выше указанных, т.е. обязательно окно + минимум 15 м.куб объем самого помещения. Вход в котельную желательно из помещений дома, но могу мириться и со входом с улицы. 4. Какую-то вменяемую гардеробную (по площади сам не определился... конечно хочется побольше ) 5. Гостиная с кухней квадратов 30, но тут +/- нужно смотреть как станет мебель, не особо принципиально, но 20 м.кв. тоже не подходит 6. Этажность: можно 1 или 2, лучше один... если два, то родительская комната обязательно на первом этаже 7. Гостевая и спальная зоны должны быть разделены (это принципиально) 8. Площадь не более 120 кв. м. , но лучше меньше и ближе к 100 кв.м Ну, вот как-то так Посилання на коментар Поділитися на інших сайтах More sharing options...
Gonchik Опубліковано: 2 травня 2020 Поділитись Опубліковано: 2 травня 2020 Сложите в столбик свои хотелки и посмотрите где там 100 м.) 2 Посилання на коментар Поділитися на інших сайтах More sharing options...
Ковал Опубліковано: 2 травня 2020 Автор Поділитись Опубліковано: 2 травня 2020 Сложил... получил 115 м.кв. (см. первый пост), но там почти 8 м.кв. коридора... если бы как-то пару-тройку метров от него откусить на гардеробную или котельную, было бы супер... Посилання на коментар Поділитися на інших сайтах More sharing options...
Narval Опубліковано: 3 травня 2020 Поділитись Опубліковано: 3 травня 2020 Вода центральная ? (Я к вопросу нужна ли водоподготовка) Если будет тт котел - делайте дверь на улицу - таскать дрова через весь дом - то еще удовольствие. Выход на терассу через тамбур - тоже как по мне решение так себе. Зайдите на сайт z500 посмотрите что там есть. Я думаю подберете себе плюс минус приемлимый вариант. Посилання на коментар Поділитися на інших сайтах More sharing options...
Ковал Опубліковано: 3 травня 2020 Автор Поділитись Опубліковано: 3 травня 2020 Вода - скважина, централизованного водопровода нет. ТТ котел - резервный. Основной - электро. Выход на террасу через тамбур - в чем минусы, можно подробнее? Спасибо. Посилання на коментар Поділитися на інших сайтах More sharing options...
Татьяна5 Опубліковано: 3 травня 2020 Поділитись Опубліковано: 3 травня 2020 Зачем при основном электро аккум емкость? Ваши хотелки - это 150 м2. 1 Посилання на коментар Поділитися на інших сайтах More sharing options...
Ковал Опубліковано: 3 травня 2020 Автор Поділитись Опубліковано: 3 травня 2020 Зачем при основном электро аккум емкость? спецтариф для домов, использующих для отопления электрику (90 коп/кВт до 3000 кВт в отоп. сезон) * ночной тариф (0,5). Ночью идет зарядка аккумулятора и отопление от котла, днем отопление от аккумулятора. Ваши хотелки - это 150 м2. ну, хотеть ведь не вредно, да? В первом моем посте планировка на 115 и там почти всё, что я хочу... но мне не нравится маленькая гардеробная и большой коридор (8м) без окна... вот я и решил подключить коллективный разум, может кто-то подскажет, как откусить от коридора 2-3 метра и прилепить их к гардеробной З.Ы. Там в прихожей (7,31 м) можно забрать место, выделенное под шкаф (около 70 см) и отдать его котельной. Этот вариант держу на случай если не получится разместить в котельной всё, что хочу... но, это, во-первых, этого не очень хотелось бы, а, во-вторых, это не решает тех вопросов, которые мне муляют )) Посилання на коментар Поділитися на інших сайтах More sharing options...
Татьяна5 Опубліковано: 3 травня 2020 Поділитись Опубліковано: 3 травня 2020 Электрокотел в ночном тарифе выгоднее загонять в теплый пол, а не в емкость. Об этом много написано. Планировка, простите, старой хаты. Если Вы расставите мебель в размерах, сантехприборы - будете неприятно удивлены реальными расстояния расстояниями, все кругом заставлено мебелью. Подумайте о варианте в будущем построить рядом домик - аналог 1к квартиры в 35 м2 для Ваших родителей. Эта четвертая комната вносит диссонанс в планировочные решения. Посилання на коментар Поділитися на інших сайтах More sharing options...
Ковал Опубліковано: 3 травня 2020 Автор Поділитись Опубліковано: 3 травня 2020 Подумайте о варианте в будущем построить рядом домик - аналог 1к квартиры в 35 м2 для Ваших родителей. Эта четвертая комната вносит диссонанс в планировочные решения. Да, я с Вами согласен про диссонанс... эта комната мне как бельмо в глазу, но построить отдельный дом - расходы более значительные, чем добавить комнату. Тем более, что комнату можно использовать до того, как переедут родители, как кабинет для супруги / гардеробную / гостевую (на выбор). Если Вы расставите мебель в размерах, сантехприборы - будете неприятно удивлены реальными расстояния расстояниями, все кругом заставлено мебелью.Вся мебель, сантехприборы и ак. емкость нарисованы в реальних размерах (котлы нарисовал от балды), даже оставил отступ от стен для штор Планировка, простите, старой хаты. Да, наверное, дом на шикарный особняк не похож... но мне бы жить с определенными удобствами, ослеплять широтой размаха мне уже никого не нужно Электрокотел в ночном тарифе выгоднее загонять в теплый пол, а не в емкость. Об этом много написано. буду благодарен, если дадите ссылочку. Посилання на коментар Поділитися на інших сайтах More sharing options...
Gonchik Опубліковано: 3 травня 2020 Поділитись Опубліковано: 3 травня 2020 Сложил... получил 115 м.кв. (см. первый пост), но там почти 8 м.кв. коридора... если бы как-то пару-тройку метров от него откусить на гардеробную или котельную, было бы супер... У Вас практически нет мест хранения. Кладовка с входом из кухни практически мастхэв на данный момент. Ходить на террасу, как писали выше - тот еще квест. В коридоре с открыванием дверей внутрь коридора и 4-мя проживающими кто-то регулярно будет получать по носу) В кухне-гостинной на 30 метров точно будет комфортно шестерым? Может мы, конечно, балованные, но 110 метров в один этаж и на троих не так уж и много, в самом деле. Родителей уже можно начинать учить ходить боком. В коридоре шириной 1.15 двое взрослых разойдутся только если один повернет корпус. Попробуйте. Гладить Ваша жена бует в спальне или в гостинной? Суммируем оборудование в топочной: электро, аккум емкость, место под ТТ, кусок стены под газовый, водоподготовка. В 5.5 м? рили? 2 Посилання на коментар Поділитися на інших сайтах More sharing options...
Ковал Опубліковано: 3 травня 2020 Автор Поділитись Опубліковано: 3 травня 2020 Вы во многом правы, но я, как и многие, ограничен в бюджете и позволить себе раздуть метраж до 150 не могу... Поэтому я и не претендую на супер продвинутый по дизайну и архитектуре дом. У Вас практически нет мест хранения. Кладовка с входом из кухни практически мастхэв на данный момент да, поэтому я и прошу совета на форуме, возможно кто-то имеет мысли, которые позволят, если не полностью исключить проблему, то хотя бы сгладить её. Ходить на террасу, как писали выше - тот еще квест. Уважаемые знатоки, я не упертый баран, я готов поверить, что это квест, но прошу мне объяснить почему... ну, что бы не просто джентльменам на-слово... Я исходил из того, что: 1. с террасы нужно будет ходить в сан узел и ходить через гостиную, как мне кажется, будет не удобно 2. тамбур отсечет холодный воздух зимой Повторюсь, это моя логика, но я не жил в доме (!) поэтому прошу совета... мне уже два человека сказали, что такая схема не есть гуд... я думаю над этим, но прошу объяснить почему... буду благодарен В коридоре с открыванием дверей внутрь коридора и 4-мя проживающими кто-то регулярно будет получать по носу) да, есть такая проблема, но вариант увеличить коридор мне не нравится... см. начало этого поста. Наверное с этим придется мириться, если нет других предложений... или сделать открывание дверей санузлов внутрь? Может мы, конечно, балованные, но 110 метров в один этаж и на троих не так уж и много, в самом деле. да нет.. это хорошо, если есть возможность построить и содержать такой дом... искренне говорю В кухне-гостинной на 30 метров точно будет комфортно шестерым? наверное не очень, но, во-первых, см. начало поста , во-вторых, я сомневаюсь, что все шестеро будут там присутствовать постоянно Родителей уже можно начинать учить ходить боком. если Вы о проходах между кроватью и стенами (по 70 см), то, думая над этим, пришел к выводу, что в этой спальне скорее следует поставить две отдельные кровати под стенки, тогда внутренний проход составит 305 - 90 -90 = 125 см. Гладить Ваша жена бует в спальне или в гостинной? вот! об этом я тоже думаю и не нахожу решения... Понимаю, что пока не заберу родителей, комната для них будет использоваться, как гардеробная, там же будет и глажка... потом... даже не знаю, наверное придется мучиться в спальнях. Суммируем оборудование в топочной: электро, аккум емкость, место под ТТ, кусок стены под газовый, водоподготовка. В 5.5 м? рили? при установке газового котла, если такое случится, необходимо будет демонтировать электро или ТТ котел (три таких котла, по нормам, не могут находиться в одном помещении, если я не ошибаюсь), скорее всего под нож пойдет ТТ котел. Это мои такие рассуждения на эту тему... если есть понимание, что описанное мной оборудование не войдет в такую котельную, то об этом прошу сказать... т.е. прошу профессионалов в этой области помочь мне с этим вопросом, буду благодарен. Посилання на коментар Поділитися на інших сайтах More sharing options...
Narval Опубліковано: 3 травня 2020 Поділитись Опубліковано: 3 травня 2020 Зимой на терассу вы ходить не будете. Тамбур там не нужен. Перенесите терассу к гостинной, гораздо важнее удобство носить тарелки. В доме должно быть удобно. Вы пытаетесь впихнуть невпихуемое. Правда посмотрите готовые решения. Если вы так упираетесь в обьем 115 м, рассмотрите вариант на 1 комнату меньше (девочки в одной комнате поживут, но нормальной). Или уберите из гостинной телевизор и уголок. Выбросьте из головы тт котел, оставьте электричество - сэкономите и площадь и деньги. 2 Посилання на коментар Поділитися на інших сайтах More sharing options...
Ковал Опубліковано: 3 травня 2020 Автор Поділитись Опубліковано: 3 травня 2020 Зимой на терассу вы ходить не будете. Тамбур там не нужен. Перенесите терассу к гостинной, гораздо важнее удобство носить тарелки. В доме должно быть удобно. мысль понятна, спасибо... походы в санузел через жилое помещение меня смущать не должны? (я здесь без иронии спрашиваю, уточняю, что бы не было недопонимания) Вы пытаетесь впихнуть невпихуемое. я думал, что все так хотят Правда посмотрите готовые решения. да смотрел я уже... если знаете какой-то проект, максимально подходящий под мои запросы, ткните меня в ссылку Если вы так упираетесь в обьем 115 м, рассмотрите вариант на 1 комнату меньше (девочки в одной комнате поживут, но нормальной). нет, не вариант... это сейчас они могут жить в одной комнате... дальше нужно будет их как раз разделять Или уберите из гостинной телевизор и уголок. можно с этого места подробнее... что предлагаете сделать, не уловил мысль... Выбросьте из головы тт котел, оставьте электричество - сэкономите и площадь и деньги. что предлагаете в резерв? Посилання на коментар Поділитися на інших сайтах More sharing options...
Narval Опубліковано: 3 травня 2020 Поділитись Опубліковано: 3 травня 2020 мысль понятна, спасибо... походы в санузел через жилое помещение меня смущать не должны? (я здесь без иронии спрашиваю, уточняю, что бы не было недопонимания) я думал, что все так хотят да смотрел я уже... если знаете какой-то проект, максимально подходящий под мои запросы, ткните меня в ссылку нет, не вариант... это сейчас они могут жить в одной комнате... дальше нужно будет их как раз разделять можно с этого места подробнее... что предлагаете сделать, не уловил мысль... что предлагаете в резерв? 1. Не должны смущать, если гости сидят в гостинной и ходят через нее в туалет так же не смущает? в крайнем случае выкопаете туалет уличный если что. 2. Нет - это только китайцы так телефоны делают - по параметрам есть все а пользоваться неудобно. 3. Незнаю, но по планировкам спросите вадима- он отлично рисует минимализм. 4. Могут. И это не проблема, у большинства людей живущих в квартирах дети живут в одной комнате. (У меня мальчики отлично прожили). Просто жить в комнате 9 квадратов одному и в комнате 20 в двоем разные ощущения. 5. Просто оставить кухню столовую 30м, без диванов 6. Ничего. Если не будет электричества ваш тт работать не будет. Дом за сутки не остынет, если правильно сделан. Тем более вы собираетесь вести газ. Посилання на коментар Поділитися на інших сайтах More sharing options...
vadimv Опубліковано: 3 травня 2020 Поділитись Опубліковано: 3 травня 2020 (змінено) по планировкам спросите вадима- он отлично рисует минимализмСпасибо, но у меня с этим вариантом пока не складывается, на одном этаже в 115 кв.м. Можно попробовать в два этажа 8х8х2=128 кв.м. Вот так примерно получается (террасу можно приделать внизу с выходом возле обеденного стола): Змінено 3 травня 2020 користувачем vadimv 4 Посилання на коментар Поділитися на інших сайтах More sharing options...
lug Опубліковано: 3 травня 2020 Поділитись Опубліковано: 3 травня 2020 или сделать открывание дверей санузлов внутрь? Раздвижка - просто, дешево и сердито. В хрущевках регулярно делаем - это хороший выход. У себя в доме тоже не решилась сделать дверь В коридор ИЗ санузла - сделала открывание внутрь. 6 лет спустя - переделала на раздвижку, бо бесит... 2 Посилання на коментар Поділитися на інших сайтах More sharing options...
Ковал Опубліковано: 3 травня 2020 Автор Поділитись Опубліковано: 3 травня 2020 1. Не должны смущать, если гости сидят в гостинной и ходят через нее в туалет так же не смущает? в крайнем случае выкопаете туалет уличный если что. ну, одно дело когда люди сидят в доме, как у нас принято без обуви, другое - поход с улицы... ну, может я и преувеличиваю проблему, ок. 2. Нет - это только китайцы так телефоны делают - по параметрам есть все а пользоваться неудобно. поменял самсунг на сяоми, не нарадуюсь... шутку понял, но вообще я имел ввиду, что наверное правильно стремиться выжать максимум 3. Незнаю, но по планировкам спросите вадима- он отлично рисует минимализм. ну, Вадим, как видно из его поста пока тоже не находит решения ребуса, но спасибо ему за участие в разборе задачки 4. Могут. И это не проблема, у большинства людей живущих в квартирах дети живут в одной комнате. (У меня мальчики отлично прожили). Просто жить в комнате 9 квадратов одному и в комнате 20 в двоем разные ощущения. давайте это не будем обсуждать, тут у нас кардинально разные мнения... я Вас услышал, но это не мой вариант 5. Просто оставить кухню столовую 30м, без диванов мысль понял, но тоже не моё 6. Ничего. Если не будет электричества ваш тт работать не будет. Дом за сутки не остынет, если правильно сделан. Тем более вы собираетесь вести газ. Работать он будет... систему управления посажу на дизель(бенз.)генератор, место для которого предусматривается под террасой... дай Бог, конечно, что бы не пригодился, но верится в это с трудом... Добавлено через 2 минуты Спасибо, но у меня с этим вариантом пока не складывается, на одном этаже в 115 кв.м. Можно попробовать в два этажа 8х8х2=128 кв.м. Вот так примерно получается (террасу можно приделать внизу с выходом возле обеденного стола): интересно получилось... буду покрутить... Добавлено через 1 минуту Раздвижка - просто, дешево и сердито. Отличная мысль, мне понравилось... дякую Посилання на коментар Поділитися на інших сайтах More sharing options...
vadimv Опубліковано: 3 травня 2020 Поділитись Опубліковано: 3 травня 2020 Вадим, как видно из его поста пока тоже не находит решения ребусаВам тут вариант нарисовали : https://www.stroimdom.com.ua/forum/showthread.php?t=237044 1 Посилання на коментар Поділитися на інших сайтах More sharing options...
lug Опубліковано: 3 травня 2020 Поділитись Опубліковано: 3 травня 2020 Раздвижка - просто, дешево и сердито. Отличная мысль, мне понравилось... дякую Задвигать дверь внутрь стены - требует очень точного проема, а это - трудоемкая и муторная работа. Намного проще и дешевле продумать планировку так, чтобы дверь каталась открыто вдоль стены. 2 Посилання на коментар Поділитися на інших сайтах More sharing options...
whisker Опубліковано: 3 травня 2020 Поділитись Опубліковано: 3 травня 2020 Поселить 3 поколения в одном уровне - утопическая идея. Все друг другу будут мешать. Есть пару планировок в теме "Одноэтажные дома без коридоров", но они никак не бюджетные. Рассмотрите двухуровневые варианты. По крайней мере, удастся реализовать личное пространство для каждого поколения. На три поколения необходимо иметь 2 кухни со всеми вытекающими. Про санузлы молчу. Срок эксплуатации дома для трёх поколений максимум 10 лет. Потом дети подрастают и начинают жить своей жизнью. И большой дом становится пустым. А его надо отапливать и убирать. Кто это будет делать? 1 Посилання на коментар Поділитися на інших сайтах More sharing options...
Рекомендовані повідомлення
Створіть акаунт або увійдіть у нього для коментування
Ви маєте бути користувачем, щоб залишити коментар
Створити акаунт
Зареєструйтеся для отримання акаунта. Це просто!
Зареєструвати акаунтУвійти
Вже зареєстровані? Увійдіть тут.
Увійти зараз