Юрий Киев Опубліковано: 26 квітня 2021 Поділитись Опубліковано: 26 квітня 2021 ну если не гнаться тогда почему не газоблок? а почему не газоблок? пусть будет газоблок. там все просто,но не стоит пренебрегать простыми и ясными правилами строительства коробки дома из данного материала и будет счастье. и да,не стоит гнаться за "удешевлением" и возводить коробку из блоков толщиной 300мм. п.с. недавно знакомый сразил наповал - собирается строить нехилый такой по размерам дуплекс себе и сестре и архитектор им там намалював проект из внешних стен 200 мм 2 Посилання на коментар Поділитися на інших сайтах More sharing options...
Фрай Опубліковано: 26 квітня 2021 Поділитись Опубліковано: 26 квітня 2021 Чем лично мне нравится/не нравится газоблок? 1. Тепло/прохладно, экономия на кондее 2. Вечная проблема с креплением тяжелых вещей, ТВ, Бойлер, шкафчики, карнизы. Очень легко картины. Саморез закрутил и все. А ещё как передаётся вибрация. Дверь гупнула, машина рядом пролетела в ямку попала - кровать на втором этаже подпрыгнула. )) Посилання на коментар Поділитися на інших сайтах More sharing options...
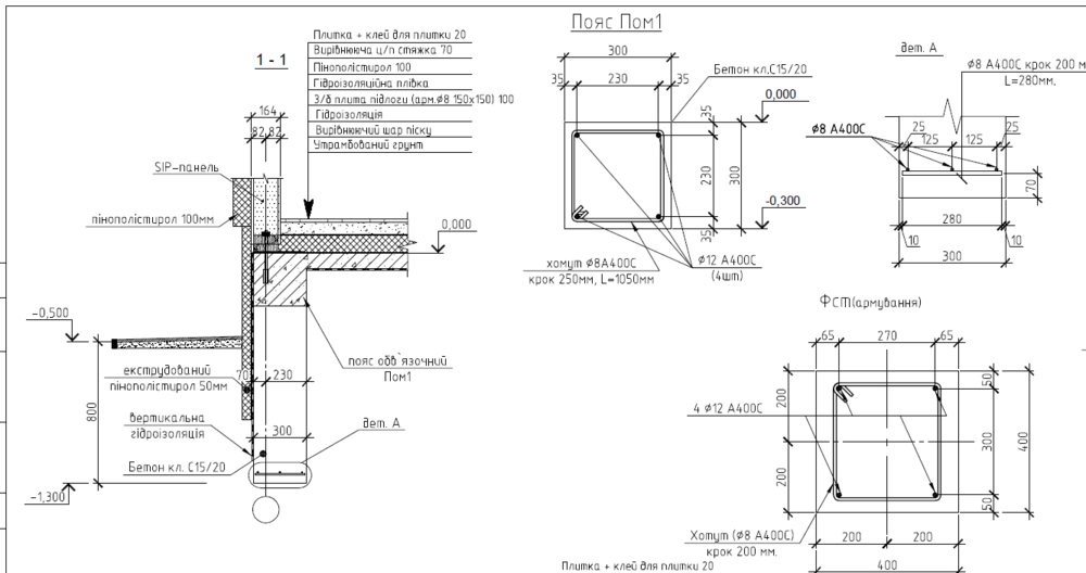
[Митяй] Опубліковано: 26 квітня 2021 Автор Поділитись Опубліковано: 26 квітня 2021 И что вы ожидаете услышать? Гадание на кофейной гуще? Без геологии и конструктива? Упадет/не упадет? Если СИП то в любом случае нагрузки будут в разы меньше чем каменный дом. по геологии, суглинок, вода далеко. Вот план. Посилання на коментар Поділитися на інших сайтах More sharing options...
shneider_vova Опубліковано: 26 квітня 2021 Поділитись Опубліковано: 26 квітня 2021 ;5305326']по геологии, суглинок, вода далеко. Вот план. ну а узел А Вы видите в чертеже? там есть армирование?! А теплых полов не будет? Посилання на коментар Поділитися на інших сайтах More sharing options...
air bus Опубліковано: 26 квітня 2021 Поділитись Опубліковано: 26 квітня 2021 Вечная проблема с креплением тяжелых вещей, якщо правильно обирати кріплення - проблем не буде. Посилання на коментар Поділитися на інших сайтах More sharing options...
MaxS Опубліковано: 26 квітня 2021 Поділитись Опубліковано: 26 квітня 2021 ;5305326']по геологии, суглинок, вода далеко. Вот план. В принципе, большинство сип-домов так и строят, лента сверху 300*500, или как у вас 400*400 и опирают на армированные столбы, залитые в лунки 1000-1200 глубиной. У вас вместо столбов сплошной бетон. Так что точно прочнее чем в большинстве аналогичных домов. У вас весь дом будет максимум тонн 30-40. Посилання на коментар Поділитися на інших сайтах More sharing options...
Фрай Опубліковано: 26 квітня 2021 Поділитись Опубліковано: 26 квітня 2021 якщо правильно обирати кріплення - проблем не буде. Як мені подобається коли кажуть правільная собака, правільноє ружйо, правільний проект, правільний строітєль. Тільки де ж їх взяти? Два місяці, якщо не більше телевізор стояв на тумбочці, варіантів перебрав масу, поки зміг купити кріплення якому довірився. А Бойлер? Мусив добудувати підсобку бо не ризикнув вішати у ванній, там навіть гачки починають хитатись через деякий час. Посилання на коментар Поділитися на інших сайтах More sharing options...
Юрий Киев Опубліковано: 26 квітня 2021 Поділитись Опубліковано: 26 квітня 2021 Як мені подобається коли кажуть правільная собака, правільноє ружйо, правільний проект, правільний строітєль. Тільки де ж їх взяти? Два місяці, якщо не більше телевізор стояв на тумбочці, варіантів перебрав масу, поки зміг купити кріплення якому довірився. А Бойлер? Мусив добудувати підсобку бо не ризикнув вішати у ванній, там навіть гачки починають хитатись через деякий час. я на ринку Юність купляв спецанкера для газобетону. ніяких проблем взагалі. 1 Посилання на коментар Поділитися на інших сайтах More sharing options...
air bus Опубліковано: 26 квітня 2021 Поділитись Опубліковано: 26 квітня 2021 Два місяці, якщо не більше телевізор стояв на тумбочці, варіантів перебрав масу, поки зміг купити кріплення якому довірився. А Бойлер? Мусив добудувати підсобку бо не ризикнув вішати у ванній, там навіть гачки починають хитатись через деякий час. Рамні дюбелі від різних виробників витримують на вирив у газоблоці 200-250 кг. якщо газоблок дуже низької якості - хімічний анкер: випробовував шпильку М10 змонтована на 110мм в газоблок - при 700 кг виривався шматок газоблоку. кілька рамних дюбелів чи хімічних анкерів -гарно вирішують ці проблеми Посилання на коментар Поділитися на інших сайтах More sharing options...
Фрай Опубліковано: 26 квітня 2021 Поділитись Опубліковано: 26 квітня 2021 Ніяких проблем це коли міцна монолітна структура І давно вже не купую нічого на Юності, там в основному закуповуються великі будівельні компанії. (Із слів не одного продавана на лотку) Посилання на коментар Поділитися на інших сайтах More sharing options...
air bus Опубліковано: 26 квітня 2021 Поділитись Опубліковано: 26 квітня 2021 Ніяких проблем це коли міцна монолітна структура був випадок коли колега натрапив на зовсім поганий газоблок - рамний дюбель не тримався взагалі. довелось свердлити отвір не 10мм, а 9мм - це допомогло. що до "Юності" - тут головне підхід: щось порадили - спитай назву продукту (чи коробку попросити подивитись), за назвою перейти на сайт виробника й дізнатись чи дійсно підходить. Чи навпаки - спочатку знайти в інтернеті кілька позицій і вже саму їх шукати в магазинах/ринках... Посилання на коментар Поділитися на інших сайтах More sharing options...
[Митяй] Опубліковано: 26 квітня 2021 Автор Поділитись Опубліковано: 26 квітня 2021 А теплых полов не будет? Будут. Это схема , именно пола не конечная Посилання на коментар Поділитися на інших сайтах More sharing options...
М.И. Опубліковано: 26 квітня 2021 Поділитись Опубліковано: 26 квітня 2021 ;5305261']И снова начался спор о СИП или не СИП. Всего один ответ о фундаментедоктор меня игнорируют (с) тут на форуме много замечательных специалистов все определяют на глаз и даже на слух некоторые успели отметится в теме фундамент это вопрос расчета фирма строит по проекту? надо спросить кто рассчитывал фундамент и посмотреть эти расчеты может там и бетона можно меньше Посилання на коментар Поділитися на інших сайтах More sharing options...
М.И. Опубліковано: 17 травня 2021 Поділитись Опубліковано: 17 травня 2021 ;5305396']Будут. Это схема , именно пола не конечнаяМитяй будете тему на форуме заводить? Посилання на коментар Поділитися на інших сайтах More sharing options...
Zurbagan Опубліковано: 14 червня 2021 Поділитись Опубліковано: 14 червня 2021 я бы не сказал,что прям так быстрее ,чем ,например,с газобетона. а когда говорят про какую-то "экономию" ,то это просто смешно. Смешно? А мне вот вообще ни капли не смешно. Или как обычно: - Теплопотери? - Не, не слышал... Подождите еще несколько лет и с такими темпами роста цен на энергоносители по "обычным, проверенным технологиям" вообще никто в своем уме строить не будет. вы согласны с тем,что какое-то время уходит на изготовление сиппанелей под конкретного покупателя? и єто тоже время ,которое можно прибавлять к времени постройки дома. более того сама так называемая "быстрота" не является критичной . ну не за неделю,а за две возведется коробка . намного быстрее? Вы на стройке (настоящей) когда были в последний раз? Есть красивая стройка со слов продавцов и есть печальная статистика реальных событий. У нас же строители все до единого высокообразованные, полные морали специалисты? Которые не живут на объектах и не испражняются, куда им вздумает? Не употребляют алкоголь, не едят и не курят? И, соответственно, не "хоронят" бутылки, мусор, бычки и т.п. в стяжку? Что такое околостроительные работы тоже неизвестно? Привезти, разгрузить, перенести несколько раз, замешать раствор и т.д. и т.п., проследить, сколько и чего успели "через забор перекинуть", а потом убирать и вывозить строительный мусор после всех этих работ мы же тоже не учитываем, правда? Про качели, когда один подряд валит вину на другой, почему стена не ровная, например, я даже вспоминать не хочу. Мне, как специалисту по ОВК, еще лет десять назад стали понятны все преимущества строительства домов из СИП. И еще года полтора ушло для того, чтобы разобраться во всех нюансах и понять, что недостатков у этой технологии нет. Есть особенности, которые необходимо учитывать как и при любом другом строительстве, а также есть куча страшилок, типа "СИП горит" или "СИП вредно", которые целиком и полностью придуманы непосредственными конкурентами - строителями по "старым, проверенным временем технологиям". 1 Посилання на коментар Поділитися на інших сайтах More sharing options...
silica Опубліковано: 14 червня 2021 Поділитись Опубліковано: 14 червня 2021 еще лет десять назад стали понятны все преимущества строительства домов из СИП. Полностью согласен. Я не строитель я простой инжинер, но просчитав все, я понял что СИП панели -одно из лучших решений. Единственный недостаток который я увидел ( и то он решаемый, а в случае одноэтажного строительства не принципиальный) ударный шум. По этому пораметру, да СИП однин из худших, но это и все. Посилання на коментар Поділитися на інших сайтах More sharing options...
Дощ Опубліковано: 14 червня 2021 Поділитись Опубліковано: 14 червня 2021 Та ні, з сіп це якась битовка або ангар, для тимчасового проживання/роботи Посилання на коментар Поділитися на інших сайтах More sharing options...
MaxS Опубліковано: 14 червня 2021 Поділитись Опубліковано: 14 червня 2021 Та ні, з сіп це якась битовка або ангар, для тимчасового проживання/роботи . Аби вкинути? Посилання на коментар Поділитися на інших сайтах More sharing options...
silica Опубліковано: 14 червня 2021 Поділитись Опубліковано: 14 червня 2021 Та ні, з сіп це якась битовка або ангар, для тимчасового проживання/роботи Ага... из СИП курятник только делать, а из газоблока только свинарник ( у меня на участке кстати такой свинарник от бывшего владельца остался) Посилання на коментар Поділитися на інших сайтах More sharing options...
razzil Опубліковано: 14 червня 2021 Поділитись Опубліковано: 14 червня 2021 СИП, кирпичные перестенки, монолитное перекрытие - вот идеальный рецепт 1 Посилання на коментар Поділитися на інших сайтах More sharing options...
ontoshko Опубліковано: 14 червня 2021 Поділитись Опубліковано: 14 червня 2021 Мне, как специалисту по ОВК, еще лет десять назад стали понятны все преимущества строительства домов из СИП. И еще года полтора ушло для того, чтобы разобраться во всех нюансах и понять, что недостатков у этой технологии нет. Есть особенности Перша і остання особливість - це каркасник. І ось думка людини з США, звідки це все добро СІП-каркасне до нас прийшло. Дуже показове. Якщо будинок будується на 10 років - то, теоретично з СІП нічого не відбудеться з високою імовірністю. Але через n-цадь років коли треба буде ремонтувати після підтікань, замокань, розтріскувань, ураганів (раптово, вони стали реальністю) - це остання технологія по якій я би будував. Різниця в ціні коробки - смішна на фоні всього - і того вона не варта. Посилання на коментар Поділитися на інших сайтах More sharing options...
vadimv Опубліковано: 14 червня 2021 Поділитись Опубліковано: 14 червня 2021 из СИП курятник только делать, а из газоблока только свинарник (а из кирпича - коровник ). 1 Посилання на коментар Поділитися на інших сайтах More sharing options...
MaxS Опубліковано: 14 червня 2021 Поділитись Опубліковано: 14 червня 2021 Перша і остання особливість - це каркасник. І ось думка людини з США, звідки це все добро СІП-каркасне до нас прийшло. Дуже показове. ну да, думка одного прикацапленого переважає будівельну галузь половини США щодо каркасників (які вже років 200 вони будують) і СІП. 2 Посилання на коментар Поділитися на інших сайтах More sharing options...
silica Опубліковано: 14 червня 2021 Поділитись Опубліковано: 14 червня 2021 І ось думка людини з США, звідки це все добро СІП-каркасне до нас прийшло. Дуже показове. Вы серьезно? Человек который сейчас топит только за газоблок(видно отстегивают производители много, это я про Петрушу). об...рая все остальные материалы? Или вы о квазиамериканце? Тим Керби Ну ну поищите в гугле про этого проходимца А если серьезно... подскажите пожалуйста американские проекты из газоблока. Даже апологет газобетона Глеб Грин говорит что газобетон потерпел в штатах фиаско. Я не против газобетона как такового. Каждый материал имеет право на жизнь. Но конкретно газобетон мне не нравится своей хрупкостью. Под него надо строить очень серьезный фундамент ( и дорогой) Я купил участок с домом из газобетона под снос. Дом одноэтажный но имеет две серьезные трещины. Нет желания выяснять почему (не нравится планировка) поэтому под снос. Добавлено через 8 минут И да если брать например YTONG то стоительство из блоков ниже чем D600 это нарушение технологии 3 Посилання на коментар Поділитися на інших сайтах More sharing options...
razzil Опубліковано: 14 червня 2021 Поділитись Опубліковано: 14 червня 2021 В штатах с каркасниками все понятно, их строят из того, что есть, и что подешевле. Было бы у них столько кирпичных заводов и заводов ЖБИ как у нас, то выбор не стоял бы. Посилання на коментар Поділитися на інших сайтах More sharing options...
Рекомендовані повідомлення
Створіть акаунт або увійдіть у нього для коментування
Ви маєте бути користувачем, щоб залишити коментар
Створити акаунт
Зареєструйтеся для отримання акаунта. Це просто!
Зареєструвати акаунтУвійти
Вже зареєстровані? Увійдіть тут.
Увійти зараз