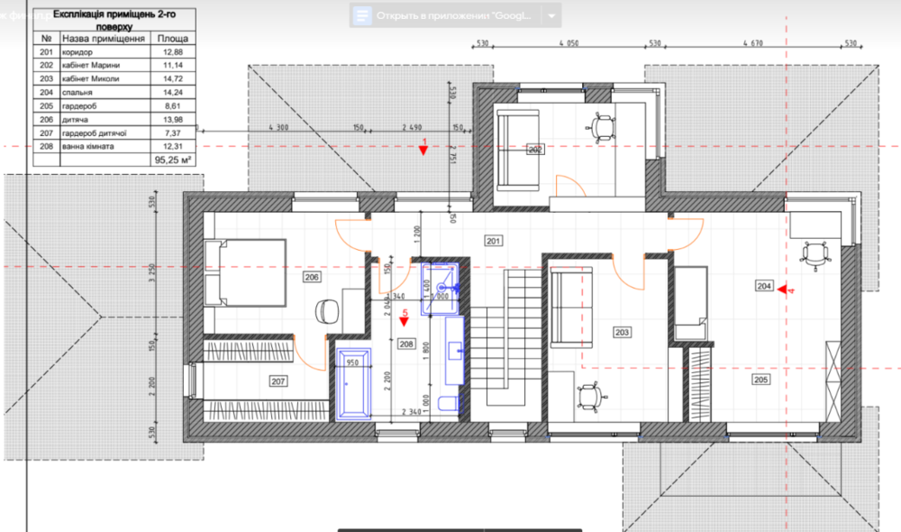
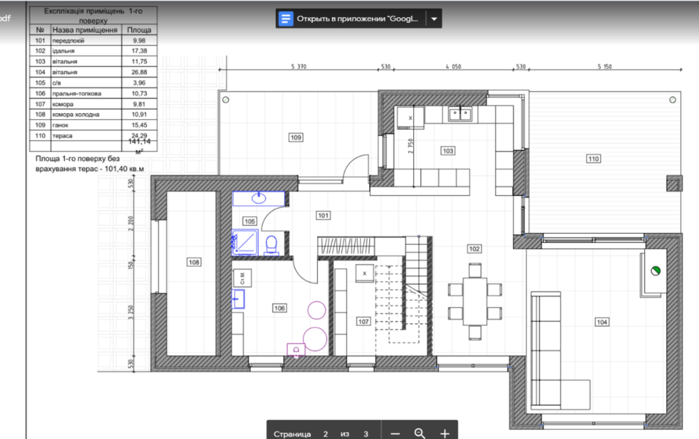
Astrobober Опубліковано: 10 січня 2022 Поділитись Опубліковано: 10 січня 2022 (змінено) Вітаю! Зараз знаходимось на етапі проектування будинку. Постало питання як це все опалювати, та ГВП. Вхідні дані: - двоповерховий будинок 180кв для постійного проживання - на першому поверсі - плитка, на другому поверсі - ламінат - також плануємо приточно-витяжну систему, скоріш за все тільки на другому поверсі. - газ проводити не планую - на першому поверсі є вікна в підлогу, тому скоріш за все треба буде встановлювати фанкойли - план будинку такий. Перший поверх: Другий поверх: Постало купа питань: 1) Дивлюся в бік теплонасосів. Але, як опалювати другий поверх? Кажуть, що теплу підлогу під ламінат краще не класти. 2) Скоріш за все зразу встановити теплонасос не вистачить коштів, тому для початку треба якесь альтернативне опалення. Електрокотел? 3) Беруть сумніви щодо лише одного виду опалення - електрики. Що робити у випадку аварії, або інших катаклізмів(в нашій країні можна очікувати чого завгодно)? Можливо додатково встановити пелетний котел? Чи є в цьому сенс? Як його втулити в систему обігріву? Чи потрібно для котла якесь окреме приміщення, або якісь інші вимоги? 4) Як обігрівати воду? Якщо насосом, то що тоді влітку робити, всеодно вмикати насос, адже опалення не буде. 5) Судячи з вищеописаних запитань, як краще організувати систему? PS. Був в одній конторі. Запропонували таке: Також додатково файнкойли на опалення да кондиціонування. Там також нарахували приблизно на 340к Але не можу оцінити наскільки це оптимальне рішення. Та й не зовсім розумію, як опалювати другий поверх, чи буде достатньо прогріватися вода в радіаторах, якщо не встановлювати теплу підлогу? Змінено 10 січня 2022 користувачем Astrobober Посилання на коментар Поділитися на інших сайтах More sharing options...
Crs Опубліковано: 11 січня 2022 Поділитись Опубліковано: 11 січня 2022 Якщо у вас багато питань і не лякають такі суми (ви ж розумієте, що це тільки "котел+бойлер" без самої системи опалення), я би запропонував звернутися до консультантів форума і замовити попередній проект для вашого будинку. За відносно невеликі гроші отримаєте розрахунки і відповіді на всі додаткові питання. Посилання на коментар Поділитися на інших сайтах More sharing options...
murava Опубліковано: 11 січня 2022 Поділитись Опубліковано: 11 січня 2022 Пока один вопрос : а сколько денег стоит заиметь газ? 1 Посилання на коментар Поділитися на інших сайтах More sharing options...
Astrobober Опубліковано: 11 січня 2022 Автор Поділитись Опубліковано: 11 січня 2022 41 минуту назад, Crs сказал: Якщо у вас багато питань і не лякають такі суми (ви ж розумієте, що це тільки "котел+бойлер" без самої системи опалення), я би запропонував звернутися до консультантів форума і замовити попередній проект для вашого будинку. За відносно невеликі гроші отримаєте розрахунки і відповіді на всі додаткові питання. та як раз і лякають, тому й поцікавився. А як зв'язатися з консультантами форуму? Посилання на коментар Поділитися на інших сайтах More sharing options...
Crs Опубліковано: 11 січня 2022 Поділитись Опубліковано: 11 січня 2022 2 Посилання на коментар Поділитися на інших сайтах More sharing options...
naupv Опубліковано: 12 січня 2022 Поділитись Опубліковано: 12 січня 2022 В 10.01.2022 в 22:54, Astrobober сказал: Вітаю! PS. Був в одній конторі. Запропонували таке: Схоже на казку про Буратіну 1 Посилання на коментар Поділитися на інших сайтах More sharing options...
Astrobober Опубліковано: 12 січня 2022 Автор Поділитись Опубліковано: 12 січня 2022 В 11.01.2022 в 12:54, Crs сказал: Спасибо. Связался с Сергеем. В эту тему думаю выкладывать процесс разработки для истории и может кому интересно\полезно будет 2 Посилання на коментар Поділитися на інших сайтах More sharing options...
Domikv Опубліковано: 12 січня 2022 Поділитись Опубліковано: 12 січня 2022 41 минуту назад, Astrobober сказал: Спасибо. Связался с Сергеем. В эту тему думаю выкладывать процесс разработки для истории и может кому интересно\полезно будет а сколько тянет предварительный проект? Посилання на коментар Поділитися на інших сайтах More sharing options...
Octopus7 Опубліковано: 8 лютого 2022 Поділитись Опубліковано: 8 лютого 2022 Доброго дня, шукаю тн повітря вода 6кВт в районі 4-5к$. Що порадите? придивляюсь до Midea, Samsung, Immergas. Посилання на коментар Поділитися на інших сайтах More sharing options...
Пролин Опубліковано: 8 лютого 2022 Поділитись Опубліковано: 8 лютого 2022 38 минут назад, Octopus7 сказал: шукаю тн повітря вода 6кВт в районі 4-5к$. Що порадите? Midea MHC V7W. 4,8кВт при -7С/35С. Посилання на коментар Поділитися на інших сайтах More sharing options...
Vit3f Опубліковано: 10 лютого 2022 Поділитись Опубліковано: 10 лютого 2022 (змінено) 08.02.2022 в 13:33, Octopus7 сказав: Доброго дня, шукаю тн повітря вода 6кВт в районі 4-5к$. Що порадите? придивляюсь до Midea, Samsung, Immergas. А чим октопус не догодив?😉 www.octopus.ua/ РС чи вже не купують? Змінено 10 лютого 2022 користувачем Vit3f Посилання на коментар Поділитися на інших сайтах More sharing options...
volomoto Опубліковано: 10 лютого 2022 Поділитись Опубліковано: 10 лютого 2022 1 година тому, Vit3f сказав: чи вже не купують? Загалом висока ціна і низький СОР робить його не таким привабливим на фоні інших 1 Посилання на коментар Поділитися на інших сайтах More sharing options...
Vit3f Опубліковано: 10 лютого 2022 Поділитись Опубліковано: 10 лютого 2022 1 година тому, volomoto сказав: Загалом висока ціна і низький СОР робить його не таким привабливим на фоні інших У того хто запитував нік Octopus7, мені здалось це дивним. 1 1 Посилання на коментар Поділитися на інших сайтах More sharing options...
volomoto Опубліковано: 10 лютого 2022 Поділитись Опубліковано: 10 лютого 2022 29 хвилин тому, Vit3f сказав: У того хто запитував нік Octopus7, мені здалось це дивним. Ох, я на це не звернув увагу 1 Посилання на коментар Поділитися на інших сайтах More sharing options...
Рекомендовані повідомлення
Створіть акаунт або увійдіть у нього для коментування
Ви маєте бути користувачем, щоб залишити коментар
Створити акаунт
Зареєструйтеся для отримання акаунта. Це просто!
Зареєструвати акаунтУвійти
Вже зареєстровані? Увійдіть тут.
Увійти зараз