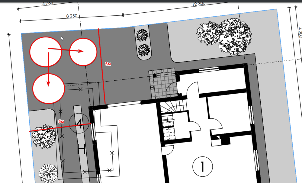
Андрій Миколайович Опубліковано: 15 березня 2023 Поділитись Опубліковано: 15 березня 2023 Привіт! Планую робити септик з переливом із двох колодців. Маю місце біля дороги, не знаю як правильно розмістити - чи вздовж дороги чи вглиб ділянки Посилання на коментар Поділитися на інших сайтах More sharing options...
Drosselbeere Опубліковано: 16 березня 2023 Поділитись Опубліковано: 16 березня 2023 6 годин тому, Андрій Миколайович сказав: Маю місце біля дороги, не знаю як правильно розмістити - чи вздовж дороги чи вглиб ділянки по суті це не має значення. однозначно фільтруючси колодязь зробив би якмога далі від фундаменту будинка. Посилання на коментар Поділитися на інших сайтах More sharing options...
Андрій Миколайович Опубліковано: 16 березня 2023 Автор Поділитись Опубліковано: 16 березня 2023 nen Просто тут має бути в'їзд і думаю чи не критично що колодязь буде під колесом.... Посилання на коментар Поділитися на інших сайтах More sharing options...
Фрай Опубліковано: 16 березня 2023 Поділитись Опубліковано: 16 березня 2023 2 часа назад, Андрій Миколайович сказал: Просто тут має бути в'їзд і думаю чи не критично що колодязь буде під колесом.... Якщо металевий то вшистко єдно, всі інші люки прогнуться. 2 Посилання на коментар Поділитися на інших сайтах More sharing options...
Ripit Aftami Опубліковано: 29 березня 2023 Поділитись Опубліковано: 29 березня 2023 (змінено) Підкажіть по розміщенню септика, чи можу я його зробити за межами своєї ділянки там де підїздна зона? Змінено 29 березня 2023 користувачем Ripit Aftami Посилання на коментар Поділитися на інших сайтах More sharing options...
BugS Опубліковано: 30 березня 2023 Поділитись Опубліковано: 30 березня 2023 13 годин тому, Ripit Aftami сказав: Підкажіть по розміщенню септика, чи можу я його зробити за межами своєї ділянки там де підїздна зона? дивне питання. Чи можна щось робити на землі, яка вам не належить? Посилання на коментар Поділитися на інших сайтах More sharing options...
Ripit Aftami Опубліковано: 30 березня 2023 Поділитись Опубліковано: 30 березня 2023 6 минут назад, BugS сказал: дивне питання. Чи можна щось робити на землі, яка вам не належить? Нічого дивного, у багатьох сусідів так, щоб була можливість відкачувати септик без присутності хазяїна, подзвонив замовив відкачку скинув гроші на карту. Посилання на коментар Поділитися на інших сайтах More sharing options...
BugS Опубліковано: 30 березня 2023 Поділитись Опубліковано: 30 березня 2023 4 хвилини тому, Ripit Aftami сказав: Нічого дивного, у багатьох сусідів так, щоб була можливість відкачувати септик без присутності хазяїна, подзвонив замовив відкачку скинув гроші на карту. а ще в Києві балкони прибудовують до хрущовок на 1 поверхах, бо це зручно отримати додаткову житлову площу на загальній прибудинковій території. І на газонах паркуватись також зручно, всі так роблять. 1 Посилання на коментар Поділитися на інших сайтах More sharing options...
naupv Опубліковано: 30 березня 2023 Поділитись Опубліковано: 30 березня 2023 2 часа назад, BugS сказал: дивне питання. Чи можна щось робити на землі, яка вам не належить? Це на ваший розсуд і ризик. Часи колись можуть змінитись. Ваша ділянка, яку ви можете обробляти- квіти, газони (не дерева) 80см від паркану. 1 Посилання на коментар Поділитися на інших сайтах More sharing options...
Андрій Миколайович Опубліковано: 31 березня 2023 Автор Поділитись Опубліковано: 31 березня 2023 Немає там що визначатись, треба взяти і зробити )) 1 Посилання на коментар Поділитися на інших сайтах More sharing options...
naupv Опубліковано: 31 березня 2023 Поділитись Опубліковано: 31 березня 2023 Ми коли робимо септики, беремо JCB, економія. Він і копає, і сам ставить кільця, і щебінь насипає в дренаж, і закопує. При цьому маніпулятор не задержується, скинув на сторону і поїхав. 3 Посилання на коментар Поділитися на інших сайтах More sharing options...
Рекомендовані повідомлення
Створіть акаунт або увійдіть у нього для коментування
Ви маєте бути користувачем, щоб залишити коментар
Створити акаунт
Зареєструйтеся для отримання акаунта. Це просто!
Зареєструвати акаунтУвійти
Вже зареєстровані? Увійдіть тут.
Увійти зараз