MAESTRO DNEPR Опубліковано: 29 березня 2023 Поділитись Опубліковано: 29 березня 2023 14 часов назад, Ripit Aftami сказал: Сориентируйте пожалуйста по стоимости фундамента под ключ... Серьёзно?)) Вот так просто?))... куда ткнуть пальцем? 3 Посилання на коментар Поділитися на інших сайтах More sharing options...
Ripit Aftami Опубліковано: 29 березня 2023 Автор Поділитись Опубліковано: 29 березня 2023 2 минуты назад, MAESTRO DNEPR сказал: Серьёзно?)) Вот так просто?))... куда ткнуть пальцем? Упражняетесь в остроумии) ну ну Посилання на коментар Поділитися на інших сайтах More sharing options...
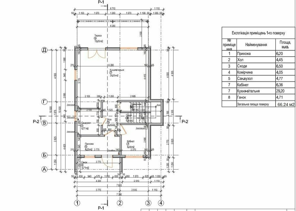
Ripit Aftami Опубліковано: 29 березня 2023 Автор Поділитись Опубліковано: 29 березня 2023 Сориентируйте пожалуйста по стоимости фундамента под ключ в киевской обл при такой планировке первого этажа, фундамент ленточный, грунт песок. 1 Посилання на коментар Поділитися на інших сайтах More sharing options...
MAESTRO DNEPR Опубліковано: 29 березня 2023 Поділитись Опубліковано: 29 березня 2023 17 минут назад, Ripit Aftami сказал: Сориентируйте пожалуйста по стоимости фундамента А это Вы к кому обращаетесь? Кто должен, в Вашем представлении, Вас ориентировать? Может добрые эльфы?)) Посилання на коментар Поділитися на інших сайтах More sharing options...
DimaF Опубліковано: 29 березня 2023 Поділитись Опубліковано: 29 березня 2023 Цитата Сориентируйте пожалуйста по стоимости фундамента под ключ С таким подходом лучше искать что то готовое) 1 Посилання на коментар Поділитися на інших сайтах More sharing options...
Ripit Aftami Опубліковано: 29 березня 2023 Автор Поділитись Опубліковано: 29 березня 2023 3 минуты назад, MAESTRO DNEPR сказал: А это Вы к кому обращаетесь? Кто должен, в Вашем представлении, Вас ориентировать? Может добрые эльфы?)) Не придумывайте того чего не существует. Где я написал что мне кто то должен? Обращался явно не к Вам, проходите мимо. Посилання на коментар Поділитися на інших сайтах More sharing options...
Ripit Aftami Опубліковано: 29 березня 2023 Автор Поділитись Опубліковано: 29 березня 2023 1 минуту назад, DimaF сказал: С таким подходом лучше искать что то готовое) Обоснуйте пожалуйста, с каким таким подходом? Я например знаю точную стоимость этого фундамента от компании которая строит эти дома, мне интересно узнать насколько их цена завышена. Посилання на коментар Поділитися на інших сайтах More sharing options...
DimaF Опубліковано: 29 березня 2023 Поділитись Опубліковано: 29 березня 2023 6 минут назад, Ripit Aftami сказал: Обоснуйте пожалуйста, с каким таким подходом? Я например знаю точную стоимость этого фундамента от компании которая строит эти дома, мне интересно узнать насколько их цена завышена. Вы сами ответили на свой вопрос. Я начинал также, по итогу купил коробку без отделки. Посилання на коментар Поділитися на інших сайтах More sharing options...
Ripit Aftami Опубліковано: 29 березня 2023 Автор Поділитись Опубліковано: 29 березня 2023 2 минуты назад, DimaF сказал: Вы сами ответили на свой вопрос. Я начинал также, по итогу купил коробку без отделки. Я уже купил участок, так что коробка уже точно не вариант. Посилання на коментар Поділитися на інших сайтах More sharing options...
tansss Опубліковано: 29 березня 2023 Поділитись Опубліковано: 29 березня 2023 37 минут назад, Ripit Aftami сказал: Сориентируйте пожалуйста по стоимости фундамента под ключ в киевской обл при такой планировке первого этажа, фундамент ленточный, грунт песок. Тыщща... Поясню Вам почему тролят на примере... Сориентируйте плз по стоимости кило колбасы в киевской области, из мяса? 1 Посилання на коментар Поділитися на інших сайтах More sharing options...
DimaF Опубліковано: 29 березня 2023 Поділитись Опубліковано: 29 березня 2023 1 минуту назад, Ripit Aftami сказал: Я уже купил участок, так что коробка уже точно не вариант. Ну тогда ищите бригаду которые вам построят. Ибо любые попытки привлечения серьезных организаций приведут к удивлению по цене. Посилання на коментар Поділитися на інших сайтах More sharing options...
tansss Опубліковано: 29 березня 2023 Поділитись Опубліковано: 29 березня 2023 2 минуты назад, DimaF сказал: Ну тогда ищите бригаду которые вам построят. Ибо любые попытки привлечения серьезных организаций приведут к удивлению по цене. Для ТС... Вот тут правильный совет даден, ищите кто будет строить, а строить будут кто как умеет и результат будет ооочень разный как по цене так и по наполнению и ттх. Все как в примере с колбасой 5 Посилання на коментар Поділитися на інших сайтах More sharing options...
ЯД Опубліковано: 29 березня 2023 Поділитись Опубліковано: 29 березня 2023 1 година тому, Ripit Aftami сказав: Сориентируйте пожалуйста по стоимости фундамента под ключ в киевской обл при такой планировке первого этажа, фундамент ленточный, грунт песок. Для подсчета стоимости фундамента я думаю надо кинуть конструктив фундамента, а не планировку первого этажа. Это как сказать стоимость ремонта подвески по салону авто. если конструктива нема - заказать у кого-либо 2 Посилання на коментар Поділитися на інших сайтах More sharing options...
Astrolog_ua Опубліковано: 29 березня 2023 Поділитись Опубліковано: 29 березня 2023 (змінено) 1 час назад, Ripit Aftami сказал: Обоснуйте пожалуйста, с каким таким подходом? Я например знаю точную стоимость этого фундамента от компании которая строит эти дома, мне интересно узнать насколько их цена завышена. стрічковий фундамент - поняття загальне. потрібна техкарта - тоді хтось щось порахує чи хоч зорієнтує. - глибина фундаменту - ширина фундаменту - довжина фундаменту - арматура (товщина, марка сталі, скильки рядків, скільки перемичок) - марка бетона, якість бетона (гівняний бетон однієї марки може від нормального відрізнятись відсотків так на 30%). а потім підуть такі речі як, якість виконання робіт, додаткові матеріали (лопати, тачки, круги обрізні, цвяхи, опалубка, дріт в'язальний), грунтові роботи, розгрузочно-погрузочні, доставка, додаткові роботи... тут потім і вилазять оті + 30-50% від кошториса. ... раджу рахувати (і робити) коробку цілком і в одному місці. Змінено 29 березня 2023 користувачем Astrolog_ua 4 Посилання на коментар Поділитися на інших сайтах More sharing options...
Ripit Aftami Опубліковано: 29 березня 2023 Автор Поділитись Опубліковано: 29 березня 2023 Всем ответившим по делу, большое спасибо, получу проект на руки потом продолжим Посилання на коментар Поділитися на інших сайтах More sharing options...
mib Опубліковано: 29 березня 2023 Поділитись Опубліковано: 29 березня 2023 13 часов назад, Ripit Aftami сказал: Обоснуйте пожалуйста, с каким таким подходом? Я например знаю точную стоимость этого фундамента от компании которая строит эти дома, мне интересно узнать насколько их цена завышена. Если вы про Евродом, то скорее всего все альтернативы будут дороже ибо они как правило делают не совсем ленту, скорее это можно назвать ростверкомина сваях, но тоже нельзя ибо он частично заглублен в грунт, я просто сам живу в доме от евродома, но может когечно вам и полноценную ленту посчитали Хотя как бы это было не странно на таком вот свайно ростверковом стоят сотни их домов как из сип так и из газоветона 1 Посилання на коментар Поділитися на інших сайтах More sharing options...
tansss Опубліковано: 30 березня 2023 Поділитись Опубліковано: 30 березня 2023 14 часов назад, mib сказал: Если вы про Евродом, то скорее всего все альтернативы будут дороже ибо они как правило делают не совсем ленту, скорее это можно назвать ростверкомина сваях, но тоже нельзя ибо он частично заглублен в грунт, я просто сам живу в доме от евродома, но может когечно вам и полноценную ленту посчитали Хотя как бы это было не странно на таком вот свайно ростверковом стоят сотни их домов как из сип так и из газоветона Свайно-ростверковый абсолютно рабочий тип фундаментов. А для каркасников и сип вааще самое оно Остались нюансы с вариантами конструкции полов. Вот скажите, если ростверк утеплить и залить стяжку с армированием и ТП по экструдеру между ленточками что получится в итоге :)? 1 Посилання на коментар Поділитися на інших сайтах More sharing options...
mib Опубліковано: 30 березня 2023 Поділитись Опубліковано: 30 березня 2023 12 минут назад, tansss сказал: Свайно-ростверковый абсолютно рабочий тип фундаментов. А для каркасников и сип вааще самое оно Я не сильно большой знаток но в исполнении ЕД ростверк заглублен на 30 см и 30 над землей, по идее он в земле быть не должен 14 минут назад, tansss сказал: Остались нюансы с вариантами конструкции полов. Собственно потому что он заглублен никаких нюансов нет, обратная засыпка песком и сверху черновая стяжка до 10 см 15 минут назад, tansss сказал: Вот скажите, если ростверк утеплить и залить стяжку с армированием и ТП по экструдеру между ленточками что получится в итоге :)? В моем случае если сетку поменять на арматуру, по сути ушп внутри ленты вышло у меня 10 см экструдера и до 13 см стяжки Если что я всем доволен Посилання на коментар Поділитися на інших сайтах More sharing options...
tansss Опубліковано: 30 березня 2023 Поділитись Опубліковано: 30 березня 2023 16 минут назад, mib сказал: Я не сильно большой знаток но в исполнении ЕД ростверк заглублен на 30 см и 30 над землей, по идее он в земле быть не должен Собственно потому что он заглублен никаких нюансов нет, обратная засыпка песком и сверху черновая стяжка до 10 см В моем случае если сетку поменять на арматуру, по сути ушп внутри ленты вышло у меня 10 см экструдера и до 13 см стяжки Если что я всем доволен О! Так шо, будем сравнивать Свайно-ростверковый с УШП по стоимости и функционалу? ТС вот говорит что знает цену за фундамент, а наполнение? И шо и скоко надо доделать и доплатить шоб догнать таки нулевой цикл до готовности. Обратите внимание, ТС спрашивал фундамент ПОД КЛЮЧ 1 Посилання на коментар Поділитися на інших сайтах More sharing options...
mib Опубліковано: 30 березня 2023 Поділитись Опубліковано: 30 березня 2023 1 час назад, tansss сказал: О! Так шо, будем сравнивать Свайно-ростверковый с УШП по стоимости и функционалу? ТС вот говорит что знает цену за фундамент, а наполнение? И шо и скоко надо доделать и доплатить шоб догнать таки нулевой цикл до готовности. Обратите внимание, ТС спрашивал фундамент ПОД КЛЮЧ Он вроде как ленту спрашивал и хотел сравнить с лентой от евродома которая вроде как не лента Про ушп слова не было Посилання на коментар Поділитися на інших сайтах More sharing options...
Frostico Опубліковано: 1 квітня 2023 Поділитись Опубліковано: 1 квітня 2023 В 29.03.2023 в 09:29, Ripit Aftami сказал: Сориентируйте пожалуйста по стоимости фундамента под ключ в киевской обл при такой планировке первого этажа, фундамент ленточный, грунт песок. Если грунт песок, я бы рассмотрел плиту. Если взять ленточный фундамент, добавить засыпку, гидроизоляцию, утепление, черновую плиту, отмостку и тд, до состояния готового фундамента. То плита+утепленная отмостка выглядит экономически выгоднее, тем более если не нужно заменять тонны чернозема под плитой. И по срокам выполнения поинтереснее. 5 Посилання на коментар Поділитися на інших сайтах More sharing options...
Дмитрий Ф Опубліковано: 5 квітня 2023 Поділитись Опубліковано: 5 квітня 2023 В 22.03.2023 в 21:31, US7IGN сказал: не всі до цього доживуть... а в Австралії яка ситуація по регіонах? бо якби там все так погано було, вони б не чинили таких перешкод для всіх хто бажає туди емігрувати... Там закрывают не от вас, а от нищих азиатов, коих там куча. Безумцев из Украины не так много, и выглядят для тех людей они не менее стремно чем азиаты ))) Посилання на коментар Поділитися на інших сайтах More sharing options...
alekssell Опубліковано: 8 квітня 2023 Поділитись Опубліковано: 8 квітня 2023 В 22.03.2023 в 10:52, Ripit Aftami сказал: Ну мне сразу сказали что все помогут оформить до 2 тыс уе, тоесть все что есть на фото мне обойдется в 65 тыс, смогу ли я найти участок и построить дом за такие деньги? Якщо будувати на продаж, то можливо, але все залежить від локації ділянки і відповідно її ціни. У мене коробка вийшла за 50, парканом і благоустроєм і не пахло. Я інколи дивлюсь об'яви і думаю як потрібно було будувати і з чого щоб продавати відносно дешево. 1 Посилання на коментар Поділитися на інших сайтах More sharing options...
Ripit Aftami Опубліковано: 9 квітня 2023 Автор Поділитись Опубліковано: 9 квітня 2023 17 часов назад, alekssell сказал: Якщо будувати на продаж, то можливо, але все залежить від локації ділянки і відповідно її ціни. У мене коробка вийшла за 50, парканом і благоустроєм і не пахло. Я інколи дивлюсь об'яви і думаю як потрібно було будувати і з чого щоб продавати відносно дешево. Уточнюйте яка за розміром і з чого ваша коробка збудована. Може у вас коробка 350м2 і вікна панорамні семикамерні на кожному поверсі) Посилання на коментар Поділитися на інших сайтах More sharing options...
aleksey02 Опубліковано: 9 квітня 2023 Поділитись Опубліковано: 9 квітня 2023 19 часов назад, alekssell сказал: дивлюсь об'яви і думаю як потрібно було будувати і з чого щоб продавати відносно дешево. Я продаю за 50% от стоимости вложений на сегодняшний день. Всё строилось для себя. Посилання на коментар Поділитися на інших сайтах More sharing options...
Рекомендовані повідомлення
Створіть акаунт або увійдіть у нього для коментування
Ви маєте бути користувачем, щоб залишити коментар
Створити акаунт
Зареєструйтеся для отримання акаунта. Це просто!
Зареєструвати акаунтУвійти
Вже зареєстровані? Увійдіть тут.
Увійти зараз