FOX.kissfm Опубліковано: 27 липня 2023 Поділитись Опубліковано: 27 липня 2023 (змінено) Стартовал в этом году давнюю мечту - постройку винного погреба, по совместительству овоще-хранилища, и немножко бункера. А над ним мастерскую/винокурню где буду заниматься производством вина, и немного мастерить ) Объем работ по коробке сделан примерно на 80% Из интересного: отметка пола погреба -3,7 метра стены двухслойные изнутри в пол кирпича. между кирпичем и грунтом - армирование в 2 сетки 12мм арматурой, бетон переменной толщины 20-25см. так как заливалось в грунт без опалубки кирпич использовал красный полнотелый б/у бетон B30 W8 Пол - уплотненная глина, на нее укладывается красный кирпич - типа тротуарная плитка Вход вентиляции через грунтовый теплообменник - в виде канашки 200мм закопанной на 1,5 метра Сверху большое помещение мастерска/винокурня Основные цели которые будет решать погреб и зачем собственно это все затеял Хранение и выдержка вина Места приятного проведения времени в работе с вином. Место хранения фруктов и овощей в отдельном изолированном помещении. В виду того что идет война - внес коррективы в виде дополнительного входа/выхода, и использование и повышение марки бетона. Сверху над погребом будет мастерская/винокурня. В которой по плану буду заниматься не только вином, но и мастерская для кучу накопившегося инструмента ) Так как участок совсем небольшой - 6 соток, то перед строительством задумался над тем, как бы найти золотую середина между полезной площадью строения и места на участке, который не хочется укатывать в бетон ) в итоге пришел к тому, что буду делать плоскую эксплуатируемую кровлю, где летом можно чилить - загорать, курить кальян )) На днях начну подсыпать фото. Змінено 28 липня 2023 користувачем FOX.kissfm 9 Посилання на коментар Поділитися на інших сайтах More sharing options...
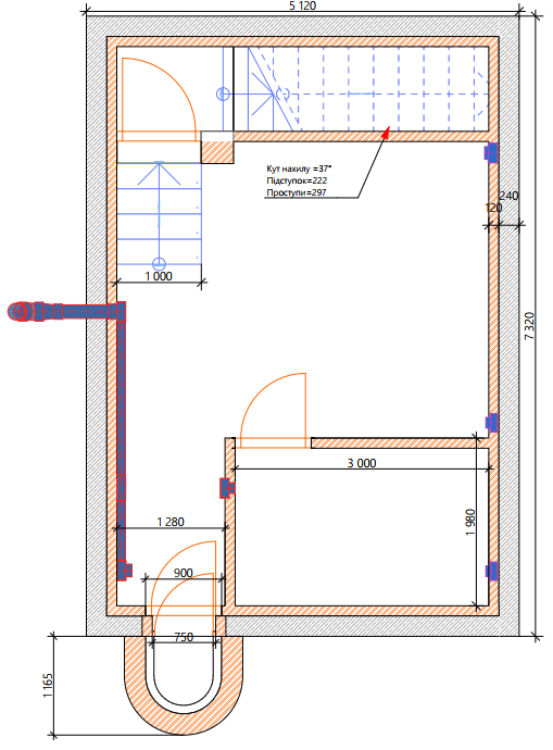
standov Опубліковано: 27 липня 2023 Поділитись Опубліковано: 27 липня 2023 забавне. А яке призначення люка і шахти? Посилання на коментар Поділитися на інших сайтах More sharing options...
andry07 Опубліковано: 27 липня 2023 Поділитись Опубліковано: 27 липня 2023 51 минуту назад, standov сказал: забавне. А яке призначення люка і шахти? я так зрозумів, що то аварійний вихід Посилання на коментар Поділитися на інших сайтах More sharing options...
standov Опубліковано: 27 липня 2023 Поділитись Опубліковано: 27 липня 2023 1 минуту назад, andry07 сказал: я так зрозумів, що то аварійний вихід логічно, ну прикольно Посилання на коментар Поділитися на інших сайтах More sharing options...
volkoff Опубліковано: 27 липня 2023 Поділитись Опубліковано: 27 липня 2023 6 часов назад, FOX.kissfm сказал: Основные цели которые будет решать погреб и зачем собственно это все затеял Хранение и выдержка вина Места приятного проведения времени в работе с вином. Хранение и выдержка вина в чем, в бутылках,кегах,дуб-бочках? Если в бутылках (стекло) то можно рассмотреть в таких спец-блоках для винных бутылок с поддержанием постоянной температуры вина. Эти блоки можно выкладывать,как стена по периметру погреба или с вашей фантазией другое...(фото) 1 1 Посилання на коментар Поділитися на інших сайтах More sharing options...
FOX.kissfm Опубліковано: 27 липня 2023 Автор Поділитись Опубліковано: 27 липня 2023 (змінено) 4 часа назад, standov сказал: забавне. А яке призначення люка і шахти? Багатофункціональне аварійний віхід з погрібу спуск важких предметів (бочки, мішки та ін.) доступ перевіряючих до водяного лічільника (там як раз мій водогін проходе) 3 часа назад, andry07 сказал: я так зрозумів, що то аварійний вихід і це також ) 14 минут назад, volkoff сказал: Хранение и выдержка вина в чем, в бутылках,кегах,дуб-бочках? Если в бутылках (стекло) то можно рассмотреть в таких спец-блоках для винных бутылок с поддержанием постоянной температуры вина. Эти блоки можно выкладывать,как стена по периметру погреба или с вашей фантазией другое...(фото) В бутылках и бочках в основном. То что вы скинули штука интересная, но ее надо искать, ждать и скорее всего будет стоить конских денег Я буду выкладывать из кирпича тоннели/полки для бутылок. Что то в таком духе Змінено 27 липня 2023 користувачем FOX.kissfm 5 Посилання на коментар Поділитися на інших сайтах More sharing options...
standov Опубліковано: 27 липня 2023 Поділитись Опубліковано: 27 липня 2023 (змінено) а ви вином "професійно" вже займаєтесь чи то умовно плани на майбутнє хобі? в мене батьки колись тим займалися, бутлі трубочки буль-буль дегустації якісь експерименти з виморожуванням, експерименти х ферментуванням грона морозами.. цікаво то все але уххх муторно. ПС. офтопік, був в мене колись сусід француз (натуральний, Дамьєн) і шось ми якось в них якось вдома відпочивали душою та тілом на французьке "свято молодого вина"(чи шось таке), і він розповів шо мовляв шо в цей день французи по селам достають з погребів кожний молоде вино та пригощають сусідів та прохожих. На моє запитання "а шо, правда у всіх є своє молоде вино в селах?" сказав "ну звичайно!! з Ашану". Чогось згадалося ) Змінено 27 липня 2023 користувачем standov Посилання на коментар Поділитися на інших сайтах More sharing options...
volkoff Опубліковано: 27 липня 2023 Поділитись Опубліковано: 27 липня 2023 2 минуты назад, FOX.kissfm сказал: То что вы скинули штука интересная, но ее надо искать, ждать и скорее всего будет стоить конских денег Я буду выкладывать из кирпича тоннели/полки для бутылок. Это здесь посмотрите - https://www.stroimdom.com.ua/topic/228712-teplaya-keramika-heluz-family-dymohody-rolletperemychki-teploe-keramperekrytie/#comment-5122724 Еще такие (фото) 1 Посилання на коментар Поділитися на інших сайтах More sharing options...
FOX.kissfm Опубліковано: 27 липня 2023 Автор Поділитись Опубліковано: 27 липня 2023 13 минут назад, standov сказал: а ви вином "професійно" вже займаєтесь чи то умовно плани на майбутнє хобі? в мене батькі колись тим займалися, бутлі трубочки буль-буль дегустації якісь експерименти з виморожуванням, експерименти х ферментуванням грона морозами.. цікаво то все але уххх муторно. Я вважаю що слово профессійно, можна вживати, коли то є твоя профессія і ти цим заробляєшь на життя )) у мене це хоббі близько 8 років. Зараз я виготовляю близько 200 літрів на сезон, і для того щоб підвищувати об'єм - збудував льох, бо підвал у хаті замалий. Поки що виготовляю червоне сухе або напівсолодке Каберне Совіньон. Ціна за пляшку 0,75 - 250грн ) 1 Посилання на коментар Поділитися на інших сайтах More sharing options...
FOX.kissfm Опубліковано: 27 липня 2023 Автор Поділитись Опубліковано: 27 липня 2023 14 минут назад, volkoff сказал: Это здесь посмотрите Спасибо, интересные штуки. Посилання на коментар Поділитися на інших сайтах More sharing options...
standov Опубліковано: 27 липня 2023 Поділитись Опубліковано: 27 липня 2023 (змінено) 2 минуты назад, FOX.kissfm сказал: Я вважаю що слово профессійно, можна вживати, коли то є твоя профессія і ти цим заробляєшь на життя )) у мене це хоббі близько 8 років. Зараз я виготовляю близько 200 літрів на сезон, і для того щоб підвищувати об'єм - збудував льох, бо підвал у хаті замалий. Поки що виготовляю червоне сухе або напівсолодке Каберне Совіньон. Ціна за пляшку 0,75 - 250грн ) ну я тому в лапках, в тому сенсі шо ви в цьому вже варитесь з размахом, ну прикольно а саму ягоду десь закупаєте? не подумайте нічого просто цікаво як то відбувається в людей. А ну ще цікаво як/куди збут відбувається, якщо то не секрет Змінено 27 липня 2023 користувачем standov Посилання на коментар Поділитися на інших сайтах More sharing options...
FOX.kissfm Опубліковано: 27 липня 2023 Автор Поділитись Опубліковано: 27 липня 2023 (змінено) Начали копать. В пятно застройки попал старый земляной погребок - сэкономил немного вывоза грунта )) и водопроводный колодец. Теперь все рвзводка воды будет на стене погреба, а водяной счетчик переехал в "шахту" аварийного выхода. В этом случае не прийдется для снятия показаний водить сотрудников водоканала в погреб. Еще пришлось спилить старую грушу (( ее корни видно на фото. Она была почти в центре котлована. Колоссальное дерево было и шикарные груши, ну что ж, будем растить новую. Верхний метр чернозема уложили в мешки в сторону - жалко было выбрасывать. Дальше грунт на улицу, а от туда каждые три-четыре дня трактор и самосвалы вывозили. В итоге вывели ококло 120м.куб. грунта, с учетом распушения под 200 ))) Копали в ручную месяц. Змінено 28 липня 2023 користувачем FOX.kissfm 10 Посилання на коментар Поділитися на інших сайтах More sharing options...
FOX.kissfm Опубліковано: 28 липня 2023 Автор Поділитись Опубліковано: 28 липня 2023 (змінено) Следующий этап - армирование, бетонирование основания, и поднятие стен. Тут не обошлось без проблем. С нанятой бригадой пришлось попрощаться, потому как с двух переделок, они так и не смогли собрать арматуру в проектное положение. Потерял три недели на поиск новой бригады, нашел. И 19 июля они продолжили строительство. Ребята молодцы, арматурщик из турции вообще виртуоз. Заармировали стены 12мм арматурой в две сетки и погнали кирпич, по ходу заливая бетон. Так же в стену заложена полоса стальная и приварена в нескольких местах к арматуре стен, перекрытия, и выведена через газоблок на крышу, там будет привера к арматуре перекрытия. В полу погреба забит классический треугольник из трех уголков 50ммх5мм обваре полосой и будет соеденятся с полосой в стене. Так же к этой полосе приварены болты, к которым будет присоеденяться электрошкаф и прочее электрооборудование. В итоге от начала армирование основания до полного завершения стен прошло 19 дней. Змінено 28 липня 2023 користувачем FOX.kissfm 11 Посилання на коментар Поділитися на інших сайтах More sharing options...
FOX.kissfm Опубліковано: 28 липня 2023 Автор Поділитись Опубліковано: 28 липня 2023 (змінено) 17го числа залили перекрытие 25см толщиной и лестницу. Получились небольшие косяки по заливке лестницы, но в целом ничего критичного. В общем первай коробочка готова. Дальше заливка бетонного цоколя и кладка газоблока. Делаю вьедные ворота для возможности поставить авто, но в целом использовать мастерскую/винокурню как гараж - не планирую. В переди отделочные работы, и нужны мастера по стяжке, укладке керамогранита, утеплению. По воротам так же есть вопрос - у меня был контакт нашего Днепровского вратаря с форума. Тестю моему он делал ворота - все отлично. Но контакты потерял, может кто знает? Если кто даст контакты проверенных ребят с хорошим качеством - буду благодарен. Змінено 28 липня 2023 користувачем FOX.kissfm 11 Посилання на коментар Поділитися на інших сайтах More sharing options...
FOX.kissfm Опубліковано: 28 липня 2023 Автор Поділитись Опубліковано: 28 липня 2023 15 часов назад, standov сказал: ну я тому в лапках, в тому сенсі шо ви в цьому вже варитесь з размахом, ну прикольно а саму ягоду десь закупаєте? не подумайте нічого просто цікаво як то відбувається в людей. А ну ще цікаво як/куди збут відбувається, якщо то не секрет Є небагато своєї ягоди, виход близько 50л. Досадив ще кущів, но то все фактично для дегустації )) А об'єм - то закупка, брав спочатку в Херсоні, зараз в Одессі. Ягода дуже гарна. З приводу збуту, то пока це лише сарафанне радіо ) але вже забукав собі сайт uagarden.com/ )) тепер надо щоб руки дійшли до нього 1 1 Посилання на коментар Поділитися на інших сайтах More sharing options...
standov Опубліковано: 28 липня 2023 Поділитись Опубліковано: 28 липня 2023 вибачте шо забагато питань, але правдо цікаво. А є якийсь механізм відслідковування походження ягоди в закупці? ну тобто це якийсь один постачальник- один віноградник, чи як то відбувається? бо мабуть жеж від ягоди залежить дуже багато? мені як потенційному користувачу мабуть би хотілося знати шо то вино гарантовано зроблено умовно на виробництві Івана по такій-то адресі з ягоди Петра яка виросла там-то, а не якийсь рендом хай і контрольований умовним Іваном, що мало чим відрізняється від середнього по ашану Посилання на коментар Поділитися на інших сайтах More sharing options...
FOX.kissfm Опубліковано: 28 липня 2023 Автор Поділитись Опубліковано: 28 липня 2023 (змінено) 3 часа назад, standov сказал: вибачте шо забагато питань, але правдо цікаво. А є якийсь механізм відслідковування походження ягоди в закупці? ну тобто це якийсь один постачальник- один віноградник, чи як то відбувається? бо мабуть жеж від ягоди залежить дуже багато? мені як потенційному користувачу мабуть би хотілося знати шо то вино гарантовано зроблено умовно на виробництві Івана по такій-то адресі з ягоди Петра яка виросла там-то, а не якийсь рендом хай і контрольований умовним Іваном, що мало чим відрізняється від середнього по ашану Не вибачайтесь, я із задоволенням розповім. Ну мені наприклад, як користувачу ніколи не хотілось знати, звідки та ягода у вині ) та і що воно мені дасть....бо навіть ягода з одного місця рік од року має коливання смаку. Важлива якість вина, смак, ароматика, стан на ранок після цього вина ) я все це можна зрозуміти лише скуштувавши ) Я наприклад роблю червоне, щільне вино, з багатою ароматикою, а може хтось любе легеньке, як компот. То вже смакові вподобання. Змінено 28 липня 2023 користувачем FOX.kissfm Посилання на коментар Поділитися на інших сайтах More sharing options...
standov Опубліковано: 28 липня 2023 Поділитись Опубліковано: 28 липня 2023 я мабуть погано написав, мене не то щоб цікавить звідки ягода - просто вино то трошки ще про дійство та якусь магію навколо, ніж про просто продукт споживання (як компот), відповідно, на мій особистий погляд, крафтове виробництво таких штук, мені як користувачу, має продавати окрім гарного продукту ще і якусь красиву історію, інакше то не дуже конкурентно. Ну тобто нащо мені купувати шось крафтове - мені ще незрозуміле (нехай і 100500 разів класне але я того поки не знаю) якщо я можу купити у випадку з вином "зрозумілі" іпанію, францію, чілі. Тож чи є в вас якась така "історія" за яку можна заплатити досить вже немалу ціну для непоганого вина? ПС я намагався формулювати максимально нейтрально, вибачайте якщо шось прозвучало не дуже, ви правда займаєтесь кльовою штукою ) 1 Посилання на коментар Поділитися на інших сайтах More sharing options...
normal Опубліковано: 28 липня 2023 Поділитись Опубліковано: 28 липня 2023 Так то просто виробництво для себе, на продаж того підвалу замало, бо для бродіння потрібна одна температура, для витримки друга, треба десь чавити, переливати, мити... Ну і один той самий смак приїдається, ми починаємо з одесської вишні (з невеличкого дерева вже якраз виграло 20л), зараз грає 60л з невеличкої груші, а виноград ще тільки зелений. І все одно на рік не хватає, приходиться потім докуповувати, а то несмачне, то дороге... Посилання на коментар Поділитися на інших сайтах More sharing options...
standov Опубліковано: 28 липня 2023 Поділитись Опубліковано: 28 липня 2023 ну 200літрів тільки для власного споживання не то шоб я заздрю.. ) 1 Посилання на коментар Поділитися на інших сайтах More sharing options...
FOX.kissfm Опубліковано: 28 липня 2023 Автор Поділитись Опубліковано: 28 липня 2023 (змінено) 8 минут назад, normal сказал: Так то просто виробництво для себе, на продаж того підвалу замало, бо для бродіння потрібна одна температура, для витримки друга, треба десь чавити, переливати, мити... Ну і один той самий смак приїдається, ми починаємо з одесської вишні (з невеличкого дерева вже якраз виграло 20л), зараз грає 60л з невеличкої груші, а виноград ще тільки зелений. І все одно на рік не хватає, приходиться потім докуповувати, а то несмачне, то дороге... Я вам більше скажу - для різних вин, для різного смаку - потрібна різна температура ) 9 минут назад, normal сказал: о для бродіння потрібна одна температура, для витримки друга, треба десь чавити, переливати, мити... Повірте, за 8 років виноробства то не нова інформація. Але так чи інакше - все то гроші. Чи така винокурня, чи інакша ) у мене хватило грошей лише на таку, а далі подивимось як піде. Зараз в малому підвалі де ще стоять закатки я виробляю 200л. і ще можливо впихнути 200, але то потолок. Плани на цю винокурню - 2 тонни, багато це чи мало?.... ну для домашнього споживання меня достатньо і 20л )) Змінено 28 липня 2023 користувачем FOX.kissfm Посилання на коментар Поділитися на інших сайтах More sharing options...
FOX.kissfm Опубліковано: 29 липня 2023 Автор Поділитись Опубліковано: 29 липня 2023 Как элемент дизайна добавлял в кладку кирпичи с клеймом на ребро 1 Посилання на коментар Поділитися на інших сайтах More sharing options...
normal Опубліковано: 29 липня 2023 Поділитись Опубліковано: 29 липня 2023 А який буде контур утеплення? У мене теж стоїть подібна коробка і взимку постійно плаче стеля підвалу, на майбутнє думаю - чи утеплити тільки стелю підвалу ссередини, чи повністю ззовні з "майстернею" зверху... Посилання на коментар Поділитися на інших сайтах More sharing options...
FOX.kissfm Опубліковано: 29 липня 2023 Автор Поділитись Опубліковано: 29 липня 2023 43 минуты назад, normal сказал: А який буде контур утеплення? У мене теж стоїть подібна коробка і взимку постійно плаче стеля підвалу, на майбутнє думаю - чи утеплити тільки стелю підвалу ссередини, чи повністю ззовні з "майстернею" зверху... Почну з початку. факт наявності конденсату на стелі потребує не лише утеплення. в моєму випадку: 1.вентиляція через ґрунтовий теплообмінник буде давати сухе повітря 2.стіни з повнотілої червоної цегли забезпечують баланс вологості повітря. 3.і лише тепер утеплення. Стеля погрібу 100мм єппс, по періметру ззовні 50мм єппс на глибину 500мм 1 Посилання на коментар Поділитися на інших сайтах More sharing options...
standov Опубліковано: 29 липня 2023 Поділитись Опубліковано: 29 липня 2023 (змінено) Ну про прям сухе повітря з гто я-б не розраховував, ну тобто так воно суше ніж просто з вулиці але ненабаго, і в саму спеку, особливо з урахуванням того що в вас гто невеликий, умовно вночі влітку взагалі не буде змін вологості Змінено 29 липня 2023 користувачем standov Посилання на коментар Поділитися на інших сайтах More sharing options...
Рекомендовані повідомлення
Створіть акаунт або увійдіть у нього для коментування
Ви маєте бути користувачем, щоб залишити коментар
Створити акаунт
Зареєструйтеся для отримання акаунта. Це просто!
Зареєструвати акаунтУвійти
Вже зареєстровані? Увійдіть тут.
Увійти зараз