Александр с Донецка Опубліковано: 1 листопада 2012 Поділитись Опубліковано: 1 листопада 2012 Раздумывая о нагреве полов в парной, подумал о том, что можно опустить дровяную печь, стоящую в предбаннике сантиметров на 15- 20( да и сам предбанник, образовав одну ступеньку вниз из смежного помещения) и нагревать полы теплом печи, а? Со сказаного понятно одно, что холодные полы, а само тех решение как то не совсем. Почему печь в предбаннике, когда она должна находиться в парилке, может вторая печь для обогрева отстальных помещений? Вообще то что бы нагреть пол не нужно опускать печь ниже уровня пола, а просто опустить горячий воздух к полу, это намного практичнее, тк не факт что при опускании печи станут полы теплее. Тк горячий воздух находиться под потолком. Посилання на коментар Поділитися на інших сайтах More sharing options...
VOLVAS Опубліковано: 1 листопада 2012 Поділитись Опубліковано: 1 листопада 2012 Раздумывая о нагреве полов в парной, подумал о том, что можно опустить дровяную печь, стоящую в предбаннике сантиметров на 15- 20( да и сам предбанник, образовав одну ступеньку вниз из смежного помещения) и нагревать полы теплом печи, а? А я сделал пол с электрообогревом. При длительных перерывах обогрев включён и не даёт парилке промёрзнуть и при открытых дверях в помывочную не даёт замёрзнуть воде в душе и в титане. Посилання на коментар Поділитися на інших сайтах More sharing options...
yurkov Опубліковано: 1 листопада 2012 Поділитись Опубліковано: 1 листопада 2012 А как же электробезопасность о которой Вы меня предупреждали? Тем более переменное магнитное поле в в самом таком месте где мы получаем здоровье. Я хоть надоел со своей парилкой а так охота вставить пятак именно при моём конструктиве полы всегда горячие и так горячо на полу как и под потолком. Причем при нагреве парилки сразу греется и пол... и без дополнительных затрат тепла. . Посилання на коментар Поділитися на інших сайтах More sharing options...
VOLVAS Опубліковано: 1 листопада 2012 Поділитись Опубліковано: 1 листопада 2012 Электрообогрев пола, выполненный по всем правилам ПТЭ и ПТБ, а также рекомендациям производителя абсолютно безопасен. Во время принятия банных процедур всё это выключается. Но пирог пола (цементная стяжка, клей, плитка) ещё долго держит тепло. Да и в парилке в это время уже жара. Так что всё окей. Посилання на коментар Поділитися на інших сайтах More sharing options...
Александр с Донецка Опубліковано: 1 листопада 2012 Поділитись Опубліковано: 1 листопада 2012 Да, теплый пол самый оптимальный вариант. Но ходить все таки лучше в парилке по деревянным трапам, не так сользко и приятнее. Добавлено через 7 минут Есть одни недостаток у теплого пола, это при монтаже сливных трапов с гидрозатвором. Трапы пересыхают и начинают пропускать запах канальи. В таких случаях лучше монтировать с сухим затвором, а в случае с гидрозатвором потом накрывать, как я ;) Когда монтировали не нашел в нашем регионе, все манагеры на меня смотрели как на сумашедшего ))) Посилання на коментар Поділитися на інших сайтах More sharing options...
yurkov Опубліковано: 1 листопада 2012 Поділитись Опубліковано: 1 листопада 2012 А откуда у Вас столько воды в парилке? Ну чтобы трапики там делать? Добавлено через 1 минуту Работал Я год банщиком по совместительству и с тех пор пол деревянный неприемлю. Посилання на коментар Поділитися на інших сайтах More sharing options...
LM Опубліковано: 1 листопада 2012 Поділитись Опубліковано: 1 листопада 2012 Трапики-чтоб не ходить босиком по холодной плитке в парилке. Пару ведер на пол в парилке после "сеанса" + швабра - и в парилке идеальная чистота. Потому и вода парилке, ну а трапик - чтоб эту воду убрать. А вот зачем еще и пол в парилке подогревать ? Посилання на коментар Поділитися на інших сайтах More sharing options...
Александр с Донецка Опубліковано: 1 листопада 2012 Поділитись Опубліковано: 1 листопада 2012 А откуда у Вас столько воды в парилке? Ну чтобы трапики там делать? В сауне ей точно не откуда взяться, тк там вениками не парят, тк влажность минимальна и веник высыает быстро и обсыпается. А вот в режиме русской бани, мокрые, холодные венички на лицо, да и окатить себя и лежащего на полоке, холодной водицей иногда всласть ;) Работал Я год банщиком по совместительству и с тех пор пол деревянный неприемлю. ))) Это была шутка? Иначе небыло бы первого вопроса ;) А деревянные полы и деревянные трапики это разные вещи. Деревянные тапики- это деревянные решетки, которые ложат на пол для ходьбы во время парения, а после парения поднимают и сушат, что бы не гнили( если по хозяйски). А в банях с деревянными полами нужна хорошая печь и вентиляция, что бы высушить и проветрить. Посилання на коментар Поділитися на інших сайтах More sharing options...
в поиске Опубліковано: 2 листопада 2012 Поділитись Опубліковано: 2 листопада 2012 Всё верно подмечено: я хотел сказать, что опустить надо печь, которая топится из предбанника, а не находящуюся в предбаннике. Пардон... Посилання на коментар Поділитися на інших сайтах More sharing options...
VOLVAS Опубліковано: 2 листопада 2012 Поділитись Опубліковано: 2 листопада 2012 Есть одни недостаток у теплого пола, это при монтаже сливных трапов с гидрозатвором. Трапы пересыхают и начинают пропускать запах канальи. В таких случаях лучше монтировать с сухим затвором, а в случае с гидрозатвором потом накрывать, как я ;) Когда монтировали не нашел в нашем регионе, все манагеры на меня смотрели как на сумашедшего ))) Абсолютно согласен. Я, если дома, то подливаю водички, если не забуду. А так всё время тазик перевёрнутый лежит. Добавлено через 17 минут А вот зачем еще и пол в парилке подогревать ? Я писал выше, что для того, что бы зимой, между парениями, а парюсь обычно по субботам, в бане не было нулевой температуры, решил греть парилку, а двери в моечную, где вода, держу открытой. Бане 5 лет. Ещё ни разу ничего не перемёрзло. А в комнате отдыха замерзать нечему, если кто не оставит минералку. По этому и грею пол, как самый удобный и безопасный вид обогрева имхо. Посилання на коментар Поділитися на інших сайтах More sharing options...
Александр с Донецка Опубліковано: 2 листопада 2012 Поділитись Опубліковано: 2 листопада 2012 Всё верно подмечено: я хотел сказать, что опустить надо печь, которая топится из предбанника, а не находящуюся в предбаннике. Пардон... А что за печь, можно узнать? Добавлено через 8 минут Абсолютно согласен. Я, если дома, то подливаю водички, если не забуду. А так всё время тазик перевёрнутый лежит. Я с этим борюсь проще, у супруги в хозяйстве всегда есть матерчатые салфетки ФрекенБок для уборки, беру одну, мочу, слаживаю вчетверо и ложу на трапик и она нормально держит запах, иногда мочу когда прохожу мимо ;) Посилання на коментар Поділитися на інших сайтах More sharing options...
yurkov Опубліковано: 2 листопада 2012 Поділитись Опубліковано: 2 листопада 2012 Я с этим борюсь проще, у супруги в хозяйстве всегда есть матерчатые салфетки ФрекенБок для уборки, беру одну, мочу, слаживаю вчетверо и ложу на трапик и она нормально держит запах, иногда мочу когда прохожу мимо ;) Благо дело что гидрант всё время при себе! .... шутка:D Посилання на коментар Поділитися на інших сайтах More sharing options...
Александр с Донецка Опубліковано: 3 листопада 2012 Поділитись Опубліковано: 3 листопада 2012 Благо дело что гидрант всё время при себе! .... шутка:D Гидранты не при себе, а в парилке или рядом со шлангом и садовым пистолетом для полива, с крутящимися головками изменяющими струю от душевых до распылямых воду в туман. Очень нужный и полезный прибамбас, как для уборки так и при парении Посилання на коментар Поділитися на інших сайтах More sharing options...
make_evchanin Опубліковано: 15 лютого 2013 Поділитись Опубліковано: 15 лютого 2013 Есть в наличии доски смереки и пихты. Подскажите, можно ли их использовать для отделки комнаты отдыха, душевой? И что бы все-таки Вы предпочли - смереку или пихту? Посилання на коментар Поділитися на інших сайтах More sharing options...
biz-kiev Опубліковано: 20 лютого 2013 Поділитись Опубліковано: 20 лютого 2013 Есть в наличии доски смереки и пихты. Подскажите, можно ли их использовать для отделки комнаты отдыха, душевой? И что бы все-таки Вы предпочли - смереку или пихту? душевую? хвойной породой? комнату можно, разницы особой нет 1 Посилання на коментар Поділитися на інших сайтах More sharing options...
make_evchanin Опубліковано: 20 лютого 2013 Поділитись Опубліковано: 20 лютого 2013 душевую? хвойной породой? комнату можно, разницы особой нет А что лучше в душевую? Тоже самое, что и для парилки? Посилання на коментар Поділитися на інших сайтах More sharing options...
LM Опубліковано: 21 лютого 2013 Поділитись Опубліковано: 21 лютого 2013 А чем плитка не угодила? В душевую, как по мне, только плитку Может Вы имеете в виду - предбанник? У меня в предбаннике - сосновый блокхаус, в душевой -плитка под дерево. Очень даже душевненько смотрится Посилання на коментар Поділитися на інших сайтах More sharing options...
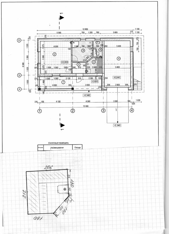
Serg_Nikol Опубліковано: 22 лютого 2013 Поділитись Опубліковано: 22 лютого 2013 Добрый день! Ваяем сауну своими силами. Все, вроде, ясно. Вот только с вентиляцией-вытяжкой вопросы. В аттаче размеры парной и ее место в общем плане здания под №4 (правильная компоновка на рисунке в карандаше). Дровяная каменка с мордой в тамбур уже установлена. Над ней - коминвентовский бак под воду. Приток воздуха в парную предполагается под дверью. Вентиляцию парной продавцы двери и прочей комплектовки предложили организовать следующим образом: в потолке, в углу, противоположном двери, ставим вент.грибок. На него - тройник. Дальше два рукава. Первый по потолку ведем в тамбур (туда, где морда печи), и там опускаем до уровня нижнего полка и запускаем обратно в парную. Второй рукав выпускаем в ближайшую стену на улицу. Смущает эта идея тем, что по-моему теплый воздух из грибка в потолке и рукава под полком будет просто выбрасываться в рукав на улицу. Может имеет смысл разделить эти потоки? Первый - из грибка по потолку впускать под полок. А на улицу пробить отдельную дырку и поставить деревянную задвижку для проветривания и сброса лишнего жара? Посилання на коментар Поділитися на інших сайтах More sharing options...
Александр с Донецка Опубліковано: 22 лютого 2013 Поділитись Опубліковано: 22 лютого 2013 Добрый день, Serg_Nikol. Что то мудренное по вентиляции Вам предлагают продавцы дверей ;) Вентиляции может быть две, как Вы и предполагаете. В парилке должна быть вентиляция для дыхания. Тк планируется "сауна", печь будет стоять конвекционная, будет греть воздух на внутреннем обороте, тк она разжата. Те воздух при проходе через печь, несколько раз, для дыхания не будет совсем приятным, для этого его нужно частично разбавить притоком. Но приток лучше взять с теплого помещения, те с предбанника, подтянув его коробом по низу парилки к низу печи. А отток для нормального оборота, лучше взять под полоком в углу, напротив входа, короб поднять по стене выше потолка парилки и над потолком вывести в тот же предбанник. Эта вентиляция будет постоянно открыта. А вот для сброса горячего, влажного пара, если он будет, сбрасывать отдельным коробом с пробкой на потолке на улицу. 3 Посилання на коментар Поділитися на інших сайтах More sharing options...
Chepman Опубліковано: 10 липня 2013 Поділитись Опубліковано: 10 липня 2013 Обычно нержавейка есть у тех, кто делает дымоходы из металла, тут на форуме есть фирма София и др. Я брал себе на сауну (они мне и дымоходы делали и монтировали) здесь: pprof.com.ua/ Потом у них же докупал именно отражатель из нержавейки на потолок в месте входа дымохода в потолок. Края прямоугольного листа при мне специально отформовали типа как объемно получилось. Нержавейка в пленке, снял после установки. Кстати, а обязателен ли отражатель над каменкой? Я где то слышал, что в современных электрокаменках как то реализован механизм отражения тепла, к-й не требует потолкового отражателя. Посилання на коментар Поділитися на інших сайтах More sharing options...
Dart L Опубліковано: 8 листопада 2013 Поділитись Опубліковано: 8 листопада 2013 Цитата с www.sauna.by : "Современные электрокаменки таких лидеров производства электрокаменок для саун и бань как Harvia рассчитаны и абсолютно безопасны для полива раскаленных камней водой а кроме того ароматическими смесями. " не забываем о том что много лить нельзя, навесные имеют 20кг камней и они быстро остынут из за обилия камней для любителей по влажнее - обратите свой взор на печи с парогенератором их ща уйма Добавлено через 1 минуту Кстати, а обязателен ли отражатель над каменкой? Я где то слышал, что в современных электрокаменках как то реализован механизм отражения тепла, к-й не требует потолкового отражателя. отражатель на потолке над печью актуален для дровяных печей, где уж очень много жара и для саун с низкими потолками по тем или иным причинам Посилання на коментар Поділитися на інших сайтах More sharing options...
igordad Опубліковано: 9 листопада 2013 Поділитись Опубліковано: 9 листопада 2013 отражатель на потолке над печью актуален для дровяных печей, где уж очень много жара и для саун с низкими потолками по тем или иным причинам Я думаю, что при правильном выборе каменки, жар будет одинаковый , что от дровяной , что от электро каменки. Да и жар даёт не каменка , а камни. да и вагонка на потолке, над каменкой без экрана, темнеет от жАра сильнее. имхо... Посилання на коментар Поділитися на інших сайтах More sharing options...
Dart L Опубліковано: 11 листопада 2013 Поділитись Опубліковано: 11 листопада 2013 Это из детской загадки, что тяжелее килограм ваты или гвоздей ))) так то оно так, но дровяная печь с высоким кпд достаточно опасный объект. В инструкции к печам все сказано, пренебрегать этим нельзя и требования гораздо выше к безопасным расстояниям в сравнении с электро. Затопить дровяной печью ровно например 95 грд очень сложно, нужно иметь громадный опыт . Малонабрать нужную температуру, нужно её поддерживать. другими словами при выборе нужной температуры в дровяной печкможно ошибится на 10 а то и на 20 градусов, в электрике, ошибка практически исключена. В электрике нажал пару кнопок и все. Мне если честно,нравятся больше дровяные, тут сам процесс затягивает. Посилання на коментар Поділитися на інших сайтах More sharing options...
Evgeniy_New Опубліковано: 14 листопада 2013 Поділитись Опубліковано: 14 листопада 2013 Добрый день, Serg_Nikol. Что то мудренное по вентиляции Вам предлагают продавцы дверей ;) Вентиляции может быть две, как Вы и предполагаете. В парилке должна быть вентиляция для дыхания. Тк планируется "сауна", печь будет стоять конвекционная, будет греть воздух на внутреннем обороте, тк она разжата. Те воздух при проходе через печь, несколько раз, для дыхания не будет совсем приятным, для этого его нужно частично разбавить притоком. Но приток лучше взять с теплого помещения, те с предбанника, подтянув его коробом по низу парилки к низу печи. А отток для нормального оборота, лучше взять под полоком в углу, напротив входа, короб поднять по стене выше потолка парилки и над потолком вывести в тот же предбанник. Эта вентиляция будет постоянно открыта. А вот для сброса горячего, влажного пара, если он будет, сбрасывать отдельным коробом с пробкой на потолке на улицу. ... Получается что через несколько часов в предбаннике будет такая же температура и влажность как в парилке. Судя по всему это не очень хорошо как для предбанника так и для печи - дополнительная нагрузка.... Посилання на коментар Поділитися на інших сайтах More sharing options...
Александр с Донецка Опубліковано: 14 листопада 2013 Поділитись Опубліковано: 14 листопада 2013 ... Получается что через несколько часов в предбаннике будет такая же температура и влажность как в парилке. Ну если нет дверей в парилке то все возможно. А при закрытых дверях, наврят там сильно поднимется температура. У меня тоже есть такая парилка с печью Tylo Combi 6RC и вентиляция как и говорил выше. Но на данный момент это склад для отработанных веников и не более. Тк ее режимы даже в комбинированном режиме русской бани, увы не совсем приятные. Запах тенов стоит, да и пар не такой как мне нравится и конвектив постоянный. Мне больше по душе пироговые бани и приятное мягкое тепло. В начале я там парил народ, а теперь не один не заикается даже, что бы там попариться. Посилання на коментар Поділитися на інших сайтах More sharing options...
Рекомендовані повідомлення
Створіть акаунт або увійдіть у нього для коментування
Ви маєте бути користувачем, щоб залишити коментар
Створити акаунт
Зареєструйтеся для отримання акаунта. Це просто!
Зареєструвати акаунтУвійти
Вже зареєстровані? Увійдіть тут.
Увійти зараз