Alexander Pryakha Опубліковано: 28 грудня 2007 Поділитись Опубліковано: 28 грудня 2007 Привет! Вот собственно мой домик. . Продолжение - следует Посилання на коментар Поділитися на інших сайтах More sharing options...
Chiara Опубліковано: 29 грудня 2007 Поділитись Опубліковано: 29 грудня 2007 поздравляю с открытие ветки Ждем продолжения! Посилання на коментар Поділитися на інших сайтах More sharing options...
Alexander Pryakha Опубліковано: 30 грудня 2007 Автор Поділитись Опубліковано: 30 грудня 2007 Рендеринг фасадов Рендеринг главного фасада Восточный (главный) и северный фасад Западный (дворовой фасад). Посилання на коментар Поділитися на інших сайтах More sharing options...
Alexander Pryakha Опубліковано: 31 грудня 2007 Автор Поділитись Опубліковано: 31 грудня 2007 Изометрия Посилання на коментар Поділитися на інших сайтах More sharing options...
Afa Опубліковано: 4 січня 2008 Поділитись Опубліковано: 4 січня 2008 Супер, поздравляю :-D Первый раз встречаю, чтобы оригинал дома был так похож на проект. Посилання на коментар Поділитися на інших сайтах More sharing options...
Белая Рысь Опубліковано: 4 січня 2008 Поділитись Опубліковано: 4 січня 2008 Какая ширина балконной двери (она же -- входная группа на первом этаже)? Я Вас уже спрашивала, что будете делать для утепления входной группы на террасу? Теплый пол? Чтобы не промерзало? Какая площадь террасы? Не маленькая ли? У нас по проекту такая же, но мы решили лучше это пространство включить в пространство кухни-столовой -- оно маленькое. Теперь получается входная группа прямо на улицу без навеса. Мне кажется, это плохо. Посилання на коментар Поділитися на інших сайтах More sharing options...
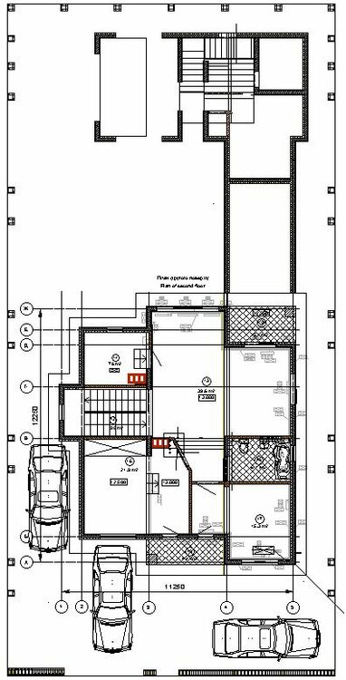
Alexander Pryakha Опубліковано: 6 січня 2008 Автор Поділитись Опубліковано: 6 січня 2008 Планировки Первый этаж Второй этаж Розріз 1-1 Посилання на коментар Поділитися на інших сайтах More sharing options...
borg Опубліковано: 7 січня 2008 Поділитись Опубліковано: 7 січня 2008 Красиво. Мой проект имеет некоторые сходства А в какой проге чертили? Посилання на коментар Поділитися на інших сайтах More sharing options...
Alexander Pryakha Опубліковано: 7 січня 2008 Автор Поділитись Опубліковано: 7 січня 2008 Красиво. Мой проект имеет некоторые сходства А в какой проге чертили? Cпасибо, мне тоже нравится! Все чертежи, подсчет материалов и всех спецификаций, выполнялся при помощи автоматизированной программы для строителей проектировщиков Nemetschek Allplan 2006 Ссылки в инете (ссылка устарела) (ссылка устарела) (ссылка устарела) Очень взрослая программа для строителей. 1 Посилання на коментар Поділитися на інших сайтах More sharing options...
trik Опубліковано: 8 січня 2008 Поділитись Опубліковано: 8 січня 2008 Очень взрослая программа для строителей. Гиде скачать с кряком? Очень больно расиво отрендерил. И сибе захотелоси.. Посилання на коментар Поділитися на інших сайтах More sharing options...
borg Опубліковано: 8 січня 2008 Поділитись Опубліковано: 8 січня 2008 Гугля рулит. Сижу, ковыряюсь в АлПлане. После Арчикада туговато. %) Посилання на коментар Поділитися на інших сайтах More sharing options...
trik Опубліковано: 9 січня 2008 Поділитись Опубліковано: 9 січня 2008 Гугля рулит. Сижу, ковыряюсь в АлПлане. После Арчикада туговато. %) блин, ну кинте сцылкой, второй день пытаюсь нагуглить... Посилання на коментар Поділитися на інших сайтах More sharing options...
Котяра Опубліковано: 9 січня 2008 Поділитись Опубліковано: 9 січня 2008 Александр, подскажите у Вас вентиляционные отверстия в стене? Какую трубу использовали? У меня по проекту оцинковка, а я думал кинуть пластиковые трубы. как на канализацию Посилання на коментар Поділитися на інших сайтах More sharing options...
Alexander Pryakha Опубліковано: 9 січня 2008 Автор Поділитись Опубліковано: 9 січня 2008 Гугля рулит. Сижу, ковыряюсь в АлПлане. После Арчикада туговато. %) блин, ну кинте сцылкой, второй день пытаюсь нагуглить... Программа Allplan чем то похожа на Архикад, но имеет на порядок больше возможностей. Скажу так - когда я перешел с проектирования в Архикаде на проектирование в Аллплане - а это было 5 лет назад - то я стал проектировать в 3 раза больше, соответсвенно и зарабатывать денег. Кстати почти всю прибыль за 2006 год компания Nemetschek потратила на покупку своего конкурента - компании Графисофт, которая Архикад и разрабатывает. У меня лицензионная версия. Одно рабочее место стоит 5500 Евро. Есть бесплатная программа Allplan Junior. В сети скачать пиратскую версию возможно при помощи торрента. Ссылку дать нем могу, дружу с представителями компании Nemetschek из Украины и Германии, обидется могу на меня парни. Александр, подскажите у Вас вентиляционные отверстия в стене? Какую трубу использовали? У меня по проекту оцинковка, а я думал кинуть пластиковые трубы. как на канализацию Для вентиляции санузлов, кухни и фановой трубы канализации у меня предусмотрены пластиковые трубы ф100мм серого цвета, которые забетонированы в ячейках термоблока. Для отопительной печи и котлов - трубы из кирпичной кладки колодцы сечением 140х270мм Посилання на коментар Поділитися на інших сайтах More sharing options...
Котяра Опубліковано: 9 січня 2008 Поділитись Опубліковано: 9 січня 2008 Саша, а чем, как бы это сказать. маскировали выходы вентиляционных труб над крышей? Посилання на коментар Поділитися на інших сайтах More sharing options...
borg Опубліковано: 9 січня 2008 Поділитись Опубліковано: 9 січня 2008 Гугля рулит. Сижу, ковыряюсь в АлПлане. После Арчикада туговато. %) блин, ну кинте сцылкой, второй день пытаюсь нагуглить... Trik, Смотри личку. Сори за офтоп. Посилання на коментар Поділитися на інших сайтах More sharing options...
trik Опубліковано: 12 січня 2008 Поділитись Опубліковано: 12 січня 2008 Программа Allplan чем то похожа на Архикад, но имеет на порядок больше возможностей. ...... соответсвенно и зарабатывать денег. Ты знаешь посидел в проге полдня и понял почему ты стал зарабатывать больше. Вещь.... Архикад действительно нервно курит в сторонке. :-D . ЗЫ! Пойду читать только что выкачаный самоучитель на 600стр. Буду переучиваться. Афтару большой риспект за подсказку. PS! Модератору. Саня, может вырежем флуд о Аллплане из этой темы и создадим в "Сделай Сам" профильную темку. Учитывая возможности программы думаю тема будет актуальной и нужной. Думаю не только мне интерестно будет. Тем более есть у кого спросить если что не получается :wink: Посилання на коментар Поділитися на інших сайтах More sharing options...
Alexander Pryakha Опубліковано: 11 лютого 2008 Автор Поділитись Опубліковано: 11 лютого 2008 Запустил сайт про свой домик. На сайте есть хроники строительства, фотоальбом. адрес вот такой www.dacha.se-ua.net/ Кое что не доработано, так что тапками просьба не бросать! Посилання на коментар Поділитися на інших сайтах More sharing options...
Nik Опубліковано: 11 лютого 2008 Поділитись Опубліковано: 11 лютого 2008 Александр, смотрел внимательно планы Вашего дома. А в чем задумка иметь 2 гостинные - на 1-ом и на 2-ом этажах? Причем бОльшая гостинная именно на 2-ом этаже? Посилання на коментар Поділитися на інших сайтах More sharing options...
Alexander Pryakha Опубліковано: 12 лютого 2008 Автор Поділитись Опубліковано: 12 лютого 2008 Александр, смотрел внимательно планы Вашего дома. А в чем задумка иметь 2 гостинные - на 1-ом и на 2-ом этажах? Причем бОльшая гостинная именно на 2-ом этаже? Гостинная на первом этаже - это гостинная для гостей, которую можно переделать в гостинную столовую. Гостинная на втором этаже - это как бы хозяйская гостинная, хотя ее можно переделать в две комнаты с отдельными входами. Не переделываю пока гостинную на втором этаже в две комнаты потому как хочу делать пристройку. Это будет полноценный еще один дом. С подвалом с 3-мя этажами сверху. Сейчас это все находится на стадии проектирования. Здания будут соединятся между собой на отм.3.300 (на втором уровне) через существующий балкон на 2-м этаже и через большую гостинную на 2-м этаже. Через первый этаж они соединятся не будут. Между ними будет осадочный шов, т.е. это будут две независимые конструкции, с отдельными документами на домовладение. В подвале будет топочная, техпомещение для обслуживания чаши бассейна, дровница, электрощитовая. На первом этаже пристройки будет бассейн, баня, санузел, гостинная, лестница На втором эт. - кухня N2, комната-cпальня, санузел, терраса с выходом к балкону второго дома. На второй этаж можно попасть не заходя на первый этаж и вглавный дом. На третем этаже будет пентхаус или бельведер с огромной террасой, на которой будет барбекю. Над бельведером будет плоская крыша-тераса, на которой можно будет загорать. Посилання на коментар Поділитися на інших сайтах More sharing options...
Chiara Опубліковано: 18 лютого 2008 Поділитись Опубліковано: 18 лютого 2008 Ого, планов громадье, особенно про пентхауз Вы вообще городской ребенок? Меня тоже все повыше тянет и гостинную на второй этаж я б тоже перетащила, во всяк. случае кофеварку на второй я точно перетащЮ;), остальное врядли влезет. Посилання на коментар Поділитися на інших сайтах More sharing options...
dreamer Опубліковано: 18 лютого 2008 Поділитись Опубліковано: 18 лютого 2008 Добрый день! Участок у вас небольшой... Как с расстояниями до границ участка, выполняются ли они? Посилання на коментар Поділитися на інших сайтах More sharing options...
Alexander Pryakha Опубліковано: 19 лютого 2008 Автор Поділитись Опубліковано: 19 лютого 2008 Ого, планов громадье, особенно про пентхауз Вы вообще городской ребенок? Меня тоже все повыше тянет и гостинную на второй этаж я б тоже перетащила, во всяк. случае кофеварку на второй я точно перетащЮ;), остальное врядли влезет. Пентхаусы я люблю проектировать, приходилось. Вот закончу проектик своей прибудовы - обязательно вывешу для критики. Может круто сказал (про пентхаус) - у меня будет наверху бельведер, - это всмысле после приема водных процедур пойти в бельведер для релаксации - чаек попить, на лес посмотреть. Да еще наверху - сразу запланирую опорую базу для мачты стальной, может повешу туда чего нибудь - например ветрогенератор. Посилання на коментар Поділитися на інших сайтах More sharing options...
Alexander Pryakha Опубліковано: 19 лютого 2008 Автор Поділитись Опубліковано: 19 лютого 2008 Добрый день! Участок у вас небольшой... Как с расстояниями до границ участка, выполняются ли они? Ну конечно - до забора 1,9м (допускается 1м). Соседи построится пока не успели. А вот когда соберутся фундамент копать - так пусть смело от моего домика 7 метров и отмеривают, я им даже в знак расположения - лазерную рулетку для этого могу выдать (в аренду) Посилання на коментар Поділитися на інших сайтах More sharing options...
dreamer Опубліковано: 20 лютого 2008 Поділитись Опубліковано: 20 лютого 2008 Значит, кто раньше встал, того и тапки? Хотел узнать насчет внешней отделки вашего дома, штукатурка? А углы как отделывали? И как будет выглядеть ваша пристройка с белведером, интересно? Нет ли эскизов? Как собираетесь материал туда подавать, дом все перекрыл Посилання на коментар Поділитися на інших сайтах More sharing options...
Рекомендовані повідомлення