Interso Опубліковано: 17 грудня 2010 Поділитись Опубліковано: 17 грудня 2010 Я насос найду в течении 2часов. На всё систему отопления устанавливается стабилизатор+ИБП. Котёл Logamax от Будерус. Заказчик ознакомлен с требованиями к теплообеспечению зданий 1-й категории Зачем его искать тогда когда чтото случится, если его можно сразу установить в схему отопления. Я имел ввиду посредника поставки этих котлов. Посилання на коментар Поділитися на інших сайтах More sharing options...
Korni Опубліковано: 17 грудня 2010 Автор Поділитись Опубліковано: 17 грудня 2010 .....его можно сразу установить в схему отопления....... Это решение избыточно. Дилера, думаю, указывать не стоит. Но, заверяю вас, это очень опытная компания, лидер рынка. Посилання на коментар Поділитися на інших сайтах More sharing options...
Interso Опубліковано: 17 грудня 2010 Поділитись Опубліковано: 17 грудня 2010 Я насос найду в течении 2часов. На всё систему отопления устанавливается стабилизатор+ИБП. Котёл Logamax от Будерус. Заказчик ознакомлен с требованиями к теплообеспечению зданий 1-й категории Это решение избыточно. Дилера, думаю, указывать не стоит. Но, заверяю вас, это очень опытная компания, лидер рынка. Я веду к тому если в этом замешан Romi9999 то тогда понятны его саркастические ответы на дополнение или изменение схемы отопления. Хотя я в этих дополнениях ничего плохого невижу. Посилання на коментар Поділитися на інших сайтах More sharing options...
Сергей 31 Опубліковано: 17 грудня 2010 Поділитись Опубліковано: 17 грудня 2010 Который день елозите бедную гидрострелку. Я Вам новую темку подброшу, хоть интересней будет. Кто как относится к петле Тихельмана? Посилання на коментар Поділитися на інших сайтах More sharing options...
murava Опубліковано: 17 грудня 2010 Поділитись Опубліковано: 17 грудня 2010 Я к ней хорошо отношусь..... уважительно. Посилання на коментар Поділитися на інших сайтах More sharing options...
Korni Опубліковано: 17 грудня 2010 Автор Поділитись Опубліковано: 17 грудня 2010 ....Кто как относится к петле Тихельмана? Фото давай. Посилання на коментар Поділитися на інших сайтах More sharing options...
bgt Опубліковано: 18 грудня 2010 Поділитись Опубліковано: 18 грудня 2010 Который день елозите бедную гидрострелку. Я Вам новую темку подброшу, хоть интересней будет. Кто как относится к петле Тихельмана? тоже хорошо отношусь ) на больших котлах устанавливаю, иногда практикую при обвязке коллекторов внутрипольных ) На фото переделки одной топочной, где стояли 4 котла по 84 кВт. При паралелной обвязке котлов от гребенки больше всех работали котлы, которые ближе к гребенке, а дальние стояли без разбора теплоносителя. Петля Тихельмана исправила всю картину, все котлы работали в одинаковом режиме. Равномерно нагревались, и расномерно отдавали тепло. Также была установленна многокотловая автоматика, которая этот процесс контролировала ) Гугл нашел вот это: www.poisk-ir.ru/text6.htm Посилання на коментар Поділитися на інших сайтах More sharing options...
Interso Опубліковано: 18 грудня 2010 Поділитись Опубліковано: 18 грудня 2010 Возвращаюсь к этой теме по новой так как есть несколько вопросов по выбранной схеме Korni пост 86. Вопрос в следующем. При протопке ТТ и нагреве ТА дальше этот теплоноситель подхватывает КК и качает через ГС, по мере остывания температуры в ТА газ.котёл будет плавно включатся и доганять температуру до заданного значения.Так как обратка будет проходить через ГС и на прямую в ТА. Вопрос- Когда газовый котёл выйдет с этого режима КК+ГС+ТА в режим на прямую КК+ГС. Второй вопрос к Romi9999. Сообщение от romi9999 Автоматика имеет функцию "распознавание тепла извне", т.е. все будет работать корректно, автоматика не будет ставится в тупик,- откуда тепло при выключенной горелке. А при недостатке температуры, мягко включится газкотел (помним, что горелка модулированная) и подымет температуру до необходимой (например в ТА Т=45гр, но нужно подогреть ГВС). Что это за функция такая"распознавание тепла извне", чем он меряет это тепло и как определяет, надо догревать теплоноситель или ненадо. Если на место этого котла поставить другой самый простой газовый котёл без так званой функции"распознавание тепла извне"то что он будет както иначе реагировать на изменение температуры в его теплообменнике. Как по мне он также либо будет догревать теплоноситель либо небудет догревать. Дак всётаки что это за функция такая "распознавание тепла извне" и в чём состоит её суть??? Посилання на коментар Поділитися на інших сайтах More sharing options...
romi9999 Опубліковано: 18 грудня 2010 Поділитись Опубліковано: 18 грудня 2010 ....Хотя я в этих дополнениях ничего плохого невижу. ...Настойчивый вы наш... Хорошо давайте дополним, но тогда задействуем электрокотел, увеличив время выбега насоса, задействовав выход для комнатного термостата с целью включения только при отсутствии другого источника тепла, и корректно согласуем работу еще нескольких трехходовиков. Вот наша первая схема - работает ТТ(генерация тепла) + КК(как бустерный насос) + 4121 (распределение тепла). После выработки ТА переключается в схему три. Вторая схема - ТТ (генерация тепла) + ЭК (как бустерный насос) + 4121 (распределение тепла). После выработки ТА переключается в схему четыре. Третья схема вытекает из первой после выработки ТА. КК (генерация тепла) + 4121 Четвертая схема вытекает из второй после выработки ТА. ЭК (генерация) +4121 Блин, два часа пыхтел-рисовал. Теперь давайте, критикуйте... может где-то обратный клапан нужно добавить, или еще чего. P.S. А к Тихельману (Тигельману) замечательно отношусь. И считаю что при параллельном подключении котлов, бойлеров - применять обязательно.TT+KK.docТТ+ЭК.docKK.docЭК.doc 5 Посилання на коментар Поділитися на інших сайтах More sharing options...
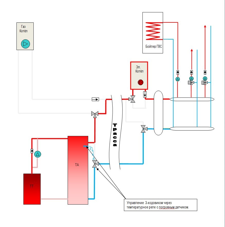
Interso Опубліковано: 18 грудня 2010 Поділитись Опубліковано: 18 грудня 2010 Вот это совсем другое дело,Эл.котёл выполняет функцию и резервного насоса. 1 Посилання на коментар Поділитися на інших сайтах More sharing options...
Korni Опубліковано: 18 грудня 2010 Автор Поділитись Опубліковано: 18 грудня 2010 Вот это совсем другое дело..... Всё-таки, не стоит цитировать избыточно и нарушать правила форума.... Может подправите, убрав рисунки в цитате? Посилання на коментар Поділитися на інших сайтах More sharing options...
Сергей 31 Опубліковано: 18 грудня 2010 Поділитись Опубліковано: 18 грудня 2010 Блин, два часа пыхтел-рисовал. Не знаю, кто как. Лично я оценил. Такие красивые разноцветные квадратики получились. Посилання на коментар Поділитися на інших сайтах More sharing options...
Korni Опубліковано: 18 грудня 2010 Автор Поділитись Опубліковано: 18 грудня 2010 ...Блин, два часа пыхтел-рисовал. .... Я сейчас собираю потихоньку шаблоны для Visio .... закончу - поделюсь С ГОСТовскими условными обозначениями надо повозиться.... с фото-обозначениями проще 1 Посилання на коментар Поділитися на інших сайтах More sharing options...
Котельщик Опубліковано: 18 грудня 2010 Поділитись Опубліковано: 18 грудня 2010 ХА!! С показанным на схеме ЭК и трехходовиками возле него все выглядит очень даже и очень симпатично. Двойное резервирование со стороны источника эсть, больше уже и не надо. Мало шансов что навернется и ЭК и КК одновременно. Петля Тихельмана хорошая весчь, завсегда применяю с котлами и если несколько баков ГВС. Но есть нюанс, надо применять висмановскую схему, с электрозадвижкой на подаче, для перекрытия протока через неработающий котел. Кстати у БГТ на фотке отлично видно задвижку. Столкнулись с ситуацией при наладке минимальных режимов. Переток воды через неработающие котлы не давал поднять температуру на подаче. Кстати опытным путем проверил, что можно подымать скорость в ГС до 0,2-0,25 без ущерба работоспособности. К слову о гидрострелках :D 1 Посилання на коментар Поділитися на інших сайтах More sharing options...
Сергей 31 Опубліковано: 18 грудня 2010 Поділитись Опубліковано: 18 грудня 2010 К слову о гидрострелках :D О, Сане "Korni" как раз такая, как на фото и нужна. И что бы нес ее сам. 1 Посилання на коментар Поділитися на інших сайтах More sharing options...
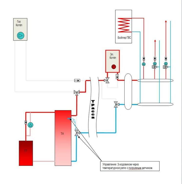
Interso Опубліковано: 18 грудня 2010 Поділитись Опубліковано: 18 грудня 2010 (змінено) У меня получилось вот так.;) Но тем не менее есть вопрос? и он остаётся открытым, если протопить ТТ+ТА+КК+ГС то когда эта схема перейдёт в цикл КК+ГС ,есть такое подозрение что в этот цикл он неперейдёт и останется работать в цикле КК+ГС+ТА.TT+KK+ГС.docKK+ГС.docTT+ЭК+ГС.docЭК+ГС.doc Змінено 18 грудня 2010 користувачем Interso Посилання на коментар Поділитися на інших сайтах More sharing options...
Korni Опубліковано: 18 грудня 2010 Автор Поділитись Опубліковано: 18 грудня 2010 .....как раз такая, как на фото и нужна.... Я из меди спаяю на объекте.... :D Посилання на коментар Поділитися на інших сайтах More sharing options...
Сергей 31 Опубліковано: 18 грудня 2010 Поділитись Опубліковано: 18 грудня 2010 Я из меди спаяю на объекте.... :D Такую, как на фото? Посилання на коментар Поділитися на інших сайтах More sharing options...
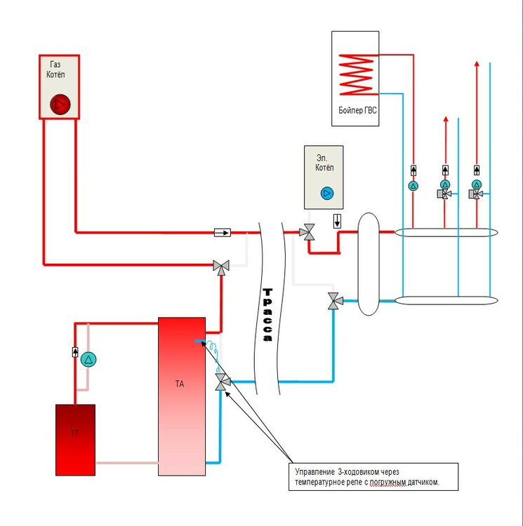
romi9999 Опубліковано: 18 грудня 2010 Поділитись Опубліковано: 18 грудня 2010 У меня получилось вот так.;) Так, при работе только ЭК, теплоноситель гонит по всей трассе. Лишние потери. Посилання на коментар Поділитися на інших сайтах More sharing options...
Interso Опубліковано: 18 грудня 2010 Поділитись Опубліковано: 18 грудня 2010 Так, при работе только ЭК, теплоноситель гонит по всей трассе. Лишние потери. Ну если вы щитаете что потери по трасе будут большие то можно сделать вот так.ЭК+ГС.doc Посилання на коментар Поділитися на інших сайтах More sharing options...
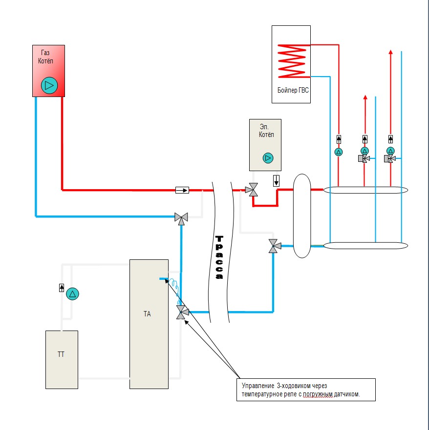
romi9999 Опубліковано: 18 грудня 2010 Поділитись Опубліковано: 18 грудня 2010 Ну если вы щитаете что потери по трасе будут большие то можно сделать вот так. Можно, но клапан нужно ставить на трассу, иначе все равно будет подсос через нее.ЭК+ГС-1.doc Посилання на коментар Поділитися на інших сайтах More sharing options...
Korni Опубліковано: 18 грудня 2010 Автор Поділитись Опубліковано: 18 грудня 2010 Количество клапанов растёт и растёт.....:D Уже сделано в конкретном случае. Переделываться не будет. ЭК работает на полы. Посилання на коментар Поділитися на інших сайтах More sharing options...
Interso Опубліковано: 18 грудня 2010 Поділитись Опубліковано: 18 грудня 2010 Можно, но клапан нужно ставить на трассу, иначе все равно будет подсос через нее. Небудет подсоса потому-что слишком большое сопротивление трасы+обр.клапан и трёхходовой относительно ГС. Посилання на коментар Поділитися на інших сайтах More sharing options...
Котельщик Опубліковано: 18 грудня 2010 Поділитись Опубліковано: 18 грудня 2010 Я из меди спаяю на объекте.... :D :lol: Посилання на коментар Поділитися на інших сайтах More sharing options...
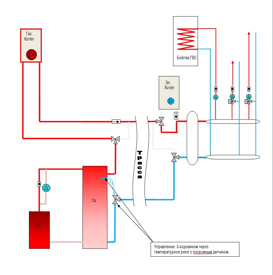
Interso Опубліковано: 18 грудня 2010 Поділитись Опубліковано: 18 грудня 2010 Количество клапанов растёт и растёт.....:D А вот так нерастёт;)ЭК+ГС.doc Посилання на коментар Поділитися на інших сайтах More sharing options...
Рекомендовані повідомлення
Створіть акаунт або увійдіть у нього для коментування
Ви маєте бути користувачем, щоб залишити коментар
Створити акаунт
Зареєструйтеся для отримання акаунта. Це просто!
Зареєструвати акаунтУвійти
Вже зареєстровані? Увійдіть тут.
Увійти зараз