mastervovik Опубліковано: 9 листопада 2021 Поділитись Опубліковано: 9 листопада 2021 Форумчане-оконщики, подскажите пожалуйста, насколько критичны подкладки 30 под стеклопакет 40? Дело в том, что даже в Гугле нашел в розницу только 30мм. 40 только крупный опт! С фальцевыми вкладышами вообще грусть-печаль, про нихдаже олх не знает😱, и тоже только опт... Посилання на коментар Поділитися на інших сайтах More sharing options...
Алік Опубліковано: 9 листопада 2021 Поділитись Опубліковано: 9 листопада 2021 Критично. Подкладка должна быть шире пакета, под пакет 40 мм ставится подкладка 42 мм. В крайнем случае, можно нарезать из каждой 30х100 по две штуки 42х30 и поставить их большее количество. Но вроде бы есть и в розницу: prom.ua/ua/p66673732-podkladka-pod-steklopaket.html vbh24.com.ua/ua/p1006078440-regulirovochnaya-podkladka-dlya.html www.chesnokov.com.ua/katalog/furnitura/podkladki-pod-steklopaket-42mm*2mm.html Там же и фальцевые найти можно. Они профилезависимые, нужно подбирать по профилю. 1 Посилання на коментар Поділитися на інших сайтах More sharing options...
mastervovik Опубліковано: 10 листопада 2021 Поділитись Опубліковано: 10 листопада 2021 (змінено) 19 часов назад, Алік сказал: Критично. Подкладка должна быть шире пакета, под пакет 40 мм ставится подкладка 42 мм. В крайнем случае, можно нарезать из каждой 30х100 по две штуки 42х30 и поставить их большее количество. Но вроде бы есть и в розницу: prom.ua/ua/p66673732-podkladka-pod-steklopaket.html vbh24.com.ua/ua/p1006078440-regulirovochnaya-podkladka-dlya.html www.chesnokov.com.ua/katalog/furnitura/podkladki-pod-steklopaket-42mm*2mm.html Там же и фальцевые найти можно. Они профилезависимые, нужно подбирать по профилю. Блин, поздно увидел( Уже выслали 40мм Всем выше перечисленым и не только, выслал вчера заказы, все отменили)) Все продают упаковками (от 500шт), сказали что ни кто мне сидеть отсчитывать 100-200шт не будет)) Пришлось заказать упаковку 5мм, а хотелось разных толщин набрать. Буду под низ класть 5мм сороковку, а на бока/верх думал 32 класть, если критично, то буду нарезать поперек Спасибо! Змінено 10 листопада 2021 користувачем mastervovik Посилання на коментар Поділитися на інших сайтах More sharing options...
Tarasiy Опубліковано: 11 листопада 2021 Поділитись Опубліковано: 11 листопада 2021 (змінено) Дякую форумчанам, як я уже зрозумів 60-та система не проходить по теплоопору щодо ВІКОН (норма 0,75) Будівельні норми однак більш поблажливі щодо вхідних ДВЕРЕЙ (норма 0,6) І дверна група в 60тій системі Рехау значно дешевша ніж дверна група в 70тій системі Рехау. Питання: по будів нормах теплоопору зовнішні двері в 60тій системі проходять? Змінено 11 листопада 2021 користувачем Tarasiy Посилання на коментар Поділитися на інших сайтах More sharing options...
Алік Опубліковано: 11 листопада 2021 Поділитись Опубліковано: 11 листопада 2021 R-0,6 досягається досить легко навіть у 60-й серії. 2 Посилання на коментар Поділитися на інших сайтах More sharing options...
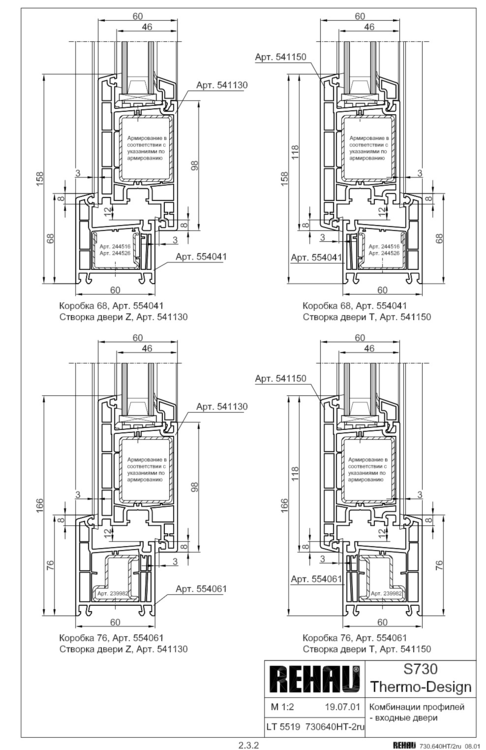
Tarasiy Опубліковано: 16 листопада 2021 Поділитись Опубліковано: 16 листопада 2021 (змінено) Вхідні двері, вхідний профіль Рехау (98 або 118 залежно від відкривання). Чи допускається в якихось випадках 68 дверна коробка чи це однозначно має бути тільки 76 коробка? Змінено 16 листопада 2021 користувачем Tarasiy Посилання на коментар Поділитися на інших сайтах More sharing options...
Алік Опубліковано: 16 листопада 2021 Поділитись Опубліковано: 16 листопада 2021 Рехау допускає і 68 коробку. https___window-planning.rehau.com_index.php.pdf 1 Посилання на коментар Поділитися на інших сайтах More sharing options...
Tarasiy Опубліковано: 17 листопада 2021 Поділитись Опубліковано: 17 листопада 2021 Дякую! Отож маємо зовнішні двері в 60тій системі, Т118 стулка, 68 коробка шириною 96 см і висотою 245 см (дверна коробка буде спільна для дверей разом із невисокою близько 30 см фрамугою) Зразу до дверей зі сторони замка і ручки буде примикати вікно, яке починається із висоти 85 см. Так-от, яка Ваша думка - чи потрібно якесь посилення армування в рамах вікна /дверей в місці стику двері-вікно? або наскільки потрібно / бажано якийсь окремий посилюючий профіль між вікном і дверима? Посилання на коментар Поділитися на інших сайтах More sharing options...
FTR Опубліковано: 17 листопада 2021 Поділитись Опубліковано: 17 листопада 2021 1 час назад, Tarasiy сказал: Дякую! Отож маємо зовнішні двері в 60тій системі, Т118 стулка, 68 коробка шириною 96 см і висотою 245 см (дверна коробка буде спільна для дверей разом із невисокою близько 30 см фрамугою) Зразу до дверей зі сторони замка і ручки буде примикати вікно, яке починається із висоти 85 см. Так-от, яка Ваша думка - чи потрібно якесь посилення армування в рамах вікна /дверей в місці стику двері-вікно? або наскільки потрібно / бажано якийсь окремий посилюючий профіль між вікном і дверима? Рама дверей со створкой Т118 и рама фрамуги должны быть раздельными. Конструкция из двух частей. В вашем варианте (спільна коробка) у фрамуги штапик будет снаружи а водоотвод внутрь. Между окном и дверной конструкцией необходимо установить дополнительное армирование исходя из требований статики, например пластину 6х70. Пластину обязательно закрепить крепёжными консолями вверху и внизу. Рама 76 позволит установить более усиленное армирование (в которое крепятся дверные петли) и возможность более оптимального угла открывания створки. У фрамуги 300 мм видимая часть стеклопакета будет 172 мм ( с рамой 64) рекомендую увеличить высоту фрамуги до 350 мм Посилання на коментар Поділитися на інших сайтах More sharing options...
Алік Опубліковано: 17 листопада 2021 Поділитись Опубліковано: 17 листопада 2021 2 години тому, Tarasiy сказав: чи потрібно якесь посилення армування в рамах вікна /дверей в місці стику двері-вікно? або наскільки потрібно / бажано якийсь окремий посилюючий профіль між вікном і дверима? ІМХО не обов'язково. 44 хвилини тому, FTR сказав: Рама 76 позволит установить более усиленное армирование И в 68-ю, и в 76-ю раму идёт армирование 35х28 Посилання на коментар Поділитися на інших сайтах More sharing options...
FTR Опубліковано: 17 листопада 2021 Поділитись Опубліковано: 17 листопада 2021 (змінено) 10 часов назад, Алік сказал: И в 68-ю, и в 76-ю раму идёт армирование 35х28 Вынужден вас поправить коллега. Практика показывает, что лучшее армирование в раму 76 подходит армирование 35х35 (арт. 239 982) Данное армирование имеет замкнутый сварной контур, и поставляется исключительно компанией Рехау. Стандартное армирование 35х28 производится в Украине (с двойным загибом также) геометрия и сечение которого оставляет желать лучшего. Дверные петли закреплённые через две стенки замкнутого армирования (239 982), при открывании створки под критичным углом 45* работают гораздо надёжнее, чем закреплённые в одну стенку армирования 35х28 (даже толщ 2 мм, если поставят его а не 1,5 мм) Змінено 17 листопада 2021 користувачем FTR Посилання на коментар Поділитися на інших сайтах More sharing options...
FTR Опубліковано: 17 листопада 2021 Поділитись Опубліковано: 17 листопада 2021 10 часов назад, Алік сказал: ІМХО не обов'язково. Согласен - не обязательно. Но, хлопнувшая дверная створка от сквозняка или порыва ветра, может привести к разрушению стеклопакета в глухом окне сопряженного с дверной конструкцией. Такие случаи неоднократно встречались у многих переработчиков, поэтому рекомендации компании Рехау - сопряжение входной группы с оконной конструкцией усиливать дополнительным армированием. Посилання на коментар Поділитися на інших сайтах More sharing options...
Алік Опубліковано: 18 листопада 2021 Поділитись Опубліковано: 18 листопада 2021 13 годин тому, FTR сказав: лучшее армирование в раму 76 подходит армирование 35х35 (арт. 239 982) Согласен, но не вижу смысла использовать самый мощный вариант армирования из семи возможных, особенно в контексте данного конкретного случая. Посилання на коментар Поділитися на інших сайтах More sharing options...
Алік Опубліковано: 18 листопада 2021 Поділитись Опубліковано: 18 листопада 2021 12 годин тому, FTR сказав: хлопнувшая дверная створка от сквозняка или порыва ветра, может привести к разрушению стеклопакета в глухом окне сопряженного с дверной конструкцией Ну, это какой-то фугасный "хлопок" должен произойти или торнадо. Посилання на коментар Поділитися на інших сайтах More sharing options...
Tarasiy Опубліковано: 18 листопада 2021 Поділитись Опубліковано: 18 листопада 2021 (змінено) Якщо говорити про посилюючий профіль, то між балконними дверима шириною 730 мм з подвійним склопакетом і глухим вікном на всю висоту мені однозначно кажуть ставити посилючий профіль - а саме оту пластину товщиню 6мм (ціна за 2,4 метра висоти біля 40 євро) Чи це оптимальний варіант по ціна/результат? інші варіанти посилення? не такі дорогі? і мабуть достатні? зокрема артикул 350286 (чомусь в нього назва компенсуючий профіль)? Змінено 18 листопада 2021 користувачем Tarasiy Посилання на коментар Поділитися на інших сайтах More sharing options...
Алік Опубліковано: 18 листопада 2021 Поділитись Опубліковано: 18 листопада 2021 Компенсаторний профіль теж недешевий. Я вважаю, що в даному випадку можна обійтися підсиленим армуванням рами глухого вікна зі сторони дверей і 35х28х2 з подвійними загинами в рамі дверей. Посилання на коментар Поділитися на інших сайтах More sharing options...
Tarasiy Опубліковано: 18 листопада 2021 Поділитись Опубліковано: 18 листопада 2021 (змінено) Дякую, Аліку! я теж думаю в цьому напрямку. Обтяжливий фактор - вітри, вершина гори, перша лінія. Відкритий простір. Калькулятор вітрового навантаження показує, що треба Lх=15 35х28х2 з подвійними загинами в глухому вікні Lх=5 в додаток 35х28х2 з подвійними загинами в рамі дверей Lх=5 Разом Lх=10 ЧИ можемо до цього додати Lх армування самої стулки висотою 2,10м (0,35м буде фрамуга)? - коли стулка відрита вітрове навантаження автоматично зменшить, бо вітер проходитиме у вікно? так чи не зовсім? а коли двері балконні закриті то їх армування буде посилювати армування рам , працюватиме спільно? Чи надто впритик? Змінено 18 листопада 2021 користувачем Tarasiy Посилання на коментар Поділитися на інших сайтах More sharing options...
Алік Опубліковано: 18 листопада 2021 Поділитись Опубліковано: 18 листопада 2021 Ні, Lх стулки не додається. Тоді доведеться з'єднувати через пластину 6х70. 1 Посилання на коментар Поділитися на інших сайтах More sharing options...
FTR Опубліковано: 18 листопада 2021 Поділитись Опубліковано: 18 листопада 2021 9 часов назад, Алік сказал: Ну, это какой-то фугасный "хлопок" должен произойти или торнадо. Увы, самый обычный порыв ветра может привести к такому хлопку. Особенно если окно выходит на открытое пространство. Поэтому чучше один раз "переплатить" за стальную пластину, чем пять раз менять стеклопакеты. ИМХО 1 Посилання на коментар Поділитися на інших сайтах More sharing options...
Tarasiy Опубліковано: 19 листопада 2021 Поділитись Опубліковано: 19 листопада 2021 Ваша думка про теплу підвіконну планку blauberg? які можливі тут нюанси? Посилання на коментар Поділитися на інших сайтах More sharing options...
Алік Опубліковано: 19 листопада 2021 Поділитись Опубліковано: 19 листопада 2021 Взагалі ЕППС в площині вікна - це добре. Єдине, що на використовував би його під важкими конструкціями. 1 Посилання на коментар Поділитися на інших сайтах More sharing options...
Tarasiy Опубліковано: 20 листопада 2021 Поділитись Опубліковано: 20 листопада 2021 (змінено) Кріплення ПВХ вікна турбошурупами. Проєм цегляний. Є два варіанти: А) шляпка шурупа прижимається до пластика рами, шляпку видно. Б) шляпка шурпа закручується глибше аж до основи армування. – але для чого? Хіба нам треба тримати вікно на відрив від правого чи лівого відкосу? Основна задача - не дозволяти вікну зміщуватися всередину приміщення чи на ззовні і варіант А цілком це задовольняє. При варіанті А отвір у пластику менший (діаметр шурупа менший ніж діаметр шляпки) Чи є принципова різниця між цими варіантами кріплення? Нюанси? Змінено 20 листопада 2021 користувачем Tarasiy Посилання на коментар Поділитися на інших сайтах More sharing options...
Алік Опубліковано: 20 листопада 2021 Поділитись Опубліковано: 20 листопада 2021 Тільки естетична. Але у обидвох випадках можна закрити шляпки турбошурупів або отвори в рамі заглушками. 1 Посилання на коментар Поділитися на інших сайтах More sharing options...
FTR Опубліковано: 20 листопада 2021 Поділитись Опубліковано: 20 листопада 2021 3 часа назад, Tarasiy сказал: Кріплення ПВХ вікна турбошурупами. Проєм цегляний. Є два варіанти: А) шляпка шурупа прижимається до пластика рами, шляпку видно. Б) шляпка шурпа закручується глибше аж до основи армування. – але для чого? Хіба нам треба тримати вікно на відрив від правого чи лівого відкосу? Основна задача - не дозволяти вікну зміщуватися всередину приміщення чи на ззовні і варіант А цілком це задовольняє. При варіанті А отвір у пластику менший (діаметр шурупа менший ніж діаметр шляпки) Чи є принципова різниця між цими варіантами кріплення? Нюанси? Вариант В - турбовинт вкручивается до основы армирования (что позволяет сохранить и отрегулировать необходимую геометрию конструкции вследствие давления пены), отверстие в раме рассверливается до 14 мм и закрывается пластиковой заглушкой (пробкой). Герметично и эстетично. В первом варианте турбовинт остаётся в пластике видимым, накладные заглушки закроют неэстетичный вид, но со временем могут выпадать (выпадают даже приклеенные). 1 Посилання на коментар Поділитися на інших сайтах More sharing options...
Tarasiy Опубліковано: 22 листопада 2021 Поділитись Опубліковано: 22 листопада 2021 Зорієнтуйте, будь ласка, чи від початку листопада - за останні тижні, дорожчав сам профіль Рехау? Що відбувається з цінами на профіль? Посилання на коментар Поділитися на інших сайтах More sharing options...
Рекомендовані повідомлення
Створіть акаунт або увійдіть у нього для коментування
Ви маєте бути користувачем, щоб залишити коментар
Створити акаунт
Зареєструйтеся для отримання акаунта. Це просто!
Зареєструвати акаунтУвійти
Вже зареєстровані? Увійдіть тут.
Увійти зараз