vadimv Опубліковано: 27 березня 2012 Поділитись Опубліковано: 27 березня 2012 (змінено) Немного предыстории. Было у нас две родительские дачи, обе они мне не нравились (одна в чистом поле, вторая далеко от города и обе далеко от реки), поэтому было решено купить третью. Но время шло, денег уже хватало на большее и появилась идея купить домик в пригороде. Тут как раз грянул кризис 2008 г. и цены уполовинились. Настал наш момент. За год было осмотрено больше десятка вариантов, из которых в последний день 2009 г. был куплен старый деревянный дом 65 кв.м (с прицелом на перепланировку или снос) с участком 16 соток в живописном районе г.Сумы. Сосновый лес, чистая речка с песчаными пляжами в 5 минутах езды на велосипеде, рядом магазин и остановка транспорта. Кроме дома на участке уже были свет, газ, скважина с насосом, сельский погреб (склеп-бункер), туалет типа "сортир" и пара полуразвалившихся сараев. На первой фотке вид на участок из космоса. Остальные сделаны летом 2009 г. Змінено 27 березня 2012 користувачем vadimv 1 1 Посилання на коментар Поділитися на інших сайтах More sharing options...
vadimv Опубліковано: 27 березня 2012 Автор Поділитись Опубліковано: 27 березня 2012 (змінено) За два года, пока дом использовался под дачу, была размечена и огорожена земля, приведена в порядок территория, снесены и спалены сараи, над погребом сделан сарай из профнастила, поставлены тепличка и летний душ, шифер от любопытного соседа, сделаны вторые ворота пошире и двор подготовлен к стройке. Змінено 27 березня 2012 користувачем vadimv Посилання на коментар Поділитися на інших сайтах More sharing options...
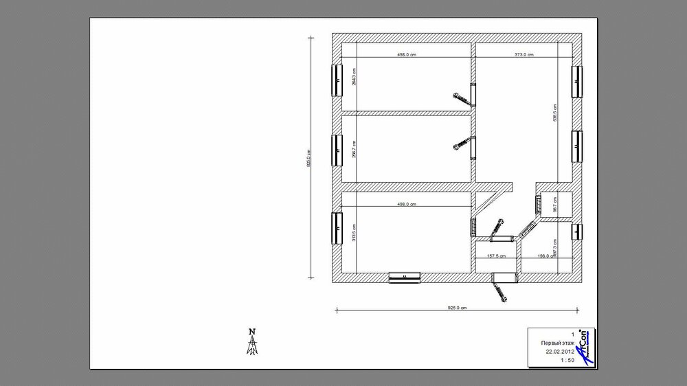
vadimv Опубліковано: 27 березня 2012 Автор Поділитись Опубліковано: 27 березня 2012 (змінено) За эти же два годы мы наконец определились, что именно хотим построить на месте старого дома. Получился примерно вот такой набросок. Одноэтажный домик 9х9 (внутри примерно 8х8, стены из пеноблока 30 см с утеплением пенопластом, чердак неотапливаемый (летняя комната-кладовка). Три отдельные комнаты (для 2-х детей и 2-х взрослых), кухня-гостиная, ванная, туалет и прихожая. Необходимый минимум для постоянного проживания. Проект, по которому будет вестись стройка, еще дорабатывается. Возможно, перегородка между меньшими комнатами будет сделана из гипсокартона с перспективой убрать ее со временем и сделать большую комнату 4,5х5 (для проживания 2-х взрослых). Змінено 27 березня 2012 користувачем vadimv Посилання на коментар Поділитися на інших сайтах More sharing options...
vadimv Опубліковано: 27 березня 2012 Автор Поділитись Опубліковано: 27 березня 2012 За осень, зиму и начало весны заглушили газ, перенесли свет, и развалили хату. Сейчас идет вывоз мусора и планировка площадки. Посилання на коментар Поділитися на інших сайтах More sharing options...
DEN24 Опубліковано: 27 березня 2012 Поділитись Опубліковано: 27 березня 2012 Если не секрет, в каком районе г. Сумы дача? Посилання на коментар Поділитися на інших сайтах More sharing options...
vadimv Опубліковано: 27 березня 2012 Автор Поділитись Опубліковано: 27 березня 2012 Начало Барановки. 1 Посилання на коментар Поділитися на інших сайтах More sharing options...
fomarin Опубліковано: 27 березня 2012 Поділитись Опубліковано: 27 березня 2012 Возможно, перегородка между меньшими комнатами будет сделана из гипсокартона с перспективой убрать ее со временем и сделать большую комнату 4,5х5 (для проживания 2-х взрослых). Думаю, что стоит делать сравнительно легко убираемую перегородку между меньшими комнатами. Размер у маленьких комнат не очень подходящий, длинная кишка получается Посилання на коментар Поділитися на інших сайтах More sharing options...
Мечты сбываются Опубліковано: 27 березня 2012 Поділитись Опубліковано: 27 березня 2012 За два года, пока дом использовался под дачу, была размечена и огорожена земля, приведена в порядок территория, снесены и спалены сараи, над погребом сделан сарай из профнастила, поставлены тепличка и летний душ, шифер от любопытного соседа, сделаны вторые ворота пошире и двор подготовлен к стройке. А что это за стена такая, на последней фотке в данном посте, которая на пол двора тень даёт? склад какой-то? Посилання на коментар Поділитися на інших сайтах More sharing options...
Игореха Опубліковано: 27 березня 2012 Поділитись Опубліковано: 27 березня 2012 А что это за стена такая, на последней фотке в данном посте, которая на пол двора тень даёт? склад какой-то? Да похоже на какой-то склад. Очень паскудное соседство Вид весь портит. А с планировками я бы еще поигрался.... как-то оно не комфортно. Ну и относительно юга не очень удачное расположение имхо ;) Посилання на коментар Поділитися на інших сайтах More sharing options...
vadimv Опубліковано: 28 березня 2012 Автор Поділитись Опубліковано: 28 березня 2012 (змінено) А что это за стена такая, на последней фотке в данном посте, которая на пол двора тень даёт? склад какой-то? Это соседский гараж-хозблок. Тень на полдвора - это зимой, летом на пару метров. У меня в этом месте все равно будет стоять машина под навесом. Хотя могло быть и хуже - у самого этого соседа тень от двухэтажного соседского дома закрывает весь двор, да еще и окна на втором этаже смотрят прямо во двор. Да похоже на какой-то склад. Очень паскудное соседство :sad: Вид весь портит.Было бы еще хуже, если бы там двухэтажный дом стоял. А так мы дорожку вдоль стены засадим туями и папоротниками - будет красиво. :roll: А с планировками я бы еще поигрался.... как-то оно не комфортно. Ну и относительно юга не очень удачное расположение имхо :wink:Кстати, планировку я уже выкладывал в теме www.stroimdom.com.ua/forum/showthread.php?t=89343&highlight=%EF%F0%E8%ED%E8%EC%E0%E5%F2%F1%FF+%EA%F0%E8%F2%E8%EA%E0 Мы ее с женой два года проживания на месте и так и сяк крутили - это самый оптимальный вариант. Со стороны улицы - кухня и санузел, с юга - окна комнаты, где я буду работать, окна спален смотрят в сад, с севера от соседа глухая стена. Да, еще с юга по центру двора планирую воткнуть орех, будет со временем тень давать. Змінено 28 березня 2012 користувачем vadimv Посилання на коментар Поділитися на інших сайтах More sharing options...
Игореха Опубліковано: 29 березня 2012 Поділитись Опубліковано: 29 березня 2012 Кстати, планировку я уже выкладывал в теме www.stroimdom.com.ua/forum/showthread.php?t=89343&highlight=%EF%F0%E8%ED%E8%EC%E0%E5%F2%F1%FF+%EA%F0%E8%F2%E8%EA%E0 Мы ее с женой два года проживания на месте и так и сяк крутили - это самый оптимальный вариант. Со стороны улицы - кухня и санузел, с юга - окна комнаты, где я буду работать, окна спален смотрят в сад, с севера от соседа глухая стена. Да, еще с юга по центру двора планирую воткнуть орех, будет со временем тень давать. Хммм... я только сейчас посмотрел ту тему... Вам не кажется, что я не уникален? ;) Все как один в той теме сказали одно и тоже вам. Но вам критика не нужна, судя по всему Ну да ладно. Жить-то там вам. Хотя люди реально пытались помочь, ну или хотя бы наставить на правильный путь. 1 Посилання на коментар Поділитися на інших сайтах More sharing options...
vadimv Опубліковано: 30 березня 2012 Автор Поділитись Опубліковано: 30 березня 2012 (змінено) Вам не кажется, что я не уникален? ;)Я, кстати, с интересом читаю Вашу тему "Дом возле Макарова". :roll: Нет, Вы не уникальны, многие строят большие дома. Но во второй раз многие из них стоят дома намного меньше. Наши родственники, имея трехэтажный кирпичный коттедж 350 кв.м., зимой на выходные ездили греться в загородный домик из пеноблока площадью 100 кв.м. В коттедже зимой постоянно был дубарь, а на отопление уходило 1500-2000 грн ежемесячно.Все как один в той теме сказали одно и тоже вам. Но вам критика не нужна, судя по всему Ну почему же, в этой теме прозвучало подтверждение идеи, что перегородку между меньшими комнатами можно сделать съемной и со временем убрать. А что касается "критики" в стиле "у меня было тяжелое детство, мы жили вчетвером в одной комнате в коммуналке и теперь я себя чувствую некомфортно в помещении меньше 20 кв.м." - ну то таке, бывает.Ну да ладно. Жить-то там вам.Так в том и дело, что мы уже там жили два сезона. В доме с такой же площадью. И его реально хватало.Хотя люди реально пытались помочь, ну или хотя бы наставить на правильный путь. Правильный путь, я считаю, такой: Наблюдаю за темой "сколько кому метров квадратных нужно?" и понимаю, что дом выбирается не по метражу. Метраж - как критерий оценки, это неправильное мерило для такого масштабного проекта, как дом. Метры квадратные должны приносить пользу и отвечать на поставленные вопросы. Нерациональные 30 м2 будут намного хуже с точки зрения оценки результата, чем 15 м2 - рациональных и продуманных. Такое понятия, как эргономика жилого пространства напрочь упущена при оценочном подходе только с точки зрения площади. Каждый м2 дома - это несущие и ограждающие конструкции, это меблировка, это пол, по которому ходят люди, полки или шкафы, на которых хранится необходимое, кровати, столы и стулья, диваны, телевизоры, камины, кухонные поверхности. Думаю, более рационально будет ответить на вопрос - сколько м/погонных кухонного пространства нужно, какое расстояние от телевизора до дивана будет наиболее предпочтительно, сколько человек будут одновременно смотреть ТВ, или сидеть у камина, сидеть за обеденным столом. Что будет происходить в спальне - нужен ли там шкаф, туалетный столик и маленький пуфик, или эти функции будут вынесены в гардероб? После такого анализа, более глубокого, чем просто математический подсчет площадей, можно более обдумано отнестись к планировке, и вытекающей из нее разумной квадратуре комнат. Нужно построить сценарий жизни в доме, особенно тщательно это надо делать, если бюджет ограничен. www.stroimdom.com.ua/forum/showthread.php?t=92366Именно так, по сценарию жизни в доме, продуман каждый метр планировки. Что конкретно Вам кажется некомфортным в этой планировке? Расположение по сторонам света (конкретно на этом месте) - продумано до мелочей. Спальни выходят на запад (точнее юго-запад), в сад, там будет мало шума, пыли, и много света во второй половине дня (когда дети дома, а не в школе). На жаркую южную сторону выходит только одно окно. Летом его будет затенять орех, а зимой лишнее тепло и свет как раз не помешает. Кухня с востока, в ней будет светло утром, когда семья собирается на работу/в школу. Она же гостиная, место которой - со стороны улицы. Сценарий второй (через 5-10 лет): дети обзавелись семьями, живут отдельно. Перегородка убирается, бОльшая комната используется под спальню, меньшая - под рабочий кабинет или комнату для гостей. Змінено 30 березня 2012 користувачем vadimv 1 Посилання на коментар Поділитися на інших сайтах More sharing options...
Игореха Опубліковано: 30 березня 2012 Поділитись Опубліковано: 30 березня 2012 Я, кстати, с интересом читаю Вашу тему "Дом возле Макарова". Нет, Вы не уникальны, многие строят большие дома. Но во второй раз многие из них стоят дома намного меньше. Наши родственники, имея трехэтажный кирпичный коттедж 350 кв.м., зимой на выходные ездили греться в загородный домик из пеноблока площадью 100 кв.м. В коттедже зимой постоянно был дубарь, а на отопление уходило 1500-2000 грн ежемесячно.Ну почему же, в этой теме прозвучало подтверждение идеи, что перегородку между меньшими комнатами можно сделать съемной и со временем убрать. А что касается "критики" в стиле "у меня было тяжелое детство, мы жили вчетвером в одной комнате в коммуналке и теперь я себя чувствую некомфортно в помещении меньше 20 кв.м." - ну то таке, бывает.Так в том и дело, что мы уже там жили два сезона. В доме с такой же площадью. И его реально хватало.Правильный путь, я считаю, такой: Именно так, по сценарию жизни в доме, продуман каждый метр планировки. Что конкретно Вам кажется некомфортным в этой планировке? Расположение по сторонам света (конкретно на этом месте) - продумано до мелочей. Спальни выходят на запад (точнее юго-запад), в сад, там будет мало шума, пыли, и много света во второй половине дня (когда дети дома, а не в школе). На жаркую южную сторону выходит только одно окно. Летом его будет затенять орех, а зимой лишнее тепло и свет как раз не помешает. Кухня с востока, в ней будет светло утром, когда семья собирается на работу/в школу. Она же гостиная, место которой - со стороны улицы. Сценарий второй (через 5-10 лет): дети обзавелись семьями, живут отдельно. Перегородка убирается, бОльшая комната используется под спальню, меньшая - под рабочий кабинет или комнату для гостей. Вопервых - спасибо за интерес к моей стройке Под "уникальностью" я не имел ввиду размеры домов Не считаю что у меня дом очень большой, слишком большой. Он достаточный. Для жизни мне бы и семье хватило и 120 квадратов с головой. И были у меня несколько проектов в стадии разработки с таким метражем. Но причины, по котрорым я увеличил площади где-то уже писал. Это - удаленность от города, и... ну люблю я гостей в своем доме ;) Эти факторы вылились в необходимость добавить пару спален. Вовторых, как тут (или там) правильно заметили, это не квартира. У вас не будет центрального (возможно) холодного водоснабжения и тем более горячего, у вас не будет центрального отопления. У вас не будет еще очень много чего "централизованного". Это все надо делать самому себе У вас не будет коммунальных служб, которые будут раз в 15-20 лет, с боями проводить ремонт дороги перед домом, заниматься облагораживанием придомовой территории, красить фасад дома и т.п. И даже если вы всем многоквартирным домом выйдете на субботник, забив на все коммунальные службы, то вилы, лопаты, грабли и тачки вы возъмете в подвале/жеке/у коменданта. В своем доме у вас будет автоном. Посмотрите и сравните. Сейчас ваш проект именно более походит на квартиру с очень скромной планировкой. Где ваши хозпомещения, топочная, и т.д.? Я не говорю что у вас должен быть бассейн (у меня его нету), бильярдная (но себе запланировал), оранжерея (у меня нету, но мне бы очень хотелось - финансы не позволяют), банкетный зал на 150 квадратов.... Но даже в хрущевках я не припомню комнат шириной 2,5 и длиною 5 метров. Я тоже когда-то жил в хрущевке с родителями, потом жили в доме с улучшенной планировкой, всегда приезжали летом в частный дом, жил и в другом частном доме, часто езжу в командировки и приходится останавливаться в самых разных гостиницах с разной планировкой и размерами номеров и комнат Вы реально жили в комнате шириной 250см? Я прекрасно понимаю что там можно поставить раскладной диван, да хоть раскладушку. Но комфортомэто не назовешь. И дело даже не в том, что "для нормальных пацанов" 250 см - это мало. Вы сами будете чувствовать дискомфорт постоянный. Выражение "стены давят" не просто говорит о том, что комната имеет малые размеры, а имеено о том, что слишком зажатые стены давят еще и на психику. Возожно вы будете испытывать постоянные проблемы, неспокойный сон, будуту раздражительными беспричинно, и не будете понимать чем это вызвано. А причина может быть банальна - вам будет некомфортно в таких узких комнатах. И не обязательно иметь боязнь замкнутого пространства. Что такое 2,5*5 метров? Это не много, не мало - 12,5 квадратов! Супер! Для небольшого дома очень даже оптимальная площадь для спальни. У меня большой дом? Очень?:D У меня 2 спальни и гостевая спальня - по 12,5-15,5 квадратов. И только лишь одна спальня (наша);) 26 квадратов. Просто для меня спальня - не только место, где пришел, упал, выспался, проснулся, убежал. Я люблю просто отдохнуть в спальне, посмотреть телевизор, иногда работаю за ноутом в спальне. Поэтому мне нужна спаленка побольше. Так вот, одна из спален 12,5. Такая же площадь как и у ваших. Но правда размеры чуть иные 2,95*4,3. А еще можно сделать 3,6*3,5. например. Но это уже будет совсем иное помещение! ;) При размерах комнат менее 3х метров (примерно) каждые 10см играют очень огромную роль для комфорта. И пропорции помещений - тоже. Для вашей коробки - очень! много комнат. Очень много - это не значит что их надо сделать на 3 меньше. При тьаком строительном объеме - достаточно убрать одну и картина изменится радикальнейшим образом! Не надо расчитывать, что дети когда-то уедут и потом вы снесете перегородку и заживете долго и счастливо. А сегодня и завтра вы не хотите жить комфортно? ;) Я не буду пророчить, но очень бы не хотелось от кого либо слышать "когда же уже эти дети повзрослеют, переженяться и свалят подальше - так пожить хочется а просторе!" Половина наших нервов - это не продуманный и необустроенный быт. Но если вы сами, своими руками решили создать этот быт (наверноле для того чтобы ощутить комфорт наконец-то), то зачем же с самого старта загонять себя все в теже рамки? Зачем вообще менять прежнее жилье на новое такое же жилье? Может вам больше нравится кочевой образ жизни? Душа требует постоянной смены мет обитания? Тогда стройте дом подешевле, из самого простого. чтобы он окупил себя лет за 5-10 и потом вы снова переедете. Но если вам жизненно необходимо иметь именно столько комнат и именно так, то прислушайтесь к советам. Либо меняйте конфигурацию коробки, и не пытайтесь вписать все те помещения в "заветный квадрат", либо не скупитесь и добавьте метр-другой к коробке. По поводу спален я уже вам привел пример. где при одном и том же размере, можнго получить совсем разный продукт на выходе. У меня тоже есть любовь к строгим прямоугольным и квадратным формам. У меня тоже коробка-кубик. Но там вроде все распланировано. Я делая проект, не пытался запихнуть все в квадрат. Вернее пытался, но если что-то не вписывалось в квадрат, то я увеличивал этот квадрат, а не пытался всеми немыслимыми образами "натянуть". Думайте. 23 Посилання на коментар Поділитися на інших сайтах More sharing options...
Игореха Опубліковано: 30 березня 2012 Поділитись Опубліковано: 30 березня 2012 И я так и не уловил, где у вас котельная? И детсике спальни выходят на кухню... А ваша комната - тоже спальня. Вы никогда не принимаете гостей?! Я так понимаю, если гости и бывают, то "зависать" вы будете на кухне? Чего же вы детей не пожалели? ;) Сделайте свою спальню совмещенной с кухней-столовой. А дети пусть себе отдыхают в тишине и спокойствии. А если ребенок захочет поздно вечером в туалет/душ пойти, почему он должен испытывать дискомфорт, одеваться как на улицу, потому что ему надо будет идти через кухню, где родители "зажигают"? ;) Вы привели хорошую цитату Нерациональные 30 м2 будут намного хуже с точки зрения оценки результата, чем 15 м2 - рациональных и продуманных. Для вас она звучит так (на примере размеров спален) - нерациональные 12,5м2 будут намного хуже, чем 12,5м2 - рациональных и продуманных. 1 Посилання на коментар Поділитися на інших сайтах More sharing options...
Игореха Опубліковано: 30 березня 2012 Поділитись Опубліковано: 30 березня 2012 Ну и еще один "мааааленьки" нюансик. Я не знаю в чем вы рисовали и вычисляли размеры, но судя по всему внутренних стен у вас просто нету, ну или внешние стены таки из фанерки. А на визуализации вроде как пеноблок. Вот вам реальная ситуация с вашими размерами коробки. Несущая 400мм. (у вас меньше? ;) ) а ВСЕ перестенки в 0,5 кирпича с тонким слоем штукатурки 150мм. Вы сделаете из ГК? Ну пусть будет 120мм. Вы хотите сделать 80мм? Простите за интимные подробности, но ваша спальня смежная с детскими комнатами ;) И в этом доме должна быть несущая внутренняя стена. Или перекрытие будет длинной 9 метров с опиранием только на несущие стены? Так что выбирайте смело один из перестенков и увеличивайте его в толщине еще на 150мм. То о чем я и говорил - тут каждые 10см имеют значение. И ваша спальня сразу стала не 330см, а 310см. А это уже совсем другая цифра 2 Посилання на коментар Поділитися на інших сайтах More sharing options...
vadimv Опубліковано: 30 березня 2012 Автор Поділитись Опубліковано: 30 березня 2012 (змінено) У вас не будет центрального (возможно) холодного водоснабженияБудет - водопровод проходит по улице в 3 м от дома.Где ваши хозпомещения, топочная, и т.д.?Топочная понадобится (и будет пристроена у входа), если надумаем ставить ТТ-котел. На данный момент планируется настенный двухконтурный газовый котел на кухне. Хозпомещения - сарай во дворе. Там все лопаты, грабли, тачки и т.д. Я не говорю что у вас должен быть бассейн (у меня его нету), бильярдная (но себе запланировал), оранжерея (у меня нету, но мне бы очень хотелось - финансы не позволяют), банкетный зал на 150 квадратов....Зал (как говорится "не приведи Господи") будет арендован в соответствующем заведении, вместо бассейна у нас чистая речка в 5 минутах, бильярдная - данунафиг, туда же оранжерея.Но даже в хрущевках я не припомню комнат шириной 2,5 и длиною 5 метров.А мне и припоминать не надо - мы в такой живем. Одна комната - 2,5х3,5 м, еще одна - 2х4,5. И общая площадь 49 кв.м. 8-) Выражение "стены давят" не просто говорит о том, что комната имеет малые размеры, а имеено о том, что слишком зажатые стены давят еще и на психику. Возожно вы будете испытывать постоянные проблемы, неспокойный сон, будуту раздражительными беспричинно, и не будете понимать чем это вызвано. А причина может быть банальна - вам будет некомфортно в таких узких комнатах. ... При размерах комнат менее 3х метров (примерно) каждые 10см играют очень огромную роль для комфорта. И пропорции помещений - тоже. Во-от! В часто вспоминаемом мною коттедже кухня имеет размеры 2,5(с учетом шкафов и холодильников)х4,5 и высоту потолков больше 3,5. Вот там стены давят. Потому что пропорции ширины и высоты не выдержаны. Такая же фигня в загородном доме - гостиная имеет размеры 12х5 при высоте... 2,7! Там потолок не то что давит, он начисто раздавливает, ощущение такое, что он вот-вот упадет. У нас соотношение высоты и ширины будет вполне привычное 2,5х2,7. Длина будет и так небольшой (4,5) и дополнительно сократится за счет шкафа у входа. Все, как говорится, просчитано, обдумано и учтено. А сегодня и завтра вы не хотите жить комфортно? :wink:А нам и так комфортно. В 49-метровой хрущовке всего 2 дискомфортных момента: одна из трех комнат - проходная (здесь все отдельные) и слишком маленькая кухня (здесь кухня как раз немаленькая).детсике спальни выходят на кухню... А ваша комната - тоже спальня. Вы никогда не принимаете гостей?!Принимаем, особенно летом. Все тусуются в саду, где у нас будет большая (человек на 10-15) беседка, мангал, садовая качель, прудик-фонтанчик и прочая хренотень. Зимой народу как правило меньше (человек 6-8 ), все поместятся в гостиной.если гости и бывают, то "зависать" вы будете на кухне? Чего же вы детей не пожалели? :wink: Сделайте свою спальню совмещенной с кухней-столовой. А дети пусть себе отдыхают в тишине и спокойствии.Насколько я заметил, дети и тишина - вещи несовместимые. Именно они оккупируют кухню, стол, телевизор и вовсю "зажигают" А если ребенок захочет поздно вечером в туалет/душ пойти, почему он должен испытывать дискомфорт, одеваться как на улицу, потому что ему надо будет идти через кухню, где родители "зажигают"? :wink:Чето у нас обычно взрослые быстрее валятся с ног и жаждут тишины и спокойствия. Старость, наверное, уже подбирается... Ну и еще один "мааааленьки" нюансик. Я не знаю в чем вы рисовали и вычисляли размеры, но судя по всему внутренних стен у вас просто нету, ну или внешние стены таки из фанерки. А на визуализации вроде как пеноблок. Вот вам реальная ситуация с вашими размерами коробки. Несущая 400мм. (у вас меньше? :wink: ) а ВСЕ перестенки в 0,5 кирпича с тонким слоем штукатурки 150мм. Вы сделаете из ГК? Ну пусть будет 120мм. Вы хотите сделать 80мм? Простите за интимные подробности, но ваша спальня смежная с детскими комнатами :wink: И в этом доме должна быть несущая внутренняя стена. Или перекрытие будет длинной 9 метров с опиранием только на несущие стены? Так что выбирайте смело один из перестенков и увеличивайте его в толщине еще на 150мм. То о чем я и говорил - тут каждые 10см имеют значение. И ваша спальня сразу стала не 330см, а 310см. А это уже совсем другая цифра Вся проблема в том, что коробку я рисовал в одной программе (ArCon), а мебель расставлял в другой (Vizio). Да, будет внутренняя несущая стена толщиной около 25 см. Считаем коробку: внешние стены - примерно 45 см (30 пеноблок + 10 пенопласт + штукатурка) внутренняя стена - 25 см перегородка из гипсокартона - 10 см Наружные размеры дома - 9,25 Вычитаем: 925 - (2*45 + 25 + 10) = 800 Это внутреннее пространство делится в соотношении 3 + 2,5 +2,5 ЗЫ: Отдельное "спасибо" за детализацию ощущения "дискомфорта". А то многие пишут, что им некомфортно, но не уточняют, что именно. Змінено 30 березня 2012 користувачем vadimv 3 Посилання на коментар Поділитися на інших сайтах More sharing options...
Игореха Опубліковано: 30 березня 2012 Поділитись Опубліковано: 30 березня 2012 Вижу что все решено Последний совет. Сделайте выносной тамбур. ;) Посилання на коментар Поділитися на інших сайтах More sharing options...
КОРН Опубліковано: 30 березня 2012 Поділитись Опубліковано: 30 березня 2012 Вижу что все решено Последний совет. Сделайте выносной тамбур. ;) Не последний совет. Делайте не выносной тамбур;) Ладно, это не принципиально:D Не последний совет 2: делайте тамбур и делайте его из ГБ. Добавлено через 19 минут У меня похожая с вами площадь дома, только форма сложнее и на одну комнату меньше, и он двухэтажный. Глядя пока с небольшой высоты личного опыта в строительстве я сейчас бы строил одноэтажный домик 85-100 кв.м. Когда идет борьба за сантиметры, чтобы поместилось вот это и остался проход хотя бы минимальный, когда есть всего один возможный вариант расстановки мебели, когда хозпомещения из дому выгоняют во двор - это не есть гуд. В строительстве маленький дом и чуть больше, но тоже не большой, не сильно отличаются. С каждым дополнительным квадратным метром (мы говорим о минимальных площадях) его стоимость падает, а комфорт сильно возрастает. что вас зажимает? у меня слишком узкий участок, поэтому такой маленький домик. 1 Посилання на коментар Поділитися на інших сайтах More sharing options...
Игореха Опубліковано: 30 березня 2012 Поділитись Опубліковано: 30 березня 2012 Не последний совет. Делайте не выносной тамбур;) Ладно, это не принципиально:D Не последний совет 2: делайте тамбур и делайте его из ГБ. . Ты бы расшифровал ;) Я то тебя понял, а человек может и не понять твоего тонкого намека:D;) Посилання на коментар Поділитися на інших сайтах More sharing options...
КОРН Опубліковано: 31 березня 2012 Поділитись Опубліковано: 31 березня 2012 Ты бы расшифровал ;) Я то тебя понял, а человек может и не понять твоего тонкого намека:D;) Я ничего не шифровал, владею на чайниковом уровне только общепринятыми языками. Я, например, не понял, что ты понял А что понял ТС? Посилання на коментар Поділитися на інших сайтах More sharing options...
vadimv Опубліковано: 31 березня 2012 Автор Поділитись Опубліковано: 31 березня 2012 А что понял ТС?Я еще раз взвесил ваши аргументы, еще семь раз перемерил комнату 2,5х3,5, и понял, что не хочу расширять коробку ни до 10х9, ни тем более до 10х10. Просто НЕ ХОЧУ. Хотя не исключаю, что возможно это и придется сделать. Что касается тамбура - если "покращення життя" совсем прижмет, достроим топочную с ТТ-котлом на входе, будет типа тамбур. Посилання на коментар Поділитися на інших сайтах More sharing options...
КОРН Опубліковано: 31 березня 2012 Поділитись Опубліковано: 31 березня 2012 Я еще раз взвесил ваши аргументы, еще семь раз перемерил комнату 2,5х3,5, и понял, что не хочу расширять коробку ни до 10х9, ни тем более до 10х10. Просто НЕ ХОЧУ. Хотя не исключаю, что возможно это и придется сделать. Что касается тамбура - если "покращення життя" совсем прижмет, достроим топочную с ТТ-котлом на входе, будет типа тамбур. Дело ваше. Да это и не абсолютный минимум. При таких размерах можно нормально жить. Только к планировке нужно подойти оччень ответственно. Расскажу страшную историю. На заре совместной жизни с моей женой в качестве свадебного подарка дед жены обещал нам завещать часть дома с отдельным входом и часть его участка. Комната была 3.6х5.5= 20 кв.м.(вернее две по 10 и 9 ). Перед комнатой еще был тамбур 7 квм с высотой потолка 190 см. В тамбуре стояла газплита. Это была и прихожая и кухня и кладовка. В проходной комнате стояла буржуйка, буфет, обеденный стол и кровать (9 кв.м.!). В дальней - спальня на три койки. Вот в таком жилье доживали лет 30-40 его (деда) родители. Вода в колодце, удобства во дворе. Мы уже разнежились по сравнению с ними. Так вот, жить нам с женой хотелось уже сегодня, поэтому мы запланировали сделать ремонт-реконструкцию-пристройку. Вот только дед сильно боевой, на все имеет свое государево мнение. И он решил (!), что нам будет достаточно из 7 метрового тамбура с низким потолком сделать 10ти метровый с нормальным. И в нем уже сделать нормальную кухню-санузел и прихожую. Псих! (сказал ежик...). Уломать деда на 12 квадратов было нереально. Про двухэтажность ваще молчу. После продолжительной психологической борьбы дед уступил еще 20 см. Я старался изобразить на бумаге самую минимальную площадь застройки, чтоб туда просто все по нормам влезло. У меня вышло 13.5 квадратов внутренней площади (16 квадратов пятно пристройки). Думали полуобманом сделать по-своему. Но когда я уже начал разбирать старый тамбур во мне вскипело негодование и я решил делать все совсем по-своему. И в один день придумал новый план пристройки пятном застройки 6х4, а сделал 7х4 в два этажа (внутренние 6.2х3.2). На такой площади у меня уже все поместилось и относительно нормально. Пришлось все же еще пристроить внешний тамбур 5,5 квадратов. Размеры комнат (это важно!): спальня 320х460, кухня 310х290+ ниша 150х60, санузел 156х220, гостинная-зал 360х550, тамбур 200х270. То о чем писал Игореха, комнаты в которых продолжительное время должны находиться люди не должны быть уже 300 см. И лучше, чтобы комнаты не были вагонами, пусть даже СВ. Комната, в которой я сейчас сижу, в плане 270х470, окно по узкой стороне 140х180. Светло днем только в первых двух третях комнаты от окна (чур окно мыть не предлагать!). Кровать поперек не поставить. Получилось много текста, прошу простить многословность. В том доме, что вы изобразили на плане, можно жить. Но можно жить лучше! Покращання життя - дело наших рук...;) 6 Посилання на коментар Поділитися на інших сайтах More sharing options...
vadimv Опубліковано: 31 березня 2012 Автор Поділитись Опубліковано: 31 березня 2012 (змінено) Комната, в которой я сейчас сижу, в плане 270х470, окно по узкой стороне 140х180. Светло днем только в первых двух третях комнаты от окна.Это учтено. Именно поэтому в первой трети находится письменный стол, во второй - кровать, а в третьей - шкаф для одежды. Кстати, освещение зависит не столько от пропорций комнаты, сколько от ориентации по сторонам света. В данном случае комнаты ориентированы на юго-запад (почти запад) и после обеда опускающееся солнце освещает комнаты на очень большую глубину. Можно даже сказать, что в менее глубокой комнате будет слишком светло. Именно так и было в комнате 3х3 в снесенном доме.Кровать поперек не поставить.А нужно? С какой целью? Предвидя вопрос, почему же тогда в спальне родителей кровать стоит поперек, отвечаю - потому что там спят двое. Одному человеку нет необходимости вставать попеременно с разных сторон кровати.В том доме, что вы изобразили на плане, можно жить. Но можно жить лучше!Лучшее - враг хорошего. Стоит начать - и придется строить четырехэтажный особняк с гаражом, мастерскими, кладовками, гардеробами, бильярдом, сауной, бассейном, спортзалом, оранжереей, каминным залом, лифтом, верандами, балконами, эркерами и еще очень длинным перечнем "необходимых" вещей. 8-) Это все выльется в кучу зря потраченных денег, нервов и времени. Лучше на сэкономленные деньги съездить на Мальдивы. ЗЫ: спальни у нас используются по назначению - чтобы спать. А основную часть времени в сознательном состоянии мы проводим: 1) вне дома 2) в гостиной, размеры которой вполне по феншую (3,5х5). ЗЫЫ: кстати, вашу тему я тоже с интересом читаю, но сам бы так строиться не стал. Змінено 31 березня 2012 користувачем vadimv 1 Посилання на коментар Поділитися на інших сайтах More sharing options...
КОРН Опубліковано: 31 березня 2012 Поділитись Опубліковано: 31 березня 2012 Лучшее - враг хорошего. Стоит начать - и придется строить четырехэтажный особняк с бильярдом, сауной, бассейном, спортзалом, оранжереей, каминным залом, лифтом, верандами, балконами, эркерами и еще очень длинным перечнем "необходимых" вещей. 8-) Боже упаси!!! Посилання на коментар Поділитися на інших сайтах More sharing options...
БеLка Опубліковано: 31 березня 2012 Поділитись Опубліковано: 31 березня 2012 Дело ваше. Да это и не абсолютный минимум. При таких размерах можно нормально жить. Только к планировке нужно подойти оччень ответственно. Расскажу страшную историю. На заре совместной жизни с моей женой в качестве свадебного подарка дед жены обещал нам завещать часть дома с отдельным входом и часть его участка. Комната была 3.6х5.5= 20 кв.м.(вернее две по 10 и 9 ). Перед комнатой еще был тамбур 7 квм с высотой потолка 190 см. В тамбуре стояла газплита. Это была и прихожая и кухня и кладовка. В проходной комнате стояла буржуйка, буфет, обеденный стол и кровать (9 кв.м.!). В дальней - спальня на три койки. Вот в таком жилье доживали лет 30-40 его (деда) родители. Вода в колодце, удобства во дворе. Мы уже разнежились по сравнению с ними. Так вот, жить нам с женой хотелось уже сегодня, поэтому мы запланировали сделать ремонт-реконструкцию-пристройку. Вот только дед сильно боевой, на все имеет свое государево мнение. И он решил (!), что нам будет достаточно из 7 метрового тамбура с низким потолком сделать 10ти метровый с нормальным. И в нем уже сделать нормальную кухню-санузел и прихожую. Псих! (сказал ежик...). Уломать деда на 12 квадратов было нереально. Про двухэтажность ваще молчу. После продолжительной психологической борьбы дед уступил еще 20 см. Я старался изобразить на бумаге самую минимальную площадь застройки, чтоб туда просто все по нормам влезло. У меня вышло 13.5 квадратов внутренней площади (16 квадратов пятно пристройки). Думали полуобманом сделать по-своему. Но когда я уже начал разбирать старый тамбур во мне вскипело негодование и я решил делать все совсем по-своему. И в один день придумал новый план пристройки пятном застройки 6х4, а сделал 7х4 в два этажа (внутренние 6.2х3.2). На такой площади у меня уже все поместилось и относительно нормально. Пришлось все же еще пристроить внешний тамбур 5,5 квадратов. Размеры комнат (это важно!): спальня 320х460, кухня 310х290+ ниша 150х60, санузел 156х220, гостинная-зал 360х550, тамбур 200х270. То о чем писал Игореха, комнаты в которых продолжительное время должны находиться люди не должны быть уже 300 см. И лучше, чтобы комнаты не были вагонами, пусть даже СВ. Комната, в которой я сейчас сижу, в плане 270х470, окно по узкой стороне 140х180. Светло днем только в первых двух третях комнаты от окна (чур окно мыть не предлагать!). Кровать поперек не поставить. Получилось много текста, прошу простить многословность. В том доме, что вы изобразили на плане, можно жить. Но можно жить лучше! Покращання життя - дело наших рук...;) И как Ваш дед перенес такое самоуправство? Посилання на коментар Поділитися на інших сайтах More sharing options...
Рекомендовані повідомлення