MaxS Опубліковано: 17 листопада 2012 Поділитись Опубліковано: 17 листопада 2012 Удачи, крепких нервов и быстрой стройки. Мечтаю о похожем доме. Если созрею когда-нибудь на следующую стройку. 1 Посилання на коментар Поділитися на інших сайтах More sharing options...
Tarras Опубліковано: 17 листопада 2012 Поділитись Опубліковано: 17 листопада 2012 Олександр, що Ви вирішили з вузлом зєднання елементів купола? Посилання на коментар Поділитися на інших сайтах More sharing options...
mail_malex Опубліковано: 17 листопада 2012 Автор Поділитись Опубліковано: 17 листопада 2012 Олександр, що Ви вирішили з вузлом зєднання елементів купола? По коннекторам еще нет окончательного решения. Тот вариант коннектора, который был подвергнут испытаниям с Вашей помощью, однозначно не подходит. Склоняюсь к сварной конструкции коннектора. На форуме куполостроителей есть предложения по изготовлению таких коннекторов под заказ. Направил заявку и жду предложений по цене. 1 Посилання на коментар Поділитися на інших сайтах More sharing options...
Tarras Опубліковано: 17 листопада 2012 Поділитись Опубліковано: 17 листопада 2012 По коннекторам еще нет окончательного решения. Тот вариант коннектора, который был подвергнут испытаниям с Вашей помощью, однозначно не подходит. Склоняюсь к сварной конструкции коннектора. На форуме куполостроителей есть предложения по изготовлению таких коннекторов под заказ. Направил заявку и жду предложений по цене. Я про Ваш вузол розповідав на (ссылка устарела) 4 Посилання на коментар Поділитися на інших сайтах More sharing options...
mail_malex Опубліковано: 21 листопада 2012 Автор Поділитись Опубліковано: 21 листопада 2012 По ходу стройки могут возникнуть самые неожиданные вопросы. В данном случае речь пойдет о нестандартном способе заливки колонн. В соответствии с рабочей документацией сначала заливаются вертикальные элементы (радиальная стена и 10 колонн) до отметки -0,260, затем, на следующем этапе работ, заливается монолитное перекрытие на этой отметке. Подрядчик хочет отступить от проекта и сделать несколько по-другому: четыре центральные колонны и радиальную стену залить в один заход, а шесть колонн, которые расположены вдоль стены, залить позже, одновременно с заливкой перекрытия цокольного этажа. Конструктор не дал своего согласия на такой план работ, т.к. ни разу не встречался в своей практике с одновременной заливкой колонны и перекрытия. Я тоже очень сомневаюсь. Одной из причин сомнений является свойство усадки бетона, особенно бетона высокой марки. Итак, если кто знает, почему нельзя заливать одновременно колонну с перекрытием, прошу поделиться этими знаниями со мной и всеми читателями моей темы. P.S. На фото ход сборки арматурного каркаса вертикальных элементов до отметки -0,260. Посилання на коментар Поділитися на інших сайтах More sharing options...
vino-123@mail.ru Опубліковано: 21 листопада 2012 Поділитись Опубліковано: 21 листопада 2012 почему нельзя заливать одновременно колонну с перекрытием Потому что все рухнет... Если подрядчик такой вумный - поставьте его под перекрытием и пускай заливают... Если согласится стать - пускай заливают... 1 Посилання на коментар Поділитися на інших сайтах More sharing options...
Игореха Опубліковано: 21 листопада 2012 Поділитись Опубліковано: 21 листопада 2012 Потому что все рухнет... Если подрядчик такой вумный - поставьте его под перекрытием и пускай заливают... Если согласится стать - пускай заливают... А если станет, то сразу гнать в шею, за грубейшее нарушение ТБ на объекте:D Посилання на коментар Поділитися на інших сайтах More sharing options...
mail_malex Опубліковано: 21 листопада 2012 Автор Поділитись Опубліковано: 21 листопада 2012 Потому что все рухнет... Если подрядчик такой вумный - поставьте его под перекрытием и пускай заливают... Если согласится стать - пускай заливают... Я сам могу встать, не рухнет, т.к. будет стоять горизонтальная опалубка, которая воспримет на себя всю нагрузку. Вопрос был следующий: "Что будет ПОСЛЕ заливки бетона?" Например, какие внутренние напряжения могут возникнуть в следствии усадки бетона? Какие могут быть другие последствия? Посилання на коментар Поділитися на інших сайтах More sharing options...
lastandr Опубліковано: 21 листопада 2012 Поділитись Опубліковано: 21 листопада 2012 Итак, если кто знает, почему нельзя заливать одновременно колонну с перекрытием, прошу поделиться этими знаниями со мной и всеми читателями моей темы. В принципе,технологически,это возможно,только не совсем ясно какой экономический смысл в этом? Посилання на коментар Поділитися на інших сайтах More sharing options...
Игореха Опубліковано: 21 листопада 2012 Поділитись Опубліковано: 21 листопада 2012 В принципе,технологически,это возможно,только не совсем ясно какой экономический смысл в этом? Да я вот тоже думаю, думаю, но никак не возьму в толк, что выигрывается. А что касается усадки бетона, так она тут не при чем. Бетон армированный. Арматура не сядет. А бетон если и даст небольшую усадку, то в монолите - никакой разницы. Смысл может быть только один - Опалубки хватает только на половину колонн, и хотят выиграть время. Залили половину. Выдержали. И замонолитили вторую половину с плитой. А так придется 2 раза колонны выстаивать, а потом плиту. Других бредовых вариантов у меня нет:D 1 Посилання на коментар Поділитися на інших сайтах More sharing options...
Svet_LED Опубліковано: 21 листопада 2012 Поділитись Опубліковано: 21 листопада 2012 Интиресный домик. Подпишусь. 1 Посилання на коментар Поділитися на інших сайтах More sharing options...
mail_malex Опубліковано: 21 листопада 2012 Автор Поділитись Опубліковано: 21 листопада 2012 В принципе,технологически,это возможно,только не совсем ясно какой экономический смысл в этом? Технологически возможно с какой точки зрения? С точки зрения производства работ или с точки зрения получения конечного результата? Меня интересует второе. Экономический смысл есть для подрядчика. Таким образом он экономит на аренде горизонтальной опалубки. Поясняю: - на момент заливки бетона в вертикальные элементы еще не будет установлена горизонтальная опалубка для перекрытия; - тяжелая техника не может заехать на участок, поэтому подача бетона будет осуществляется бетононасосом по бетоноводу; - рукав бетоновода нельзя подвести к каждой колонне; - за один день надо успеть залить весь объем радиальной стены; - колонны рабочие будут заливать, поднимая бетон ведрами. При таких исходных данных подрядчик не уверен, что он успеет залить все десять колонн за один рабочий день вместе с радиальной стеной, высотой 3 метра. Если же выставить горизонтальную опалубку к моменту заливки вертикальных элементов, то это снимает все проблемы, но примерно плюс 2 недели к общему сроку ее аренды. Подрядчик хочет сэкономить, не арендуя горизонтальную опалубку на эти дополнительные две недели. Посилання на коментар Поділитися на інших сайтах More sharing options...
vino-123@mail.ru Опубліковано: 21 листопада 2012 Поділитись Опубліковано: 21 листопада 2012 Подрядчик хочет сэкономить Я думаю спор вообще не о чем. Поскольку, если подрядчик хочет и заказчик на это ведется минуя технологический процесс - зачем вообще нужно было затевать строительство!!!??? Кто хозяин на стройке - вы или заказчик??? Посилання на коментар Поділитися на інших сайтах More sharing options...
baroleks Опубліковано: 21 листопада 2012 Поділитись Опубліковано: 21 листопада 2012 Кто хозяин на стройке - вы или заказчик??? Так ТС і є заказчик :D 3 Посилання на коментар Поділитися на інших сайтах More sharing options...
mail_malex Опубліковано: 21 листопада 2012 Автор Поділитись Опубліковано: 21 листопада 2012 Я думаю спор вообще не о чем. Поскольку, если подрядчик хочет и заказчик на это ведется минуя технологический процесс - зачем вообще нужно было затевать строительство!!!??? Кто хозяин на стройке - вы или заказчик??? Спора нет, есть вопрос, который я задал всем читающим эту ветку. Одно мнение: так делать можно - уже было высказано. Если будут еще и другие мнения, я с большим вниманием их выслушаю. Принять решение в пользу предложенного подрядчиком варианта я смогу только в том случае, если я буду уверен, что так делать действительно можно и нет "железных" аргументов против. Любые сомнения будут в пользу обычного порядка выполнения работ: отдельно заливаются вертикальные элементы и отдельно - перекрытие. Посилання на коментар Поділитися на інших сайтах More sharing options...
Игореха Опубліковано: 21 листопада 2012 Поділитись Опубліковано: 21 листопада 2012 ИМХО. Если бы была простая технологическая возможность, я бы вообще весь монолит заливал одним заходом. Стены, колонны и верхнюю плиту. Если это делать таким способом, как предлагает подрядчик, то необходимо иметь одну общую непросадочную основу. Она у вас есть - монолитная плита. Не вижу никаких противопоказаний. 1 Посилання на коментар Поділитися на інших сайтах More sharing options...
Tarras Опубліковано: 21 листопада 2012 Поділитись Опубліковано: 21 листопада 2012 За один раз залити всю конструкцію - це звичайно кращий, навіть девякому випадку ідеальний варіант, але правильно влаштовані шви бетонування (технологічні) не призведуть до ослаблення несучої здатності конструкції. Посилання на коментар Поділитися на інших сайтах More sharing options...
mail_malex Опубліковано: 21 листопада 2012 Автор Поділитись Опубліковано: 21 листопада 2012 За один раз залити всю конструкцію - це звичайно кращий, навіть девякому випадку ідеальний варіант, але правильно влаштовані шви бетонування (технологічні) не призведуть до ослаблення несучої здатності конструкції. Тарас, я правильно Вас понял, что можно без опаски согласиться с вариантом одновременной заливки колонн и перекрытия, который мне предлагает подрядчик? Посилання на коментар Поділитися на інших сайтах More sharing options...
Tarras Опубліковано: 22 листопада 2012 Поділитись Опубліковано: 22 листопада 2012 Тарас, я правильно Вас понял, что можно без опаски согласиться с вариантом одновременной заливки колонн и перекрытия, который мне предлагает подрядчик? Я просто теж як конструктор, не зустрічав заливки перекриття разом із колоною. Але якщо ніхто на форумі такого не зустрічав, то це не означає що такий варіант неможливий, просто технологічно це може бути дещо складніше... і то не факт. Безшовні монолітні роботи по міцності завжди надійніші. 1-потрібно при монолітній заливці колон опускати ствол вібратора до самого дна опалубки, ретельно таким чином ущільнюючи бетон. 2-Якщо при монолітних роботах, де спочатку заливається колона, вага бетонної суміші сприймеється колоною, то у випадку заливки колони і плити разом, потрібно передати це навантаження на додаткові стійки біля колони, які повинні демонтуватись в останню чергу. Теж стосується і опалубки колони, вона теж може сприймати навантаження від перекриття на час твердіння бетону. Це повністю реально виконати. 1 Посилання на коментар Поділитися на інших сайтах More sharing options...
Александр. Киев Опубліковано: 22 листопада 2012 Поділитись Опубліковано: 22 листопада 2012 Подобные ситуации в моей практике были несколько раз. Никаких проблем не возникает, вот только опалубку колон необходимо применять индивидуальную, изготовленную самостоятельно из бруса и фанеры. При демонтаже она будет защемлена плитой, прийдется поработать немного пилой. 2 Посилання на коментар Поділитися на інших сайтах More sharing options...
mail_malex Опубліковано: 22 листопада 2012 Автор Поділитись Опубліковано: 22 листопада 2012 Огромное спасибо всем, кто откликнулся и поделился своими мыслями и знаниями относительно нестандартного способа заливки колонн. Сомнений не осталось. Так делать можно. Сегодня порадую этим подрядчика. Посилання на коментар Поділитися на інших сайтах More sharing options...
Игореха Опубліковано: 22 листопада 2012 Поділитись Опубліковано: 22 листопада 2012 Подобные ситуации в моей практике были несколько раз. Никаких проблем не возникает, вот только опалубку колон необходимо применять индивидуальную, изготовленную самостоятельно из бруса и фанеры. При демонтаже она будет защемлена плитой, прийдется поработать немного пилой. А если для колонн использовать инвентарную опалубку, но не в полный рост, а между верхом опалубки и опалубкой плиты делать герметичные вставки, которые потом можно будет выбить/демонтировать, это спасет ситуацию? Посилання на коментар Поділитися на інших сайтах More sharing options...
Александр. Киев Опубліковано: 22 листопада 2012 Поділитись Опубліковано: 22 листопада 2012 А если для колонн использовать инвентарную опалубку, но не в полный рост, а между верхом опалубки и опалубкой плиты делать герметичные вставки, которые потом можно будет выбить/демонтировать, это спасет ситуацию? Запросто, если суть проблемы ясна, то какие уж тут ограничения? вставка должна быть по высоте больше чем толщина опалубки вот и вся история. 1 Посилання на коментар Поділитися на інших сайтах More sharing options...
mail_malex Опубліковано: 28 листопада 2012 Автор Поділитись Опубліковано: 28 листопада 2012 После заливки плиты строители приступили к сборке арматурного каркаса вертикальных элементов. Этот этап стройки вплотную приближает момент, когда надо определиться с местом ввода коммуникаций в дом, чтобы к моменту заливки бетона были установлены закладные детали или короба под их установку в будущем. К сожалению, на данный момент в составе проектной документации отсутствуют разделы по внутренним и внешним инженерным сетям. Поэтому решение по местам ввода и конструктивному решению ввода надо принимать самостоятельно. Для определения мест ввода электричества, водопровода, канализации и приточной вентиляции ограничений нет, по крайней мере я так думаю. Для газа ситуация совсем иная. Визит в газовую контору г. Обухов позволил узнать о следующих требованиях: 1. Трубу среднего давления от места врезки до места ввода в дом необходимо прокладывать под землей на глубине 1,2м. 2. Стояк трубы среднего давления около дома должен располагаться не ближе, чем в 1м от окон или дверей. 3. В дом можно ввести только трубу низкого давления. 4. Место ввода трубы низкого давления должно быть выше уровня земли не менее чем на 0,6м. Остается вопрос уплотнения вводов инженерных коммуникаций в дом. Об этом будет следующее сообщение. 1 Посилання на коментар Поділитися на інших сайтах More sharing options...
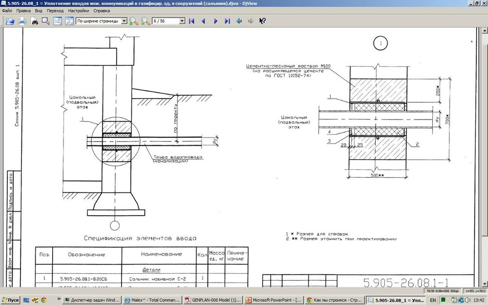
mail_malex Опубліковано: 28 листопада 2012 Автор Поділитись Опубліковано: 28 листопада 2012 Еще до начала стройки я обсуждал вопрос ввода коммуникаций с конструктором. Он меня настроил на то, что сейчас в строительстве применяют различные муфты, которые можно купить и как закладную деталь установить в стену цокольного этажа на этапе монолитных работ. Поиск в сети муфт, о которых рассказал мне конструктор не дал ожидаемого результата. Но время, потраченное на поиск не пропало даром, я нашел такой документ: "Типовые строительные конструкции, изделия и узлы. Серия 5.905-26.08". Титульный лист этого документа на первой иллюстрации. В этом документе приведены чертежи набивных и нажимных сальников, которые применяются для устройства ввода инженерных коммуникаций в сухих и мокрых грунтах соответственно. Чертежи этих изделий на 2-й и 3-й иллюстрациях. Поход в Эпицентр и Практикер завершился неудачей. Таких изделий в продаже нет. Поиск в сети навел на производителя в г.Севастополь. Под заказ по моим размерам могут изготовить. Но возник вопрос: "Если такое изделие трудно найти в продаже, может быть есть другое решение по вводу инженерных коммуникаций в дом?". Например, гофротруба, которую часто можно увидеть в отчетах о стройках, особенно когда ввод осуществляется через пол цокольного или первого этажа. Итак, вопрос к знатокам: какие плюсы и минусы есть у решения по вводу коммуникаций через гофротрубу? 1 Посилання на коментар Поділитися на інших сайтах More sharing options...
Рекомендовані повідомлення
Створіть акаунт або увійдіть у нього для коментування
Ви маєте бути користувачем, щоб залишити коментар
Створити акаунт
Зареєструйтеся для отримання акаунта. Це просто!
Зареєструвати акаунтУвійти
Вже зареєстровані? Увійдіть тут.
Увійти зараз