metall.kiev2017 Опубліковано: 22 лютого 2018 Поділитись Опубліковано: 22 лютого 2018 еще вариант 2 Посилання на коментар Поділитися на інших сайтах More sharing options...
voglya Опубліковано: 22 лютого 2018 Поділитись Опубліковано: 22 лютого 2018 еще вариант О, варианты пошли! То ли ещё будет! А вообще то в этой теме обсуждение вашего дома будет, наверное, офтоп. Заводите темку в соответствующей ветке - у вас ещё мнооооого вопросов к форуму возникнет. Я себе пару месяцев мозг ломала как разместить тамбур, все входы, топочную и санузел так, чтоб влезло все, что нужно и при этом санузел - не угловое помещение... 1 Посилання на коментар Поділитися на інших сайтах More sharing options...
Тюня Опубліковано: 23 лютого 2018 Поділитись Опубліковано: 23 лютого 2018 Последний вариант классный, и можно дверь в спальную добавить, если захочется А вообще то в этой теме обсуждение вашего дома будет, наверное, офтоп. Заводите темку в соответствующей ветке - у вас ещё мнооооого вопросов к форуму возникнет. Соглашусь, заводите свою ветку, дайте здесь ссылку и мы прийдем 1 Посилання на коментар Поділитися на інших сайтах More sharing options...
allanek Опубліковано: 23 лютого 2018 Поділитись Опубліковано: 23 лютого 2018 Последний вариант классный, и можно дверь в спальную добавить, если захочется Не пишу в таких темах, эту читаю из любопытства, поскольку сама живу в одноэтажном доме. И "жахаюсь" от того, что вижу на рисунках. Всё время хочется сказать будущему владельцу того, что рисуется на бумаге- выбросьте всё в мусорное ведро по причине того, что площади использованы совершенно бестолково, умолчу про другие моменты, которые всплывут в процессе стройки. Вера, ничего личного, но не пойму я, что "классного" в последнем варианте? В котором, как минимум 3, а то и 4кв.метра коридора !!!! в спальне. Я даже не могу найти подходящего смайлика для выражения своих эмоций, глядя на эти планы. Независимо от бюджета, даже неограниченного, площадь дома должна быть рациональной, чем больше закутков и коридоров, тем больше ощущение какой-то внутренней безалаберности дома. Я не дизайнер, не архитектор, я не вправе давать советы, я могу лишь озвучить своё ощущение и мысли от увиденного. Для ТС, по поводу камина, из своего опыта. На этапе фундамента сделали усиленную площадку под камин, в процессе решение изменилось. Вместо камина поставили печь(каминофен), совсем не маленькую, в облицовке из камня, значит, вес приличный, установили дымоход Шидель, высотой 6м. Шидель и печь поставили совсем в другом месте, чем планировалось, на этапе внутренней отделки стен, то есть по готовому полу. Пол- плитка, под ней водяной ТП. Понятно, что никаких дополнительных движений по усилению не делалось. Прекрасно пол с ТП выдерживают вес печки и 6-ти метрового Шиделя. Я не говорю, что плюньте и делайте, как я. Я говорю о том, что в случае каких-то изменений, не всё так страшно, как можно подумать. Форум большой, мнений много и все они разные, со временем вы научитесь отличать мнение практиков от мнения теоретиков, мнение тех, кто искренне пытается предостеречь от граблей, на которые наступил сам, от мнения тех, кто заинтересован в вас, как в застройщике. Удачи вам в постройке вашего дома. А она, удача, ох, как пригодится. Что-то злая я сегодня:D 3 Посилання на коментар Поділитися на інших сайтах More sharing options...
Тюня Опубліковано: 23 лютого 2018 Поділитись Опубліковано: 23 лютого 2018 не пойму я, что "классного" в последнем варианте? Из всех предоставленных он лучший (я так думаю ) при этом учитываем, что человек явно полюбил этот проект, размеры фундамента, расположение окон уже заданы и видимо меняться не будут (в другой теме уже активно обсуждается тип фундамента) Речь всего лишь идет о внутренних перегородках, поэтому по планировке этой зоны мне последний вариант нравится больше всего, он уменьшил спальню до нормальных размеров, сделал более феншуйным вид с кровати, хорошая квадратная гардеробная с окном, в котором появился смысл, и хорошая большая ванная (душ только как всегда в загоне ) с нормальной планировкой Даже если в спальне поставится дополнительная дверь, то две двери между общественной зоной и спальной - это тоже не минус Посилання на коментар Поділитися на інших сайтах More sharing options...
allanek Опубліковано: 24 лютого 2018 Поділитись Опубліковано: 24 лютого 2018 Из всех предоставленных он лучший (я так думаю ) при этом учитываем, что человек явно полюбил этот проект, Если следовать принципу "лучшее из худшего", наверное "классный". Я бы, вообще, не стала подпитывать энтузиазм рисующего таким принципом. В своё время рассматривала такой вариант формы дома, когда в одной половине приватная зона(спальни), в другой-всё остальное. Поэтому и любопытно, что получат в итоге. Я отказалась, в моём случае минусы перевесили плюсы, одна из причин- терраса, смотрящая на запад и после обеда ей бы доставалось всё солнце. Где-то на форуме, в старых темах, были даны ссылки( взяты с ФорумХауза), с норвежскими, датскими, немецкими, шведскими и тыды домами. Кажется, на датском сайте просто клондайк одноэтажников, включая и такую форму дома, с разными планировками, с разной площадью для одного и того же проекта, даже реальными интерьерами. Внимательное изучение очень промывает мозг и даёт понимание рационального использования площади без потери удобства и ощущения гармоничного пространства. Говоря о рациональности использования пространства совсем не подразумеваю тесные помещения. У меня дом для двоих, именно так и проектировался, с учётом привычек и понимания уюта каждого из нас, меня и мужа. Дом порядка 135кв.метров, две спальни-18 и 22 кв.м, ванная-12кв.м, туалет- 6кв.м. В спальнях спроектированы ниши под платяные шкафы. Гардеробные не проектировались осознанно, пересмотрев кучу вариантов в домах друзей-знакомых, пришла к тому, что это не моё, по разным причинам. И на площади ванной с туалетом не экономила, это те помещения, с которых начинается мой день и мне очень важно, в какое пространство я попаду, встав с постели. И вообще, когда читаю, что одноэтажники- это уныло и темно , меня разбирает смех, с соответствующими эпитетами, в адрес выдавшего в эфир очередную глупость. Что-то на форуме упорная тенденция двигать стены в придуманных планировках, вместо того, чтобы раздвигать свои горизонты и учиться у той же старой Европы, культура жизни которой, в своём доме, насчитывает не одно десятилетие и какие-то вещи отработаны до автоматизма. А у нас сначала двигаем стеночки, а потом получаем гостевой туалет напротив входной двери, в котором нельзя помыть руки, потому что не поместилась раковина на 1,5кв.метрах, и это в доме, площадь которого подбирается к 500 квадратам. Нельзя меня в такие темы пускать:D 2 Посилання на коментар Поділитися на інших сайтах More sharing options...
irina1969 Опубліковано: 24 лютого 2018 Поділитись Опубліковано: 24 лютого 2018 metall.kiev2017,под каждой из этих картинок есть сайт поизучайте https://www.google.com.ua/search?q=one-story+house+plan&source=lnms&tbm=isch&sa=X&ved=0ahUKEwirtfjujL7ZAhXOjqQKHah5ABkQ_AUICigB&biw=1366&bih=637 или воспользуйтесь поиском по форуму скандинавский стиль Посилання на коментар Поділитися на інших сайтах More sharing options...
voglya Опубліковано: 24 лютого 2018 Поділитись Опубліковано: 24 лютого 2018 Если следовать принципу "лучшее из худшего", наверное "классный". Я бы, вообще, не стала подпитывать энтузиазм рисующего таким принципом. В своё время рассматривала такой вариант формы дома, когда в одной половине приватная зона(спальни), в другой-всё остальное. Поэтому и любопытно, что получат в итоге. Я отказалась, в моём случае минусы перевесили плюсы, одна из причин- терраса, смотрящая на запад и после обеда ей бы доставалось всё солнце. Где-то на форуме, в старых темах, были даны ссылки( взяты с ФорумХауза), с норвежскими, датскими, немецкими, шведскими и тыды домами. Кажется, на датском сайте просто клондайк одноэтажников, включая и такую форму дома, с разными планировками, с разной площадью для одного и того же проекта, даже реальными интерьерами. Внимательное изучение очень промывает мозг и даёт понимание рационального использования площади без потери удобства и ощущения гармоничного пространства. Говоря о рациональности использования пространства совсем не подразумеваю тесные помещения. У меня дом для двоих, именно так и проектировался, с учётом привычек и понимания уюта каждого из нас, меня и мужа. Дом порядка 135кв.метров, две спальни-18 и 22 кв.м, ванная-12кв.м, туалет- 6кв.м. В спальнях спроектированы ниши под платяные шкафы. Гардеробные не проектировались осознанно, пересмотрев кучу вариантов в домах друзей-знакомых, пришла к тому, что это не моё, по разным причинам. И на площади ванной с туалетом не экономила, это те помещения, с которых начинается мой день и мне очень важно, в какое пространство я попаду, встав с постели. И вообще, когда читаю, что одноэтажники- это уныло и темно , меня разбирает смех, с соответствующими эпитетами, в адрес выдавшего в эфир очередную глупость. Что-то на форуме упорная тенденция двигать стены в придуманных планировках, вместо того, чтобы раздвигать свои горизонты и учиться у той же старой Европы, культура жизни которой, в своём доме, насчитывает не одно десятилетие и какие-то вещи отработаны до автоматизма. А у нас сначала двигаем стеночки, а потом получаем гостевой туалет напротив входной двери, в котором нельзя помыть руки, потому что не поместилась раковина на 1,5кв.метрах, и это в доме, площадь которого подбирается к 500 квадратам. Нельзя меня в такие темы пускать:D Вот и мне тоже очень-очень не нравится планировка дома.... Смысл в таком размещении спальня/ванная/гардероб вижу только в ситуации, когда в большой семье папа с мамой (для них же спальня?0 хотят определенной обособленности. И, как случилось в нашей семье, не лишним было бы людям, жившим в квартире, какое-то время пожить в доме, пусть и в съемном. Такой опыт снимает многие вопросы. Мне, например, ТЕПЕРЬ очень важно, чтоб спальня закрывалась, удобно когда есть столовая, оказывается, мне удобна кухня-вагончиком, мне в последнюю очередь хочется ванную, классно когда вход в погреб - в доме (но то таке....) Мне НЕ!НЕ!НЕ! нужен огород. Если он не поливается автополивом. Пару грядок для зелени будет достаточно. и т.д. и т.п. Добавлено через 4 минуты ой, простите, наофтопила 1 Посилання на коментар Поділитися на інших сайтах More sharing options...
metall.kiev2017 Опубліковано: 24 лютого 2018 Поділитись Опубліковано: 24 лютого 2018 расположение окон уже заданы и видимо меняться не будут Окна можем двигать на фундамент они глобально не влияют. На сейчас Север-Юг с минимальным освещением. Окна в основном расположены с с Восточного и западного фасадов. Добавлено через 5 минут при этом учитываем, что человек явно полюбил этот проект Человек не полюбил. Мы за него просто уже заплатили деньги архитектору И теперь выкручиваем из того что имеем. В проекте это была плоская кровля окна в пол и 350м2 площади. Когда стали обзванивать оконщиков оказалось что окна получаться в диапазоне от 35 до 65 кEuro. Разошлись с архитектором)))) Теперь разбираемся что можно оставить от того за что заплатили что нет))) Добавлено через 4 минуты Если есть конкретные конструктивные предложения по оптимизации планировочных решений - давайте обсуждать) Если это будет рационально будем менять. Опыт жизни в частном доме есть - поэтому только одноэтажник и поэтому одна общая зона гостиная кухня столовая - чтоб все были вместе и на виду))) Добавлено через 2 минуты воспользуйтесь поиском по форуму скандинавский стиль Интерьеры как раз планировали в Скандинавском стиле. Посилання на коментар Поділитися на інших сайтах More sharing options...
Marina--- Опубліковано: 26 лютого 2018 Поділитись Опубліковано: 26 лютого 2018 (змінено) добрый день. Для начала необходимо просто мнение специалиста об использовании стеклоблоков в интерьерах маленьких ванн в качестве стенки для душевой. насколько это сейчас актуально, хороший ли это материал для быта и интерьера? Мне очень нравятся такие интерьеры на различных фото в интернете. Мечтаю соорудить себе что-то подобное, но в своей маленькой ванной. Очень хочется именно душевую "в пол". Если у вас есть опыт или какие-либо советы, подскажите, пожалуйста. Справа при входе хочется поставить душ. Внизу примерный план комнаты и несколько интерьеров, которые нравятся. Змінено 26 лютого 2018 користувачем Marina--- 1 Посилання на коментар Поділитися на інших сайтах More sharing options...
Marina--- Опубліковано: 26 лютого 2018 Поділитись Опубліковано: 26 лютого 2018 в правой половине хочется поставить душ[ATTACH]605252[/ATTACH] Посилання на коментар Поділитися на інших сайтах More sharing options...
Marina--- Опубліковано: 26 лютого 2018 Поділитись Опубліковано: 26 лютого 2018 вот еще примеры, которыми вдохновилась. спасибо Посилання на коментар Поділитися на інших сайтах More sharing options...
k.alena Опубліковано: 26 лютого 2018 Поділитись Опубліковано: 26 лютого 2018 Мне нравились стеклоблоки, только цветные, в качестве перегородки в ванной. Вначале хотела их поставить в ванной в квартире - не вышло (не смотрелось, по размеру не вошли...), потом в квартире у родственников - тоже не сложилось. В доме думала, точно в ванной детей сделаю именно как Вы хотите - в качестве стенки душевой... Во-первых, достаточно сложно подобрать несколько цветов в близкой гамме и одинакового качества (фактура, рисунок...). Потом, на торец этой стенки нужны торцевые блоки, они как половинки со специальным краем, их просто нет цветных. Блоки имеют приличную толщину (8 см, если не ошибаюсь), и для маленького санузла это довольно много. И самое главное, совершенно не понятно как к такой стенке крепить душевую дверь. Вернее понятно - никак. В ваших примерах достаточно просторные душевые без дверей. В итоге поставили глухую стеклянную стенку и дверцу Ravak и довольны. Смотрится отлично, в уходе очевидно проще ;) 4 Посилання на коментар Поділитися на інших сайтах More sharing options...
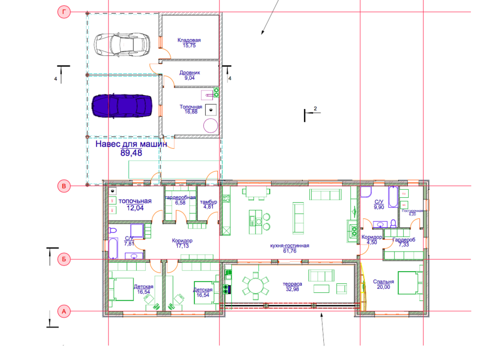
metall.kiev2017 Опубліковано: 1 березня 2018 Поділитись Опубліковано: 1 березня 2018 Чуть чуть еще функционально перекроили правое крыло. Добавили постирочную.:D Посилання на коментар Поділитися на інших сайтах More sharing options...
ticean Опубліковано: 1 березня 2018 Поділитись Опубліковано: 1 березня 2018 кто подскажет можно ли в таком узком и маленьком санузле разместить ванную, унитаз и раковину подскажите как ? Ширина 110см но можно сделать максимум 115 см, длину не изменишь. Плюс батареи т трубы отопления никак не поменять если кто подскажет вариант скажу БОЛЬШОЕ СПАСИБО. Посилання на коментар Поділитися на інших сайтах More sharing options...
Тюня Опубліковано: 1 березня 2018 Поділитись Опубліковано: 1 березня 2018 ком узком и маленьком санузле разместить ванную, унитаз и раковину Я сдаюсь Посилання на коментар Поділитися на інших сайтах More sharing options...
voglya Опубліковано: 1 березня 2018 Поділитись Опубліковано: 1 березня 2018 кто подскажет можно ли в таком узком и маленьком санузле разместить ванную, унитаз и раковину подскажите как ? Ширина 110см но можно сделать максимум 115 см, длину не изменишь. Плюс батареи т трубы отопления никак не поменять если кто подскажет вариант скажу БОЛЬШОЕ СПАСИБО. Ванная если только ... сидячая влезет!?!? Посилання на коментар Поділитися на інших сайтах More sharing options...
ticean Опубліковано: 1 березня 2018 Поділитись Опубліковано: 1 березня 2018 Я думаю влезет мне она не очень то и нужна просто ребенку 3 года надо где то мыть Главное чтобы ширина ванной была не больше 70 см Посилання на коментар Поділитися на інших сайтах More sharing options...
voglya Опубліковано: 1 березня 2018 Поділитись Опубліковано: 1 березня 2018 Я думаю влезет мне она не очень то и нужна просто ребенку 3 года надо где то мыть Главное чтобы ширина ванной была не больше 70 см Так у вас в торец комнаты становится метровая ванная. А душевая кабина с глубоким поддоном? Посилання на коментар Поділитися на інших сайтах More sharing options...
irina1969 Опубліковано: 2 березня 2018 Поділитись Опубліковано: 2 березня 2018 есть еще угловые асиметричные ванные, нужно искать Посилання на коментар Поділитися на інших сайтах More sharing options...
SnowWinter Опубліковано: 10 березня 2018 Поділитись Опубліковано: 10 березня 2018 Нужен совет. На плане изображены 3 спальни в 4к квартире. Очень смущает то, что во взрослой спальне шкаф-купе можно поставить только боком прямо напротив входа в спальню. На плане нарисован шкаф 190см. Но скорее всего будем делать меньше - 150-170см, чтобы оставался больший проход. Скажите, такое расположение шкафа - это ужас-ужас и будет очень некрасиво? Или нормально? Посилання на коментар Поділитися на інших сайтах More sharing options...
Тюня Опубліковано: 10 березня 2018 Поділитись Опубліковано: 10 березня 2018 такое расположение шкафа вполне комфортно и нормально но глубины 600 маловато особенно если это раздвижка а размер 1200 перед ним - это более чем Посилання на коментар Поділитися на інших сайтах More sharing options...
SnowWinter Опубліковано: 11 березня 2018 Поділитись Опубліковано: 11 березня 2018 вполне комфортно и нормально но глубины 600 маловато особенно если это раздвижка а размер 1200 перед ним - это более чем А какую глубину посоветуете? У нас сейчас шкаф 60 на 120. Глубины хватает. Посилання на коментар Поділитися на інших сайтах More sharing options...
k.alena Опубліковано: 11 березня 2018 Поділитись Опубліковано: 11 березня 2018 А какую глубину посоветуете? Раздвижная система занимает ок. 100мм, поэтому глубину шкафа стоит делать 650-700 мм. У нас сейчас шкаф 60 на 120. Глубины хватает. Вам может и хватает, но дверцы при открывании постоянно трутся о край вещей (плечи, рукава), что не есть хорошо. Мне вот шкафа 1200 в спальне категорически не хватает... Спасает только наличие других шкафов по дому. 2 Посилання на коментар Поділитися на інших сайтах More sharing options...
irina1969 Опубліковано: 11 березня 2018 Поділитись Опубліковано: 11 березня 2018 если нет возможности сделать глубокий шкаф, то спасают вешалки как на фото...Эти вешалки предназначены для хранения одежды на плечиках. Выдвижные вешалки обычно используют при маленькой глубине шкафа (меньше 500 мм и до 250). Вещи на плечиках на такой вешалке расположены к вам лицом. у меня в квартире так Посилання на коментар Поділитися на інших сайтах More sharing options...
Рекомендовані повідомлення
Створіть акаунт або увійдіть у нього для коментування
Ви маєте бути користувачем, щоб залишити коментар
Створити акаунт
Зареєструйтеся для отримання акаунта. Це просто!
Зареєструвати акаунтУвійти
Вже зареєстровані? Увійдіть тут.
Увійти зараз