Leon Опубліковано: 11 серпня 2013 Автор Поділитись Опубліковано: 11 серпня 2013 Leon, а зачем на главном фасаде вы поставили два слуховых окна? :D Дякую за питання! Мені всі його задають.. Я хотів щоб дах виглядав трохи веселіше + яке не яке, а природне освітлення горища, ну й попросив архітектора всунути два слухових віконця. А тепер думаю, що мабуть таки відмовлюсь від них, т.я. це дорожче та ще й потенційні місця підтікання. Посилання на коментар Поділитися на інших сайтах More sharing options...
Leon Опубліковано: 4 вересня 2013 Автор Поділитись Опубліковано: 4 вересня 2013 Ще один крок зроблено. Сьогодні я отримав буд. паспорт. Тепер іду вивчати тему "Повідомлення про початок будівництва" 4 Посилання на коментар Поділитися на інших сайтах More sharing options...
Leon Опубліковано: 10 вересня 2013 Автор Поділитись Опубліковано: 10 вересня 2013 Для історії: Вчора 09.09.2013 рекомендованим листом вислав "Повідомлення про початок будівництва" в ДАБІ Київської області. 3 Посилання на коментар Поділитися на інших сайтах More sharing options...
Nneta Опубліковано: 12 вересня 2013 Поділитись Опубліковано: 12 вересня 2013 (змінено) Leon, отличный повод перейти в новый раздел форума и создать соответствующую темку;) Змінено 12 вересня 2013 користувачем Nneta Посилання на коментар Поділитися на інших сайтах More sharing options...
Leon Опубліковано: 12 вересня 2013 Автор Поділитись Опубліковано: 12 вересня 2013 Leon, отличный повод перейти в новый раздел форума и создать соответствующую темку;) Дякую! Страшно... Треба брати бригаду з форума, щоб боялись накосячити :D Посилання на коментар Поділитися на інших сайтах More sharing options...
Nneta Опубліковано: 12 вересня 2013 Поділитись Опубліковано: 12 вересня 2013 (змінено) Дякую! Страшно... Треба брати бригаду з форума, щоб боялись накосячити :D Так это тут быстро организовать можно - только свистни:D! P.S. Как там обстоят дела c выбором места осенней Строимдомовки?;) Можно подкинуть вариантик Змінено 12 вересня 2013 користувачем Nneta 1 Посилання на коментар Поділитися на інших сайтах More sharing options...
x_y_z_ Опубліковано: 12 вересня 2013 Поділитись Опубліковано: 12 вересня 2013 Для історії: Вчора 09.09.2013 рекомендованим листом вислав "Повідомлення про початок будівництва" в ДАБІ Київської області. Для закріплення позитивного результату треба протягом 7 днів з дати відправки повідомлення про початок будівництва також повідомити цю радісну новину органам місцевого самоуправління та держтехногенбезпеки, бажано теж рекомендованим лістом з повідомлення про доставку та описом вмісту ) Щирі вітання!!! 1 Посилання на коментар Поділитися на інших сайтах More sharing options...
Leon Опубліковано: 13 вересня 2013 Автор Поділитись Опубліковано: 13 вересня 2013 Для закріплення позитивного результату треба протягом 7 днів з дати відправки повідомлення про початок будівництва також повідомити цю радісну новину органам місцевого самоуправління та держтехногенбезпеки, бажано теж рекомендованим лістом з повідомлення про доставку та описом вмісту Сьогодні 13.09.2013 відправив рекомендованим листом в сільраду і ДСНС. Тепер залишилось дочекатись, коли закінчаться дощі.. 1 Посилання на коментар Поділитися на інших сайтах More sharing options...
Sopa Опубліковано: 16 вересня 2013 Поділитись Опубліковано: 16 вересня 2013 (змінено) Доброго дня. Мой Вам совет, определитесь для чего вам терраса- если для покурить- поговорить то ширина достаточна, а если для позавтракать или поужинать в компании в тёплое время, то до столбов делайте не уже 2,5 м, а для празднований лучше 3. п.с. у меня такая же ошибка- ширина террасы 2,4м минус столбы, ограждение, итого осталось 2,1- мало! В результате построил беседку, а террасу пока так и не обжил. Змінено 16 вересня 2013 користувачем Sopa 2 Посилання на коментар Поділитися на інших сайтах More sharing options...
Leon Опубліковано: 16 вересня 2013 Автор Поділитись Опубліковано: 16 вересня 2013 Sopa, дякую за пораду! П.С. Осінь зовсім не радує.. Щоб не довелось початок робіт відкладати до наступного року. Посилання на коментар Поділитися на інших сайтах More sharing options...
x_y_z_ Опубліковано: 16 вересня 2013 Поділитись Опубліковано: 16 вересня 2013 П.С. Осінь зовсім не радує.. Щоб не довелось початок робіт відкладати до наступного року. і не кажіть... ми вже вирішили сььогодні, що з такою погодою бітумку не зможемо вкласти до зими, тому просто купимо підкладку під бітумку і нею накриємо до весни дах... а гроші, які пішли б на бітумку, використаємо на вікна - треба ж закритися до зими Посилання на коментар Поділитися на інших сайтах More sharing options...
вторик Опубліковано: 16 вересня 2013 Поділитись Опубліковано: 16 вересня 2013 просто купимо підкладку під бітумку і нею накриємо до весни дах очень плохая идея, подкладка не обеспечит защиты настила. ждите солнца, а зимовать окнам на морозе тоже не понравится. Посилання на коментар Поділитися на інших сайтах More sharing options...
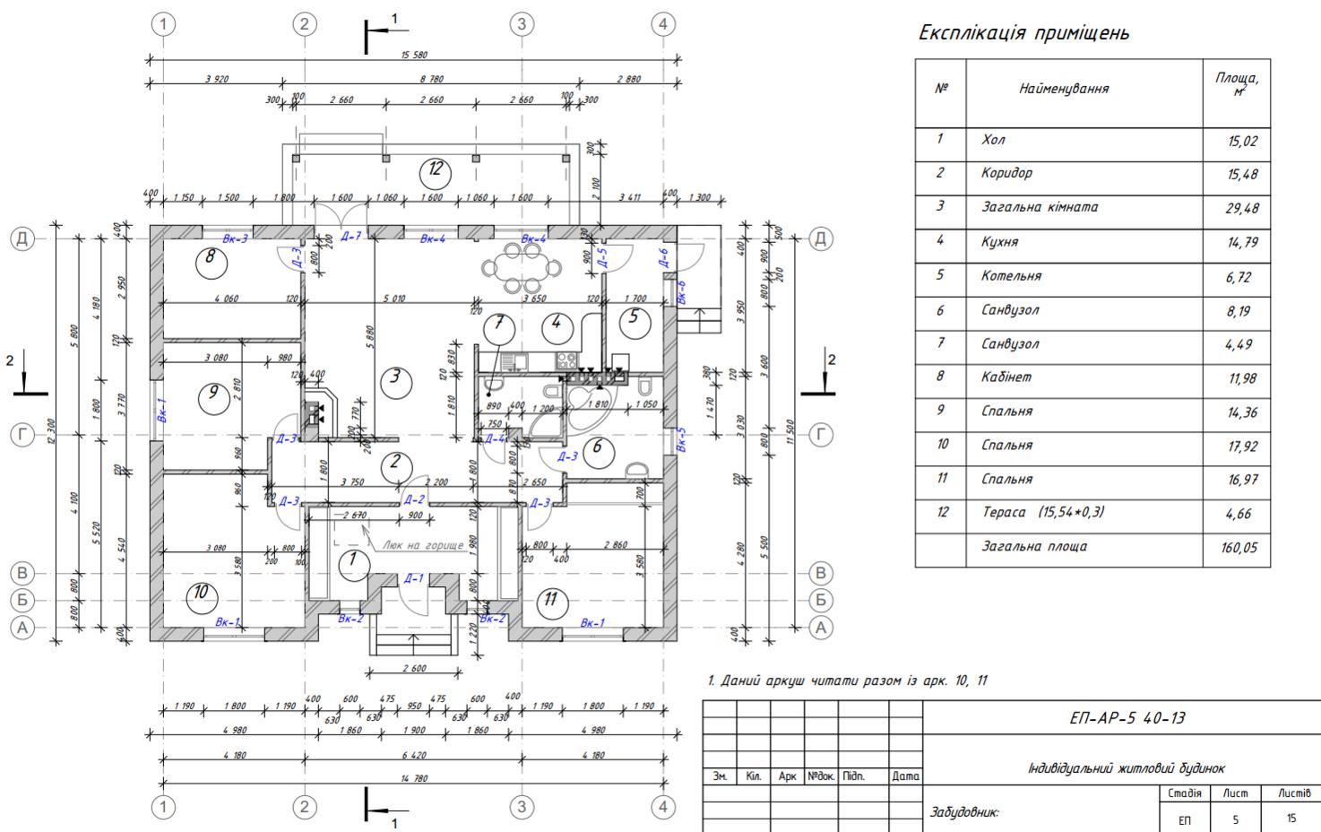
Kysil Опубліковано: 22 вересня 2013 Поділитись Опубліковано: 22 вересня 2013 Leon, поки ще не пізно - прокоментую. www.stroimdom.com.ua/forum/attachment.php?attachmentid=270530&d=1366719390 1. Ширина кімнати 10 - 3080. Ширина кімнати 11 - 2860. Виходить, у вас не зовсім симетричний фасад? Чи це якась помилка?.. 2. Станьте подумки перед Вк-1. Перед вами стіна, на якому лише одне вікно. Зсунуте ліворуч. Вам подобається? Мені ні. Що можна зробити: а) стіну між кімнатами 9/10 змістити трохи вглиб кімнати 10 (і таким чином ще й зблизити метраж кімнат); б) відцентрувати Вк-1 по зовнішній стіні. 3. Вк-5. Схожа історія: центральне вікно має бути по центру. 4. Вк-3 і Вк-4: бєспрєдєл! :D Їх слід так само вирівняти за симетрією. А потім за ними відцентрувати вікно та двері вітальні. Жодної стіни тут пересувати не треба! 5. Д-6. Вам точно потрібні треті двері у будинку? Я зараз кажу не про гіпотетичну зворотню тягу, а про цілком реальний дубак, який гулятиме взимку по підлозі їдальні. 6. І найголовніше. Уважно подивіться на вітальню. За логікою, вздовж стіни з дверями Д-3 має поміститися диван (диван з отоманкою) і, ближче до каміну, крісло. Або навпаки. Вздовж перпендикулярної стіни, знову таки біля каміну, я б поставив лавсіт довжиною 160-180 см. Для цього цю стіну варто подовжити на 70-80 см, залишивши вільний вхід у вітальню. Або ж обмежитися тут ще одним кріслом. А тепер питання на засипку: де телевізор? Я вам скажу, де. Стіну вітальні, яка межує з кухнею, слід теж подовжити на 120-140 см. Вбиваєте одразу двох зайців: у вітальні вішаєте телевізор, а з боку кухні під цю ж подовжену стіну ставите... великий холодильник. 1 Посилання на коментар Поділитися на інших сайтах More sharing options...
Leon Опубліковано: 23 вересня 2013 Автор Поділитись Опубліковано: 23 вересня 2013 Kysil, дякую за увагу до мого проекту! 1. Ширина кімнат 10 і 11 одинакова - 4180. 2. Зміщувати стіну між 9 та 10 не хочеться. Там під стіною місця для ліжок. Доведеться жертвувати симетрією. 3. Там вхід в топочну, тому відносно входу, вікно майже відцентроване. 4. Маємо терасу, змістити В-4 не так просто, хіба що і терасу розширити.. 5. Я б і одними дверима обійшовся, але ж хочеться мати вихід в внутрішній двір(Д-7) і не бігати в топочну через гостинну та кухню(Д-6). 6. Прохід на кухню дійсно варто зробити вужчим.. три метри - це занадто :D Посилання на коментар Поділитися на інших сайтах More sharing options...
Kysil Опубліковано: 23 вересня 2013 Поділитись Опубліковано: 23 вересня 2013 Kysil, дякую за увагу до мого проекту! 1. Ширина кімнат 10 і 11 одинакова - 4180. 2. Зміщувати стіну між 9 та 10 не хочеться. Там під стіною місця для ліжок. Доведеться жертвувати симетрією. 3. Там вхід в топочну, тому відносно входу, вікно майже відцентроване. 4. Маємо терасу, змістити В-4 не так просто, хіба що і терасу розширити.. 5. Я б і одними дверима обійшовся, але ж хочеться мати вихід в внутрішній двір(Д-7) і не бігати в топочну через гостинну та кухню(Д-6). 6. Прохід на кухню дійсно варто зробити вужчим.. три метри - це занадто :D Я насправді не є якимось симетро-фанатиком. Навпаки, люблю архітектурні стилі епохи Великого Будівельного Буму, в яких домінувала асиметрія. Але! Асиметрія буває художньою і випадковою. У вас саме випадкова. Не зумовлена ані художнім задумом, ані жорстким функціоналізмом. Я раджу вам намалювати всі фасади і декілька днів просто дивитися на них. Якщо внутрішнього дискомфорту не виникає - можете сміливо починати білдінг. Це ваш будинок, врешті. Стосовно п. 6. Коли я псував папір для свого проекту, в одному з варіантів було от саме таке розміщення вітальні та кухні. І саме така дірка між ними. :D Я довго не міг зрозуміти, що там і як - поки не почав віртуально ставити меблі. Тоді все стало на місця. Залишив прохід 1,6 м, без дверей. Посилання на коментар Поділитися на інших сайтах More sharing options...
Leon Опубліковано: 1 листопада 2013 Автор Поділитись Опубліковано: 1 листопада 2013 Зранку був звичайний день. Єдине, що дружина звернула увагу на те що сьогодні перший день останнього місяця осені. Коротше.. Несподівано отримав від архітектора дизайн свого будинку. І саме в такому вигляді, який ми обговорювали майже рік тому Я побачив на малюнку те,що тримав весь час в голові. Я в екстазі. Сподіваюсь і вам сподобається... 2 Посилання на коментар Поділитися на інших сайтах More sharing options...
Kysil Опубліковано: 1 листопада 2013 Поділитись Опубліковано: 1 листопада 2013 . Я в екстазі. Сподіваюсь і вам сподобається... Цілком пристойно. Посилання на коментар Поділитися на інших сайтах More sharing options...
Erich Hartmann Опубліковано: 1 листопада 2013 Поділитись Опубліковано: 1 листопада 2013 Зранку був звичайний день. Єдине, що дружина звернула увагу на те що сьогодні перший день останнього місяця осені. Коротше.. Несподівано отримав від архітектора дизайн свого будинку. І саме в такому вигляді, який ми обговорювали майже рік тому Я побачив на малюнку те,що тримав весь час в голові. Я в екстазі. Сподіваюсь і вам сподобається... [ATTACH]317756[/ATTACH] Достойный проект! без ненужных заворотов)) Посилання на коментар Поділитися на інших сайтах More sharing options...
Tarras Опубліковано: 1 листопада 2013 Поділитись Опубліковано: 1 листопада 2013 Це не я, це мій архітектор) Посилання на коментар Поділитися на інших сайтах More sharing options...
Музей Опубліковано: 1 листопада 2013 Поділитись Опубліковано: 1 листопада 2013 Просится симметричное расположение окон на фасаде выходящем на терассу. Это сделать крайне просто. Двери из кухни в кладовую и из кладовой на улицу надо отодвинуть от стенки на 100-200 см. Таким образом у Вас появится функциональная ниша в кладовой. 1 Посилання на коментар Поділитися на інших сайтах More sharing options...
Kysil Опубліковано: 1 листопада 2013 Поділитись Опубліковано: 1 листопада 2013 Просится симметричное расположение окон на фасаде выходящем на терассу... Чи то читаєте мої думки, чи то прочитали #263... А коли одне вікно на фасаді, і зміщене з осі даху - 1 Посилання на коментар Поділитися на інших сайтах More sharing options...
Leon Опубліковано: 2 листопада 2013 Автор Поділитись Опубліковано: 2 листопада 2013 Достойный проект! без ненужных заворотов)) А ти коли вже покажеш свій проект? Чи може тихенько за рік і побудуватись встиг? Музей, Kysil: я не бачу асиметрії :D Але обіцяю вам, що поспілкуюсь з архітектором. Час , щоб робити такі зміни, ще є. Посилання на коментар Поділитися на інших сайтах More sharing options...
Kysil Опубліковано: 2 листопада 2013 Поділитись Опубліковано: 2 листопада 2013 Музей, Kysil: я не бачу асиметрії Не бачите? А фасади всі намалювали? :D Але обіцяю вам, що поспілкуюсь з архітектором. Час , щоб робити такі зміни, ще є. Ми з Музей перевіримо. ;) Посилання на коментар Поділитися на інших сайтах More sharing options...
Andrei constructor Опубліковано: 2 листопада 2013 Поділитись Опубліковано: 2 листопада 2013 Я в екстазі. Хорошие визуализации. Единственное, что бы поправил: труба камина берет на себя лишний акцент (на широкой трубе украшения сомотрятся хорошо, на узкой не очень. Возможно это субъективное. Посилання на коментар Поділитися на інших сайтах More sharing options...
Музей Опубліковано: 2 листопада 2013 Поділитись Опубліковано: 2 листопада 2013 Очень нравится входная часть. Но есть одно "НО". Приблизительно четверть снежного покрова со всей кровли будет сваливаться именно на ступеньки. Я понимаю, что будут снегорезы или прочие хитрости. Действительно ли они решают эту проблему? Как-то малоприятно принять на голову снежно-ледяную лавину с кровли. Добавлено через 1 минуту Хорошие визуализации. Единственное, что бы поправил: труба камина берет на себя лишний акцент (на широкой трубе украшения сомотрятся хорошо, на узкой не очень. Возможно это субъективное. Мне кажется, эти трубы расположены перпендикулярно. Развернуть бы одну из них на 90 градусов. Посилання на коментар Поділитися на інших сайтах More sharing options...
Рекомендовані повідомлення
Створіть акаунт або увійдіть у нього для коментування
Ви маєте бути користувачем, щоб залишити коментар
Створити акаунт
Зареєструйтеся для отримання акаунта. Це просто!
Зареєструвати акаунтУвійти
Вже зареєстровані? Увійдіть тут.
Увійти зараз