Максон Опубліковано: 1 серпня 2011 Поділитись Опубліковано: 1 серпня 2011 Щас читаю всё ещё эту тему. Пытаюсь уловить суть архитектурного проектирования, сформировать образ своего идеального дома (ведь всёравно когда то и я буду строиться). Все проекты на всяких сайтах какие то сложные мне кажется. Может я и не прав, но моё видение хорошей планировки - это простор, незагромождение лишним и простота. Тот рисунок, что я скинул - к сожалению фундамент уже стоит (отец не посоветовшись со мной поставил) Если вы не против, то вот кину проект (сильно сказано), который я сочиняю и было бы приятно, если им ктонибудь воспользуется (естественно, доработав). Прикол в том, что заходишь в дом и сразу виден простор - взор уходит в зал. Идёшь прямо по широкому корридору - темновато, заходишь в зал, а сверху второй свет и высокие окна, а за окнами лес. В первом варианте удачное расположение лестницы, но неудачное кухни. На втором рисунке наоборот. Во втором варианте наверное удобно - зашёл в дом и можешь попасть сразу на кухню и набить пузо, а от туда в зал смотреть телек, т.е. возможен сквозной путь через кухню. В обоих вариантах под лестницей на второй этаж есть лестница в цокольный этаж. То, что я скинул - это очень примерно (даже не вникал как где и сколько расположить окон), но идея понятна. Когда я придумываю, то представляю как пойду туда то туда то, какие ощущения будут и т.д. Все так делают? Надеюсь, что не захламил тему, а наоборот кому то даже помогу. Ну и в двух словах, конечно же, хотелось бы услышать нашего мастера. Например, мои подозрения, что корридор широковат, в эркере можно сделать веранду. А вобщем планировка чувствуется чем то лучше, чем моё первое сообщение в этой теме. Чем конкретно не понятно, но когда гуляю по этому дому в своих мозгах, то как то кайфовее на душе. Благодарю Посилання на коментар Поділитися на інших сайтах More sharing options...
nesstea Опубліковано: 7 серпня 2011 Поділитись Опубліковано: 7 серпня 2011 Уважаемый Архитектор, мне приглянулся проект одноэтажного дома с мансардой z500.com.ua/ru/project/Z99. Я вижу в нем такие сильные стороны: 1. Есть комната на первом этаже т.е. когда мы с женой постареем и дети разъедутся не надо будет подниматься на второй этаж. 2. Наш участок позволяет расположить дом террасой на юг и т.к на южной стороне терраса и много окон он будет хорошо освещаться и прогреватся солнцем зимой. Но меня смущает высота стенок мансарды, не буду ли я при росте 185 см при подъеме с кровати биться о стену-потолок? А может быть практичнее и не намного дороже полноценный двухэтажный дом? Мне он кажется идеальным и перспективным для семьи из 3-4 человек. Так -же он подходит для узких участков. Хотелось бы услышать Ваше подробное мнение об этом проекте, может в нем что-то стоит доработать? Посилання на коментар Поділитися на інших сайтах More sharing options...
alenar Опубліковано: 8 серпня 2011 Поділитись Опубліковано: 8 серпня 2011 Добрый день! Хочу Вас попросить высказать свое мнение, как специалиста по-поводу данного проекта. (ссылка устарела) А можно в 1 проекте гараж сделать на уровне дома, а дом вытянуть в длину, не меняя планировки дома? proekty.muratordom.com.ua/dvukhetazhnyie/projekt_zolotoi-piesok,1089,1,22.htm?nr=0 Буду признательна за все Ваши советы и замечания!!! Посилання на коментар Поділитися на інших сайтах More sharing options...
архітектор Опубліковано: 8 серпня 2011 Автор Поділитись Опубліковано: 8 серпня 2011 Щас читаю всё ещё эту тему. Пытаюсь уловить суть архитектурного проектирования, сформировать образ своего идеального дома (ведь всёравно когда то и я буду строиться). Все проекты на всяких сайтах какие то сложные мне кажется. Может я и не прав, но моё видение хорошей планировки - это простор, незагромождение лишним и простота. Интересный вопрос - как уловить суть архитектурного проектирования. Интересовался темой музеев архитектуры - наверное ни для кого не секрет, что в Украине с почти 50 млн. населения - нет и не планируется создание музея архитектуры. Маленькая Эстония, Латвия, чуть побольше - Финляндия, Швеция, Норвегия - имеют свои музеи архитектуры. При чем за их создание и поддержкой следят на уровне государства, финансируют, популяризуют эту тему. В музеях собраны работы архитекторов, живших и работавших на территории страны за последние 200 лет. Есть макеты, чертежи. В музеях показывают фильмы о выдающися архитекторах - например о виллах Ле Корбюзье, почему он проектировал их именно такими. При такой подержке становиться понятным - почему отношение к архитектуре в этих странах другое. Для них дом нечно больше, чем квадратные метры для жилья. Это вековая культура и достижения современной цивилизации. У нас, к сожалению, архитектура сведена к попсе, китчу. Нельзя одним махом - вот так сразу постичь то, что дается годами и упорной учебой. Плюс к тому - к архитектуре нужно особое расположение навыков и интуиции. В архитектуре нет однозначных решений - красивее или гармоничнее? Кто сказал, что это красиво? В любом случае ответ на этот вопрос должны давать профессионалы, а не любители. 1 Посилання на коментар Поділитися на інших сайтах More sharing options...
архітектор Опубліковано: 8 серпня 2011 Автор Поділитись Опубліковано: 8 серпня 2011 Уважаемый Архитектор, мне приглянулся проект одноэтажного дома с мансардой z500.com.ua/ru/project/Z99. Но меня смущает высота стенок мансарды, не буду ли я при росте 185 см при подъеме с кровати биться о стену-потолок? А может быть практичнее и не намного дороже полноценный двухэтажный дом? Мне он кажется идеальным и перспективным для семьи из 3-4 человек. Так -же он подходит для узких участков. Хотелось бы услышать Ваше подробное мнение об этом проекте, может в нем что-то стоит доработать? Я уже как-то приводил в пример "жигули" переделанные в "лимузин". Грубо, но понятно. В задумке архитектора, а тем более в типовом проекте, важно сохранять целостность или искать другой проект. Растягивание, сжимание - только исказит гармоничне пропорции, а дом из профессиональной архитектуры превратится в тривиальное строение. По поводу высоты потолка на мансарде - это скорее даже надуманная проблема. Даже если у вас рост 185 см, то это не означает, что вы поднимаясь с кровати выпрямляетесь у изголовья на все 1,85 м. Скорее всего вы садитесь по середине кровати, а потом встаете. Тоесть выпрямляетесь не под началом скоса, а в том месте, где он набирает достаточную высоту. Такие дома строят в Польше, Чехии, Франции, Испании - и даже не задумываются, что это неудобно. Наоборот, они понимают, что это экономное решение. У той же Икеи есть полно низкой мебели для мансардных помещений. Естественно, трехдверный шкаф никто там под стенку не ставит, для этого разработаны специальные типовые решения. Для того, чтобы принять мансарду как она есть - можно испробовать несколько способов - соорудить над кроватью каркас из брусков, сымитировав наклон потолка мансарды, поехать в какой-то дом с мансардой, попробовать там пожить дня два, полистать каталоги с решениями интерьеров на мансардах, присмотреть, какую мебель нужно подбирать, как ее правильно расставлять. Это уже заботы другого порядка. Как раз характерны для переходного периода - когда уже не главное - настроить как можно больше квадратных метров. Наоборот задача состоит в том, как сделать дом максимально комфортным и экономичным при минимально необходимой или достаточной площади. Ресурсы на строительство и отопление, обслуживание, ведь не вечные. Посилання на коментар Поділитися на інших сайтах More sharing options...
архітектор Опубліковано: 8 серпня 2011 Автор Поділитись Опубліковано: 8 серпня 2011 Добрый день! Хочу Вас попросить высказать свое мнение, как специалиста по-поводу данного проекта. (ссылка устарела) А можно в 1 проекте гараж сделать на уровне дома, а дом вытянуть в длину, не меняя планировки дома? proekty.muratordom.com.ua/dvukhetazhnyie/projekt_zolotoi-piesok,1089,1,22.htm?nr=0 Буду признательна за все Ваши советы и замечания!!! Внешне дом очень прост - просто жилье, максимум функциональности. Мое мнение - нужно понимать контекст (где дом будет строиться, насколько профессиональны строители) и бюджет строительства. Как известно, чудес не бывает, при определенных исходных данных можно с небольшой погрешностью высчитать результат, пусть даже его надо будет ждать два-три года. Ну и естественно, исходя из контекста можно говорить о внешнем виде дома. По поводу планировок - также важен контекст, так как это не дом ради дома, а "машина для жилья" конкретных людей. А в принципе - планировка нормальная, ведь ее делали специалисты. Правда не наши, польские, и дом можно легче построить в Польше, чем на "диком Восточном рынке". Посилання на коментар Поділитися на інших сайтах More sharing options...
alenar Опубліковано: 8 серпня 2011 Поділитись Опубліковано: 8 серпня 2011 Что вы имели ввиду "дом можно легче построить в Польше, чем на "диком Восточном рынке"? Посилання на коментар Поділитися на інших сайтах More sharing options...
архітектор Опубліковано: 8 серпня 2011 Автор Поділитись Опубліковано: 8 серпня 2011 Что вы имели ввиду "дом можно легче построить в Польше, чем на "диком Восточном рынке"? Лично я в Польше не строил. Но видел построенное и слышал рассказы от строителей. Только несколько примеров: -вывоз и складирование мусора - только в специально отведенные места. -получение разрешения на строительство до начала стройки и установка маленького щитка с информацией про строящийся дом, его параметры (площадь, внешний вид), чтобы у контролирующих органов не возникало вопросов -условия проживания строителей - не будка, не палатка, а полноценное жилье недалеко от стройки с душем и мини-кухней -контроль процессов строительства сертифицированными специалистами -ответственность подрядной организации Как результат - порядок на стройке, безопасность выполения работ, чистота и соответствующее цене качество. Рассмотрим теперь обычную украинскую стройку - минимум механизации, мусор, безответственность, работа неквалифицированных рабочих, отсутствие контроля профессионалов, взяточничество контролирующих органов. Все это полулегальным образом, в большинстве случаев на честном слове. Как результат - лотерея. Повезет-неповезет. Пронесет-непронесет. Берете польский проект и несете его укр. прорабу. Смотрите его смету и то, как он выполняет и собирается выполнять работу. Специалист сразу поймет, что про технологические процессы можно забыть, всему сложному суждено упроститься до безобразия. Максимум на что можно расчитывать - внешний "марафет" и "накрашенные губы" - это я о здании. Но стоит копнуть глубже и сразу понятно - это как сравнивать отдых в Крыму и отдых в Турции. 1 Посилання на коментар Поділитися на інших сайтах More sharing options...
S_S_S Опубліковано: 12 серпня 2011 Поділитись Опубліковано: 12 серпня 2011 Подскажите из своего опыта или посоветуйте где посмотреть: 1. сколько санузлов лучше запланировать в доме (2 этажа)? 2. какой примерно должна быть площадь детской? 3. какой примерно должна быть площадь родительской спальни? Исходные данные: дом для постоянного проживания, бабушка, родители, двое разнополых детей-подростков, т.е. всего 5 человек (3 поколения) Высота потолков примерно 2,85-2,95 м. Варианты комнат по 30-50 метров не рассматриваются Площадь гардеробных или встроенных шкафов в площадь комнат не включаем. Посилання на коментар Поділитися на інших сайтах More sharing options...
архітектор Опубліковано: 12 серпня 2011 Автор Поділитись Опубліковано: 12 серпня 2011 Подскажите из своего опыта или посоветуйте где посмотреть: 1. сколько санузлов лучше запланировать в доме (2 этажа)? 2. какой примерно должна быть площадь детской? 3. какой примерно должна быть площадь родительской спальни? Исходные данные: дом для постоянного проживания, бабушка, родители, двое разнополых детей-подростков, т.е. всего 5 человек (3 поколения) Высота потолков примерно 2,85-2,95 м. Варианты комнат по 30-50 метров не рассматриваются Площадь гардеробных или встроенных шкафов в площадь комнат не включаем. 1. не менее 2-х, в одном из них ванная с душевой лейкой на смесителе, в другой - душевая кабина. Может быть еще дополнительный гостевой санузел, где-то при входе, с унитазом и умывальником. В зависимости от площади дома. 2. от 14 до 25 м2, в зависимости сколько детей, есть ли отдельная игровая зона вне спальни. Если спальня состоит из кровати, и письменного стола для одного ребенка, то 14-15 м2 вполне достаточно. 3. спальня родителей от 15 м2 до 20 м2 Размеры комнат зависят от меблирования и формы/размеров используемой мебели, расположения дверей, окон, проходных зон. Есть целая наука о организации жилого пространсва - "Эргономика жилого пространсва". Можно поискать на эту тему в Гугл. Есть книги Эрнста Нойферта об эргономике и проектировании жилых пространств - arx.novosibdom.ru/node/247 вот несколько выдержек: ЧЕЛОВЕК И ЗАНИМАЕМОЕ ИМ МЕСТО В частности, по Нойферту жилище должно защищать человека от непогоды и создавать среду, способствующую сохранению его здоровья и работоспособности. Для этого требуется, чтобы в жилых помещениях всегда был чистый, богатый кислородом воздух необходимой влажности, чтобы комнаты легко и без сквозняков проветривались, были достаточно теплыми и хорошо освещенными. Потребность в воздухе. Человек вдыхает с воздухом кислород и выдыхает углекислый газ и водяные пары. Количество их меняется в зависимости от массы питания, деятельности человека и от окружающей среды. В среднем человек выдыхает 0,02 м3 углекислого газа и 40 г водяных паров в 1 час. Присутствие 0,1—0,3% углекислоты в воздухе уже вызывает некоторое раздражение дыхательных путей (более глубокое дыхание). Поэтому её содержание в воздухе жилых помещений должно быть не более 0,1%. При однократном обмене воздуха в 1 час необходимо, чтобы объём помещения был не менее 32 м3 на взрослого человека и 15 м3 на ребенка. В зданиях, расположенных на открытой местности, где даже при закрытых окнах обеспечен полутора— двухкратный обмен воздуха в 1 ч, достаточен объём помещений на одного взрослого 16 — 24 м3 (в зависимости от вида здания) и на ребенка —8—12 м3; таким образом, при высоте комнат > 2,5 м жилая площадь на одного взрослого составит 6,4—9,6 м2 и на одного ребенка — 3,2— 4,8 м2. При более интенсивном воздухообмене, например при открывании окон на ночь или при наличии вытяжных каналов, общий объем жилых помещений на одного человека может быть снижен до 7,5 м3 и объем спален до 10 м3. При наличии в помещениях огневых точек или источников дурного запаха (в больницах, на заводах), а также в совершенно замкнутых помещениях (например, в зрительных залах) необходима искусственная вентиляция. Температура помещений. Наиболее благоприятна для человека, находящегося в состоянии покоя, температура 18—20°С, для занятого физическим трудом—15—18° С (в зависимости от тяжести работы). Человеческий организм можно сравнить с печью, которая сжигая топливо пищу, выделяет за 1 час около 1,5 ккал на каждый килограмм собственной массы. Взрослый человек массой 70 кг выделяет в 1 ч 105 ккал, за сутки—2520 ккал; такого количества хватило бы на то, чтобы вскипятить 25 л воды. Выделение человеком тепла меняется в зависимости от его деятельности; оно повышается при понижении температуры окружающего воздуха и при физическом труде. Подогрев воздуха необходимо осуществлять не слишком горячими приборами отопления, расположенными у самых холодных ограждений помещения. При температуре приборов свыше 70 —80°С наблюдается явление перегонки пылевых частиц, продукты которой действуют раздражающе на слизистые оболочки носоглотки и вызывают ощущение сухости. Поэтому паровое отопление и железные печи из-за высокой температуры их поверхностей не подходят для жилья. Влажность воздуха в помещении. Наиболее благоприятна относительная влажность воздуха в помещении 50—60%; она может колебаться в пределах 40—70%. Более высокая влажность способствует развитию болезнетворных бактерий, плесени, повышает теплопередачу и образование конденсата. Интенсивность выделения человеком водяных паров меняется в зависимости от его деятельности и является важнейшим фактором защиты человеческого тела от перегрева. Интенсивность испарения увеличивается с повышением температуры воздуха в помещении, особенно если она превышает 37° С. 20 Посилання на коментар Поділитися на інших сайтах More sharing options...
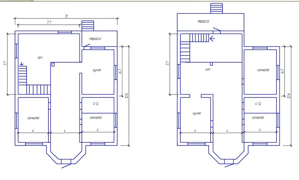
mamont-it Опубліковано: 15 серпня 2011 Поділитись Опубліковано: 15 серпня 2011 Здравствуйте! Посмотрите пожалуйста наш проект. www.stroimdom.com.ua/forum/showpost.php?p=1130489&postcount=1 Единственное изменение к нему: решили строить стену в 1 кирпич +130 мм перлит+ пол кирпича (вроде таковой должно быть достаточно для одноэтажного дома). Проект рисовал наш знакомый архитектор, но, к сожалению он не очень силен в строительных нюансах Заранее спасибо Посилання на коментар Поділитися на інших сайтах More sharing options...
архітектор Опубліковано: 15 серпня 2011 Автор Поділитись Опубліковано: 15 серпня 2011 Здравствуйте! Посмотрите пожалуйста наш проект. www.stroimdom.com.ua/forum/showpost.php?p=1130489&postcount=1 Единственное изменение к нему: решили строить стену в 1 кирпич +130 мм перлит+ пол кирпича (вроде таковой должно быть достаточно для одноэтажного дома). Проект рисовал наш знакомый архитектор, но, к сожалению он не очень силен в строительных нюансах Заранее спасибо Если не сильны в строительный ньюансах, то не нужен вам такой накрученный план дома. Лучше делать все простым. Это как в инстранном языке - для начала намного лучше знать простые констркуции и фразы, и только потом, к концу строительства или в следующий раз прибегать к замысловатым формам. Я удивляюсь, как вы только с планами, без фасадов, без проработки проекта уже выбрали прораба и бригаду. У вас разве много денег? Это все равно, что если бы я хотел пиар компанию на ТВ и выкупил себе прайм-тайм на месяц, но непроработал стратегию и четкий план действий. Это как минимум - потеря бюджета и отсутствие результата. Ваш риск очень высокий. Посилання на коментар Поділитися на інших сайтах More sharing options...
mamont-it Опубліковано: 16 серпня 2011 Поділитись Опубліковано: 16 серпня 2011 Если не сильны в строительный ньюансах, то не нужен вам такой накрученный план дома. Лучше делать все простым. Это как в инстранном языке - для начала намного лучше знать простые констркуции и фразы, и только потом, к концу строительства или в следующий раз прибегать к замысловатым формам. План не накрученный, просто он показался нам наиболее удобным. Мы вообще изначально хотели дом лесенкой сделать, но потом узнали про фундамент, перекрытия, высоту конька и т.п. Потом решили сделать в виде креста, но наш архитектор сделал много "ошибок", в результате его завернул прораб (параллельно нарисовав нам смету в 40 куе только за фундамент). Планировку переделали, это последний вариант. Я удивляюсь, как вы только с планами, без фасадов, без проработки проекта уже выбрали прораба и бригаду. У вас разве много денег? Это все равно, что если бы я хотел пиар компанию на ТВ и выкупил себе прайм-тайм на месяц, но не проработал стратегию и четкий план действий. Это как минимум - потеря бюджета и отсутствие результата. Ваш риск очень высокий. С прорабом проект уже проговорен, фасады тоже есть и разрезы, правда для предыдущей версии проекта (для этой еще дорисовываются размеры и т.п. ). Честно говоря меня интересует устойчивость дома, т.к. один из прорабов, с которым я общался, выразил обеспокоенность по этому вопросу. Но, может, он просто привык строить только квадратные дома... Посилання на коментар Поділитися на інших сайтах More sharing options...
архітектор Опубліковано: 16 серпня 2011 Автор Поділитись Опубліковано: 16 серпня 2011 План не накрученный, просто он показался нам наиболее удобным. Мы вообще изначально хотели дом лесенкой сделать, но потом узнали про фундамент, перекрытия, высоту конька и т.п. Потом решили сделать в виде креста, но наш архитектор сделал много "ошибок", в результате его завернул прораб (параллельно нарисовав нам смету в 40 куе только за фундамент). Планировку переделали, это последний вариант. С прорабом проект уже проговорен, фасады тоже есть и разрезы, правда для предыдущей версии проекта (для этой еще дорисовываются размеры и т.п. ). Честно говоря меня интересует устойчивость дома, т.к. один из прорабов, с которым я общался, выразил обеспокоенность по этому вопросу. Но, может, он просто привык строить только квадратные дома... С прорабом проект оговорен... Это интересный ход мыслей... Тут недавно у меня с одим прорабом баттл был на форуме... Не читали? Теперь прораб не пишет ничего, видно буквы кончились на компе. Если вас все устраивает - а именно - неопытный архитектор-студент, опытный, но не в той сфере прораб, то я могу только отойти в сторону в вашей композиции. Не прораб решает - устойчивый дом или нет, для этого есть исходные данные и расчеты специалистов. Дело прораба - производить работы. И еще, если я, как архитектор, говорю, что ваш план накрученный, то у меня для этого есть некоторые основания. Не вижу смысла продолжать спор. 2 Посилання на коментар Поділитися на інших сайтах More sharing options...
mamont-it Опубліковано: 16 серпня 2011 Поділитись Опубліковано: 16 серпня 2011 Не прораб решает - устойчивый дом или нет, для этого есть исходные данные и расчеты специалистов. Дело прораба - производить работы. И еще, если я, как архитектор, говорю, что ваш план накрученный, то у меня для этого есть некоторые основания. Не вижу смысла продолжать спор. Та я ж не спорю, я как раз Вашим мнением интересуюсь... А в чем он накрученый? Посилання на коментар Поділитися на інших сайтах More sharing options...
архітектор Опубліковано: 16 серпня 2011 Автор Поділитись Опубліковано: 16 серпня 2011 Та я ж не спорю, я как раз Вашим мнением интересуюсь... А в чем он накрученый? Возьмите план какого нибудь дома из интернета и положите его рядом со своим. Расскажите, что вы видите? Когда архитектор проектирует дом, он, как минимум, держит в голове несколько соствляющих: - планировка (рациональная, без закапелков, закрученных коридоров, несущих стен посреди комнат), учитывающая размещение электрощитков, отопительного оборудования, мебели, вентканалов. С достаточным количетвом несущих стен. - фасады должны быть гармоничными и неразрывно связанными с планировкой, учитывать наработки архитектурной школы, а не аматорской самодяетельности. Под словом "школа" я имею ввиду ВУЗ с многолетними традициями. В тех набросках, что у вас по ссылке - это упражнения в работе с компьютерной пограммой для черчения "Архикад", но это не проект. Мне, как специалисту, больше нечего сказать по вашей теме. Посилання на коментар Поділитися на інших сайтах More sharing options...
mamont-it Опубліковано: 17 серпня 2011 Поділитись Опубліковано: 17 серпня 2011 Возьмите план какого нибудь дома из интернета и положите его рядом со своим. Расскажите, что вы видите? Когда архитектор проектирует дом, он, как минимум, держит в голове несколько соствляющих: - планировка (рациональная, без закапелков, закрученных коридоров, несущих стен посреди комнат), учитывающая размещение электрощитков, отопительного оборудования, мебели, вентканалов. С достаточным количетвом несущих стен. - фасады должны быть гармоничными и неразрывно связанными с планировкой, учитывать наработки архитектурной школы, а не аматорской самодяетельности. Под словом "школа" я имею ввиду ВУЗ с многолетними традициями. В тех набросках, что у вас по ссылке - это упражнения в работе с компьютерной пограммой для черчения "Архикад", но это не проект. Мне, как специалисту, больше нечего сказать по вашей теме. Все понял, спасибо Посилання на коментар Поділитися на інших сайтах More sharing options...
SmileSvetlana Опубліковано: 17 серпня 2011 Поділитись Опубліковано: 17 серпня 2011 (ссылка устарела) Уважаемый архитектор, есть ли в данном проекте какие-то нюансы, на которые стоит обратить внимание? И как Вам, как специалисту, проект в общем? Очень Вам благодарна. Посилання на коментар Поділитися на інших сайтах More sharing options...
SmileSvetlana Опубліковано: 17 серпня 2011 Поділитись Опубліковано: 17 серпня 2011 woodenhouses.ecobiz.com.ua/catalogs/2/product_92 Верхняя ссылка что-то не открывалась. Попробуйте эту. Посилання на коментар Поділитися на інших сайтах More sharing options...
domikoff Опубліковано: 23 серпня 2011 Поділитись Опубліковано: 23 серпня 2011 Если можно, выскажитесь или посоветуйте что-то по моей теме. www.stroimdom.com.ua/forum/showthread.php?t=73683 Посилання на коментар Поділитися на інших сайтах More sharing options...
t_olchik Опубліковано: 23 серпня 2011 Поділитись Опубліковано: 23 серпня 2011 Подскажите, пожалуйста, какие-то требования к гардеробным есть? Может минимальные размеры. Мы пока на стадии разработки своего проекта, но при обсуждении оного многие склоняют к мысли, что нам стоит сделать шкаф-купе, т.к. запроектированные гардеробные маленькие. Буду благодарна за совет www.stroimdom.com.ua/forum/showthread.php?t=72793 Посилання на коментар Поділитися на інших сайтах More sharing options...
Irina25 Опубліковано: 2 вересня 2011 Поділитись Опубліковано: 2 вересня 2011 Скажите пожалуйста какова на сегодняшний день стоимость Вашей работы. Меня интересует та часть проекта которая необходима для получения разрешения на строительство. И если можно опишите детальнее, что в эту часть должно входить. Мне районный архитектор объяснила, что будут входить : генплан, фасады, разрезы, (что-то еще?) ТУ на воду, ТУ на свет, ТУ на газ (все согласованное) и это все будет стоить около 12 т. грн. Вот не знаю что делать... Спасибо. Посилання на коментар Поділитися на інших сайтах More sharing options...
архітектор Опубліковано: 2 вересня 2011 Автор Поділитись Опубліковано: 2 вересня 2011 woodenhouses.ecobiz.com.ua/catalogs/2/product_92 Верхняя ссылка что-то не открывалась. Попробуйте эту. Да вроде ничего особенного - дом как дом, сруб. Посилання на коментар Поділитися на інших сайтах More sharing options...
архітектор Опубліковано: 2 вересня 2011 Автор Поділитись Опубліковано: 2 вересня 2011 Подскажите, пожалуйста, какие-то требования к гардеробным есть? Может минимальные размеры. Мы пока на стадии разработки своего проекта, но при обсуждении оного многие склоняют к мысли, что нам стоит сделать шкаф-купе, т.к. запроектированные гардеробные маленькие. Буду благодарна за совет www.stroimdom.com.ua/forum/showthread.php?t=72793 Есть книга для проектировщиков - "metric architectural handbook" Даже в переводе есть. (ссылка устарела). Это такой объемный талмуд на все случаи проектной практики. Раздел 8 8. Houses and flats По гардеробам там предлагается такая методика - заданы размеры полок под различные виды одежды, вешалок. Имея эти исходные данные, а также представляя сколько всего вы хотите вместить в гардероб - можно его рационально спроектировать и поместить все необходимое, а также обеспечить свободный доступ к складируемым вещам. Есть еще Нойферт, которого я упоминал ранее. 2 Посилання на коментар Поділитися на інших сайтах More sharing options...
архітектор Опубліковано: 2 вересня 2011 Автор Поділитись Опубліковано: 2 вересня 2011 Скажите пожалуйста какова на сегодняшний день стоимость Вашей работы. Меня интересует та часть проекта которая необходима для получения разрешения на строительство. И если можно опишите детальнее, что в эту часть должно входить. Мне районный архитектор объяснила, что будут входить : генплан, фасады, разрезы, (что-то еще?) ТУ на воду, ТУ на свет, ТУ на газ (все согласованное) и это все будет стоить около 12 т. грн. Вот не знаю что делать... Спасибо. Ответил в личку Посилання на коментар Поділитися на інших сайтах More sharing options...
Рекомендовані повідомлення
Створіть акаунт або увійдіть у нього для коментування
Ви маєте бути користувачем, щоб залишити коментар
Створити акаунт
Зареєструйтеся для отримання акаунта. Це просто!
Зареєструвати акаунтУвійти
Вже зареєстровані? Увійдіть тут.
Увійти зараз