Dmode Опубліковано: 28 квітня 2016 Автор Поділитись Опубліковано: 28 квітня 2016 Добрый день. И ещё вопрос. Что бы с экономить на ЭППС, подумал что можно в качестве наполнителя использовать утрамбованный песок, вместо ЭППС или ПСБ. Вот такой рисунок на скорую руку. Тут два момента. Эффективность: Оставив слой в 100мм Вы теряете теплотехническую эффективность конструкции. Одно из больших преимуществ УШП, что это готовый элемент практически пассивного дома, а не ширпотреб на рынке. Делайте все остальные U/R конструкции на уровне Вашей УШП, проследите за герметичностью конструкции, и будете все последующее время экономить на стоимости отопления. Разовая экономия: ЭППС (250кПа, а лучше 300-400кПа) вообще может быть только под ребрами. Ну может еще на стойку L-блока (любой ЭППС) если есть желание делать его из одного материала, но не обязательно. В остальных местах вполне достаточно ПСБ-С. У шведов это EPS80, что даже ниже по характеристикам чем наш ПСБ-С 25 (от 15кг/м3). Вариант максимальной экономии как по мне, это ЭППС 300кПа под ребрами, и все остальное честный ПСБ-С25. Оптимальный вариант ЭППС 300-400кПа под ребра, стойка блока любой ЭППС, в остальном месте 250мм честный ПСБ-С25, и только 50мм верха любой ЭППС только для удобства монтажа. Сейчас если бы строил, то под ребра ложил бы не менее 200мм, а под остальную часть не менее 300мм, как на схеме ниже, и скоса на стойке л-блока не делал бы. 4 Посилання на коментар Поділитися на інших сайтах More sharing options...
Vikctor Опубліковано: 28 квітня 2016 Поділитись Опубліковано: 28 квітня 2016 Что бы с экономить на ЭППС, подумал что можно в качестве наполнителя использовать утрамбованный песок, вместо ЭППС или ПСБ. Вот такой рисунок на скорую руку. А Вы технически представляете как сделать изображённое на рисунке? Мне реально любопытно прочесть последовательность действий для получения того, что на эскизе. Посилання на коментар Поділитися на інших сайтах More sharing options...
Михаил Викторович Опубліковано: 28 квітня 2016 Поділитись Опубліковано: 28 квітня 2016 А Вы технически представляете как сделать изображённое на рисунке? Мне реально любопытно прочесть последовательность действий для получения того, что на эскизе. Представляю себе следующим образом. Данные: высота цоколя 40 см, высота рёбер - 30 см, уровень бетонной заливки от высшей точки заливки до ЭППС по "подушке" - 10 см. 1. Выкладываю крайние не L-блоки (высота цоколя), а U-блоки, с разницей высот в 10 см (стороной с большей высотой ставить на край будущей плиты- задаёт высоту цоколя) 2. Выставлять блоки ЭППС в виде U-блоков под промежуточные (перестенки) рёбра с высотой на 10 см меньше чем высота цоколя. 3. Пространство, которое получилось в коробах с выставленных U-блоков заполняю песком и трамбую до уровня, при котором получится закрыть песок плитами ЭППС 10 см 4. Арматура 5. Труба тёплого пола 6. Бетон: толщина рёбер 30 см, толщина бетонной стяжки над остальной площадью ЭППС - 10 см. Как то так. У меня этот вопрос возник в связи с тем, что под рёбрами плиты мы применяем 10 см ЭППС, а что мешает применить такую же толщину и на других участках. Доросел при этом рисует разноуровневый шар подложки под ЭППС. Как то так... Посилання на коментар Поділитися на інших сайтах More sharing options...
Dmode Опубліковано: 28 квітня 2016 Автор Поділитись Опубліковано: 28 квітня 2016 У меня этот вопрос возник в связи с тем, что под рёбрами плиты мы применяем 10 см ЭППС, а что мешает применить такую же толщину и на других участках. Стоимость последующего отопления должно мешать подобной "оптимизации". Иначе "оптимизированная" недвижимость уже в недалеком будущем будет считаться не отвечающей требованиям времени и довольно обременительной. Доросел при этом рисует разноуровневый шар подложки под ЭППС. Это компромисс между стоимостью, теплоэффективностью и технологичностью, поскольку площадь ребер относительно небольшая. Иначе и под ребрами было бы 300мм утеплителя, с 200мм под ребрами есть вариант от Доросел выше. Посилання на коментар Поділитися на інших сайтах More sharing options...
Vikctor Опубліковано: 28 квітня 2016 Поділитись Опубліковано: 28 квітня 2016 Пространство, которое получилось в коробах с выставленных U-блоков заполняю песком и трамбую до уровня, при котором получится закрыть песок плитами ЭППС 10 см Песка нужно много - поверьте, я знаю. Вертолёт его не доставит, значит придётся самостоятельно завезти тачками. А U-блоки этому несколько мешают уже. Далее трамбовка виброплитой может завалить внутренние стены U-блоков в отдельных местах. Это конечно не порванная опалубка ленты при заливке, но всё же...Наконец уровень подсыпки, разделённый на фрагменты рёбрами привести к общему знаменателю будет ой как непросто. Учитывая весь этот гемор, гораздо правильней и технически проще будет использовать ПСБс25 вместо песка. 4 Посилання на коментар Поділитися на інших сайтах More sharing options...
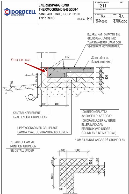
Dmode Опубліковано: 28 квітня 2016 Автор Поділитись Опубліковано: 28 квітня 2016 Кстати вот варианты подобных УШП плит от шведского Isover. Посилання на коментар Поділитися на інших сайтах More sharing options...
Dmode Опубліковано: 28 квітня 2016 Автор Поділитись Опубліковано: 28 квітня 2016 А можно ссылку на ту програмку для расчета балок или название ее пожалуйста? dfiles.eu/files/nqogzwwh8 1 Посилання на коментар Поділитися на інших сайтах More sharing options...
Михаил Викторович Опубліковано: 29 квітня 2016 Поділитись Опубліковано: 29 квітня 2016 Песка нужно много - поверьте, я знаю. Вертолёт его не доставит, значит придётся самостоятельно завезти тачками. А U-блоки этому несколько мешают уже. Далее трамбовка виброплитой может завалить внутренние стены U-блоков в отдельных местах. Это конечно не порванная опалубка ленты при заливке, но всё же...Наконец уровень подсыпки, разделённый на фрагменты рёбрами привести к общему знаменателю будет ой как непросто. Учитывая весь этот гемор, гораздо правильней и технически проще будет использовать ПСБс25 вместо песка. Сегодня пересчитал разницу в деньгах по вариантам: 1) песок и одним ЭППС по всем поверхностям в слой 10 см, выходит дороже, чем вариант 2) ЭППС под рёбрами и остальное пространство ПСБ 30 см... Посилання на коментар Поділитися на інших сайтах More sharing options...
Dmode Опубліковано: 4 травня 2016 Автор Поділитись Опубліковано: 4 травня 2016 Как вы считаете стоит ли учитывать при теплопотерях пола - утепленный высокий цоколь? Т.е. я имею ввиду толщину грунта под черновой плитой который находится выше отмостки? Чем больше факторов учесть чем точнее может быть расчет. Но в данном случае не очень понял, что именно Вы имели в виду. Понятнее бы стало видя схему разреза, если такая имеется... Посилання на коментар Поділитися на інших сайтах More sharing options...
xataridna Опубліковано: 4 травня 2016 Поділитись Опубліковано: 4 травня 2016 Добрый день. Подписался на Вашу тему...сейчас на 19-й странице... Фундаментально...Снимаю шляпу... 6 Посилання на коментар Поділитися на інших сайтах More sharing options...
Dmode Опубліковано: 4 травня 2016 Автор Поділитись Опубліковано: 4 травня 2016 Какой вариант будет энергоэффективней? Т.е. в первом варианте все точно также, только добавился утепленный цоколь, а под утеплителем грунт на высоту цоколя Оба варианта печальны с точки зрения энергоэффективности. Обсуждалось как-то в теме Uvex. Началось с фото тепловизором с вопросом почему стены опирающиеся на ленту такие холодные. www.stroimdom.com.ua/forum/showpost.php?p=3786548&postcount=4438 Ну и далее обсуждение, с картинками. www.stroimdom.com.ua/forum/showpost.php?p=3786681&postcount=4442 www.stroimdom.com.ua/forum/showpost.php?p=3788067&postcount=4452 www.stroimdom.com.ua/forum/showpost.php?p=3788134&postcount=4454 Посилання на коментар Поділитися на інших сайтах More sharing options...
Михаил Викторович Опубліковано: 4 травня 2016 Поділитись Опубліковано: 4 травня 2016 Там везде углы холодные, что на мансарде, что на первом этаже. Я думаю это обусловлено простой физикой - тепло больше уходит через углы. Тепло уходит больше не через углы, а через поверхности с большей теплопроводностью. Или в ушп все ровно в углах по теплопотерям? В УШП всё рОвно по теплопотерям только потому, что бетонная монолитная плита (с тёплым полом или без) находится в неком "корыте" (оно же и несъёмная опалубка). Другими словами, бетонная плита ограждена от внешних источников теплопотерь (теплопоступлений) утеплителем. Именно по этому она и называется "утеплённая шведская плита". В дальнейшем возведённые стены с материалов с низкой теплопроводностью, впоследствии и кровля, позволяют добиться минимальных тепловых потерь по всему дому. 3 Посилання на коментар Поділитися на інших сайтах More sharing options...
jenkins Опубліковано: 4 травня 2016 Поділитись Опубліковано: 4 травня 2016 В углах физика теплопотерь гораздо проще. Рассмотрим путь холода (теплопотерь) снаружи внутрь. В обычной плоскости стены этот путь идет перпендикулярно стене, и равен толщине стены. А в углах холод подходит перпендикулярно обеим стенам, и еще по диагонали угла, тоесть фактически в углу холод подходит с двух одинаковых путей и даже еще с третьего диагонального, тоесть путь холода в самом углу более чем в два раза меньше чем в обычной плоскости. Но путь холода это одно, а фактические теплопотери будут зависеть от пирога стены (нужно учесть неоднородность теплопроводности вдоль путей холода). Но в любом случае такие углы всегда будут холоднее плоскости. А про холодный низ блоков по холодному фундаменту - есть мысль поднять уровень пола выше уровня фундамента хотя бы на 10-15см. Это даст возможность убрать холодную зону низа стены из зоны помещения. Или же утеплить низ изнутри дополнительно например 2см ЭППС. Добавлено через 20 минут И ведь ёмаё, УШП таки эффективно решает все эти почти нерешимые проблемы утепления классических фундаментов. Что не делай, в обычных фундаментах (даже очень утепленных снаружи) температура бетона очень близка к температуре грунта весь год ~ 8...12 градусов, и без серйозных и геморных мер по утеплению изнутри, фундамент будет пожизненным источником весомых теплопотерь дома. Собственно это одна из причин почему нет большого смысла утеплять цоколь снаружи от улицы более чем 5см ЭППС - помимо этого всегда есть весомая утечка тепла в землю. 5 Посилання на коментар Поділитися на інших сайтах More sharing options...
Dmode Опубліковано: 4 травня 2016 Автор Поділитись Опубліковано: 4 травня 2016 Давайте сначала разберем какой из них более печален. ведь все таки они конструктивно отличаются Отличаются они только наличием во втором варианте высоты цоколя, поверхность которого, контактирует с более агрессивной(температурно) средой. Следовательно зимой через эту плоскость по сравнению с предыдущим вариантом будут дополнительные потери. Чем лучше будет утеплена эта плоскость, тем меньше будут эти потери, но так как потери в грунт все равно остаются в обеих вариантах, то максимум что можно добиться, это практически уравнять в потерях данные два варианта. Мне кажется в первом варианте стоит учитывать как некий теплоизолятор и сам высокий цоколь. Если слой утеплителя не перемещать как вы предложили ниже, то я бы не стал учитывать данный слой грунта как дополнительное утепление. Иначе можно бы было утверждать, что слой грунта аж до ядра земли является мегаутеплителем с мегатолщиной, и вообще другого утеплителя кроме грунта под полом не нужно. Т.е. чтобы было еще понятней, что я имею ввиду то можно поменять местами часть грунта и эппс В таком случае слой грунта можно учитывать в общей конструкции. Но также придется учитывать его теплоемкость. Избыточная теплоемкость в случае с теплым полом будет увеличивать, и так довольно не малое, время выхода на нужный режим при изменении температуры. Принимая во внимание слабый параметр теплопроводности грунтов по сравнению с EPS/XPS, а также существенное повышение теплоемкости, при теплых полах грунт в пироге между утеплителем и стяжкой скорей минус чем плюс. Там везде углы холодные, что на мансарде, что на первом этаже. Я думаю это обусловено простой физикой - тепло больше уходит через углы. Или в ушп все ровно в углах по теплопотерям? УШП, не УШП не важно. Угол всегда будет более холодным на стыке двух плоскостей ограждающих конструкций (при условии одинаковых пирогов), чем основная часть этих плоскостей. Но на фото видно, что вся плоскость стен первого этажа существенно более темная по сравнению с цветом стен на втором этаже. Недостаток ленты с тяжелыми теплоемкими стенами в том, что как не утепляй ленту, с некоторыми потерями в грунт придется смириться. Следовательно придется смириться с более низкой температурой поверхности стен опирающихся на ленту. Преимущество УШП и подобных ей фундаментов, в том, что можно сохранить НЕПРЕРЫВНОСТЬ слоя утепления во всем здании, что устраняет мосты холода в грунт присутствующих в ленте. 5 Посилання на коментар Поділитися на інших сайтах More sharing options...
Mlyki Опубліковано: 5 травня 2016 Поділитись Опубліковано: 5 травня 2016 На скільки градусів підніметься темпер. фундамента (у %) якщо утеплити відмостку? Що найкраще використати щоб гідро- і теплоізолювати газоблочну стіну від фундамента? Найкраще щоб цей перехід був в площині утеплювача підлоги. Посилання на коментар Поділитися на інших сайтах More sharing options...
Dmode Опубліковано: 5 травня 2016 Автор Поділитись Опубліковано: 5 травня 2016 На скільки градусів підніметься темпер. фундамента (у %) якщо утеплити відмостку? Треба брати Ваш розріз, та розраховувати його в варіантах з у тепленням і без у программах, що можуть рахувати складні теплотехнічні вузли. Що найкраще використати щоб гідро- і теплоізолювати газоблочну стіну від фундамента? Чим ближчий теплоопір стіни до теплоопору ефективного утеплювача, тим меньшим буде ефект холодної стіни на стрічковому фундаменті у порівнянні до стін з бетону чи цегли. Теплоопір газобетону Д300 понад 10 більший від теплопору цегли, та понад 30 раз більший від теплоопору залізобетону. Тому обговорювана проблема стрічки в поєднанні з тяжкими стінами (цегла, бетон) втрачає свою яскраву вираженість в поєднанні з газобетоном або каркасною утепленою стіною. Найкраще щоб цей перехід був в площині утеплювача підлоги. Так. Чим більшою буде відстань від кута стику кінцевої підлоги зі стіною, до точки опирання газобетону на стрічку тим міст холоду стіна-грунт буде меньшим. 1 Посилання на коментар Поділитися на інших сайтах More sharing options...
blacktigra Опубліковано: 5 травня 2016 Поділитись Опубліковано: 5 травня 2016 Dmode, а uwert способна оценить теплопотери в грунт через стену по ленточному фундаменту? Или она только сопротивление теплопередаче считает? Посилання на коментар Поділитися на інших сайтах More sharing options...
xataridna Опубліковано: 5 травня 2016 Поділитись Опубліковано: 5 травня 2016 стал думать над перемычками Здраствуйте Dmode Можете посоветовать по своему опыту... Мне надо залить перемычку-армопояс Сейчас раздумываю как выполнить заливку армопояса (соединить армопояс) на последнем фото в моей ветке. По просчетам сечение перемычки (длина у меня 2800 мм), высота должна быть минимум 15 см, ширина 11 см... Есть мысль установить щит подпорочный, уложить газоблок 100-ку по сторонам, предварительно из них сделать опалубку (заштробить и уложить арматуру), установить на щит, положить ЭППС, заложить арматуру 12-ку ( 3 шт снизу, 2шт сверху) , обязательно хомуты 6,5 мкатанка через 30-40 см... И залить бетоном... Перемычка будет в доме + франтон сверху 2м для двускатной крыши По проэкту надо уголок 100*100 залаживать... Посилання на коментар Поділитися на інших сайтах More sharing options...
Roman_T Опубліковано: 5 травня 2016 Поділитись Опубліковано: 5 травня 2016 Dmode, у меня технически проще проложить трубы приточной вентиляции под стяжкой пола. Вы много читаете зарубежные форумы, может встречалось такое решение? Какие могут быть негативные моменты? Хотя наверное идея не очень, пыль с пола будет подниматься постоянно.. Посилання на коментар Поділитися на інших сайтах More sharing options...
Dmode Опубліковано: 5 травня 2016 Автор Поділитись Опубліковано: 5 травня 2016 Скорее всего это из за того что обогрев радиаторами. Т.е. радиаторы физически не могут прогреть пол/низ первого этажа. Та если не ошибаюсь у Uvex на первом этаже и есть теплые полы, и темная картина стен первого этажа на тепловизоре показывает контраст между прохладными стенами и теплым полом. Поэтому у нас зачастую делают на 1 этаже теплые полы, а на втором преимущественно радиаторы. ИМХО такая картина формируется от желания экономии. Чтобы на второй этаж трубу не укладывать. Хотя ИМХО эта экономия сомнительный подход, потому что теряется низкотемпературность системы, и начинаются затраты на смесительные узлы и т.д. Примерно изобразил движение тепла в двух вариантах. Получается с утепленным цоколем теплу надо преодолеть больше препятствий чтобы попасть к грунту с температурой в 7гр. Вашу схему можно принять за основу только если мы абстрагируемся от дополнительных потерь через цоколь в морозы. Но принимая во внимание теплопроводность железобетона он будет практически такой же температуры как грунт, и дополнительные его 30см какого-то значимого влияния на уменьшение теплопотерь не окажут. 30см грунта также если и будет влиять то очень не значительно. Попробую на досуге забить данные конфигурации в какой нибудь софт способный визуализировать теплопотери узлов. Добавлено через 4 минуты Dmode, а uwert способна оценить теплопотери в грунт через стену по ленточному фундаменту? Или она только сопротивление теплопередаче считает? Только U/R определенного пирога конструкции. Нужен более продвинутый софт для оценки индивидуальных узлов. Я пока не изучал в каком именно можно делать такие расчеты. Добавлено через 4 минуты Можете посоветовать по своему опыту... Мне надо залить перемычку-армопояс Сейчас раздумываю как выполнить заливку армопояса (соединить армопояс) на последнем фото в моей ветке. Правильно ли я понял что перемычка о которой спрашиваете находиться полностью внутри здания, и не имеет граней граничащих с улицей? Посилання на коментар Поділитися на інших сайтах More sharing options...
xataridna Опубліковано: 5 травня 2016 Поділитись Опубліковано: 5 травня 2016 Правильно ли я понял что перемычка о которой спрашиваете находиться полностью внутри здания, и не имеет граней граничащих с улицей? да, совершенно, верно У себя в темке картинку кину, что-б у Вас не флудить.... Добавлено через 31 минуту Извините что напрягаю, заранее благодарен... www.stroimdom.com.ua/forum/showthread.php?p=3914262#post3914262 Посилання на коментар Поділитися на інших сайтах More sharing options...
Dmode Опубліковано: 5 травня 2016 Автор Поділитись Опубліковано: 5 травня 2016 Вот поэтому и думаю, есть ли смысл утеплить цоколь (а он у меня не 30, а 80см) максимально от возможного? Я бы утеплил. Но и имеются радиаторы в комнатах с большими окнами. Размер окон до пола возможно Вы видели. Вывод после двух зим эксплуатации - радиаторы под окнами не нужны. Возможно если бы теплопотери были раза в два больше, и стеклопакеты/профиль похуже, я бы утверждал другое. Но в данной конфигурации радиаторы были бы уже избыточны. Кстати, в случае, если решитесь проводить газ - то и вам надо будет делать для т.полов смесительные узлы. Почему? Котел смонтирован и ждет пуска газа, автоматика котла в погодозависимом режиме умеет держать температуру подачи от +25С и выше. И я все таки считаю, что радиаторы нужны. Но очень редко. В морозы под 20гр., чтобы в полы подачу больше 30гр. не давать Температура подачи в данном случае не главное, она зависит от шага укладки и может быть и выше 30гр. Решающим фактором является полученная температура поверхности пола. Так вот я ожидал, что пол будет более теплым по субъективным ощущениям. Но даже в морозы -22 температура поверхности была просто летней, ну или почти теплой. Зачем мне в такой мороз подключать радиаторы? Чтобы держать поверхность пола с еще более низкой температурой, или чтобы температура воздуха повысилась выше требуемой? ИМХО потребность в радиаторах обуславливается возможностью покрыть пиковые теплопотери только теплым полом, если такой возможности нет, или такая возможность предусматривает поднятие температуры поверхности до уровня выше +27~+28С, то тогда нужны радиаторы. 1 Посилання на коментар Поділитися на інших сайтах More sharing options...
Dmode Опубліковано: 5 травня 2016 Автор Поділитись Опубліковано: 5 травня 2016 А потому что дельта между подачей и обраткой для теплого пола около 4-6гр. в газовом котле вы такой дельты не добьетесь. поэтому смесительные будут необходимы. с электрокотлом - нет. Даст бог газ вообще подключать не буду. Пока могу рассуждать только теоретически. Если у моего котла с минимальной мощностью в 2.4кВт (модуляция 1:10) есть штатный режим с постоянной подачей температуры от +25С, то пусть подает, это все что от него требуется. Предположение, что он не сможет это сделать, также не более чем теория. Так весь прикол в том, что теплопотери даже приблизительные ни одна программа не вычислит. Их можно вычислить только живя уже в доме. Живя в доме можно уже сравнить расчетные с фактическими. А до этого можно вычислить с приемлемой погрешностью, если подойти к этому щепетильно. Свою разницу между расчетными значениями и фактическими выкладывал здесь. www.stroimdom.com.ua/forum/showpost.php?p=3900163&postcount=1841 Для перестраховки можно увеличить полученные теплопотери, хоть в два раза, и рассчитать гидравлику, чтобы система могла покрыть теплым полом пиковую потребность с увеличенными теплопотерями (если конечно эти увеличенные потери могут быть покрыты максимальной температурой поверхности пола по нормам СЭС). Так будет оптимальнее чем перестраховываться радиаторами, теряя низкотемпературность системы. У меня именно так спонтанно и получилось, первый свой расчет делал в спецсофте для теплого пола. Так вот он прогнозировал теплопотери в 12кВт, соответсвенно вся система расчитана на 12кВт. Потом уже когда начал детальнее копать и считать вручную получилось практически в два раза меньше, что было в последствии было подтверждено фактическими показателями. 1 Посилання на коментар Поділитися на інших сайтах More sharing options...
Dmode Опубліковано: 5 травня 2016 Автор Поділитись Опубліковано: 5 травня 2016 Также еще стоит будет учитывать теплопотери в выхлопную трубу через теплообменник котла, ведь без смесительного узла, при отключенной горелке котла теплоноситель будет ганятся все равно через котел. Что не имеет значения с электрокотлом. Ну газ, как и любое другое решение, имеет свои плюсы и свои минусы. Не знаю какой будет уровень этих потерь, но с учетом низкотемпературности, и того что горелка закрытого типа, предполагаю что не значительный. Посилання на коментар Поділитися на інших сайтах More sharing options...
goga777 Опубліковано: 5 травня 2016 Поділитись Опубліковано: 5 травня 2016 Даст бог газ вообще подключать не буду.сейчас актуально 200% Также вы абсолютно правы что не нужно уходить от низкой температуры теплоносителя. Вместо электрокотла всегда можно установить тепловой насос. p.s. больно смотреть на отличную ссхему электроснабжения в которой нет крайне необходимых компонентов 8) 2 Посилання на коментар Поділитися на інших сайтах More sharing options...
Рекомендовані повідомлення
Створіть акаунт або увійдіть у нього для коментування
Ви маєте бути користувачем, щоб залишити коментар
Створити акаунт
Зареєструйтеся для отримання акаунта. Це просто!
Зареєструвати акаунтУвійти
Вже зареєстровані? Увійдіть тут.
Увійти зараз