Днепр Владимир Опубліковано: 23 березня 2013 Поділитись Опубліковано: 23 березня 2013 Вы позорите себя, как крутого специалиста Здесь нет крутых здесь есть разбирающиеся и новички как правило не очень скромные с непонятными темами и заголовками.По теме- ждём от вас конструктивных ответов на поставленные вопросы в теме! 1 Посилання на коментар Поділитися на інших сайтах More sharing options...
Чуля Опубліковано: 24 березня 2013 Поділитись Опубліковано: 24 березня 2013 По теме- ждём от вас конструктивных ответов на поставленные вопросы в теме! Так и вопросов - не фонтан... Можно было бы, проявить больше фантазии и в целях саморекламы создать еще двух клонов под другими никами... тоесть задавать самому себе - вопросы и с помощю гугла искать и выдавать-ответы))). Да и на етом, нельзя останавливатся... мона для пиара: 1. Крутится у ног Екатерины Осадчей... а чьо.. фдруг она возьмет интервю. 2. Поучаствовать в шоу "Украина мае талант" и показать свои виртуозные навыки владения шуруповертом. 3. Сменить ориентацию по половому признаку... среди гипсарей пока не встречал, а вот на естраде такая фишка проконала. 4. Зоздать профкомитет у входа на "обойный рынок" П.С. за все свое прибывание на форуме не создал еще ни единой темы, так как етих тем уже полным полно и время от времени повторяются ... если конешно не ленится и почитать. Зачем постояно плодить новые и мусолить уже давно промусоленое? 11 Посилання на коментар Поділитися на інших сайтах More sharing options...
Олег747 Опубліковано: 25 березня 2013 Автор Поділитись Опубліковано: 25 березня 2013 Спасибо, улыбнули! У меня есть знакомый технолог (прораб) с Оболони, но образование у него - массовик-затейник. Деталей не знаю. У Вас случаем не такое же самое? Ведь отлично получается! Кстати, стройку тот мой знакомый бросил после 12 лет работы, надоело, говорит... Будут вопросы от вопрошающих по теме - отвечу, а вы отдыхайте, чего вы тут все собрались???вам это не надо. Вы мастера-профессионалы, у вас вопросов нет. Займитесь делом! я никогда не употребляю смайликов, по этому никакой агрессии в том, что я пишу, нет. Посилання на коментар Поділитися на інших сайтах More sharing options...
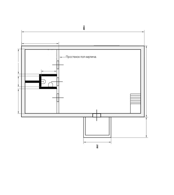
Gopchik Опубліковано: 25 березня 2013 Поділитись Опубліковано: 25 березня 2013 Добрый день! а подскажите пожалуйста - надо сделать простенки для туалета на втором этаже. Какой профиль брать? Как крепить? Во внутрь простенка и перегородки хочу ваты 100 мм засунуть... На фото черным где должен быть туалет и простенок. А также какой оптимальный должна быть длина туалета и ширина.? Спасибо. Посилання на коментар Поділитися на інших сайтах More sharing options...
andrej.kn Опубліковано: 25 березня 2013 Поділитись Опубліковано: 25 березня 2013 Профиль 75 или 100 мм (UW ,CW) - должна влезть труба канализации, чтоб не делать коробов. Крепить- дюбелями к стенам , саморезами к полу и потолку. По размерам : обозначьте на полу стены,двери, "расставьте" сантехнику и всё будет видно. Посилання на коментар Поділитися на інших сайтах More sharing options...
Gopchik Опубліковано: 25 березня 2013 Поділитись Опубліковано: 25 березня 2013 Профиль 75 или 100 мм (UW ,CW) - должна влезть труба канализации, чтоб не делать коробов. Крепить- дюбелями к стенам , саморезами к полу и потолку. По размерам : обозначьте на полу стены,двери, "расставьте" сантехнику и всё будет видно. Спасибо! а нет ли ни у кого фото самого процесса? может где то обсуждалось? хочется более наглядно посмотреть! Посилання на коментар Поділитися на інших сайтах More sharing options...
andrej.kn Опубліковано: 25 березня 2013 Поділитись Опубліковано: 25 березня 2013 (змінено) Примерно так. Удобнее сначала разметить и закрепить профиль UW на потолке и опустить отвесом на пол. Зашить влагостойким г/к внутреннюю сторону, выполнить разводку сантехники, заложить утеплитель.... gipsari.com/video-uroki/96-otkosy-gipsokarton/148-peregorodki-video.html - только стоечный профиль смонтировать с шагом 400мм и горизонтальных профилей для перевязки можно не ставить. Змінено 25 березня 2013 користувачем andrej.kn Посилання на коментар Поділитися на інших сайтах More sharing options...
biz-kiev Опубліковано: 25 березня 2013 Поділитись Опубліковано: 25 березня 2013 Будут вопросы от вопрошающих по теме - отвечу, а вы отдыхайте, чего вы тут все собрались понаблюдать за таким себе профессионалом... ждем ответов, только теперь отвечать надо грамотно, ведь и смотрящие назначены ) Назначаю вас бесплатным смотрителем за этим! Посилання на коментар Поділитися на інших сайтах More sharing options...
Олег747 Опубліковано: 25 березня 2013 Автор Поділитись Опубліковано: 25 березня 2013 Спасибо! а нет ли ни у кого фото самого процесса? может где то обсуждалось? хочется более наглядно посмотреть! Да, вопрос интересный, я-то видел в жизни не раз, как сантехнические трубы располагаются внутри перегородки, а вот чтоб Вам дать посмотреть в Интернете ссылку пока не нахожу. Ничего там сложного нет, при постройке перегородки подтягиваете сантехника и он с гипсокартонщиком вместе обсудят, как эффективней сделать вам санузел. В общих чертах Andrey/kn Вам правильно уже рассказал, как делаются подобные перестенки(перегородки). Насчёт размеров санузла можно почитать здесь - Планировка ванных комнат и санузлов — BuilderClub-Планировка ванных комнат и санузлов Посилання на коментар Поділитися на інших сайтах More sharing options...
Днепр Владимир Опубліковано: 25 березня 2013 Поділитись Опубліковано: 25 березня 2013 Профиль 75 или 100 мм (UW ,CW) - должна влезть труба канализации, чтоб не делать коробов. Крепить- дюбелями к стенам , саморезами к полу и потолку. По размерам : обозначьте на полу стены,двери, "расставьте" сантехнику и всё будет видно.Может это поможет Посилання на коментар Поділитися на інших сайтах More sharing options...
POLAA Опубліковано: 25 березня 2013 Поділитись Опубліковано: 25 березня 2013 Имеется потолок 2-го этажа. Перекрытия - деревянные балки. Фото прилагаются. Естественно, сейчас снизу балок прикреплена пароизоляция. Между балками - минвата. Балки деревянные, "живые", реагируют на влажность/погоду и т.п. 1. Какую лучше систему каркаса применить, из каких профилей? 2. Какой гипсокартон? 3. Какой толщины листы? 4. Какой толщины металл? 5. Какой шаг элементов каркаса? И т.п. Потолок ровный, под покраску, без "выгибонов".))) План с размерами прилагается. Как лучше размещать листы? Заранее спасибо за ответ. Посилання на коментар Поділитися на інших сайтах More sharing options...
Днепр Владимир Опубліковано: 25 березня 2013 Поділитись Опубліковано: 25 березня 2013 Имеется потолок 2-го этажа. Перекрытия - деревянные балки. Фото прилагаются. Естественно, сейчас снизу балок прикреплена пароизоляция. Между балками - минвата. Балки деревянные, "живые", реагируют на влажность/погоду и т.п. 1. Какую лучше систему каркаса применить, из каких профилей? 2. Какой гипсокартон? 3. Какой толщины листы? 4. Какой толщины металл? 5. Какой шаг элементов каркаса? И т.п. Потолок ровный, под покраску, без "выгибонов".))) План с размерами прилагается. Как лучше размещать листы? Заранее спасибо за ответ. 1 Двойной каркас .2 Влагостойкий( желательно)12.5мм 4. 0,55 5 . 40 см лучше 2 слоя листы ( продольная зашивка)(доп профиль по периметру )для независимой привязки к стенам (Вариант ЧУЛИ!) Посилання на коментар Поділитися на інших сайтах More sharing options...
POLAA Опубліковано: 25 березня 2013 Поділитись Опубліковано: 25 березня 2013 1 Двойной каркас . Что подразумевается под "двойным каркасом"? Видел у Кнауфа системы П112, П113, П131 и т.п. Посилання на коментар Поділитися на інших сайтах More sharing options...
Днепр Владимир Опубліковано: 25 березня 2013 Поділитись Опубліковано: 25 березня 2013 Что подразумевается под "двойным каркасом"? Видел у Кнауфа системы П112, П113, П131 и т.п. www.knauf.ru/products/turnkey/products.wbp?root_id=8348efa0-0262-4885-b19e-34fa3805739b П 112 www.knauf.ru/products/turnkey/product.wbp?root_id=47799c08-fd83-48c3-9c6d-3d97da6c1671 В место тяжей используем скобу( п обпазный кронштейн 12см.) 1 Посилання на коментар Поділитися на інших сайтах More sharing options...
ЮРИК Опубліковано: 25 березня 2013 Поділитись Опубліковано: 25 березня 2013 Имеется потолок 2-го этажа. Перекрытия - деревянные балки. Фото прилагаются. Естественно, сейчас снизу балок прикреплена пароизоляция. Между балками - минвата. Балки деревянные, "живые", реагируют на влажность/погоду и т.п. 1. Какую лучше систему каркаса применить, из каких профилей? 2. Какой гипсокартон? 3. Какой толщины листы? 4. Какой толщины металл? 5. Какой шаг элементов каркаса? И т.п. Потолок ровный, под покраску, без "выгибонов".))) План с размерами прилагается. Как лучше размещать листы? Заранее спасибо за ответ. Можно применить систему Кнауф облицовки М682 Профиль сд поперек балок через 40-50см на прямых подвесах. Листы гк поперек профиля. Посилання на коментар Поділитися на інших сайтах More sharing options...
POLAA Опубліковано: 26 березня 2013 Поділитись Опубліковано: 26 березня 2013 Можно применить систему Кнауф облицовки М682 Профиль сд поперек балок через 40-50см на прямых подвесах. Листы гк поперек профиля. Дайте, пожалуйста, ссылку на эту систему. Я пока путаюсь в не знакомой среде. Посилання на коментар Поділитися на інших сайтах More sharing options...
POLAA Опубліковано: 26 березня 2013 Поділитись Опубліковано: 26 березня 2013 В место тяжей используем скобу( п обпазный кронштейн 12см.) А она как выглядит, и какую имеет максимальную длину? Дайте, пожалуйста, ссылку. Посилання на коментар Поділитися на інших сайтах More sharing options...
ЮРИК Опубліковано: 26 березня 2013 Поділитись Опубліковано: 26 березня 2013 Дайте, пожалуйста, ссылку на эту систему. Я пока путаюсь в не знакомой среде. www.knauf.ru/products/turnkey/product.wbp?root_id=1be68a19-b0cc-46ab-b85f-05fc9ce31756 1 Посилання на коментар Поділитися на інших сайтах More sharing options...
POLAA Опубліковано: 26 березня 2013 Поділитись Опубліковано: 26 березня 2013 www.knauf.ru/products/turnkey/product.wbp?root_id=1be68a19-b0cc-46ab-b85f-05fc9ce31756 Я смотрю, что это для мансард. У меня классический потолок. Кроме того, я указал только второй этаж, который кажется более проблемным из-за "дышащих" деревянных балок. На первом же этаже перекрытие - ж/б плиты. Плиты поустойчивее деревянных балок, и вроде как "дышать" не должны. Хочу понять, выбирать для каждого этажа свою систему, или применить одну для обоих этажей? Есть какой-то (экономический, технологический, трудозатратный и т.п.) смысл делать на этажах разные системы потолка? Посилання на коментар Поділитися на інших сайтах More sharing options...
Олег747 Опубліковано: 26 березня 2013 Автор Поділитись Опубліковано: 26 березня 2013 Я смотрю, что это для мансард. У меня классический потолок. Кроме того, я указал только второй этаж, который кажется более проблемным из-за "дышащих" деревянных балок. На первом же этаже перекрытие - ж/б плиты. Плиты поустойчивее деревянных балок, и вроде как "дышать" не должны. Хочу понять, выбирать для каждого этажа свою систему, или применить одну для обоих этажей? Есть какой-то (экономический, технологический, трудозатратный и т.п.) смысл делать на этажах разные системы потолка? Я Вам так подскажу: везде в доме надо применить систему П-113 (она проста и экономична). КРОМЕ СПАЛЬНИ. В Спальне же придётся применить систему П-112 из-за большой длины помещения (прибл. 4,8 м.) и из-за незаконченных усадочных процессов. Это обойдётся Вам покупкой нескольких дополнительных профилей и пары десятков двухуровневых соединителей. И всё. Посилання на коментар Поділитися на інших сайтах More sharing options...
biz-kiev Опубліковано: 26 березня 2013 Поділитись Опубліковано: 26 березня 2013 Видел у Кнауфа системы П112, П113, П131 и т.п я бы по всем комнатам где размеры меньше 4м делал п131. если потолок не будет привязан к дереву то и не проявит его настроения (с) Посилання на коментар Поділитися на інших сайтах More sharing options...
wwwalera Опубліковано: 26 березня 2013 Поділитись Опубліковано: 26 березня 2013 Спасибо! а нет ли ни у кого фото самого ? может где то обсуждалось? хочется более наглядно посмотреть! поснимал фото процесса 2 Посилання на коментар Поділитися на інших сайтах More sharing options...
POLAA Опубліковано: 26 березня 2013 Поділитись Опубліковано: 26 березня 2013 Я Вам так подскажу: везде в доме надо применить систему П-113 (она проста и экономична). КРОМЕ СПАЛЬНИ. В Спальне же придётся применить систему П-112 из-за большой длины помещения (прибл. 4,8 м.) и из-за незаконченных усадочных процессов. Это обойдётся Вам покупкой нескольких дополнительных профилей и пары десятков двухуровневых соединителей. И всё. Посмотрел кнауфовскую спецификацию расхода комплектующих на 1 квадратный метр потолка для систем П-112 и П-113. www.knauf.ru/products/turnkey/product.wbp?root_id=47799c08-fd83-48c3-9c6d-3d97da6c1671 www.knauf.ru/products/turnkey/product.wbp?root_id=80a2d051-3e36-488e-9fbe-4fad713a6f96 Я не знаю цен на более мелкие комплектующие, но расход ГКЛ и металлического профиля для обеих систем примерно одинаков? Заметил главное отличие. Система П112 не имеет жесткой связи со стеной, поскольку отсутствует направляющий профиль. Система П113 как раз жестко привязана к стене в месте соединения направляющего, и несущего профилей. В случае с деформирующимися деревянными балками, какая система лучше, для избегания трещин? И еще момент. В системе П112 не используется направляющий профиль, то бишь - не нужно долбить кирпичные перегородки. Потолок делается на одном уровне в соседних помещениях, и если с обеих сторон в перегородки 1/2 кирпича насовать дюбелей для крепления направляющих - не развалится ли перегородка? Ведь кирпичи нынче не ахти какого качества, да и направляющие будут крепиться ближе к верху перегородки - не поотваливаются при бурении и дюбелении верхние кирпичи перегородки? Посилання на коментар Поділитися на інших сайтах More sharing options...
POLAA Опубліковано: 26 березня 2013 Поділитись Опубліковано: 26 березня 2013 я бы по всем комнатам где размеры меньше 4м делал п131. если потолок не будет привязан к дереву то и не проявит его настроения (с) Да я вот тоже первоначально к П131 присматривался. Но там ведь несущий и направляющий профиль, видимо, нужен очень мощный? Какая разница в цене комплектующих между П112 и П131? Посилання на коментар Поділитися на інших сайтах More sharing options...
andrej.kn Опубліковано: 26 березня 2013 Поділитись Опубліковано: 26 березня 2013 Правильнее собрать П112 и зашить в 2 слоя. П131 можно делать в узких помещениях (коридор с венткоробами) , где к перекрытиям тяжело подобраться. Посилання на коментар Поділитися на інших сайтах More sharing options...
Рекомендовані повідомлення
Створіть акаунт або увійдіть у нього для коментування
Ви маєте бути користувачем, щоб залишити коментар
Створити акаунт
Зареєструйтеся для отримання акаунта. Це просто!
Зареєструвати акаунтУвійти
Вже зареєстровані? Увійдіть тут.
Увійти зараз