NYKE Опубліковано: 20 квітня 2014 Поділитись Опубліковано: 20 квітня 2014 Добрый день! Приобретен участок земли под строительство дома. На участке находится фундамент под типовой проект(коттеджный микрорайон в черте города). По разговору с застройщиком(неофициальном) мне пояснили, что фундаменты делались с очень большим запасом прочности тк покупатели шарахались от тоненьких полосочек под ЛСТК. Заливали как под 5ти этажку после первых отказавшихся. Срок нахождения в готовом состоянии-5-7лет.(фото если нужно могу сделать) Вопрос: 1.Как определить пригодность для строительства этого фундамента? 2.Фундамент своего проекта не совпадает с готовым. Насколько сложно добавлять новый фундамент к готовому? Все интересующие данные могу предоставить от Застройщика. Спасибо! Посилання на коментар Поділитися на інших сайтах More sharing options...
t-projekt Опубліковано: 20 квітня 2014 Автор Поділитись Опубліковано: 20 квітня 2014 Добрый день! Приобретен участок земли под строительство дома. На участке находится фундамент под типовой проект(коттеджный микрорайон в черте города). По разговору с застройщиком(неофициальном) мне пояснили, что фундаменты делались с очень большим запасом прочности тк покупатели шарахались от тоненьких полосочек под ЛСТК. Заливали как под 5ти этажку после первых отказавшихся. Срок нахождения в готовом состоянии-5-7лет.(фото если нужно могу сделать) Вопрос: 1.Как определить пригодность для строительства этого фундамента? 2.Фундамент своего проекта не совпадает с готовым. Насколько сложно добавлять новый фундамент к готовому? Все интересующие данные могу предоставить от Застройщика. Спасибо! Дайте фото фундамента (или хотя-бы схему) интересуют общие размеры (габариты, ширина стенок) и глубина заложения, информацию по будущему дому (планировка, этажность, материал дома) Тогда смогу ответить на вопрос. Также можете дать информацию по грунтам, если есть конечно Посилання на коментар Поділитися на інших сайтах More sharing options...
mosergej Опубліковано: 21 квітня 2014 Поділитись Опубліковано: 21 квітня 2014 Добрый день. Подскажите по фундаменту. Планирую ленту 1,1х0,35 из них 0,3 над грунтом, до уровня грунта залить бетоном М200 с бутом, выше бетон и армокаркас или модет лучше просто бутом выложить. Дом 9х12 один этаж, газоблок 300, перекрытие по деревянным балкам, крыша меатллочерепица. Общая масса дома около 120т. Посилання на коментар Поділитися на інших сайтах More sharing options...
t-projekt Опубліковано: 21 квітня 2014 Автор Поділитись Опубліковано: 21 квітня 2014 Добрый день. Подскажите по фундаменту. Планирую ленту 1,1х0,35 из них 0,3 над грунтом, до уровня грунта залить бетоном М200 с бутом, выше бетон и армокаркас или модет лучше просто бутом выложить. Дом 9х12 один этаж, газоблок 300, перекрытие по деревянным балкам, крыша меатллочерепица. Общая масса дома около 120т. Делайте армопояс. Но еще не понятно, что значит "бетон с бутом"? 1 Посилання на коментар Поділитися на інших сайтах More sharing options...
mosergej Опубліковано: 21 квітня 2014 Поділитись Опубліковано: 21 квітня 2014 0,8 м в земле заливать бетон и во время заливки подкладывать бут , выше армопояс из арматуры 10 мм и также при заливке бетона вкладывать бут Посилання на коментар Поділитися на інших сайтах More sharing options...
t-projekt Опубліковано: 21 квітня 2014 Автор Поділитись Опубліковано: 21 квітня 2014 0,8 м в земле заливать бетон и во время заливки подкладывать бут , выше армопояс из арматуры 10 мм и также при заливке бетона вкладывать бут Я так понимаю Вы хотите топить бут в бетоне. При заливки нижней части такое возможно. Там где у вас будет армирование не рекомендую такое делать. 1 Посилання на коментар Поділитися на інших сайтах More sharing options...
mosergej Опубліковано: 21 квітня 2014 Поділитись Опубліковано: 21 квітня 2014 Делайте армопояс. Но еще не понятно, что значит "бетон с бутом"? При заливке в траншею (0,8м) бетона просто вкладывать в траншею бут, 0,3-0,4 м вверху армопояс из арматуры 10 мм Посилання на коментар Поділитися на інших сайтах More sharing options...
NYKE Опубліковано: 23 квітня 2014 Поділитись Опубліковано: 23 квітня 2014 Дайте фото фундамента (или хотя-бы схему) интересуют общие размеры (габариты, ширина стенок) и глубина заложения, информацию по будущему дому (планировка, этажность, материал дома) Тогда смогу ответить на вопрос. Также можете дать информацию по грунтам, если есть конечно То, что могу дать прямо сейчас: 1.Планируемый вариант Застройщика(фундамент полностью выполнен) 2.Планируемый вариант www.buddom.com.ua/?m=177&o=5248 Экспертизу по пробам грунта(она есть, но не у меня в данный момент) и фото фактического фундамента сейчас дать не могу. Посилання на коментар Поділитися на інших сайтах More sharing options...
t-projekt Опубліковано: 23 квітня 2014 Автор Поділитись Опубліковано: 23 квітня 2014 То, что могу дать прямо сейчас: 1.Планируемый вариант Застройщика(фундамент полностью выполнен) Да, фундамент нормальный, если в основании нет проблемных грунтов, тогда для Ваших целей хватит с головой. По поводу добавления к существующему фундаменту нового - здесь лучше обратиться к Вашей проектной организации или Архитектору, который разрабатывал этот проект. На сколько сложно осуществить изменение фундаментов тяжело сказать, так я не вижу архитектуры дома и материалов из которых он сделан. 1 Посилання на коментар Поділитися на інших сайтах More sharing options...
SvetlanaM Опубліковано: 24 квітня 2014 Поділитись Опубліковано: 24 квітня 2014 Уважаемый конструктор, помогите, пожалуйста, с конструкцией фундамента для забора! С деньгами туго, жалко закапывать в землю лишнее. Но и не хочется, чтобы мой забор завтра покосился или треснул. Грунт у нас - суглинки и глина, плотный. Грунтовые воды, слава богу, далеко. Забор будет кирпичный - столбики 1,5х1,5 кирпича и между ними кладка в полкирпича. Высота забора будет 2,2 м После долгого лазания по интернету и форумам больше всего понравился фундамент типа того, что на рисунке - под столбы забора и бетонные столбы фундамента залить на глубину 1,2 м., а между ними залить ростверк, частично в земле и немного сверху. По деньгам и трудоемкости вроде получается наиболее оптимальный вариант. А как с точки зрения конструктора - можно такой фундамент под кирпичный забор в моем грунте делать? Какого размера (ширина и высота) должен быть ростверк? Как его армировать - какой арматурой, на каком расстоянии ее ставить? Какой толщины подсыпку делать под ростверком? Песок можно подсыпать или обязательно щебень? Какой делать бетон? Мешать будем сами, может заодно и пропорции компонентов для бетона подскажете? Заранее очень благодарна за помощь! Хочется на майские уже начать работы, поэтому нужно в ближайшие дни определиться с конструкцией и покупать необходимые материалы. Посилання на коментар Поділитися на інших сайтах More sharing options...
t-projekt Опубліковано: 24 квітня 2014 Автор Поділитись Опубліковано: 24 квітня 2014 Уважаемый конструктор, помогите, пожалуйста, с конструкцией фундамента для забора! С деньгами туго, жалко закапывать в землю лишнее. Но и не хочется, чтобы мой забор завтра покосился или треснул. Грунт у нас - суглинки и глина, плотный. Грунтовые воды, слава богу, далеко. Забор будет кирпичный - столбики 1,5х1,5 кирпича и между ними кладка в полкирпича. Высота забора будет 2,2 м После долгого лазания по интернету и форумам больше всего понравился фундамент типа того, что на рисунке - под столбы забора и бетонные столбы фундамента залить на глубину 1,2 м., а между ними залить ростверк, частично в земле и немного сверху. По деньгам и трудоемкости вроде получается наиболее оптимальный вариант. А как с точки зрения конструктора - можно такой фундамент под кирпичный забор в моем грунте делать? Какого размера (ширина и высота) должен быть ростверк? Как его армировать - какой арматурой, на каком расстоянии ее ставить? Какой толщины подсыпку делать под ростверком? Песок можно подсыпать или обязательно щебень? Какой делать бетон? Мешать будем сами, может заодно и пропорции компонентов для бетона подскажете? Заранее очень благодарна за помощь! Хочется на майские уже начать работы, поэтому нужно в ближайшие дни определиться с конструкцией и покупать необходимые материалы. Ростверк делайте шириной как столбы 1.5 кирпича, либо фигурный (где 1.5, а где 0,5 кирпича) выбирать Вам, исходя из экономических и эстетических соображений. Высоты ростверка в 0.5 метра будет достаточной. Армирование по два прута арматуры д12 внизу и вверху. Бетон делать хороший. Пропорции виднее строителям. От себя могу добавить пропорции: Цемент 500: песок: гравий: вода = 1:2:4:0.5 но не более 0.8. Подсыпку можно не делать. 1 Посилання на коментар Поділитися на інших сайтах More sharing options...
SvetlanaM Опубліковано: 25 квітня 2014 Поділитись Опубліковано: 25 квітня 2014 Спасибо большое за ответ! Я правильно поняла, что такой фундамент с ростверком высотой 0,5 метра для кирпичного забора с конструкторской точки зрения полностью подходит? И ростверк может, например, находиться всего на 35 см в земле и на 15 см выступать над землей? Это же насколько проще и дешевле делать, чем обычный фундамент копать и заливать! А почему тогда все для заборов так фундамент не делают? Армирование по два прута арматуры д12 внизу и вверху. А вертикально (для ростверка) какую арматуру ставить и с каким шагом? Я читала, что вроде вертикальная арматура в фундаменте особой нагрузки не несет? и там можно потоньше ставить. Но вот насколько тоньше? Д8 можно? Или даже Д6? И как часто она должна быть? И еще по арматуре вопрос. Нашла одну фирму у нас в городе, там предлагают арматуру А400, и она у них заметно дешевле, чем А500С, которую предлагают другие продавцы. Можно в этот ростверк брать А400? Бетон делать хороший. Пропорции виднее строителям. Основная стройка сожрала почти все финансовые запасы, так что мы последнее время все стараемся делать своими силами - я типа прораб, а муж с сыном - мои рабочие Вроде пока получается неплохо с помощью и консультациями специалистов на форуме. За что всем, кто помогает советами, огромная благодарность. Так что фундамент тоже будем сами и копать, и заливать, потому на всякий случай про пропорции бетона и спросила. Подсыпку можно не делать. А везде как раз пишут, что обязательно такая подсыпка нужна, это вроде называется "Замещение грунта". Чтобы зимой не поломало ростверк, грунт ведь у нас пучинистый. Или с конструкторской точки зрения прочность такого ростверка достаточна, чтобы противостоять этому? Посилання на коментар Поділитися на інших сайтах More sharing options...
t-projekt Опубліковано: 25 квітня 2014 Автор Поділитись Опубліковано: 25 квітня 2014 Спасибо большое за ответ! Я правильно поняла, что такой фундамент с ростверком высотой 0,5 метра для кирпичного забора с конструкторской точки зрения полностью подходит? И ростверк может, например, находиться всего на 35 см в земле и на 15 см выступать над землей? Это же насколько проще и дешевле делать, чем обычный фундамент копать и заливать! А почему тогда все для заборов так фундамент не делают? А вертикально (для ростверка) какую арматуру ставить и с каким шагом? Я читала, что вроде вертикальная арматура в фундаменте особой нагрузки не несет? и там можно потоньше ставить. Но вот насколько тоньше? Д8 можно? Или даже Д6? И как часто она должна быть? И еще по арматуре вопрос. Нашла одну фирму у нас в городе, там предлагают арматуру А400, и она у них заметно дешевле, чем А500С, которую предлагают другие продавцы. Можно в этот ростверк брать А400? Основная стройка сожрала почти все финансовые запасы, так что мы последнее время все стараемся делать своими силами - я типа прораб, а муж с сыном - мои рабочие Вроде пока получается неплохо с помощью и консультациями специалистов на форуме. За что всем, кто помогает советами, огромная благодарность. Так что фундамент тоже будем сами и копать, и заливать, потому на всякий случай про пропорции бетона и спросила. А везде как раз пишут, что обязательно такая подсыпка нужна, это вроде называется "Замещение грунта". Чтобы зимой не поломало ростверк, грунт ведь у нас пучинистый. Или с конструкторской точки зрения прочность такого ростверка достаточна, чтобы противостоять этому? На глубину промерзания фундамент для забора закладывать глупо. Обычно достаточно 70-50см. У вас основным фундаментом служат столбы. Арматуру берите А400с для горизонтальной. Для вертикальной берите А240с д6мм и огибайте ей продольные стержни. Шаг для д6мм берите 250мм. От подсыпки будет толк, если ее сделать более 30см. А так в Вашем случае смысла в ней не вижу. 1 Посилання на коментар Поділитися на інших сайтах More sharing options...
landrijko Опубліковано: 12 травня 2014 Поділитись Опубліковано: 12 травня 2014 Доброго дня. Прошу Вашої поради, щодо типу фундамента. В нас планується будинок 9*10 з цегли 38 см.товщ. стін (посередині несуча стіна), з плитами перекриття і накритий металочерепицею, без підвалу... Геологію прикріплюю до теми. Хотілося б почути Ваші думки на рахунок, який найдешевший тип сюди підійде (ми задумались над буро-набивним, але не впевнені чи він буде найдешевшим?! Якщо так, то яка приблизно мала б бути глибина стовпів?) Дякую Посилання на коментар Поділитися на інших сайтах More sharing options...
t-projekt Опубліковано: 12 травня 2014 Автор Поділитись Опубліковано: 12 травня 2014 Доброго дня. Прошу Вашої поради, щодо типу фундамента. В нас планується будинок 9*10 з цегли 38 см.товщ. стін (посередині несуча стіна), з плитами перекриття і накритий металочерепицею, без підвалу... Геологію прикріплюю до теми. Хотілося б почути Ваші думки на рахунок, який найдешевший тип сюди підійде (ми задумались над буро-набивним, але не впевнені чи він буде найдешевшим?! Якщо так, то яка приблизно мала б бути глибина стовпів?) Дякую Здравствуйте. В данном случае фундамент из буронабивных свай применять нельзя, так как в разведанной толще нет хорошего твердого грунта. Лучший выход - это проект с плитным фундаментом и максимально легким домом. Лучше отказаться от кирпичных стен и заменить их газоблоком. Перекрытие сделать деревянным. Чтоб наверняка определиться с конструкцией дома необходимо выполнять детальные инженерные расчеты. 1 Посилання на коментар Поділитися на інших сайтах More sharing options...
windowz Опубліковано: 12 травня 2014 Поділитись Опубліковано: 12 травня 2014 Подскажите пожалуйста по армированию. Исходные данные: Грунт песок, УГВ 3,5 метра Фундамент - монолитная плита. Размер дома примерно 10х12 м. 1+5 этажа (1 + мансарда) материал газоблок перекрытие железобетон крыша металлочерепица. Котлован до уровня 2,9 метра потом щебень, трамбовка, выравнивающий слой В7,5, гидроизоляция + утепление. На текущий момент планируется горизонтальное армирование d14 в два слоя сеткой с ячейкой 200х200 мм. Толщина плиты 25-26 см Бетон В25П4 Нужно ли вертикальное армирование всей плиты? Нужно ли усиление краев плиты дополнительно? Из-за сложностей подъезда к участку планируется стены подвального помещения также выполнять из монолитного ЖБ толщиной 400 мм. Нужно ли из плиты выпускать арматуру для вертикальных стен? Если нужно, то на какую высоту и какой диаметр арматуры? Заранее спасибо за ответы и потраченное время. Посилання на коментар Поділитися на інших сайтах More sharing options...
t-projekt Опубліковано: 12 травня 2014 Автор Поділитись Опубліковано: 12 травня 2014 Подскажите пожалуйста по армированию. Исходные данные: Грунт песок, УГВ 3,5 метра Фундамент - монолитная плита. Размер дома примерно 10х12 м. 1+5 этажа (1 + мансарда) материал газоблок перекрытие железобетон крыша металлочерепица. Котлован до уровня 2,9 метра потом щебень, трамбовка, выравнивающий слой В7,5, гидроизоляция + утепление. На текущий момент планируется горизонтальное армирование d14 в два слоя сеткой с ячейкой 200х200 мм. Толщина плиты 25-26 см Бетон В25П4 Нужно ли вертикальное армирование всей плиты? Нужно ли усиление краев плиты дополнительно? Из-за сложностей подъезда к участку планируется стены подвального помещения также выполнять из монолитного ЖБ толщиной 400 мм. Нужно ли из плиты выпускать арматуру для вертикальных стен? Если нужно, то на какую высоту и какой диаметр арматуры? Заранее спасибо за ответы и потраченное время. Ответить на большинство вопросов можно после выполнения комплекса расчетов на основе геологии и архитектуры дома. Выпускать арматуру из плиты в монолитные стены обязательно. Величина выпуска зависит от длины анкеровки арматуры для соответствующего диаметра (диаметр можно принять после выполнения расчета) Посилання на коментар Поділитися на інших сайтах More sharing options...
romalex4 Опубліковано: 19 травня 2014 Поділитись Опубліковано: 19 травня 2014 здравствуйте, подскажите пожалуйста конструктивные особенности узла армопояса. Стена ГБ + кирпич(внутри)120мм. Вопрос следующий: правильно ли продуман у меня узел заливки армопояса? Сомнения - можно ли опирать АП частично на кирпичную стену в 120мм? спасибо Посилання на коментар Поділитися на інших сайтах More sharing options...
t-projekt Опубліковано: 19 травня 2014 Автор Поділитись Опубліковано: 19 травня 2014 здравствуйте, подскажите пожалуйста конструктивные особенности узла армопояса. Стена ГБ + кирпич(внутри)120мм. Вопрос следующий: правильно ли продуман у меня узел заливки армопояса? Сомнения - можно ли опирать АП частично на кирпичную стену в 120мм? спасибо Конструкция стены у Вас, мягко говоря, странная. Зачем делать внутри кирпич? Сделайте нормальную стену из ГБ нужной ширину, а поверху сделайте армопояс. Ну если конкретно по Вашему вопросу, опирать можно но как минимум половина ширины армопояса должна лежать на ГБ. А кладку ГБ и кирпича необходимо между собой связать (например металлической сеткой через 4-5 рядов кирпича). 2 Посилання на коментар Поділитися на інших сайтах More sharing options...
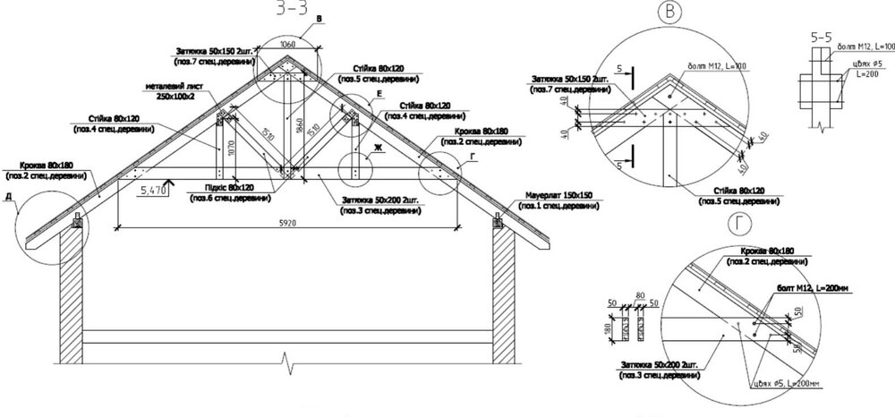
David77 Опубліковано: 19 червня 2014 Поділитись Опубліковано: 19 червня 2014 Здравствуйте. Нужен Ваш совет. Дом газоблок 375мм размером 8,6м на 8 м, мансардного типа. Плиты перекрытия ж/б. Внутренних несущих стен нет, только внешние. Нужен совет по стропильной системе. Планируется битумная черепица. Предлагают сделать следующим вариантом (на фото). Вопрос: - стропило 80*180мм можно ли заменить 50*200мм (утеплитель 200мм)? - стойки и подкосы 80*120мм поменять на 50*150мм? - нужны ли уголки соединения (стропил к мауэрлату) и металлические листы или можно просто обойтись гвоздями? - можно ли под битумку положить не подкладочный ковер, а например еврорубероид? Очень нужен совет. Посилання на коментар Поділитися на інших сайтах More sharing options...
t-projekt Опубліковано: 22 червня 2014 Автор Поділитись Опубліковано: 22 червня 2014 По поводу изменения сечения однозначно сказать не могу необходимо выполнять расчет - но вполне вероятно что можно так сделать. Соединение элементов нужно оставить с пластинами. Не нужно заменять подкладочный ковер на еврорубероид - материлы предназначены для различных условий применения. Еврорубероид укладывается с помощью газовой горелки - что совершенно не допустимо для Вас, помимо этого он тяжелее подкладочного ковра. 1 Посилання на коментар Поділитися на інших сайтах More sharing options...
lyumpi Опубліковано: 22 червня 2014 Поділитись Опубліковано: 22 червня 2014 Добрый день. Подскажите, что дешевле - фундамент ленточный или из ФБС+армопояс? Посилання на коментар Поділитися на інших сайтах More sharing options...
t-projekt Опубліковано: 23 червня 2014 Автор Поділитись Опубліковано: 23 червня 2014 Добрый день. Подскажите, что дешевле - фундамент ленточный или из ФБС+армопояс? Все зависит от конкретного фундамента. Но как правило из фбс дешевле 1 Посилання на коментар Поділитися на інших сайтах More sharing options...
sirgo Опубліковано: 1 липня 2014 Поділитись Опубліковано: 1 липня 2014 Добрий день необхідна консультація. Планується одноповерховий будинок з газоблоку 375 мм, дах з металочерепиці, грунт суглинок, глубина фундаменту 90 см,ширина 30 глубина промерзання в нашому регіоні 80 см, армування планую діаметр 10 мм в чотири вітки 2-і зверху та 2-і знизу, так званий "квадрат" для кріплення віток з катанки діаметром 6,5 мм. Заливка фундаменту в один прийом міксерами. В мене запитання слідуюче на якій відстанні розміщувати так звані "квадрати" для кріплення арматури я планую на відстані один від одного десь біля 1 метра і друге запитання чи необхідне армування такого фундаменту одноповерхового будинку? Посилання на коментар Поділитися на інших сайтах More sharing options...
OkOl Опубліковано: 2 липня 2014 Поділитись Опубліковано: 2 липня 2014 Здравствуйте. Помогите, пожалуйста, с оценкой качества выполненных расчетов перекрытия между цоколем и 1 эт. Дом из газоблока. С мансардой. Почему-то нет полной уверенности в данной конструкции. Да и ошибки видны. Спасибо. Посилання на коментар Поділитися на інших сайтах More sharing options...
Рекомендовані повідомлення
Створіть акаунт або увійдіть у нього для коментування
Ви маєте бути користувачем, щоб залишити коментар
Створити акаунт
Зареєструйтеся для отримання акаунта. Це просто!
Зареєструвати акаунтУвійти
Вже зареєстровані? Увійдіть тут.
Увійти зараз