goga777 Опубліковано: 17 січня 2016 Поділитись Опубліковано: 17 січня 2016 План дома - практически по проектугыгы, это же мой проект, зеркальный, масштабированный 8) я не против, даже приятно. 2 Посилання на коментар Поділитися на інших сайтах More sharing options...
alecs555 Опубліковано: 18 січня 2016 Поділитись Опубліковано: 18 січня 2016 гыгы, это же мой проект, зеркальный, масштабированный 8) я не против, даже приятно. На самом деле были внимательно пересмотрены/изучены все местные ветки с одноэтажниками, и Кирила и ваш, у Виктора даже в гостях были. Видимо совпадение вашей планировки и наших хотелок приблизилось к 100% Спасибо и за проект и за ветку, в которой тоже периодически подсматриваем решения 1 Посилання на коментар Поділитися на інших сайтах More sharing options...
goga777 Опубліковано: 18 січня 2016 Поділитись Опубліковано: 18 січня 2016 Спасибо и за проект и за ветку Санузел большой правильно сделали что уменьшили, а то он у меня огромный 1 Посилання на коментар Поділитися на інших сайтах More sharing options...
alecs555 Опубліковано: 18 січня 2016 Поділитись Опубліковано: 18 січня 2016 Санузел большой правильно сделали что уменьшили, а то он у меня огромный Гм...у нас как раз пока обратное впечатление о нашем санузле - маленький - вчера ходили по нему, меряли, тулили сантехнику и так и этак - в итоге для стиралки пока место нашлось в топочной... в ванну не помещается исходя из "хотелок" размеров душевой кабинки и умывальника... Посилання на коментар Поділитися на інших сайтах More sharing options...
-electron- Опубліковано: 18 січня 2016 Поділитись Опубліковано: 18 січня 2016 Підпишусь. Тема цікава. Бажаю швидкого будівництва і поскоріше перебратись. Про гараж Вам вірно відписали, що не варто вкладатись. В якості сарайчика можна купити пару брусів, дошок і зробити, мені мій обійшовся в 4 к грн. Він потім перенесеться ближче до будинку і стане частиною дровника (бруси, профнастил) а частина дровами. Як вставите вікна то можете і в будинку тримати деякі речі, тому з гаражем-сараєм я б не спішив. Вікна я б взяв рахував, є серія на рівень нижче Сінего. Продивіться її параметри і порівняйте ціну-параметри Генео-Сінего. Я собі не брав тому, що на той момент я був би першим хто їх замовив. :D 2 Посилання на коментар Поділитися на інших сайтах More sharing options...
goga777 Опубліковано: 18 січня 2016 Поділитись Опубліковано: 18 січня 2016 о нашем санузле - маленькийне верьте глазам своим очень все так неплохо может и получится, нужно чуть поиграться также рекомендую для большого с/у биде Кстати маленький санузел я проектировал минимального размера но в соответствии с рекомендациями по установке сантехприборов. Он получился очень комфортный. 4 Посилання на коментар Поділитися на інших сайтах More sharing options...
Ната_ДнДз Опубліковано: 22 січня 2016 Автор Поділитись Опубліковано: 22 січня 2016 goga777,огромное спасибо,конечно,за то,что повозились с нашими размерами...за попытку примирить нас с существующей реальностью..но,увы и ах Каюсь:страдаю гигантоманией...мы когда выбирали душевую кабинку в квартиру-100см-это был самый-самый min,и то,мне-тесно...в доме хочется побольше,хотя бы одну из сторон и эта сторона будет как раз по длине ванной комнаты...а ещё-большой умывальник,типа этого (КОЛО),там тоже длина-100см + унитаз с гигиеническим душем (единственное,на чём согласна сэкономить,так это-на биде)...ну и всё,стиралка,а если ещё и +сушилка никуда не помещаются Может сделать нишу в смежной с нашей спальной стене?В смысле-разобрать часть её.. Пока ещё в стадии строительства... Посилання на коментар Поділитися на інших сайтах More sharing options...
ДОКС Опубліковано: 22 січня 2016 Поділитись Опубліковано: 22 січня 2016 Вітаю вас! Может сделать нишу в смежной с нашей спальной стене?В смысле-разобрать часть её.. Пока ещё в стадии строительства... до речі це зовсім не погана думка, як що зовсім ні як... 1 Посилання на коментар Поділитися на інших сайтах More sharing options...
Vikctor Опубліковано: 22 січня 2016 Поділитись Опубліковано: 22 січня 2016 уходит примерно 2 часа в воскресенье. Ты - монстр! У меня в двушке больше времени на это уходит. И что характерно - тоже в мыле... 2 Посилання на коментар Поділитися на інших сайтах More sharing options...
kvintich Опубліковано: 22 січня 2016 Поділитись Опубліковано: 22 січня 2016 У мене в квартирі, санвузел 1,5мх2,5м Влізла душева кабіна, ванна, унітаз, умивальник. Правда у мінімальних розмінах. 2 Посилання на коментар Поділитися на інших сайтах More sharing options...
goga777 Опубліковано: 24 січня 2016 Поділитись Опубліковано: 24 січня 2016 реальностью..но,увы и ахя не навязываю просто делюсь тем можно и нужно играться как вам захочется по опыту командировок по заграницам есть разные подходы вот в Австрии Германии да и в той же Польше все санузлы компактные зачастую не правильной квадратной формы (то есть с нишами душевыми) но всегда комфортные и функциональные. А вот Италия. Испания там все просторные большие. Мне (после того как сделал себе один санузел около 9 кв.м.) ближе стал первый. 3 Посилання на коментар Поділитися на інших сайтах More sharing options...
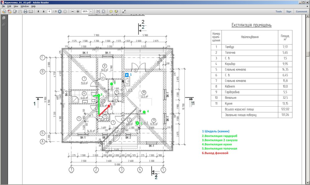
alecs555 Опубліковано: 24 січня 2016 Поділитись Опубліковано: 24 січня 2016 Пока зима появилось желание закупить к весне все необходимое для старта.. Строить короба желания абсолютно нет, поэтому решили что вентиляция будет организована с помощью проходок вильпе, естественная. Приток скорее через оконные клапаны. Детальных расчетов не делал, посмотрел тут по нормативам должно хватить (вроде даже с запасом) 4 проходок вильпе. Для себя прикинул как они(проходки) будут расположены на крыше. Так как абсолютно не спец в этой области , а времени "детально" вникать катастрофически не хватает, прошу совета/критики/ предложений любых от более продвинутых застройщиков Посилання на коментар Поділитися на інших сайтах More sharing options...
goga777 Опубліковано: 24 січня 2016 Поділитись Опубліковано: 24 січня 2016 страдаю гигантоманией.это обычное чувство, особенно после наших маленьких квартир Добавлено через 55 секунд стиралка,а если ещё и +сушилкаесть очень разумный формат , а именно одна стоит на другой Добавлено через 1 минуту Может сделать нишу в смежноймикросовет, не страдайте внепректными изменениями, практически вседа по неплановым хотелкам теряете деньги и время Добавлено через 1 минуту а кто все это будет убирать?100% правильно. Вы должны понимать сами или будет прислуга. Считаю очень важным, что я с супругой можем за час сделать ген. уборку....без мыла Добавлено через 2 минуты Влізла душева кабіна, ванна, унітаз, умивальникне хочу критиковать. Тем не менее растояние между унитазом и душ кабиной против правил, и может приносить неудобства при эксплуатации. Немножко кривоватое положение унитаза режет глаз. ВСЕ СУБЬЕКТИНО плз без обид Добавлено через 4 минуты Детальных расчетов не делал доверте специалистам, даже бесплатное проектирование на уровне комерческого проекта даст хороший результат, а зачастую и экономию денег 1 Посилання на коментар Поділитися на інших сайтах More sharing options...
TravelSvit Опубліковано: 24 січня 2016 Поділитись Опубліковано: 24 січня 2016 Добавлено через 55 секунд есть очень разумный формат , а именно одна стоит на другой Есть модели, где стиралка и сушка в одном агрерате - отличное изобретение человечества! Типа такого www.monclick.it/schede/hotpoint/84812/aqd970f-69.htm?HTTP_REFERER=http://GOOGLESHOPPINGIT&REFERER_CODE=84812&utm_source=googleshoppingit&utm_medium=comparatori&utm_term=84812&utm_campaign=lavasciuga&gclid=CP-l9fi7wsoCFQHkwgodSw4NFA 2 Посилання на коментар Поділитися на інших сайтах More sharing options...
alecs555 Опубліковано: 24 січня 2016 Поділитись Опубліковано: 24 січня 2016 Еще 1 момент влияющий на количество закупаемого материала. С Маэстро обсудили, вроде технологических проблем по планируемому расположению сливных труб водостока быть не должно, но может у кого уже был практический опыт - почему так НЕ нужно делать, буду признателен за советы/критику. Посилання на коментар Поділитися на інших сайтах More sharing options...
Vikctor Опубліковано: 24 січня 2016 Поділитись Опубліковано: 24 січня 2016 прошу совета/критики/ предложений любых Вроде всё грамотно нарисовано. Если у Вас газ под большим вопросом, то нужен ли вентвыход на кухне? Я и сам сейчас этим вопросом озабочен и ответа не знаю. Кухонный зонт куда выводить будете - на кровлю или через стену? Если на кровлю, то это отдельные канал и вентвыход. Вильповскую комплектацию дешевле всего купить у Николая Крышника. почему так НЕ нужно делать Я скорее могу поделиться из практики как будет эстетичней и вполне достаточно. Мне вполне хватает 4 труб на боковых стенах. У Вас чуть сложнее геометрия кровли на одном фасаде. Вот там и стоит добавить пятую трубу. А остальные четыре расположить на боковых стенах. i.piccy.info/i9/516916dc4f7c19bb62238b106dbe9127/1453646940/37513/803593/33_800.jpg' alt='33_800.jpg'>[/img] 1 Посилання на коментар Поділитися на інших сайтах More sharing options...
alecs555 Опубліковано: 24 січня 2016 Поділитись Опубліковано: 24 січня 2016 Вроде всё грамотно нарисовано. Если у Вас газ под большим вопросом, то нужен ли вентвыход на кухне? Я и сам сейчас этим вопросом озабочен и ответа не знаю. Кухонный зонт куда выводить будете - на кровлю или через стену? Если на кровлю, то это отдельные канал и вентвыход. Вильповскую комплектацию дешевле всего купить у Николая Крышника. Кухонный зонт пока планируем через стену, решение по газу пока решили отложить до прояснения ситуации с ним(свои финансы, цены на газ и т.д.) но если "звезды сойдуться" то вполне может быть в будущем. Сейчас ориентируемся на электроотопление(ночной тариф и теплоаккумулятор) и камин(воздушный или водяной - тоже в сильных раздумьях/поиске). По вильпе/водосточке/битумке как после небольшого мониоринга интернет цен, пришли к Николаю Добавлено через 2 минуты Я скорее могу поделиться из практики как будет эстетичней и вполне достаточно. Мне вполне хватает 4 труб на боковых стенах. У Вас чуть сложнее геометрия кровли на одном фасаде. Вот там и стоит добавить пятую трубу. А остальные четыре расположить на боковых стенах. Спасибо, интересная схема, по эстетике соглашусь - более красивая,но смущает куча поворотов на углах - к тому же на самом большом по площади склоне крыши нету прямой трубы - воде придется делать повороты на обоих углах - не будет ли проблем при ливне? Посилання на коментар Поділитися на інших сайтах More sharing options...
Vikctor Опубліковано: 24 січня 2016 Поділитись Опубліковано: 24 січня 2016 смущает куча поворотов на углах А у Вас разве повороты не планируются? Желоб ведь будет замкнутым по периметру? к тому же на самом большом по площади склоне крыши нету прямой трубы На моей кровле площадь основных скатов едва ли меньше Вашей. Воронки с трубами имеются только на боковых скатах. Ни разу пока даже в сильные ливни мне не удавалось лицезреть, чтобы вода стекала из желобов в неподходящих для этого местах. Кстати, Николай уж точно может расчитать необходимое кол-во и местоположение воронок. 1 Посилання на коментар Поділитися на інших сайтах More sharing options...
alecs555 Опубліковано: 24 січня 2016 Поділитись Опубліковано: 24 січня 2016 А у Вас разве повороты не планируются? Желоб ведь будет замкнутым по периметру? На моей кровле площадь основных скатов едва ли меньше Вашей. Воронки с трубами имеются только на боковых скатах. Ни разу пока даже в сильные ливни мне не удавалось лицезреть, чтобы вода стекала из желобов в неподходящих для этого местах. Кстати, Николай уж точно может расчитать необходимое кол-во и местоположение воронок. Спасибо, желоб конечно будет замкнутым, просто по ощущениям (не подкрепленными практическим опытом) казалось может и вылиться , у меня нет причин не доверять вашему опыту -приму к сведению, Николай по площади тоже посчитал достаточно 4 трубы, схему крыши с более детальными вопросами сег только отослал, посмотрим что ответит. Посилання на коментар Поділитися на інших сайтах More sharing options...
Grineko Опубліковано: 24 січня 2016 Поділитись Опубліковано: 24 січня 2016 Планы на 2016 год 1.Установка шиделя 200 мм 5.5 м. 2.Кровля - укладка битумки Катепал Балтика. 3.Установка проходок - Вильпе, 3-5 шт. 4.Подшива, водосточка. 5.Утепление цоколя( 5 см ЭППС) и отмостка. 6.Остекление и наружные двери.Окна хочется с роллетами, места оставлены. а дальше в мыслях разброд - с одной стороны хочется построить гараж/хозблок совмещенный с навесом, чтоб было место для хранения материалов инструментов и т.д. с другой стороны хочется побыстрее вьехать чтобы избежать разворовывания уже имеющегося, т.е. в этом случае нужно в первую очередь отопление и начинка хотя бы 1 комнаты и то и другое одновременно явно не проходит по бюджету...дилемма однако. По поводу дымохода,на 5,5м. достаточно и Ф-180мм. И сколько за Шидель нужно выложить?... Могу показать Вам несколько вариантов,напишите почту в личку или здесь. Посилання на коментар Поділитися на інших сайтах More sharing options...
semengv Опубліковано: 24 січня 2016 Поділитись Опубліковано: 24 січня 2016 Могу показать Вам несколько вариантов,напишите почту в личку или здесь. Прошу прощения у ТС, но лучше "здесь" - тоже интересно. 1 Посилання на коментар Поділитися на інших сайтах More sharing options...
alecs555 Опубліковано: 24 січня 2016 Поділитись Опубліковано: 24 січня 2016 достаточно и Ф-180мм. И сколько за Шидель нужно выложить?.. Спасибо, но 180 не достаточно, да и на семейном совете 100(и больше) раз обсудилось - решение на 100% - Шиделю быть, сорри но других вариантов не рассматриваем. Добавлено через 5 минут С этими штуками не все так просто, как выяснилось уже сейчас Читали про вашу "войну" с конденсатом Сейчас я бы себе лучше построил из кирпича нормальные вентканалы. у нас как бы этот этап уже пройден - т.е. тоже надо было раньше думать, теперь пополним ряды борцов с конденсатом и т.п., выбор сделан, пока именно эта проблема сильно не пугает, главное сейчас в остальном не напортачить - типа чтоб работало... Посилання на коментар Поділитися на інших сайтах More sharing options...
Татьяна5 Опубліковано: 24 січня 2016 Поділитись Опубліковано: 24 січня 2016 И утеплять их, утеплять и еще раз утеплять. Кирилл, может у Вас неутепленная проходка (модель)? у меня ни в одном доме нет проблемы конденсата сейчас, дома топятся (три дома от 20 до 22 градусов) Посилання на коментар Поділитися на інших сайтах More sharing options...
Татьяна5 Опубліковано: 24 січня 2016 Поділитись Опубліковано: 24 січня 2016 Все три утепленные. Конденсат только в одной в большом санузле после того как там позапускать душ/ванну, там самая короткая магистраль до проходки. удлинить магистраль )) Посилання на коментар Поділитися на інших сайтах More sharing options...
alecs555 Опубліковано: 24 січня 2016 Поділитись Опубліковано: 24 січня 2016 там самая короткая магистраль до проходки. А какие приблизительно геометрические соотношения и пропорции горизонталного/вертикального участков? Посилання на коментар Поділитися на інших сайтах More sharing options...
Рекомендовані повідомлення
Створіть акаунт або увійдіть у нього для коментування
Ви маєте бути користувачем, щоб залишити коментар
Створити акаунт
Зареєструйтеся для отримання акаунта. Це просто!
Зареєструвати акаунтУвійти
Вже зареєстровані? Увійдіть тут.
Увійти зараз