goga777 Опубліковано: 20 квітня 2016 Автор Поділитись Опубліковано: 20 квітня 2016 смотрим фотки и видео на большом мониторена кухне? зачем? а гостинная + проектор не будет интереснее? А как думаете в постройке этот домик и домик и предыдущего поста дешевле или дороже Z 10? и да и нет, смотря как из чего и где будете строить. Посилання на коментар Поділитися на інших сайтах More sharing options...
vadimv Опубліковано: 20 квітня 2016 Поділитись Опубліковано: 20 квітня 2016 на кухне? зачем?Чтобы участвующие в процессе готовки тоже в обсчении участвовали. Да и перекусить можно заодно, никуда не бегая. а гостинная + проектор не будет интереснее?В квартире у нас кухня и гостиная были отдельно - не нравилось. А проектор - во-первых мне не нравится низкая яркость и четкость, во-вторых искажения и шум от вентилятора. Может я отстал от жизни, но пока то, что приходилось видеть - не впечатляет. А вот новые 50-дюймовые LED-мониторы - впечатляют. Посилання на коментар Поділитися на інших сайтах More sharing options...
tyrd Опубліковано: 20 квітня 2016 Поділитись Опубліковано: 20 квітня 2016 и да и нет, смотря как из чего и где будете строить. Газоблок пока фаворит. А вообще идея создания енергоэфективного дома, отопление електрикой. Посилання на коментар Поділитися на інших сайтах More sharing options...
Alex_san Опубліковано: 20 квітня 2016 Поділитись Опубліковано: 20 квітня 2016 кажется достаточно грамотным решение когда гостинная и кухня не находятся в одной плоскости, т.е. из гостинной не видно кухни и наоборот, как на плане. Именно такой вариант проекта ищу я. Кмк, кухня/столовая и гостинная должны быть разнесены, иначе будет не уютная гостиная - а проходной двор. 1 Посилання на коментар Поділитися на інших сайтах More sharing options...
Учик Опубліковано: 21 квітня 2016 Поділитись Опубліковано: 21 квітня 2016 Пока Вы ищите прислушайтесь к тем кто уже живёт в доме(современном). Всё время (в нашей семье) проходит в зоне кухня-гостиная.Кто то готовит, кто то телек смотрит.Приезжая с работы уже часов в восемь вечера где ещё общаться всем вместе? Гости также кто в зоне кухни помагает, кто уже на диване в гостиной. Я был у знакомого который в проекте добавил стену и отгородил кухню от гостиной ещё и дверь далеко. Так туда никто и не заходит пока не попросят. Хотя если в Вашем понимании гостиная это колонный зал со шкурами, тогда да надо отдельно, как музей гостям показывать -вот мол моя гостиная. Хотя у всех разный уклад семейный и представления о быте. Я написал своё мнение. Опять же всё это общее пространство можно грамотно зонировать. что бы было уютно. 11 Посилання на коментар Поділитися на інших сайтах More sharing options...
tyrd Опубліковано: 21 квітня 2016 Поділитись Опубліковано: 21 квітня 2016 Пока Вы ищите прислушайтесь к тем кто уже живёт в доме(современном). Всё время (в нашей семье) проходит в зоне кухня-гостиная.Кто то готовит, кто то телек смотрит.Приезжая с работы уже часов в восемь вечера где ещё общаться всем вместе? Гости также кто в зоне кухни помагает, кто уже на диване в гостиной. Я был у знакомого который в проекте добавил стену и отгородил кухню от гостиной ещё и дверь далеко. Так туда никто и не заходит пока не попросят. Хотя если в Вашем понимании гостиная это колонный зал со шкурами, тогда да надо отдельно, как музей гостям показывать -вот мол моя гостиная. Хотя у всех разный уклад семейный и представления о быте. Я написал своё мнение. Опять же всё это общее пространство можно грамотно зонировать. что бы было уютно. А на что обращать внимание в проэкте что бы при жарке рыбы не было два часа запаха по всему дому. Тоже рассматриваю только кухна+гостинная Посилання на коментар Поділитися на інших сайтах More sharing options...
vadimv Опубліковано: 21 квітня 2016 Поділитись Опубліковано: 21 квітня 2016 А на что обращать внимание в проэкте что бы при жарке рыбы не было два часа запаха по всему домуНа хорошую вытяжку 4 Посилання на коментар Поділитися на інших сайтах More sharing options...
Alex_san Опубліковано: 21 квітня 2016 Поділитись Опубліковано: 21 квітня 2016 Пока Вы ищите прислушайтесь к тем кто уже живёт в доме(современном). Всё время (в нашей семье) проходит в зоне кухня-гостиная.Кто то готовит, кто то телек смотрит.Приезжая с работы уже часов в восемь вечера где ещё общаться всем вместе? Гости также кто в зоне кухни помагает, кто уже на диване в гостиной. Посмотрите на проект, представленный выше; кухня/столовая и гостинная не отделены, а именно разнесены (т.е. психологически человек, находящийся в гостинной, не отождествляет себя с гостями, обедающими за столом в кухонной зоне). А сделано это потому, что зона отдыха и столовая зона в одном большом помещении, - довольно странное сочетание; если я хочу посмотреть, к примеру, фильм, то меня, очевидно, будет раздражать грохот посуды в кухне и, простите, чавканье гостей за столом (т.к. при просмотре фильма должна создаваться несколько интимная обстановка, а кухня/столовая в трех метрах этому явно не способствуют). И, думаю, я не одинок в своих предпочтениях. Посилання на коментар Поділитися на інших сайтах More sharing options...
goga777 Опубліковано: 21 квітня 2016 Автор Поділитись Опубліковано: 21 квітня 2016 На хорошую вытяжкуесть две и оооочень хорошие + приток принудительный. Запах по всему дому иногда бывает. Гости также кто в зоне кухни помагает, кто уже на диване в гостиной.да все верно именно так и происходит был у знакомого который в проекте добавил стену и отгородил кухню от гостиной ещё и дверь далекоэто неправильное решение. Речь идет об однообьемном помещении, в котором из гостинной не просматривается зона для приготовления пищи, но тем не менее есть большой стол который используется как обеденный для зоны кухни так и как игровой для гостинной зоны. Пока Вы ищите прислушайтесь к тем кто уже живёт в доме(современном)считаю что я в таковом и живу, поправте если ошибаюсь Вашем понимании гостиная это колонный зал со шкурамиопять таки соглашусь, это никому не интересно ВСЕ ИМХО 2 Посилання на коментар Поділитися на інших сайтах More sharing options...
vadimv Опубліковано: 21 квітня 2016 Поділитись Опубліковано: 21 квітня 2016 что зона отдыха и столовая зона в одном большом помещении, - довольно странное сочетание; если я хочу посмотреть, к примеру, фильм, то меня, очевидно, будет раздражать грохот посуды в кухне и, простите, чавканье гостей за столомПредставляю себе, как вас раздражают телефонные звонки, грохот ведер с попкормом и чавкание в кинотеатре.:D Я лично фильмы (имеющие содержание) смотрю в наушниках на ноуте, лежа на кровати в спальне - там зона отдыха. А на кухне мы смотрим фотки (без звука), видео из путешествий и всякие музыкальные клипы, грохот и чавкание не мешают - там орут намного громче. Посилання на коментар Поділитися на інших сайтах More sharing options...
Учик Опубліковано: 21 квітня 2016 Поділитись Опубліковано: 21 квітня 2016 Посмотрите на проект, представленный выше; кухня/столовая и гостинная не отделены, а именно разнесены (т.е. психологически человек, находящийся в гостинной, не отождествляет себя с гостями, обедающими за столом в кухонной зоне). А сделано это потому, что зона отдыха и столовая зона в одном большом помещении, - довольно странное сочетание; если я хочу посмотреть, к примеру, фильм, то меня, очевидно, будет раздражать грохот посуды в кухне и, простите, чавканье гостей за столом (т.к. при просмотре фильма должна создаваться несколько интимная обстановка, а кухня/столовая в трех метрах этому явно не способствуют). И, думаю, я не одинок в своих предпочтениях. Так я ж о предпочтенях и не спорю. Какие это гости если Вы смотрите фильм, а они чавкают? Надо вместе чавкать и рюмками звенеть Кроме общего пространства в доме(моём) есть место для уединения если мне так захочется. Это спальня например. 3 Посилання на коментар Поділитися на інших сайтах More sharing options...
Alex_san Опубліковано: 21 квітня 2016 Поділитись Опубліковано: 21 квітня 2016 Кстати, вот что думают китайцы по поводу объединения гостинной и кухни: Одним из главных запретов в Фэн-шуй это запрет на объединение гостиной и кухни. Так как согласно канонам Фэн-шуй гостиная это аккумулятор, в котором накапливается вся удача человека и особенно удача главы семейства. Если вы присоедините кухню к гостиной , это приведет к тому, что удача может полностью уйти из этого дома и вернуть ее будет крайне сложно. Объединение двух этих помещений ведет к нарушению аккумуляции энергии Ци. Посилання на коментар Поділитися на інших сайтах More sharing options...
tyrd Опубліковано: 21 квітня 2016 Поділитись Опубліковано: 21 квітня 2016 Кстати, вот что думают китайцы по поводу объединения гостинной и кухни: Так если гостиная преобладает по площади то как раз это гостиная-кухня и удаче есть больше места что бы накапливаться 1 Посилання на коментар Поділитися на інших сайтах More sharing options...
Alex_san Опубліковано: 21 квітня 2016 Поділитись Опубліковано: 21 квітня 2016 Так если гостиная преобладает по площади то как раз это гостиная-кухня и удаче есть больше места что бы накапливаться К сожалению, об этом Фэн-шуй нам ничего не говорит, а просто запрещает объединять эти два помещения Посилання на коментар Поділитися на інших сайтах More sharing options...
vadimv Опубліковано: 21 квітня 2016 Поділитись Опубліковано: 21 квітня 2016 К сожалению, об этом Фэн-шуй нам ничего не говорит, а просто запрещает объединять эти два помещенияФень-шуй шарит, если на кухне работает прислуга, то нечего ей делать в гостиной - а то еще вынесет удачу вместе с кошельком. А поскольку у нищих прислуги нет, и гостиной нет, то мы тупо поставили диван с телевизором на кухне. 9 Посилання на коментар Поділитися на інших сайтах More sharing options...
goga777 Опубліковано: 21 квітня 2016 Автор Поділитись Опубліковано: 21 квітня 2016 как продолжение идеи чем хорош данный проект так это изменяя масштаб можно построить как компактный так и просторный дом и все размеры помещений .....как бы сказать нормальными или же правильными. Место готовки отнесено еще дальше 2 Посилання на коментар Поділитися на інших сайтах More sharing options...
goga777 Опубліковано: 21 квітня 2016 Автор Поділитись Опубліковано: 21 квітня 2016 Очень лаконично и нашим и вашим...те.е кухня и рядом и не рядом, дымоходик по центру, как по мне то очень лаконично. 4 Посилання на коментар Поділитися на інших сайтах More sharing options...
svezhi_veter Опубліковано: 21 квітня 2016 Поділитись Опубліковано: 21 квітня 2016 Кстати, вот что думают китайцы по поводу объединения гостинной и кухни: Мне кажется в тему. "...скажу больше, эти идиоты верят в православного бога, празднуют языческие праздники типа Купала и т.д., католические типа святого валентина, занимаются йогой, верят в приметы, живут по феншую. И, на 99%, участвуют в МММ." (с) А еще говорят: если после дождя в четверг набрать земли в районе Конча заспа принести домой и посадить туда монеты достоинства 1 грн. тризубцами вверх то будут водиться деньги. Реально передачу года два назад видел там парень об этом рассказывал. Пы.сы. извините не сдержался. 7 Посилання на коментар Поділитися на інших сайтах More sharing options...
dverixx Опубліковано: 22 квітня 2016 Поділитись Опубліковано: 22 квітня 2016 Что скажете вот такой проект хочу построить Посилання на коментар Поділитися на інших сайтах More sharing options...
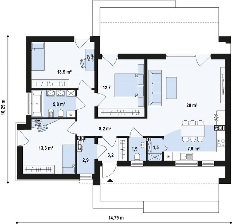
goga777 Опубліковано: 22 квітня 2016 Автор Поділитись Опубліковано: 22 квітня 2016 (змінено) Что скажете вот такой проект хочу построитьпроект классный и продуманый. Если нравится - стройте. Если позволите то немножко покритикую, мнение только мое, я не последняя инстанция , короче ИМХО. Итак. 1) на кухне в зоне готовки обеденный стол будет мешать. Наличие обеденного стола обязательно, стол в гостинной его не заменит. 2) коридоры - бесполезные, которые нужно отопить и один раз в неделю помыть - 8,4 кв метра, а это получается за год нужно помыть лишних 437 квадратных метра 8) 3) нет постирочной и нет сауны, постирочная поверте очень нужна. 4) куча лишних дверей, спальня это только спальня, поверте, может один раз в году вы воспользуетесь дверью из спальни на улицу, но проблем при сильных морозах вам не удастся избежать с рядовыми мп дверьми. На вход поставте хорошую деревянную дверь и вторая вам не понадобится. 5) Если у вас есть ребенок школьник то ему понадобиться спальня-кабинет посему передвинул одну стенку, чтобы было места для стола и мебели. 6) на чердаке сделайте комнатку хламосборник обязательно 7) я бы рекомендовал посмотреть в сторону www.stroimdom.com.ua/forum/showpost.php?p=3832111&postcount=94 вам должно понравиться Змінено 22 квітня 2016 користувачем goga777 Посилання на коментар Поділитися на інших сайтах More sharing options...
tyrd Опубліковано: 22 квітня 2016 Поділитись Опубліковано: 22 квітня 2016 Очень лаконично и нашим и вашим...те.е кухня и рядом и не рядом, дымоходик по центру, как по мне то очень лаконично. А что такое TEKN? И как решить вопрос пользования совместной ванной? что бы когда кто то там есть с родительской спальни не смог никто зайти с котельни? ну что бы каждый раз не перепроверять обе двери на закрытость П.С. До этого не было подходящих планировок, не находил нигде, теперь начинаю теряться какой выбрать)) спасибо за тему) 1 Посилання на коментар Поділитися на інших сайтах More sharing options...
goga777 Опубліковано: 22 квітня 2016 Автор Поділитись Опубліковано: 22 квітня 2016 А что такое TEKNэто топочная. Выход на улицу у финов обусловлен тем что часто топят древесиной и это есть немножко грязновато. Добавлено через 10 минут И как решить вопрос пользования совместной ваннойв процессе эксплуатации жильцы выбирают один, наиболее используемый вход, а второй постоянно закрыт. Также видел один раз, в Финляндии, такое - там был электрозамок прямо на ручке, то есть при запертой первой двери ручка на второй не открывала дверь. Но это было в офисе, не в частном доме, думаю не дешевое изделие. Посилання на коментар Поділитися на інших сайтах More sharing options...
tyrd Опубліковано: 22 квітня 2016 Поділитись Опубліковано: 22 квітня 2016 это топочная. Выход на улицу у финов обусловлен тем что часто топят древесиной и это есть немножко грязновато. Добавлено через 10 минут в процессе эксплуатации жильцы выбирают один, наиболее используемый вход, а второй постоянно закрыт. Также видел один раз, в Финляндии, такое - там был электрозамок прямо на ручке, то есть при запертой первой двери ручка на второй не открывала дверь. Но это было в офисе, не в частном доме, думаю не дешевое изделие. Я думал топочная KHH) Значит то постирочная и если еллектроотопление там же можно и топочную сделать) Ходить детям через родительскую спальню будет не очень Посилання на коментар Поділитися на інших сайтах More sharing options...
goga777 Опубліковано: 22 квітня 2016 Автор Поділитись Опубліковано: 22 квітня 2016 Ходить детям через родительскую спальню будет не оченьв доме не меньше 2 санузлов.... это обязательно Посилання на коментар Поділитися на інших сайтах More sharing options...
tyrd Опубліковано: 22 квітня 2016 Поділитись Опубліковано: 22 квітня 2016 в доме не меньше 2 санузлов.... это обязательно Конечно, я о том что две двери наверное нужно оставлять, просто вход с котельни на ночь закрывать или сделать вход с родительской спальни и разместить там ванную, а в другом санузле вместо топочной делать санузел с душевой кабиной. Ну в моем случае) Посилання на коментар Поділитися на інших сайтах More sharing options...
Рекомендовані повідомлення
Створіть акаунт або увійдіть у нього для коментування
Ви маєте бути користувачем, щоб залишити коментар
Створити акаунт
Зареєструйтеся для отримання акаунта. Це просто!
Зареєструвати акаунтУвійти
Вже зареєстровані? Увійдіть тут.
Увійти зараз