AKuHFeeB Опубліковано: 20 листопада 2018 Поділитись Опубліковано: 20 листопада 2018 130м\2 вместе с верхней комнатой, первый этаж 108 м\2 Спасибо большое. Но верхняя комната это лестница. Это лишние 10-15 кв.м и затраты времени и денег на постройку лестницы. В остальном все проекты хорошие. Спасибо большое всем. Посилання на коментар Поділитися на інших сайтах More sharing options...
AKuHFeeB Опубліковано: 21 листопада 2018 Поділитись Опубліковано: 21 листопада 2018 Больше всего понравился этот необычный проект. Посилання на коментар Поділитися на інших сайтах More sharing options...
goga777 Опубліковано: 21 листопада 2018 Автор Поділитись Опубліковано: 21 листопада 2018 пожалуйста прячте изображение под спойлер и/или пользуйтесь загрузкой фото от данного форума Посилання на коментар Поділитися на інших сайтах More sharing options...
vadimv Опубліковано: 21 листопада 2018 Поділитись Опубліковано: 21 листопада 2018 Больше всего понравился этот необычный проект.А вы заметили, что в нем двери двух спален из четырех выходят в кухню-гостиную? Посилання на коментар Поділитися на інших сайтах More sharing options...
Юдин Денис Опубліковано: 21 листопада 2018 Поділитись Опубліковано: 21 листопада 2018 Спасибо большое. Но верхняя комната это лестница. Это лишние 10-15 кв.м и затраты времени и денег на постройку лестницы. В остальном все проекты хорошие. Спасибо большое всем. деревянная лестница 5-6м\2, стоит недорого) а под лестницей телевизор Посилання на коментар Поділитися на інших сайтах More sharing options...
goga777 Опубліковано: 21 листопада 2018 Автор Поділитись Опубліковано: 21 листопада 2018 деревянная лестница 5-6м\2, стоит недорого) а под лестницей телевизор последнее предупреждение посты пожалуйста по теме "Проекты одноэтажных домов без коридоров" или же создавайте свою тему и занимайтесь рекламой в ней 4 Посилання на коментар Поділитися на інших сайтах More sharing options...
goga777 Опубліковано: 25 листопада 2018 Автор Поділитись Опубліковано: 25 листопада 2018 Для любителей большого остекления Посилання на коментар Поділитися на інших сайтах More sharing options...
vadimv Опубліковано: 25 листопада 2018 Поділитись Опубліковано: 25 листопада 2018 Для любителей большого остекленияИ дырки в крыше. Ну, индусы могут себе позволить. Посилання на коментар Поділитися на інших сайтах More sharing options...
goga777 Опубліковано: 27 листопада 2018 Автор Поділитись Опубліковано: 27 листопада 2018 Я бы еще сюда печку поставил Посилання на коментар Поділитися на інших сайтах More sharing options...
Gonchik Опубліковано: 27 листопада 2018 Поділитись Опубліковано: 27 листопада 2018 Какая-то общажная планировка. Пришел, поел, лег спасть. 1 Посилання на коментар Поділитися на інших сайтах More sharing options...
pump Опубліковано: 27 листопада 2018 Поділитись Опубліковано: 27 листопада 2018 Какая-то общажная планировка. Пришел, поел, лег спасть.Или под хостел, если поставить двухэтажные кровати. Посилання на коментар Поділитися на інших сайтах More sharing options...
goga777 Опубліковано: 27 листопада 2018 Автор Поділитись Опубліковано: 27 листопада 2018 Какая-то общажная планировка. Пришел, поел, лег спасть. что за глупости? Посилання на коментар Поділитися на інших сайтах More sharing options...
Gonchik Опубліковано: 28 листопада 2018 Поділитись Опубліковано: 28 листопада 2018 что за глупости? Для человека, который, как сам он пишет, в доме только спит - да, наверное, глупости. А так в данной планировке нет нормальной зоны отдыха. Размер кухни+ холла сопоставим с размерами маленьких (метров по 11) спален. 3 Посилання на коментар Поділитися на інших сайтах More sharing options...
goga777 Опубліковано: 30 листопада 2018 Автор Поділитись Опубліковано: 30 листопада 2018 Переименовываем тему "дома для <только поспать>" еще пара проектов для сего действия. Посилання на коментар Поділитися на інших сайтах More sharing options...
goga777 Опубліковано: 30 листопада 2018 Автор Поділитись Опубліковано: 30 листопада 2018 Есть где развернуться 2 Посилання на коментар Поділитися на інших сайтах More sharing options...
goga777 Опубліковано: 30 листопада 2018 Автор Поділитись Опубліковано: 30 листопада 2018 Тоже свободненько Посилання на коментар Поділитися на інших сайтах More sharing options...
tort Опубліковано: 30 листопада 2018 Поділитись Опубліковано: 30 листопада 2018 Тоже свободненькоЦе за рахунок збільшення площі у кожному приміщенні. Видно що під комунікаційні зони віддано багато площі. Тобто теза про "оптимальний простір" у будинку без коридору набуває іншого змісту. Два островних утворення (кухонний острів з баром та дивани у залі) вимагають від хазяїв оббігати їх по колу. Посилання на коментар Поділитися на інших сайтах More sharing options...
tansss Опубліковано: 30 листопада 2018 Поділитись Опубліковано: 30 листопада 2018 Мой личный рейтинг возглавляет концепция-планировка одного из форумчан (см.эскиз). За ней вот такая концепция www.omatalo.com/talot/kerttu/ И далее почти все "оматалы" На рейтинг влияли - оптимально/минимальное кол-во "лишних" м2 в сочетании с простотой(низкой материалоёмкости) конструкции. Не вижу смысла в оптимизации пространства за счёт минимизации коридоров но с жирнючей реализацией и ахриненными теплопотерями! Всё ИМХО! п.с. Именно концепции... Мелкие модификации, окна и тд возможны. 6 Посилання на коментар Поділитися на інших сайтах More sharing options...
goga777 Опубліковано: 4 грудня 2018 Автор Поділитись Опубліковано: 4 грудня 2018 финские идеи 1 Посилання на коментар Поділитися на інших сайтах More sharing options...
goga777 Опубліковано: 31 грудня 2018 Автор Поділитись Опубліковано: 31 грудня 2018 Рік Новий – казковий час! Хай здивує щастям Вас Рік добра і рік кохання. Тож приймайте привітання: Будьте добрі та здорові, Побажаємо любові, Світла й радощів багато, Щоб життя було, як свято! 6 Посилання на коментар Поділитися на інших сайтах More sharing options...
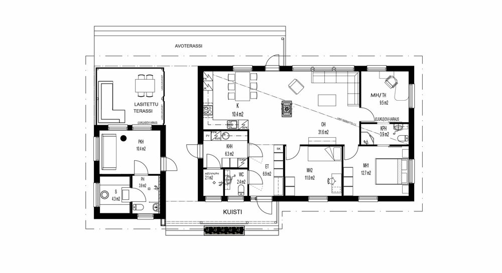
goga777 Опубліковано: 27 лютого 2019 Автор Поділитись Опубліковано: 27 лютого 2019 Сразу с реализацией 2 Посилання на коментар Поділитися на інших сайтах More sharing options...
JohnnyD Опубліковано: 27 лютого 2019 Поділитись Опубліковано: 27 лютого 2019 Сразу с реализацией Есть минус. Пока дойдешь ночью до туалета через гостиную, можно голову разбить. 5 Посилання на коментар Поділитися на інших сайтах More sharing options...
vital-777 Опубліковано: 27 лютого 2019 Поділитись Опубліковано: 27 лютого 2019 Есть минус. Пока дойдешь ночью до туалета через гостиную, можно голову разбить. нечего по ночам бродить- ночью спать надо!!! А голову можно и не выходя из спальни разбить. если сдвинуть в угол мягкий уголок на против телевизора, где он и должен быть, проход будет по прямой. имхо 1 Посилання на коментар Поділитися на інших сайтах More sharing options...
JohnnyD Опубліковано: 27 лютого 2019 Поділитись Опубліковано: 27 лютого 2019 нечего по ночам бродить- ночью спать надо!!! А голову можно и не выходя из спальни разбить. если сдвинуть в угол мягкий уголок на против телевизора, где он и должен быть, проход будет по прямой. имхо В какой из углов? Где кухня, вход в комнату или вход в дом. Если, где нижняя комната, то разобьет голову проживающий там. 1 Посилання на коментар Поділитися на інших сайтах More sharing options...
goga777 Опубліковано: 27 лютого 2019 Автор Поділитись Опубліковано: 27 лютого 2019 Есть минус. Пока дойдешь ночью до туалета через гостиную, можно голову разбить. Для лборазбивателей есть спальня возле санузла. А в Целом то, что спальни не имеют общей стены с СУ я вижу нессколько преимуществ Посилання на коментар Поділитися на інших сайтах More sharing options...
Рекомендовані повідомлення
Створіть акаунт або увійдіть у нього для коментування
Ви маєте бути користувачем, щоб залишити коментар
Створити акаунт
Зареєструйтеся для отримання акаунта. Це просто!
Зареєструвати акаунтУвійти
Вже зареєстровані? Увійдіть тут.
Увійти зараз