goga777 Опубліковано: 26 жовтня 2019 Автор Поділитись Опубліковано: 26 жовтня 2019 такой себе вагончик.... тронеется, перон останется 8) 3 Посилання на коментар Поділитися на інших сайтах More sharing options...
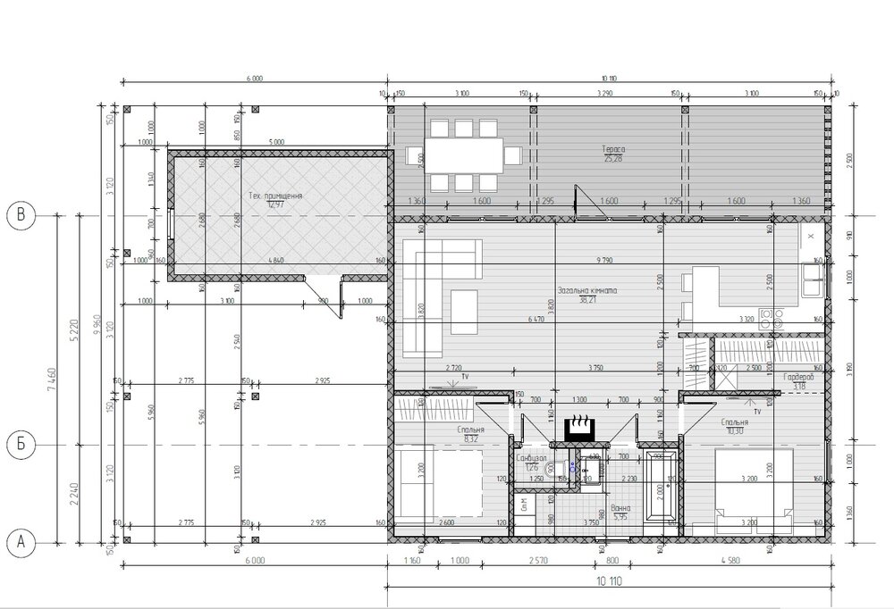
goga777 Опубліковано: 18 листопада 2019 Автор Поділитись Опубліковано: 18 листопада 2019 редкость - безкоридорник с 3 спальнями 2 Посилання на коментар Поділитися на інших сайтах More sharing options...
AndyAntonov Опубліковано: 18 листопада 2019 Поділитись Опубліковано: 18 листопада 2019 редкость - безкоридорник с 3 спальнямиАмериканский проект? Что-то такое характерное. Да и не под наш климат. Посилання на коментар Поділитися на інших сайтах More sharing options...
goga777 Опубліковано: 18 листопада 2019 Автор Поділитись Опубліковано: 18 листопада 2019 Американский проект? нет Финский. Любой проект без коридора можно назвать "не для нашего климата" тем не менее в подобном я бы чувствовал себя абсолютно комфортно 1 Посилання на коментар Поділитися на інших сайтах More sharing options...
AndyAntonov Опубліковано: 18 листопада 2019 Поділитись Опубліковано: 18 листопада 2019 Без коридоров — не факт. Без тамбура — таки факт. А тут вход прямо в гостиную. Посилання на коментар Поділитися на інших сайтах More sharing options...
Михалів Опубліковано: 19 листопада 2019 Поділитись Опубліковано: 19 листопада 2019 Було заплановано тамбур та по всьому 1 поверху тепла підлога, запустивши опалення відмовились від дверей між залою та тамбуром - комфортно та тепло. Вхідні двері металопластикові зі склом, так що жити в нашому кліматі без тамбура можливо, але зрозуміло що повинно бути місце де можна зняти взуття та одяг. Посилання на коментар Поділитися на інших сайтах More sharing options...
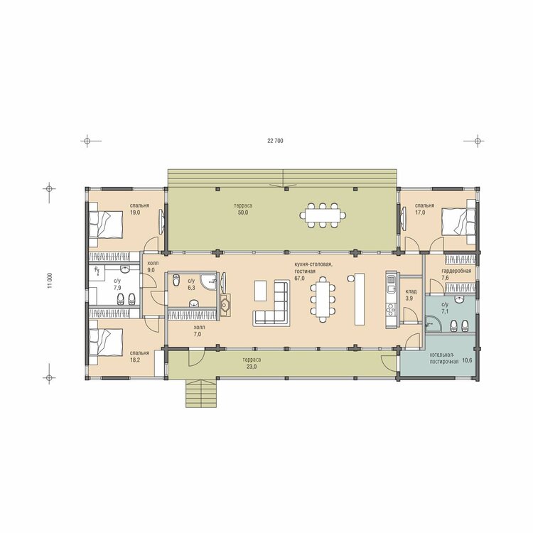
goga777 Опубліковано: 25 грудня 2019 Автор Поділитись Опубліковано: 25 грудня 2019 Проект адаптирован под контейнеры, но абсолютно достоен реализации из любого материала. 3 Посилання на коментар Поділитися на інших сайтах More sharing options...
goga777 Опубліковано: 25 грудня 2019 Автор Поділитись Опубліковано: 25 грудня 2019 Мне очень нравится подобное расположение шкафов в спальнях. Помимо своей основной функции они также выполняют функцию шумоизоляции, причем выполняют ее превосходно. Посилання на коментар Поділитися на інших сайтах More sharing options...
tansss Опубліковано: 25 грудня 2019 Поділитись Опубліковано: 25 грудня 2019 но абсолютно достоен реализации из любого материала. Наверное это самый БЭЗкорридорный из... 2 Посилання на коментар Поділитися на інших сайтах More sharing options...
allanek Опубліковано: 25 грудня 2019 Поділитись Опубліковано: 25 грудня 2019 Мне очень нравится подобное расположение шкафов в спальнях. Помимо своей основной функции они также выполняют функцию шумоизоляции, причем выполняют ее превосходно. Могу подтвердить ваши слова, у меня аналогичное расположение шкафов в спальнях. Спальни граничат между собой стеной, вдоль которой расположены шкафы в нишах. 1 Посилання на коментар Поділитися на інших сайтах More sharing options...
tansss Опубліковано: 25 грудня 2019 Поділитись Опубліковано: 25 грудня 2019 Мне очень нравится подобное расположение шкафов в спальнях. Помимо своей основной функции они также выполняют функцию шумоизоляции, причем выполняют ее превосходно. А нечего в спальнях шуметь, лёг тихонько и спи... и не храпеть! (это для разрядки и по поводу праздника такой офтопчик) 2 Посилання на коментар Поділитися на інших сайтах More sharing options...
vadimv Опубліковано: 25 грудня 2019 Поділитись Опубліковано: 25 грудня 2019 Главное, что никого не смущает отсутствие звукоизоляции между спальнями и кухней-гостиной, а также двери прямо туда же. 1 Посилання на коментар Поділитися на інших сайтах More sharing options...
allanek Опубліковано: 25 грудня 2019 Поділитись Опубліковано: 25 грудня 2019 Главное, что никого не смущает отсутствие звукоизоляции между спальнями и кухней-гостиной, а также двери прямо туда же. Судя по тому, что там сдвижные двери в стену, наверное, со звукоизоляцией там вопрос. У меня каркасник, стена одной спальни граничит со стеной гостиной. И у этой стены стоит телевизор. Изоляция в виде Парока есть везде: в стене между спальнями(шкафы) и в стене спальня-гостиная. Переживала за стену, граничащую с гостиной. Никакой дополнительной изоляции, кроме Парока не делалось. По итогу, если открыта дверь в спальню и работает телевизор в гостиной, никакого дискомфорта нет, если дверь в спальню закрыта, вообще ничего не слышно, что происходит в гостиной. 1 Посилання на коментар Поділитися на інших сайтах More sharing options...
goga777 Опубліковано: 25 грудня 2019 Автор Поділитись Опубліковано: 25 грудня 2019 (змінено) Главное, что никого не смущает отсутствие звукоизоляции между спальнями и кухней-гостиной, а также двери прямо туда же. почему двери туда же - стоит посмотреть в названии темы. А вот при реализации проекта можно ,скорее всего нужно и на этой границе дополнительно предусмотреть шумку. Змінено 25 грудня 2019 користувачем goga777 1 Посилання на коментар Поділитися на інших сайтах More sharing options...
goga777 Опубліковано: 30 грудня 2019 Автор Поділитись Опубліковано: 30 грудня 2019 Поздравляю всех домостроителей и доможителей с наступающим НГ ! Желаю удачного завершения начатых проектов и вдохновения для начала новых! 12 Посилання на коментар Поділитися на інших сайтах More sharing options...
goga777 Опубліковано: 6 січня 2020 Автор Поділитись Опубліковано: 6 січня 2020 Отличный ПРОЕКТ реализует форумчанин 2 Посилання на коментар Поділитися на інших сайтах More sharing options...
Gonchik Опубліковано: 22 липня 2020 Поділитись Опубліковано: 22 липня 2020 horyzont.com/projekty/slonecznik/1-dach-dwuspadowy-2230 Или предбанники перед спальнями таки коридоры? 3 Посилання на коментар Поділитися на інших сайтах More sharing options...
yar.panin Опубліковано: 20 жовтня 2020 Поділитись Опубліковано: 20 жовтня 2020 А вот перебирая одноэтажные проекты нашел вот такой вариант: www.proektydomov.com.ua/katalog/odnoetazhnyie-doma/prostoj Тут, вроде и есть коридор, но он как-то так встроен, что не бесит что ли. Хотя это ИМХО. 1 Посилання на коментар Поділитися на інших сайтах More sharing options...
goga777 Опубліковано: 19 січня 2021 Автор Поділитись Опубліковано: 19 січня 2021 Необычненько 7 Посилання на коментар Поділитися на інших сайтах More sharing options...
goga777 Опубліковано: 11 лютого 2021 Автор Поділитись Опубліковано: 11 лютого 2021 Офигенно, как по мне 6 Посилання на коментар Поділитися на інших сайтах More sharing options...
yar.panin Опубліковано: 15 лютого 2021 Поділитись Опубліковано: 15 лютого 2021 Вот есть неплохой разбор проекта без коридора: Советую к просмотру 1 Посилання на коментар Поділитися на інших сайтах More sharing options...
tort Опубліковано: 15 лютого 2021 Поділитись Опубліковано: 15 лютого 2021 неплохой разбор проекта "Неплохой разбор плохого проекта" все-таки сильно хуже чем "плохой разбор хорошего проекта". У першому випадку ви дізнаєтеся скоріше "як не треба робити" ніж "як було б правильно". Власне, в принесеному відео, на жаль, ви ніяк не дізнаєтеся як треба було зробити насправді. Чим погані такі ролики, - тим що автор відео підібрав для перегляду навіть не спірне, а очевидно що більш невдалий варіант, мабуть щоб наочність прикладу була зрозуміла багатьом. Ну ок. Але навіщо воно тут? Відео з розбором чиїхось помилок явно не в тему топіка. Може вставили не той лінк що хотіли? 2 Посилання на коментар Поділитися на інших сайтах More sharing options...
goga777 Опубліковано: 23 квітня 2021 Автор Поділитись Опубліковано: 23 квітня 2021 Можно добавить входную группу. 2 Посилання на коментар Поділитися на інших сайтах More sharing options...
Harmonia Опубліковано: 17 травня 2021 Поділитись Опубліковано: 17 травня 2021 Доброе утро!) Очень хорошая темка!!!:good:..такие темы ,нужно где то в "Важное" закреплять!- (мое мнение!) Спасибо Вам ,за эту тему!!! 2 Посилання на коментар Поділитися на інших сайтах More sharing options...
goga777 Опубліковано: 24 травня 2021 Автор Поділитись Опубліковано: 24 травня 2021 Хонка - как всегда на высоте 7 Посилання на коментар Поділитися на інших сайтах More sharing options...
Рекомендовані повідомлення
Створіть акаунт або увійдіть у нього для коментування
Ви маєте бути користувачем, щоб залишити коментар
Створити акаунт
Зареєструйтеся для отримання акаунта. Це просто!
Зареєструвати акаунтУвійти
Вже зареєстровані? Увійдіть тут.
Увійти зараз