TVA Опубліковано: 28 квітня 2009 Поділитись Опубліковано: 28 квітня 2009 У меня вообще бредовая мысль есть , сендвидч панели ( 100 мм изоляции между листовым металлом ) и из этого делать зимнюю переносную накрывашку . Одну метровую секцию будет реально поднять вдвоем - втроем . из метровых секций составлять на зиму накрывашку . Идея хороша, но не могу сопоставить со своим пожеланием "цивильненько"... Посилання на коментар Поділитися на інших сайтах More sharing options...
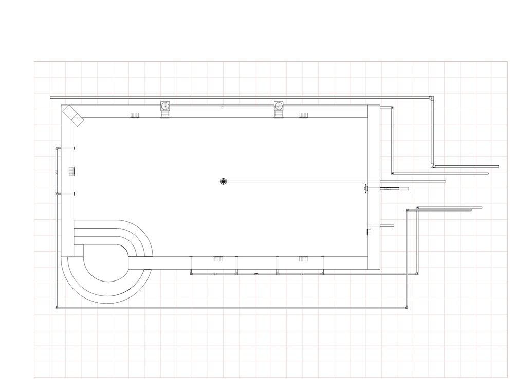
Владимир Н2О Опубліковано: 29 квітня 2009 Поділитись Опубліковано: 29 квітня 2009 (змінено) Вот свеженькая визуализация бассейна, можно сказать ещё горячая, только из под мышки !!! Может кому то будит интересно....:roll: Не знаю почему но чёрно-белый вариант тут вышел плохо, а у меня наоборот отличный! Змінено 29 квітня 2009 користувачем Владимир Н2О 1 Посилання на коментар Поділитися на інших сайтах More sharing options...
Roma_rio Опубліковано: 29 квітня 2009 Поділитись Опубліковано: 29 квітня 2009 Вот свеженькая визуализация бассейна, можно сказать ещё горячая, только из под мышки !!! Может кому то будит интересно....:roll: Не знаю почему но чёрно-белый вариант тут вышел плохо, а у меня наоборот отличный! Вот это я понимаю подход к работе Молодцы 1 Посилання на коментар Поділитися на інших сайтах More sharing options...
Владимир Н2О Опубліковано: 29 квітня 2009 Поділитись Опубліковано: 29 квітня 2009 Поговорим немного о обработке воды, вот относительно новый и современный препарат для основной обработки и дезинфекции на бес хлорной основе. Реальный аспект: на его основе успешно обрабатываю 3-ри общественных школьных бассейна размерами 12*6*1,5, выходит даже немного дешевле чем обработка на основе хлора! РекомендуюAQUALINEX_6.doc Посилання на коментар Поділитися на інших сайтах More sharing options...
-КУЛИБИН- Опубліковано: 29 квітня 2009 Поділитись Опубліковано: 29 квітня 2009 А подскажите уважаемй ПП Владимир какую установку дозирования Вы порекомендуете для закрытого бассейна 7,5х4,6 ? Интересует конечно вариант цена --качество и какие еще тут есть ньансы... Может кто еще из спецов даст рекомендацию... Посилання на коментар Поділитися на інших сайтах More sharing options...
Владимир Н2О Опубліковано: 29 квітня 2009 Поділитись Опубліковано: 29 квітня 2009 Для того что б дать Вам качественную консультацию мне нужно знать что у Вас уже стоит на бассейне(мощность фильтрующей установки, фирма производитель) и в каком количестве(форсунки, скимера). И самое главное что именно вы собираетесь дозировать и каким коплексом химии пользуетесь сейчас. Бассейн комерческий или домашний, это очень важно?!!8) Посилання на коментар Поділитися на інших сайтах More sharing options...
Владимир Н2О Опубліковано: 29 квітня 2009 Поділитись Опубліковано: 29 квітня 2009 А что, никому визуализация не понравилась? Говорите, принимается конструктивная критика....:drinks: Посилання на коментар Поділитися на інших сайтах More sharing options...
alyak Опубліковано: 29 квітня 2009 Поділитись Опубліковано: 29 квітня 2009 А что, никому визуализация не понравилась? Говорите, принимается конструктивная критика....:drinks: из того закутка можно джакузик сделать . Посилання на коментар Поділитися на інших сайтах More sharing options...
Владимир Н2О Опубліковано: 29 квітня 2009 Поділитись Опубліковано: 29 квітня 2009 Есть такая мысль, единственная проблема, как разместить большое количество труб в чаше и при этом не уменьшить её надёжность и прочность! Данный бассейн является реальным прототипом, буду строить через месяц.... это не свободная концепция в журнале, потому многие решения по гидравлике, геометрии и расположению оборудования вызваны привязкой к конкретному помищению, его особенностям, требованиям архитектора и дизайнера заказчика! Посилання на коментар Поділитися на інших сайтах More sharing options...
InSAn Опубліковано: 29 квітня 2009 Поділитись Опубліковано: 29 квітня 2009 Вот свеженькая визуализация бассейна, можно сказать ещё горячая, только из под мышки Это наружный бассейн? Из чего планируете делать? Во что оцениваете материалы/оборудование/работу? Посилання на коментар Поділитися на інших сайтах More sharing options...
abkiev Опубліковано: 29 квітня 2009 Поділитись Опубліковано: 29 квітня 2009 для себя решил буду стекловолоконный бассейн брать 5х3 либо 6х4 у себя на садовом участке ставить, есть у кого-то опыт эксплуатации именно стекловолкна? приглянулись по ценам вот эти товарищи www.aquagallery.com.ua/ судя по их цифрам "под ключ" бассейн с подогревом, системой автоматизации работы бассейна и ультрафиолетовой очисткой обойдется мне примерно в 50-60 штук грн. Это без Система автоматической дозировки химии "Easy Pool" за 2300 евро но отзывов о работе с ними и качестве продукции нажаль не нашел Посилання на коментар Поділитися на інших сайтах More sharing options...
M+A Опубліковано: 29 квітня 2009 Поділитись Опубліковано: 29 квітня 2009 А что, никому визуализация не понравилась? Говорите, принимается конструктивная критика....:drinks: А как происходит движение воды в том закутке? Есть, у знакомых, такой. Ступеньки, плохо промываются. В Вашем проекте, то же самое. Посилання на коментар Поділитися на інших сайтах More sharing options...
Владимир Н2О Опубліковано: 29 квітня 2009 Поділитись Опубліковано: 29 квітня 2009 Попробую ответить всем в одном сообщении, начнём по порядку: 2InSAn: 1.Это внутренний бассейн размером 9,4*4,8*1,6(1,5 воды) в ноль с полом! 2.Делать планируем бетонный под мозаику. 3. Самый жирный вопрос:D: Значит начнём с того что бассейн "премиум класса" Строительные работы: Бетонная чаша с работой и прочими косвенными затратами (проблемы с грунтовыми водами, сложность двухсторонней....) опалубки станет в 5000-6000 долларов. Облицовка мозаикой с сопутствующими материалами (гидроизоляция, клей, затирка) + процентов на 99% там по стенам будут ростяжки, сверху греческая линия, а на дне панно, где то в районе 6000-7000 долларов. Краткое описание оборудования (всё нержавейка): ..Наружное.. -Скимер, нержавейка, с длинной горловиной - 2шт. -Форсунки, нержавейка - 6 шт. -Донник, нержавейка - 1шт. -Забор воды под плечевой массажер "Кобра" - 1 шт. -Прожектор 300 Вт, нержавейка, белый - 3 шт. -Прожектор спектральный, нержавейка - 2 шт -Плечевой массажер "Кобра", Немцы - 1шт. -Система искусственной реки, нержавейка - 1шт Итог: в районе 9000-10000 евро ..Внутренние.. 1. Фильтрационная установка на основе кварцевого песка и угля 22 м3/час - 1шт 2.Теплообменник 77 кВт - 1шт 3.Станция автоматического дозирования на pH и коагулянт - 1шт 4.Станция Озонирования Dinoteck -1 шт 5. Ультрафиолетовая лампа 75 Вт Итог: 12000-13000 евро Трубы, фитинги, электроавтоматика 2000 евро Монтаж: 3000 эвро Всего : 6000дол+7000дол+10000евро+13000евро+2000евро+3000евро = 39000 евро + копинговый камень, осушитель, робот пылесос и т.д. P.S. Прошу прощения за неточности, во-первых оборудование и геометрия бассейна уточняется, во-вторых пишу по памяти так, как уже дома, пью кофе! 2abkiev: 1. Что есть система автоматизации работы бассейна ( в зависимости от функций может стоять от 500 до ... евро? 2. "Easy Pool" - хороший проверенный метод, но можно сэкономить, допустим поставить итальянские станции дозирования "Aqua": 1-на станция на замер и дозировку pH minus (так,как повышать pH приходится очень, очень редко.. из 100 бассейнов в 1-ном и то), 2-я допустим, просто в виде перистальтического насоса на дозировку(без замеров) основного окислителя, хлор на эту роль не подходит, так как в следствии разных причин, может накопится и не растворится, передозироваться или не сработать по пречине большой нагрузку, а вот Aquline X - в самый раз! 3. С данной фирмой не стыкался, но советую подождать до "Акватерма" - там будет из кого выбирать + в Киеве помойму нет проблем с выбором фирмы инсталятора! 2M+A: Ну Я уж думал никто не заметит!!! Дело в том, что это задумка архитектора и дизайнера со стороны заказчика и как правило их полёт фантазии не сходится с Нашим скрупулёзным техническим подходом: Всё должно выдавать 200% КПД!!! Но если Заказчик с свитой не вразумится и тут есть решение: 1. При наличии полной автоматизации в водоподготовке кальциевые и прочие отложения сведутся к минимуму, а то и вообще не появятся, останется только ручная чистка(1 раз в месяц) с помощью угловых сщёток... ну Я думаю это его не волнует, так как Мы, быстрее всего, возьмём его на полное обслуживание! 2. Для подстраховки можно завести дополнительную трубу, сделать разветвлении и с помощью тонких трубочек, специальных закладных организовать циркуляцию в зоне лестницы. Либо просто установить дополнительную форсунку... но это не Наш метод..:D Счастливой Вам воды:beer: Посилання на коментар Поділитися на інших сайтах More sharing options...
Владимир Н2О Опубліковано: 29 квітня 2009 Поділитись Опубліковано: 29 квітня 2009 Если кому то интересно могу сделать визуализацию бассейна эконом или среднего, класса.... Для этого Мне надо что б все вместе выбрали оптимальный тип и размер, необходимый набор оборудования.... так сказать создадим общественно оптимальный набор. Я всё оформлю с просчётом практически "под ключ" - так сказать бесплатная промо-акция от меня Вносите свои предложения ... подбирать будем до выходных.. после сделаю презентационный набор: визуализация + коммерческое предложение. Посилання на коментар Поділитися на інших сайтах More sharing options...
Леонид Опубліковано: 29 квітня 2009 Поділитись Опубліковано: 29 квітня 2009 3. но советую подождать до "Акватерма" Подскажите пожалуйста когда и где будет проходить? Посилання на коментар Поділитися на інших сайтах More sharing options...
Владимир Н2О Опубліковано: 29 квітня 2009 Поділитись Опубліковано: 29 квітня 2009 Вот тут посматри www.aqua-therm.kiev.ua/ Посилання на коментар Поділитися на інших сайтах More sharing options...
abkiev Опубліковано: 29 квітня 2009 Поділитись Опубліковано: 29 квітня 2009 бьюсь головой апстену, очень надо туда попасть но сегодня купил путевку и вернусь только 16го вечером чьорт побьери! 2 ПП Владимир система автоматизации работы бассейна, я взял строку с их сайта, честно говоря сам не знаю пока о чем речь идет по поводу автоматики спасибо за совет, буду думать. Возможен такой вариант что я покупаю только чашу а по всему оборудованию и его размещению грамотному обращаюсь к Вам? Они скорее парят стандартный набор, не факт что мне всё это нужно будет, где-то улучшить, где-то ухудшить может помочь только спец изучив участок, воду, потребности, бюджет и т.д. Посилання на коментар Поділитися на інших сайтах More sharing options...
InSAn Опубліковано: 30 квітня 2009 Поділитись Опубліковано: 30 квітня 2009 Если кому то интересно могу сделать визуализацию бассейна эконом или среднего, класса.... Для этого Мне надо что б все вместе выбрали оптимальный тип и размер, необходимый набор оборудования.... так сказать создадим общественно оптимальный набор. Я всё оформлю с просчётом практически "под ключ" - так сказать бесплатная промо-акция от меня Вносите свои предложения ... подбирать будем до выходных.. после сделаю презентационный набор: визуализация + коммерческое предложение. Не ошибусь, если скажу "за всех" - интересно! Давайте начнем с эконом-класса Тип - наружный. Оптимальный размер - 6*3 (желательно с уклонным дном - от 1м до 2м). 1 Посилання на коментар Поділитися на інших сайтах More sharing options...
abkiev Опубліковано: 30 квітня 2009 Поділитись Опубліковано: 30 квітня 2009 +1 Посилання на коментар Поділитися на інших сайтах More sharing options...
Владимир Н2О Опубліковано: 30 квітня 2009 Поділитись Опубліковано: 30 квітня 2009 Ждём ещё предложений по Нашему бассейну (геометрия, размер, покрытие, набор оборудования, который Вы считаете нужным + если позволите, пока не буду комментировать каждый топик с Вашими предложениями, по окончании соберу в кучу и определимся с окончательным ответом! Ждём предложений! 2BlackAlex: Чем нержавейка лучше? Да в принципе ничем не лучше хорошего, качественного пластика - это визуальное восприятие и понты (в хорошем смысле этого слова) Приведу пример сравнения цен по разнице между нержавейкой (в данном случае преобладает фирма "Pahlen") и пластиком: Скимер (с удлинённой горловиной): 100 и 500 евро, пластик и нержавейка соответственно Форсунки с проходами: 30 и 80 евро Донник 30 и 200 Фонарь обычный: 100 и 300 Фонарь спектральный 250 и 780 Противоток 1500 и 2700 Цены приведены ориентировочные (округлённые), без труб, фитингов, электроавтоматики и монтажа! Посилання на коментар Поділитися на інших сайтах More sharing options...
Владимир Н2О Опубліковано: 30 квітня 2009 Поділитись Опубліковано: 30 квітня 2009 Конкретней пожалуйста! Посилання на коментар Поділитися на інших сайтах More sharing options...
Владимир Н2О Опубліковано: 30 квітня 2009 Поділитись Опубліковано: 30 квітня 2009 Для того что б не желтела пластмасса нужно правильно ухаживать за бассейном! Про фирму "Астрал": один из крупнейших производителей оборудования на европейском рынке, вообще по моему они занимаются всем, и заводами и пароходами. У них неплохая нержавейка, но лично Я отдаю предпочтение Pahlen. Пластмассовыми закладными ихней фирмы в основном не пользуюсь, предпочитаю Крипсол, Кофиес - тоже чисто из личных побуждений! Хотя форсунок с 5-ть на складе лежит, в основном роль играл внешний вид: у Астрала пластмасса белоснежная но матовая, а у Крипсола чуть темнее, но блястит.....:D А так фирма Брэнд с большой буквы Б.., так что Я думаю можете спокойно пользовать 1 Посилання на коментар Поділитися на інших сайтах More sharing options...
Владимир Н2О Опубліковано: 30 квітня 2009 Поділитись Опубліковано: 30 квітня 2009 Просьба к Модераторам форума!!! Не могли бы Вы, уважаемые, все посты по теме создания и визуализации бассейна скинуть в новую тему, а то в этой уже про всё говорили и про подогрев и про фирмы, про очистку и бетонн..... новому человеку нужно много и долго копатся в всём этом что б найти рациональное зерно. Придумали бы ей оригинальное название и т.д., Я тож не сразу на форуме про бассейны нашёл....ну что мне Вас учить, Вы и сами прекрасно знаете Так сказать "Генеральная уборка" За что заранее благодарен... Посилання на коментар Поділитися на інших сайтах More sharing options...
M+A Опубліковано: 30 квітня 2009 Поділитись Опубліковано: 30 квітня 2009 скимера, донники, возвратные форсунки. интересует как ведет себя пластик в эксплуатации. не желтеет ли? Я вот, влезу со своими наблюдениями. Мне привезли, из Китая, что форсунки, что скимера. что насос, что фильтр, что трубы, под все это. Хоть бы что, полетело. Пошел, сегодня, "пошкрябал" то, что находилось на солце, два года. Хоть бы что. Не говоря уже о других девайсах. Ясное дело, что, оборудование у меня, "но нейм", которое было разщитано, уважаемой фирмой, а куплено напрямую. Мало того, что оно стОило 700 баксов на 50 кубов воды, так, и не ломается/желтеет же... Короче, ищите концы у перевозщиков оборудования А Ваше ДМВ, просто продавец со всеми вытекающими... Посилання на коментар Поділитися на інших сайтах More sharing options...
Владимир Н2О Опубліковано: 30 квітня 2009 Поділитись Опубліковано: 30 квітня 2009 Всё зависит от ого как всем этим пользоватся и насколько эксплуатируется бассейн. Допустим фмльтрующая бочка, ну стекловолокно как стекловолокно, пластик, как пласти - врядли сломаете, а вот шистипозиционный клапан - умрё через 1-2 года (если речь о плохом китае идёт), + таже атоматика: у одних на лини не встричаются перебои электричества и им всё равно китай или австрия, а вот те у кгого есть такие проблемы - сразу скажут себе спасибо за зарание переплоченых 100 евро. Как Я начал ценить насосы фирмы Вагнер : Звонит Мне клиент (женщина) и сообщает о шумах в техническом отсеке, что мол насос неправильно шумит и вода не фильтруется. Ну Я думаю: либо не промыли, либо клапан не в то положение поставили, либо воду опустили ниже скимера и произошло завоздушивание! Короче кратко: насос 3 дня простоял в приямке на 3/4 накрытый водой!!! И при этом работал. Автоматика не сработала, потому, что не было ей на это причин, нигде током не пробивало, ну чють водичка намочила...О... Вот это техника, достали высушили, уже 1 год после этого прошёл. ( проблема с утечкой не относилась к бассейну:D) А некоторые представители Нашей фауны кончаются через 3 месяца из -за повышеной влажности....бр... Ну сто уже говорить о таких вещах как станции дозирования и обработки воды - это не шутки, один раз сэкономив, можно сэкономить себе на место - на кладбище ... тьфу, тьфу , тьфу Уважаемый M+A, поверьте, в Украине существует много других фирм по поставке оборудования для бассейнов, так что не нравится ДМБ - ищите другу и т.д. Кстати, насчёт сроков в 1-5 лет - это не срок для бассейна, успешный бассейн можно назвать тогда, когда прошло минимум 10 лет, ну это относится к чаше. А оборудование в "качественных условиях" должно работать долгие годы. И не забывайте - срок жизни Вашего бассейна зависит исключительно от Вас! Как газон - красиво, но требует постоянного ухода и диагностики. Хто ж Вам сдаст эти концы...8-)??? А вы знаете что плитка шоколада в себестоимости 25 копеек, а сахара у нас вообще навалом и рыночная стоимость сейчас завышена минимум на 30% из-за интереса к нему в сфере производства этанола и это только рыночная. Многие вещи из Китая дешевле чем ихние эвропейские братья, но не потому что они хуже, а потому что там либо супер ноу-хао конвеер всё делает, либо человек так 10000 по 1 баксу/час, рабочая сила там дешевле. А Вы знаете что половина европейских брендов по строительству бассейнов уже давно перенесли, хотя бы частично, производство в Китай, кстати "Астрал", не исключение. Пример: не без известная финская фирма Харви (печи для саун), каменку "Нова" делает в Китае.... и т.д. и т.п., поэтому Я и говорил, что основываться нужно на опыте, а не на бренде! Посилання на коментар Поділитися на інших сайтах More sharing options...
Рекомендовані повідомлення
Створіть акаунт або увійдіть у нього для коментування
Ви маєте бути користувачем, щоб залишити коментар
Створити акаунт
Зареєструйтеся для отримання акаунта. Це просто!
Зареєструвати акаунтУвійти
Вже зареєстровані? Увійдіть тут.
Увійти зараз